Евгений ООО "ПАНЭНЕРГОМЕТ"

Объявления пользователя

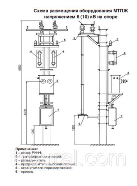
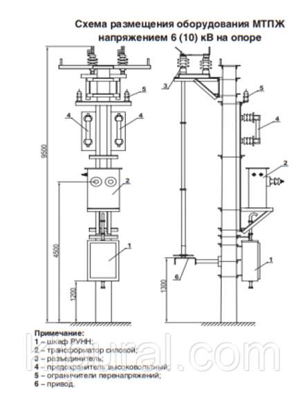
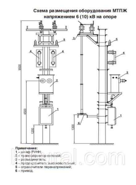
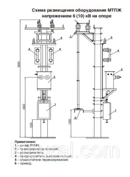
Привод ПРГ-02-2Б УХЛ1 к разъединителю РДЗ-110

Привод ПРГ-02-2Б УХЛ1 к разъединителю РДЗ-110

Березовский Завод Подстанция может поставить из наличия следующие привода: * ПРГ-00-2Б для РЛНД-10; РДЗ-35; РДЗ-110 кВ * ПРГ-01-2Б для РЛНД-10; РДЗ-35 кВ * ПРГ-02-2Б для РДЗ-35 кВ; РДЗ-110 кВ Приводы ручные ПРГ-2Б УХЛ1: ПРГ-00-2Б УХЛ1; ПРГ-01-2Б УХЛ1; ПРГ-02-2Б УХЛ1 Привод серии ПРГ-2Б УХЛ1 предназначен для оперирования разъединителями и заземлителями типа РЛНД; РДЗ на напряжение от 10 до 110 кВ при установке их на открытом воздухе: * ПРГ-00-2Б для РЛНД-10; РДЗ-35; РДЗ-110 кВ * ПРГ-01-2Б для РЛНД-10; РДЗ-35 кВ * ПРГ-02-2Б для РДЗ-35 кВ; РДЗ-110 кВ Условия эксплуатации приводов ПРГ-00-2Б УХЛ1; ПРГ-01-2Б УХЛ1; ПРГ-02-2Б УХЛ1: Приводы изготавливаются в соответствии с ГОСТ 689-90 в климатическом исполнении УХЛ1, категории размещения 1 по ГОСТ 15150-69 и ГОСТ 15543.1-89, при этом: * высота над уровнем моря – не более 1000 м; * верхнее рабочее значение температуры окружающего воздуха – плюс 40°С; * нижнее рабочее значение температуры окружающего воздуха - минус 60°С; Пример условного обозначения привода ПРГ-2Б УХЛ1 ПРГ – ХХ – 2Б- УХЛ-1 П - привод;  Р - ручной;  Г - тип переключающего устройства (горизонтальное положение рукоятки); XX - вариант исполнения привода (00-02); в зависимости от наличия и расположения валов заземлителей;  2Б - модификация;  УХЛ - климатическое исполнение (УХЛ); 1 - категория размещения по ГОСТ 15150-69 и ГОСТ 15543.1-89 Номенклатура и основные технические данные приводов ПРГ-2Б Обозначение типоисполнения Конструктивное исполнение Масса, кг Количество и расположение валов заземлителей(со стороны оператора) Количество переключающих устройств Главного вала Валов заземлителей ПРГ-00-2БУХЛ1 ПРГ-01-2БУХЛ1 ПРГ-02-2БУХЛ1 Один справа и один слева от главного вала Один слева от главного вала Один справа от главного вала 16 16 16 4+4 4 4 20 13 13

24 000 руб.
Екатеринбург
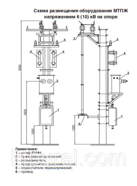
Привод ПРГ-00-2Б УХЛ1 к разъединителю РДЗ-110

Привод ПРГ-00-2Б УХЛ1 к разъединителю РДЗ-110

Березовский Завод Подстанция может поставить из наличия следующие привода: * ПРГ-00-2Б для РЛНД-10; РДЗ-35; РДЗ-110 кВ * ПРГ-01-2Б для РЛНД-10; РДЗ-35 кВ * ПРГ-02-2Б для РДЗ-35 кВ; РДЗ-110 кВ Приводы ручные ПРГ-2Б УХЛ1: ПРГ-00-2Б УХЛ1; ПРГ-01-2Б УХЛ1; ПРГ-02-2Б УХЛ1 Привод серии ПРГ-2Б УХЛ1 предназначен для оперирования разъединителями и заземлителями типа РЛНД; РДЗ на напряжение от 10 до 110 кВ при установке их на открытом воздухе: * ПРГ-00-2Б для РЛНД-10; РДЗ-35; РДЗ-110 кВ * ПРГ-01-2Б для РЛНД-10; РДЗ-35 кВ * ПРГ-02-2Б для РДЗ-35 кВ; РДЗ-110 кВ Условия эксплуатации приводов ПРГ-00-2Б УХЛ1; ПРГ-01-2Б УХЛ1; ПРГ-02-2Б УХЛ1: Приводы изготавливаются в соответствии с ГОСТ 689-90 в климатическом исполнении УХЛ1, категории размещения 1 по ГОСТ 15150-69 и ГОСТ 15543.1-89, при этом: * высота над уровнем моря – не более 1000 м; * верхнее рабочее значение температуры окружающего воздуха – плюс 40°С; * нижнее рабочее значение температуры окружающего воздуха - минус 60°С; Пример условного обозначения привода ПРГ-2Б УХЛ1 ПРГ – ХХ – 2Б- УХЛ-1 П - привод;  Р - ручной;  Г - тип переключающего устройства (горизонтальное положение рукоятки); XX - вариант исполнения привода (00-02); в зависимости от наличия и расположения валов заземлителей;  2Б - модификация;  УХЛ - климатическое исполнение (УХЛ); 1 - категория размещения по ГОСТ 15150-69 и ГОСТ 15543.1-89 Номенклатура и основные технические данные приводов ПРГ-2Б Обозначение типоисполнения Конструктивное исполнение Масса, кг Количество и расположение валов заземлителей(со стороны оператора) Количество переключающих устройств Главного вала Валов заземлителей ПРГ-00-2БУХЛ1 ПРГ-01-2БУХЛ1 ПРГ-02-2БУХЛ1 Один справа и один слева от главного вала Один слева от главного вала Один справа от главного вала 16 16 16 4+4 4 4 20 13 13

28 000 руб.
Екатеринбург
Трансформатор напряжения НТМК -10 ревизия

Трансформатор напряжения НТМК -10 ревизия

Трансформатор НТМК Трансформатор НТМК-10-71 – трехфазный трехстержневой маслонаполненный измерительный трансформатор напряжения. Предназначен для понижения высокого первичного напряжения до значений пригодных для измерений. Трансформатор НТМК-10-71 (аналог трансформатора НТМК-10) используется для подключения счетчиков, фазометров, реле мощности и других приборов с обмотками тока и напряжения. Трансформаторы типа НТМК-10-71 устанавливают в шкафах комплектных распределительных устройств. Трансформатор НТМК-10-71 имеет климатическое исполнение “У”, категории размещения 3 и его необходимо эксплуатировать при следующих условиях: - необходимо эксплуатировать в закрытом помещении; - установку производить на высоте 1000 и ниже м над уровнем моря; - температура внутри ячейки от -45°С до +40°С; - при эксплуатации вторичная обмотка должна быть обязательно заземлена. Конструкция. Трансформатор НTМК-10-71 имеет сварной бак. Для удобного и быстрого монтажа на крышке бака трансформатора привариваются скобы. Слив и взятие пробы масла осуществляется через пробку, расположенную в нижней части бака. Болт заземления находятся в низу бака. Заливка масла осуществляется через пробку расположенную на крышке бака возле выводов обмоток ВН, НН. Активная часть включает в себя магнитопровод, обмотки и вывода ВН, НН. Магнитопровод трансформатора изготавливается трехстержневым из холоднокатаной высококачественной электротехнической стали. Обмотки трансформатора изготавливают из медных проводов. Трансформатор НТМК-10-71 имеет компенсационную обмотку, предназначенную для коррекции угловой погрешности. Компенсационные обмотки трансформатора имеют примерно в 259 раз меньше витков чем обмотка ВН. Выводы обмоток выполнены съемными проходными фарфоровыми изоляторами. Обмотки закрепляются на стержнях магнитопровода, после выполняются все необходимые электротехнические соединения и производится сушка под вакуумом. После проверки всех электротехнических параметров трансформатора активная часть помещается в бак. Сверху крепится крышка и после этого трансформатор наполняют маслом.Тип: Трансформатор напряжения

25 000 руб.
Екатеринбург
Трансформатор напряжения НТМК -6 ревизия

Трансформатор напряжения НТМК -6 ревизия

Трансформатор НТМК Трансформатор НТМК-10-71 – трехфазный трехстержневой маслонаполненный измерительный трансформатор напряжения. Предназначен для понижения высокого первичного напряжения до значений пригодных для измерений. Трансформатор НТМК-10-71 (аналог трансформатора НТМК-10) используется для подключения счетчиков, фазометров, реле мощности и других приборов с обмотками тока и напряжения. Трансформаторы типа НТМК-10-71 устанавливают в шкафах комплектных распределительных устройств. Трансформатор НТМК-10-71 имеет климатическое исполнение “У”, категории размещения 3 и его необходимо эксплуатировать при следующих условиях: - необходимо эксплуатировать в закрытом помещении; - установку производить на высоте 1000 и ниже м над уровнем моря; - температура внутри ячейки от -45°С до +40°С; - при эксплуатации вторичная обмотка должна быть обязательно заземлена. Конструкция. Трансформатор НTМК-10-71 имеет сварной бак. Для удобного и быстрого монтажа на крышке бака трансформатора привариваются скобы. Слив и взятие пробы масла осуществляется через пробку, расположенную в нижней части бака. Болт заземления находятся в низу бака. Заливка масла осуществляется через пробку расположенную на крышке бака возле выводов обмоток ВН, НН. Активная часть включает в себя магнитопровод, обмотки и вывода ВН, НН. Магнитопровод трансформатора изготавливается трехстержневым из холоднокатаной высококачественной электротехнической стали. Обмотки трансформатора изготавливают из медных проводов. Трансформатор НТМК-10-71 имеет компенсационную обмотку, предназначенную для коррекции угловой погрешности. Компенсационные обмотки трансформатора имеют примерно в 259 раз меньше витков чем обмотка ВН. Выводы обмоток выполнены съемными проходными фарфоровыми изоляторами. Обмотки закрепляются на стержнях магнитопровода, после выполняются все необходимые электротехнические соединения и производится сушка под вакуумом. После проверки всех электротехнических параметров трансформатора активная часть помещается в бак. Сверху крепится крышка и после этого трансформатор наполняют маслом.Тип: Трансформатор напряжения

25 000 руб.
Екатеринбург
Трансформатор ТМГ 40/6/0,4 У/Ун-0 новый

Трансформатор ТМГ 40/6/0,4 У/Ун-0 новый

Купить трансформатор ТМ 25/10/0,4; ТМ 25/6/0,4; ТМГ 25/10/0,4; ТМГ 25/6/0,4 новый купить в Екатеринбурге можно в Березовском Заводе Подстанция. Трансформаторы проходят строгий контроль ОТК, лабораторные испытания. Гарантия 3 года. Паспорт, протокол испытания, руководство по эксплуатации. Доставка по РФ в любой регион, также в любую страну СНГ. Доставим до ТК в Екатеринбурге бесплатно. Много трансформаторов в наличии. Большой склад. Трансформаторы любых марок работают в составе КТП (Комплектной трансформаторной подстанции). Подстанции КТП Вы можете приобрести в Березовском Заводе Подстанция. Мы являемся производителями трансформаторных подстанций и трансформаторов. У Вас есть возможность приобрести все в одном месте по конкурентной цене. Березовский Завод Подстанция реализует трансформаторы новые собственного производства. Все трансформаторы произведенные на Березовском Заводе Подстанция имеют алюминиевую обмотку. По специальному заказу можем изготовить трансформаторы с нестандартным напряжением по ВН 3кВ, по НН 0,23кВ. Трансформатор ТМ, ТМГ, ТМЗ это аппарат, который трансформирует напряжение из высокого в низкое. Например из 6кВ в 0,4кВ или из 10кВ в 0,4кВ. При этом изменяется сила тока. Трансформаторы делятся по мощности на 25кВа, 40кВа, 63кВа, 100кВа, 160кВа, 250кВа, 400кВа, 630кВа, 1000кВа, 1600кВа, 2500кВа, 4000кВа, 6300кВа и т.д. Марка трансформатора ТМ имеет конструкцию с расширительным бачком. Расширительный бачок имеет маслоуказатель для контроля уровня масла и заливную горловину для доливки масла. Трансформатор ТМГ имеет маслоуказатель для контроля уровня масла и предохранительный клапан для сброса избыточного давления. Трансформатор Тм и трансформатор ТМГ присоединяются к шинам или к кабелю сверху. Трансформатор ТМЗ имеет боковые ввода и присоединение осуществляется сбоку. Трансформатор ТМЗ имеет маслоуказатель для контроля уровня масла и выхлопной клапан. Все обмотки трансформаторов произведенные на Березовском Заводе Подстанция изготавливаются из электротехнического алюминия в виде шины и провода. Мы не используем в производстве фольгу, что обеспечивает надежность наших трансформаторов.  Количество обмоток трансформатора 3 Тип трансформатора Понижающий Высота 1075.0 мм Защита от перепадов напряжения нет Ширина 430.0 мм Способ монтажа На лапах Защитный кожух нет Конструктивное исполнение Стержневое Количество фаз 3 Мощность 40.0 кВА Максимальный ток 57.0 А Материал обмотки Алюминий Соединения обмоток Звезда Способ охлаждения обмоток Масляный Напряжение вторичной обмотки 0.4 кВ Напряжение первичной обмотки 6.0 кВ Потери холостого хода 160.0 Вт Потери короткого замыкания 880.0 Вт Материал изоляции пластин Жаростойкая пленка Ток холостого хода 2.8 % Длина 840.0 ммПроизводитель: Березовский Завод Подстанция Минимальная рабочая температура: -45.0 град. Максимальная рабочая температура: 45.0 град. Расходомер: Нет Род установки: Открытый воздуха Мановакууметр: Нет Газовое реле: Нет Блок контроля температуры масла: Нет Масса: 430.0 кг Встроенные трансформаторы тока: Нет Напряжение короткого замыкания: 4.5 %

79 000 руб.
Екатеринбург
Трансформатор тока ТФЗМ-110Б-УХЛ1-0,5S/5Р/5Р-100-200/5

Трансформатор тока ТФЗМ-110Б-УХЛ1-0,5S/5Р/5Р-100-200/5

Трансформатор тока ТФЗМ имеет буквенное обозначения: Т- трансформатор тока, Ф фарфоровая покрышка (видимая часть трансформатора) , З – вторичная обмотка звеньевого типа, М – маслонаполненный. Трансформатор тока ТФЗМ 35, ТФЗМ 110, ТФЗМ 220 наружной установки применяется на открытых распределительных устройствах и подстанциях. Трансформаторы ТФЗМ предназначены для передачи сигнала измерительным приборам, а также измерительной информации устройствам защиты и управления в установках переменного тока.. Трансформатор ТФЗМ 35 классифицируется по его наполнению, номинальному напряжению, климатическому исполнению и степени загрязнения. Вся эта информация представлена на крышке устройства. Трансформаторы ТФЗМ 35 А разделяются на каскадные и ступенчатые устройства.  Для наблюдения за уровнем масла в установке на его поверхности находиться специальный масло-указатель. Для предотвращения поступления воздуха внутрь ТФЗМ 35 Б на крышке трансформатора установлен воздухоосушитель, он же является влаго-поглощающим фильтром, внутри которого находится селикогель. Масляный трансформатор тока ТФЗМ 35 состоит из двух обмоток: первичной обмотки и вторичной. Обе обмотки собраны в единый комплект и закреплены на металлической подставке. Вторичная обмотка крепится на цоколе трансформатора. Обе обмотки трансформатора тока ТФЗМ 35, изолированы друг от друга при помощи электро-технической бумаги, пропитанной трансформаторным маслом. Обмотки трансформатора ТФЗМ помещены в фарфоровую покрышку и заполнены трансформаторным маслом. Фарфоровая покрышка имеет две функции: она служит корпусом трансформатора и внешней изоляцией. Фарфоровая крышка не должна иметь сколов, трещин и других повреждений. Внутренняя изоляция выполнена из электро-технической бумаги. За счет этого трансформатор ТФЗМ 35 отличается надежностью и долговечностью в эксплуатации. Трансформатор тока ТФЗМ 35 А имеет цоколь, на который служит опорой трансформатора. На нем расположен болт для заземления трансформатора. Фарфоровая покрышка трансформатора ТФЗМ 35 крепиться к цоколю болтовыми соединениями. Для того чтобы трансформатор ТФЗМ 35 Б надежно и плотно был закрыт фарфоровой крышкой, предусмотрена мягкая резиновая прокладка, которая исключает протечку масла.  Трансформатор ТФЗМ 35А и трансформатор ТФЗМ 35Б необходимо устанавливать не выше 1000 метров над уровнем моря. Скорость ветра не выше 60 метров/сек. Относительная влажность не более 80%. Устанавливать трансформатор ТФЗМ 35 следует не ближе 250 метров от жилых зданий. Трансформатор ТФЗМ 35 соответствует всем требованиям безопасности в соответствии с ГОСТ и ТУ. Трансформатор ТФЗМ 35А и ТФЗМ 35Б может работать в электрических цепях переменного тока частотой 50Гц и 60Гц.  Компания Завод Подстанция поможет Вам купить в Екатеринбурге трансформатор ТФЗМ 35 номиналом 15/5, 20/5, 30/5, 40/5, 50/5, 75/5, 100/5, 150/5, 200/5, 300/5, 400/5, 600/5, 800/5, 1000/5, 1200/5, 1500/5, 2000/5, класс точности 0,5; 0,5S, 0,2; 0,2S. Так же у нас Вы можете купить в Перми, Тюмени, Челябинске, Сургуте, Уфе, Оренбурге, Казани, Хабаровске, Чите, Омске, Томске, Новосибирске, Барнауле, Иркутске и других регионах России и стран СНГ. Доставка по всей России и странам СНГ.  Купить трансформатор тока ТФЗМ 35 можно в компании «Завод Подстанция».Тип: Трансформатор тока

280 000 руб.
Екатеринбург
Разъединитель РРЗ-1-35-1000 У3 (с одним заземляющим ножом

Разъединитель РРЗ-1-35-1000 У3 (с одним заземляющим ножом

Разъединитель РРЗ-1-35-1000 У3 (с одним заземляющим ножом, трехполюсный) с приводом Купить можно в Екатеринбурге. Доставляем до транспортной компании в Екатеринбурге.  Разъединители высоковольтные серии PP3—35 предназначены для включения и отключения обесточенных участков электрической цепи, находящихся под напряжением, а также заземления отключенных участков при помощи стационарных заземлителей. По конструкции разъединители вертикально–рубящего типа и имеют одно, двух и трехполюсное исполнение на общей раме. Разъединители состоят из цоколя (рамы), опорных изоляторов, контактной системы, изоляционных тяг и заземлителей. На раме разъединителя расположен приводной вал с рычагами, предназначенный для оперирования контактными ножами. При наличии заземлителей в основании дополнительно устанавливаются один или два вала для управления ими, а также механическая блокировка, препятствующая включению заземлителей при включенных главных ножах и наоборот. Контактная система разъединителя состоит из неподвижных контактов и подвижных контактных ножей. Неподвижные контакты представляют собой медные скобы, которые крепятся на опорных изоляторах. Для подводящих шин, расположенных плашмя, предусмотрены переходные контакты, устанавливаемые на неподвижных контактах. Переходные контакты поставляются по заказу за отдельную плату. Контактные ножи выполнены из медных шин, установлены на ребро и параллельны друг другу; один конец соединен с неподвижным контактом, образуя осевой контакт, другой конец — разъемный контакт. Заземлители разъединителя состоят из вала с приваренными пластинами, к которым крепятся ламели. При включении заземлителей ламели заходят на боковые поверхности контакта. Контактное давление в осевом и разъемном контактах главных ножей и ламельных контактах заземлителей осуществляется пружинами.

87 900 руб.
Екатеринбург
Ячейка ЯКНО -10-У1-В-ПВ-5

Ячейка ЯКНО -10-У1-В-ПВ-5

Назначение ячейки ЯКНО – 6(10)-У1: Ячейки высоковольтные типа ЯКНО-6(10)-У1 наружной установки, именуемые в дальнейшем- «Ячейки», изготовленные Березовским Заводом Подстанция, предназначены для питания электрооборудования роторных комплексов карьерных экскаваторов, для установки в местах присоединения к внутрикарьерным линиям электропередач сетей напряжением 6(10) кВ частотой 50 Гц, а также в магистральных и ответвительных сетях карьеров. Преимущественно ЯКНО используются для подключения высоковольтных двигателей бурильных установок, электро-экскаваторов, силовых трансформаторов, драг, земснарядов, буровых, компрессорных и конденсаторных установок, для секционирования карьерных и внекарьерных ЛЭП и для ряда других задач. Структура условного обозначения: ЯКНО - БЗП – 6 (10) – У1 – XX – X Я - ячейка К - комплектная Н – наружной установки БЗП – Березовский Завод Подстанция О - отдельностоящая 6 (10) – класс напряжения, до 10кВ У1 – климатическое исполнение по ГОСТ 15150-69, ГОСТ 15543-70 XX – тип выключателя и привода. X – номер схемы Нормальная работа ячейки ЯКНО - БЗП обеспечивается при: значения температуры окружающего воздуха от -45 до +50град. по ГОСТ 13543-70. На высоте до 1000м над уровнем моря. механических воздействиях, соответствующих группе эксплуатации М18 по ГОСТ 17516-72. Ячейки ЯКНО являются изделиями климатического исполнения У1 и категории размещения 1 по ГОСТ 15150-69. Технические характеристики: признаки классификации, характеристика значение параметров и исполнения номинальное напряжение (линейное) кВ 6,10 максимальное рабочие напряжение (линейное) кВ 7,2 и 12 номинальный ток главных цепей ячеек А 100,200,300,.400,630 номинальный ток сборных шин А 630 номинальный ток отключения выключателя кА 20 ток термической стойкости кА 20 номинальный ток электродинамической стойкости кА 51 уровень изоляции по ГОСТ 1516.1-76 нормальная изоляция вид изоляции воздушная наличие изоляции токоведущих частей с неизолированными шинами наличие выдвижных элементов без выдвижных элементов вид линейных высоковольтных подсоединений кабельные и воздушные линии условия обслуживания двухстороннее обслуживания вид ячейки в зависимости от встраиваемой аппаратуры с выключателем высокого напряжения наличие теплоизоляции без теплоизоляции степень защиты по ГОСТ 14254-69 IP IP 4 Ячейка ЯКНО обладает: высокой коммутационной способностью и надежностью энергосбережения; повышенной устойчивостью к ударным и вибрационным нагрузкам; (343)2130338 заказ ЯКНО Ячейка ЯКНО обеспечивает: полную взрыво- и пожаробезопасность быстродействие в работе удобство обслуживания легкость монтажа Электрические принципиальные схемы предусматривают возможность укомплектования ячеек следующими видами релейных защит: - максимальная токовая защита с выдержкой времени; - максимальная токовая защита мгновенного действия (токовая отсечка); - максимальная токовая защита от перегрузки; - защита от замыкания на землю; - защита минимального (максимального) напряжения; - защита от неполноценного режима; - защита от обрыва заземляющей жилы кабеля (контроль ценосности цепи заземления); (343)2130378 заказ ЯКНО Релейная защита может выполняться как на электромеханических реле типа РТ40, РТ351, так и с применением блоков микропроцессорных защит. Конструктивное исполнение: Ячейка ЯКНО – БЗП разделена сплошными перегородками на отсеки: - разъединителя; - высоковольтного выключателя; - трансформатора напряжения; - управления. В отсеке разъединителя установлены: - разъединители РВЗ или РВФЗ; - проходные изоляторы ИП 10/630 или ИПУ 10/630; - трансформаторы тока ТОЛ-10 или ТЛК-10 или их аналоги. В отсеке высоковольтного выключателя расположены: - выключатель (вакуумный или маломасляный); - трансформатор тока нулевой последовательности типа ТЗЛН; - механизм блокировок. В отсеке трансформатора напряжения размещены: - трансформатор напряжения типа 3XЗНОЛ-6(10), НТМИ-6(10), НАМИ-6(10), НАМИТ-6(10), НОМ-6(10) или аналоги. - предохранители ПКТ. В отсеке управления расположены привода разъединителя типа ПР-10, приборная панель, щиток управления и сигнализации, блок управления вакуумным выключателем. Доступ в отсеки, в которых оборудование находится под напряжением при отключенном разъединителе, закрыт сетчатыми ограждениями с нанесенными на них запрещающими знаками безопасности. (343)213-0308 заказ ЯКНО Дверь отсека вакуумного выключателя имеет механическую блокировку, исключающую возможность доступа в отсек при включенном разъединителе. НАЗНАЧЕНИЕ: По своему назначению ячейки разделяются на: - пункты приключательные; - пункты приключательные и освещения; - пункты секционирования; - пункты освещения карьеров; - секующие ячейки (секционный разъединитель). Пункт приключательный: Предназначен для подключения электроэкскаваторов, высоковольтных двигателей, силовых трансформаторов, буровых установок, высоковольтных двигателей бурильных установок, драг, компрессорных и конденсаторных установок т других потребителей. Присоединение осуществляется к воздушным и кабельным линиям электропередач. Вывод из ячеек к подключаемому оборудованию может быть как кабельным, так и воздушным. Пункт приключательный и освещение: Предназначен для обеспечения освещения рабочих площадей и подключения карьерных потребителей с защитой от токов утечки в цепях низкого напряжения. Пункт секционирования: Предназначен для секционирования карьерных и внекарьерных ЛЭП, а также обеспечивает создание пунктов, разделяющих сети энергосистем и карьеров. Представляет собой ячейку с воздушным вводом и воздушным выводом. (343)2130338 заказ ЯКНО Пункт освещения карьеров: Пункт освещения карьеров предназначен для освещения рабочих площадей. Секущие ячейки (секционный разъединитель): Секущая ячейка применяется в качестве секционного разъединителя.

750 000 руб.
Екатеринбург
Ввод высоковольтный 2Б21199 для ВМ-35

Ввод высоковольтный 2Б21199 для ВМ-35

Ввод характеризуется повышенной надежностью благодаря улучшенной защите конденсаторной втулки ввода от проникновения влаги. Полимерная оболочка втулки, сформированная единой с фланцем, полностью герметизирует верхнюю и среднюю часть втулки. При этом внутреннее воздушное пространство ввода сведено к минимуму, применена двухступенчатая герметизация верхней и нижней частей фарфоровой покрышки. Соответствие требованиям: Ввод конденсаторный ВВФ-35 -ГОСТ 10693-81, Стандарт МЭК 60137 Фарфоровая покрышка - ГОСТ 5862. Категория внешней изоляции вводов- (I и II) - ГОСТ 9920. Электрическая прочность изоляции ввода - ГОСТ 1516.3, МЭК694. Категория размещения (УХЛ1), климатические условия - ГОСТ 15150, ГОСТ 15543.1 Требования безопасности - ГОСТ 12.2.007.0(3)  Высоковольтный фарфоровый ввод ВПФ-35 с монолитной втулкой и фланцем из эпоксидного компаунда предназначен для комплектации и ремонта масляных выключателей на напряжение 35 кВ, работающих в открытых распредустройствах переменного тока, частоты 50 или 60 Гц. Категория внешней изоляции I или II по ГОСТ 9920-89. Примечание: Высоковольтные вводы ВПФ-35 полностью взаимозаменяемые с вводами, имеющими втулку с бумажно-бакелитовой изоляцией, а так же с вводами типа ВВФ-35, ВЛ-35. Вводы ВПФ-35 кВ для высоковольтных выключателей С-35, ВБНТ-35, ВВС-35, ВТ-35, ВТД-35, ВМ-35, ВМД-35, МКП-35 поставляются заказчику в деревянной таре любой транспортной компанией или самовывозом. Доставка до транспортной компании осуществляется бесплатно. Основной частью высоковольтного ввода ВПФ-35 кВ является литая втулка из эпоксидного компаунда, расположенная на токоведущем стержне. Полость между фарфоровой покрышкой втулкой заполнена виниполом. Сверху полость закрыта фланцем. Уплотнение фланца с токоведущим стержнем, фарфоровой покрышкой и втулкой осуществляется резиновыми кольцами, которые поджимаются медным наконечником, установленным на стержне ВПФ-35.  Наше предприятие занимается изготовлением и поставкой запасных частей и ЗИПа для масляных выключателей и приводов к ним. Также проводим ремонт и замену старых выключателей на выключатели после ревизии и ремонта.  Реализуем масляные выключатели: У-110, У-220, МГУ-110, ВМГ-10, ВМГ-133, ВМП-10, ВМПЭ-10, ВМПП-10, МГГ-10, С-35, ВПМ-10, ВПМП-10, ВМГ-110, ПС-10, ПЭВ-12, ППО-10, ШПЭ-35, ШПЭ-44У1, ШПЭ-44, ШПЭ-46, ПП-67, ПЭ-11, ППВ-10 и др. Многие позиции в наличии. Доставка до ТК в Екатеринбурге за наш счет.

52 500 руб.
Екатеринбург
Ввод высоковольтный АПСЯ.686351.007СБ дляВМ-35

Ввод высоковольтный АПСЯ.686351.007СБ дляВМ-35

Ввод характеризуется повышенной надежностью благодаря улучшенной защите конденсаторной втулки ввода от проникновения влаги. Полимерная оболочка втулки, сформированная единой с фланцем, полностью герметизирует верхнюю и среднюю часть втулки. При этом внутреннее воздушное пространство ввода сведено к минимуму, применена двухступенчатая герметизация верхней и нижней частей фарфоровой покрышки. Соответствие требованиям: Ввод конденсаторный ВВФ-35 -ГОСТ 10693-81, Стандарт МЭК 60137 Фарфоровая покрышка - ГОСТ 5862. Категория внешней изоляции вводов- (I и II) - ГОСТ 9920. Электрическая прочность изоляции ввода - ГОСТ 1516.3, МЭК694. Категория размещения (УХЛ1), климатические условия - ГОСТ 15150, ГОСТ 15543.1 Требования безопасности - ГОСТ 12.2.007.0(3)  Высоковольтный фарфоровый ввод ВПФ-35 с монолитной втулкой и фланцем из эпоксидного компаунда предназначен для комплектации и ремонта масляных выключателей на напряжение 35 кВ, работающих в открытых распредустройствах переменного тока, частоты 50 или 60 Гц. Категория внешней изоляции I или II по ГОСТ 9920-89. Примечание: Высоковольтные вводы ВПФ-35 полностью взаимозаменяемые с вводами, имеющими втулку с бумажно-бакелитовой изоляцией, а так же с вводами типа ВВФ-35, ВЛ-35. Вводы ВПФ-35 кВ для высоковольтных выключателей С-35, ВБНТ-35, ВВС-35, ВТ-35, ВТД-35, ВМ-35, ВМД-35, МКП-35 поставляются заказчику в деревянной таре любой транспортной компанией или самовывозом. Доставка до транспортной компании осуществляется бесплатно. Основной частью высоковольтного ввода ВПФ-35 кВ является литая втулка из эпоксидного компаунда, расположенная на токоведущем стержне. Полость между фарфоровой покрышкой втулкой заполнена виниполом. Сверху полость закрыта фланцем. Уплотнение фланца с токоведущим стержнем, фарфоровой покрышкой и втулкой осуществляется резиновыми кольцами, которые поджимаются медным наконечником, установленным на стержне ВПФ-35.  Наше предприятие занимается изготовлением и поставкой запасных частей и ЗИПа для масляных выключателей и приводов к ним. Также проводим ремонт и замену старых выключателей на выключатели после ревизии и ремонта.  Реализуем масляные выключатели: У-110, У-220, МГУ-110, ВМГ-10, ВМГ-133, ВМП-10, ВМПЭ-10, ВМПП-10, МГГ-10, С-35, ВПМ-10, ВПМП-10, ВМГ-110, ПС-10, ПЭВ-12, ППО-10, ШПЭ-35, ШПЭ-44У1, ШПЭ-44, ШПЭ-46, ПП-67, ПЭ-11, ППВ-10 и др. Многие позиции в наличии. Доставка до ТК в Екатеринбурге за наш счет.

52 500 руб.
Екатеринбург
Ввод высоковольтный АПСЯ.686351.006СБ для МКП-35

Ввод высоковольтный АПСЯ.686351.006СБ для МКП-35

Ввод характеризуется повышенной надежностью благодаря улучшенной защите конденсаторной втулки ввода от проникновения влаги. Полимерная оболочка втулки, сформированная единой с фланцем, полностью герметизирует верхнюю и среднюю часть втулки. При этом внутреннее воздушное пространство ввода сведено к минимуму, применена двухступенчатая герметизация верхней и нижней частей фарфоровой покрышки. Соответствие требованиям: Ввод конденсаторный ВВФ-35 -ГОСТ 10693-81, Стандарт МЭК 60137 Фарфоровая покрышка - ГОСТ 5862. Категория внешней изоляции вводов- (I и II) - ГОСТ 9920. Электрическая прочность изоляции ввода - ГОСТ 1516.3, МЭК694. Категория размещения (УХЛ1), климатические условия - ГОСТ 15150, ГОСТ 15543.1 Требования безопасности - ГОСТ 12.2.007.0(3)  Высоковольтный фарфоровый ввод ВПФ-35 с монолитной втулкой и фланцем из эпоксидного компаунда предназначен для комплектации и ремонта масляных выключателей на напряжение 35 кВ, работающих в открытых распредустройствах переменного тока, частоты 50 или 60 Гц. Категория внешней изоляции I или II по ГОСТ 9920-89. Примечание: Высоковольтные вводы ВПФ-35 полностью взаимозаменяемые с вводами, имеющими втулку с бумажно-бакелитовой изоляцией, а так же с вводами типа ВВФ-35, ВЛ-35. Вводы ВПФ-35 кВ для высоковольтных выключателей С-35, ВБНТ-35, ВВС-35, ВТ-35, ВТД-35, ВМ-35, ВМД-35, МКП-35 поставляются заказчику в деревянной таре любой транспортной компанией или самовывозом. Доставка до транспортной компании осуществляется бесплатно. Основной частью высоковольтного ввода ВПФ-35 кВ является литая втулка из эпоксидного компаунда, расположенная на токоведущем стержне. Полость между фарфоровой покрышкой втулкой заполнена виниполом. Сверху полость закрыта фланцем. Уплотнение фланца с токоведущим стержнем, фарфоровой покрышкой и втулкой осуществляется резиновыми кольцами, которые поджимаются медным наконечником, установленным на стержне ВПФ-35.  Наше предприятие занимается изготовлением и поставкой запасных частей и ЗИПа для масляных выключателей и приводов к ним. Также проводим ремонт и замену старых выключателей на выключатели после ревизии и ремонта.  Реализуем масляные выключатели: У-110, У-220, МГУ-110, ВМГ-10, ВМГ-133, ВМП-10, ВМПЭ-10, ВМПП-10, МГГ-10, С-35, ВПМ-10, ВПМП-10, ВМГ-110, ПС-10, ПЭВ-12, ППО-10, ШПЭ-35, ШПЭ-44У1, ШПЭ-44, ШПЭ-46, ПП-67, ПЭ-11, ППВ-10 и др. Многие позиции в наличии. Доставка до ТК в Екатеринбурге за наш счет.

52 500 руб.
Екатеринбург
Ввод высоковольтный АГИЕ.686381.001-06(07) для МКП-35

Ввод высоковольтный АГИЕ.686381.001-06(07) для МКП-35

Ввод характеризуется повышенной надежностью благодаря улучшенной защите конденсаторной втулки ввода от проникновения влаги. Полимерная оболочка втулки, сформированная единой с фланцем, полностью герметизирует верхнюю и среднюю часть втулки. При этом внутреннее воздушное пространство ввода сведено к минимуму, применена двухступенчатая герметизация верхней и нижней частей фарфоровой покрышки. Соответствие требованиям: Ввод конденсаторный ВВФ-35 -ГОСТ 10693-81, Стандарт МЭК 60137 Фарфоровая покрышка - ГОСТ 5862. Категория внешней изоляции вводов- (I и II) - ГОСТ 9920. Электрическая прочность изоляции ввода - ГОСТ 1516.3, МЭК694. Категория размещения (УХЛ1), климатические условия - ГОСТ 15150, ГОСТ 15543.1 Требования безопасности - ГОСТ 12.2.007.0(3)  Высоковольтный фарфоровый ввод ВПФ-35 с монолитной втулкой и фланцем из эпоксидного компаунда предназначен для комплектации и ремонта масляных выключателей на напряжение 35 кВ, работающих в открытых распредустройствах переменного тока, частоты 50 или 60 Гц. Категория внешней изоляции I или II по ГОСТ 9920-89. Примечание: Высоковольтные вводы ВПФ-35 полностью взаимозаменяемые с вводами, имеющими втулку с бумажно-бакелитовой изоляцией, а так же с вводами типа ВВФ-35, ВЛ-35. Вводы ВПФ-35 кВ для высоковольтных выключателей С-35, ВБНТ-35, ВВС-35, ВТ-35, ВТД-35, ВМ-35, ВМД-35, МКП-35 поставляются заказчику в деревянной таре любой транспортной компанией или самовывозом. Доставка до транспортной компании осуществляется бесплатно. Основной частью высоковольтного ввода ВПФ-35 кВ является литая втулка из эпоксидного компаунда, расположенная на токоведущем стержне. Полость между фарфоровой покрышкой втулкой заполнена виниполом. Сверху полость закрыта фланцем. Уплотнение фланца с токоведущим стержнем, фарфоровой покрышкой и втулкой осуществляется резиновыми кольцами, которые поджимаются медным наконечником, установленным на стержне ВПФ-35.  Наше предприятие занимается изготовлением и поставкой запасных частей и ЗИПа для масляных выключателей и приводов к ним. Также проводим ремонт и замену старых выключателей на выключатели после ревизии и ремонта.  Реализуем масляные выключатели: У-110, У-220, МГУ-110, ВМГ-10, ВМГ-133, ВМП-10, ВМПЭ-10, ВМПП-10, МГГ-10, С-35, ВПМ-10, ВПМП-10, ВМГ-110, ПС-10, ПЭВ-12, ППО-10, ШПЭ-35, ШПЭ-44У1, ШПЭ-44, ШПЭ-46, ПП-67, ПЭ-11, ППВ-10 и др. Многие позиции в наличии. Доставка до ТК в Екатеринбурге за наш счет.

52 500 руб.
Екатеринбург
Ввод высоковольтный 5БП.516.345 для МКП-35

Ввод высоковольтный 5БП.516.345 для МКП-35

Ввод характеризуется повышенной надежностью благодаря улучшенной защите конденсаторной втулки ввода от проникновения влаги. Полимерная оболочка втулки, сформированная единой с фланцем, полностью герметизирует верхнюю и среднюю часть втулки. При этом внутреннее воздушное пространство ввода сведено к минимуму, применена двухступенчатая герметизация верхней и нижней частей фарфоровой покрышки. Соответствие требованиям: Ввод конденсаторный ВВФ-35 -ГОСТ 10693-81, Стандарт МЭК 60137 Фарфоровая покрышка - ГОСТ 5862. Категория внешней изоляции вводов- (I и II) - ГОСТ 9920. Электрическая прочность изоляции ввода - ГОСТ 1516.3, МЭК694. Категория размещения (УХЛ1), климатические условия - ГОСТ 15150, ГОСТ 15543.1 Требования безопасности - ГОСТ 12.2.007.0(3)  Высоковольтный фарфоровый ввод ВПФ-35 с монолитной втулкой и фланцем из эпоксидного компаунда предназначен для комплектации и ремонта масляных выключателей на напряжение 35 кВ, работающих в открытых распредустройствах переменного тока, частоты 50 или 60 Гц. Категория внешней изоляции I или II по ГОСТ 9920-89. Примечание: Высоковольтные вводы ВПФ-35 полностью взаимозаменяемые с вводами, имеющими втулку с бумажно-бакелитовой изоляцией, а так же с вводами типа ВВФ-35, ВЛ-35. Вводы ВПФ-35 кВ для высоковольтных выключателей С-35, ВБНТ-35, ВВС-35, ВТ-35, ВТД-35, ВМ-35, ВМД-35, МКП-35 поставляются заказчику в деревянной таре любой транспортной компанией или самовывозом. Доставка до транспортной компании осуществляется бесплатно. Основной частью высоковольтного ввода ВПФ-35 кВ является литая втулка из эпоксидного компаунда, расположенная на токоведущем стержне. Полость между фарфоровой покрышкой втулкой заполнена виниполом. Сверху полость закрыта фланцем. Уплотнение фланца с токоведущим стержнем, фарфоровой покрышкой и втулкой осуществляется резиновыми кольцами, которые поджимаются медным наконечником, установленным на стержне ВПФ-35.  Наше предприятие занимается изготовлением и поставкой запасных частей и ЗИПа для масляных выключателей и приводов к ним. Также проводим ремонт и замену старых выключателей на выключатели после ревизии и ремонта.  Реализуем масляные выключатели: У-110, У-220, МГУ-110, ВМГ-10, ВМГ-133, ВМП-10, ВМПЭ-10, ВМПП-10, МГГ-10, С-35, ВПМ-10, ВПМП-10, ВМГ-110, ПС-10, ПЭВ-12, ППО-10, ШПЭ-35, ШПЭ-44У1, ШПЭ-44, ШПЭ-46, ПП-67, ПЭ-11, ППВ-10 и др. Многие позиции в наличии. Доставка до ТК в Екатеринбурге за наш счет.

52 500 руб.
Екатеринбург
Ввод высоковольтный АПСЯ.686351.005СБ для МКП-35

Ввод высоковольтный АПСЯ.686351.005СБ для МКП-35

Ввод характеризуется повышенной надежностью благодаря улучшенной защите конденсаторной втулки ввода от проникновения влаги. Полимерная оболочка втулки, сформированная единой с фланцем, полностью герметизирует верхнюю и среднюю часть втулки. При этом внутреннее воздушное пространство ввода сведено к минимуму, применена двухступенчатая герметизация верхней и нижней частей фарфоровой покрышки. Соответствие требованиям: Ввод конденсаторный ВВФ-35 -ГОСТ 10693-81, Стандарт МЭК 60137 Фарфоровая покрышка - ГОСТ 5862. Категория внешней изоляции вводов- (I и II) - ГОСТ 9920. Электрическая прочность изоляции ввода - ГОСТ 1516.3, МЭК694. Категория размещения (УХЛ1), климатические условия - ГОСТ 15150, ГОСТ 15543.1 Требования безопасности - ГОСТ 12.2.007.0(3)  Высоковольтный фарфоровый ввод ВПФ-35 с монолитной втулкой и фланцем из эпоксидного компаунда предназначен для комплектации и ремонта масляных выключателей на напряжение 35 кВ, работающих в открытых распредустройствах переменного тока, частоты 50 или 60 Гц. Категория внешней изоляции I или II по ГОСТ 9920-89. Примечание: Высоковольтные вводы ВПФ-35 полностью взаимозаменяемые с вводами, имеющими втулку с бумажно-бакелитовой изоляцией, а так же с вводами типа ВВФ-35, ВЛ-35. Вводы ВПФ-35 кВ для высоковольтных выключателей С-35, ВБНТ-35, ВВС-35, ВТ-35, ВТД-35, ВМ-35, ВМД-35, МКП-35 поставляются заказчику в деревянной таре любой транспортной компанией или самовывозом. Доставка до транспортной компании осуществляется бесплатно. Основной частью высоковольтного ввода ВПФ-35 кВ является литая втулка из эпоксидного компаунда, расположенная на токоведущем стержне. Полость между фарфоровой покрышкой втулкой заполнена виниполом. Сверху полость закрыта фланцем. Уплотнение фланца с токоведущим стержнем, фарфоровой покрышкой и втулкой осуществляется резиновыми кольцами, которые поджимаются медным наконечником, установленным на стержне ВПФ-35.  Наше предприятие занимается изготовлением и поставкой запасных частей и ЗИПа для масляных выключателей и приводов к ним. Также проводим ремонт и замену старых выключателей на выключатели после ревизии и ремонта.  Реализуем масляные выключатели: У-110, У-220, МГУ-110, ВМГ-10, ВМГ-133, ВМП-10, ВМПЭ-10, ВМПП-10, МГГ-10, С-35, ВПМ-10, ВПМП-10, ВМГ-110, ПС-10, ПЭВ-12, ППО-10, ШПЭ-35, ШПЭ-44У1, ШПЭ-44, ШПЭ-46, ПП-67, ПЭ-11, ППВ-10 и др. Многие позиции в наличии. Доставка до ТК в Екатеринбурге за наш счет.

52 500 руб.
Екатеринбург
Ввод высоковольтный АПСЯ.686351.004СБ для ВТ-35

Ввод высоковольтный АПСЯ.686351.004СБ для ВТ-35

Ввод характеризуется повышенной надежностью благодаря улучшенной защите конденсаторной втулки ввода от проникновения влаги. Полимерная оболочка втулки, сформированная единой с фланцем, полностью герметизирует верхнюю и среднюю часть втулки. При этом внутреннее воздушное пространство ввода сведено к минимуму, применена двухступенчатая герметизация верхней и нижней частей фарфоровой покрышки. Соответствие требованиям: Ввод конденсаторный ВВФ-35 -ГОСТ 10693-81, Стандарт МЭК 60137 Фарфоровая покрышка - ГОСТ 5862. Категория внешней изоляции вводов- (I и II) - ГОСТ 9920. Электрическая прочность изоляции ввода - ГОСТ 1516.3, МЭК694. Категория размещения (УХЛ1), климатические условия - ГОСТ 15150, ГОСТ 15543.1 Требования безопасности - ГОСТ 12.2.007.0(3)  Высоковольтный фарфоровый ввод ВПФ-35 с монолитной втулкой и фланцем из эпоксидного компаунда предназначен для комплектации и ремонта масляных выключателей на напряжение 35 кВ, работающих в открытых распредустройствах переменного тока, частоты 50 или 60 Гц. Категория внешней изоляции I или II по ГОСТ 9920-89. Примечание: Высоковольтные вводы ВПФ-35 полностью взаимозаменяемые с вводами, имеющими втулку с бумажно-бакелитовой изоляцией, а так же с вводами типа ВВФ-35, ВЛ-35. Вводы ВПФ-35 кВ для высоковольтных выключателей С-35, ВБНТ-35, ВВС-35, ВТ-35, ВТД-35, ВМ-35, ВМД-35, МКП-35 поставляются заказчику в деревянной таре любой транспортной компанией или самовывозом. Доставка до транспортной компании осуществляется бесплатно. Основной частью высоковольтного ввода ВПФ-35 кВ является литая втулка из эпоксидного компаунда, расположенная на токоведущем стержне. Полость между фарфоровой покрышкой втулкой заполнена виниполом. Сверху полость закрыта фланцем. Уплотнение фланца с токоведущим стержнем, фарфоровой покрышкой и втулкой осуществляется резиновыми кольцами, которые поджимаются медным наконечником, установленным на стержне ВПФ-35.  Наше предприятие занимается изготовлением и поставкой запасных частей и ЗИПа для масляных выключателей и приводов к ним. Также проводим ремонт и замену старых выключателей на выключатели после ревизии и ремонта.  Реализуем масляные выключатели: У-110, У-220, МГУ-110, ВМГ-10, ВМГ-133, ВМП-10, ВМПЭ-10, ВМПП-10, МГГ-10, С-35, ВПМ-10, ВПМП-10, ВМГ-110, ПС-10, ПЭВ-12, ППО-10, ШПЭ-35, ШПЭ-44У1, ШПЭ-44, ШПЭ-46, ПП-67, ПЭ-11, ППВ-10 и др. Многие позиции в наличии. Доставка до ТК в Екатеринбурге за наш счет.

52 500 руб.
Екатеринбург
Ввод высоковольтный ИВЕЮ.686351.010-01 для ВТ-35

Ввод высоковольтный ИВЕЮ.686351.010-01 для ВТ-35

Ввод характеризуется повышенной надежностью благодаря улучшенной защите конденсаторной втулки ввода от проникновения влаги. Полимерная оболочка втулки, сформированная единой с фланцем, полностью герметизирует верхнюю и среднюю часть втулки. При этом внутреннее воздушное пространство ввода сведено к минимуму, применена двухступенчатая герметизация верхней и нижней частей фарфоровой покрышки. Соответствие требованиям: Ввод конденсаторный ВВФ-35 -ГОСТ 10693-81, Стандарт МЭК 60137 Фарфоровая покрышка - ГОСТ 5862. Категория внешней изоляции вводов- (I и II) - ГОСТ 9920. Электрическая прочность изоляции ввода - ГОСТ 1516.3, МЭК694. Категория размещения (УХЛ1), климатические условия - ГОСТ 15150, ГОСТ 15543.1 Требования безопасности - ГОСТ 12.2.007.0(3)  Высоковольтный фарфоровый ввод ВПФ-35 с монолитной втулкой и фланцем из эпоксидного компаунда предназначен для комплектации и ремонта масляных выключателей на напряжение 35 кВ, работающих в открытых распредустройствах переменного тока, частоты 50 или 60 Гц. Категория внешней изоляции I или II по ГОСТ 9920-89. Примечание: Высоковольтные вводы ВПФ-35 полностью взаимозаменяемые с вводами, имеющими втулку с бумажно-бакелитовой изоляцией, а так же с вводами типа ВВФ-35, ВЛ-35. Вводы ВПФ-35 кВ для высоковольтных выключателей С-35, ВБНТ-35, ВВС-35, ВТ-35, ВТД-35, ВМ-35, ВМД-35, МКП-35 поставляются заказчику в деревянной таре любой транспортной компанией или самовывозом. Доставка до транспортной компании осуществляется бесплатно. Основной частью высоковольтного ввода ВПФ-35 кВ является литая втулка из эпоксидного компаунда, расположенная на токоведущем стержне. Полость между фарфоровой покрышкой втулкой заполнена виниполом. Сверху полость закрыта фланцем. Уплотнение фланца с токоведущим стержнем, фарфоровой покрышкой и втулкой осуществляется резиновыми кольцами, которые поджимаются медным наконечником, установленным на стержне ВПФ-35.  Наше предприятие занимается изготовлением и поставкой запасных частей и ЗИПа для масляных выключателей и приводов к ним. Также проводим ремонт и замену старых выключателей на выключатели после ревизии и ремонта.  Реализуем масляные выключатели: У-110, У-220, МГУ-110, ВМГ-10, ВМГ-133, ВМП-10, ВМПЭ-10, ВМПП-10, МГГ-10, С-35, ВПМ-10, ВПМП-10, ВМГ-110, ПС-10, ПЭВ-12, ППО-10, ШПЭ-35, ШПЭ-44У1, ШПЭ-44, ШПЭ-46, ПП-67, ПЭ-11, ППВ-10 и др. Многие позиции в наличии. Доставка до ТК в Екатеринбурге за наш счет.

52 500 руб.
Екатеринбург
Ввод высоковольтный 5ФБ.516.000 для ВТ-35

Ввод высоковольтный 5ФБ.516.000 для ВТ-35

Ввод характеризуется повышенной надежностью благодаря улучшенной защите конденсаторной втулки ввода от проникновения влаги. Полимерная оболочка втулки, сформированная единой с фланцем, полностью герметизирует верхнюю и среднюю часть втулки. При этом внутреннее воздушное пространство ввода сведено к минимуму, применена двухступенчатая герметизация верхней и нижней частей фарфоровой покрышки. Соответствие требованиям: Ввод конденсаторный ВВФ-35 -ГОСТ 10693-81, Стандарт МЭК 60137 Фарфоровая покрышка - ГОСТ 5862. Категория внешней изоляции вводов- (I и II) - ГОСТ 9920. Электрическая прочность изоляции ввода - ГОСТ 1516.3, МЭК694. Категория размещения (УХЛ1), климатические условия - ГОСТ 15150, ГОСТ 15543.1 Требования безопасности - ГОСТ 12.2.007.0(3)  Высоковольтный фарфоровый ввод ВПФ-35 с монолитной втулкой и фланцем из эпоксидного компаунда предназначен для комплектации и ремонта масляных выключателей на напряжение 35 кВ, работающих в открытых распредустройствах переменного тока, частоты 50 или 60 Гц. Категория внешней изоляции I или II по ГОСТ 9920-89. Примечание: Высоковольтные вводы ВПФ-35 полностью взаимозаменяемые с вводами, имеющими втулку с бумажно-бакелитовой изоляцией, а так же с вводами типа ВВФ-35, ВЛ-35. Вводы ВПФ-35 кВ для высоковольтных выключателей С-35, ВБНТ-35, ВВС-35, ВТ-35, ВТД-35, ВМ-35, ВМД-35, МКП-35 поставляются заказчику в деревянной таре любой транспортной компанией или самовывозом. Доставка до транспортной компании осуществляется бесплатно. Основной частью высоковольтного ввода ВПФ-35 кВ является литая втулка из эпоксидного компаунда, расположенная на токоведущем стержне. Полость между фарфоровой покрышкой втулкой заполнена виниполом. Сверху полость закрыта фланцем. Уплотнение фланца с токоведущим стержнем, фарфоровой покрышкой и втулкой осуществляется резиновыми кольцами, которые поджимаются медным наконечником, установленным на стержне ВПФ-35.  Наше предприятие занимается изготовлением и поставкой запасных частей и ЗИПа для масляных выключателей и приводов к ним. Также проводим ремонт и замену старых выключателей на выключатели после ревизии и ремонта.  Реализуем масляные выключатели: У-110, У-220, МГУ-110, ВМГ-10, ВМГ-133, ВМП-10, ВМПЭ-10, ВМПП-10, МГГ-10, С-35, ВПМ-10, ВПМП-10, ВМГ-110, ПС-10, ПЭВ-12, ППО-10, ШПЭ-35, ШПЭ-44У1, ШПЭ-44, ШПЭ-46, ПП-67, ПЭ-11, ППВ-10 и др. Многие позиции в наличии. Доставка до ТК в Екатеринбурге за наш счет.

52 500 руб.
Екатеринбург
Ввод высоковольтный АГИЕ.686381.001-04(05) для ВТ-35

Ввод высоковольтный АГИЕ.686381.001-04(05) для ВТ-35

Ввод характеризуется повышенной надежностью благодаря улучшенной защите конденсаторной втулки ввода от проникновения влаги. Полимерная оболочка втулки, сформированная единой с фланцем, полностью герметизирует верхнюю и среднюю часть втулки. При этом внутреннее воздушное пространство ввода сведено к минимуму, применена двухступенчатая герметизация верхней и нижней частей фарфоровой покрышки. Соответствие требованиям: Ввод конденсаторный ВВФ-35 -ГОСТ 10693-81, Стандарт МЭК 60137 Фарфоровая покрышка - ГОСТ 5862. Категория внешней изоляции вводов- (I и II) - ГОСТ 9920. Электрическая прочность изоляции ввода - ГОСТ 1516.3, МЭК694. Категория размещения (УХЛ1), климатические условия - ГОСТ 15150, ГОСТ 15543.1 Требования безопасности - ГОСТ 12.2.007.0(3)  Высоковольтный фарфоровый ввод ВПФ-35 с монолитной втулкой и фланцем из эпоксидного компаунда предназначен для комплектации и ремонта масляных выключателей на напряжение 35 кВ, работающих в открытых распредустройствах переменного тока, частоты 50 или 60 Гц. Категория внешней изоляции I или II по ГОСТ 9920-89. Примечание: Высоковольтные вводы ВПФ-35 полностью взаимозаменяемые с вводами, имеющими втулку с бумажно-бакелитовой изоляцией, а так же с вводами типа ВВФ-35, ВЛ-35. Вводы ВПФ-35 кВ для высоковольтных выключателей С-35, ВБНТ-35, ВВС-35, ВТ-35, ВТД-35, ВМ-35, ВМД-35, МКП-35 поставляются заказчику в деревянной таре любой транспортной компанией или самовывозом. Доставка до транспортной компании осуществляется бесплатно. Основной частью высоковольтного ввода ВПФ-35 кВ является литая втулка из эпоксидного компаунда, расположенная на токоведущем стержне. Полость между фарфоровой покрышкой втулкой заполнена виниполом. Сверху полость закрыта фланцем. Уплотнение фланца с токоведущим стержнем, фарфоровой покрышкой и втулкой осуществляется резиновыми кольцами, которые поджимаются медным наконечником, установленным на стержне ВПФ-35.  Наше предприятие занимается изготовлением и поставкой запасных частей и ЗИПа для масляных выключателей и приводов к ним. Также проводим ремонт и замену старых выключателей на выключатели после ревизии и ремонта.  Реализуем масляные выключатели: У-110, У-220, МГУ-110, ВМГ-10, ВМГ-133, ВМП-10, ВМПЭ-10, ВМПП-10, МГГ-10, С-35, ВПМ-10, ВПМП-10, ВМГ-110, ПС-10, ПЭВ-12, ППО-10, ШПЭ-35, ШПЭ-44У1, ШПЭ-44, ШПЭ-46, ПП-67, ПЭ-11, ППВ-10 и др. Многие позиции в наличии. Доставка до ТК в Екатеринбурге за наш счет.

52 500 руб.
Екатеринбург
Ввод высоковольтный ИВЕЮ.686351.010-01(014-01) для ВТ-35

Ввод высоковольтный ИВЕЮ.686351.010-01(014-01) для ВТ-35

Ввод характеризуется повышенной надежностью благодаря улучшенной защите конденсаторной втулки ввода от проникновения влаги. Полимерная оболочка втулки, сформированная единой с фланцем, полностью герметизирует верхнюю и среднюю часть втулки. При этом внутреннее воздушное пространство ввода сведено к минимуму, применена двухступенчатая герметизация верхней и нижней частей фарфоровой покрышки. Соответствие требованиям: Ввод конденсаторный ВВФ-35 -ГОСТ 10693-81, Стандарт МЭК 60137 Фарфоровая покрышка - ГОСТ 5862. Категория внешней изоляции вводов- (I и II) - ГОСТ 9920. Электрическая прочность изоляции ввода - ГОСТ 1516.3, МЭК694. Категория размещения (УХЛ1), климатические условия - ГОСТ 15150, ГОСТ 15543.1 Требования безопасности - ГОСТ 12.2.007.0(3)  Высоковольтный фарфоровый ввод ВПФ-35 с монолитной втулкой и фланцем из эпоксидного компаунда предназначен для комплектации и ремонта масляных выключателей на напряжение 35 кВ, работающих в открытых распредустройствах переменного тока, частоты 50 или 60 Гц. Категория внешней изоляции I или II по ГОСТ 9920-89. Примечание: Высоковольтные вводы ВПФ-35 полностью взаимозаменяемые с вводами, имеющими втулку с бумажно-бакелитовой изоляцией, а так же с вводами типа ВВФ-35, ВЛ-35. Вводы ВПФ-35 кВ для высоковольтных выключателей С-35, ВБНТ-35, ВВС-35, ВТ-35, ВТД-35, ВМ-35, ВМД-35, МКП-35 поставляются заказчику в деревянной таре любой транспортной компанией или самовывозом. Доставка до транспортной компании осуществляется бесплатно. Основной частью высоковольтного ввода ВПФ-35 кВ является литая втулка из эпоксидного компаунда, расположенная на токоведущем стержне. Полость между фарфоровой покрышкой втулкой заполнена виниполом. Сверху полость закрыта фланцем. Уплотнение фланца с токоведущим стержнем, фарфоровой покрышкой и втулкой осуществляется резиновыми кольцами, которые поджимаются медным наконечником, установленным на стержне ВПФ-35.  Наше предприятие занимается изготовлением и поставкой запасных частей и ЗИПа для масляных выключателей и приводов к ним. Также проводим ремонт и замену старых выключателей на выключатели после ревизии и ремонта.  Реализуем масляные выключатели: У-110, У-220, МГУ-110, ВМГ-10, ВМГ-133, ВМП-10, ВМПЭ-10, ВМПП-10, МГГ-10, С-35, ВПМ-10, ВПМП-10, ВМГ-110, ПС-10, ПЭВ-12, ППО-10, ШПЭ-35, ШПЭ-44У1, ШПЭ-44, ШПЭ-46, ПП-67, ПЭ-11, ППВ-10 и др. Многие позиции в наличии. Доставка до ТК в Екатеринбурге за наш счет.

52 500 руб.
Екатеринбург
Ввод высоковольтный ВВФ-35 ВИЕЦ.686341-01 для ВТ-35

Ввод высоковольтный ВВФ-35 ВИЕЦ.686341-01 для ВТ-35

Ввод характеризуется повышенной надежностью благодаря улучшенной защите конденсаторной втулки ввода от проникновения влаги. Полимерная оболочка втулки, сформированная единой с фланцем, полностью герметизирует верхнюю и среднюю часть втулки. При этом внутреннее воздушное пространство ввода сведено к минимуму, применена двухступенчатая герметизация верхней и нижней частей фарфоровой покрышки. Соответствие требованиям: Ввод конденсаторный ВВФ-35 -ГОСТ 10693-81, Стандарт МЭК 60137 Фарфоровая покрышка - ГОСТ 5862. Категория внешней изоляции вводов- (I и II) - ГОСТ 9920. Электрическая прочность изоляции ввода - ГОСТ 1516.3, МЭК694. Категория размещения (УХЛ1), климатические условия - ГОСТ 15150, ГОСТ 15543.1 Требования безопасности - ГОСТ 12.2.007.0(3)  Высоковольтный фарфоровый ввод ВПФ-35 с монолитной втулкой и фланцем из эпоксидного компаунда предназначен для комплектации и ремонта масляных выключателей на напряжение 35 кВ, работающих в открытых распредустройствах переменного тока, частоты 50 или 60 Гц. Категория внешней изоляции I или II по ГОСТ 9920-89. Примечание: Высоковольтные вводы ВПФ-35 полностью взаимозаменяемые с вводами, имеющими втулку с бумажно-бакелитовой изоляцией, а так же с вводами типа ВВФ-35, ВЛ-35. Вводы ВПФ-35 кВ для высоковольтных выключателей С-35, ВБНТ-35, ВВС-35, ВТ-35, ВТД-35, ВМ-35, ВМД-35, МКП-35 поставляются заказчику в деревянной таре любой транспортной компанией или самовывозом. Доставка до транспортной компании осуществляется бесплатно. Основной частью высоковольтного ввода ВПФ-35 кВ является литая втулка из эпоксидного компаунда, расположенная на токоведущем стержне. Полость между фарфоровой покрышкой втулкой заполнена виниполом. Сверху полость закрыта фланцем. Уплотнение фланца с токоведущим стержнем, фарфоровой покрышкой и втулкой осуществляется резиновыми кольцами, которые поджимаются медным наконечником, установленным на стержне ВПФ-35.  Наше предприятие занимается изготовлением и поставкой запасных частей и ЗИПа для масляных выключателей и приводов к ним. Также проводим ремонт и замену старых выключателей на выключатели после ревизии и ремонта.  Реализуем масляные выключатели: У-110, У-220, МГУ-110, ВМГ-10, ВМГ-133, ВМП-10, ВМПЭ-10, ВМПП-10, МГГ-10, С-35, ВПМ-10, ВПМП-10, ВМГ-110, ПС-10, ПЭВ-12, ППО-10, ШПЭ-35, ШПЭ-44У1, ШПЭ-44, ШПЭ-46, ПП-67, ПЭ-11, ППВ-10 и др. Многие позиции в наличии. Доставка до ТК в Екатеринбурге за наш счет.

52 500 руб.
Екатеринбург
Ввод высоковольтный ВВФ-35 АПСЯ.686351.03СБ для ВТ-35

Ввод высоковольтный ВВФ-35 АПСЯ.686351.03СБ для ВТ-35

Ввод характеризуется повышенной надежностью благодаря улучшенной защите конденсаторной втулки ввода от проникновения влаги. Полимерная оболочка втулки, сформированная единой с фланцем, полностью герметизирует верхнюю и среднюю часть втулки. При этом внутреннее воздушное пространство ввода сведено к минимуму, применена двухступенчатая герметизация верхней и нижней частей фарфоровой покрышки. Соответствие требованиям: Ввод конденсаторный ВВФ-35 -ГОСТ 10693-81, Стандарт МЭК 60137 Фарфоровая покрышка - ГОСТ 5862. Категория внешней изоляции вводов- (I и II) - ГОСТ 9920. Электрическая прочность изоляции ввода - ГОСТ 1516.3, МЭК694. Категория размещения (УХЛ1), климатические условия - ГОСТ 15150, ГОСТ 15543.1 Требования безопасности - ГОСТ 12.2.007.0(3)  Высоковольтный фарфоровый ввод ВПФ-35 с монолитной втулкой и фланцем из эпоксидного компаунда предназначен для комплектации и ремонта масляных выключателей на напряжение 35 кВ, работающих в открытых распредустройствах переменного тока, частоты 50 или 60 Гц. Категория внешней изоляции I или II по ГОСТ 9920-89. Примечание: Высоковольтные вводы ВПФ-35 полностью взаимозаменяемые с вводами, имеющими втулку с бумажно-бакелитовой изоляцией, а так же с вводами типа ВВФ-35, ВЛ-35. Вводы ВПФ-35 кВ для высоковольтных выключателей С-35, ВБНТ-35, ВВС-35, ВТ-35, ВТД-35, ВМ-35, ВМД-35, МКП-35 поставляются заказчику в деревянной таре любой транспортной компанией или самовывозом. Доставка до транспортной компании осуществляется бесплатно. Основной частью высоковольтного ввода ВПФ-35 кВ является литая втулка из эпоксидного компаунда, расположенная на токоведущем стержне. Полость между фарфоровой покрышкой втулкой заполнена виниполом. Сверху полость закрыта фланцем. Уплотнение фланца с токоведущим стержнем, фарфоровой покрышкой и втулкой осуществляется резиновыми кольцами, которые поджимаются медным наконечником, установленным на стержне ВПФ-35.  Наше предприятие занимается изготовлением и поставкой запасных частей и ЗИПа для масляных выключателей и приводов к ним. Также проводим ремонт и замену старых выключателей на выключатели после ревизии и ремонта.  Реализуем масляные выключатели: У-110, У-220, МГУ-110, ВМГ-10, ВМГ-133, ВМП-10, ВМПЭ-10, ВМПП-10, МГГ-10, С-35, ВПМ-10, ВПМП-10, ВМГ-110, ПС-10, ПЭВ-12, ППО-10, ШПЭ-35, ШПЭ-44У1, ШПЭ-44, ШПЭ-46, ПП-67, ПЭ-11, ППВ-10 и др. Многие позиции в наличии. Доставка до ТК в Екатеринбурге за наш счет.

52 500 руб.
Екатеринбург
Ввод высоковольтный ВВФ-35 АПСЯ.686351.02СБ для ВБЭТ-35

Ввод высоковольтный ВВФ-35 АПСЯ.686351.02СБ для ВБЭТ-35

Ввод характеризуется повышенной надежностью благодаря улучшенной защите конденсаторной втулки ввода от проникновения влаги. Полимерная оболочка втулки, сформированная единой с фланцем, полностью герметизирует верхнюю и среднюю часть втулки. При этом внутреннее воздушное пространство ввода сведено к минимуму, применена двухступенчатая герметизация верхней и нижней частей фарфоровой покрышки. Соответствие требованиям: Ввод конденсаторный ВВФ-35 -ГОСТ 10693-81, Стандарт МЭК 60137 Фарфоровая покрышка - ГОСТ 5862. Категория внешней изоляции вводов- (I и II) - ГОСТ 9920. Электрическая прочность изоляции ввода - ГОСТ 1516.3, МЭК694. Категория размещения (УХЛ1), климатические условия - ГОСТ 15150, ГОСТ 15543.1 Требования безопасности - ГОСТ 12.2.007.0(3)  Высоковольтный фарфоровый ввод ВПФ-35 с монолитной втулкой и фланцем из эпоксидного компаунда предназначен для комплектации и ремонта масляных выключателей на напряжение 35 кВ, работающих в открытых распредустройствах переменного тока, частоты 50 или 60 Гц. Категория внешней изоляции I или II по ГОСТ 9920-89. Примечание: Высоковольтные вводы ВПФ-35 полностью взаимозаменяемые с вводами, имеющими втулку с бумажно-бакелитовой изоляцией, а так же с вводами типа ВВФ-35, ВЛ-35. Вводы ВПФ-35 кВ для высоковольтных выключателей С-35, ВБНТ-35, ВВС-35, ВТ-35, ВТД-35, ВМ-35, ВМД-35, МКП-35 поставляются заказчику в деревянной таре любой транспортной компанией или самовывозом. Доставка до транспортной компании осуществляется бесплатно. Основной частью высоковольтного ввода ВПФ-35 кВ является литая втулка из эпоксидного компаунда, расположенная на токоведущем стержне. Полость между фарфоровой покрышкой втулкой заполнена виниполом. Сверху полость закрыта фланцем. Уплотнение фланца с токоведущим стержнем, фарфоровой покрышкой и втулкой осуществляется резиновыми кольцами, которые поджимаются медным наконечником, установленным на стержне ВПФ-35.  Наше предприятие занимается изготовлением и поставкой запасных частей и ЗИПа для масляных выключателей и приводов к ним. Также проводим ремонт и замену старых выключателей на выключатели после ревизии и ремонта.  Реализуем масляные выключатели: У-110, У-220, МГУ-110, ВМГ-10, ВМГ-133, ВМП-10, ВМПЭ-10, ВМПП-10, МГГ-10, С-35, ВПМ-10, ВПМП-10, ВМГ-110, ПС-10, ПЭВ-12, ППО-10, ШПЭ-35, ШПЭ-44У1, ШПЭ-44, ШПЭ-46, ПП-67, ПЭ-11, ППВ-10 и др. Многие позиции в наличии. Доставка до ТК в Екатеринбурге за наш счет.

52 500 руб.
Екатеринбург
Ввод высоковольтный ВВФ-35 АПСЯ.686351.01СБ для ВБЭТ-35

Ввод высоковольтный ВВФ-35 АПСЯ.686351.01СБ для ВБЭТ-35

Ввод характеризуется повышенной надежностью благодаря улучшенной защите конденсаторной втулки ввода от проникновения влаги. Полимерная оболочка втулки, сформированная единой с фланцем, полностью герметизирует верхнюю и среднюю часть втулки. При этом внутреннее воздушное пространство ввода сведено к минимуму, применена двухступенчатая герметизация верхней и нижней частей фарфоровой покрышки. Соответствие требованиям: Ввод конденсаторный ВВФ-35 -ГОСТ 10693-81, Стандарт МЭК 60137 Фарфоровая покрышка - ГОСТ 5862. Категория внешней изоляции вводов- (I и II) - ГОСТ 9920. Электрическая прочность изоляции ввода - ГОСТ 1516.3, МЭК694. Категория размещения (УХЛ1), климатические условия - ГОСТ 15150, ГОСТ 15543.1 Требования безопасности - ГОСТ 12.2.007.0(3)  Высоковольтный фарфоровый ввод ВПФ-35 с монолитной втулкой и фланцем из эпоксидного компаунда предназначен для комплектации и ремонта масляных выключателей на напряжение 35 кВ, работающих в открытых распредустройствах переменного тока, частоты 50 или 60 Гц. Категория внешней изоляции I или II по ГОСТ 9920-89. Примечание: Высоковольтные вводы ВПФ-35 полностью взаимозаменяемые с вводами, имеющими втулку с бумажно-бакелитовой изоляцией, а так же с вводами типа ВВФ-35, ВЛ-35. Вводы ВПФ-35 кВ для высоковольтных выключателей С-35, ВБНТ-35, ВВС-35, ВТ-35, ВТД-35, ВМ-35, ВМД-35, МКП-35 поставляются заказчику в деревянной таре любой транспортной компанией или самовывозом. Доставка до транспортной компании осуществляется бесплатно. Основной частью высоковольтного ввода ВПФ-35 кВ является литая втулка из эпоксидного компаунда, расположенная на токоведущем стержне. Полость между фарфоровой покрышкой втулкой заполнена виниполом. Сверху полость закрыта фланцем. Уплотнение фланца с токоведущим стержнем, фарфоровой покрышкой и втулкой осуществляется резиновыми кольцами, которые поджимаются медным наконечником, установленным на стержне ВПФ-35.  Наше предприятие занимается изготовлением и поставкой запасных частей и ЗИПа для масляных выключателей и приводов к ним. Также проводим ремонт и замену старых выключателей на выключатели после ревизии и ремонта.  Реализуем масляные выключатели: У-110, У-220, МГУ-110, ВМГ-10, ВМГ-133, ВМП-10, ВМПЭ-10, ВМПП-10, МГГ-10, С-35, ВПМ-10, ВПМП-10, ВМГ-110, ПС-10, ПЭВ-12, ППО-10, ШПЭ-35, ШПЭ-44У1, ШПЭ-44, ШПЭ-46, ПП-67, ПЭ-11, ППВ-10 и др. Многие позиции в наличии. Доставка до ТК в Екатеринбурге за наш счет.

52 500 руб.
Екатеринбург
Ввод высоковольтный ВВФ-35 АГИЕ.686381.001-01 для С-35М, для ВВС-35

Ввод высоковольтный ВВФ-35 АГИЕ.686381.001-01 для С-35М, для ВВС-35

Ввод характеризуется повышенной надежностью благодаря улучшенной защите конденсаторной втулки ввода от проникновения влаги. Полимерная оболочка втулки, сформированная единой с фланцем, полностью герметизирует верхнюю и среднюю часть втулки. При этом внутреннее воздушное пространство ввода сведено к минимуму, применена двухступенчатая герметизация верхней и нижней частей фарфоровой покрышки. Соответствие требованиям: Ввод конденсаторный ВВФ-35 -ГОСТ 10693-81, Стандарт МЭК 60137 Фарфоровая покрышка - ГОСТ 5862. Категория внешней изоляции вводов- (I и II) - ГОСТ 9920. Электрическая прочность изоляции ввода - ГОСТ 1516.3, МЭК694. Категория размещения (УХЛ1), климатические условия - ГОСТ 15150, ГОСТ 15543.1 Требования безопасности - ГОСТ 12.2.007.0(3)  Высоковольтный фарфоровый ввод ВПФ-35 с монолитной втулкой и фланцем из эпоксидного компаунда предназначен для комплектации и ремонта масляных выключателей на напряжение 35 кВ, работающих в открытых распредустройствах переменного тока, частоты 50 или 60 Гц. Категория внешней изоляции I или II по ГОСТ 9920-89. Примечание: Высоковольтные вводы ВПФ-35 полностью взаимозаменяемые с вводами, имеющими втулку с бумажно-бакелитовой изоляцией, а так же с вводами типа ВВФ-35, ВЛ-35. Вводы ВПФ-35 кВ для высоковольтных выключателей С-35, ВБНТ-35, ВВС-35, ВТ-35, ВТД-35, ВМ-35, ВМД-35, МКП-35 поставляются заказчику в деревянной таре любой транспортной компанией или самовывозом. Доставка до транспортной компании осуществляется бесплатно. Основной частью высоковольтного ввода ВПФ-35 кВ является литая втулка из эпоксидного компаунда, расположенная на токоведущем стержне. Полость между фарфоровой покрышкой втулкой заполнена виниполом. Сверху полость закрыта фланцем. Уплотнение фланца с токоведущим стержнем, фарфоровой покрышкой и втулкой осуществляется резиновыми кольцами, которые поджимаются медным наконечником, установленным на стержне ВПФ-35.  Наше предприятие занимается изготовлением и поставкой запасных частей и ЗИПа для масляных выключателей и приводов к ним. Также проводим ремонт и замену старых выключателей на выключатели после ревизии и ремонта.  Реализуем масляные выключатели: У-110, У-220, МГУ-110, ВМГ-10, ВМГ-133, ВМП-10, ВМПЭ-10, ВМПП-10, МГГ-10, С-35, ВПМ-10, ВПМП-10, ВМГ-110, ПС-10, ПЭВ-12, ППО-10, ШПЭ-35, ШПЭ-44У1, ШПЭ-44, ШПЭ-46, ПП-67, ПЭ-11, ППВ-10 и др. Многие позиции в наличии. Доставка до ТК в Екатеринбурге за наш счет.

52 500 руб.
Екатеринбург
Ввод высоковольтный ВПФ-35 АПСЯ.686351.003СБ для С-35М, для ВВС-35

Ввод высоковольтный ВПФ-35 АПСЯ.686351.003СБ для С-35М, для ВВС-35

Ввод характеризуется повышенной надежностью благодаря улучшенной защите конденсаторной втулки ввода от проникновения влаги. Полимерная оболочка втулки, сформированная единой с фланцем, полностью герметизирует верхнюю и среднюю часть втулки. При этом внутреннее воздушное пространство ввода сведено к минимуму, применена двухступенчатая герметизация верхней и нижней частей фарфоровой покрышки. Соответствие требованиям: Ввод конденсаторный ВВФ-35 -ГОСТ 10693-81, Стандарт МЭК 60137 Фарфоровая покрышка - ГОСТ 5862. Категория внешней изоляции вводов- (I и II) - ГОСТ 9920. Электрическая прочность изоляции ввода - ГОСТ 1516.3, МЭК694. Категория размещения (УХЛ1), климатические условия - ГОСТ 15150, ГОСТ 15543.1 Требования безопасности - ГОСТ 12.2.007.0(3)  Высоковольтный фарфоровый ввод ВПФ-35 с монолитной втулкой и фланцем из эпоксидного компаунда предназначен для комплектации и ремонта масляных выключателей на напряжение 35 кВ, работающих в открытых распредустройствах переменного тока, частоты 50 или 60 Гц. Категория внешней изоляции I или II по ГОСТ 9920-89. Примечание: Высоковольтные вводы ВПФ-35 полностью взаимозаменяемые с вводами, имеющими втулку с бумажно-бакелитовой изоляцией, а так же с вводами типа ВВФ-35, ВЛ-35. Вводы ВПФ-35 кВ для высоковольтных выключателей С-35, ВБНТ-35, ВВС-35, ВТ-35, ВТД-35, ВМ-35, ВМД-35, МКП-35 поставляются заказчику в деревянной таре любой транспортной компанией или самовывозом. Доставка до транспортной компании осуществляется бесплатно. Основной частью высоковольтного ввода ВПФ-35 кВ является литая втулка из эпоксидного компаунда, расположенная на токоведущем стержне. Полость между фарфоровой покрышкой втулкой заполнена виниполом. Сверху полость закрыта фланцем. Уплотнение фланца с токоведущим стержнем, фарфоровой покрышкой и втулкой осуществляется резиновыми кольцами, которые поджимаются медным наконечником, установленным на стержне ВПФ-35.  Наше предприятие занимается изготовлением и поставкой запасных частей и ЗИПа для масляных выключателей и приводов к ним. Также проводим ремонт и замену старых выключателей на выключатели после ревизии и ремонта.  Реализуем масляные выключатели: У-110, У-220, МГУ-110, ВМГ-10, ВМГ-133, ВМП-10, ВМПЭ-10, ВМПП-10, МГГ-10, С-35, ВПМ-10, ВПМП-10, ВМГ-110, ПС-10, ПЭВ-12, ППО-10, ШПЭ-35, ШПЭ-44У1, ШПЭ-44, ШПЭ-46, ПП-67, ПЭ-11, ППВ-10 и др. Многие позиции в наличии. Доставка до ТК в Екатеринбурге за наш счет.

42 000 руб.
Екатеринбург
Ввод высоковольтный ВВФ-35 ИВЕЮ.686351.010(014) для С-35М, для ВВС-35

Ввод высоковольтный ВВФ-35 ИВЕЮ.686351.010(014) для С-35М, для ВВС-35

Ввод характеризуется повышенной надежностью благодаря улучшенной защите конденсаторной втулки ввода от проникновения влаги. Полимерная оболочка втулки, сформированная единой с фланцем, полностью герметизирует верхнюю и среднюю часть втулки. При этом внутреннее воздушное пространство ввода сведено к минимуму, применена двухступенчатая герметизация верхней и нижней частей фарфоровой покрышки. Соответствие требованиям: Ввод конденсаторный ВВФ-35 -ГОСТ 10693-81, Стандарт МЭК 60137 Фарфоровая покрышка - ГОСТ 5862. Категория внешней изоляции вводов- (I и II) - ГОСТ 9920. Электрическая прочность изоляции ввода - ГОСТ 1516.3, МЭК694. Категория размещения (УХЛ1), климатические условия - ГОСТ 15150, ГОСТ 15543.1 Требования безопасности - ГОСТ 12.2.007.0(3)  Высоковольтный фарфоровый ввод ВПФ-35 с монолитной втулкой и фланцем из эпоксидного компаунда предназначен для комплектации и ремонта масляных выключателей на напряжение 35 кВ, работающих в открытых распредустройствах переменного тока, частоты 50 или 60 Гц. Категория внешней изоляции I или II по ГОСТ 9920-89. Примечание: Высоковольтные вводы ВПФ-35 полностью взаимозаменяемые с вводами, имеющими втулку с бумажно-бакелитовой изоляцией, а так же с вводами типа ВВФ-35, ВЛ-35. Вводы ВПФ-35 кВ для высоковольтных выключателей С-35, ВБНТ-35, ВВС-35, ВТ-35, ВТД-35, ВМ-35, ВМД-35, МКП-35 поставляются заказчику в деревянной таре любой транспортной компанией или самовывозом. Доставка до транспортной компании осуществляется бесплатно. Основной частью высоковольтного ввода ВПФ-35 кВ является литая втулка из эпоксидного компаунда, расположенная на токоведущем стержне. Полость между фарфоровой покрышкой втулкой заполнена виниполом. Сверху полость закрыта фланцем. Уплотнение фланца с токоведущим стержнем, фарфоровой покрышкой и втулкой осуществляется резиновыми кольцами, которые поджимаются медным наконечником, установленным на стержне ВПФ-35.  Наше предприятие занимается изготовлением и поставкой запасных частей и ЗИПа для масляных выключателей и приводов к ним. Также проводим ремонт и замену старых выключателей на выключатели после ревизии и ремонта.  Реализуем масляные выключатели: У-110, У-220, МГУ-110, ВМГ-10, ВМГ-133, ВМП-10, ВМПЭ-10, ВМПП-10, МГГ-10, С-35, ВПМ-10, ВПМП-10, ВМГ-110, ПС-10, ПЭВ-12, ППО-10, ШПЭ-35, ШПЭ-44У1, ШПЭ-44, ШПЭ-46, ПП-67, ПЭ-11, ППВ-10 и др. Многие позиции в наличии. Доставка до ТК в Екатеринбурге за наш счет.

52 500 руб.
Екатеринбург
Ввод высоковольтный ВВФ-35 5БП.516.310(311) для С-35М, для ВВС-35

Ввод высоковольтный ВВФ-35 5БП.516.310(311) для С-35М, для ВВС-35

Ввод характеризуется повышенной надежностью благодаря улучшенной защите конденсаторной втулки ввода от проникновения влаги. Полимерная оболочка втулки, сформированная единой с фланцем, полностью герметизирует верхнюю и среднюю часть втулки. При этом внутреннее воздушное пространство ввода сведено к минимуму, применена двухступенчатая герметизация верхней и нижней частей фарфоровой покрышки. Соответствие требованиям: Ввод конденсаторный ВВФ-35 -ГОСТ 10693-81, Стандарт МЭК 60137 Фарфоровая покрышка - ГОСТ 5862. Категория внешней изоляции вводов- (I и II) - ГОСТ 9920. Электрическая прочность изоляции ввода - ГОСТ 1516.3, МЭК694. Категория размещения (УХЛ1), климатические условия - ГОСТ 15150, ГОСТ 15543.1 Требования безопасности - ГОСТ 12.2.007.0(3)  Высоковольтный фарфоровый ввод ВПФ-35 с монолитной втулкой и фланцем из эпоксидного компаунда предназначен для комплектации и ремонта масляных выключателей на напряжение 35 кВ, работающих в открытых распредустройствах переменного тока, частоты 50 или 60 Гц. Категория внешней изоляции I или II по ГОСТ 9920-89. Примечание: Высоковольтные вводы ВПФ-35 полностью взаимозаменяемые с вводами, имеющими втулку с бумажно-бакелитовой изоляцией, а так же с вводами типа ВВФ-35, ВЛ-35. Вводы ВПФ-35 кВ для высоковольтных выключателей С-35, ВБНТ-35, ВВС-35, ВТ-35, ВТД-35, ВМ-35, ВМД-35, МКП-35 поставляются заказчику в деревянной таре любой транспортной компанией или самовывозом. Доставка до транспортной компании осуществляется бесплатно. Основной частью высоковольтного ввода ВПФ-35 кВ является литая втулка из эпоксидного компаунда, расположенная на токоведущем стержне. Полость между фарфоровой покрышкой втулкой заполнена виниполом. Сверху полость закрыта фланцем. Уплотнение фланца с токоведущим стержнем, фарфоровой покрышкой и втулкой осуществляется резиновыми кольцами, которые поджимаются медным наконечником, установленным на стержне ВПФ-35.  Наше предприятие занимается изготовлением и поставкой запасных частей и ЗИПа для масляных выключателей и приводов к ним. Также проводим ремонт и замену старых выключателей на выключатели после ревизии и ремонта.  Реализуем масляные выключатели: У-110, У-220, МГУ-110, ВМГ-10, ВМГ-133, ВМП-10, ВМПЭ-10, ВМПП-10, МГГ-10, С-35, ВПМ-10, ВПМП-10, ВМГ-110, ПС-10, ПЭВ-12, ППО-10, ШПЭ-35, ШПЭ-44У1, ШПЭ-44, ШПЭ-46, ПП-67, ПЭ-11, ППВ-10 и др. Многие позиции в наличии. Доставка до ТК в Екатеринбурге за наш счет.

52 500 руб.
Екатеринбург
Ввод для выключателя С-35 5СЯ.516.020

Ввод для выключателя С-35 5СЯ.516.020

Наше предприятие занимается изготовлением и поставкой запасных частей и ЗИПа для масляных выключателей и приводов к ним. Также проводим ремонт и замену старых выключателей на выключатели после ревизии и ремонта.  Реализуем масляные выключатели: У-110, У-220, МГУ-110, ВМГ-10, ВМГ-133, ВМП-10, ВМПЭ-10, ВМПП-10, МГГ-10, С-35, ВПМ-10, ВПМП-10, ВМГ-110, ПС-10, ПЭВ-12, ППО-10, ШПЭ-35, ШПЭ-44У1, ШПЭ-44, ШПЭ-46, ПП-67, ПЭ-11, ППВ-10 и др. Многие позиции в наличии. Доставка до ТК в Екатеринбурге за наш счет.

42 000 руб.
Екатеринбург
Привод к масляному выключателю ПЭ - 14

Привод к масляному выключателю ПЭ - 14

Привод ПЭ-11, ПЭ-14 Привод ПЭ 11 М1 У3 необходим для того, чтобы дистанционно и автоматически управлять высоковольтным масляным выключателем ВПМ-10, в комплектных распределительных устройствах (КРУ, КРУН) , а также в камерах сборных односторонних (КСО), номинальное напряжение которых до 10 кВ трехфазного переменного тока частотой 50 Гц. Привод такой серии относят к группе приводов прямого действия. В отдельных случаях имеется возможность ручного управления приводом. Электромагнитный привод типа ПЭ 11, ПЭВ-11А, ПЭГ-7 в отличие от пружинных относят к группе приводов прямого действия. Привод ПЭ 11 необходим для того, чтобы управлять масляными выключателями ВМГ 10 и ВМП 10, встроенный привод ПЭВ 11 А — для того, чтобы управлять выключателем типа ВМПЭ, ПЭГ-7 — выключателем типа ВЭМ. Электромагнитный привод для включения выключателя потребляет ток на много больший, чем привод косвенного действия (грузовой, пружинный). У привода ПЭ 11 потребляемый постоянный ток обмоток электромагнитов: включающего—120 А при напряжении 110 В или 60 А при 220 В, отключающего — следовательно 2,5 и 1,25 А; у привода ПЭВ-11А: включающего— 200/100 А, отключающего — 5/2,5 А; у привода ПЭГ-7: включающего—160/80 А, отключающего — 2,5/1,25 А. Ток потребления катушек контактора при напряжении 110 В — 2 А, при 220 В — 1 А

28 000 руб.
Екатеринбург
Привод к масляному выключателю ПЭВ-11

Привод к масляному выключателю ПЭВ-11

Привод ПЭВ-11, ПЭ-11 Привод электромагнитный встроенный постоянного тока ПЭВ необходим для того, чтобы управлять масляными выключателями ВМПЭ 10 20/630У3, ВМПЭ 10 20/1000У3, ВМПЭ 10 20/1600У3, ВМПЭ 10 31,5/630У3, ВМПЭ 10 31,5/1000У3, ВМПЭ 10 31,5/1600У3 , у которых общепромышленное исполнение для климатических условий У3 по ГОСТ 15150-69 Состав электромагнитного привода ПЭВ 11 ― сварной корпус, вал, механизм свободного расцепления, удерживающая и отключающая "собачка", электромагниты отключения и включения. Постоянность усилий на штоке отключающего электромагнита, который расположен на верхней горизонтальной плите корпуса, происходит за счет роликового расцепления, применяемого в механизме расцепления. Над электромагнитом отключения располагаются вспомогательные контакты, ими пользуются в приводе для электрической блокировки , для того чтобы исключить возможность повторения операций включения и отключения выключателя, в тот момент, когда команда на включение еще подана после автоматической операции отключения от защит, у этой блокировки в эксплуатации имеется название ― блокировка от "прыгания". Там же располагается резистор, который предназначен для того, чтобы повысить термическую стойкость отключающей катушки. Для привода на напряжение 220 В применяется резистор ПЭВ-50 на 150 Ом; на напряжение 110 В ― ПЭВ-50 на 39 Ом. Отличие электромагнита включения привода ПЭВ 11 на 20 кА от электромагнита на 31,5 кА является в том, что у первого имеется наличие в нем контрполюса с шайбой и размерами составляющих элементов. Цепи управления включением и отключением привода заводятся через вспомогательные контакты, таким образом, достигается автоматическое прекращение питания включающего и отключающего электромагнитов после необходимых действий. Этим же достигается подготовка выключателя к следующим действиям. Включение масляного выключателя осуществляется с помощью подачи питания на катушку электромагнита включения.

10 руб.
Екатеринбург
Ввод высоковольтный ВВФ-35 АПСЯ.686351.008СБ для ВВС-35

Ввод высоковольтный ВВФ-35 АПСЯ.686351.008СБ для ВВС-35

Ввод характеризуется повышенной надежностью благодаря улучшенной защите конденсаторной втулки ввода от проникновения влаги. Полимерная оболочка втулки, сформированная единой с фланцем, полностью герметизирует верхнюю и среднюю часть втулки. При этом внутреннее воздушное пространство ввода сведено к минимуму, применена двухступенчатая герметизация верхней и нижней частей фарфоровой покрышки. Соответствие требованиям: Ввод конденсаторный ВВФ-35 -ГОСТ 10693-81, Стандарт МЭК 60137 Фарфоровая покрышка - ГОСТ 5862. Категория внешней изоляции вводов- (I и II) - ГОСТ 9920. Электрическая прочность изоляции ввода - ГОСТ 1516.3, МЭК694. Категория размещения (УХЛ1), климатические условия - ГОСТ 15150, ГОСТ 15543.1 Требования безопасности - ГОСТ 12.2.007.0(3)  Высоковольтный фарфоровый ввод ВПФ-35 с монолитной втулкой и фланцем из эпоксидного компаунда предназначен для комплектации и ремонта масляных выключателей на напряжение 35 кВ, работающих в открытых распредустройствах переменного тока, частоты 50 или 60 Гц. Категория внешней изоляции I или II по ГОСТ 9920-89. Примечание: Высоковольтные вводы ВПФ-35 полностью взаимозаменяемые с вводами, имеющими втулку с бумажно-бакелитовой изоляцией, а так же с вводами типа ВВФ-35, ВЛ-35. Вводы ВПФ-35 кВ для высоковольтных выключателей С-35, ВБНТ-35, ВВС-35, ВТ-35, ВТД-35, ВМ-35, ВМД-35, МКП-35 поставляются заказчику в деревянной таре любой транспортной компанией или самовывозом. Доставка до транспортной компании осуществляется бесплатно. Основной частью высоковольтного ввода ВПФ-35 кВ является литая втулка из эпоксидного компаунда, расположенная на токоведущем стержне. Полость между фарфоровой покрышкой втулкой заполнена виниполом. Сверху полость закрыта фланцем. Уплотнение фланца с токоведущим стержнем, фарфоровой покрышкой и втулкой осуществляется резиновыми кольцами, которые поджимаются медным наконечником, установленным на стержне ВПФ-35.  Наше предприятие занимается изготовлением и поставкой запасных частей и ЗИПа для масляных выключателей и приводов к ним. Также проводим ремонт и замену старых выключателей на выключатели после ревизии и ремонта.  Реализуем масляные выключатели: У-110, У-220, МГУ-110, ВМГ-10, ВМГ-133, ВМП-10, ВМПЭ-10, ВМПП-10, МГГ-10, С-35, ВПМ-10, ВПМП-10, ВМГ-110, ПС-10, ПЭВ-12, ППО-10, ШПЭ-35, ШПЭ-44У1, ШПЭ-44, ШПЭ-46, ПП-67, ПЭ-11, ППВ-10 и др. Многие позиции в наличии. Доставка до ТК в Екатеринбурге за наш счет.

52 500 руб.
Екатеринбург
Ввод высоковольтный 5ЛЖ.616.013 (018) для ВВС-35

Ввод высоковольтный 5ЛЖ.616.013 (018) для ВВС-35

Ввод характеризуется повышенной надежностью благодаря улучшенной защите конденсаторной втулки ввода от проникновения влаги. Полимерная оболочка втулки, сформированная единой с фланцем, полностью герметизирует верхнюю и среднюю часть втулки. При этом внутреннее воздушное пространство ввода сведено к минимуму, применена двухступенчатая герметизация верхней и нижней частей фарфоровой покрышки. Соответствие требованиям: Ввод конденсаторный ВВФ-35 -ГОСТ 10693-81, Стандарт МЭК 60137 Фарфоровая покрышка - ГОСТ 5862. Категория внешней изоляции вводов- (I и II) - ГОСТ 9920. Электрическая прочность изоляции ввода - ГОСТ 1516.3, МЭК694. Категория размещения (УХЛ1), климатические условия - ГОСТ 15150, ГОСТ 15543.1 Требования безопасности - ГОСТ 12.2.007.0(3)  Высоковольтный фарфоровый ввод ВПФ-35 с монолитной втулкой и фланцем из эпоксидного компаунда предназначен для комплектации и ремонта масляных выключателей на напряжение 35 кВ, работающих в открытых распредустройствах переменного тока, частоты 50 или 60 Гц. Категория внешней изоляции I или II по ГОСТ 9920-89. Примечание: Высоковольтные вводы ВПФ-35 полностью взаимозаменяемые с вводами, имеющими втулку с бумажно-бакелитовой изоляцией, а так же с вводами типа ВВФ-35, ВЛ-35. Вводы ВПФ-35 кВ для высоковольтных выключателей С-35, ВБНТ-35, ВВС-35, ВТ-35, ВТД-35, ВМ-35, ВМД-35, МКП-35 поставляются заказчику в деревянной таре любой транспортной компанией или самовывозом. Доставка до транспортной компании осуществляется бесплатно. Основной частью высоковольтного ввода ВПФ-35 кВ является литая втулка из эпоксидного компаунда, расположенная на токоведущем стержне. Полость между фарфоровой покрышкой втулкой заполнена виниполом. Сверху полость закрыта фланцем. Уплотнение фланца с токоведущим стержнем, фарфоровой покрышкой и втулкой осуществляется резиновыми кольцами, которые поджимаются медным наконечником, установленным на стержне ВПФ-35.  Наше предприятие занимается изготовлением и поставкой запасных частей и ЗИПа для масляных выключателей и приводов к ним. Также проводим ремонт и замену старых выключателей на выключатели после ревизии и ремонта.  Реализуем масляные выключатели: У-110, У-220, МГУ-110, ВМГ-10, ВМГ-133, ВМП-10, ВМПЭ-10, ВМПП-10, МГГ-10, С-35, ВПМ-10, ВПМП-10, ВМГ-110, ПС-10, ПЭВ-12, ППО-10, ШПЭ-35, ШПЭ-44У1, ШПЭ-44, ШПЭ-46, ПП-67, ПЭ-11, ППВ-10 и др. Многие позиции в наличии. Доставка до ТК в Екатеринбурге за наш счет.

52 500 руб.
Екатеринбург
Ввод высоковольтный АГИЕ.686381.001-03 для ВМ-35

Ввод высоковольтный АГИЕ.686381.001-03 для ВМ-35

Ввод характеризуется повышенной надежностью благодаря улучшенной защите конденсаторной втулки ввода от проникновения влаги. Полимерная оболочка втулки, сформированная единой с фланцем, полностью герметизирует верхнюю и среднюю часть втулки. При этом внутреннее воздушное пространство ввода сведено к минимуму, применена двухступенчатая герметизация верхней и нижней частей фарфоровой покрышки. Соответствие требованиям: Ввод конденсаторный ВВФ-35 -ГОСТ 10693-81, Стандарт МЭК 60137 Фарфоровая покрышка - ГОСТ 5862. Категория внешней изоляции вводов- (I и II) - ГОСТ 9920. Электрическая прочность изоляции ввода - ГОСТ 1516.3, МЭК694. Категория размещения (УХЛ1), климатические условия - ГОСТ 15150, ГОСТ 15543.1 Требования безопасности - ГОСТ 12.2.007.0(3)  Высоковольтный фарфоровый ввод ВПФ-35 с монолитной втулкой и фланцем из эпоксидного компаунда предназначен для комплектации и ремонта масляных выключателей на напряжение 35 кВ, работающих в открытых распредустройствах переменного тока, частоты 50 или 60 Гц. Категория внешней изоляции I или II по ГОСТ 9920-89. Примечание: Высоковольтные вводы ВПФ-35 полностью взаимозаменяемые с вводами, имеющими втулку с бумажно-бакелитовой изоляцией, а так же с вводами типа ВВФ-35, ВЛ-35. Вводы ВПФ-35 кВ для высоковольтных выключателей С-35, ВБНТ-35, ВВС-35, ВТ-35, ВТД-35, ВМ-35, ВМД-35, МКП-35 поставляются заказчику в деревянной таре любой транспортной компанией или самовывозом. Доставка до транспортной компании осуществляется бесплатно. Основной частью высоковольтного ввода ВПФ-35 кВ является литая втулка из эпоксидного компаунда, расположенная на токоведущем стержне. Полость между фарфоровой покрышкой втулкой заполнена виниполом. Сверху полость закрыта фланцем. Уплотнение фланца с токоведущим стержнем, фарфоровой покрышкой и втулкой осуществляется резиновыми кольцами, которые поджимаются медным наконечником, установленным на стержне ВПФ-35.  Наше предприятие занимается изготовлением и поставкой запасных частей и ЗИПа для масляных выключателей и приводов к ним. Также проводим ремонт и замену старых выключателей на выключатели после ревизии и ремонта.  Реализуем масляные выключатели: У-110, У-220, МГУ-110, ВМГ-10, ВМГ-133, ВМП-10, ВМПЭ-10, ВМПП-10, МГГ-10, С-35, ВПМ-10, ВПМП-10, ВМГ-110, ПС-10, ПЭВ-12, ППО-10, ШПЭ-35, ШПЭ-44У1, ШПЭ-44, ШПЭ-46, ПП-67, ПЭ-11, ППВ-10 и др. Многие позиции в наличии. Доставка до ТК в Екатеринбурге за наш счет.

52 500 руб.
Екатеринбург
Подстанция трансформаторная КТПЖ 400/27,5/0,4

Подстанция трансформаторная КТПЖ 400/27,5/0,4

Подстанция трансформаторная КТПЖ 400/27,5/0,4 Представляет собой трехфазную трансформаторную подстанцию. Мощность трансформаторной подстанции 400кВа Напряжение ВН 27,5кВ Напряжение НН 0,4кВ Исполнение нейтрали Изолированная Вывод на стороне низкого напряжения Кабельный Ток термической стойкости со стороны низшего напряжения 3.64 кА Констукция трансформаторной подстанции Мачтовая Тип трансформатора Понижающий Высота 2400.0 мм Ширина 1000.0 мм Количество фаз 3 Ток термической стойкости со стороны высшего напряжения 91.0 кА Взрывозащищенный корпус нет Минимальная рабочая температура окружающей среды -40.0 град. Максимальная рабочая температура окружающей среды 40.0 град. Номинальное напряжение на стороне низшего напряжения 0.4 кВ Количество трансформаторов в станции 1 Длина 1200.0 ммПроизводитель: Подстанция Тип: Столбовые (КТПС) Способ присоединения: Тупиковые Место размещения: Открытые Мобильность: Стационарные Количество отходящих линий: 2 Ток электродинамической стойкости на стороне высшего напряжения: 91.0 кА Тип монтажа подстанции: Столбовая Степень защиты IP: 34 Тип трансформаторной подстанции по мобильности: Стационарная Ток электродинамической стойкости на стороне низшего напряжения: 3.61 кА Срок службы: 25.0 лет Способ присоединения станции к сети: Тупиковая Частота тока: 50 Гц Род установки: Открытый воздуха

130 000 руб.
Екатеринбург
Подстанция трансформаторная КТПЖ 250/27,5/0,4

Подстанция трансформаторная КТПЖ 250/27,5/0,4

Подстанция трансформаторная КТПЖ 250/27,5/0,4 Представляет собой трехфазную трансформаторную подстанцию. Мощность трансформаторной подстанции 250кВа Напряжение ВН 27,5кВ Напряжение НН 0,4кВ Исполнение нейтрали Изолированная Вывод на стороне низкого напряжения Кабельный Ток термической стойкости со стороны низшего напряжения 3.64 кА Констукция трансформаторной подстанции Мачтовая Тип трансформатора Понижающий Высота 2400.0 мм Ширина 1000.0 мм Количество фаз 3 Ток термической стойкости со стороны высшего напряжения 91.0 кА Взрывозащищенный корпус нет Минимальная рабочая температура окружающей среды -40.0 град. Максимальная рабочая температура окружающей среды 40.0 град. Номинальное напряжение на стороне низшего напряжения 0.4 кВ Количество трансформаторов в станции 1 Длина 1200.0 ммПроизводитель: Подстанция Тип: Столбовые (КТПС) Способ присоединения: Тупиковые Место размещения: Открытые Мобильность: Стационарные Количество отходящих линий: 2 Ток электродинамической стойкости на стороне высшего напряжения: 91.0 кА Тип монтажа подстанции: Столбовая Степень защиты IP: 34 Тип трансформаторной подстанции по мобильности: Стационарная Ток электродинамической стойкости на стороне низшего напряжения: 3.61 кА Срок службы: 25.0 лет Способ присоединения станции к сети: Тупиковая Частота тока: 50 Гц Род установки: Открытый воздуха

130 000 руб.
Екатеринбург
Подстанция трансформаторная КТПЖ 100/27,5/0,4

Подстанция трансформаторная КТПЖ 100/27,5/0,4

Подстанция трансформаторная КТПЖ 100/27,5/0,4 Представляет собой трехфазную трансформаторную подстанцию. Мощность трансформаторной подстанции 100кВа Напряжение ВН 27,5кВ Напряжение НН 0,4кВ Исполнение нейтрали Изолированная Вывод на стороне низкого напряжения Кабельный Ток термической стойкости со стороны низшего напряжения 3.64 кА Констукция трансформаторной подстанции Мачтовая Тип трансформатора Понижающий Высота 2400.0 мм Ширина 1000.0 мм Количество фаз 3 Ток термической стойкости со стороны высшего напряжения 91.0 кА Взрывозащищенный корпус нет Минимальная рабочая температура окружающей среды -40.0 град. Максимальная рабочая температура окружающей среды 40.0 град. Номинальное напряжение на стороне низшего напряжения 0.4 кВ Количество трансформаторов в станции 1 Длина 1200.0 ммПроизводитель: Подстанция Тип: Столбовые (КТПС) Способ присоединения: Тупиковые Место размещения: Открытые Мобильность: Стационарные Количество отходящих линий: 2 Ток электродинамической стойкости на стороне высшего напряжения: 91.0 кА Тип монтажа подстанции: Столбовая Степень защиты IP: 34 Тип трансформаторной подстанции по мобильности: Стационарная Ток электродинамической стойкости на стороне низшего напряжения: 3.61 кА Срок службы: 25.0 лет Способ присоединения станции к сети: Тупиковая Частота тока: 50 Гц Род установки: Открытый воздуха

130 000 руб.
Екатеринбург
Подстанция трансформаторная КТПЖ 25/27,5/0,4

Подстанция трансформаторная КТПЖ 25/27,5/0,4

Подстанция трансформаторная КТПЖ 25/27,5/0,4 Представляет собой трехфазную трансформаторную подстанцию. Мощность трансформаторной подстанции 25кВа Напряжение ВН 27,5кВ Напряжение НН 0,4кВ Исполнение нейтрали Изолированная Вывод на стороне низкого напряжения Кабельный Ток термической стойкости со стороны низшего напряжения 3.64 кА Констукция трансформаторной подстанции Мачтовая Тип трансформатора Понижающий Высота 2400.0 мм Ширина 1000.0 мм Количество фаз 3 Ток термической стойкости со стороны высшего напряжения 91.0 кА Взрывозащищенный корпус нет Минимальная рабочая температура окружающей среды -40.0 град. Максимальная рабочая температура окружающей среды 40.0 град. Номинальное напряжение на стороне низшего напряжения 0.4 кВ Количество трансформаторов в станции 1 Длина 1200.0 ммПроизводитель: Подстанция Тип: Столбовые (КТПС) Способ присоединения: Тупиковые Место размещения: Открытые Мобильность: Стационарные Количество отходящих линий: 2 Ток электродинамической стойкости на стороне высшего напряжения: 91.0 кА Тип монтажа подстанции: Столбовая Степень защиты IP: 34 Тип трансформаторной подстанции по мобильности: Стационарная Ток электродинамической стойкости на стороне низшего напряжения: 3.61 кА Срок службы: 25.0 лет Способ присоединения станции к сети: Тупиковая Частота тока: 50 Гц Род установки: Открытый воздуха

130 000 руб.
Екатеринбург
Подстанция трансформаторная КТПОС 63/6/0,23

Подстанция трансформаторная КТПОС 63/6/0,23

Подстанция трансформаторная КТПОС 63/6/0,23 Представляет собой трехфазную трансформаторную подстанцию. Мощность трансформаторной подстанции 63кВа Напряжение ВН 6кВ Напряжение НН 0,23кВ Исполнение нейтрали Изолированная Вывод на стороне низкого напряжения Кабельный Ток термической стойкости со стороны низшего напряжения 3.64 кА Констукция трансформаторной подстанции Мачтовая Тип трансформатора Понижающий Высота 2400.0 мм Ширина 1000.0 мм Количество фаз 3 Ток термической стойкости со стороны высшего напряжения 91.0 кА Взрывозащищенный корпус нет Минимальная рабочая температура окружающей среды -40.0 град. Максимальная рабочая температура окружающей среды 40.0 град. Номинальное напряжение на стороне низшего напряжения 0.4 кВ Количество трансформаторов в станции 1 Длина 1200.0 ммПроизводитель: Подстанция Тип: Столбовые (КТПС) Способ присоединения: Тупиковые Место размещения: Открытые Мобильность: Стационарные Количество отходящих линий: 2 Ток электродинамической стойкости на стороне высшего напряжения: 91.0 кА Тип монтажа подстанции: Столбовая Степень защиты IP: 34 Тип трансформаторной подстанции по мобильности: Стационарная Ток электродинамической стойкости на стороне низшего напряжения: 3.61 кА Срок службы: 25.0 лет Способ присоединения станции к сети: Тупиковая Частота тока: 50 Гц Род установки: Открытый воздуха

75 000 руб.
Екатеринбург
Подстанция трансформаторная КТПОС 63/10/0,23

Подстанция трансформаторная КТПОС 63/10/0,23

Подстанция трансформаторная КТПОС 63/10/0,23 Представляет собой трехфазную трансформаторную подстанцию. Мощность трансформаторной подстанции 63кВа Напряжение ВН 10кВ Напряжение НН 0,23кВ Исполнение нейтрали Изолированная Вывод на стороне низкого напряжения Кабельный Ток термической стойкости со стороны низшего напряжения 3.64 кА Констукция трансформаторной подстанции Мачтовая Тип трансформатора Понижающий Высота 2400.0 мм Ширина 1000.0 мм Количество фаз 3 Ток термической стойкости со стороны высшего напряжения 91.0 кА Взрывозащищенный корпус нет Минимальная рабочая температура окружающей среды -40.0 град. Максимальная рабочая температура окружающей среды 40.0 град. Номинальное напряжение на стороне низшего напряжения 0.4 кВ Количество трансформаторов в станции 1 Длина 1200.0 ммПроизводитель: Подстанция Тип: Столбовые (КТПС) Способ присоединения: Тупиковые Место размещения: Открытые Мобильность: Стационарные Количество отходящих линий: 2 Ток электродинамической стойкости на стороне высшего напряжения: 91.0 кА Тип монтажа подстанции: Столбовая Степень защиты IP: 34 Тип трансформаторной подстанции по мобильности: Стационарная Ток электродинамической стойкости на стороне низшего напряжения: 3.61 кА Срок службы: 25.0 лет Способ присоединения станции к сети: Тупиковая Частота тока: 50 Гц Род установки: Открытый воздуха

75 000 руб.
Екатеринбург
Подстанция трансформаторная МТПЖ 2,5/27,5/0,23

Подстанция трансформаторная МТПЖ 2,5/27,5/0,23

Подстанция трансформаторная МТПЖ 2,5/27,5/0,23 Представляет собой однофазную трансформаторную подстанцию. Мощность трансформаторной подстанции 2,55кВа Напряжение ВН 27,5кВ Напряжение НН 0,23кВ Исполнение нейтрали Изолированная Вывод на стороне низкого напряжения Кабельный Ток термической стойкости со стороны низшего напряжения 3.64 кА Констукция трансформаторной подстанции Мачтовая Тип трансформатора Понижающий Высота 2400.0 мм Ширина 1000.0 мм Количество фаз 3 Ток термической стойкости со стороны высшего напряжения 91.0 кА Взрывозащищенный корпус нет Минимальная рабочая температура окружающей среды -40.0 град. Максимальная рабочая температура окружающей среды 40.0 град. Номинальное напряжение на стороне низшего напряжения 0.4 кВ Количество трансформаторов в станции 1 Длина 1200.0 ммПроизводитель: Подстанция Тип: Столбовые (КТПС) Способ присоединения: Тупиковые Место размещения: Открытые Мобильность: Стационарные Количество отходящих линий: 2 Ток электродинамической стойкости на стороне высшего напряжения: 91.0 кА Тип монтажа подстанции: Столбовая Степень защиты IP: 34 Тип трансформаторной подстанции по мобильности: Стационарная Ток электродинамической стойкости на стороне низшего напряжения: 3.61 кА Срок службы: 25.0 лет Способ присоединения станции к сети: Тупиковая Частота тока: 50 Гц Род установки: Открытый воздуха

130 000 руб.
Екатеринбург
Подстанция трансформаторная МТПЖ 2,5/6/0,23

Подстанция трансформаторная МТПЖ 2,5/6/0,23

Подстанция трансформаторная МТПЖ 2,5/6/0,23 Представляет собой однофазную трансформаторную подстанцию. Мощность трансформаторной подстанции 2,5кВа Напряжение ВН 6кВ Напряжение НН 0,23кВ Исполнение нейтрали Изолированная Вывод на стороне низкого напряжения Кабельный Ток термической стойкости со стороны низшего напряжения 3.64 кА Констукция трансформаторной подстанции Мачтовая Тип трансформатора Понижающий Высота 2400.0 мм Ширина 1000.0 мм Количество фаз 3 Ток термической стойкости со стороны высшего напряжения 91.0 кА Взрывозащищенный корпус нет Минимальная рабочая температура окружающей среды -40.0 град. Максимальная рабочая температура окружающей среды 40.0 град. Номинальное напряжение на стороне низшего напряжения 0.4 кВ Количество трансформаторов в станции 1 Длина 1200.0 ммПроизводитель: Подстанция Тип: Столбовые (КТПС) Способ присоединения: Тупиковые Место размещения: Открытые Мобильность: Стационарные Количество отходящих линий: 2 Ток электродинамической стойкости на стороне высшего напряжения: 91.0 кА Тип монтажа подстанции: Столбовая Степень защиты IP: 34 Тип трансформаторной подстанции по мобильности: Стационарная Ток электродинамической стойкости на стороне низшего напряжения: 3.61 кА Срок службы: 25.0 лет Способ присоединения станции к сети: Тупиковая Частота тока: 50 Гц Род установки: Открытый воздуха

75 000 руб.
Екатеринбург
Подстанция трансформаторная МТПЖ 2,5/10/0,23

Подстанция трансформаторная МТПЖ 2,5/10/0,23

Подстанция трансформаторная МТПЖ 2,5/10/0,23 Представляет собой однофазную трансформаторную подстанцию. Мощность трансформаторной подстанции 2,5кВа Напряжение ВН 10кВ Напряжение НН 0,23кВ Исполнение нейтрали Изолированная Вывод на стороне низкого напряжения Кабельный Ток термической стойкости со стороны низшего напряжения 3.64 кА Констукция трансформаторной подстанции Мачтовая Тип трансформатора Понижающий Высота 2400.0 мм Ширина 1000.0 мм Количество фаз 3 Ток термической стойкости со стороны высшего напряжения 91.0 кА Взрывозащищенный корпус нет Минимальная рабочая температура окружающей среды -40.0 град. Максимальная рабочая температура окружающей среды 40.0 град. Номинальное напряжение на стороне низшего напряжения 0.4 кВ Количество трансформаторов в станции 1 Длина 1200.0 ммПроизводитель: Подстанция Тип: Столбовые (КТПС) Способ присоединения: Тупиковые Место размещения: Открытые Мобильность: Стационарные Количество отходящих линий: 2 Ток электродинамической стойкости на стороне высшего напряжения: 91.0 кА Тип монтажа подстанции: Столбовая Степень защиты IP: 34 Тип трансформаторной подстанции по мобильности: Стационарная Ток электродинамической стойкости на стороне низшего напряжения: 3.61 кА Срок службы: 25.0 лет Способ присоединения станции к сети: Тупиковая Частота тока: 50 Гц Род установки: Открытый воздуха

75 000 руб.
Екатеринбург
Подстанция трансформаторная МТПЖ 1,25/10/0,23

Подстанция трансформаторная МТПЖ 1,25/10/0,23

Подстанция трансформаторная МТПЖ 1,25/10/0,23 Представляет собой однофазную трансформаторную подстанцию. Мощность трансформаторной подстанции 1,25кВа Напряжение ВН 10кВ Напряжение НН 0,23кВ Исполнение нейтрали Изолированная Вывод на стороне низкого напряжения Кабельный Ток термической стойкости со стороны низшего напряжения 3.64 кА Констукция трансформаторной подстанции Мачтовая Тип трансформатора Понижающий Высота 2400.0 мм Ширина 1000.0 мм Количество фаз 3 Ток термической стойкости со стороны высшего напряжения 91.0 кА Взрывозащищенный корпус нет Минимальная рабочая температура окружающей среды -40.0 град. Максимальная рабочая температура окружающей среды 40.0 град. Номинальное напряжение на стороне низшего напряжения 0.4 кВ Количество трансформаторов в станции 1 Длина 1200.0 ммПроизводитель: Подстанция Тип: Столбовые (КТПС) Способ присоединения: Тупиковые Место размещения: Открытые Мобильность: Стационарные Количество отходящих линий: 2 Ток электродинамической стойкости на стороне высшего напряжения: 91.0 кА Тип монтажа подстанции: Столбовая Степень защиты IP: 34 Тип трансформаторной подстанции по мобильности: Стационарная Ток электродинамической стойкости на стороне низшего напряжения: 3.61 кА Срок службы: 25.0 лет Способ присоединения станции к сети: Тупиковая Частота тока: 50 Гц Род установки: Открытый воздуха

75 000 руб.
Екатеринбург
Подстанция трансформаторная МТПЖ 1,25/6/0,23

Подстанция трансформаторная МТПЖ 1,25/6/0,23

Подстанция трансформаторная МТПЖ 1,25/6/0,23 Представляет собой однофазную трансформаторную подстанцию.  Мощность трансформаторной подстанции 1,25кВа Напряжение ВН 6кВ Напряжение НН 0,23кВ Исполнение нейтрали Изолированная Вывод на стороне низкого напряжения Кабельный Ток термической стойкости со стороны низшего напряжения 3.64 кА Констукция трансформаторной подстанции Мачтовая Тип трансформатора Понижающий Высота 2400.0 мм Ширина 1000.0 мм Количество фаз 3 Ток термической стойкости со стороны высшего напряжения 91.0 кА Взрывозащищенный корпус нет Минимальная рабочая температура окружающей среды -40.0 град. Максимальная рабочая температура окружающей среды 40.0 град. Номинальное напряжение на стороне низшего напряжения 0.4 кВ Количество трансформаторов в станции 1 Длина 1200.0 ммПроизводитель: Подстанция Тип: Столбовые (КТПС) Способ присоединения: Тупиковые Место размещения: Открытые Мобильность: Стационарные Количество отходящих линий: 2 Ток электродинамической стойкости на стороне высшего напряжения: 91.0 кА Тип монтажа подстанции: Столбовая Степень защиты IP: 34 Тип трансформаторной подстанции по мобильности: Стационарная Ток электродинамической стойкости на стороне низшего напряжения: 3.61 кА Срок службы: 25.0 лет Способ присоединения станции к сети: Тупиковая Частота тока: 50 Гц Род установки: Открытый воздуха

75 000 руб.
Екатеринбург
Подстанция трансформаторная МТПЖ 10/27,5/0,23

Подстанция трансформаторная МТПЖ 10/27,5/0,23

Подстанция трансформаторная МТПЖ 10/27,5/0,23 Представляет собой однофазную трансформаторную подстанцию, питаемую по схеме "провод-рельс". Мощность трансформаторной подстанции 10кВа Напряжение ВН 27,5кВ Напряжение НН 0,23кВ Номинальные токи отходящих линий 3х25А  Исполнение нейтрали Изолированная Вывод на стороне низкого напряжения Кабельный Ток термической стойкости со стороны низшего напряжения 3.64 кА Констукция трансформаторной подстанции Мачтовая Тип трансформатора Понижающий Высота 2400.0 мм Ширина 1000.0 мм Количество фаз 3 Ток термической стойкости со стороны высшего напряжения 91.0 кА Взрывозащищенный корпус нет Минимальная рабочая температура окружающей среды -40.0 град. Максимальная рабочая температура окружающей среды 40.0 град. Номинальное напряжение на стороне низшего напряжения 0.4 кВ Количество трансформаторов в станции 1 Длина 1200.0 ммПроизводитель: Подстанция Тип: Столбовые (КТПС) Способ присоединения: Тупиковые Место размещения: Открытые Мобильность: Стационарные Количество отходящих линий: 2 Ток электродинамической стойкости на стороне высшего напряжения: 91.0 кА Тип монтажа подстанции: Столбовая Степень защиты IP: 34 Тип трансформаторной подстанции по мобильности: Стационарная Ток электродинамической стойкости на стороне низшего напряжения: 3.61 кА Срок службы: 25.0 лет Способ присоединения станции к сети: Тупиковая Частота тока: 50 Гц Род установки: Открытый воздуха

130 000 руб.
Екатеринбург
Подстанция трансформаторная двух-столбовая СТП 160/10/0,4; СТП 160/6/0,4

Подстанция трансформаторная двух-столбовая СТП 160/10/0,4; СТП 160/6/0,4

Подстанция трансформаторная двух-столбовая СТП 160/10/0,4; СТП 160/6/0,4 Столбовая трансформаторная подстанция представляет собой однотрансформаторную подстанцию, монтируемую на 2-х бетонных опорах СК-105 -10 (СВ -10,5-5) и предназначенную для приема и учета электрической энергии напряжением 10(6) кВ, 50 Гц, а так же преобразования и распределения ее по трехфазной четырехпроводной сети напряжением 0,4 кВ. Столбовая трансформаторная подстанция служит для электроснабжения отдельных населенных пунктов, промышленных объектов, фермерских хозяйств и других аналогичных потребителей. Нормальная работа столбовой подстанции обеспечивается при следующих условиях: * Температура окружающего воздуха от -50С до +50С. * Относительная влажность воздуха 80% при температуре +15С * Высота над уровнем моря 1000м. * Скорость ветра - не более 36 м/с при отсутствии гололеда и не более 15 м/с в условиях гололеда при толщине корки льда до 20 мм. Столбовая трансформаторная подстанция не предназначена для работы в условиях тряски, вибрации, ударов и во взрывоопасной среде. Конструкция КТПС должна быть надежно заземлена. Проводить эксплуатацию КТПС без защитного заземления категорически запрещается! Все ремонтные работы на КТПС производить только со снятием напряжения и подготовкой рабочего места. Оборудование КТПС отгружается в отдельных упаковках. Транспортировка может производиться любым видом транспорта с соблюдением всех предосторожностей при перевозке бьющихся грузов во время транспортирования. При транспортировании и погрузо-разгрузочных работах нельзя допускать сильных толчков, кантовки, ударов и т.п. Допускается по соглашению с потребителем транспортировать оборудование без упаковки с применением дополнительных средств, исключающих их повреждение при транспортировании. Исполнение нейтрали Изолированная Вывод на стороне низкого напряжения Кабельный Ток термической стойкости со стороны низшего напряжения 3.64 кА Констукция трансформаторной подстанции Мачтовая Тип трансформатора Понижающий Высота 2400.0 мм Ширина 1000.0 мм Количество фаз 3 Ток термической стойкости со стороны высшего напряжения 91.0 кА Взрывозащищенный корпус нет Минимальная рабочая температура окружающей среды -40.0 град. Максимальная рабочая температура окружающей среды 40.0 град. Номинальное напряжение на стороне низшего напряжения 0.4 кВ Количество трансформаторов в станции 1 Длина 1200.0 ммПроизводитель: Подстанция Тип: Столбовые (КТПС) Способ присоединения: Тупиковые Место размещения: Открытые Мобильность: Стационарные Количество отходящих линий: 2 Ток электродинамической стойкости на стороне высшего напряжения: 91.0 кА Тип монтажа подстанции: Столбовая Степень защиты IP: 34 Тип трансформаторной подстанции по мобильности: Стационарная Ток электродинамической стойкости на стороне низшего напряжения: 3.61 кА Срок службы: 25.0 лет Способ присоединения станции к сети: Тупиковая Частота тока: 50 Гц Род установки: Открытый воздуха

105 000 руб.
Екатеринбург
Подстанция трансформаторная двух-столбовая СТП 250/10/0,4; СТП 250/6/0,4

Подстанция трансформаторная двух-столбовая СТП 250/10/0,4; СТП 250/6/0,4

Подстанция трансформаторная двух-столбовая СТП 250/10/0,4; СТП 250/6/0,4  Столбовая трансформаторная подстанция представляет собой однотрансформаторную подстанцию, монтируемую на 2-х бетонных опорах СК-105 -10 (СВ -10,5-5) и предназначенную для приема и учета электрической энергии напряжением 10(6) кВ, 50 Гц, а так же преобразования и распределения ее по трехфазной четырехпроводной сети напряжением 0,4 кВ. Столбовая трансформаторная подстанция служит для электроснабжения отдельных населенных пунктов, промышленных объектов, фермерских хозяйств и других аналогичных потребителей. Нормальная работа столбовой подстанции обеспечивается при следующих условиях: * Температура окружающего воздуха от -50С до +50С. * Относительная влажность воздуха 80% при температуре +15С * Высота над уровнем моря 1000м. * Скорость ветра - не более 36 м/с при отсутствии гололеда и не более 15 м/с в условиях гололеда при толщине корки льда до 20 мм. Столбовая трансформаторная подстанция не предназначена для работы в условиях тряски, вибрации, ударов и во взрывоопасной среде. Конструкция КТПС должна быть надежно заземлена. Проводить эксплуатацию КТПС без защитного заземления категорически запрещается! Все ремонтные работы на КТПС производить только со снятием напряжения и подготовкой рабочего места. Оборудование КТПС отгружается в отдельных упаковках. Транспортировка может производиться любым видом транспорта с соблюдением всех предосторожностей при перевозке бьющихся грузов во время транспортирования. При транспортировании и погрузо-разгрузочных работах нельзя допускать сильных толчков, кантовки, ударов и т.п. Допускается по соглашению с потребителем транспортировать оборудование без упаковки с применением дополнительных средств, исключающих их повреждение при транспортировании. Исполнение нейтрали Изолированная Вывод на стороне низкого напряжения Кабельный Ток термической стойкости со стороны низшего напряжения 3.64 кА Констукция трансформаторной подстанции Мачтовая Тип трансформатора Понижающий Высота 2400.0 мм Ширина 1000.0 мм Количество фаз 3 Ток термической стойкости со стороны высшего напряжения 91.0 кА Взрывозащищенный корпус нет Минимальная рабочая температура окружающей среды -40.0 град. Максимальная рабочая температура окружающей среды 40.0 град. Номинальное напряжение на стороне низшего напряжения 0.4 кВ Количество трансформаторов в станции 1 Длина 1200.0 ммПроизводитель: Подстанция Тип: Столбовые (КТПС) Способ присоединения: Тупиковые Место размещения: Открытые Мобильность: Стационарные Количество отходящих линий: 2 Ток электродинамической стойкости на стороне высшего напряжения: 91.0 кА Тип монтажа подстанции: Столбовая Степень защиты IP: 34 Тип трансформаторной подстанции по мобильности: Стационарная Ток электродинамической стойкости на стороне низшего напряжения: 3.61 кА Срок службы: 25.0 лет Способ присоединения станции к сети: Тупиковая Частота тока: 50 Гц Род установки: Открытый воздуха

105 000 руб.
Екатеринбург
Подстанция трансформаторная мачтовая МТП 160/10/0,4; МТП 160/6/0,4

Подстанция трансформаторная мачтовая МТП 160/10/0,4; МТП 160/6/0,4

Подстанция трансформаторная мачтовая МТП 160/10/0,4; МТП 160/6/0,4 Столбовая трансформаторная подстанция представляет собой однотрансформаторную подстанцию, монтируемую на бетонной опоре СК-105 -10 (СВ -10,5-5) и предназначенную для приема и учета электрической энергии напряжением 10(6) кВ, 50 Гц, а так же преобразования и распределения ее по трехфазной четырехпроводной сети напряжением 0,4 кВ. Столбовая трансформаторная подстанция служит для электроснабжения отдельных населенных пунктов, промышленных объектов, фермерских хозяйств и других аналогичных потребителей. Нормальная работа столбовой подстанции обеспечивается при следующих условиях: * Температура окружающего воздуха от -50С до +50С. * Относительная влажность воздуха 80% при температуре +15С * Высота над уровнем моря 1000м. * Скорость ветра - не более 36 м/с при отсутствии гололеда и не более 15 м/с в условиях гололеда при толщине корки льда до 20 мм. Столбовая трансформаторная подстанция не предназначена для работы в условиях тряски, вибрации, ударов и во взрывоопасной среде. Конструкция КТПС должна быть надежно заземлена. Проводить эксплуатацию КТПС без защитного заземления категорически запрещается! Все ремонтные работы на КТПС производить только со снятием напряжения и подготовкой рабочего места. Оборудование КТПС отгружается в отдельных упаковках. Транспортировка может производиться любым видом транспорта с соблюдением всех предосторожностей при перевозке бьющихся грузов во время транспортирования. При транспортировании и погрузо-разгрузочных работах нельзя допускать сильных толчков, кантовки, ударов и т.п. Допускается по соглашению с потребителем транспортировать оборудование без упаковки с применением дополнительных средств, исключающих их повреждение при транспортировании. Исполнение нейтрали Изолированная Вывод на стороне низкого напряжения Кабельный Ток термической стойкости со стороны низшего напряжения 3.64 кА Констукция трансформаторной подстанции Мачтовая Тип трансформатора Понижающий Высота 2400.0 мм Ширина 1000.0 мм Количество фаз 3 Ток термической стойкости со стороны высшего напряжения 91.0 кА Взрывозащищенный корпус нет Минимальная рабочая температура окружающей среды -40.0 град. Максимальная рабочая температура окружающей среды 40.0 град. Номинальное напряжение на стороне низшего напряжения 0.4 кВ Количество трансформаторов в станции 1 Длина 1200.0 ммПроизводитель: Подстанция Тип: Мачтовые (КТПМ) Способ присоединения: Тупиковые Место размещения: Открытые Мобильность: Стационарные Количество отходящих линий: 2 Ток электродинамической стойкости на стороне высшего напряжения: 91.0 кА Тип монтажа подстанции: Столбовая Степень защиты IP: 34 Тип трансформаторной подстанции по мобильности: Стационарная Ток электродинамической стойкости на стороне низшего напряжения: 3.61 кА Срок службы: 25.0 лет Способ присоединения станции к сети: Тупиковая Частота тока: 50 Гц Род установки: Открытый воздуха

75 000 руб.
Екатеринбург
Подстанция трансформаторная мачтовая МТП 100/10/0,4; МТП 100/6/0,4

Подстанция трансформаторная мачтовая МТП 100/10/0,4; МТП 100/6/0,4

Подстанция трансформаторная мачтовая МТП 100/10/0,4; МТП 100/6/0,4 Столбовая трансформаторная подстанция представляет собой однотрансформаторную подстанцию, монтируемую на бетонной опоре СК-105 -10 (СВ -10,5-5) и предназначенную для приема и учета электрической энергии напряжением 10(6) кВ, 50 Гц, а так же преобразования и распределения ее по трехфазной четырехпроводной сети напряжением 0,4 кВ. Столбовая трансформаторная подстанция служит для электроснабжения отдельных населенных пунктов, промышленных объектов, фермерских хозяйств и других аналогичных потребителей. Нормальная работа столбовой подстанции обеспечивается при следующих условиях: * Температура окружающего воздуха от -50С до +50С. * Относительная влажность воздуха 80% при температуре +15С * Высота над уровнем моря 1000м. * Скорость ветра - не более 36 м/с при отсутствии гололеда и не более 15 м/с в условиях гололеда при толщине корки льда до 20 мм. Столбовая трансформаторная подстанция не предназначена для работы в условиях тряски, вибрации, ударов и во взрывоопасной среде. Конструкция КТПС должна быть надежно заземлена. Проводить эксплуатацию КТПС без защитного заземления категорически запрещается! Все ремонтные работы на КТПС производить только со снятием напряжения и подготовкой рабочего места. Оборудование КТПС отгружается в отдельных упаковках. Транспортировка может производиться любым видом транспорта с соблюдением всех предосторожностей при перевозке бьющихся грузов во время транспортирования. При транспортировании и погрузо-разгрузочных работах нельзя допускать сильных толчков, кантовки, ударов и т.п. Допускается по соглашению с потребителем транспортировать оборудование без упаковки с применением дополнительных средств, исключающих их повреждение при транспортировании. Исполнение нейтрали Изолированная Вывод на стороне низкого напряжения Кабельный Ток термической стойкости со стороны низшего напряжения 3.64 кА Констукция трансформаторной подстанции Мачтовая Тип трансформатора Понижающий Высота 2400.0 мм Ширина 1000.0 мм Количество фаз 3 Ток термической стойкости со стороны высшего напряжения 91.0 кА Взрывозащищенный корпус нет Минимальная рабочая температура окружающей среды -40.0 град. Максимальная рабочая температура окружающей среды 40.0 град. Номинальное напряжение на стороне низшего напряжения 0.4 кВ Количество трансформаторов в станции 1 Длина 1200.0 ммПроизводитель: Подстанция Тип: Мачтовые (КТПМ) Способ присоединения: Тупиковые Место размещения: Открытые Мобильность: Стационарные Количество отходящих линий: 2 Ток электродинамической стойкости на стороне высшего напряжения: 91.0 кА Тип монтажа подстанции: Столбовая Степень защиты IP: 34 Тип трансформаторной подстанции по мобильности: Стационарная Ток электродинамической стойкости на стороне низшего напряжения: 3.61 кА Срок службы: 25.0 лет Способ присоединения станции к сети: Тупиковая Частота тока: 50 Гц Род установки: Открытый воздуха

75 000 руб.
Екатеринбург
Подстанция трансформаторная мачтовая МТП 63/10/0,4; МТП 63/6/0,4

Подстанция трансформаторная мачтовая МТП 63/10/0,4; МТП 63/6/0,4

Подстанция трансформаторная мачтовая МТП 63/10/0,4; МТП 63/6/0,4 Столбовая трансформаторная подстанция представляет собой однотрансформаторную подстанцию, монтируемую на бетонной опоре СК-105 -10 (СВ -10,5-5) и предназначенную для приема и учета электрической энергии напряжением 10(6) кВ, 50 Гц, а так же преобразования и распределения ее по трехфазной четырехпроводной сети напряжением 0,4 кВ. Столбовая трансформаторная подстанция служит для электроснабжения отдельных населенных пунктов, промышленных объектов, фермерских хозяйств и других аналогичных потребителей. Нормальная работа столбовой подстанции обеспечивается при следующих условиях: * Температура окружающего воздуха от -50С до +50С. * Относительная влажность воздуха 80% при температуре +15С * Высота над уровнем моря 1000м. * Скорость ветра - не более 36 м/с при отсутствии гололеда и не более 15 м/с в условиях гололеда при толщине корки льда до 20 мм. Столбовая трансформаторная подстанция не предназначена для работы в условиях тряски, вибрации, ударов и во взрывоопасной среде. Конструкция КТПС должна быть надежно заземлена. Проводить эксплуатацию КТПС без защитного заземления категорически запрещается! Все ремонтные работы на КТПС производить только со снятием напряжения и подготовкой рабочего места. Оборудование КТПС отгружается в отдельных упаковках. Транспортировка может производиться любым видом транспорта с соблюдением всех предосторожностей при перевозке бьющихся грузов во время транспортирования. При транспортировании и погрузо-разгрузочных работах нельзя допускать сильных толчков, кантовки, ударов и т.п. Допускается по соглашению с потребителем транспортировать оборудование без упаковки с применением дополнительных средств, исключающих их повреждение при транспортировании. Исполнение нейтрали Изолированная Вывод на стороне низкого напряжения Кабельный Ток термической стойкости со стороны низшего напряжения 3.64 кА Констукция трансформаторной подстанции Мачтовая Тип трансформатора Понижающий Высота 2400.0 мм Ширина 1000.0 мм Количество фаз 3 Ток термической стойкости со стороны высшего напряжения 91.0 кА Взрывозащищенный корпус нет Минимальная рабочая температура окружающей среды -40.0 град. Максимальная рабочая температура окружающей среды 40.0 град. Номинальное напряжение на стороне низшего напряжения 0.4 кВ Количество трансформаторов в станции 1 Длина 1200.0 ммПроизводитель: Подстанция Тип: Мачтовые (КТПМ) Способ присоединения: Тупиковые Место размещения: Открытые Мобильность: Стационарные Количество отходящих линий: 2 Ток электродинамической стойкости на стороне высшего напряжения: 91.0 кА Тип монтажа подстанции: Столбовая Степень защиты IP: 34 Тип трансформаторной подстанции по мобильности: Стационарная Ток электродинамической стойкости на стороне низшего напряжения: 3.61 кА Срок службы: 25.0 лет Способ присоединения станции к сети: Тупиковая Частота тока: 50 Гц Род установки: Открытый воздуха

75 000 руб.
Екатеринбург
Подстанция трансформаторная мачтовая МТП 40/10/0,4; МТП 40/6/0,4

Подстанция трансформаторная мачтовая МТП 40/10/0,4; МТП 40/6/0,4

Подстанция трансформаторная мачтовая МТП 40/10/0,4; МТП 40/6/0,4 Столбовая трансформаторная подстанция представляет собой однотрансформаторную подстанцию, монтируемую на бетонной опоре СК-105 -10 (СВ -10,5-5) и предназначенную для приема и учета электрической энергии напряжением 10(6) кВ, 50 Гц, а так же преобразования и распределения ее по трехфазной четырехпроводной сети напряжением 0,4 кВ. Столбовая трансформаторная подстанция служит для электроснабжения отдельных населенных пунктов, промышленных объектов, фермерских хозяйств и других аналогичных потребителей. Нормальная работа столбовой подстанции обеспечивается при следующих условиях: * Температура окружающего воздуха от -50С до +50С. * Относительная влажность воздуха 80% при температуре +15С * Высота над уровнем моря 1000м. * Скорость ветра - не более 36 м/с при отсутствии гололеда и не более 15 м/с в условиях гололеда при толщине корки льда до 20 мм. Столбовая трансформаторная подстанция не предназначена для работы в условиях тряски, вибрации, ударов и во взрывоопасной среде. Конструкция КТПС должна быть надежно заземлена. Проводить эксплуатацию КТПС без защитного заземления категорически запрещается! Все ремонтные работы на КТПС производить только со снятием напряжения и подготовкой рабочего места. Оборудование КТПС отгружается в отдельных упаковках. Транспортировка может производиться любым видом транспорта с соблюдением всех предосторожностей при перевозке бьющихся грузов во время транспортирования. При транспортировании и погрузо-разгрузочных работах нельзя допускать сильных толчков, кантовки, ударов и т.п. Допускается по соглашению с потребителем транспортировать оборудование без упаковки с применением дополнительных средств, исключающих их повреждение при транспортировании. Исполнение нейтрали Изолированная Вывод на стороне низкого напряжения Кабельный Ток термической стойкости со стороны низшего напряжения 3.64 кА Констукция трансформаторной подстанции Мачтовая Тип трансформатора Понижающий Высота 2400.0 мм Ширина 1000.0 мм Количество фаз 3 Ток термической стойкости со стороны высшего напряжения 91.0 кА Взрывозащищенный корпус нет Минимальная рабочая температура окружающей среды -40.0 град. Максимальная рабочая температура окружающей среды 40.0 град. Номинальное напряжение на стороне низшего напряжения 0.4 кВ Количество трансформаторов в станции 1 Длина 1200.0 ммПроизводитель: Подстанция Тип: Мачтовые (КТПМ) Способ присоединения: Тупиковые Место размещения: Открытые Мобильность: Стационарные Количество отходящих линий: 2 Ток электродинамической стойкости на стороне высшего напряжения: 91.0 кА Тип монтажа подстанции: Столбовая Степень защиты IP: 34 Тип трансформаторной подстанции по мобильности: Стационарная Ток электродинамической стойкости на стороне низшего напряжения: 3.61 кА Срок службы: 25.0 лет Способ присоединения станции к сети: Тупиковая Частота тока: 50 Гц Род установки: Открытый воздуха

75 000 руб.
Екатеринбург
Подстанция трансформаторная мачтовая МТП 25/10/0,4; МТП 25/6/0,4

Подстанция трансформаторная мачтовая МТП 25/10/0,4; МТП 25/6/0,4

Подстанция трансформаторная мачтовая МТП 25/10/0,4; МТП 25/6/0,4 Столбовая трансформаторная подстанция представляет собой однотрансформаторную подстанцию, монтируемую на бетонной опоре СК-105 -10 (СВ -10,5-5) и предназначенную для приема и учета электрической энергии напряжением 10(6) кВ, 50 Гц, а так же преобразования и распределения ее по трехфазной четырехпроводной сети напряжением 0,4 кВ. Столбовая трансформаторная подстанция служит для электроснабжения отдельных населенных пунктов, промышленных объектов, фермерских хозяйств и других аналогичных потребителей. Нормальная работа столбовой подстанции обеспечивается при следующих условиях: * Температура окружающего воздуха от -50С до +50С. * Относительная влажность воздуха 80% при температуре +15С * Высота над уровнем моря 1000м. * Скорость ветра - не более 36 м/с при отсутствии гололеда и не более 15 м/с в условиях гололеда при толщине корки льда до 20 мм. Столбовая трансформаторная подстанция не предназначена для работы в условиях тряски, вибрации, ударов и во взрывоопасной среде. Конструкция КТПС должна быть надежно заземлена. Проводить эксплуатацию КТПС без защитного заземления категорически запрещается! Все ремонтные работы на КТПС производить только со снятием напряжения и подготовкой рабочего места. Оборудование КТПС отгружается в отдельных упаковках. Транспортировка может производиться любым видом транспорта с соблюдением всех предосторожностей при перевозке бьющихся грузов во время транспортирования. При транспортировании и погрузо-разгрузочных работах нельзя допускать сильных толчков, кантовки, ударов и т.п. Допускается по соглашению с потребителем транспортировать оборудование без упаковки с применением дополнительных средств, исключающих их повреждение при транспортировании. Исполнение нейтрали Изолированная Вывод на стороне низкого напряжения Кабельный Ток термической стойкости со стороны низшего напряжения 3.64 кА Констукция трансформаторной подстанции Мачтовая Тип трансформатора Понижающий Высота 2400.0 мм Ширина 1000.0 мм Количество фаз 3 Ток термической стойкости со стороны высшего напряжения 91.0 кА Взрывозащищенный корпус нет Минимальная рабочая температура окружающей среды -40.0 град. Максимальная рабочая температура окружающей среды 40.0 град. Номинальное напряжение на стороне низшего напряжения 0.4 кВ Количество трансформаторов в станции 1 Длина 1200.0 ммПроизводитель: Подстанция Тип: Мачтовые (КТПМ) Способ присоединения: Тупиковые Место размещения: Открытые Мобильность: Стационарные Количество отходящих линий: 2 Ток электродинамической стойкости на стороне высшего напряжения: 91.0 кА Тип монтажа подстанции: Столбовая Степень защиты IP: 34 Тип трансформаторной подстанции по мобильности: Стационарная Ток электродинамической стойкости на стороне низшего напряжения: 3.61 кА Срок службы: 25.0 лет Способ присоединения станции к сети: Тупиковая Частота тока: 50 Гц Род установки: Открытый воздуха

75 000 руб.
Екатеринбург
Подстанция трансформаторная столбовая СТП 160/10/0,4; СТП 160/6/0,4

Подстанция трансформаторная столбовая СТП 160/10/0,4; СТП 160/6/0,4

Подстанция трансформаторная столбовая СТП 160/10/0,4; СТП 160/6/0,4 Столбовая трансформаторная подстанция представляет собой однотрансформаторную подстанцию, монтируемую на бетонной опоре СК-105 -10 (СВ -10,5-5) и предназначенную для приема и учета электрической энергии напряжением 10(6) кВ, 50 Гц, а так же преобразования и распределения ее по трехфазной четырехпроводной сети напряжением 0,4 кВ. Столбовая трансформаторная подстанция служит для электроснабжения отдельных населенных пунктов, промышленных объектов, фермерских хозяйств и других аналогичных потребителей. Нормальная работа столбовой подстанции обеспечивается при следующих условиях: * Температура окружающего воздуха от -50С до +50С. * Относительная влажность воздуха 80% при температуре +15С * Высота над уровнем моря 1000м. * Скорость ветра - не более 36 м/с при отсутствии гололеда и не более 15 м/с в условиях гололеда при толщине корки льда до 20 мм. Столбовая трансформаторная подстанция не предназначена для работы в условиях тряски, вибрации, ударов и во взрывоопасной среде. Конструкция КТПС должна быть надежно заземлена. Проводить эксплуатацию КТПС без защитного заземления категорически запрещается! Все ремонтные работы на КТПС производить только со снятием напряжения и подготовкой рабочего места. Оборудование КТПС отгружается в отдельных упаковках. Транспортировка может производиться любым видом транспорта с соблюдением всех предосторожностей при перевозке бьющихся грузов во время транспортирования. При транспортировании и погрузо-разгрузочных работах нельзя допускать сильных толчков, кантовки, ударов и т.п. Допускается по соглашению с потребителем транспортировать оборудование без упаковки с применением дополнительных средств, исключающих их повреждение при транспортировании. Исполнение нейтрали Изолированная Вывод на стороне низкого напряжения Кабельный Ток термической стойкости со стороны низшего напряжения 3.64 кА Констукция трансформаторной подстанции Мачтовая Тип трансформатора Понижающий Высота 2400.0 мм Ширина 1000.0 мм Количество фаз 3 Ток термической стойкости со стороны высшего напряжения 91.0 кА Взрывозащищенный корпус нет Минимальная рабочая температура окружающей среды -40.0 град. Максимальная рабочая температура окружающей среды 40.0 град. Номинальное напряжение на стороне низшего напряжения 0.4 кВ Количество трансформаторов в станции 1 Длина 1200.0 ммПроизводитель: Подстанция Тип: Столбовые (КТПС) Способ присоединения: Тупиковые Место размещения: Открытые Мобильность: Стационарные Количество отходящих линий: 2 Ток электродинамической стойкости на стороне высшего напряжения: 91.0 кА Тип монтажа подстанции: Столбовая Степень защиты IP: 34 Тип трансформаторной подстанции по мобильности: Стационарная Ток электродинамической стойкости на стороне низшего напряжения: 3.61 кА Срок службы: 25.0 лет Способ присоединения станции к сети: Тупиковая Частота тока: 50 Гц Род установки: Открытый воздуха

75 000 руб.
Екатеринбург
Подстанция трансформаторная КТПОС 40/6/0,23

Подстанция трансформаторная КТПОС 40/6/0,23

Подстанция трансформаторная КТПОС 40/6/0,23 Представляет собой трехфазную трансформаторную подстанцию. Мощность трансформаторной подстанции 40кВа Напряжение ВН 6кВ Напряжение НН 0,23кВ Исполнение нейтрали Изолированная Вывод на стороне низкого напряжения Кабельный Ток термической стойкости со стороны низшего напряжения 3.64 кА Констукция трансформаторной подстанции Мачтовая Тип трансформатора Понижающий Высота 2400.0 мм Ширина 1000.0 мм Количество фаз 3 Ток термической стойкости со стороны высшего напряжения 91.0 кА Взрывозащищенный корпус нет Минимальная рабочая температура окружающей среды -40.0 град. Максимальная рабочая температура окружающей среды 40.0 град. Номинальное напряжение на стороне низшего напряжения 0.4 кВ Количество трансформаторов в станции 1 Длина 1200.0 ммПроизводитель: Подстанция Тип: Столбовые (КТПС) Способ присоединения: Тупиковые Место размещения: Открытые Мобильность: Стационарные Количество отходящих линий: 2 Ток электродинамической стойкости на стороне высшего напряжения: 91.0 кА Тип монтажа подстанции: Столбовая Степень защиты IP: 34 Тип трансформаторной подстанции по мобильности: Стационарная Ток электродинамической стойкости на стороне низшего напряжения: 3.61 кА Срок службы: 25.0 лет Способ присоединения станции к сети: Тупиковая Частота тока: 50 Гц Род установки: Открытый воздуха

75 000 руб.
Екатеринбург
Подстанция трансформаторная КТПОС 40/10/0,23

Подстанция трансформаторная КТПОС 40/10/0,23

Подстанция трансформаторная КТПОС 40/10/0,23 Представляет собой трехфазную трансформаторную подстанцию. Мощность трансформаторной подстанции 40кВа Напряжение ВН 10кВ Напряжение НН 0,23кВ Исполнение нейтрали Изолированная Вывод на стороне низкого напряжения Кабельный Ток термической стойкости со стороны низшего напряжения 3.64 кА Констукция трансформаторной подстанции Мачтовая Тип трансформатора Понижающий Высота 2400.0 мм Ширина 1000.0 мм Количество фаз 3 Ток термической стойкости со стороны высшего напряжения 91.0 кА Взрывозащищенный корпус нет Минимальная рабочая температура окружающей среды -40.0 град. Максимальная рабочая температура окружающей среды 40.0 град. Номинальное напряжение на стороне низшего напряжения 0.4 кВ Количество трансформаторов в станции 1 Длина 1200.0 ммПроизводитель: Подстанция Тип: Столбовые (КТПС) Способ присоединения: Тупиковые Место размещения: Открытые Мобильность: Стационарные Количество отходящих линий: 2 Ток электродинамической стойкости на стороне высшего напряжения: 91.0 кА Тип монтажа подстанции: Столбовая Степень защиты IP: 34 Тип трансформаторной подстанции по мобильности: Стационарная Ток электродинамической стойкости на стороне низшего напряжения: 3.61 кА Срок службы: 25.0 лет Способ присоединения станции к сети: Тупиковая Частота тока: 50 Гц Род установки: Открытый воздуха

75 000 руб.
Екатеринбург
Подстанция трансформаторная КТПОС 25/6/0,23

Подстанция трансформаторная КТПОС 25/6/0,23

Подстанция трансформаторная КТПОС 25/6/0,23 Представляет собой трехфазную трансформаторную подстанцию. Мощность трансформаторной подстанции 25кВа Напряжение ВН 6кВ Напряжение НН 0,23кВ Исполнение нейтрали Изолированная Вывод на стороне низкого напряжения Кабельный Ток термической стойкости со стороны низшего напряжения 3.64 кА Констукция трансформаторной подстанции Мачтовая Тип трансформатора Понижающий Высота 2400.0 мм Ширина 1000.0 мм Количество фаз 3 Ток термической стойкости со стороны высшего напряжения 91.0 кА Взрывозащищенный корпус нет Минимальная рабочая температура окружающей среды -40.0 град. Максимальная рабочая температура окружающей среды 40.0 град. Номинальное напряжение на стороне низшего напряжения 0.4 кВ Количество трансформаторов в станции 1 Длина 1200.0 ммПроизводитель: Подстанция Тип: Столбовые (КТПС) Способ присоединения: Тупиковые Место размещения: Открытые Мобильность: Стационарные Количество отходящих линий: 2 Ток электродинамической стойкости на стороне высшего напряжения: 91.0 кА Тип монтажа подстанции: Столбовая Степень защиты IP: 34 Тип трансформаторной подстанции по мобильности: Стационарная Ток электродинамической стойкости на стороне низшего напряжения: 3.61 кА Срок службы: 25.0 лет Способ присоединения станции к сети: Тупиковая Частота тока: 50 Гц Род установки: Открытый воздуха

75 000 руб.
Екатеринбург
Подстанция трансформаторная КТПОС 25/10/0,23

Подстанция трансформаторная КТПОС 25/10/0,23

Подстанция трансформаторная КТПОС 25/10/0,23 Представляет собой трехфазную трансформаторную подстанцию. Мощность трансформаторной подстанции 25кВа Напряжение ВН 10кВ Напряжение НН 0,23кВ Исполнение нейтрали Изолированная Вывод на стороне низкого напряжения Кабельный Ток термической стойкости со стороны низшего напряжения 3.64 кА Констукция трансформаторной подстанции Мачтовая Тип трансформатора Понижающий Высота 2400.0 мм Ширина 1000.0 мм Количество фаз 3 Ток термической стойкости со стороны высшего напряжения 91.0 кА Взрывозащищенный корпус нет Минимальная рабочая температура окружающей среды -40.0 град. Максимальная рабочая температура окружающей среды 40.0 град. Номинальное напряжение на стороне низшего напряжения 0.4 кВ Количество трансформаторов в станции 1 Длина 1200.0 ммПроизводитель: Подстанция Тип: Столбовые (КТПС) Способ присоединения: Тупиковые Место размещения: Открытые Мобильность: Стационарные Количество отходящих линий: 2 Ток электродинамической стойкости на стороне высшего напряжения: 91.0 кА Тип монтажа подстанции: Столбовая Степень защиты IP: 34 Тип трансформаторной подстанции по мобильности: Стационарная Ток электродинамической стойкости на стороне низшего напряжения: 3.61 кА Срок службы: 25.0 лет Способ присоединения станции к сети: Тупиковая Частота тока: 50 Гц Род установки: Открытый воздуха

75 000 руб.
Екатеринбург
Подстанция трансформаторная МТПЖ 10/6/0,23

Подстанция трансформаторная МТПЖ 10/6/0,23

Подстанция трансформаторная МТПЖ 10/6/0,23 Представляет собой однофазную трансформаторную подстанцию. Мощность трансформаторной подстанции 10кВа Напряжение ВН 6кВ Напряжение НН 0,23кВ Исполнение нейтрали Изолированная Вывод на стороне низкого напряжения Кабельный Ток термической стойкости со стороны низшего напряжения 3.64 кА Констукция трансформаторной подстанции Мачтовая Тип трансформатора Понижающий Высота 2400.0 мм Ширина 1000.0 мм Количество фаз 3 Ток термической стойкости со стороны высшего напряжения 91.0 кА Взрывозащищенный корпус нет Минимальная рабочая температура окружающей среды -40.0 град. Максимальная рабочая температура окружающей среды 40.0 град. Номинальное напряжение на стороне низшего напряжения 0.4 кВ Количество трансформаторов в станции 1 Длина 1200.0 ммПроизводитель: Подстанция Тип: Столбовые (КТПС) Способ присоединения: Тупиковые Место размещения: Открытые Мобильность: Стационарные Количество отходящих линий: 2 Ток электродинамической стойкости на стороне высшего напряжения: 91.0 кА Тип монтажа подстанции: Столбовая Степень защиты IP: 34 Тип трансформаторной подстанции по мобильности: Стационарная Ток электродинамической стойкости на стороне низшего напряжения: 3.61 кА Срок службы: 25.0 лет Способ присоединения станции к сети: Тупиковая Частота тока: 50 Гц Род установки: Открытый воздуха

75 000 руб.
Екатеринбург
Подстанция трансформаторная МТПЖ 10/10/0,23

Подстанция трансформаторная МТПЖ 10/10/0,23

Подстанция трансформаторная МТПЖ 10/10/0,23 Представляет собой однофазную трансформаторную подстанцию. Мощность трансформаторной подстанции 10кВа Напряжение ВН 10кВ Напряжение НН 0,23кВ Исполнение нейтрали Изолированная Вывод на стороне низкого напряжения Кабельный Ток термической стойкости со стороны низшего напряжения 3.64 кА Констукция трансформаторной подстанции Мачтовая Тип трансформатора Понижающий Высота 2400.0 мм Ширина 1000.0 мм Количество фаз 3 Ток термической стойкости со стороны высшего напряжения 91.0 кА Взрывозащищенный корпус нет Минимальная рабочая температура окружающей среды -40.0 град. Максимальная рабочая температура окружающей среды 40.0 град. Номинальное напряжение на стороне низшего напряжения 0.4 кВ Количество трансформаторов в станции 1 Длина 1200.0 ммПроизводитель: Подстанция Тип: Столбовые (КТПС) Способ присоединения: Тупиковые Место размещения: Открытые Мобильность: Стационарные Количество отходящих линий: 2 Ток электродинамической стойкости на стороне высшего напряжения: 91.0 кА Тип монтажа подстанции: Столбовая Степень защиты IP: 34 Тип трансформаторной подстанции по мобильности: Стационарная Ток электродинамической стойкости на стороне низшего напряжения: 3.61 кА Срок службы: 25.0 лет Способ присоединения станции к сети: Тупиковая Частота тока: 50 Гц Род установки: Открытый воздуха

75 000 руб.
Екатеринбург
Подстанция трансформаторная МТПЖ 4/27,5/0,23

Подстанция трансформаторная МТПЖ 4/27,5/0,23

Подстанция трансформаторная МТПЖ 4/27,5/0,23 Представляет собой однофазную трансформаторную подстанцию. Мощность трансформаторной подстанции 4кВа Напряжение ВН 27,5кВ Напряжение НН 0,23кВ Исполнение нейтрали Изолированная Вывод на стороне низкого напряжения Кабельный Ток термической стойкости со стороны низшего напряжения 3.64 кА Констукция трансформаторной подстанции Мачтовая Тип трансформатора Понижающий Высота 2400.0 мм Ширина 1000.0 мм Количество фаз 3 Ток термической стойкости со стороны высшего напряжения 91.0 кА Взрывозащищенный корпус нет Минимальная рабочая температура окружающей среды -40.0 град. Максимальная рабочая температура окружающей среды 40.0 град. Номинальное напряжение на стороне низшего напряжения 0.4 кВ Количество трансформаторов в станции 1 Длина 1200.0 ммПроизводитель: Подстанция Тип: Столбовые (КТПС) Способ присоединения: Тупиковые Место размещения: Открытые Мобильность: Стационарные Количество отходящих линий: 2 Ток электродинамической стойкости на стороне высшего напряжения: 91.0 кА Тип монтажа подстанции: Столбовая Степень защиты IP: 34 Тип трансформаторной подстанции по мобильности: Стационарная Ток электродинамической стойкости на стороне низшего напряжения: 3.61 кА Срок службы: 25.0 лет Способ присоединения станции к сети: Тупиковая Частота тока: 50 Гц Род установки: Открытый воздуха

130 000 руб.
Екатеринбург
Подстанция трансформаторная МТПЖ 4/10/0,23

Подстанция трансформаторная МТПЖ 4/10/0,23

Подстанция трансформаторная МТПЖ 4/10/0,23 Представляет собой однофазную трансформаторную подстанцию. Мощность трансформаторной подстанции 4кВа Напряжение ВН 10кВ Напряжение НН 0,23кВ Исполнение нейтрали Изолированная Вывод на стороне низкого напряжения Кабельный Ток термической стойкости со стороны низшего напряжения 3.64 кА Констукция трансформаторной подстанции Мачтовая Тип трансформатора Понижающий Высота 2400.0 мм Ширина 1000.0 мм Количество фаз 3 Ток термической стойкости со стороны высшего напряжения 91.0 кА Взрывозащищенный корпус нет Минимальная рабочая температура окружающей среды -40.0 град. Максимальная рабочая температура окружающей среды 40.0 град. Номинальное напряжение на стороне низшего напряжения 0.4 кВ Количество трансформаторов в станции 1 Длина 1200.0 ммПроизводитель: Подстанция Тип: Столбовые (КТПС) Способ присоединения: Тупиковые Место размещения: Открытые Мобильность: Стационарные Количество отходящих линий: 2 Ток электродинамической стойкости на стороне высшего напряжения: 91.0 кА Тип монтажа подстанции: Столбовая Степень защиты IP: 34 Тип трансформаторной подстанции по мобильности: Стационарная Ток электродинамической стойкости на стороне низшего напряжения: 3.61 кА Срок службы: 25.0 лет Способ присоединения станции к сети: Тупиковая Частота тока: 50 Гц Род установки: Открытый воздуха

75 000 руб.
Екатеринбург
Подстанция трансформаторная МТПЖ 4/6/0,23

Подстанция трансформаторная МТПЖ 4/6/0,23

Подстанция трансформаторная МТПЖ 4/6/0,23 Представляет собой однофазную трансформаторную подстанцию. Мощность трансформаторной подстанции 4кВа Напряжение ВН 6кВ Напряжение НН 0,23кВ Исполнение нейтрали Изолированная Вывод на стороне низкого напряжения Кабельный Ток термической стойкости со стороны низшего напряжения 3.64 кА Констукция трансформаторной подстанции Мачтовая Тип трансформатора Понижающий Высота 2400.0 мм Ширина 1000.0 мм Количество фаз 3 Ток термической стойкости со стороны высшего напряжения 91.0 кА Взрывозащищенный корпус нет Минимальная рабочая температура окружающей среды -40.0 град. Максимальная рабочая температура окружающей среды 40.0 град. Номинальное напряжение на стороне низшего напряжения 0.4 кВ Количество трансформаторов в станции 1 Длина 1200.0 ммПроизводитель: Подстанция Тип: Столбовые (КТПС) Способ присоединения: Тупиковые Место размещения: Открытые Мобильность: Стационарные Количество отходящих линий: 2 Ток электродинамической стойкости на стороне высшего напряжения: 91.0 кА Тип монтажа подстанции: Столбовая Степень защиты IP: 34 Тип трансформаторной подстанции по мобильности: Стационарная Ток электродинамической стойкости на стороне низшего напряжения: 3.61 кА Срок службы: 25.0 лет Способ присоединения станции к сети: Тупиковая Частота тока: 50 Гц Род установки: Открытый воздуха

75 000 руб.
Екатеринбург
Подстанция трансформаторная столбовая СТП 100/10/0,4; СТП 100/6/0,4

Подстанция трансформаторная столбовая СТП 100/10/0,4; СТП 100/6/0,4

Подстанция трансформаторная столбовая СТП 100/10/0,4; СТП 100/6/0,4 Столбовая трансформаторная подстанция представляет собой однотрансформаторную подстанцию, монтируемую на бетонной опоре СК-105 -10 (СВ -10,5-5) и предназначенную для приема и учета электрической энергии напряжением 10(6) кВ, 50 Гц, а так же преобразования и распределения ее по трехфазной четырехпроводной сети напряжением 0,4 кВ. Столбовая трансформаторная подстанция служит для электроснабжения отдельных населенных пунктов, промышленных объектов, фермерских хозяйств и других аналогичных потребителей. Нормальная работа столбовой подстанции обеспечивается при следующих условиях: * Температура окружающего воздуха от -50С до +50С. * Относительная влажность воздуха 80% при температуре +15С * Высота над уровнем моря 1000м. * Скорость ветра - не более 36 м/с при отсутствии гололеда и не более 15 м/с в условиях гололеда при толщине корки льда до 20 мм. Столбовая трансформаторная подстанция не предназначена для работы в условиях тряски, вибрации, ударов и во взрывоопасной среде. Конструкция КТПС должна быть надежно заземлена. Проводить эксплуатацию КТПС без защитного заземления категорически запрещается! Все ремонтные работы на КТПС производить только со снятием напряжения и подготовкой рабочего места. Оборудование КТПС отгружается в отдельных упаковках. Транспортировка может производиться любым видом транспорта с соблюдением всех предосторожностей при перевозке бьющихся грузов во время транспортирования. При транспортировании и погрузо-разгрузочных работах нельзя допускать сильных толчков, кантовки, ударов и т.п. Допускается по соглашению с потребителем транспортировать оборудование без упаковки с применением дополнительных средств, исключающих их повреждение при транспортировании. Исполнение нейтрали Изолированная Вывод на стороне низкого напряжения Кабельный Ток термической стойкости со стороны низшего напряжения 3.64 кА Констукция трансформаторной подстанции Мачтовая Тип трансформатора Понижающий Высота 2400.0 мм Ширина 1000.0 мм Количество фаз 3 Ток термической стойкости со стороны высшего напряжения 91.0 кА Взрывозащищенный корпус нет Минимальная рабочая температура окружающей среды -40.0 град. Максимальная рабочая температура окружающей среды 40.0 град. Номинальное напряжение на стороне низшего напряжения 0.4 кВ Количество трансформаторов в станции 1 Длина 1200.0 ммПроизводитель: Подстанция Тип: Столбовые (КТПС) Способ присоединения: Тупиковые Место размещения: Открытые Мобильность: Стационарные Количество отходящих линий: 2 Ток электродинамической стойкости на стороне высшего напряжения: 91.0 кА Тип монтажа подстанции: Столбовая Степень защиты IP: 34 Тип трансформаторной подстанции по мобильности: Стационарная Ток электродинамической стойкости на стороне низшего напряжения: 3.61 кА Срок службы: 25.0 лет Способ присоединения станции к сети: Тупиковая Частота тока: 50 Гц Род установки: Открытый воздуха

75 000 руб.
Екатеринбург
Подстанция трансформаторная столбовая СТП 63/10/0,4; СТП 63/6/0,4

Подстанция трансформаторная столбовая СТП 63/10/0,4; СТП 63/6/0,4

Подстанция трансформаторная столбовая СТП 63/10/0,4; СТП 63/6/0,4 Столбовая трансформаторная подстанция представляет собой однотрансформаторную подстанцию, монтируемую на бетонной опоре СК-105 -10 (СВ -10,5-5) и предназначенную для приема и учета электрической энергии напряжением 10(6) кВ, 50 Гц, а так же преобразования и распределения ее по трехфазной четырехпроводной сети напряжением 0,4 кВ. Столбовая трансформаторная подстанция служит для электроснабжения отдельных населенных пунктов, промышленных объектов, фермерских хозяйств и других аналогичных потребителей. Нормальная работа столбовой подстанции обеспечивается при следующих условиях: * Температура окружающего воздуха от -50С до +50С. * Относительная влажность воздуха 80% при температуре +15С * Высота над уровнем моря 1000м. * Скорость ветра - не более 36 м/с при отсутствии гололеда и не более 15 м/с в условиях гололеда при толщине корки льда до 20 мм. Столбовая трансформаторная подстанция не предназначена для работы в условиях тряски, вибрации, ударов и во взрывоопасной среде. Конструкция КТПС должна быть надежно заземлена. Проводить эксплуатацию КТПС без защитного заземления категорически запрещается! Все ремонтные работы на КТПС производить только со снятием напряжения и подготовкой рабочего места. Оборудование КТПС отгружается в отдельных упаковках. Транспортировка может производиться любым видом транспорта с соблюдением всех предосторожностей при перевозке бьющихся грузов во время транспортирования. При транспортировании и погрузо-разгрузочных работах нельзя допускать сильных толчков, кантовки, ударов и т.п. Допускается по соглашению с потребителем транспортировать оборудование без упаковки с применением дополнительных средств, исключающих их повреждение при транспортировании. Исполнение нейтрали Изолированная Вывод на стороне низкого напряжения Кабельный Ток термической стойкости со стороны низшего напряжения 3.64 кА Констукция трансформаторной подстанции Мачтовая Тип трансформатора Понижающий Высота 2400.0 мм Ширина 1000.0 мм Количество фаз 3 Ток термической стойкости со стороны высшего напряжения 91.0 кА Взрывозащищенный корпус нет Минимальная рабочая температура окружающей среды -40.0 град. Максимальная рабочая температура окружающей среды 40.0 град. Номинальное напряжение на стороне низшего напряжения 0.4 кВ Количество трансформаторов в станции 1 Длина 1200.0 ммПроизводитель: Подстанция Тип: Столбовые (КТПС) Способ присоединения: Тупиковые Место размещения: Открытые Мобильность: Стационарные Количество отходящих линий: 2 Ток электродинамической стойкости на стороне высшего напряжения: 91.0 кА Тип монтажа подстанции: Столбовая Степень защиты IP: 34 Тип трансформаторной подстанции по мобильности: Стационарная Ток электродинамической стойкости на стороне низшего напряжения: 3.61 кА Срок службы: 25.0 лет Способ присоединения станции к сети: Тупиковая Частота тока: 50 Гц Род установки: Открытый воздуха

75 000 руб.
Екатеринбург
Подстанция трансформаторная столбовая СТП 40/10/0,4; СТП 40/6/0,4

Подстанция трансформаторная столбовая СТП 40/10/0,4; СТП 40/6/0,4

Подстанция трансформаторная столбовая СТП 40/10/0,4; СТП 40/6/0,4 Столбовая трансформаторная подстанция представляет собой однотрансформаторную подстанцию, монтируемую на бетонной опоре СК-105 -10 (СВ -10,5-5) и предназначенную для приема и учета электрической энергии напряжением 10(6) кВ, 50 Гц, а так же преобразования и распределения ее по трехфазной четырехпроводной сети напряжением 0,4 кВ. Столбовая трансформаторная подстанция служит для электроснабжения отдельных населенных пунктов, промышленных объектов, фермерских хозяйств и других аналогичных потребителей. Нормальная работа столбовой подстанции обеспечивается при следующих условиях: * Температура окружающего воздуха от -50С до +50С. * Относительная влажность воздуха 80% при температуре +15С * Высота над уровнем моря 1000м. * Скорость ветра - не более 36 м/с при отсутствии гололеда и не более 15 м/с в условиях гололеда при толщине корки льда до 20 мм. Столбовая трансформаторная подстанция не предназначена для работы в условиях тряски, вибрации, ударов и во взрывоопасной среде. Конструкция КТПС должна быть надежно заземлена. Проводить эксплуатацию КТПС без защитного заземления категорически запрещается! Все ремонтные работы на КТПС производить только со снятием напряжения и подготовкой рабочего места. Оборудование КТПС отгружается в отдельных упаковках. Транспортировка может производиться любым видом транспорта с соблюдением всех предосторожностей при перевозке бьющихся грузов во время транспортирования. При транспортировании и погрузо-разгрузочных работах нельзя допускать сильных толчков, кантовки, ударов и т.п. Допускается по соглашению с потребителем транспортировать оборудование без упаковки с применением дополнительных средств, исключающих их повреждение при транспортировании. Исполнение нейтрали Изолированная Вывод на стороне низкого напряжения Кабельный Ток термической стойкости со стороны низшего напряжения 3.64 кА Констукция трансформаторной подстанции Мачтовая Тип трансформатора Понижающий Высота 2400.0 мм Ширина 1000.0 мм Количество фаз 3 Ток термической стойкости со стороны высшего напряжения 91.0 кА Взрывозащищенный корпус нет Минимальная рабочая температура окружающей среды -40.0 град. Максимальная рабочая температура окружающей среды 40.0 град. Номинальное напряжение на стороне низшего напряжения 0.4 кВ Количество трансформаторов в станции 1 Длина 1200.0 ммПроизводитель: Подстанция Тип: Столбовые (КТПС) Способ присоединения: Тупиковые Место размещения: Открытые Мобильность: Стационарные Количество отходящих линий: 2 Ток электродинамической стойкости на стороне высшего напряжения: 91.0 кА Тип монтажа подстанции: Столбовая Степень защиты IP: 34 Тип трансформаторной подстанции по мобильности: Стационарная Ток электродинамической стойкости на стороне низшего напряжения: 3.61 кА Срок службы: 25.0 лет Способ присоединения станции к сети: Тупиковая Частота тока: 50 Гц Род установки: Открытый воздуха

75 000 руб.
Екатеринбург
Подстанция трансформаторная столбовая СТП 25/10/0,4; СТП 25/6/0,4

Подстанция трансформаторная столбовая СТП 25/10/0,4; СТП 25/6/0,4

Подстанция трансформаторная столбовая СТП 25/10/0,4; СТП 25/6/0,4  Столбовая трансформаторная подстанция представляет собой однотрансформаторную подстанцию, монтируемую на бетонной опоре СК-105 -10 (СВ -10,5-5) и предназначенную для приема и учета электрической энергии напряжением 10(6) кВ, 50 Гц, а так же преобразования и распределения ее по трехфазной четырехпроводной сети напряжением 0,4 кВ. Столбовая трансформаторная подстанция служит для электроснабжения отдельных населенных пунктов, промышленных объектов, фермерских хозяйств и других аналогичных потребителей. Нормальная работа столбовой подстанции обеспечивается при следующих условиях: * Температура окружающего воздуха от -50С до +50С. * Относительная влажность воздуха 80% при температуре +15С * Высота над уровнем моря 1000м. * Скорость ветра - не более 36 м/с при отсутствии гололеда и не более 15 м/с в условиях гололеда при толщине корки льда до 20 мм. Столбовая трансформаторная подстанция не предназначена для работы в условиях тряски, вибрации, ударов и во взрывоопасной среде. Конструкция КТПС должна быть надежно заземлена. Проводить эксплуатацию КТПС без защитного заземления категорически запрещается! Все ремонтные работы на КТПС производить только со снятием напряжения и подготовкой рабочего места. Оборудование КТПС отгружается в отдельных упаковках. Транспортировка может производиться любым видом транспорта с соблюдением всех предосторожностей при перевозке бьющихся грузов во время транспортирования. При транспортировании и погрузо-разгрузочных работах нельзя допускать сильных толчков, кантовки, ударов и т.п. Допускается по соглашению с потребителем транспортировать оборудование без упаковки с применением дополнительных средств, исключающих их повреждение при транспортировании. Исполнение нейтрали Изолированная Вывод на стороне низкого напряжения Кабельный Ток термической стойкости со стороны низшего напряжения 3.64 кА Констукция трансформаторной подстанции Мачтовая Тип трансформатора Понижающий Высота 2400.0 мм Ширина 1000.0 мм Количество фаз 3 Ток термической стойкости со стороны высшего напряжения 91.0 кА Взрывозащищенный корпус нет Минимальная рабочая температура окружающей среды -40.0 град. Максимальная рабочая температура окружающей среды 40.0 град. Номинальное напряжение на стороне низшего напряжения 0.4 кВ Количество трансформаторов в станции 1 Длина 1200.0 ммПроизводитель: Подстанция Тип: Столбовые (КТПС) Способ присоединения: Тупиковые Место размещения: Открытые Мобильность: Стационарные Количество отходящих линий: 2 Ток электродинамической стойкости на стороне высшего напряжения: 91.0 кА Тип монтажа подстанции: Столбовая Степень защиты IP: 34 Тип трансформаторной подстанции по мобильности: Стационарная Ток электродинамической стойкости на стороне низшего напряжения: 3.61 кА Срок службы: 25.0 лет Способ присоединения станции к сети: Тупиковая Частота тока: 50 Гц Род установки: Открытый воздуха

75 000 руб.
Екатеринбург
Подстанция двухтрансформаторная 2КТП 160

Подстанция двухтрансформаторная 2КТП 160

Назначение 2КТП Комплектные трансформаторные подстанции 2КТП предназначены для преобразования электроэнергии с целью понижения высокого напряжения 6 или 10 кВ до 380 (220) вольт. Они применяются для электроснабжения промышленных и бытовых потребителей. Для эксплуатации трансформаторной подстанции КТП 160 необходим трансформатор ТМ 160/10(6)/0,4 Устройство 2КТП Основным элементом трансформаторной подстанции является понижающий силовой трансформатор (Масляный или сухой), который через устройство ввода со стороны высшего напряжения УВН подключается к воздушной или кабельной высоковольтной линии ввода. Со стороны низшего напряжения через распределительное устройство РУНН к понижающему трансформатору подключаются потребители электроэнергии. Для защиты трансфарматорной подстанции 2КТП от перегрузок, коротких замыканий и перепадов напряжения применяются разрядники и ограничители напряжения, а также автоматические выключатели или рубильники с предохранителями. Для предотвращения поражения электрическим током обслуживающего персонала и других лиц оборудование подстанции 2КТП размещается в металлическом либо железобетонном корпусе, оборудованном электрическими и механическими блокировками. Корпус трансформаторной подстанции 2КТП делится на отсеки - для высоковольтного оборудования коммутации и защиты, для понижающего силового трансформатора и распределительного устройства низкого напряжения. Для контроля за качеством электроэнергии комплектные трансформаторные подстанции оборудуются контрольно-измерительной аппаратурой (указатели напряжения, приборы для измерения напряжения и тока) и приборами учета электроэнергии. При монтаже подстанции 2КТП необходимо соблюдать следующие требования: * расстояние от неизолированных токоведущих частей напряжением 6-10 кВ должно быть не менее 4,5 метра, а напряжением 0,4 кВ - не менее 3,5 м. * должны быть приняты меры, исключающие возможность проезда автотранспорта между КТП и опорами воздушных линий. ООО "ЗАВОД ПОДСТАНЦИЯ" обращает Ваше внимание на следующие сопутствующие виды товаров: Трансформаторы с ревизии ТМ ТМГ ТМН ТМЗ ТДТН ТМ 160/10(6)/0,4 ТМГ 160/10(6)/0,4Производитель: Березовский Завод Подстанция Мобильность: Стационарные Высота: 2400.0 мм Количество отходящих линий: 4 Ток электродинамической стойкости на стороне высшего напряжения: 91.0 кА Тип монтажа подстанции: Опорная Номинальное напряжение на стороне высшего напряжения: 10.0 кВ Тип трансформаторной подстанции по мобильности: Стационарная Ток электродинамической стойкости на стороне низшего напряжения: 100.0 кА Ширина: 2000.0 мм Длина: 2000.0 мм Срок службы: 25.0 лет

330 000 руб.
Екатеринбург
Трансформатор тока ТОГ-110-III-0,2S/0,5/10Р/10Р/10Р/1000/5 УХЛ1

Трансформатор тока ТОГ-110-III-0,2S/0,5/10Р/10Р/10Р/1000/5 УХЛ1

Технические характеристики № п/п Наименование параметра Предлагаемое участником кон­курса 1. Основные технические характеристики: 1.1 Изготовитель 1.2. Заводской тип (марка) Ж54.60510-53 1.3 Вид внутренней изоляции (масло, масло + песок, элегаз) элегаз 1.4 Тип внешней изоляции (фарфор, полимер) Фарфор. высокопрочный газоплотный 1.5. Цвет глазури внешней изоляции Коричневая или белая 1.6. Количество ступеней трансформации 2 1.7 Номинальный ток первичной обмотки, А 2000-1000 1.8 Ток термической стойкости, не менее, кА Время действия тока к.з., с. 40 3 1.9 Ток электродинамической стойкости, не менее, кА Время действия тока к.з., с. 126 3 1.10 Номинальный вторичный ток, А  1 1.11 Количество вторичных обмоток 5 с отпайкой 1.12 Параметры вторичных обмоток Обмотка 1 коммерческий учёт Класс точности, % Номинальная нагрузка, ВА 0,2S-2000/1 отп. 0,5/1000 30 Обмотка 5 – измерение Класс точности, % Номинальная нагрузка, ВА 0,5-2000/1 30 Обмотка 2 - защита Класс точности, % Номинальная нагрузка, ВА 5Р-10Р-2000/1 30 Обмотка 3 - защита Класс точности, % Номинальная нагрузка, ВА 5Р-10Р-2000/1 30 Обмотка 4 - защита Класс точности, % Номинальная нагрузка, ВА 5Р-10Р-2000/1 30 1.13 Коэффициент безопасности приборов обмотки для измерений, не более 10 1.14 Номинальная предельная кратность вторичных обмоток для за­щиты, не менее 25 1.15 Категория размещения и климатическое исполнение УХЛ1 1.16 Температура окружающего воздуха, °С - верхняя рабочая - нижняя рабочая +55 -60 1.17 Гарантийный срок эксплуатации, месяцев, не менее 36 1.18 Срок службы, не менее, лет 30 1.19 Комплект приспособлений для сервисного обслуживания Система подвода элегаза Ж58.28764 1.20 Допустимая нагрузка на вводы от тяжения проводов, Н 1000 1.21 Толщина стенки гололеда, мм 20 1.22 Допустимая скорость ветра при наличии гололеда, м/с 20 1.23 Допустимая скорость ветра при отсутствии гололеда, м/с 40 1.24 Расход элегаза на утечки в год, % не более 0.5 (фактически) ОПИСАНИЕ ТИПА СРЕДСТВА ИЗМЕРЕНИЙ Трансформаторы тока ТОГ-110 Назначение средства измерений Трансформаторы тока ТОГ – 110 (далее по тексту – трансформаторы), предназначены для передачи сигнала измерительной информации приборам измерения, защиты, автоматики, сигнализации и управления в установках переменного тока напряжением 110 кВ частотой 50 Гц. Описание средства измерений По принципу действия трансформатор является прибором электромагнитного типа и по конструкции представляет собой трансформатор опорного типа с верхним расположением блока обмоток в одном металлическом экране, с одной или двумя вторичными измеритель- ными и от двух до пяти вторичными защитными обмотками. Измерительные обмотки предназначены для электропитания измерительных приборов, защитные обмотки – для электропитания устройств защиты, контроля и сигнализации. В качестве изолирующей среды во внутренних полостях трансформатора используется электротехнический газ (элегаз). Первичная обмотка имеет три варианта конструктивного исполнения: одновитковая, двухвитковая и четырехвитковая для подключения к электрической сети с различными вели- чинами токов. Изменение количества витков первичной обмотки производится с помощью перемычек. В верхней части корпуса блока обмоток находится предохранительное устройство мем- бранного типа для аварийного сброса давления элегаза. Трансформатор имеет различные варианты исполнения в зависимости от класса точно- сти, величин первичного и вторичного токов, количества вторичных обмоток. Внешний вид трансформатора представлен на рисунке 1. Климатические условия эксплуатации трансформатора – УХЛ, категория размещения – 1 по ГОСТ 15150-89. Номинальные значения климатических факторов – по ГОСТ 15150, ГОСТ 17412 и ГОСТ 15543.1, при этом: - высота над уровнем моря, м, не более 1000; - окружающая среда – невзрывоопасная, не содержащая токопроводящей пыли, агрес- сивных газов и паров, разрушающих металлы и должна соответствовать типу атмосферы II по ГОСТ 15150. Знак утверждения типа наносят фотохимическим способом на табличку, устанавливаемую на дверце коробки внеш- них подсоединений трансформатора и на титульный лист руководства по эксплуатации и пас- порта типографским способом. Комплектность средства измерений Комплектность №№ п/п Наименование Обозначение Количество 1 Трансформатор Ж54.60510 1 шт. 2 Ведомость эксплуатационных документов Ж54.60510ВЭ 1 экз. 3 Кольцо защитное Ж43.18201 1 шт. на 3 изд 4 Система подвода элегаза к трансформатору Ж58.28764 по заказу 5 Элегаз в баллоне по заказу 6 Паспорт Ж54.60510ПС 1 шт. Поверка осуществляется по ГОСТ 8.217 – 2003 "ГСИ. Трансформаторы тока. Методика поверки" Сведения о методиках (методах) измерений Методика измерений представлена в руководстве по эксплуатации Ж54.60510РЭ.Тип: Трансформатор тока

1 руб.
Екатеринбург
Катушка ЭО 220В 5СЯ.520.302

Катушка ЭО 220В 5СЯ.520.302

Наше предприятие занимается изготовлением и поставкой запасных частей и ЗИПа для масляных выключателей и приводов к ним. Также проводим ремонт и замену старых выключателей на выключатели после ревизии и ремонта.  Реализуем масляные выключатели: У-110, У-220, МГУ-110, ВМГ-10, ВМГ-133, ВМП-10, ВМПЭ-10, ВМПП-10, МГГ-10, С-35, ВПМ-10, ВПМП-10, ВМГ-110, ПС-10, ПЭВ-12, ППО-10, ШПЭ-35, ШПЭ-44У1, ШПЭ-44, ШПЭ-46, ПП-67, ПЭ-11, ППВ-10 и др. Многие позиции в наличии. Доставка до ТК в Екатеринбурге за наш счет.

1 руб.
Екатеринбург
Дугогасительная камера ПК-28 5БП.740.006

Дугогасительная камера ПК-28 5БП.740.006

Наше предприятие занимается изготовлением и поставкой запасных частей и ЗИПа для масляных выключателей и приводов к ним. Также проводим ремонт и замену старых выключателей на выключатели после ревизии и ремонта.  Реализуем масляные выключатели: У-110, У-220, МГУ-110, ВМГ-10, ВМГ-133, ВМП-10, ВМПЭ-10, ВМПП-10, МГГ-10, С-35, ВПМ-10, ВПМП-10, ВМГ-110, ПС-10, ПЭВ-12, ППО-10, ШПЭ-35, ШПЭ-44У1, ШПЭ-44, ШПЭ-46, ПП-67, ПЭ-11, ППВ-10 и др. Многие позиции в наличии. Доставка до ТК в Екатеринбурге за наш счет.

1 руб.
Екатеринбург
Трос 5СЯ.470.004

Трос 5СЯ.470.004

Наше предприятие занимается изготовлением и поставкой запасных частей и ЗИПа для масляных выключателей и приводов к ним. Также проводим ремонт и замену старых выключателей на выключатели после ревизии и ремонта.  Реализуем масляные выключатели: У-110, У-220, МГУ-110, ВМГ-10, ВМГ-133, ВМП-10, ВМПЭ-10, ВМПП-10, МГГ-10, С-35, ВПМ-10, ВПМП-10, ВМГ-110, ПС-10, ПЭВ-12, ППО-10, ШПЭ-35, ШПЭ-44У1, ШПЭ-44, ШПЭ-46, ПП-67, ПЭ-11, ППВ-10 и др. Многие позиции в наличии. Доставка до ТК в Екатеринбурге за наш счет.

1 руб.
Екатеринбург
Вкладыш 8СЯ.263.079

Вкладыш 8СЯ.263.079

Наше предприятие занимается изготовлением и поставкой запасных частей и ЗИПа для масляных выключателей и приводов к ним. Также проводим ремонт и замену старых выключателей на выключатели после ревизии и ремонта.  Реализуем масляные выключатели: У-110, У-220, МГУ-110, ВМГ-10, ВМГ-133, ВМП-10, ВМПЭ-10, ВМПП-10, МГГ-10, С-35, ВПМ-10, ВПМП-10, ВМГ-110, ПС-10, ПЭВ-12, ППО-10, ШПЭ-35, ШПЭ-44У1, ШПЭ-44, ШПЭ-46, ПП-67, ПЭ-11, ППВ-10 и др. Многие позиции в наличии. Доставка до ТК в Екатеринбурге за наш счет.

1 руб.
Екатеринбург
Трансформатор измерительный НКФ – 110 III – У1

Трансформатор измерительный НКФ – 110 III – У1

Купить трансформатор измерительный НКФ 110, НКФ 132, НКФ 150, НКФ 220 в Екатеринбурге, в Перми, в Челябинске, в Тюмени, в Сургуте, в Хабаровске, в Уфе, в России можете в компании Завод Подстанция. Трансформатор НКФ – 66 IV – У1, НКФ – 66 IV – Е1, НКФ – 66 IV – У1 – И, НКФ – 66 IV – Е1 – И, НКФ – 66 IV – У1, НКФ – 110 II – У1, НКФ – 110 II – Е1, НКФ – 110 II – ХЛ1, НКФ – 110 II – У1 – И, НКФ – 110 II – ХЛ1 – И, НКФ – 110 III – У1, НКФ – 110 III – Е1, НКФ – 110 III – ХЛ1, НКФ – 110 III – У1 – И, НКФ – 110 III – ХЛ1 – И, НКФ – 132 I – У1, НКФ – 132 I – Т1, НКФ – 132 III – У1, НКФ – 132 III – Т1, НКФ – 150 IV – У1, НКФ – 150 IV – Т1, НКФ – 150 IV – Л1, НКФ – 220 II – У1, НКФ – 220 II – Т1, НКФ – 220 II – ХЛ1, НКФ – 220 III – У1, НКФ – 220 III – Т1, НКФ – 220 III – ХЛ1 цена, стоимость. Описание трансформатора НКФ 110, НКФ 132, НКФ 150, НКФ 220. Трансформатор НКФ 110, НКФ 132, НКФ 150, НКФ 220 в наличии в Екатеринбурге.Тип по назначению: Измерительный

240 000 руб.
Екатеринбург
Трубка 8СЯ.770.130

Трубка 8СЯ.770.130

Наше предприятие занимается изготовлением и поставкой запасных частей и ЗИПа для масляных выключателей и приводов к ним. Также проводим ремонт и замену старых выключателей на выключатели после ревизии и ремонта.  Реализуем масляные выключатели: У-110, У-220, МГУ-110, ВМГ-10, ВМГ-133, ВМП-10, ВМПЭ-10, ВМПП-10, МГГ-10, С-35, ВПМ-10, ВПМП-10, ВМГ-110, ПС-10, ПЭВ-12, ППО-10, ШПЭ-35, ШПЭ-44У1, ШПЭ-44, ШПЭ-46, ПП-67, ПЭ-11, ППВ-10 и др. Многие позиции в наличии. Доставка до ТК в Екатеринбурге за наш счет.

1 руб.
Екатеринбург
Трос 5СЯ.470.004-01

Трос 5СЯ.470.004-01

Наше предприятие занимается изготовлением и поставкой запасных частей и ЗИПа для масляных выключателей и приводов к ним. Также проводим ремонт и замену старых выключателей на выключатели после ревизии и ремонта.  Реализуем масляные выключатели: У-110, У-220, МГУ-110, ВМГ-10, ВМГ-133, ВМП-10, ВМПЭ-10, ВМПП-10, МГГ-10, С-35, ВПМ-10, ВПМП-10, ВМГ-110, ПС-10, ПЭВ-12, ППО-10, ШПЭ-35, ШПЭ-44У1, ШПЭ-44, ШПЭ-46, ПП-67, ПЭ-11, ППВ-10 и др. Многие позиции в наличии. Доставка до ТК в Екатеринбурге за наш счет.

1 руб.
Екатеринбург
Гайка 8СЯ.945.110

Гайка 8СЯ.945.110

Наше предприятие занимается изготовлением и поставкой запасных частей и ЗИПа для масляных выключателей и приводов к ним. Также проводим ремонт и замену старых выключателей на выключатели после ревизии и ремонта.  Реализуем масляные выключатели: У-110, У-220, МГУ-110, ВМГ-10, ВМГ-133, ВМП-10, ВМПЭ-10, ВМПП-10, МГГ-10, С-35, ВПМ-10, ВПМП-10, ВМГ-110, ПС-10, ПЭВ-12, ППО-10, ШПЭ-35, ШПЭ-44У1, ШПЭ-44, ШПЭ-46, ПП-67, ПЭ-11, ППВ-10 и др. Многие позиции в наличии. Доставка до ТК в Екатеринбурге за наш счет.

1 руб.
Екатеринбург
Кольцо уплотнительное 8СЯ.370.470

Кольцо уплотнительное 8СЯ.370.470

Наше предприятие занимается изготовлением и поставкой запасных частей и ЗИПа для масляных выключателей и приводов к ним. Также проводим ремонт и замену старых выключателей на выключатели после ревизии и ремонта.  Реализуем масляные выключатели: У-110, У-220, МГУ-110, ВМГ-10, ВМГ-133, ВМП-10, ВМПЭ-10, ВМПП-10, МГГ-10, С-35, ВПМ-10, ВПМП-10, ВМГ-110, ПС-10, ПЭВ-12, ППО-10, ШПЭ-35, ШПЭ-44У1, ШПЭ-44, ШПЭ-46, ПП-67, ПЭ-11, ППВ-10 и др. Многие позиции в наличии. Доставка до ТК в Екатеринбурге за наш счет.

1 руб.
Екатеринбург
Болт конусный 8БП.925.111

Болт конусный 8БП.925.111

Наше предприятие занимается изготовлением и поставкой запасных частей и ЗИПа для масляных выключателей и приводов к ним. Также проводим ремонт и замену старых выключателей на выключатели после ревизии и ремонта.  Реализуем масляные выключатели: У-110, У-220, МГУ-110, ВМГ-10, ВМГ-133, ВМП-10, ВМПЭ-10, ВМПП-10, МГГ-10, С-35, ВПМ-10, ВПМП-10, ВМГ-110, ПС-10, ПЭВ-12, ППО-10, ШПЭ-35, ШПЭ-44У1, ШПЭ-44, ШПЭ-46, ПП-67, ПЭ-11, ППВ-10 и др. Многие позиции в наличии. Доставка до ТК в Екатеринбурге за наш счет.

1 руб.
Екатеринбург
Прокладка 8БП.155.022

Прокладка 8БП.155.022

Наше предприятие занимается изготовлением и поставкой запасных частей и ЗИПа для масляных выключателей и приводов к ним. Также проводим ремонт и замену старых выключателей на выключатели после ревизии и ремонта.  Реализуем масляные выключатели: У-110, У-220, МГУ-110, ВМГ-10, ВМГ-133, ВМП-10, ВМПЭ-10, ВМПП-10, МГГ-10, С-35, ВПМ-10, ВПМП-10, ВМГ-110, ПС-10, ПЭВ-12, ППО-10, ШПЭ-35, ШПЭ-44У1, ШПЭ-44, ШПЭ-46, ПП-67, ПЭ-11, ППВ-10 и др. Многие позиции в наличии. Доставка до ТК в Екатеринбурге за наш счет.

1 руб.
Екатеринбург
Манжета 8ВУ.778.001

Манжета 8ВУ.778.001

Наше предприятие занимается изготовлением и поставкой запасных частей и ЗИПа для масляных выключателей и приводов к ним. Также проводим ремонт и замену старых выключателей на выключатели после ревизии и ремонта.  Реализуем масляные выключатели: У-110, У-220, МГУ-110, ВМГ-10, ВМГ-133, ВМП-10, ВМПЭ-10, ВМПП-10, МГГ-10, С-35, ВПМ-10, ВПМП-10, ВМГ-110, ПС-10, ПЭВ-12, ППО-10, ШПЭ-35, ШПЭ-44У1, ШПЭ-44, ШПЭ-46, ПП-67, ПЭ-11, ППВ-10 и др. Многие позиции в наличии. Доставка до ТК в Екатеринбурге за наш счет.

1 руб.
Екатеринбург
Прокладка 8СЯ.372.053

Прокладка 8СЯ.372.053

Наше предприятие занимается изготовлением и поставкой запасных частей и ЗИПа для масляных выключателей и приводов к ним. Также проводим ремонт и замену старых выключателей на выключатели после ревизии и ремонта.  Реализуем масляные выключатели: У-110, У-220, МГУ-110, ВМГ-10, ВМГ-133, ВМП-10, ВМПЭ-10, ВМПП-10, МГГ-10, С-35, ВПМ-10, ВПМП-10, ВМГ-110, ПС-10, ПЭВ-12, ППО-10, ШПЭ-35, ШПЭ-44У1, ШПЭ-44, ШПЭ-46, ПП-67, ПЭ-11, ППВ-10 и др. Многие позиции в наличии. Доставка до ТК в Екатеринбурге за наш счет.

1 руб.
Екатеринбург
Манометр МТПСд-100-ОМ2

Манометр МТПСд-100-ОМ2

Наше предприятие занимается изготовлением и поставкой запасных частей и ЗИПа для масляных выключателей и приводов к ним. Также проводим ремонт и замену старых выключателей на выключатели после ревизии и ремонта.  Реализуем масляные выключатели: У-110, У-220, МГУ-110, ВМГ-10, ВМГ-133, ВМП-10, ВМПЭ-10, ВМПП-10, МГГ-10, С-35, ВПМ-10, ВПМП-10, ВМГ-110, ПС-10, ПЭВ-12, ППО-10, ШПЭ-35, ШПЭ-44У1, ШПЭ-44, ШПЭ-46, ПП-67, ПЭ-11, ППВ-10 и др. Многие позиции в наличии. Доставка до ТК в Екатеринбурге за наш счет.

1 руб.
Екатеринбург
Кольцо уплотнительное 8СЯ.370.439

Кольцо уплотнительное 8СЯ.370.439

Наше предприятие занимается изготовлением и поставкой запасных частей и ЗИПа для масляных выключателей и приводов к ним. Также проводим ремонт и замену старых выключателей на выключатели после ревизии и ремонта.  Реализуем масляные выключатели: У-110, У-220, МГУ-110, ВМГ-10, ВМГ-133, ВМП-10, ВМПЭ-10, ВМПП-10, МГГ-10, С-35, ВПМ-10, ВПМП-10, ВМГ-110, ПС-10, ПЭВ-12, ППО-10, ШПЭ-35, ШПЭ-44У1, ШПЭ-44, ШПЭ-46, ПП-67, ПЭ-11, ППВ-10 и др. Многие позиции в наличии. Доставка до ТК в Екатеринбурге за наш счет.

1 руб.
Екатеринбург
Трансформатор ТМГ 630/6/0,4 ревизия

Трансформатор ТМГ 630/6/0,4 ревизия

Трансформатор ТМГ 630/10/0,4; ТМГ 630/6/0,4; ТМ 630/10/0,4; ТМ 630/6/0,4; ТМЗ 630/10/0,4; ТМЗ 630/6/0,4 после ревизии можно приобрести в Березовский Завод Подстанция по выгодной цене, по отношению к стоимости новых трансформаторов, при этом получив гарантию. Ревизия проводится в заводских условиях, с соблюдением всех необходимых технологий. Наша компания имеет опыт проведения ревизии трансформатору ТДНС 10000/35. При проведении ревизии на нашем заводе в обязательном порядке подлежит замене все РТИ, изоляторы, метизы. Также проводится сушка активной части, регенирация и ваккумирование масла, чистка и покраска всех наружних поверхностей бака трансформатора, чистка шпилек, рейки переключателя, протяжка всех болтовых соединений активной части, и проведения лабораторных испытаний трансформатора. Трансформаторам, прошедшим ревизию на Березовском Заводе Подстанция, выдается паспорт, протокол испытания, лицензия, руководство по эксплуатации на трансформатор. Табличка устанавливается ремонтная, в которой указан год проведения ревизии.  Напряжение вторичной обмотки 0.4 кВ Расходомер нет Род установки Открытый воздуха Конструктивное исполнение Стержневое Мановакууметр нет Способ охлаждения обмоток Масляный Блок контроля температуры масла нет Напряжение первичной обмотки 6.0 кВ Потери холостого хода 1250.0 Вт Соединения обмоток Звезда Встроенные трансформаторы тока нет Напряжение короткого замыкания 5.5 % Материал изоляции пластин Жаростойкая пленка Ток холостого хода 1.7 % Количество обмоток трансформатора 2 Газовое реле нет Мощность 630.0 кВА Высота 1850.0 мм Ширина 1180.0 мм Масса 2800.0 кг Максимальный ток 910Производитель: Березовский Завод Подстанция Тип по назначению: Понижающий Минимальная рабочая температура: -45.0 град. Защита от перепадов напряжения: Нет Способ монтажа: На лапах Защитный кожух: Нет Тип трансформатора: Понижающий Максимальная рабочая температура: 45.0 град. Длина: 1620.0 мм Материал обмотки: Алюминий Количество фаз: 3 Потери короткого замыкания: 7600.0 Вт

250 000 руб.
Екатеринбург
Кольцо уплотнительное 8СЯ.370.438

Кольцо уплотнительное 8СЯ.370.438

Наше предприятие занимается изготовлением и поставкой запасных частей и ЗИПа для масляных выключателей и приводов к ним. Также проводим ремонт и замену старых выключателей на выключатели после ревизии и ремонта.  Реализуем масляные выключатели: У-110, У-220, МГУ-110, ВМГ-10, ВМГ-133, ВМП-10, ВМПЭ-10, ВМПП-10, МГГ-10, С-35, ВПМ-10, ВПМП-10, ВМГ-110, ПС-10, ПЭВ-12, ППО-10, ШПЭ-35, ШПЭ-44У1, ШПЭ-44, ШПЭ-46, ПП-67, ПЭ-11, ППВ-10 и др. Многие позиции в наличии. Доставка до ТК в Екатеринбурге за наш счет.

1 руб.
Екатеринбург