Наумов Сергей ООО "АРС Групп"

Объявления пользователя

Опора силовая фланцевая трубчатая СФ (Тип: СФ-400-11,0-01-ц)

Опора силовая фланцевая трубчатая СФ (Тип: СФ-400-11,0-01-ц)

Тип СФ Опоры СФ представляют собой фланцевые осветительные конструкции, которые имеют возможность воздушной подводки тяжелых узлов силовых изоляционных кабелей. Они используются для освещения крупных транспортных магистралей, для прокладки сетей электротранспорта, для установки разного рода осветительных приборов и рекламных щитов. Область применения: Улицы и дороги с низкой и средней интенсивностью движения, дворы, территории микрорайнов, АЗС, парковки, автостоянки, улицы и дороги с высокой и средней интенсивностью движения Опора силовая фланцевая трубчатая СФ Наименование опоры ** Закладной элемент фундамента Масса кг Установочное место кронштейна Р***, кг Размеры, мм H h1 h D1 D2 d n A Б СФ-300-8,5-01-ц ЗФ-20/8/Д360-2,5-б 308 О2 300 8500 2500 4000 219 168 М20 8 420 360 СФ-400-8,5-01-ц ЗФ-20/8/Д360-2,5-б 367 О2 400 8500 2500 4000 219 168 М20 8 420 360 СФ-400-9,0-01ц ЗФ-20/8/Д360-2,5-б 389 О2 400 9000 2500 4500 219 168 М20 8 420 360 СФ-400-11,0-01-ц ЗФ-24/8/Д360-2,5-б 421 О3 400 11000 2500 5250 219 168 М24 8 450 360 СФ-700-8,5-01-ц ЗФ-20/12/Д372-2,5-б 468 О3 700 8500 2500 3500 273 219 М20 12 420 372 СФ-700-9,0-01-ц ЗФ-20/12/Д372-2,5-б 489 О3 700 9000 2500 4000 273 219 М20 12 420 372 СФ-700-11,0-01-ц ЗФ-30/8/Д360-3,0-б 533 О3 600 11000 3000 5250 273 219 М30 8 460 360 * - указана полная рассчетная масса металлоконструкции опоры с учетом покрытия ** - способ подвода питающего кабеля: 01 - воздушный (базовое исполнение), 02, 05 - внутренний - внутренний (увеличение указанной массы на 5 кг) *** - максимальное горизонтальное усилие в верхней точке опоры H - высота опоры h1 - высота закладного элемента фундамента h - вылет верхней трубы D1 - диаметр нижней трубы D2 - диаметр верхней трубы d - номинальный диаметр резьбы крепежных изделий n - количество отверстий во фланце под крепежные изделия А - габаритный размер фланца Б - межосевое расстояние крепежных деталей во фланце Производство и изготовление: Конструкция опор такого типа состоит из сварных металлических элементов, сталь для которых подбирается в соответствии с особенностями эксплуатации оборудования. Поверхность опоры покрывается защитным слоем, созданным по способу горячего цинкования. Это обеспечивает защиту оборудования от коррозии и вредного воздействия окружающей среды, в результате чего срок службы опор достигает тридцати лет. Опоры могут комплектоваться хомутами, которые применяются при протяжке через них силовых кабелей. Для крепления осветительных приборов и щитов на них устанавливаются консольные кронштейны. Опоры СФ устанавливаются на железобетонный фундамент. Основание состоит из армированного бетона и металлического элемента, тип которого зависит от вида опоры. Если требуется, у опоры может быть установлена выносная консоль. Назначение: Опоры данной серии предназначены для освещения любых объектов с установкой кронштейнов с большим количеством светильников, подвеса проводов СИП и установки рекламных и иных конструкций. Опоры удовлетворяют требованиям прочности при воздействии нормированной боковой статической нагрузки. Установка и монтаж опор: Установка опор осуществляется на железобетонные фундаменты, имеющие в своем составе закладной элемент. Закладные элементы для данного типа опор выполняются трубными (ЗФ) или анкерными (ЗА, под запрос) и поставляются отдельно. Основные параметры фундамента определяются исходя из климатических условий района эксплуатации и параметров грунта с помощью расчета. Установка оборудования: На опору стандартно устанавливаются кронштейны со светильниками. При подземном подводе питающих кабелей (через окна в закладном элементе) предусмотрены ревизионные лючки с планками установки комплектующих и точка заземления (болт М8-М10). При воздушном подводе питания точка заземления выполняется на расстоянии 900..1000 мм ниже верх-него обреза опоры. Преимущества: В качестве материала используется высококачественный трубный прокат по ГОСТ 10704-81 ведущих российских производителей. Материал выбирается в зависимости от климатического района эксплуатации по СП 16.13330.2011, с учетом коэффициента запаса прочности; Антикоррозийное покрытие наносят методом горячего цинкования в полном соответствии с ГОСТ 9.307-89, что обеспечивает сохранность изделия в течение 25-30 лет эксплуатации; Ревизионное окно и фланец имеют специальное усиление, что обеспечивает повышенную прочность опоры; Возможен как воздушный, так и подземный подвод кабеля;Опора может быть обработана декоративным лакокрасочным покрытием (необходимо оговаривать при заказе, подробности узнавайте у поставщика продукции) в соответствии с требованиями ГОСТ 9.032. Примечание: Наличие дополнительных лючков и отверстий оговаривается отдельно при заказе и выполняется по индивидуальному проекту.Тип: Силовые Тип установки: Фланцевые Форма: Трубчатые Тип: СФ-400-11,0-01-ц Высота опоры: 8, 9, 10, 11 м По типу ствола опоры: Круглая По типу установки опоры: Фланцевая По типу нагрузки опоры: Силовая Материал: Металл Покрытие: Горячий цинк Возможность покраски: Да

101 000 руб.
Санкт-Петербург
Опора силовая фланцевая трубчатая СФ (Тип: СФ-400-9,0-01-ц)

Опора силовая фланцевая трубчатая СФ (Тип: СФ-400-9,0-01-ц)

Тип СФ Опоры СФ представляют собой фланцевые осветительные конструкции, которые имеют возможность воздушной подводки тяжелых узлов силовых изоляционных кабелей. Они используются для освещения крупных транспортных магистралей, для прокладки сетей электротранспорта, для установки разного рода осветительных приборов и рекламных щитов. Область применения: Улицы и дороги с низкой и средней интенсивностью движения, дворы, территории микрорайнов, АЗС, парковки, автостоянки, улицы и дороги с высокой и средней интенсивностью движения Опора силовая фланцевая трубчатая СФ Наименование опоры ** Закладной элемент фундамента Масса кг Установочное место кронштейна Р***, кг Размеры, мм H h1 h D1 D2 d n A Б СФ-300-8,5-01-ц ЗФ-20/8/Д360-2,5-б 308 О2 300 8500 2500 4000 219 168 М20 8 420 360 СФ-400-8,5-01-ц ЗФ-20/8/Д360-2,5-б 367 О2 400 8500 2500 4000 219 168 М20 8 420 360 СФ-400-9,0-01ц ЗФ-20/8/Д360-2,5-б 389 О2 400 9000 2500 4500 219 168 М20 8 420 360 СФ-400-11,0-01-ц ЗФ-24/8/Д360-2,5-б 421 О3 400 11000 2500 5250 219 168 М24 8 450 360 СФ-700-8,5-01-ц ЗФ-20/12/Д372-2,5-б 468 О3 700 8500 2500 3500 273 219 М20 12 420 372 СФ-700-9,0-01-ц ЗФ-20/12/Д372-2,5-б 489 О3 700 9000 2500 4000 273 219 М20 12 420 372 СФ-700-11,0-01-ц ЗФ-30/8/Д360-3,0-б 533 О3 600 11000 3000 5250 273 219 М30 8 460 360 * - указана полная рассчетная масса металлоконструкции опоры с учетом покрытия ** - способ подвода питающего кабеля: 01 - воздушный (базовое исполнение), 02, 05 - внутренний - внутренний (увеличение указанной массы на 5 кг) *** - максимальное горизонтальное усилие в верхней точке опоры H - высота опоры h1 - высота закладного элемента фундамента h - вылет верхней трубы D1 - диаметр нижней трубы D2 - диаметр верхней трубы d - номинальный диаметр резьбы крепежных изделий n - количество отверстий во фланце под крепежные изделия А - габаритный размер фланца Б - межосевое расстояние крепежных деталей во фланце Производство и изготовление: Конструкция опор такого типа состоит из сварных металлических элементов, сталь для которых подбирается в соответствии с особенностями эксплуатации оборудования. Поверхность опоры покрывается защитным слоем, созданным по способу горячего цинкования. Это обеспечивает защиту оборудования от коррозии и вредного воздействия окружающей среды, в результате чего срок службы опор достигает тридцати лет. Опоры могут комплектоваться хомутами, которые применяются при протяжке через них силовых кабелей. Для крепления осветительных приборов и щитов на них устанавливаются консольные кронштейны. Опоры СФ устанавливаются на железобетонный фундамент. Основание состоит из армированного бетона и металлического элемента, тип которого зависит от вида опоры. Если требуется, у опоры может быть установлена выносная консоль. Назначение: Опоры данной серии предназначены для освещения любых объектов с установкой кронштейнов с большим количеством светильников, подвеса проводов СИП и установки рекламных и иных конструкций. Опоры удовлетворяют требованиям прочности при воздействии нормированной боковой статической нагрузки. Установка и монтаж опор: Установка опор осуществляется на железобетонные фундаменты, имеющие в своем составе закладной элемент. Закладные элементы для данного типа опор выполняются трубными (ЗФ) или анкерными (ЗА, под запрос) и поставляются отдельно. Основные параметры фундамента определяются исходя из климатических условий района эксплуатации и параметров грунта с помощью расчета. Установка оборудования: На опору стандартно устанавливаются кронштейны со светильниками. При подземном подводе питающих кабелей (через окна в закладном элементе) предусмотрены ревизионные лючки с планками установки комплектующих и точка заземления (болт М8-М10). При воздушном подводе питания точка заземления выполняется на расстоянии 900..1000 мм ниже верх-него обреза опоры. Преимущества: В качестве материала используется высококачественный трубный прокат по ГОСТ 10704-81 ведущих российских производителей. Материал выбирается в зависимости от климатического района эксплуатации по СП 16.13330.2011, с учетом коэффициента запаса прочности; Антикоррозийное покрытие наносят методом горячего цинкования в полном соответствии с ГОСТ 9.307-89, что обеспечивает сохранность изделия в течение 25-30 лет эксплуатации; Ревизионное окно и фланец имеют специальное усиление, что обеспечивает повышенную прочность опоры; Возможен как воздушный, так и подземный подвод кабеля;Опора может быть обработана декоративным лакокрасочным покрытием (необходимо оговаривать при заказе, подробности узнавайте у поставщика продукции) в соответствии с требованиями ГОСТ 9.032. Примечание: Наличие дополнительных лючков и отверстий оговаривается отдельно при заказе и выполняется по индивидуальному проекту.Тип: Силовые Тип установки: Фланцевые Форма: Трубчатые Тип: СФ-400-9,0-01-ц Высота опоры: 8, 9, 10, 11 м По типу ствола опоры: Круглая По типу установки опоры: Фланцевая По типу нагрузки опоры: Силовая Материал: Металл Покрытие: Горячий цинк Возможность покраски: Да

65 000 руб.
Санкт-Петербург
Опора ОТ1Ф-/1.5/2.0/3.0/3.2/3.5/4.0/4.5/5.0/5.5/6.0/ парковая фланцевая (Тип: ОТ1Ф-2,5)

Опора ОТ1Ф-/1.5/2.0/3.0/3.2/3.5/4.0/4.5/5.0/5.5/6.0/ парковая фланцевая (Тип: ОТ1Ф-2,5)

Характеристики опор ОТ1Ф-H Обозначение Диаметры труб Высота надземной части Размер опорного фланца Расчетная масса Серия ОТ1Ф-H D/d, мм H, м AxB, мм m, кг ОТ1ф-2,0 108/76 2 250х250 25,3 ОТ1ф-2,5 108/76 2,5 250х250 28,5 ОТ1ф-3,0 108/76 3 250х250 31,7 ОТ1ф-3,2 108/76 3,2 250х250 32,8 ОТ1ф-3,5 108/76 3,5 250х250 34,8 ОТ1ф-4,0 108/76 4 250х250 37,8 ОТ1ф-4,5 108/76 4,5 250х250 41 ОТ1ф-5,0 108/76 5 250х250 45 ОТ1ф-5,5 108/76 5,5 250х250 50 ОТ1ф-6,0 108/76 6 250х250 55 Описание: Опоры ОТ1Ф-H предназначены для декоративного освещения любых объектов. Светильники на опоры могут устанавливаться напрямую или с помощью кронштейна. Категорически не допускается использование опор данной серии в качестве силовых. На опоры типа ОТ1Ф-H предусмотрена установка торшерных светильников и декоративного кронштейна. Дополнительно к указанному оборудованию возможна установка одного консольного светильника на выносном кронштейне. Покрытие Горячее цинкование по ГОСТ 9.307-89, порошковое полимерное или лакокрасочное покрытия в цвета RAL. Установка, монтаж опор ОТ1Ф-H Монтаж опор осуществляется на заранее установленные закладные элементы фундамента. Закладные элементы фундамента монтируютя в грунт, глубина заложения подошвы фундамента не должна быть менее глубины промерзания грунта в соответствующем районе, прокладывается электросеть, заливкой бетоном (бетон класса В 15). Основные параметры фундамента определяются исходя из климатических условий района эксплуатации и параметров грунта с помощью расчета.Тип установки: Фланцевые Форма: Трубчатые Тип: ОТ1Ф-2,5 Высота: 1,5-6,0 м По типу ствола опоры: Трубчатая По типу установки опоры: Фланцевая Материал: Металл Покрытие: Горячий цинк Нижний ∅: 108 мм Верхний ∅: 76 мм Возможность покраски: Да

6 888 руб.
Санкт-Петербург
Опора ОТ1Ф-/1.5/2.0/3.0/3.2/3.5/4.0/4.5/5.0/5.5/6.0/ парковая фланцевая (Тип: ОТ1Ф-2,0)

Опора ОТ1Ф-/1.5/2.0/3.0/3.2/3.5/4.0/4.5/5.0/5.5/6.0/ парковая фланцевая (Тип: ОТ1Ф-2,0)

Характеристики опор ОТ1Ф-H Обозначение Диаметры труб Высота надземной части Размер опорного фланца Расчетная масса Серия ОТ1Ф-H D/d, мм H, м AxB, мм m, кг ОТ1ф-2,0 108/76 2 250х250 25,3 ОТ1ф-2,5 108/76 2,5 250х250 28,5 ОТ1ф-3,0 108/76 3 250х250 31,7 ОТ1ф-3,2 108/76 3,2 250х250 32,8 ОТ1ф-3,5 108/76 3,5 250х250 34,8 ОТ1ф-4,0 108/76 4 250х250 37,8 ОТ1ф-4,5 108/76 4,5 250х250 41 ОТ1ф-5,0 108/76 5 250х250 45 ОТ1ф-5,5 108/76 5,5 250х250 50 ОТ1ф-6,0 108/76 6 250х250 55 Описание: Опоры ОТ1Ф-H предназначены для декоративного освещения любых объектов. Светильники на опоры могут устанавливаться напрямую или с помощью кронштейна. Категорически не допускается использование опор данной серии в качестве силовых. На опоры типа ОТ1Ф-H предусмотрена установка торшерных светильников и декоративного кронштейна. Дополнительно к указанному оборудованию возможна установка одного консольного светильника на выносном кронштейне. Покрытие Горячее цинкование по ГОСТ 9.307-89, порошковое полимерное или лакокрасочное покрытия в цвета RAL. Установка, монтаж опор ОТ1Ф-H Монтаж опор осуществляется на заранее установленные закладные элементы фундамента. Закладные элементы фундамента монтируютя в грунт, глубина заложения подошвы фундамента не должна быть менее глубины промерзания грунта в соответствующем районе, прокладывается электросеть, заливкой бетоном (бетон класса В 15). Основные параметры фундамента определяются исходя из климатических условий района эксплуатации и параметров грунта с помощью расчета.Тип установки: Фланцевые Форма: Трубчатые Тип: ОТ1Ф-2,0 Высота: 1,5-6,0 м По типу ствола опоры: Трубчатая По типу установки опоры: Фланцевая Материал: Металл Покрытие: Горячий цинк Нижний ∅: 108 мм Верхний ∅: 76 мм Возможность покраски: Да

6 720 руб.
Санкт-Петербург
Опора силовая фланцевая трубчатая СФ (Тип: СФ-700-9,0-02-ц)

Опора силовая фланцевая трубчатая СФ (Тип: СФ-700-9,0-02-ц)

Тип СФ Опоры СФ представляют собой фланцевые осветительные конструкции, которые имеют возможность воздушной подводки тяжелых узлов силовых изоляционных кабелей. Они используются для освещения крупных транспортных магистралей, для прокладки сетей электротранспорта, для установки разного рода осветительных приборов и рекламных щитов. Область применения: Улицы и дороги с низкой и средней интенсивностью движения, дворы, территории микрорайнов, АЗС, парковки, автостоянки, улицы и дороги с высокой и средней интенсивностью движения Опора силовая фланцевая трубчатая СФ Наименование опоры ** Закладной элемент фундамента Масса кг Установочное место кронштейна Р***, кг Размеры, мм H h1 h D1 D2 d n A Б СФ-300-8,5-01-ц ЗФ-20/8/Д360-2,5-б 308 О2 300 8500 2500 4000 219 168 М20 8 420 360 СФ-400-8,5-01-ц ЗФ-20/8/Д360-2,5-б 367 О2 400 8500 2500 4000 219 168 М20 8 420 360 СФ-400-9,0-01ц ЗФ-20/8/Д360-2,5-б 389 О2 400 9000 2500 4500 219 168 М20 8 420 360 СФ-400-11,0-01-ц ЗФ-24/8/Д360-2,5-б 421 О3 400 11000 2500 5250 219 168 М24 8 450 360 СФ-700-8,5-01-ц ЗФ-20/12/Д372-2,5-б 468 О3 700 8500 2500 3500 273 219 М20 12 420 372 СФ-700-9,0-01-ц ЗФ-20/12/Д372-2,5-б 489 О3 700 9000 2500 4000 273 219 М20 12 420 372 СФ-700-11,0-01-ц ЗФ-30/8/Д360-3,0-б 533 О3 600 11000 3000 5250 273 219 М30 8 460 360 * - указана полная рассчетная масса металлоконструкции опоры с учетом покрытия ** - способ подвода питающего кабеля: 01 - воздушный (базовое исполнение), 02, 05 - внутренний - внутренний (увеличение указанной массы на 5 кг) *** - максимальное горизонтальное усилие в верхней точке опоры H - высота опоры h1 - высота закладного элемента фундамента h - вылет верхней трубы D1 - диаметр нижней трубы D2 - диаметр верхней трубы d - номинальный диаметр резьбы крепежных изделий n - количество отверстий во фланце под крепежные изделия А - габаритный размер фланца Б - межосевое расстояние крепежных деталей во фланце Производство и изготовление: Конструкция опор такого типа состоит из сварных металлических элементов, сталь для которых подбирается в соответствии с особенностями эксплуатации оборудования. Поверхность опоры покрывается защитным слоем, созданным по способу горячего цинкования. Это обеспечивает защиту оборудования от коррозии и вредного воздействия окружающей среды, в результате чего срок службы опор достигает тридцати лет. Опоры могут комплектоваться хомутами, которые применяются при протяжке через них силовых кабелей. Для крепления осветительных приборов и щитов на них устанавливаются консольные кронштейны. Опоры СФ устанавливаются на железобетонный фундамент. Основание состоит из армированного бетона и металлического элемента, тип которого зависит от вида опоры. Если требуется, у опоры может быть установлена выносная консоль. Назначение: Опоры данной серии предназначены для освещения любых объектов с установкой кронштейнов с большим количеством светильников, подвеса проводов СИП и установки рекламных и иных конструкций. Опоры удовлетворяют требованиям прочности при воздействии нормированной боковой статической нагрузки. Установка и монтаж опор: Установка опор осуществляется на железобетонные фундаменты, имеющие в своем составе закладной элемент. Закладные элементы для данного типа опор выполняются трубными (ЗФ) или анкерными (ЗА, под запрос) и поставляются отдельно. Основные параметры фундамента определяются исходя из климатических условий района эксплуатации и параметров грунта с помощью расчета. Установка оборудования: На опору стандартно устанавливаются кронштейны со светильниками. При подземном подводе питающих кабелей (через окна в закладном элементе) предусмотрены ревизионные лючки с планками установки комплектующих и точка заземления (болт М8-М10). При воздушном подводе питания точка заземления выполняется на расстоянии 900..1000 мм ниже верх-него обреза опоры. Преимущества: В качестве материала используется высококачественный трубный прокат по ГОСТ 10704-81 ведущих российских производителей. Материал выбирается в зависимости от климатического района эксплуатации по СП 16.13330.2011, с учетом коэффициента запаса прочности; Антикоррозийное покрытие наносят методом горячего цинкования в полном соответствии с ГОСТ 9.307-89, что обеспечивает сохранность изделия в течение 25-30 лет эксплуатации; Ревизионное окно и фланец имеют специальное усиление, что обеспечивает повышенную прочность опоры; Возможен как воздушный, так и подземный подвод кабеля;Опора может быть обработана декоративным лакокрасочным покрытием (необходимо оговаривать при заказе, подробности узнавайте у поставщика продукции) в соответствии с требованиями ГОСТ 9.032. Примечание: Наличие дополнительных лючков и отверстий оговаривается отдельно при заказе и выполняется по индивидуальному проекту.Тип: Силовые Тип установки: Фланцевые Форма: Трубчатые Тип: СФ-700-9,0-02-ц Высота опоры: 8, 9, 10, 11 м По типу ствола опоры: Круглая По типу установки опоры: Фланцевая По типу нагрузки опоры: Силовая Материал: Металл Покрытие: Горячий цинк Возможность покраски: Да

81 750 руб.
Санкт-Петербург
Опора силовая фланцевая трубчатая СФ (Тип: СФ-700-8,5-01-ц)

Опора силовая фланцевая трубчатая СФ (Тип: СФ-700-8,5-01-ц)

Тип СФ Опоры СФ представляют собой фланцевые осветительные конструкции, которые имеют возможность воздушной подводки тяжелых узлов силовых изоляционных кабелей. Они используются для освещения крупных транспортных магистралей, для прокладки сетей электротранспорта, для установки разного рода осветительных приборов и рекламных щитов. Область применения: Улицы и дороги с низкой и средней интенсивностью движения, дворы, территории микрорайнов, АЗС, парковки, автостоянки, улицы и дороги с высокой и средней интенсивностью движения Опора силовая фланцевая трубчатая СФ Наименование опоры ** Закладной элемент фундамента Масса кг Установочное место кронштейна Р***, кг Размеры, мм H h1 h D1 D2 d n A Б СФ-300-8,5-01-ц ЗФ-20/8/Д360-2,5-б 308 О2 300 8500 2500 4000 219 168 М20 8 420 360 СФ-400-8,5-01-ц ЗФ-20/8/Д360-2,5-б 367 О2 400 8500 2500 4000 219 168 М20 8 420 360 СФ-400-9,0-01ц ЗФ-20/8/Д360-2,5-б 389 О2 400 9000 2500 4500 219 168 М20 8 420 360 СФ-400-11,0-01-ц ЗФ-24/8/Д360-2,5-б 421 О3 400 11000 2500 5250 219 168 М24 8 450 360 СФ-700-8,5-01-ц ЗФ-20/12/Д372-2,5-б 468 О3 700 8500 2500 3500 273 219 М20 12 420 372 СФ-700-9,0-01-ц ЗФ-20/12/Д372-2,5-б 489 О3 700 9000 2500 4000 273 219 М20 12 420 372 СФ-700-11,0-01-ц ЗФ-30/8/Д360-3,0-б 533 О3 600 11000 3000 5250 273 219 М30 8 460 360 * - указана полная рассчетная масса металлоконструкции опоры с учетом покрытия ** - способ подвода питающего кабеля: 01 - воздушный (базовое исполнение), 02, 05 - внутренний - внутренний (увеличение указанной массы на 5 кг) *** - максимальное горизонтальное усилие в верхней точке опоры H - высота опоры h1 - высота закладного элемента фундамента h - вылет верхней трубы D1 - диаметр нижней трубы D2 - диаметр верхней трубы d - номинальный диаметр резьбы крепежных изделий n - количество отверстий во фланце под крепежные изделия А - габаритный размер фланца Б - межосевое расстояние крепежных деталей во фланце Производство и изготовление: Конструкция опор такого типа состоит из сварных металлических элементов, сталь для которых подбирается в соответствии с особенностями эксплуатации оборудования. Поверхность опоры покрывается защитным слоем, созданным по способу горячего цинкования. Это обеспечивает защиту оборудования от коррозии и вредного воздействия окружающей среды, в результате чего срок службы опор достигает тридцати лет. Опоры могут комплектоваться хомутами, которые применяются при протяжке через них силовых кабелей. Для крепления осветительных приборов и щитов на них устанавливаются консольные кронштейны. Опоры СФ устанавливаются на железобетонный фундамент. Основание состоит из армированного бетона и металлического элемента, тип которого зависит от вида опоры. Если требуется, у опоры может быть установлена выносная консоль. Назначение: Опоры данной серии предназначены для освещения любых объектов с установкой кронштейнов с большим количеством светильников, подвеса проводов СИП и установки рекламных и иных конструкций. Опоры удовлетворяют требованиям прочности при воздействии нормированной боковой статической нагрузки. Установка и монтаж опор: Установка опор осуществляется на железобетонные фундаменты, имеющие в своем составе закладной элемент. Закладные элементы для данного типа опор выполняются трубными (ЗФ) или анкерными (ЗА, под запрос) и поставляются отдельно. Основные параметры фундамента определяются исходя из климатических условий района эксплуатации и параметров грунта с помощью расчета. Установка оборудования: На опору стандартно устанавливаются кронштейны со светильниками. При подземном подводе питающих кабелей (через окна в закладном элементе) предусмотрены ревизионные лючки с планками установки комплектующих и точка заземления (болт М8-М10). При воздушном подводе питания точка заземления выполняется на расстоянии 900..1000 мм ниже верх-него обреза опоры. Преимущества: В качестве материала используется высококачественный трубный прокат по ГОСТ 10704-81 ведущих российских производителей. Материал выбирается в зависимости от климатического района эксплуатации по СП 16.13330.2011, с учетом коэффициента запаса прочности; Антикоррозийное покрытие наносят методом горячего цинкования в полном соответствии с ГОСТ 9.307-89, что обеспечивает сохранность изделия в течение 25-30 лет эксплуатации; Ревизионное окно и фланец имеют специальное усиление, что обеспечивает повышенную прочность опоры; Возможен как воздушный, так и подземный подвод кабеля;Опора может быть обработана декоративным лакокрасочным покрытием (необходимо оговаривать при заказе, подробности узнавайте у поставщика продукции) в соответствии с требованиями ГОСТ 9.032. Примечание: Наличие дополнительных лючков и отверстий оговаривается отдельно при заказе и выполняется по индивидуальному проекту.Тип: Силовые Тип установки: Фланцевые Форма: Трубчатые Тип: СФ-700-8,5-01-ц Высота опоры: 8, 9, 10, 11 м По типу ствола опоры: Круглая По типу установки опоры: Фланцевая По типу нагрузки опоры: Силовая Материал: Металл Покрытие: Горячий цинк Возможность покраски: Да

79 750 руб.
Санкт-Петербург
Опора силовая фланцевая трубчатая СФ (Тип: СФ-400-8,5-01-ц)

Опора силовая фланцевая трубчатая СФ (Тип: СФ-400-8,5-01-ц)

Тип СФ Опоры СФ представляют собой фланцевые осветительные конструкции, которые имеют возможность воздушной подводки тяжелых узлов силовых изоляционных кабелей. Они используются для освещения крупных транспортных магистралей, для прокладки сетей электротранспорта, для установки разного рода осветительных приборов и рекламных щитов. Область применения: Улицы и дороги с низкой и средней интенсивностью движения, дворы, территории микрорайнов, АЗС, парковки, автостоянки, улицы и дороги с высокой и средней интенсивностью движения Опора силовая фланцевая трубчатая СФ Наименование опоры ** Закладной элемент фундамента Масса кг Установочное место кронштейна Р***, кг Размеры, мм H h1 h D1 D2 d n A Б СФ-300-8,5-01-ц ЗФ-20/8/Д360-2,5-б 308 О2 300 8500 2500 4000 219 168 М20 8 420 360 СФ-400-8,5-01-ц ЗФ-20/8/Д360-2,5-б 367 О2 400 8500 2500 4000 219 168 М20 8 420 360 СФ-400-9,0-01ц ЗФ-20/8/Д360-2,5-б 389 О2 400 9000 2500 4500 219 168 М20 8 420 360 СФ-400-11,0-01-ц ЗФ-24/8/Д360-2,5-б 421 О3 400 11000 2500 5250 219 168 М24 8 450 360 СФ-700-8,5-01-ц ЗФ-20/12/Д372-2,5-б 468 О3 700 8500 2500 3500 273 219 М20 12 420 372 СФ-700-9,0-01-ц ЗФ-20/12/Д372-2,5-б 489 О3 700 9000 2500 4000 273 219 М20 12 420 372 СФ-700-11,0-01-ц ЗФ-30/8/Д360-3,0-б 533 О3 600 11000 3000 5250 273 219 М30 8 460 360 * - указана полная рассчетная масса металлоконструкции опоры с учетом покрытия ** - способ подвода питающего кабеля: 01 - воздушный (базовое исполнение), 02, 05 - внутренний - внутренний (увеличение указанной массы на 5 кг) *** - максимальное горизонтальное усилие в верхней точке опоры H - высота опоры h1 - высота закладного элемента фундамента h - вылет верхней трубы D1 - диаметр нижней трубы D2 - диаметр верхней трубы d - номинальный диаметр резьбы крепежных изделий n - количество отверстий во фланце под крепежные изделия А - габаритный размер фланца Б - межосевое расстояние крепежных деталей во фланце Производство и изготовление: Конструкция опор такого типа состоит из сварных металлических элементов, сталь для которых подбирается в соответствии с особенностями эксплуатации оборудования. Поверхность опоры покрывается защитным слоем, созданным по способу горячего цинкования. Это обеспечивает защиту оборудования от коррозии и вредного воздействия окружающей среды, в результате чего срок службы опор достигает тридцати лет. Опоры могут комплектоваться хомутами, которые применяются при протяжке через них силовых кабелей. Для крепления осветительных приборов и щитов на них устанавливаются консольные кронштейны. Опоры СФ устанавливаются на железобетонный фундамент. Основание состоит из армированного бетона и металлического элемента, тип которого зависит от вида опоры. Если требуется, у опоры может быть установлена выносная консоль. Назначение: Опоры данной серии предназначены для освещения любых объектов с установкой кронштейнов с большим количеством светильников, подвеса проводов СИП и установки рекламных и иных конструкций. Опоры удовлетворяют требованиям прочности при воздействии нормированной боковой статической нагрузки. Установка и монтаж опор: Установка опор осуществляется на железобетонные фундаменты, имеющие в своем составе закладной элемент. Закладные элементы для данного типа опор выполняются трубными (ЗФ) или анкерными (ЗА, под запрос) и поставляются отдельно. Основные параметры фундамента определяются исходя из климатических условий района эксплуатации и параметров грунта с помощью расчета. Установка оборудования: На опору стандартно устанавливаются кронштейны со светильниками. При подземном подводе питающих кабелей (через окна в закладном элементе) предусмотрены ревизионные лючки с планками установки комплектующих и точка заземления (болт М8-М10). При воздушном подводе питания точка заземления выполняется на расстоянии 900..1000 мм ниже верх-него обреза опоры. Преимущества: В качестве материала используется высококачественный трубный прокат по ГОСТ 10704-81 ведущих российских производителей. Материал выбирается в зависимости от климатического района эксплуатации по СП 16.13330.2011, с учетом коэффициента запаса прочности; Антикоррозийное покрытие наносят методом горячего цинкования в полном соответствии с ГОСТ 9.307-89, что обеспечивает сохранность изделия в течение 25-30 лет эксплуатации; Ревизионное окно и фланец имеют специальное усиление, что обеспечивает повышенную прочность опоры; Возможен как воздушный, так и подземный подвод кабеля;Опора может быть обработана декоративным лакокрасочным покрытием (необходимо оговаривать при заказе, подробности узнавайте у поставщика продукции) в соответствии с требованиями ГОСТ 9.032. Примечание: Наличие дополнительных лючков и отверстий оговаривается отдельно при заказе и выполняется по индивидуальному проекту.Тип: Силовые Тип установки: Фланцевые Форма: Трубчатые Тип: СФ-400-8,5-01-ц Высота опоры: 8, 9, 10, 11 м По типу ствола опоры: Круглая По типу установки опоры: Фланцевая По типу нагрузки опоры: Силовая Материал: Металл Покрытие: Горячий цинк Возможность покраски: Да

60 000 руб.
Санкт-Петербург
Опора ОТП-/2.0/2.5/3.0/3.2/3.5/3.7/-/0.8/1.0/-108-57 трубчатая прямостоечная (Тип: ОТП-3,7-1,0-108-57)

Опора ОТП-/2.0/2.5/3.0/3.2/3.5/3.7/-/0.8/1.0/-108-57 трубчатая прямостоечная (Тип: ОТП-3,7-1,0-108-57)

Характеристики опор трубчатых несиловых прямостоечных ОТП-108-57 Обозначение опоры D d Н H1 Масса ОТП-108-57 мм. мм. м. м. кг. ОТ(108/57)-1,5-0,8 108 57 1,5 0,8 22 ОТ(108/57)-2,0-0,8 108 57 2 0,8 24 ОТ(108/57)-2,5-0,8 108 57 2,5 0,8 29 ОТ(108/57)-3,0-0,8 108 57 3 0,8 32 ОТ(108/57)-3,2-0,8 108 57 3,2 0,8 34 ОТ(108/57)-3,5-0,8 108 57 3,5 0,8 37 ОТ(108/57)-3,7-1,0 108 57 3,7 1 39 Расшифровка условных обозначений ОТП-108-57 ОТП-опора трубчатая п-прямостоечная Н-высота надземной части опоры,м Н1-глубина подземной части опоры, м D-108 диаметр нижней трубы опоры, мм d-57 диаметр верхней трубы опоры, мм Описание: Опоры трубчатые несиловые фланцевые ОТП-108-57 предназначены для освещения различных парков, скверов, исторических, культурных территорий и зон отдыха. Данный вид опор предусматривает прокладку к опорам освещения питающего электрокабеля исключительно подземным путем, не допускается применять в линиях с воздушным подводом кабеля. Несиловая опора в силу своей конструкции и технических особенностей отличается относительно легким весом, небольшими габаритами, мобильностью в установке. Назначение: Опоры ОТП-108-57 предназначены для декоративного освещения любых объектов. Светильники на опоры могут устанавливаться напрямую или с помощью кронштейна. Категорически не допускается использование опор данной серии в качестве силовых. Трубчатые опоры типа ОТП-108-57. На данный тип опоры предусмотрена установка осветительного прибора венчающего типа (торшерного светильника). Оборудование размещается непосредственно на верхнюю часть опоры или крепится с помощью декоративного кронштейна. Способ монтажа: Для фланцевых трубчатых опор ОТП-108-57 сначала монтируется фундаментный блок (закладная деталь) в заранее подготовленный котлован на глубину от 0,8 до 2 м и бетонируется, далее при помощи фланцевого соединения на болтах крепится опора. Более подробную информацию о монтаже фундаментных блоков смотрите на странице 97. Способ подвода питающего кабеля: Для несиловых трубчатых опор предусмотрена исключительно подземная подводка кабеля. В подземной части опоры либо фундаментного блока для осуществления ввода и вывода кабеля изготавливаются два окна в параллельных плоскостях. В надземной части опоры расположен ревизионный лючок для обслуживания. Антикоррозийное покрытие: Горячее цинкование. Лакокрасочное покрытие. Комбинированное покрытие: горячее цинкование + лакокрасочное покрытие.Тип установки: Прямостоечные Форма: Трубчатые Тип: ОТП-3,7-1,0-108-57 Высота опоры: 1.5, 2, 2.5, 3, 3.2, 3.5, 3.7, 4 м По типу ствола опоры: Трубчатая По типу установки опоры: Прямостоечная По типу нагрузки опоры: Несиловая Материал: Металл Покрытие: Горячий цинк, Порошковая краска Нижний ∅: 108 мм Верхний ∅: 57 мм Возможность покраски: Да

8 208 руб.
Санкт-Петербург
Опора ОТП-/2.0/2.5/3.0/3.2/3.5/3.7/-/0.8/1.0/-108-57 трубчатая прямостоечная (Тип: ОТП-3,5-0,8-108-57)

Опора ОТП-/2.0/2.5/3.0/3.2/3.5/3.7/-/0.8/1.0/-108-57 трубчатая прямостоечная (Тип: ОТП-3,5-0,8-108-57)

Характеристики опор трубчатых несиловых прямостоечных ОТП-108-57 Обозначение опоры D d Н H1 Масса ОТП-108-57 мм. мм. м. м. кг. ОТ(108/57)-1,5-0,8 108 57 1,5 0,8 22 ОТ(108/57)-2,0-0,8 108 57 2 0,8 24 ОТ(108/57)-2,5-0,8 108 57 2,5 0,8 29 ОТ(108/57)-3,0-0,8 108 57 3 0,8 32 ОТ(108/57)-3,2-0,8 108 57 3,2 0,8 34 ОТ(108/57)-3,5-0,8 108 57 3,5 0,8 37 ОТ(108/57)-3,7-1,0 108 57 3,7 1 39 Расшифровка условных обозначений ОТП-108-57 ОТП-опора трубчатая п-прямостоечная Н-высота надземной части опоры,м Н1-глубина подземной части опоры, м D-108 диаметр нижней трубы опоры, мм d-57 диаметр верхней трубы опоры, мм Описание: Опоры трубчатые несиловые фланцевые ОТП-108-57 предназначены для освещения различных парков, скверов, исторических, культурных территорий и зон отдыха. Данный вид опор предусматривает прокладку к опорам освещения питающего электрокабеля исключительно подземным путем, не допускается применять в линиях с воздушным подводом кабеля. Несиловая опора в силу своей конструкции и технических особенностей отличается относительно легким весом, небольшими габаритами, мобильностью в установке. Назначение: Опоры ОТП-108-57 предназначены для декоративного освещения любых объектов. Светильники на опоры могут устанавливаться напрямую или с помощью кронштейна. Категорически не допускается использование опор данной серии в качестве силовых. Трубчатые опоры типа ОТП-108-57. На данный тип опоры предусмотрена установка осветительного прибора венчающего типа (торшерного светильника). Оборудование размещается непосредственно на верхнюю часть опоры или крепится с помощью декоративного кронштейна. Способ монтажа: Для фланцевых трубчатых опор ОТП-108-57 сначала монтируется фундаментный блок (закладная деталь) в заранее подготовленный котлован на глубину от 0,8 до 2 м и бетонируется, далее при помощи фланцевого соединения на болтах крепится опора. Более подробную информацию о монтаже фундаментных блоков смотрите на странице 97. Способ подвода питающего кабеля: Для несиловых трубчатых опор предусмотрена исключительно подземная подводка кабеля. В подземной части опоры либо фундаментного блока для осуществления ввода и вывода кабеля изготавливаются два окна в параллельных плоскостях. В надземной части опоры расположен ревизионный лючок для обслуживания. Антикоррозийное покрытие: Горячее цинкование. Лакокрасочное покрытие. Комбинированное покрытие: горячее цинкование + лакокрасочное покрытие.Тип установки: Прямостоечные Форма: Трубчатые Тип: ОТП-3,5-0,8-108-57 Высота опоры: 1.5, 2, 2.5, 3, 3.2, 3.5, 3.7, 4 м По типу ствола опоры: Трубчатая По типу установки опоры: Прямостоечная По типу нагрузки опоры: Несиловая Материал: Металл Покрытие: Горячий цинк, Порошковая краска Нижний ∅: 108 мм Верхний ∅: 57 мм Возможность покраски: Да

7 866 руб.
Санкт-Петербург
Опора ОТП-/2.0/2.5/3.0/3.2/3.5/3.7/-/0.8/1.0/-108-57 трубчатая прямостоечная (Тип: ОТП-3,2-0,8-108-57)

Опора ОТП-/2.0/2.5/3.0/3.2/3.5/3.7/-/0.8/1.0/-108-57 трубчатая прямостоечная (Тип: ОТП-3,2-0,8-108-57)

Характеристики опор трубчатых несиловых прямостоечных ОТП-108-57 Обозначение опоры D d Н H1 Масса ОТП-108-57 мм. мм. м. м. кг. ОТ(108/57)-1,5-0,8 108 57 1,5 0,8 22 ОТ(108/57)-2,0-0,8 108 57 2 0,8 24 ОТ(108/57)-2,5-0,8 108 57 2,5 0,8 29 ОТ(108/57)-3,0-0,8 108 57 3 0,8 32 ОТ(108/57)-3,2-0,8 108 57 3,2 0,8 34 ОТ(108/57)-3,5-0,8 108 57 3,5 0,8 37 ОТ(108/57)-3,7-1,0 108 57 3,7 1 39 Расшифровка условных обозначений ОТП-108-57 ОТП-опора трубчатая п-прямостоечная Н-высота надземной части опоры,м Н1-глубина подземной части опоры, м D-108 диаметр нижней трубы опоры, мм d-57 диаметр верхней трубы опоры, мм Описание: Опоры трубчатые несиловые фланцевые ОТП-108-57 предназначены для освещения различных парков, скверов, исторических, культурных территорий и зон отдыха. Данный вид опор предусматривает прокладку к опорам освещения питающего электрокабеля исключительно подземным путем, не допускается применять в линиях с воздушным подводом кабеля. Несиловая опора в силу своей конструкции и технических особенностей отличается относительно легким весом, небольшими габаритами, мобильностью в установке. Назначение: Опоры ОТП-108-57 предназначены для декоративного освещения любых объектов. Светильники на опоры могут устанавливаться напрямую или с помощью кронштейна. Категорически не допускается использование опор данной серии в качестве силовых. Трубчатые опоры типа ОТП-108-57. На данный тип опоры предусмотрена установка осветительного прибора венчающего типа (торшерного светильника). Оборудование размещается непосредственно на верхнюю часть опоры или крепится с помощью декоративного кронштейна. Способ монтажа: Для фланцевых трубчатых опор ОТП-108-57 сначала монтируется фундаментный блок (закладная деталь) в заранее подготовленный котлован на глубину от 0,8 до 2 м и бетонируется, далее при помощи фланцевого соединения на болтах крепится опора. Более подробную информацию о монтаже фундаментных блоков смотрите на странице 97. Способ подвода питающего кабеля: Для несиловых трубчатых опор предусмотрена исключительно подземная подводка кабеля. В подземной части опоры либо фундаментного блока для осуществления ввода и вывода кабеля изготавливаются два окна в параллельных плоскостях. В надземной части опоры расположен ревизионный лючок для обслуживания. Антикоррозийное покрытие: Горячее цинкование. Лакокрасочное покрытие. Комбинированное покрытие: горячее цинкование + лакокрасочное покрытие.Тип установки: Прямостоечные Форма: Трубчатые Тип: ОТП-3,2-0,8-108-57 Высота опоры: 1.5, 2, 2.5, 3, 3.2, 3.5, 3.7, 4 м По типу ствола опоры: Трубчатая По типу установки опоры: Прямостоечная По типу нагрузки опоры: Несиловая Материал: Металл Покрытие: Горячий цинк, Порошковая краска Нижний ∅: 108 мм Верхний ∅: 57 мм Возможность покраски: Да

7 524 руб.
Санкт-Петербург
Опора ОТП-/2.0/2.5/3.0/3.2/3.5/3.7/-/0.8/1.0/-108-57 трубчатая прямостоечная (Тип: ОТП-3,0-0,8-108-57)

Опора ОТП-/2.0/2.5/3.0/3.2/3.5/3.7/-/0.8/1.0/-108-57 трубчатая прямостоечная (Тип: ОТП-3,0-0,8-108-57)

Характеристики опор трубчатых несиловых прямостоечных ОТП-108-57 Обозначение опоры D d Н H1 Масса ОТП-108-57 мм. мм. м. м. кг. ОТ(108/57)-1,5-0,8 108 57 1,5 0,8 22 ОТ(108/57)-2,0-0,8 108 57 2 0,8 24 ОТ(108/57)-2,5-0,8 108 57 2,5 0,8 29 ОТ(108/57)-3,0-0,8 108 57 3 0,8 32 ОТ(108/57)-3,2-0,8 108 57 3,2 0,8 34 ОТ(108/57)-3,5-0,8 108 57 3,5 0,8 37 ОТ(108/57)-3,7-1,0 108 57 3,7 1 39 Расшифровка условных обозначений ОТП-108-57 ОТП-опора трубчатая п-прямостоечная Н-высота надземной части опоры,м Н1-глубина подземной части опоры, м D-108 диаметр нижней трубы опоры, мм d-57 диаметр верхней трубы опоры, мм Описание: Опоры трубчатые несиловые фланцевые ОТП-108-57 предназначены для освещения различных парков, скверов, исторических, культурных территорий и зон отдыха. Данный вид опор предусматривает прокладку к опорам освещения питающего электрокабеля исключительно подземным путем, не допускается применять в линиях с воздушным подводом кабеля. Несиловая опора в силу своей конструкции и технических особенностей отличается относительно легким весом, небольшими габаритами, мобильностью в установке. Назначение: Опоры ОТП-108-57 предназначены для декоративного освещения любых объектов. Светильники на опоры могут устанавливаться напрямую или с помощью кронштейна. Категорически не допускается использование опор данной серии в качестве силовых. Трубчатые опоры типа ОТП-108-57. На данный тип опоры предусмотрена установка осветительного прибора венчающего типа (торшерного светильника). Оборудование размещается непосредственно на верхнюю часть опоры или крепится с помощью декоративного кронштейна. Способ монтажа: Для фланцевых трубчатых опор ОТП-108-57 сначала монтируется фундаментный блок (закладная деталь) в заранее подготовленный котлован на глубину от 0,8 до 2 м и бетонируется, далее при помощи фланцевого соединения на болтах крепится опора. Более подробную информацию о монтаже фундаментных блоков смотрите на странице 97. Способ подвода питающего кабеля: Для несиловых трубчатых опор предусмотрена исключительно подземная подводка кабеля. В подземной части опоры либо фундаментного блока для осуществления ввода и вывода кабеля изготавливаются два окна в параллельных плоскостях. В надземной части опоры расположен ревизионный лючок для обслуживания. Антикоррозийное покрытие: Горячее цинкование. Лакокрасочное покрытие. Комбинированное покрытие: горячее цинкование + лакокрасочное покрытие.Тип установки: Прямостоечные Форма: Трубчатые Тип: ОТП-3,0-0,8-108-57 Высота опоры: 1.5, 2, 2.5, 3, 3.2, 3.5, 3.7, 4 м По типу ствола опоры: Трубчатая По типу установки опоры: Прямостоечная По типу нагрузки опоры: Несиловая Материал: Металл Покрытие: Горячий цинк, Порошковая краска Нижний ∅: 108 мм Верхний ∅: 57 мм Возможность покраски: Да

7 182 руб.
Санкт-Петербург
Опора ОТП-/2.0/2.5/3.0/3.2/3.5/3.7/-/0.8/1.0/-108-57 трубчатая прямостоечная (Тип: ОТП-2,5-0,8-108-57)

Опора ОТП-/2.0/2.5/3.0/3.2/3.5/3.7/-/0.8/1.0/-108-57 трубчатая прямостоечная (Тип: ОТП-2,5-0,8-108-57)

Характеристики опор трубчатых несиловых прямостоечных ОТП-108-57 Обозначение опоры D d Н H1 Масса ОТП-108-57 мм. мм. м. м. кг. ОТ(108/57)-1,5-0,8 108 57 1,5 0,8 22 ОТ(108/57)-2,0-0,8 108 57 2 0,8 24 ОТ(108/57)-2,5-0,8 108 57 2,5 0,8 29 ОТ(108/57)-3,0-0,8 108 57 3 0,8 32 ОТ(108/57)-3,2-0,8 108 57 3,2 0,8 34 ОТ(108/57)-3,5-0,8 108 57 3,5 0,8 37 ОТ(108/57)-3,7-1,0 108 57 3,7 1 39 Расшифровка условных обозначений ОТП-108-57 ОТП-опора трубчатая п-прямостоечная Н-высота надземной части опоры,м Н1-глубина подземной части опоры, м D-108 диаметр нижней трубы опоры, мм d-57 диаметр верхней трубы опоры, мм Описание: Опоры трубчатые несиловые фланцевые ОТП-108-57 предназначены для освещения различных парков, скверов, исторических, культурных территорий и зон отдыха. Данный вид опор предусматривает прокладку к опорам освещения питающего электрокабеля исключительно подземным путем, не допускается применять в линиях с воздушным подводом кабеля. Несиловая опора в силу своей конструкции и технических особенностей отличается относительно легким весом, небольшими габаритами, мобильностью в установке. Назначение: Опоры ОТП-108-57 предназначены для декоративного освещения любых объектов. Светильники на опоры могут устанавливаться напрямую или с помощью кронштейна. Категорически не допускается использование опор данной серии в качестве силовых. Трубчатые опоры типа ОТП-108-57. На данный тип опоры предусмотрена установка осветительного прибора венчающего типа (торшерного светильника). Оборудование размещается непосредственно на верхнюю часть опоры или крепится с помощью декоративного кронштейна. Способ монтажа: Для фланцевых трубчатых опор ОТП-108-57 сначала монтируется фундаментный блок (закладная деталь) в заранее подготовленный котлован на глубину от 0,8 до 2 м и бетонируется, далее при помощи фланцевого соединения на болтах крепится опора. Более подробную информацию о монтаже фундаментных блоков смотрите на странице 97. Способ подвода питающего кабеля: Для несиловых трубчатых опор предусмотрена исключительно подземная подводка кабеля. В подземной части опоры либо фундаментного блока для осуществления ввода и вывода кабеля изготавливаются два окна в параллельных плоскостях. В надземной части опоры расположен ревизионный лючок для обслуживания. Антикоррозийное покрытие: Горячее цинкование. Лакокрасочное покрытие. Комбинированное покрытие: горячее цинкование + лакокрасочное покрытие.Тип установки: Прямостоечные Форма: Трубчатые Тип: ОТП-2,5-0,8-108-57 Высота опоры: 1.5, 2, 2.5, 3, 3.2, 3.5, 3.7, 4 м По типу ствола опоры: Трубчатая По типу установки опоры: Прямостоечная По типу нагрузки опоры: Несиловая Материал: Металл Покрытие: Горячий цинк, Порошковая краска Нижний ∅: 108 мм Верхний ∅: 57 мм Возможность покраски: Да

6 840 руб.
Санкт-Петербург
Опора ОТП-/2.0/2.5/3.0/3.2/3.5/3.7/-/0.8/1.0/-108-57 трубчатая прямостоечная (Тип: ОТП-2,0-0,8-108-57)

Опора ОТП-/2.0/2.5/3.0/3.2/3.5/3.7/-/0.8/1.0/-108-57 трубчатая прямостоечная (Тип: ОТП-2,0-0,8-108-57)

Характеристики опор трубчатых несиловых прямостоечных ОТП-108-57 Обозначение опоры D d Н H1 Масса ОТП-108-57 мм. мм. м. м. кг. ОТ(108/57)-1,5-0,8 108 57 1,5 0,8 22 ОТ(108/57)-2,0-0,8 108 57 2 0,8 24 ОТ(108/57)-2,5-0,8 108 57 2,5 0,8 29 ОТ(108/57)-3,0-0,8 108 57 3 0,8 32 ОТ(108/57)-3,2-0,8 108 57 3,2 0,8 34 ОТ(108/57)-3,5-0,8 108 57 3,5 0,8 37 ОТ(108/57)-3,7-1,0 108 57 3,7 1 39 Расшифровка условных обозначений ОТП-108-57 ОТП-опора трубчатая п-прямостоечная Н-высота надземной части опоры,м Н1-глубина подземной части опоры, м D-108 диаметр нижней трубы опоры, мм d-57 диаметр верхней трубы опоры, мм Описание: Опоры трубчатые несиловые фланцевые ОТП-108-57 предназначены для освещения различных парков, скверов, исторических, культурных территорий и зон отдыха. Данный вид опор предусматривает прокладку к опорам освещения питающего электрокабеля исключительно подземным путем, не допускается применять в линиях с воздушным подводом кабеля. Несиловая опора в силу своей конструкции и технических особенностей отличается относительно легким весом, небольшими габаритами, мобильностью в установке. Назначение: Опоры ОТП-108-57 предназначены для декоративного освещения любых объектов. Светильники на опоры могут устанавливаться напрямую или с помощью кронштейна. Категорически не допускается использование опор данной серии в качестве силовых. Трубчатые опоры типа ОТП-108-57. На данный тип опоры предусмотрена установка осветительного прибора венчающего типа (торшерного светильника). Оборудование размещается непосредственно на верхнюю часть опоры или крепится с помощью декоративного кронштейна. Способ монтажа: Для фланцевых трубчатых опор ОТП-108-57 сначала монтируется фундаментный блок (закладная деталь) в заранее подготовленный котлован на глубину от 0,8 до 2 м и бетонируется, далее при помощи фланцевого соединения на болтах крепится опора. Более подробную информацию о монтаже фундаментных блоков смотрите на странице 97. Способ подвода питающего кабеля: Для несиловых трубчатых опор предусмотрена исключительно подземная подводка кабеля. В подземной части опоры либо фундаментного блока для осуществления ввода и вывода кабеля изготавливаются два окна в параллельных плоскостях. В надземной части опоры расположен ревизионный лючок для обслуживания. Антикоррозийное покрытие: Горячее цинкование. Лакокрасочное покрытие. Комбинированное покрытие: горячее цинкование + лакокрасочное покрытие.Тип установки: Прямостоечные Форма: Трубчатые Тип: ОТП-2,0-0,8-108-57 Высота опоры: 1.5, 2, 2.5, 3, 3.2, 3.5, 3.7, 4 м По типу ствола опоры: Трубчатая По типу установки опоры: Прямостоечная По типу нагрузки опоры: Несиловая Материал: Металл Покрытие: Горячий цинк, Порошковая краска Нижний ∅: 108 мм Верхний ∅: 57 мм Возможность покраски: Да

6 498 руб.
Санкт-Петербург
Опора ОТП-/2.0/2.5/3.0/3.2/3.5/3.7/-/0.8/1.0/-108-57 трубчатая прямостоечная (Тип: ОТП-1,5-0,8-108-57)

Опора ОТП-/2.0/2.5/3.0/3.2/3.5/3.7/-/0.8/1.0/-108-57 трубчатая прямостоечная (Тип: ОТП-1,5-0,8-108-57)

Характеристики опор трубчатых несиловых прямостоечных ОТП-108-57 Обозначение опоры D d Н H1 Масса ОТП-108-57 мм. мм. м. м. кг. ОТ(108/57)-1,5-0,8 108 57 1,5 0,8 22 ОТ(108/57)-2,0-0,8 108 57 2 0,8 24 ОТ(108/57)-2,5-0,8 108 57 2,5 0,8 29 ОТ(108/57)-3,0-0,8 108 57 3 0,8 32 ОТ(108/57)-3,2-0,8 108 57 3,2 0,8 34 ОТ(108/57)-3,5-0,8 108 57 3,5 0,8 37 ОТ(108/57)-3,7-1,0 108 57 3,7 1 39 Расшифровка условных обозначений ОТП-108-57 ОТП-опора трубчатая п-прямостоечная Н-высота надземной части опоры,м Н1-глубина подземной части опоры, м D-108 диаметр нижней трубы опоры, мм d-57 диаметр верхней трубы опоры, мм Описание: Опоры трубчатые несиловые фланцевые ОТП-108-57 предназначены для освещения различных парков, скверов, исторических, культурных территорий и зон отдыха. Данный вид опор предусматривает прокладку к опорам освещения питающего электрокабеля исключительно подземным путем, не допускается применять в линиях с воздушным подводом кабеля. Несиловая опора в силу своей конструкции и технических особенностей отличается относительно легким весом, небольшими габаритами, мобильностью в установке. Назначение: Опоры ОТП-108-57 предназначены для декоративного освещения любых объектов. Светильники на опоры могут устанавливаться напрямую или с помощью кронштейна. Категорически не допускается использование опор данной серии в качестве силовых. Трубчатые опоры типа ОТП-108-57. На данный тип опоры предусмотрена установка осветительного прибора венчающего типа (торшерного светильника). Оборудование размещается непосредственно на верхнюю часть опоры или крепится с помощью декоративного кронштейна. Способ монтажа: Для фланцевых трубчатых опор ОТП-108-57 сначала монтируется фундаментный блок (закладная деталь) в заранее подготовленный котлован на глубину от 0,8 до 2 м и бетонируется, далее при помощи фланцевого соединения на болтах крепится опора. Более подробную информацию о монтаже фундаментных блоков смотрите на странице 97. Способ подвода питающего кабеля: Для несиловых трубчатых опор предусмотрена исключительно подземная подводка кабеля. В подземной части опоры либо фундаментного блока для осуществления ввода и вывода кабеля изготавливаются два окна в параллельных плоскостях. В надземной части опоры расположен ревизионный лючок для обслуживания. Антикоррозийное покрытие: Горячее цинкование. Лакокрасочное покрытие. Комбинированное покрытие: горячее цинкование + лакокрасочное покрытие.Тип установки: Прямостоечные Форма: Трубчатые Тип: ОТП-1,5-0,8-108-57 Высота опоры: 1.5, 2, 2.5, 3, 3.2, 3.5, 3.7, 4 м По типу ствола опоры: Трубчатая По типу установки опоры: Прямостоечная По типу нагрузки опоры: Несиловая Материал: Металл Покрытие: Горячий цинк, Порошковая краска Нижний ∅: 108 мм Верхний ∅: 57 мм Возможность покраски: Да

6 156 руб.
Санкт-Петербург
Опора трубчатая фланцевая отф-159-133 (Тип: ОТФ-12,0-159-133)

Опора трубчатая фланцевая отф-159-133 (Тип: ОТФ-12,0-159-133)

Тип опор ОТФ-159-133 Характеристики опор трубчатых несиловых фланцевых ОТФ-159-133 Опора ОТФ 159-133 D d H Масса Установочное место кронштейна ØA Sфл Мц n dотв Рекомендуемый фундаментный блок Опора ОТФ мм мм м кг На обечайке мм мм мм шт мм Модель ОТФ-5,0-159-133 159 133 5 82 О1 300х300 10 230 4 М20 ФБ-0,159-1,5 ОТФ-6,0-159-133 159 133 6 93 О1 300х300 10 230 4 М20 ФБ-0,159-1,5 ОТФ-7,0-159-133 159 133 7 109 О1 300х300 10 230 4 М20 ФБ-0,159-1,5 ОТФ-8,0-159-133 159 133 8 120 О1 300х300 10 230 4 М20 ФБ-0,159-2,0 ОТФ-9,0-159-133 159 133 9 131 О1 300х300 10 230 4 М20 ФБ-0,159-2,0 ОТФ-10,0-159-133 159 133 10 143 О1 300х300 10 230 4 М20 ФБ-0,159-2,0 ОТФ-11,0-159-133 159 133 11 187 О1 300х300 10 230 4 М20 ФБ-0,159-2,0 ОТФ-12,0-159-133 159 133 12 204 О1 300х300 10 230 4 М20 ФБ-0,159-2,0 Назначение: Опора трубчатая фланцевая ОТФ-159-133 предназначена для освещения различных парков, скверов, исторических, культурных территорий и зон отдыха. Данный вид опор предусматривает прокладку к опорам освещения питающего электрокабеля исключительно подземным путем, не допускается применять в линиях с воздушным подводом кабеля. Установка и монтаж: Данный вид опор предусматривает прокладку к опорам освещения питающего электрокабеля исключительно подземным путем, не допускается применять в линиях с воздушным подводом кабеля. Несиловая опора в силу своей конструкции и технических особенностей отличается относительно легким весом, небольшими габаритами, мобильностью в установке. Антикоррозийное покрытие: Горячее цинкование. Лакокрасочное покрытие. Комбинированное покрытие: горячее цинкование + лакокрасочное покрытие.Тип установки: Фланцевые Форма: Трубчатые Тип: ОТФ-12,0-159-133 Высота опоры: 5, 6, 7, 8, 9, 10, 11, 12 м По типу ствола опоры: Трубчатая По типу установки опоры: Фланцевая По типу нагрузки опоры: Несиловая Материал: Металл Покрытие: Горячий цинк, Порошковая краска Нижний ∅: 159 мм Верхний ∅: 133 мм Возможность покраски: Да

44 880 руб.
Санкт-Петербург
Опора трубчатая фланцевая отф-159-133 (Тип: ОТФ-11,0-159-133)

Опора трубчатая фланцевая отф-159-133 (Тип: ОТФ-11,0-159-133)

Тип опор ОТФ-159-133 Характеристики опор трубчатых несиловых фланцевых ОТФ-159-133 Опора ОТФ 159-133 D d H Масса Установочное место кронштейна ØA Sфл Мц n dотв Рекомендуемый фундаментный блок Опора ОТФ мм мм м кг На обечайке мм мм мм шт мм Модель ОТФ-5,0-159-133 159 133 5 82 О1 300х300 10 230 4 М20 ФБ-0,159-1,5 ОТФ-6,0-159-133 159 133 6 93 О1 300х300 10 230 4 М20 ФБ-0,159-1,5 ОТФ-7,0-159-133 159 133 7 109 О1 300х300 10 230 4 М20 ФБ-0,159-1,5 ОТФ-8,0-159-133 159 133 8 120 О1 300х300 10 230 4 М20 ФБ-0,159-2,0 ОТФ-9,0-159-133 159 133 9 131 О1 300х300 10 230 4 М20 ФБ-0,159-2,0 ОТФ-10,0-159-133 159 133 10 143 О1 300х300 10 230 4 М20 ФБ-0,159-2,0 ОТФ-11,0-159-133 159 133 11 187 О1 300х300 10 230 4 М20 ФБ-0,159-2,0 ОТФ-12,0-159-133 159 133 12 204 О1 300х300 10 230 4 М20 ФБ-0,159-2,0 Назначение: Опора трубчатая фланцевая ОТФ-159-133 предназначена для освещения различных парков, скверов, исторических, культурных территорий и зон отдыха. Данный вид опор предусматривает прокладку к опорам освещения питающего электрокабеля исключительно подземным путем, не допускается применять в линиях с воздушным подводом кабеля. Установка и монтаж: Данный вид опор предусматривает прокладку к опорам освещения питающего электрокабеля исключительно подземным путем, не допускается применять в линиях с воздушным подводом кабеля. Несиловая опора в силу своей конструкции и технических особенностей отличается относительно легким весом, небольшими габаритами, мобильностью в установке. Антикоррозийное покрытие: Горячее цинкование. Лакокрасочное покрытие. Комбинированное покрытие: горячее цинкование + лакокрасочное покрытие.Тип установки: Фланцевые Форма: Трубчатые Тип: ОТФ-11,0-159-133 Высота опоры: 5, 6, 7, 8, 9, 10, 11, 12 м По типу ствола опоры: Трубчатая По типу установки опоры: Фланцевая По типу нагрузки опоры: Несиловая Материал: Металл Покрытие: Горячий цинк, Порошковая краска Нижний ∅: 159 мм Верхний ∅: 133 мм Возможность покраски: Да

41 140 руб.
Санкт-Петербург
Опора трубчатая фланцевая отф-159-133 (Тип: ОТФ-6,0-159-133)

Опора трубчатая фланцевая отф-159-133 (Тип: ОТФ-6,0-159-133)

Тип опор ОТФ-159-133 Характеристики опор трубчатых несиловых фланцевых ОТФ-159-133 Опора ОТФ 159-133 D d H Масса Установочное место кронштейна ØA Sфл Мц n dотв Рекомендуемый фундаментный блок Опора ОТФ мм мм м кг На обечайке мм мм мм шт мм Модель ОТФ-5,0-159-133 159 133 5 82 О1 300х300 10 230 4 М20 ФБ-0,159-1,5 ОТФ-6,0-159-133 159 133 6 93 О1 300х300 10 230 4 М20 ФБ-0,159-1,5 ОТФ-7,0-159-133 159 133 7 109 О1 300х300 10 230 4 М20 ФБ-0,159-1,5 ОТФ-8,0-159-133 159 133 8 120 О1 300х300 10 230 4 М20 ФБ-0,159-2,0 ОТФ-9,0-159-133 159 133 9 131 О1 300х300 10 230 4 М20 ФБ-0,159-2,0 ОТФ-10,0-159-133 159 133 10 143 О1 300х300 10 230 4 М20 ФБ-0,159-2,0 ОТФ-11,0-159-133 159 133 11 187 О1 300х300 10 230 4 М20 ФБ-0,159-2,0 ОТФ-12,0-159-133 159 133 12 204 О1 300х300 10 230 4 М20 ФБ-0,159-2,0 Назначение: Опора трубчатая фланцевая ОТФ-159-133 предназначена для освещения различных парков, скверов, исторических, культурных территорий и зон отдыха. Данный вид опор предусматривает прокладку к опорам освещения питающего электрокабеля исключительно подземным путем, не допускается применять в линиях с воздушным подводом кабеля. Установка и монтаж: Данный вид опор предусматривает прокладку к опорам освещения питающего электрокабеля исключительно подземным путем, не допускается применять в линиях с воздушным подводом кабеля. Несиловая опора в силу своей конструкции и технических особенностей отличается относительно легким весом, небольшими габаритами, мобильностью в установке. Антикоррозийное покрытие: Горячее цинкование. Лакокрасочное покрытие. Комбинированное покрытие: горячее цинкование + лакокрасочное покрытие.Тип установки: Фланцевые Форма: Трубчатые Тип: ОТФ-6,0-159-133 Высота опоры: 5, 6, 7, 8, 9, 10, 11, 12 м По типу ствола опоры: Трубчатая По типу установки опоры: Фланцевая По типу нагрузки опоры: Несиловая Материал: Металл Покрытие: Горячий цинк, Порошковая краска Нижний ∅: 159 мм Верхний ∅: 133 мм Возможность покраски: Да

20 460 руб.
Санкт-Петербург
Опора трубчатая фланцевая отф-159-133 (Тип: ОТФ-5,0-159-133)

Опора трубчатая фланцевая отф-159-133 (Тип: ОТФ-5,0-159-133)

Тип опор ОТФ-159-133 Характеристики опор трубчатых несиловых фланцевых ОТФ-159-133 Опора ОТФ 159-133 D d H Масса Установочное место кронштейна ØA Sфл Мц n dотв Рекомендуемый фундаментный блок Опора ОТФ мм мм м кг На обечайке мм мм мм шт мм Модель ОТФ-5,0-159-133 159 133 5 82 О1 300х300 10 230 4 М20 ФБ-0,159-1,5 ОТФ-6,0-159-133 159 133 6 93 О1 300х300 10 230 4 М20 ФБ-0,159-1,5 ОТФ-7,0-159-133 159 133 7 109 О1 300х300 10 230 4 М20 ФБ-0,159-1,5 ОТФ-8,0-159-133 159 133 8 120 О1 300х300 10 230 4 М20 ФБ-0,159-2,0 ОТФ-9,0-159-133 159 133 9 131 О1 300х300 10 230 4 М20 ФБ-0,159-2,0 ОТФ-10,0-159-133 159 133 10 143 О1 300х300 10 230 4 М20 ФБ-0,159-2,0 ОТФ-11,0-159-133 159 133 11 187 О1 300х300 10 230 4 М20 ФБ-0,159-2,0 ОТФ-12,0-159-133 159 133 12 204 О1 300х300 10 230 4 М20 ФБ-0,159-2,0 Назначение: Опора трубчатая фланцевая ОТФ-159-133 предназначена для освещения различных парков, скверов, исторических, культурных территорий и зон отдыха. Данный вид опор предусматривает прокладку к опорам освещения питающего электрокабеля исключительно подземным путем, не допускается применять в линиях с воздушным подводом кабеля. Установка и монтаж: Данный вид опор предусматривает прокладку к опорам освещения питающего электрокабеля исключительно подземным путем, не допускается применять в линиях с воздушным подводом кабеля. Несиловая опора в силу своей конструкции и технических особенностей отличается относительно легким весом, небольшими габаритами, мобильностью в установке. Антикоррозийное покрытие: Горячее цинкование. Лакокрасочное покрытие. Комбинированное покрытие: горячее цинкование + лакокрасочное покрытие.Тип установки: Фланцевые Форма: Трубчатые Тип: ОТФ-5,0-159-133 Высота опоры: 5, 6, 7, 8, 9, 10, 11, 12 м По типу ствола опоры: Трубчатая По типу установки опоры: Фланцевая По типу нагрузки опоры: Несиловая Материал: Металл Покрытие: Горячий цинк, Порошковая краска Нижний ∅: 159 мм Верхний ∅: 133 мм Возможность покраски: Да

18 400 руб.
Санкт-Петербург
Опора ОТФ-159-76 трубчатая фланцевая (Тип: ОТФ-6,0-159-76)

Опора ОТФ-159-76 трубчатая фланцевая (Тип: ОТФ-6,0-159-76)

Типы опор (ОТФ-h-159-76) Обозначение опоры D d H Масса ØA Sфл Мц n dотв Рекомендуемый фундаментный блок ОТФ-(159х76) мм мм м кг мм мм мм шт мм Модель ОТФ-2,5-159-76 159 76 2,5 31 300х300 10 230 4 20 ФБ-0,159-1,0 ОТФ-3,0-159-76 159 76 3 34 300х300 10 230 4 20 ФБ-0,159-1,0 ОТФ-3,5-159-76 159 76 3,5 37 300х300 10 230 4 20 ФБ-0,159-1,5 ОТФ-4,0-159-76 159 76 4 42 300х300 10 230 4 20 ФБ-0,159-1,5 ОТФ-4,5-159-76 159 76 4,5 45 300х300 10 230 4 20 ФБ-0,159-1,5 ОТФ-5,0-159-76 159 76 5 48 300х300 10 230 4 20 ФБ-0,159-1,5 ОТФ-5,5-159-76 159 76 5,5 51 300х300 10 230 4 20 ФБ-0,159-1,5 ОТФ-6,0-159-76 159 76 6 54 300х300 10 230 4 20 ФБ-0,159-1,5 ОТФ-опора трубчатая фланцевая Н-высота опоры, м D-диаметр нижней опоры, мм d-диаметр верхней опоры, мм ØA-линейный размер фланца опоры, мм Sфл-толщина фланца опоры, мм Mц-межцентровое расстояние крепежных отверстий на фланце, мм n-количество крепежных отверстий, шт dотв-диаметр крепежного отверстия, мм Опора (ОТф-159-76): Опоры трубчатые несиловые фланцевые ОТ-159-76 предназначены для освещения различных парков, скверов, исторических, культурных территорий и зон отдыха. Данный вид опор предусматривает прокладку к опорам освещения питающего электрокабеля исключительно подземным путем, не допускается применять в линиях с воздушным подводом кабеля. Несиловая опора в силу своей конструкции и технических особенностей отличается относительно легким весом, небольшими габаритами, мобильностью в установке. Назначение: Опоры трубчатые ОТФ-159-76 предназначены для декоративного освещения любых объектов. Светильники на опоры могут устанавливаться напрямую или с помощью кронштейна. Категорически не допускается использование опор данной серии в качестве силовых. На опоры типа ОТ-159-76 предусмотрена установка торшерных светильников и декоративного кронштейна. Дополнительно к указанному оборудованию возможна установка одного консольного светильника на выносном кронштейне. Монтаж и установка: Для фланцевых трубчатых опор ОТФ-159-76 сначала монтируется фундаментный блок (закладная деталь) в заранее подготовленный котлован на глубину от 0,8 до 2 м и бетонируется, далее при помощи фланцевого соединения на болтах крепится опора. Более подробную информацию о монтаже фундаментных блоков смотрите на странице 97. Способ подвода питающего кабеля: Для несиловых трубчатых опор предусмотрена исключительно подземная подводка кабеля. В подземной части опоры либо фундаментного блока для осуществления ввода и вывода кабеля изготавливаются два окна в параллельных плоскостях. В надземной части опоры расположен ревизионный лючок для обслуживания. Антикоррозийное покрытие: Горячее цинкование. Лакокрасочное покрытие. Комбинированное покрытие: горячее цинкование + лакокрасочное покрытие.Тип установки: Фланцевые Форма: Трубчатые Тип: ОТФ-6,0-159-76 Высота опоры: 2.5, 3, 3.5, 3.7, 4, 5, 6, 7 м По типу ствола опоры: Трубчатая По типу установки опоры: Фланцевая По типу нагрузки опоры: Несиловая Материал: Металл Покрытие: Горячий цинк, Порошковая краска Нижний ∅: 159 мм Верхний ∅: 76 мм Возможность покраски: Да

10 584 руб.
Санкт-Петербург
Опора ОТФ-159-76 трубчатая фланцевая (Тип: ОТФ-5,5-159-76)

Опора ОТФ-159-76 трубчатая фланцевая (Тип: ОТФ-5,5-159-76)

Типы опор (ОТФ-h-159-76) Обозначение опоры D d H Масса ØA Sфл Мц n dотв Рекомендуемый фундаментный блок ОТФ-(159х76) мм мм м кг мм мм мм шт мм Модель ОТФ-2,5-159-76 159 76 2,5 31 300х300 10 230 4 20 ФБ-0,159-1,0 ОТФ-3,0-159-76 159 76 3 34 300х300 10 230 4 20 ФБ-0,159-1,0 ОТФ-3,5-159-76 159 76 3,5 37 300х300 10 230 4 20 ФБ-0,159-1,5 ОТФ-4,0-159-76 159 76 4 42 300х300 10 230 4 20 ФБ-0,159-1,5 ОТФ-4,5-159-76 159 76 4,5 45 300х300 10 230 4 20 ФБ-0,159-1,5 ОТФ-5,0-159-76 159 76 5 48 300х300 10 230 4 20 ФБ-0,159-1,5 ОТФ-5,5-159-76 159 76 5,5 51 300х300 10 230 4 20 ФБ-0,159-1,5 ОТФ-6,0-159-76 159 76 6 54 300х300 10 230 4 20 ФБ-0,159-1,5 ОТФ-опора трубчатая фланцевая Н-высота опоры, м D-диаметр нижней опоры, мм d-диаметр верхней опоры, мм ØA-линейный размер фланца опоры, мм Sфл-толщина фланца опоры, мм Mц-межцентровое расстояние крепежных отверстий на фланце, мм n-количество крепежных отверстий, шт dотв-диаметр крепежного отверстия, мм Опора (ОТф-159-76): Опоры трубчатые несиловые фланцевые ОТ-159-76 предназначены для освещения различных парков, скверов, исторических, культурных территорий и зон отдыха. Данный вид опор предусматривает прокладку к опорам освещения питающего электрокабеля исключительно подземным путем, не допускается применять в линиях с воздушным подводом кабеля. Несиловая опора в силу своей конструкции и технических особенностей отличается относительно легким весом, небольшими габаритами, мобильностью в установке. Назначение: Опоры трубчатые ОТФ-159-76 предназначены для декоративного освещения любых объектов. Светильники на опоры могут устанавливаться напрямую или с помощью кронштейна. Категорически не допускается использование опор данной серии в качестве силовых. На опоры типа ОТ-159-76 предусмотрена установка торшерных светильников и декоративного кронштейна. Дополнительно к указанному оборудованию возможна установка одного консольного светильника на выносном кронштейне. Монтаж и установка: Для фланцевых трубчатых опор ОТФ-159-76 сначала монтируется фундаментный блок (закладная деталь) в заранее подготовленный котлован на глубину от 0,8 до 2 м и бетонируется, далее при помощи фланцевого соединения на болтах крепится опора. Более подробную информацию о монтаже фундаментных блоков смотрите на странице 97. Способ подвода питающего кабеля: Для несиловых трубчатых опор предусмотрена исключительно подземная подводка кабеля. В подземной части опоры либо фундаментного блока для осуществления ввода и вывода кабеля изготавливаются два окна в параллельных плоскостях. В надземной части опоры расположен ревизионный лючок для обслуживания. Антикоррозийное покрытие: Горячее цинкование. Лакокрасочное покрытие. Комбинированное покрытие: горячее цинкование + лакокрасочное покрытие.Тип установки: Фланцевые Форма: Трубчатые Тип: ОТФ-5,5-159-76 Высота опоры: 2.5, 3, 3.5, 3.7, 4, 5, 6, 7 м По типу ствола опоры: Трубчатая По типу установки опоры: Фланцевая По типу нагрузки опоры: Несиловая Материал: Металл Покрытие: Горячий цинк, Порошковая краска Нижний ∅: 159 мм Верхний ∅: 76 мм Возможность покраски: Да

9 744 руб.
Санкт-Петербург
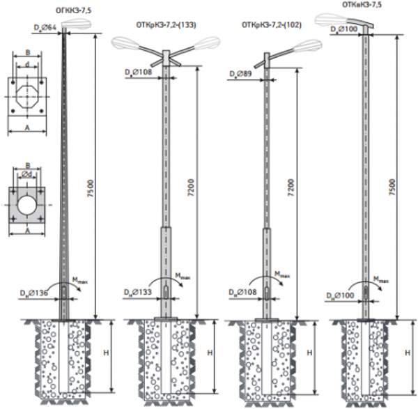
Опора квартальная ОГККЗ-7.5/ОТКрКЗ-7.2 (133)/ОТКрКЗ-7.2 (108)/ОТКвКЗ-7.5/ для подземной подводки питания (Тип: ОГККЗ-7,5)

Опора квартальная ОГККЗ-7.5/ОТКрКЗ-7.2 (133)/ОТКрКЗ-7.2 (108)/ОТКвКЗ-7.5/ для подземной подводки питания (Тип: ОГККЗ-7,5)

Опоры квартальные фланцевые для подземной подводки питания ОГККЗ, ОТКрКЗ, ОТКвКЗ Область применения: Освещение жилых кварталов, пешеходных зон, аллей, бульваров, парковок. Не предназначены для воздушной подводки питания. Характеристики опор ОГККЗ, ОТКрКЗ, ОТКвКЗ Наименование Применение Вес (m, кг) Диаметры сечений опоры (DhxDb, мм) Размеры фланца (А, В, d,) мм Момент эксплуатационный (mmax, Tm) Рекомендуемый тип ЗДФ ОГККЗ-7,5 Квартальная 59 136x64 300x200x25 1,114 ФМ-0,133-0,2 ОТКрКЗ-7,2 (133) Квартальная 98,7 133x108 300x300x25 1,246 ФМ-0,133-0,2 ОТКрКЗ-7,2 (108) Квартальная 77,4 108x89 250x250x24 0,781 ФМ-0,108-0,2 ОТКвКЗ-7,5 Квартальная 97 100x100 300x200x24 0,819 ФМ-0,108-0,2 Расшифровка кода: ОГКК П-Н, где П - тип подводки: З - подземная, В - воздушная Н - высота надземной части - 7,5 м ОТ Кт П-Н, где Кт - тип трубы: Кр - круглая Кв - квадратная Описание: Опоры квартальные для подземной подводки питающего кабеля изготавливаются из листового проката, методом сгибания и сваривания продольным швом ОГККЗ(верхний диаметр 64 мм) или из трубного проката с круглым сечением ОТКрКЗ (верхний диаметр 102 или 133 мм) и квадратным сечением ОТКвКЗ (верхний диаметр 100 мм). Данный тип опор не может быть применен для воздушной подводки питания к осветительным приборам. Поверхность опор устойчива к коррозии, так как обработана методом горячего цинкования, имеющим гарантийный срок стойкости, не менее 15 лет. Высота надземной части опор составляет 7,2 (7,5) метра, их вес не превышает 98,7 килограмма. Опоры имеют фланцевую часть, которой устанавливаются на закладной элемент фундамента. Рекомендуемый тип закладной детали ФМ 0,108 (0,133). По заявке, опора может иметь бесфланцевое исполнение. К преимуществам опор относится небольшой вес, эстетичный вид, устойчивость к коррозии, удобство монтажа и обслуживания, длительный срок службы. Область применения: устройство наружного освещения жилых кварталов, бульваров, аллей и т.д. Преимущества: Небольшой вес. Эстетичный внешний вид. Высокая антикоррозийная стойкость покрытия. Длительный срок службы. Удобство в монтаже и обслуживании. Устройство: Опоры изготавливаются из листового или трубного проката. Опоры защищены от коррозии методом горячего цинкования (ГОСТ 9.307 89). Гарантия на коррозийную стойкость составляет не менее 15 лет. Покрытие: Горячее цинкование. Примечание: По специальному заказу возможно изготовление бесфланцевых опор типа ОГККЗ, ОТКрКЗ, ОТКвКЗ.Тип: ОГККЗ-7,5 Высота опоры: 7.5 м По типу ствола опоры: Круглая По типу установки опоры: Фланцевая По типу нагрузки опоры: Несиловая Материал: Металл Покрытие: Горячий цинк Возможность покраски: Да

23 600 руб.
Санкт-Петербург
Опора (НФ) несиловая фланцевая трубчатая неразборная (Тип: НФ-21,0-02-ц)

Опора (НФ) несиловая фланцевая трубчатая неразборная (Тип: НФ-21,0-02-ц)

Типы опор НФ Опора освещения несиловая фланцевая трубчатая неразборная НФ Наименование Масса*, кг Размеры, мм H h1 h2 h3 D1 D2 D3 d А Б НФ-2,0-02-ц 23,6 2000 1000 1285 - 108 76 - М20 230 180 НФ-3,0-02-ц 30,1 3000 1000 1285 - 108 76 - М20 230 180 НФ-4,0-02-ц 36,7 4000 1000 1285 - 108 76 - М20 230 180 НФ-4,0-02-ц 56,5 4000 1000 1285 1340 159 108 76 М20 250 180 НФ-5,0-02-ц 65,1 5000 1000 1285 1840 159 108 76 М20 250 180 НФ-6,0-02-ц 73,9 6000 1500 1285 2340 159 108 76 М20 250 180 НФ-7,0-02-ц 80,5 7000 1500 1285 2340 159 108 76 М20 250 180 НФ-8,0-02-ц 87,8 8000 1500 1285 2740 159 108 76 М20 270 200 НФ-9,0-02-ц 98,6 9000 2000 1880 2940 159 108 76 М20 270 200 НФ-10,0-02-ц 110,2 10000 2000 1880 2940 159 108 76 М20 270 200 НФ-12,0-02-ц 312,5 12000 2000 4000 4000 168 133 108 М30 400 300 Применение Опора освещения несиловая НФ - металлическая конструкция, применяемая для освещения площадей, улиц и дорог с низкой и средней интенсивностью движения, дворов, территории микрорайонов, АЗС, парковок, автостоянок, скверов, парков и т.д. Конструкция таких опор позволяет применять их практически на любых площадках. Производство Несиловая фланцевая трубчатая опора НФ - изготавливается из трубчатого проката. Он позволяет получить надежную и долговечную конструкцию. Как и любая стальная конструкция, опора НФ - требует защиты от коррозии. Для ее обеспечения конструкция опор обрабатывается методом горячего цинкования илил окрашиваю порошковой краской в RAL. Установка Монтаж опор НФ - ведется с использованием закладного железобетонного фундамента. Опора имеет специальную фланцевую часть, которая устанавливается в металлический элемент и закрепляется в нем специальными шпильками. В опоре НФ - предусмотрен подземный ввод кабельных систем. Питающий кабель вводится через специальное окно в закладном фундаменте и подводится к верхней части опор. Преимущества Срок службы более 30 лет Соответствие покрытия ГОСТ 9.307-89 Возможность учета при изготовлении индивидуальных требованийТип: Несиловые Тип установки: Фланцевые Форма: Трубчатые Тип: НФ-21,0-02-ц Высота опоры: 2, 3, 4, 5, 6, 7, 8, 9, 10, 11, 12 м По типу ствола опоры: Трубчатая По типу установки опоры: Фланцевая По типу нагрузки опоры: Несиловая Материал: Металл Покрытие: Горячий цинк, Порошковая краска Возможность покраски: Да

126 000 руб.
Санкт-Петербург
Опора (НФ) несиловая фланцевая трубчатая неразборная (Тип: НФ-18,0-02-ц)

Опора (НФ) несиловая фланцевая трубчатая неразборная (Тип: НФ-18,0-02-ц)

Типы опор НФ Опора освещения несиловая фланцевая трубчатая неразборная НФ Наименование Масса*, кг Размеры, мм H h1 h2 h3 D1 D2 D3 d А Б НФ-2,0-02-ц 23,6 2000 1000 1285 - 108 76 - М20 230 180 НФ-3,0-02-ц 30,1 3000 1000 1285 - 108 76 - М20 230 180 НФ-4,0-02-ц 36,7 4000 1000 1285 - 108 76 - М20 230 180 НФ-4,0-02-ц 56,5 4000 1000 1285 1340 159 108 76 М20 250 180 НФ-5,0-02-ц 65,1 5000 1000 1285 1840 159 108 76 М20 250 180 НФ-6,0-02-ц 73,9 6000 1500 1285 2340 159 108 76 М20 250 180 НФ-7,0-02-ц 80,5 7000 1500 1285 2340 159 108 76 М20 250 180 НФ-8,0-02-ц 87,8 8000 1500 1285 2740 159 108 76 М20 270 200 НФ-9,0-02-ц 98,6 9000 2000 1880 2940 159 108 76 М20 270 200 НФ-10,0-02-ц 110,2 10000 2000 1880 2940 159 108 76 М20 270 200 НФ-12,0-02-ц 312,5 12000 2000 4000 4000 168 133 108 М30 400 300 Применение Опора освещения несиловая НФ - металлическая конструкция, применяемая для освещения площадей, улиц и дорог с низкой и средней интенсивностью движения, дворов, территории микрорайонов, АЗС, парковок, автостоянок, скверов, парков и т.д. Конструкция таких опор позволяет применять их практически на любых площадках. Производство Несиловая фланцевая трубчатая опора НФ - изготавливается из трубчатого проката. Он позволяет получить надежную и долговечную конструкцию. Как и любая стальная конструкция, опора НФ - требует защиты от коррозии. Для ее обеспечения конструкция опор обрабатывается методом горячего цинкования илил окрашиваю порошковой краской в RAL. Установка Монтаж опор НФ - ведется с использованием закладного железобетонного фундамента. Опора имеет специальную фланцевую часть, которая устанавливается в металлический элемент и закрепляется в нем специальными шпильками. В опоре НФ - предусмотрен подземный ввод кабельных систем. Питающий кабель вводится через специальное окно в закладном фундаменте и подводится к верхней части опор. Преимущества Срок службы более 30 лет Соответствие покрытия ГОСТ 9.307-89 Возможность учета при изготовлении индивидуальных требованийТип: Несиловые Тип установки: Фланцевые Форма: Трубчатые Тип: НФ-18,0-02-ц Высота опоры: 2, 3, 4, 5, 6, 7, 8, 9, 10, 11, 12 м По типу ствола опоры: Трубчатая По типу установки опоры: Фланцевая По типу нагрузки опоры: Несиловая Материал: Металл Покрытие: Горячий цинк, Порошковая краска Возможность покраски: Да

98 000 руб.
Санкт-Петербург
Опора (НФ) несиловая фланцевая трубчатая неразборная (Тип: НФ-15,0-02-ц)

Опора (НФ) несиловая фланцевая трубчатая неразборная (Тип: НФ-15,0-02-ц)

Типы опор НФ Опора освещения несиловая фланцевая трубчатая неразборная НФ Наименование Масса*, кг Размеры, мм H h1 h2 h3 D1 D2 D3 d А Б НФ-2,0-02-ц 23,6 2000 1000 1285 - 108 76 - М20 230 180 НФ-3,0-02-ц 30,1 3000 1000 1285 - 108 76 - М20 230 180 НФ-4,0-02-ц 36,7 4000 1000 1285 - 108 76 - М20 230 180 НФ-4,0-02-ц 56,5 4000 1000 1285 1340 159 108 76 М20 250 180 НФ-5,0-02-ц 65,1 5000 1000 1285 1840 159 108 76 М20 250 180 НФ-6,0-02-ц 73,9 6000 1500 1285 2340 159 108 76 М20 250 180 НФ-7,0-02-ц 80,5 7000 1500 1285 2340 159 108 76 М20 250 180 НФ-8,0-02-ц 87,8 8000 1500 1285 2740 159 108 76 М20 270 200 НФ-9,0-02-ц 98,6 9000 2000 1880 2940 159 108 76 М20 270 200 НФ-10,0-02-ц 110,2 10000 2000 1880 2940 159 108 76 М20 270 200 НФ-12,0-02-ц 312,5 12000 2000 4000 4000 168 133 108 М30 400 300 Применение Опора освещения несиловая НФ - металлическая конструкция, применяемая для освещения площадей, улиц и дорог с низкой и средней интенсивностью движения, дворов, территории микрорайонов, АЗС, парковок, автостоянок, скверов, парков и т.д. Конструкция таких опор позволяет применять их практически на любых площадках. Производство Несиловая фланцевая трубчатая опора НФ - изготавливается из трубчатого проката. Он позволяет получить надежную и долговечную конструкцию. Как и любая стальная конструкция, опора НФ - требует защиты от коррозии. Для ее обеспечения конструкция опор обрабатывается методом горячего цинкования илил окрашиваю порошковой краской в RAL. Установка Монтаж опор НФ - ведется с использованием закладного железобетонного фундамента. Опора имеет специальную фланцевую часть, которая устанавливается в металлический элемент и закрепляется в нем специальными шпильками. В опоре НФ - предусмотрен подземный ввод кабельных систем. Питающий кабель вводится через специальное окно в закладном фундаменте и подводится к верхней части опор. Преимущества Срок службы более 30 лет Соответствие покрытия ГОСТ 9.307-89 Возможность учета при изготовлении индивидуальных требованийТип: Несиловые Тип установки: Фланцевые Форма: Трубчатые Тип: НФ-15,0-02-ц Высота опоры: 2, 3, 4, 5, 6, 7, 8, 9, 10, 11, 12 м По типу ствола опоры: Трубчатая По типу установки опоры: Фланцевая По типу нагрузки опоры: Несиловая Материал: Металл Покрытие: Горячий цинк, Порошковая краска Возможность покраски: Да

72 000 руб.
Санкт-Петербург
Опора (НФ) несиловая фланцевая трубчатая неразборная (Тип: НФ-12,0-02-ц)

Опора (НФ) несиловая фланцевая трубчатая неразборная (Тип: НФ-12,0-02-ц)

Типы опор НФ Опора освещения несиловая фланцевая трубчатая неразборная НФ Наименование Масса*, кг Размеры, мм H h1 h2 h3 D1 D2 D3 d А Б НФ-2,0-02-ц 23,6 2000 1000 1285 - 108 76 - М20 230 180 НФ-3,0-02-ц 30,1 3000 1000 1285 - 108 76 - М20 230 180 НФ-4,0-02-ц 36,7 4000 1000 1285 - 108 76 - М20 230 180 НФ-4,0-02-ц 56,5 4000 1000 1285 1340 159 108 76 М20 250 180 НФ-5,0-02-ц 65,1 5000 1000 1285 1840 159 108 76 М20 250 180 НФ-6,0-02-ц 73,9 6000 1500 1285 2340 159 108 76 М20 250 180 НФ-7,0-02-ц 80,5 7000 1500 1285 2340 159 108 76 М20 250 180 НФ-8,0-02-ц 87,8 8000 1500 1285 2740 159 108 76 М20 270 200 НФ-9,0-02-ц 98,6 9000 2000 1880 2940 159 108 76 М20 270 200 НФ-10,0-02-ц 110,2 10000 2000 1880 2940 159 108 76 М20 270 200 НФ-12,0-02-ц 312,5 12000 2000 4000 4000 168 133 108 М30 400 300 Применение Опора освещения несиловая НФ - металлическая конструкция, применяемая для освещения площадей, улиц и дорог с низкой и средней интенсивностью движения, дворов, территории микрорайонов, АЗС, парковок, автостоянок, скверов, парков и т.д. Конструкция таких опор позволяет применять их практически на любых площадках. Производство Несиловая фланцевая трубчатая опора НФ - изготавливается из трубчатого проката. Он позволяет получить надежную и долговечную конструкцию. Как и любая стальная конструкция, опора НФ - требует защиты от коррозии. Для ее обеспечения конструкция опор обрабатывается методом горячего цинкования илил окрашиваю порошковой краской в RAL. Установка Монтаж опор НФ - ведется с использованием закладного железобетонного фундамента. Опора имеет специальную фланцевую часть, которая устанавливается в металлический элемент и закрепляется в нем специальными шпильками. В опоре НФ - предусмотрен подземный ввод кабельных систем. Питающий кабель вводится через специальное окно в закладном фундаменте и подводится к верхней части опор. Преимущества Срок службы более 30 лет Соответствие покрытия ГОСТ 9.307-89 Возможность учета при изготовлении индивидуальных требованийТип: Несиловые Тип установки: Фланцевые Форма: Трубчатые Тип: НФ-12,0-02-ц Высота опоры: 2, 3, 4, 5, 6, 7, 8, 9, 10, 11, 12 м По типу ствола опоры: Трубчатая По типу установки опоры: Фланцевая По типу нагрузки опоры: Несиловая Материал: Металл Покрытие: Горячий цинк, Порошковая краска Возможность покраски: Да

48 000 руб.
Санкт-Петербург
Опора трубчатая фланцевая отф-159-133 (Тип: ОТФ-10,0-159-133)

Опора трубчатая фланцевая отф-159-133 (Тип: ОТФ-10,0-159-133)

Тип опор ОТФ-159-133 Характеристики опор трубчатых несиловых фланцевых ОТФ-159-133 Опора ОТФ 159-133 D d H Масса Установочное место кронштейна ØA Sфл Мц n dотв Рекомендуемый фундаментный блок Опора ОТФ мм мм м кг На обечайке мм мм мм шт мм Модель ОТФ-5,0-159-133 159 133 5 82 О1 300х300 10 230 4 М20 ФБ-0,159-1,5 ОТФ-6,0-159-133 159 133 6 93 О1 300х300 10 230 4 М20 ФБ-0,159-1,5 ОТФ-7,0-159-133 159 133 7 109 О1 300х300 10 230 4 М20 ФБ-0,159-1,5 ОТФ-8,0-159-133 159 133 8 120 О1 300х300 10 230 4 М20 ФБ-0,159-2,0 ОТФ-9,0-159-133 159 133 9 131 О1 300х300 10 230 4 М20 ФБ-0,159-2,0 ОТФ-10,0-159-133 159 133 10 143 О1 300х300 10 230 4 М20 ФБ-0,159-2,0 ОТФ-11,0-159-133 159 133 11 187 О1 300х300 10 230 4 М20 ФБ-0,159-2,0 ОТФ-12,0-159-133 159 133 12 204 О1 300х300 10 230 4 М20 ФБ-0,159-2,0 Назначение: Опора трубчатая фланцевая ОТФ-159-133 предназначена для освещения различных парков, скверов, исторических, культурных территорий и зон отдыха. Данный вид опор предусматривает прокладку к опорам освещения питающего электрокабеля исключительно подземным путем, не допускается применять в линиях с воздушным подводом кабеля. Установка и монтаж: Данный вид опор предусматривает прокладку к опорам освещения питающего электрокабеля исключительно подземным путем, не допускается применять в линиях с воздушным подводом кабеля. Несиловая опора в силу своей конструкции и технических особенностей отличается относительно легким весом, небольшими габаритами, мобильностью в установке. Антикоррозийное покрытие: Горячее цинкование. Лакокрасочное покрытие. Комбинированное покрытие: горячее цинкование + лакокрасочное покрытие.Тип установки: Фланцевые Форма: Трубчатые Тип: ОТФ-10,0-159-133 Высота опоры: 5, 6, 7, 8, 9, 10, 11, 12 м По типу ствола опоры: Трубчатая По типу установки опоры: Фланцевая По типу нагрузки опоры: Несиловая Материал: Металл Покрытие: Горячий цинк, Порошковая краска Нижний ∅: 159 мм Верхний ∅: 133 мм Возможность покраски: Да

36 460 руб.
Санкт-Петербург
Опора трубчатая фланцевая отф-159-133 (Тип: ОТФ-9,0-159-133)

Опора трубчатая фланцевая отф-159-133 (Тип: ОТФ-9,0-159-133)

Тип опор ОТФ-159-133 Характеристики опор трубчатых несиловых фланцевых ОТФ-159-133 Опора ОТФ 159-133 D d H Масса Установочное место кронштейна ØA Sфл Мц n dотв Рекомендуемый фундаментный блок Опора ОТФ мм мм м кг На обечайке мм мм мм шт мм Модель ОТФ-5,0-159-133 159 133 5 82 О1 300х300 10 230 4 М20 ФБ-0,159-1,5 ОТФ-6,0-159-133 159 133 6 93 О1 300х300 10 230 4 М20 ФБ-0,159-1,5 ОТФ-7,0-159-133 159 133 7 109 О1 300х300 10 230 4 М20 ФБ-0,159-1,5 ОТФ-8,0-159-133 159 133 8 120 О1 300х300 10 230 4 М20 ФБ-0,159-2,0 ОТФ-9,0-159-133 159 133 9 131 О1 300х300 10 230 4 М20 ФБ-0,159-2,0 ОТФ-10,0-159-133 159 133 10 143 О1 300х300 10 230 4 М20 ФБ-0,159-2,0 ОТФ-11,0-159-133 159 133 11 187 О1 300х300 10 230 4 М20 ФБ-0,159-2,0 ОТФ-12,0-159-133 159 133 12 204 О1 300х300 10 230 4 М20 ФБ-0,159-2,0 Назначение: Опора трубчатая фланцевая ОТФ-159-133 предназначена для освещения различных парков, скверов, исторических, культурных территорий и зон отдыха. Данный вид опор предусматривает прокладку к опорам освещения питающего электрокабеля исключительно подземным путем, не допускается применять в линиях с воздушным подводом кабеля. Установка и монтаж: Данный вид опор предусматривает прокладку к опорам освещения питающего электрокабеля исключительно подземным путем, не допускается применять в линиях с воздушным подводом кабеля. Несиловая опора в силу своей конструкции и технических особенностей отличается относительно легким весом, небольшими габаритами, мобильностью в установке. Антикоррозийное покрытие: Горячее цинкование. Лакокрасочное покрытие. Комбинированное покрытие: горячее цинкование + лакокрасочное покрытие.Тип установки: Фланцевые Форма: Трубчатые Тип: ОТФ-9,0-159-133 Высота опоры: 5, 6, 7, 8, 9, 10, 11, 12 м По типу ствола опоры: Трубчатая По типу установки опоры: Фланцевая По типу нагрузки опоры: Несиловая Материал: Металл Покрытие: Горячий цинк, Порошковая краска Нижний ∅: 159 мм Верхний ∅: 133 мм Возможность покраски: Да

28 820 руб.
Санкт-Петербург
Опора трубчатая фланцевая отф-159-133 (Тип: ОТФ-8,0-159-133)

Опора трубчатая фланцевая отф-159-133 (Тип: ОТФ-8,0-159-133)

Тип опор ОТФ-159-133 Характеристики опор трубчатых несиловых фланцевых ОТФ-159-133 Опора ОТФ 159-133 D d H Масса Установочное место кронштейна ØA Sфл Мц n dотв Рекомендуемый фундаментный блок Опора ОТФ мм мм м кг На обечайке мм мм мм шт мм Модель ОТФ-5,0-159-133 159 133 5 82 О1 300х300 10 230 4 М20 ФБ-0,159-1,5 ОТФ-6,0-159-133 159 133 6 93 О1 300х300 10 230 4 М20 ФБ-0,159-1,5 ОТФ-7,0-159-133 159 133 7 109 О1 300х300 10 230 4 М20 ФБ-0,159-1,5 ОТФ-8,0-159-133 159 133 8 120 О1 300х300 10 230 4 М20 ФБ-0,159-2,0 ОТФ-9,0-159-133 159 133 9 131 О1 300х300 10 230 4 М20 ФБ-0,159-2,0 ОТФ-10,0-159-133 159 133 10 143 О1 300х300 10 230 4 М20 ФБ-0,159-2,0 ОТФ-11,0-159-133 159 133 11 187 О1 300х300 10 230 4 М20 ФБ-0,159-2,0 ОТФ-12,0-159-133 159 133 12 204 О1 300х300 10 230 4 М20 ФБ-0,159-2,0 Назначение: Опора трубчатая фланцевая ОТФ-159-133 предназначена для освещения различных парков, скверов, исторических, культурных территорий и зон отдыха. Данный вид опор предусматривает прокладку к опорам освещения питающего электрокабеля исключительно подземным путем, не допускается применять в линиях с воздушным подводом кабеля. Установка и монтаж: Данный вид опор предусматривает прокладку к опорам освещения питающего электрокабеля исключительно подземным путем, не допускается применять в линиях с воздушным подводом кабеля. Несиловая опора в силу своей конструкции и технических особенностей отличается относительно легким весом, небольшими габаритами, мобильностью в установке. Антикоррозийное покрытие: Горячее цинкование. Лакокрасочное покрытие. Комбинированное покрытие: горячее цинкование + лакокрасочное покрытие.Тип установки: Фланцевые Форма: Трубчатые Тип: ОТФ-8,0-159-133 Высота опоры: 5, 6, 7, 8, 9, 10, 11, 12 м По типу ствола опоры: Трубчатая По типу установки опоры: Фланцевая По типу нагрузки опоры: Несиловая Материал: Металл Покрытие: Горячий цинк, Порошковая краска Нижний ∅: 159 мм Верхний ∅: 133 мм Возможность покраски: Да

26 400 руб.
Санкт-Петербург
Опора трубчатая фланцевая отф-159-133 (Тип: ОТФ-7,0-159-133)

Опора трубчатая фланцевая отф-159-133 (Тип: ОТФ-7,0-159-133)

Тип опор ОТФ-159-133 Характеристики опор трубчатых несиловых фланцевых ОТФ-159-133 Опора ОТФ 159-133 D d H Масса Установочное место кронштейна ØA Sфл Мц n dотв Рекомендуемый фундаментный блок Опора ОТФ мм мм м кг На обечайке мм мм мм шт мм Модель ОТФ-5,0-159-133 159 133 5 82 О1 300х300 10 230 4 М20 ФБ-0,159-1,5 ОТФ-6,0-159-133 159 133 6 93 О1 300х300 10 230 4 М20 ФБ-0,159-1,5 ОТФ-7,0-159-133 159 133 7 109 О1 300х300 10 230 4 М20 ФБ-0,159-1,5 ОТФ-8,0-159-133 159 133 8 120 О1 300х300 10 230 4 М20 ФБ-0,159-2,0 ОТФ-9,0-159-133 159 133 9 131 О1 300х300 10 230 4 М20 ФБ-0,159-2,0 ОТФ-10,0-159-133 159 133 10 143 О1 300х300 10 230 4 М20 ФБ-0,159-2,0 ОТФ-11,0-159-133 159 133 11 187 О1 300х300 10 230 4 М20 ФБ-0,159-2,0 ОТФ-12,0-159-133 159 133 12 204 О1 300х300 10 230 4 М20 ФБ-0,159-2,0 Назначение: Опора трубчатая фланцевая ОТФ-159-133 предназначена для освещения различных парков, скверов, исторических, культурных территорий и зон отдыха. Данный вид опор предусматривает прокладку к опорам освещения питающего электрокабеля исключительно подземным путем, не допускается применять в линиях с воздушным подводом кабеля. Установка и монтаж: Данный вид опор предусматривает прокладку к опорам освещения питающего электрокабеля исключительно подземным путем, не допускается применять в линиях с воздушным подводом кабеля. Несиловая опора в силу своей конструкции и технических особенностей отличается относительно легким весом, небольшими габаритами, мобильностью в установке. Антикоррозийное покрытие: Горячее цинкование. Лакокрасочное покрытие. Комбинированное покрытие: горячее цинкование + лакокрасочное покрытие.Тип установки: Фланцевые Форма: Трубчатые Тип: ОТФ-7,0-159-133 Высота опоры: 5, 6, 7, 8, 9, 10, 11, 12 м По типу ствола опоры: Трубчатая По типу установки опоры: Фланцевая По типу нагрузки опоры: Несиловая Материал: Металл Покрытие: Горячий цинк, Порошковая краска Нижний ∅: 159 мм Верхний ∅: 133 мм Возможность покраски: Да

23 998 руб.
Санкт-Петербург
Опора ОТФ-159-76 трубчатая фланцевая (Тип: ОТФ-5,0-159-76)

Опора ОТФ-159-76 трубчатая фланцевая (Тип: ОТФ-5,0-159-76)

Типы опор (ОТФ-h-159-76) Обозначение опоры D d H Масса ØA Sфл Мц n dотв Рекомендуемый фундаментный блок ОТФ-(159х76) мм мм м кг мм мм мм шт мм Модель ОТФ-2,5-159-76 159 76 2,5 31 300х300 10 230 4 20 ФБ-0,159-1,0 ОТФ-3,0-159-76 159 76 3 34 300х300 10 230 4 20 ФБ-0,159-1,0 ОТФ-3,5-159-76 159 76 3,5 37 300х300 10 230 4 20 ФБ-0,159-1,5 ОТФ-4,0-159-76 159 76 4 42 300х300 10 230 4 20 ФБ-0,159-1,5 ОТФ-4,5-159-76 159 76 4,5 45 300х300 10 230 4 20 ФБ-0,159-1,5 ОТФ-5,0-159-76 159 76 5 48 300х300 10 230 4 20 ФБ-0,159-1,5 ОТФ-5,5-159-76 159 76 5,5 51 300х300 10 230 4 20 ФБ-0,159-1,5 ОТФ-6,0-159-76 159 76 6 54 300х300 10 230 4 20 ФБ-0,159-1,5 ОТФ-опора трубчатая фланцевая Н-высота опоры, м D-диаметр нижней опоры, мм d-диаметр верхней опоры, мм ØA-линейный размер фланца опоры, мм Sфл-толщина фланца опоры, мм Mц-межцентровое расстояние крепежных отверстий на фланце, мм n-количество крепежных отверстий, шт dотв-диаметр крепежного отверстия, мм Опора (ОТф-159-76): Опоры трубчатые несиловые фланцевые ОТ-159-76 предназначены для освещения различных парков, скверов, исторических, культурных территорий и зон отдыха. Данный вид опор предусматривает прокладку к опорам освещения питающего электрокабеля исключительно подземным путем, не допускается применять в линиях с воздушным подводом кабеля. Несиловая опора в силу своей конструкции и технических особенностей отличается относительно легким весом, небольшими габаритами, мобильностью в установке. Назначение: Опоры трубчатые ОТФ-159-76 предназначены для декоративного освещения любых объектов. Светильники на опоры могут устанавливаться напрямую или с помощью кронштейна. Категорически не допускается использование опор данной серии в качестве силовых. На опоры типа ОТ-159-76 предусмотрена установка торшерных светильников и декоративного кронштейна. Дополнительно к указанному оборудованию возможна установка одного консольного светильника на выносном кронштейне. Монтаж и установка: Для фланцевых трубчатых опор ОТФ-159-76 сначала монтируется фундаментный блок (закладная деталь) в заранее подготовленный котлован на глубину от 0,8 до 2 м и бетонируется, далее при помощи фланцевого соединения на болтах крепится опора. Более подробную информацию о монтаже фундаментных блоков смотрите на странице 97. Способ подвода питающего кабеля: Для несиловых трубчатых опор предусмотрена исключительно подземная подводка кабеля. В подземной части опоры либо фундаментного блока для осуществления ввода и вывода кабеля изготавливаются два окна в параллельных плоскостях. В надземной части опоры расположен ревизионный лючок для обслуживания. Антикоррозийное покрытие: Горячее цинкование. Лакокрасочное покрытие. Комбинированное покрытие: горячее цинкование + лакокрасочное покрытие.Тип установки: Фланцевые Форма: Трубчатые Тип: ОТФ-5,0-159-76 Высота опоры: 2.5, 3, 3.5, 3.7, 4, 5, 6, 7 м По типу ствола опоры: Трубчатая По типу установки опоры: Фланцевая По типу нагрузки опоры: Несиловая Материал: Металл Покрытие: Горячий цинк, Порошковая краска Нижний ∅: 159 мм Верхний ∅: 76 мм Возможность покраски: Да

9 072 руб.
Санкт-Петербург
Опора ОТФ-159-76 трубчатая фланцевая (Тип: ОТФ-4,5-159-76)

Опора ОТФ-159-76 трубчатая фланцевая (Тип: ОТФ-4,5-159-76)

Типы опор (ОТФ-h-159-76) Обозначение опоры D d H Масса ØA Sфл Мц n dотв Рекомендуемый фундаментный блок ОТФ-(159х76) мм мм м кг мм мм мм шт мм Модель ОТФ-2,5-159-76 159 76 2,5 31 300х300 10 230 4 20 ФБ-0,159-1,0 ОТФ-3,0-159-76 159 76 3 34 300х300 10 230 4 20 ФБ-0,159-1,0 ОТФ-3,5-159-76 159 76 3,5 37 300х300 10 230 4 20 ФБ-0,159-1,5 ОТФ-4,0-159-76 159 76 4 42 300х300 10 230 4 20 ФБ-0,159-1,5 ОТФ-4,5-159-76 159 76 4,5 45 300х300 10 230 4 20 ФБ-0,159-1,5 ОТФ-5,0-159-76 159 76 5 48 300х300 10 230 4 20 ФБ-0,159-1,5 ОТФ-5,5-159-76 159 76 5,5 51 300х300 10 230 4 20 ФБ-0,159-1,5 ОТФ-6,0-159-76 159 76 6 54 300х300 10 230 4 20 ФБ-0,159-1,5 ОТФ-опора трубчатая фланцевая Н-высота опоры, м D-диаметр нижней опоры, мм d-диаметр верхней опоры, мм ØA-линейный размер фланца опоры, мм Sфл-толщина фланца опоры, мм Mц-межцентровое расстояние крепежных отверстий на фланце, мм n-количество крепежных отверстий, шт dотв-диаметр крепежного отверстия, мм Опора (ОТф-159-76): Опоры трубчатые несиловые фланцевые ОТ-159-76 предназначены для освещения различных парков, скверов, исторических, культурных территорий и зон отдыха. Данный вид опор предусматривает прокладку к опорам освещения питающего электрокабеля исключительно подземным путем, не допускается применять в линиях с воздушным подводом кабеля. Несиловая опора в силу своей конструкции и технических особенностей отличается относительно легким весом, небольшими габаритами, мобильностью в установке. Назначение: Опоры трубчатые ОТФ-159-76 предназначены для декоративного освещения любых объектов. Светильники на опоры могут устанавливаться напрямую или с помощью кронштейна. Категорически не допускается использование опор данной серии в качестве силовых. На опоры типа ОТ-159-76 предусмотрена установка торшерных светильников и декоративного кронштейна. Дополнительно к указанному оборудованию возможна установка одного консольного светильника на выносном кронштейне. Монтаж и установка: Для фланцевых трубчатых опор ОТФ-159-76 сначала монтируется фундаментный блок (закладная деталь) в заранее подготовленный котлован на глубину от 0,8 до 2 м и бетонируется, далее при помощи фланцевого соединения на болтах крепится опора. Более подробную информацию о монтаже фундаментных блоков смотрите на странице 97. Способ подвода питающего кабеля: Для несиловых трубчатых опор предусмотрена исключительно подземная подводка кабеля. В подземной части опоры либо фундаментного блока для осуществления ввода и вывода кабеля изготавливаются два окна в параллельных плоскостях. В надземной части опоры расположен ревизионный лючок для обслуживания. Антикоррозийное покрытие: Горячее цинкование. Лакокрасочное покрытие. Комбинированное покрытие: горячее цинкование + лакокрасочное покрытие.Тип установки: Фланцевые Форма: Трубчатые Тип: ОТФ-4,5-159-76 Высота опоры: 2.5, 3, 3.5, 3.7, 4, 5, 6, 7 м По типу ствола опоры: Трубчатая По типу установки опоры: Фланцевая По типу нагрузки опоры: Несиловая Материал: Металл Покрытие: Горячий цинк, Порошковая краска Нижний ∅: 159 мм Верхний ∅: 76 мм Возможность покраски: Да

8 568 руб.
Санкт-Петербург
Опора ОТФ-159-76 трубчатая фланцевая (Тип: ОТФ-4,0-159-76)

Опора ОТФ-159-76 трубчатая фланцевая (Тип: ОТФ-4,0-159-76)

Типы опор (ОТФ-h-159-76) Обозначение опоры D d H Масса ØA Sфл Мц n dотв Рекомендуемый фундаментный блок ОТФ-(159х76) мм мм м кг мм мм мм шт мм Модель ОТФ-2,5-159-76 159 76 2,5 31 300х300 10 230 4 20 ФБ-0,159-1,0 ОТФ-3,0-159-76 159 76 3 34 300х300 10 230 4 20 ФБ-0,159-1,0 ОТФ-3,5-159-76 159 76 3,5 37 300х300 10 230 4 20 ФБ-0,159-1,5 ОТФ-4,0-159-76 159 76 4 42 300х300 10 230 4 20 ФБ-0,159-1,5 ОТФ-4,5-159-76 159 76 4,5 45 300х300 10 230 4 20 ФБ-0,159-1,5 ОТФ-5,0-159-76 159 76 5 48 300х300 10 230 4 20 ФБ-0,159-1,5 ОТФ-5,5-159-76 159 76 5,5 51 300х300 10 230 4 20 ФБ-0,159-1,5 ОТФ-6,0-159-76 159 76 6 54 300х300 10 230 4 20 ФБ-0,159-1,5 ОТФ-опора трубчатая фланцевая Н-высота опоры, м D-диаметр нижней опоры, мм d-диаметр верхней опоры, мм ØA-линейный размер фланца опоры, мм Sфл-толщина фланца опоры, мм Mц-межцентровое расстояние крепежных отверстий на фланце, мм n-количество крепежных отверстий, шт dотв-диаметр крепежного отверстия, мм Опора (ОТф-159-76): Опоры трубчатые несиловые фланцевые ОТ-159-76 предназначены для освещения различных парков, скверов, исторических, культурных территорий и зон отдыха. Данный вид опор предусматривает прокладку к опорам освещения питающего электрокабеля исключительно подземным путем, не допускается применять в линиях с воздушным подводом кабеля. Несиловая опора в силу своей конструкции и технических особенностей отличается относительно легким весом, небольшими габаритами, мобильностью в установке. Назначение: Опоры трубчатые ОТФ-159-76 предназначены для декоративного освещения любых объектов. Светильники на опоры могут устанавливаться напрямую или с помощью кронштейна. Категорически не допускается использование опор данной серии в качестве силовых. На опоры типа ОТ-159-76 предусмотрена установка торшерных светильников и декоративного кронштейна. Дополнительно к указанному оборудованию возможна установка одного консольного светильника на выносном кронштейне. Монтаж и установка: Для фланцевых трубчатых опор ОТФ-159-76 сначала монтируется фундаментный блок (закладная деталь) в заранее подготовленный котлован на глубину от 0,8 до 2 м и бетонируется, далее при помощи фланцевого соединения на болтах крепится опора. Более подробную информацию о монтаже фундаментных блоков смотрите на странице 97. Способ подвода питающего кабеля: Для несиловых трубчатых опор предусмотрена исключительно подземная подводка кабеля. В подземной части опоры либо фундаментного блока для осуществления ввода и вывода кабеля изготавливаются два окна в параллельных плоскостях. В надземной части опоры расположен ревизионный лючок для обслуживания. Антикоррозийное покрытие: Горячее цинкование. Лакокрасочное покрытие. Комбинированное покрытие: горячее цинкование + лакокрасочное покрытие.Тип установки: Фланцевые Форма: Трубчатые Тип: ОТФ-4,0-159-76 Высота опоры: 2.5, 3, 3.5, 3.7, 4, 5, 6, 7 м По типу ствола опоры: Трубчатая По типу установки опоры: Фланцевая По типу нагрузки опоры: Несиловая Материал: Металл Покрытие: Горячий цинк, Порошковая краска Нижний ∅: 159 мм Верхний ∅: 76 мм Возможность покраски: Да

8 064 руб.
Санкт-Петербург
Опора ОТФ-159-76 трубчатая фланцевая (Тип: ОТФ-3,5-159-76)

Опора ОТФ-159-76 трубчатая фланцевая (Тип: ОТФ-3,5-159-76)

Типы опор (ОТФ-h-159-76) Обозначение опоры D d H Масса ØA Sфл Мц n dотв Рекомендуемый фундаментный блок ОТФ-(159х76) мм мм м кг мм мм мм шт мм Модель ОТФ-2,5-159-76 159 76 2,5 31 300х300 10 230 4 20 ФБ-0,159-1,0 ОТФ-3,0-159-76 159 76 3 34 300х300 10 230 4 20 ФБ-0,159-1,0 ОТФ-3,5-159-76 159 76 3,5 37 300х300 10 230 4 20 ФБ-0,159-1,5 ОТФ-4,0-159-76 159 76 4 42 300х300 10 230 4 20 ФБ-0,159-1,5 ОТФ-4,5-159-76 159 76 4,5 45 300х300 10 230 4 20 ФБ-0,159-1,5 ОТФ-5,0-159-76 159 76 5 48 300х300 10 230 4 20 ФБ-0,159-1,5 ОТФ-5,5-159-76 159 76 5,5 51 300х300 10 230 4 20 ФБ-0,159-1,5 ОТФ-6,0-159-76 159 76 6 54 300х300 10 230 4 20 ФБ-0,159-1,5 ОТФ-опора трубчатая фланцевая Н-высота опоры, м D-диаметр нижней опоры, мм d-диаметр верхней опоры, мм ØA-линейный размер фланца опоры, мм Sфл-толщина фланца опоры, мм Mц-межцентровое расстояние крепежных отверстий на фланце, мм n-количество крепежных отверстий, шт dотв-диаметр крепежного отверстия, мм Опора (ОТф-159-76): Опоры трубчатые несиловые фланцевые ОТ-159-76 предназначены для освещения различных парков, скверов, исторических, культурных территорий и зон отдыха. Данный вид опор предусматривает прокладку к опорам освещения питающего электрокабеля исключительно подземным путем, не допускается применять в линиях с воздушным подводом кабеля. Несиловая опора в силу своей конструкции и технических особенностей отличается относительно легким весом, небольшими габаритами, мобильностью в установке. Назначение: Опоры трубчатые ОТФ-159-76 предназначены для декоративного освещения любых объектов. Светильники на опоры могут устанавливаться напрямую или с помощью кронштейна. Категорически не допускается использование опор данной серии в качестве силовых. На опоры типа ОТ-159-76 предусмотрена установка торшерных светильников и декоративного кронштейна. Дополнительно к указанному оборудованию возможна установка одного консольного светильника на выносном кронштейне. Монтаж и установка: Для фланцевых трубчатых опор ОТФ-159-76 сначала монтируется фундаментный блок (закладная деталь) в заранее подготовленный котлован на глубину от 0,8 до 2 м и бетонируется, далее при помощи фланцевого соединения на болтах крепится опора. Более подробную информацию о монтаже фундаментных блоков смотрите на странице 97. Способ подвода питающего кабеля: Для несиловых трубчатых опор предусмотрена исключительно подземная подводка кабеля. В подземной части опоры либо фундаментного блока для осуществления ввода и вывода кабеля изготавливаются два окна в параллельных плоскостях. В надземной части опоры расположен ревизионный лючок для обслуживания. Антикоррозийное покрытие: Горячее цинкование. Лакокрасочное покрытие. Комбинированное покрытие: горячее цинкование + лакокрасочное покрытие.Тип установки: Фланцевые Форма: Трубчатые Тип: ОТФ-3,5-159-76 Высота опоры: 2.5, 3, 3.5, 3.7, 4, 5, 6, 7 м По типу ствола опоры: Трубчатая По типу установки опоры: Фланцевая По типу нагрузки опоры: Несиловая Материал: Металл Покрытие: Горячий цинк, Порошковая краска Нижний ∅: 159 мм Верхний ∅: 76 мм Возможность покраски: Да

7 224 руб.
Санкт-Петербург
Опора ОТФ-159-76 трубчатая фланцевая (Тип: ОТФ-3,0-159-76)

Опора ОТФ-159-76 трубчатая фланцевая (Тип: ОТФ-3,0-159-76)

Типы опор (ОТФ-h-159-76) Обозначение опоры D d H Масса ØA Sфл Мц n dотв Рекомендуемый фундаментный блок ОТФ-(159х76) мм мм м кг мм мм мм шт мм Модель ОТФ-2,5-159-76 159 76 2,5 31 300х300 10 230 4 20 ФБ-0,159-1,0 ОТФ-3,0-159-76 159 76 3 34 300х300 10 230 4 20 ФБ-0,159-1,0 ОТФ-3,5-159-76 159 76 3,5 37 300х300 10 230 4 20 ФБ-0,159-1,5 ОТФ-4,0-159-76 159 76 4 42 300х300 10 230 4 20 ФБ-0,159-1,5 ОТФ-4,5-159-76 159 76 4,5 45 300х300 10 230 4 20 ФБ-0,159-1,5 ОТФ-5,0-159-76 159 76 5 48 300х300 10 230 4 20 ФБ-0,159-1,5 ОТФ-5,5-159-76 159 76 5,5 51 300х300 10 230 4 20 ФБ-0,159-1,5 ОТФ-6,0-159-76 159 76 6 54 300х300 10 230 4 20 ФБ-0,159-1,5 ОТФ-опора трубчатая фланцевая Н-высота опоры, м D-диаметр нижней опоры, мм d-диаметр верхней опоры, мм ØA-линейный размер фланца опоры, мм Sфл-толщина фланца опоры, мм Mц-межцентровое расстояние крепежных отверстий на фланце, мм n-количество крепежных отверстий, шт dотв-диаметр крепежного отверстия, мм Опора (ОТф-159-76): Опоры трубчатые несиловые фланцевые ОТ-159-76 предназначены для освещения различных парков, скверов, исторических, культурных территорий и зон отдыха. Данный вид опор предусматривает прокладку к опорам освещения питающего электрокабеля исключительно подземным путем, не допускается применять в линиях с воздушным подводом кабеля. Несиловая опора в силу своей конструкции и технических особенностей отличается относительно легким весом, небольшими габаритами, мобильностью в установке. Назначение: Опоры трубчатые ОТФ-159-76 предназначены для декоративного освещения любых объектов. Светильники на опоры могут устанавливаться напрямую или с помощью кронштейна. Категорически не допускается использование опор данной серии в качестве силовых. На опоры типа ОТ-159-76 предусмотрена установка торшерных светильников и декоративного кронштейна. Дополнительно к указанному оборудованию возможна установка одного консольного светильника на выносном кронштейне. Монтаж и установка: Для фланцевых трубчатых опор ОТФ-159-76 сначала монтируется фундаментный блок (закладная деталь) в заранее подготовленный котлован на глубину от 0,8 до 2 м и бетонируется, далее при помощи фланцевого соединения на болтах крепится опора. Более подробную информацию о монтаже фундаментных блоков смотрите на странице 97. Способ подвода питающего кабеля: Для несиловых трубчатых опор предусмотрена исключительно подземная подводка кабеля. В подземной части опоры либо фундаментного блока для осуществления ввода и вывода кабеля изготавливаются два окна в параллельных плоскостях. В надземной части опоры расположен ревизионный лючок для обслуживания. Антикоррозийное покрытие: Горячее цинкование. Лакокрасочное покрытие. Комбинированное покрытие: горячее цинкование + лакокрасочное покрытие.Тип установки: Фланцевые Форма: Трубчатые Тип: ОТФ-3,0-159-76 Высота опоры: 2.5, 3, 3.5, 3.7, 4, 5, 6, 7 м По типу ствола опоры: Трубчатая По типу установки опоры: Фланцевая По типу нагрузки опоры: Несиловая Материал: Металл Покрытие: Горячий цинк, Порошковая краска Нижний ∅: 159 мм Верхний ∅: 76 мм Возможность покраски: Да

6 720 руб.
Санкт-Петербург
Опора ОТФ-159-76 трубчатая фланцевая (Тип: ОТФ-2,5-159-76)

Опора ОТФ-159-76 трубчатая фланцевая (Тип: ОТФ-2,5-159-76)

Типы опор (ОТФ-h-159-76) Обозначение опоры D d H Масса ØA Sфл Мц n dотв Рекомендуемый фундаментный блок ОТФ-(159х76) мм мм м кг мм мм мм шт мм Модель ОТФ-2,5-159-76 159 76 2,5 31 300х300 10 230 4 20 ФБ-0,159-1,0 ОТФ-3,0-159-76 159 76 3 34 300х300 10 230 4 20 ФБ-0,159-1,0 ОТФ-3,5-159-76 159 76 3,5 37 300х300 10 230 4 20 ФБ-0,159-1,5 ОТФ-4,0-159-76 159 76 4 42 300х300 10 230 4 20 ФБ-0,159-1,5 ОТФ-4,5-159-76 159 76 4,5 45 300х300 10 230 4 20 ФБ-0,159-1,5 ОТФ-5,0-159-76 159 76 5 48 300х300 10 230 4 20 ФБ-0,159-1,5 ОТФ-5,5-159-76 159 76 5,5 51 300х300 10 230 4 20 ФБ-0,159-1,5 ОТФ-6,0-159-76 159 76 6 54 300х300 10 230 4 20 ФБ-0,159-1,5 ОТФ-опора трубчатая фланцевая Н-высота опоры, м D-диаметр нижней опоры, мм d-диаметр верхней опоры, мм ØA-линейный размер фланца опоры, мм Sфл-толщина фланца опоры, мм Mц-межцентровое расстояние крепежных отверстий на фланце, мм n-количество крепежных отверстий, шт dотв-диаметр крепежного отверстия, мм Опора (ОТф-159-76): Опоры трубчатые несиловые фланцевые ОТ-159-76 предназначены для освещения различных парков, скверов, исторических, культурных территорий и зон отдыха. Данный вид опор предусматривает прокладку к опорам освещения питающего электрокабеля исключительно подземным путем, не допускается применять в линиях с воздушным подводом кабеля. Несиловая опора в силу своей конструкции и технических особенностей отличается относительно легким весом, небольшими габаритами, мобильностью в установке. Назначение: Опоры трубчатые ОТФ-159-76 предназначены для декоративного освещения любых объектов. Светильники на опоры могут устанавливаться напрямую или с помощью кронштейна. Категорически не допускается использование опор данной серии в качестве силовых. На опоры типа ОТ-159-76 предусмотрена установка торшерных светильников и декоративного кронштейна. Дополнительно к указанному оборудованию возможна установка одного консольного светильника на выносном кронштейне. Монтаж и установка: Для фланцевых трубчатых опор ОТФ-159-76 сначала монтируется фундаментный блок (закладная деталь) в заранее подготовленный котлован на глубину от 0,8 до 2 м и бетонируется, далее при помощи фланцевого соединения на болтах крепится опора. Более подробную информацию о монтаже фундаментных блоков смотрите на странице 97. Способ подвода питающего кабеля: Для несиловых трубчатых опор предусмотрена исключительно подземная подводка кабеля. В подземной части опоры либо фундаментного блока для осуществления ввода и вывода кабеля изготавливаются два окна в параллельных плоскостях. В надземной части опоры расположен ревизионный лючок для обслуживания. Антикоррозийное покрытие: Горячее цинкование. Лакокрасочное покрытие. Комбинированное покрытие: горячее цинкование + лакокрасочное покрытие.Тип установки: Фланцевые Форма: Трубчатые Тип: ОТФ-2,5-159-76 Высота опоры: 2.5, 3, 3.5, 3.7, 4, 5, 6, 7 м По типу ствола опоры: Трубчатая По типу установки опоры: Фланцевая По типу нагрузки опоры: Несиловая Материал: Металл Покрытие: Горячий цинк, Порошковая краска Нижний ∅: 159 мм Верхний ∅: 76 мм Возможность покраски: Да

5 712 руб.
Санкт-Петербург
Опора трубчатая фланцевая ОТФ-133-108 (Тип: ОТФ-9,0-133-108)

Опора трубчатая фланцевая ОТФ-133-108 (Тип: ОТФ-9,0-133-108)

Тип опор ОТФ-133-108 Обозначение опоры D d H Масса ØA Sфл Мц n dотв ОТФ-133-108 мм мм м кг мм мм мм шт мм ОТФ-5,0-133-108 133 108 5 65 300х300 10 230 4 20 ОТФ-6,0-133-108 133 108 6 75 300х300 10 230 4 20 ОТФ-7,0-133-108 133 108 7 86 300х300 10 230 4 20 ОТФ-8,0-133-108 133 108 8 95 300х300 10 230 4 20 ОТФ-9,0-133-108 133 108 9 104 300х300 10 230 4 20 Назначение: Опора трубчатая фланцевая ОТФ-133-108 предназначена для освещения различных парков, скверов, исторических, культурных территорий и зон отдыха. Данный вид опор предусматривает прокладку к опорам освещения питающего электрокабеля исключительно подземным путем, не допускается применять в линиях с воздушным подводом кабеля. Производство и изготовление: Несиловая опора в силу своей конструкции и технических особенностей отличается относительно легким весом, небольшими габаритами, мобильностью в установке. Монтаж и установка: Для фланцевых трубчатых опор ОТ-133-108 сначала монтируется фундаментный блок (закладная деталь) в заранее подготовленный котлован на глубину от 0,8 до 2 м и бетонируется, далее при помощи фланцевого соединения на болтах крепится опора. Опоры ОТФ-133-108 предназначены для декоративного освещения любых объектов. Светильники на опоры могут устанавливаться напрямую или с помощью кронштейна. Категорически не допускается использование опор данной серии в качестве силовых. Трубчатые опоры типа ОТ-133-108. На данный тип опоры предусмотрена установка осветительного прибора венчающего типа (торшерного светильника). Оборудование размещается непосредственно на верхнюю часть опоры или крепится с помощью декоративного кронштейна. Способ подвода питающего кабеля: Для несиловых трубчатых опор предусмотрена исключительно подземная подводка кабеля. В подземной части опоры либо фундаментного блока для осуществления ввода и вывода кабеля изготавливаются два окна в параллельных плоскостях. В надземной части опоры расположен ревизионный лючок для обслуживания. Антикоррозийное покрытие: Горячее цинкование. Лакокрасочное покрытие. Комбинированное покрытие: горячее цинкование + лакокрасочное покрытие.Тип установки: Фланцевые Форма: Трубчатые Тип: ОТФ-9,0-133-108 Высота опоры: 5, 6, 7, 8, 9 м По типу ствола опоры: Трубчатая По типу установки опоры: Фланцевая По типу нагрузки опоры: Несиловая Материал: Металл Покрытие: Горячий цинк, Порошковая краска Нижний ∅: 133 мм Верхний ∅: 108 мм Возможность покраски: Да

22 440 руб.
Санкт-Петербург
Опора трубчатая фланцевая ОТФ-133-108 (Тип: ОТФ-8,0-133-108)

Опора трубчатая фланцевая ОТФ-133-108 (Тип: ОТФ-8,0-133-108)

Тип опор ОТФ-133-108 Обозначение опоры D d H Масса ØA Sфл Мц n dотв ОТФ-133-108 мм мм м кг мм мм мм шт мм ОТФ-5,0-133-108 133 108 5 65 300х300 10 230 4 20 ОТФ-6,0-133-108 133 108 6 75 300х300 10 230 4 20 ОТФ-7,0-133-108 133 108 7 86 300х300 10 230 4 20 ОТФ-8,0-133-108 133 108 8 95 300х300 10 230 4 20 ОТФ-9,0-133-108 133 108 9 104 300х300 10 230 4 20 Назначение: Опора трубчатая фланцевая ОТФ-133-108 предназначена для освещения различных парков, скверов, исторических, культурных территорий и зон отдыха. Данный вид опор предусматривает прокладку к опорам освещения питающего электрокабеля исключительно подземным путем, не допускается применять в линиях с воздушным подводом кабеля. Производство и изготовление: Несиловая опора в силу своей конструкции и технических особенностей отличается относительно легким весом, небольшими габаритами, мобильностью в установке. Монтаж и установка: Для фланцевых трубчатых опор ОТ-133-108 сначала монтируется фундаментный блок (закладная деталь) в заранее подготовленный котлован на глубину от 0,8 до 2 м и бетонируется, далее при помощи фланцевого соединения на болтах крепится опора. Опоры ОТФ-133-108 предназначены для декоративного освещения любых объектов. Светильники на опоры могут устанавливаться напрямую или с помощью кронштейна. Категорически не допускается использование опор данной серии в качестве силовых. Трубчатые опоры типа ОТ-133-108. На данный тип опоры предусмотрена установка осветительного прибора венчающего типа (торшерного светильника). Оборудование размещается непосредственно на верхнюю часть опоры или крепится с помощью декоративного кронштейна. Способ подвода питающего кабеля: Для несиловых трубчатых опор предусмотрена исключительно подземная подводка кабеля. В подземной части опоры либо фундаментного блока для осуществления ввода и вывода кабеля изготавливаются два окна в параллельных плоскостях. В надземной части опоры расположен ревизионный лючок для обслуживания. Антикоррозийное покрытие: Горячее цинкование. Лакокрасочное покрытие. Комбинированное покрытие: горячее цинкование + лакокрасочное покрытие.Тип установки: Фланцевые Форма: Трубчатые Тип: ОТФ-8,0-133-108 Высота опоры: 5, 6, 7, 8, 9 м По типу ствола опоры: Трубчатая По типу установки опоры: Фланцевая По типу нагрузки опоры: Несиловая Материал: Металл Покрытие: Горячий цинк, Порошковая краска Нижний ∅: 133 мм Верхний ∅: 108 мм Возможность покраски: Да

19 080 руб.
Санкт-Петербург
Опора трубчатая фланцевая ОТФ-133-108 (Тип: ОТФ-7,0-133-108)

Опора трубчатая фланцевая ОТФ-133-108 (Тип: ОТФ-7,0-133-108)

Тип опор ОТФ-133-108 Обозначение опоры D d H Масса ØA Sфл Мц n dотв ОТФ-133-108 мм мм м кг мм мм мм шт мм ОТФ-5,0-133-108 133 108 5 65 300х300 10 230 4 20 ОТФ-6,0-133-108 133 108 6 75 300х300 10 230 4 20 ОТФ-7,0-133-108 133 108 7 86 300х300 10 230 4 20 ОТФ-8,0-133-108 133 108 8 95 300х300 10 230 4 20 ОТФ-9,0-133-108 133 108 9 104 300х300 10 230 4 20 Назначение: Опора трубчатая фланцевая ОТФ-133-108 предназначена для освещения различных парков, скверов, исторических, культурных территорий и зон отдыха. Данный вид опор предусматривает прокладку к опорам освещения питающего электрокабеля исключительно подземным путем, не допускается применять в линиях с воздушным подводом кабеля. Производство и изготовление: Несиловая опора в силу своей конструкции и технических особенностей отличается относительно легким весом, небольшими габаритами, мобильностью в установке. Монтаж и установка: Для фланцевых трубчатых опор ОТ-133-108 сначала монтируется фундаментный блок (закладная деталь) в заранее подготовленный котлован на глубину от 0,8 до 2 м и бетонируется, далее при помощи фланцевого соединения на болтах крепится опора. Опоры ОТФ-133-108 предназначены для декоративного освещения любых объектов. Светильники на опоры могут устанавливаться напрямую или с помощью кронштейна. Категорически не допускается использование опор данной серии в качестве силовых. Трубчатые опоры типа ОТ-133-108. На данный тип опоры предусмотрена установка осветительного прибора венчающего типа (торшерного светильника). Оборудование размещается непосредственно на верхнюю часть опоры или крепится с помощью декоративного кронштейна. Способ подвода питающего кабеля: Для несиловых трубчатых опор предусмотрена исключительно подземная подводка кабеля. В подземной части опоры либо фундаментного блока для осуществления ввода и вывода кабеля изготавливаются два окна в параллельных плоскостях. В надземной части опоры расположен ревизионный лючок для обслуживания. Антикоррозийное покрытие: Горячее цинкование. Лакокрасочное покрытие. Комбинированное покрытие: горячее цинкование + лакокрасочное покрытие.Тип установки: Фланцевые Форма: Трубчатые Тип: ОТФ-7,0-133-108 Высота опоры: 5, 6, 7, 8, 9 м По типу ствола опоры: Трубчатая По типу установки опоры: Фланцевая По типу нагрузки опоры: Несиловая Материал: Металл Покрытие: Горячий цинк, Порошковая краска Нижний ∅: 133 мм Верхний ∅: 108 мм Возможность покраски: Да

16 280 руб.
Санкт-Петербург
Опора трубчатая фланцевая ОТФ-133-108 (Тип: ОТФ-6,0-133-108)

Опора трубчатая фланцевая ОТФ-133-108 (Тип: ОТФ-6,0-133-108)

Тип опор ОТФ-133-108 Обозначение опоры D d H Масса ØA Sфл Мц n dотв ОТФ-133-108 мм мм м кг мм мм мм шт мм ОТФ-5,0-133-108 133 108 5 65 300х300 10 230 4 20 ОТФ-6,0-133-108 133 108 6 75 300х300 10 230 4 20 ОТФ-7,0-133-108 133 108 7 86 300х300 10 230 4 20 ОТФ-8,0-133-108 133 108 8 95 300х300 10 230 4 20 ОТФ-9,0-133-108 133 108 9 104 300х300 10 230 4 20 Назначение: Опора трубчатая фланцевая ОТФ-133-108 предназначена для освещения различных парков, скверов, исторических, культурных территорий и зон отдыха. Данный вид опор предусматривает прокладку к опорам освещения питающего электрокабеля исключительно подземным путем, не допускается применять в линиях с воздушным подводом кабеля. Производство и изготовление: Несиловая опора в силу своей конструкции и технических особенностей отличается относительно легким весом, небольшими габаритами, мобильностью в установке. Монтаж и установка: Для фланцевых трубчатых опор ОТ-133-108 сначала монтируется фундаментный блок (закладная деталь) в заранее подготовленный котлован на глубину от 0,8 до 2 м и бетонируется, далее при помощи фланцевого соединения на болтах крепится опора. Опоры ОТФ-133-108 предназначены для декоративного освещения любых объектов. Светильники на опоры могут устанавливаться напрямую или с помощью кронштейна. Категорически не допускается использование опор данной серии в качестве силовых. Трубчатые опоры типа ОТ-133-108. На данный тип опоры предусмотрена установка осветительного прибора венчающего типа (торшерного светильника). Оборудование размещается непосредственно на верхнюю часть опоры или крепится с помощью декоративного кронштейна. Способ подвода питающего кабеля: Для несиловых трубчатых опор предусмотрена исключительно подземная подводка кабеля. В подземной части опоры либо фундаментного блока для осуществления ввода и вывода кабеля изготавливаются два окна в параллельных плоскостях. В надземной части опоры расположен ревизионный лючок для обслуживания. Антикоррозийное покрытие: Горячее цинкование. Лакокрасочное покрытие. Комбинированное покрытие: горячее цинкование + лакокрасочное покрытие.Тип установки: Фланцевые Форма: Трубчатые Тип: ОТФ-6,0-133-108 Высота опоры: 5, 6, 7, 8, 9 м По типу ствола опоры: Трубчатая По типу установки опоры: Фланцевая По типу нагрузки опоры: Несиловая Материал: Металл Покрытие: Горячий цинк, Порошковая краска Нижний ∅: 133 мм Верхний ∅: 108 мм Возможность покраски: Да

14 120 руб.
Санкт-Петербург
Опора трубчатая фланцевая ОТФ-133-108 (Тип: ОТФ-5,0-133-108)

Опора трубчатая фланцевая ОТФ-133-108 (Тип: ОТФ-5,0-133-108)

Тип опор ОТФ-133-108 Обозначение опоры D d H Масса ØA Sфл Мц n dотв ОТФ-133-108 мм мм м кг мм мм мм шт мм ОТФ-5,0-133-108 133 108 5 65 300х300 10 230 4 20 ОТФ-6,0-133-108 133 108 6 75 300х300 10 230 4 20 ОТФ-7,0-133-108 133 108 7 86 300х300 10 230 4 20 ОТФ-8,0-133-108 133 108 8 95 300х300 10 230 4 20 ОТФ-9,0-133-108 133 108 9 104 300х300 10 230 4 20 Назначение: Опора трубчатая фланцевая ОТФ-133-108 предназначена для освещения различных парков, скверов, исторических, культурных территорий и зон отдыха. Данный вид опор предусматривает прокладку к опорам освещения питающего электрокабеля исключительно подземным путем, не допускается применять в линиях с воздушным подводом кабеля. Производство и изготовление: Несиловая опора в силу своей конструкции и технических особенностей отличается относительно легким весом, небольшими габаритами, мобильностью в установке. Монтаж и установка: Для фланцевых трубчатых опор ОТ-133-108 сначала монтируется фундаментный блок (закладная деталь) в заранее подготовленный котлован на глубину от 0,8 до 2 м и бетонируется, далее при помощи фланцевого соединения на болтах крепится опора. Опоры ОТФ-133-108 предназначены для декоративного освещения любых объектов. Светильники на опоры могут устанавливаться напрямую или с помощью кронштейна. Категорически не допускается использование опор данной серии в качестве силовых. Трубчатые опоры типа ОТ-133-108. На данный тип опоры предусмотрена установка осветительного прибора венчающего типа (торшерного светильника). Оборудование размещается непосредственно на верхнюю часть опоры или крепится с помощью декоративного кронштейна. Способ подвода питающего кабеля: Для несиловых трубчатых опор предусмотрена исключительно подземная подводка кабеля. В подземной части опоры либо фундаментного блока для осуществления ввода и вывода кабеля изготавливаются два окна в параллельных плоскостях. В надземной части опоры расположен ревизионный лючок для обслуживания. Антикоррозийное покрытие: Горячее цинкование. Лакокрасочное покрытие. Комбинированное покрытие: горячее цинкование + лакокрасочное покрытие.Тип установки: Фланцевые Форма: Трубчатые Тип: ОТФ-5,0-133-108 Высота опоры: 5, 6, 7, 8, 9 м По типу ствола опоры: Трубчатая По типу установки опоры: Фланцевая По типу нагрузки опоры: Несиловая Материал: Металл Покрытие: Горячий цинк, Порошковая краска Нижний ∅: 133 мм Верхний ∅: 108 мм Возможность покраски: Да

12 960 руб.
Санкт-Петербург
Опора трубчатая фланцевая ОТФ-108-76 (Тип: ОТФ-6,0-108-76)

Опора трубчатая фланцевая ОТФ-108-76 (Тип: ОТФ-6,0-108-76)

Опора освещения Тип ОТФ-108-76 Характеристики опор ОТФ-108-76 Обозначение опоры D d H Масса ØA Sфл Мц n dотв Рекомендуемый фундаментный блок Опоры ОТФ 108-76 мм мм м кг мм мм мм шт мм Тип ОТФ-1,5-108-76 108 76 1,5 20 250х250 10 160 4 20 ФБ-0,108-0,8 ОТФ-2,0-108-76 108 76 2 23 250х250 10 160 4 20 ФБ-0,108-0,8 ОТФ-2,5-108-76 108 76 2,5 27 250х250 10 160 4 20 ФБ-0,108-0,8 ОТФ-3,0-108-76 108 76 3 29 250х250 10 160 4 20 ФБ-0,108-0,8 ОТФ-3,2-108-76 108 76 3,2 30 250х250 10 160 4 20 ФБ-0,108-1,0 ОТФ-3,5-108-76 108 76 3,5 32 250х250 10 160 4 20 ФБ-0,108-1,0 ОТФ-4,0-108-76 108 76 4 35 250х250 10 160 4 20 ФБ-0,108-1,0 ОТФ-4,5-108-76 108 76 4,5 38 250х250 10 160 4 20 ФБ-0,108-1,0 ОТФ-5,0-108-76 108 76 5 41 250х250 10 160 4 20 ФБ-0,108-1,0 ОТФ-5,5-108-76 108 76 5,5 47 250х250 10 160 4 20 ФБ-0,108-1,0 ОТФ-6,0-108-76 108 76 6 50 250х250 10 160 4 20 ФБ-0,108-1,0 ОТФ-108-76 - опора трубчатая фланцевая Н-высота опоры, м D-диаметр нижней опоры, мм d-диаметр верхней опоры, мм ØA-линейный размер фланца опоры, мм Sфл-толщина фланца опоры, мм Mц-межцентровое расстояние крепежных отверстий на фланце, мм n-количество крепежных отверстий, шт dотв-диаметр крепежного отверстия, мм Назначение: Опора трубчатая несиловая фланцевая ОТФ-108-76 предназначена для освещения различных парков, скверов, исторических, культурных территорий и зон отдыха. Данный вид опор предусматривает прокладку к опорам освещения питающего электрокабеля исключительно подземным путем, не допускается применять в линиях с воздушным подводом кабеля. Производство и изготовление: Несиловая опора в силу своей конструкции и технических особенностей отличается относительно легким весом, небольшими габаритами, мобильностью в установке. Монтаж и установка: Для фланцевых трубчатых опор ОТ-108-76 сначала монтируется фундаментный блок (закладная деталь) в заранее подготовленный котлован на глубину от 0,8 до 2 м и бетонируется, далее при помощи фланцевого соединения на болтах крепится опора. Опоры ОТФ-108-76 предназначены для декоративного освещения любых объектов. Светильники на опоры могут устанавливаться напрямую или с помощью кронштейна. Категорически не допускается использование опор данной серии в качестве силовых. Трубчатые опоры типа ОТ-108-76. На данный тип опоры предусмотрена установка осветительного прибора венчающего типа (торшерного светильника). Оборудование размещается непосредственно на верхнюю часть опоры или крепится с помощью декоративного кронштейна. Способ подвода питающего кабеля: Для несиловых трубчатых опор предусмотрена исключительно подземная подводка кабеля. В подземной части опоры либо фундаментного блока для осуществления ввода и вывода кабеля изготавливаются два окна в параллельных плоскостях. В надземной части опоры расположен ревизионный лючок для обслуживания. Антикоррозийное покрытие: Горячее цинкование. Лакокрасочное покрытие. Комбинированное покрытие: горячее цинкование + лакокрасочное покрытие.Тип установки: Фланцевые Форма: Трубчатые Тип: ОТФ-6,0-108-76 Высота опоры: 1.5, 2, 2.5, 3, 3.5, 4, 4.5, 5, 5.5, 6 м По типу ствола опоры: Трубчатая По типу установки опоры: Фланцевая По типу нагрузки опоры: Несиловая Материал: Металл Покрытие: Горячий цинк, Порошковая краска Нижний ∅: 108 мм Верхний ∅: 76 мм Возможность покраски: Да

16 400 руб.
Санкт-Петербург
Опора трубчатая фланцевая ОТФ-108-76 (Тип: ОТФ-5,5-108-76)

Опора трубчатая фланцевая ОТФ-108-76 (Тип: ОТФ-5,5-108-76)

Опора освещения Тип ОТФ-108-76 Характеристики опор ОТФ-108-76 Обозначение опоры D d H Масса ØA Sфл Мц n dотв Рекомендуемый фундаментный блок Опоры ОТФ 108-76 мм мм м кг мм мм мм шт мм Тип ОТФ-1,5-108-76 108 76 1,5 20 250х250 10 160 4 20 ФБ-0,108-0,8 ОТФ-2,0-108-76 108 76 2 23 250х250 10 160 4 20 ФБ-0,108-0,8 ОТФ-2,5-108-76 108 76 2,5 27 250х250 10 160 4 20 ФБ-0,108-0,8 ОТФ-3,0-108-76 108 76 3 29 250х250 10 160 4 20 ФБ-0,108-0,8 ОТФ-3,2-108-76 108 76 3,2 30 250х250 10 160 4 20 ФБ-0,108-1,0 ОТФ-3,5-108-76 108 76 3,5 32 250х250 10 160 4 20 ФБ-0,108-1,0 ОТФ-4,0-108-76 108 76 4 35 250х250 10 160 4 20 ФБ-0,108-1,0 ОТФ-4,5-108-76 108 76 4,5 38 250х250 10 160 4 20 ФБ-0,108-1,0 ОТФ-5,0-108-76 108 76 5 41 250х250 10 160 4 20 ФБ-0,108-1,0 ОТФ-5,5-108-76 108 76 5,5 47 250х250 10 160 4 20 ФБ-0,108-1,0 ОТФ-6,0-108-76 108 76 6 50 250х250 10 160 4 20 ФБ-0,108-1,0 ОТФ-108-76 - опора трубчатая фланцевая Н-высота опоры, м D-диаметр нижней опоры, мм d-диаметр верхней опоры, мм ØA-линейный размер фланца опоры, мм Sфл-толщина фланца опоры, мм Mц-межцентровое расстояние крепежных отверстий на фланце, мм n-количество крепежных отверстий, шт dотв-диаметр крепежного отверстия, мм Назначение: Опора трубчатая несиловая фланцевая ОТФ-108-76 предназначена для освещения различных парков, скверов, исторических, культурных территорий и зон отдыха. Данный вид опор предусматривает прокладку к опорам освещения питающего электрокабеля исключительно подземным путем, не допускается применять в линиях с воздушным подводом кабеля. Производство и изготовление: Несиловая опора в силу своей конструкции и технических особенностей отличается относительно легким весом, небольшими габаритами, мобильностью в установке. Монтаж и установка: Для фланцевых трубчатых опор ОТ-108-76 сначала монтируется фундаментный блок (закладная деталь) в заранее подготовленный котлован на глубину от 0,8 до 2 м и бетонируется, далее при помощи фланцевого соединения на болтах крепится опора. Опоры ОТФ-108-76 предназначены для декоративного освещения любых объектов. Светильники на опоры могут устанавливаться напрямую или с помощью кронштейна. Категорически не допускается использование опор данной серии в качестве силовых. Трубчатые опоры типа ОТ-108-76. На данный тип опоры предусмотрена установка осветительного прибора венчающего типа (торшерного светильника). Оборудование размещается непосредственно на верхнюю часть опоры или крепится с помощью декоративного кронштейна. Способ подвода питающего кабеля: Для несиловых трубчатых опор предусмотрена исключительно подземная подводка кабеля. В подземной части опоры либо фундаментного блока для осуществления ввода и вывода кабеля изготавливаются два окна в параллельных плоскостях. В надземной части опоры расположен ревизионный лючок для обслуживания. Антикоррозийное покрытие: Горячее цинкование. Лакокрасочное покрытие. Комбинированное покрытие: горячее цинкование + лакокрасочное покрытие.Тип установки: Фланцевые Форма: Трубчатые Тип: ОТФ-5,5-108-76 Высота опоры: 1.5, 2, 2.5, 3, 3.5, 4, 4.5, 5, 5.5, 6 м По типу ствола опоры: Трубчатая По типу установки опоры: Фланцевая По типу нагрузки опоры: Несиловая Материал: Металл Покрытие: Горячий цинк, Порошковая краска Нижний ∅: 108 мм Верхний ∅: 76 мм Возможность покраски: Да

15 800 руб.
Санкт-Петербург
Опора трубчатая фланцевая ОТФ-108-76 (Тип: ОТФ-5,0-108-76)

Опора трубчатая фланцевая ОТФ-108-76 (Тип: ОТФ-5,0-108-76)

Опора освещения Тип ОТФ-108-76 Характеристики опор ОТФ-108-76 Обозначение опоры D d H Масса ØA Sфл Мц n dотв Рекомендуемый фундаментный блок Опоры ОТФ 108-76 мм мм м кг мм мм мм шт мм Тип ОТФ-1,5-108-76 108 76 1,5 20 250х250 10 160 4 20 ФБ-0,108-0,8 ОТФ-2,0-108-76 108 76 2 23 250х250 10 160 4 20 ФБ-0,108-0,8 ОТФ-2,5-108-76 108 76 2,5 27 250х250 10 160 4 20 ФБ-0,108-0,8 ОТФ-3,0-108-76 108 76 3 29 250х250 10 160 4 20 ФБ-0,108-0,8 ОТФ-3,2-108-76 108 76 3,2 30 250х250 10 160 4 20 ФБ-0,108-1,0 ОТФ-3,5-108-76 108 76 3,5 32 250х250 10 160 4 20 ФБ-0,108-1,0 ОТФ-4,0-108-76 108 76 4 35 250х250 10 160 4 20 ФБ-0,108-1,0 ОТФ-4,5-108-76 108 76 4,5 38 250х250 10 160 4 20 ФБ-0,108-1,0 ОТФ-5,0-108-76 108 76 5 41 250х250 10 160 4 20 ФБ-0,108-1,0 ОТФ-5,5-108-76 108 76 5,5 47 250х250 10 160 4 20 ФБ-0,108-1,0 ОТФ-6,0-108-76 108 76 6 50 250х250 10 160 4 20 ФБ-0,108-1,0 ОТФ-108-76 - опора трубчатая фланцевая Н-высота опоры, м D-диаметр нижней опоры, мм d-диаметр верхней опоры, мм ØA-линейный размер фланца опоры, мм Sфл-толщина фланца опоры, мм Mц-межцентровое расстояние крепежных отверстий на фланце, мм n-количество крепежных отверстий, шт dотв-диаметр крепежного отверстия, мм Назначение: Опора трубчатая несиловая фланцевая ОТФ-108-76 предназначена для освещения различных парков, скверов, исторических, культурных территорий и зон отдыха. Данный вид опор предусматривает прокладку к опорам освещения питающего электрокабеля исключительно подземным путем, не допускается применять в линиях с воздушным подводом кабеля. Производство и изготовление: Несиловая опора в силу своей конструкции и технических особенностей отличается относительно легким весом, небольшими габаритами, мобильностью в установке. Монтаж и установка: Для фланцевых трубчатых опор ОТ-108-76 сначала монтируется фундаментный блок (закладная деталь) в заранее подготовленный котлован на глубину от 0,8 до 2 м и бетонируется, далее при помощи фланцевого соединения на болтах крепится опора. Опоры ОТФ-108-76 предназначены для декоративного освещения любых объектов. Светильники на опоры могут устанавливаться напрямую или с помощью кронштейна. Категорически не допускается использование опор данной серии в качестве силовых. Трубчатые опоры типа ОТ-108-76. На данный тип опоры предусмотрена установка осветительного прибора венчающего типа (торшерного светильника). Оборудование размещается непосредственно на верхнюю часть опоры или крепится с помощью декоративного кронштейна. Способ подвода питающего кабеля: Для несиловых трубчатых опор предусмотрена исключительно подземная подводка кабеля. В подземной части опоры либо фундаментного блока для осуществления ввода и вывода кабеля изготавливаются два окна в параллельных плоскостях. В надземной части опоры расположен ревизионный лючок для обслуживания. Антикоррозийное покрытие: Горячее цинкование. Лакокрасочное покрытие. Комбинированное покрытие: горячее цинкование + лакокрасочное покрытие.Тип установки: Фланцевые Форма: Трубчатые Тип: ОТФ-5,0-108-76 Высота опоры: 1.5, 2, 2.5, 3, 3.5, 4, 4.5, 5, 5.5, 6 м По типу ствола опоры: Трубчатая По типу установки опоры: Фланцевая По типу нагрузки опоры: Несиловая Материал: Металл Покрытие: Горячий цинк, Порошковая краска Нижний ∅: 108 мм Верхний ∅: 76 мм Возможность покраски: Да

15 500 руб.
Санкт-Петербург
Опора трубчатая фланцевая ОТФ-108-76 (Тип: ОТФ-4,5-108-76)

Опора трубчатая фланцевая ОТФ-108-76 (Тип: ОТФ-4,5-108-76)

Опора освещения Тип ОТФ-108-76 Характеристики опор ОТФ-108-76 Обозначение опоры D d H Масса ØA Sфл Мц n dотв Рекомендуемый фундаментный блок Опоры ОТФ 108-76 мм мм м кг мм мм мм шт мм Тип ОТФ-1,5-108-76 108 76 1,5 20 250х250 10 160 4 20 ФБ-0,108-0,8 ОТФ-2,0-108-76 108 76 2 23 250х250 10 160 4 20 ФБ-0,108-0,8 ОТФ-2,5-108-76 108 76 2,5 27 250х250 10 160 4 20 ФБ-0,108-0,8 ОТФ-3,0-108-76 108 76 3 29 250х250 10 160 4 20 ФБ-0,108-0,8 ОТФ-3,2-108-76 108 76 3,2 30 250х250 10 160 4 20 ФБ-0,108-1,0 ОТФ-3,5-108-76 108 76 3,5 32 250х250 10 160 4 20 ФБ-0,108-1,0 ОТФ-4,0-108-76 108 76 4 35 250х250 10 160 4 20 ФБ-0,108-1,0 ОТФ-4,5-108-76 108 76 4,5 38 250х250 10 160 4 20 ФБ-0,108-1,0 ОТФ-5,0-108-76 108 76 5 41 250х250 10 160 4 20 ФБ-0,108-1,0 ОТФ-5,5-108-76 108 76 5,5 47 250х250 10 160 4 20 ФБ-0,108-1,0 ОТФ-6,0-108-76 108 76 6 50 250х250 10 160 4 20 ФБ-0,108-1,0 ОТФ-108-76 - опора трубчатая фланцевая Н-высота опоры, м D-диаметр нижней опоры, мм d-диаметр верхней опоры, мм ØA-линейный размер фланца опоры, мм Sфл-толщина фланца опоры, мм Mц-межцентровое расстояние крепежных отверстий на фланце, мм n-количество крепежных отверстий, шт dотв-диаметр крепежного отверстия, мм Назначение: Опора трубчатая несиловая фланцевая ОТФ-108-76 предназначена для освещения различных парков, скверов, исторических, культурных территорий и зон отдыха. Данный вид опор предусматривает прокладку к опорам освещения питающего электрокабеля исключительно подземным путем, не допускается применять в линиях с воздушным подводом кабеля. Производство и изготовление: Несиловая опора в силу своей конструкции и технических особенностей отличается относительно легким весом, небольшими габаритами, мобильностью в установке. Монтаж и установка: Для фланцевых трубчатых опор ОТ-108-76 сначала монтируется фундаментный блок (закладная деталь) в заранее подготовленный котлован на глубину от 0,8 до 2 м и бетонируется, далее при помощи фланцевого соединения на болтах крепится опора. Опоры ОТФ-108-76 предназначены для декоративного освещения любых объектов. Светильники на опоры могут устанавливаться напрямую или с помощью кронштейна. Категорически не допускается использование опор данной серии в качестве силовых. Трубчатые опоры типа ОТ-108-76. На данный тип опоры предусмотрена установка осветительного прибора венчающего типа (торшерного светильника). Оборудование размещается непосредственно на верхнюю часть опоры или крепится с помощью декоративного кронштейна. Способ подвода питающего кабеля: Для несиловых трубчатых опор предусмотрена исключительно подземная подводка кабеля. В подземной части опоры либо фундаментного блока для осуществления ввода и вывода кабеля изготавливаются два окна в параллельных плоскостях. В надземной части опоры расположен ревизионный лючок для обслуживания. Антикоррозийное покрытие: Горячее цинкование. Лакокрасочное покрытие. Комбинированное покрытие: горячее цинкование + лакокрасочное покрытие.Тип установки: Фланцевые Форма: Трубчатые Тип: ОТФ-4,5-108-76 Высота опоры: 1.5, 2, 2.5, 3, 3.5, 4, 4.5, 5, 5.5, 6 м По типу ствола опоры: Трубчатая По типу установки опоры: Фланцевая По типу нагрузки опоры: Несиловая Материал: Металл Покрытие: Горячий цинк, Порошковая краска Нижний ∅: 108 мм Верхний ∅: 76 мм Возможность покраски: Да

15 000 руб.
Санкт-Петербург
Опора трубчатая фланцевая ОТФ-108-76 (Тип: ОТФ-4,0-108-76)

Опора трубчатая фланцевая ОТФ-108-76 (Тип: ОТФ-4,0-108-76)

Опора освещения Тип ОТФ-108-76 Характеристики опор ОТФ-108-76 Обозначение опоры D d H Масса ØA Sфл Мц n dотв Рекомендуемый фундаментный блок Опоры ОТФ 108-76 мм мм м кг мм мм мм шт мм Тип ОТФ-1,5-108-76 108 76 1,5 20 250х250 10 160 4 20 ФБ-0,108-0,8 ОТФ-2,0-108-76 108 76 2 23 250х250 10 160 4 20 ФБ-0,108-0,8 ОТФ-2,5-108-76 108 76 2,5 27 250х250 10 160 4 20 ФБ-0,108-0,8 ОТФ-3,0-108-76 108 76 3 29 250х250 10 160 4 20 ФБ-0,108-0,8 ОТФ-3,2-108-76 108 76 3,2 30 250х250 10 160 4 20 ФБ-0,108-1,0 ОТФ-3,5-108-76 108 76 3,5 32 250х250 10 160 4 20 ФБ-0,108-1,0 ОТФ-4,0-108-76 108 76 4 35 250х250 10 160 4 20 ФБ-0,108-1,0 ОТФ-4,5-108-76 108 76 4,5 38 250х250 10 160 4 20 ФБ-0,108-1,0 ОТФ-5,0-108-76 108 76 5 41 250х250 10 160 4 20 ФБ-0,108-1,0 ОТФ-5,5-108-76 108 76 5,5 47 250х250 10 160 4 20 ФБ-0,108-1,0 ОТФ-6,0-108-76 108 76 6 50 250х250 10 160 4 20 ФБ-0,108-1,0 ОТФ-108-76 - опора трубчатая фланцевая Н-высота опоры, м D-диаметр нижней опоры, мм d-диаметр верхней опоры, мм ØA-линейный размер фланца опоры, мм Sфл-толщина фланца опоры, мм Mц-межцентровое расстояние крепежных отверстий на фланце, мм n-количество крепежных отверстий, шт dотв-диаметр крепежного отверстия, мм Назначение: Опора трубчатая несиловая фланцевая ОТФ-108-76 предназначена для освещения различных парков, скверов, исторических, культурных территорий и зон отдыха. Данный вид опор предусматривает прокладку к опорам освещения питающего электрокабеля исключительно подземным путем, не допускается применять в линиях с воздушным подводом кабеля. Производство и изготовление: Несиловая опора в силу своей конструкции и технических особенностей отличается относительно легким весом, небольшими габаритами, мобильностью в установке. Монтаж и установка: Для фланцевых трубчатых опор ОТ-108-76 сначала монтируется фундаментный блок (закладная деталь) в заранее подготовленный котлован на глубину от 0,8 до 2 м и бетонируется, далее при помощи фланцевого соединения на болтах крепится опора. Опоры ОТФ-108-76 предназначены для декоративного освещения любых объектов. Светильники на опоры могут устанавливаться напрямую или с помощью кронштейна. Категорически не допускается использование опор данной серии в качестве силовых. Трубчатые опоры типа ОТ-108-76. На данный тип опоры предусмотрена установка осветительного прибора венчающего типа (торшерного светильника). Оборудование размещается непосредственно на верхнюю часть опоры или крепится с помощью декоративного кронштейна. Способ подвода питающего кабеля: Для несиловых трубчатых опор предусмотрена исключительно подземная подводка кабеля. В подземной части опоры либо фундаментного блока для осуществления ввода и вывода кабеля изготавливаются два окна в параллельных плоскостях. В надземной части опоры расположен ревизионный лючок для обслуживания. Антикоррозийное покрытие: Горячее цинкование. Лакокрасочное покрытие. Комбинированное покрытие: горячее цинкование + лакокрасочное покрытие.Тип установки: Фланцевые Форма: Трубчатые Тип: ОТФ-4,0-108-76 Высота опоры: 1.5, 2, 2.5, 3, 3.5, 4, 4.5, 5, 5.5, 6 м По типу ствола опоры: Трубчатая По типу установки опоры: Фланцевая По типу нагрузки опоры: Несиловая Материал: Металл Покрытие: Горячий цинк, Порошковая краска Нижний ∅: 108 мм Верхний ∅: 76 мм Возможность покраски: Да

14 500 руб.
Санкт-Петербург
Опора трубчатая фланцевая ОТФ-108-76 (Тип: ОТФ-3,5-108-76)

Опора трубчатая фланцевая ОТФ-108-76 (Тип: ОТФ-3,5-108-76)

Опора освещения Тип ОТФ-108-76 Характеристики опор ОТФ-108-76 Обозначение опоры D d H Масса ØA Sфл Мц n dотв Рекомендуемый фундаментный блок Опоры ОТФ 108-76 мм мм м кг мм мм мм шт мм Тип ОТФ-1,5-108-76 108 76 1,5 20 250х250 10 160 4 20 ФБ-0,108-0,8 ОТФ-2,0-108-76 108 76 2 23 250х250 10 160 4 20 ФБ-0,108-0,8 ОТФ-2,5-108-76 108 76 2,5 27 250х250 10 160 4 20 ФБ-0,108-0,8 ОТФ-3,0-108-76 108 76 3 29 250х250 10 160 4 20 ФБ-0,108-0,8 ОТФ-3,2-108-76 108 76 3,2 30 250х250 10 160 4 20 ФБ-0,108-1,0 ОТФ-3,5-108-76 108 76 3,5 32 250х250 10 160 4 20 ФБ-0,108-1,0 ОТФ-4,0-108-76 108 76 4 35 250х250 10 160 4 20 ФБ-0,108-1,0 ОТФ-4,5-108-76 108 76 4,5 38 250х250 10 160 4 20 ФБ-0,108-1,0 ОТФ-5,0-108-76 108 76 5 41 250х250 10 160 4 20 ФБ-0,108-1,0 ОТФ-5,5-108-76 108 76 5,5 47 250х250 10 160 4 20 ФБ-0,108-1,0 ОТФ-6,0-108-76 108 76 6 50 250х250 10 160 4 20 ФБ-0,108-1,0 ОТФ-108-76 - опора трубчатая фланцевая Н-высота опоры, м D-диаметр нижней опоры, мм d-диаметр верхней опоры, мм ØA-линейный размер фланца опоры, мм Sфл-толщина фланца опоры, мм Mц-межцентровое расстояние крепежных отверстий на фланце, мм n-количество крепежных отверстий, шт dотв-диаметр крепежного отверстия, мм Назначение: Опора трубчатая несиловая фланцевая ОТФ-108-76 предназначена для освещения различных парков, скверов, исторических, культурных территорий и зон отдыха. Данный вид опор предусматривает прокладку к опорам освещения питающего электрокабеля исключительно подземным путем, не допускается применять в линиях с воздушным подводом кабеля. Производство и изготовление: Несиловая опора в силу своей конструкции и технических особенностей отличается относительно легким весом, небольшими габаритами, мобильностью в установке. Монтаж и установка: Для фланцевых трубчатых опор ОТ-108-76 сначала монтируется фундаментный блок (закладная деталь) в заранее подготовленный котлован на глубину от 0,8 до 2 м и бетонируется, далее при помощи фланцевого соединения на болтах крепится опора. Опоры ОТФ-108-76 предназначены для декоративного освещения любых объектов. Светильники на опоры могут устанавливаться напрямую или с помощью кронштейна. Категорически не допускается использование опор данной серии в качестве силовых. Трубчатые опоры типа ОТ-108-76. На данный тип опоры предусмотрена установка осветительного прибора венчающего типа (торшерного светильника). Оборудование размещается непосредственно на верхнюю часть опоры или крепится с помощью декоративного кронштейна. Способ подвода питающего кабеля: Для несиловых трубчатых опор предусмотрена исключительно подземная подводка кабеля. В подземной части опоры либо фундаментного блока для осуществления ввода и вывода кабеля изготавливаются два окна в параллельных плоскостях. В надземной части опоры расположен ревизионный лючок для обслуживания. Антикоррозийное покрытие: Горячее цинкование. Лакокрасочное покрытие. Комбинированное покрытие: горячее цинкование + лакокрасочное покрытие.Тип установки: Фланцевые Форма: Трубчатые Тип: ОТФ-3,5-108-76 Высота опоры: 1.5, 2, 2.5, 3, 3.5, 4, 4.5, 5, 5.5, 6 м По типу ствола опоры: Трубчатая По типу установки опоры: Фланцевая По типу нагрузки опоры: Несиловая Материал: Металл Покрытие: Горячий цинк, Порошковая краска Нижний ∅: 108 мм Верхний ∅: 76 мм Возможность покраски: Да

11 600 руб.
Санкт-Петербург
Опора трубчатая фланцевая ОТФ-108-76 (Тип: ОТФ-3,2-108-76)

Опора трубчатая фланцевая ОТФ-108-76 (Тип: ОТФ-3,2-108-76)

Опора освещения Тип ОТФ-108-76 Характеристики опор ОТФ-108-76 Обозначение опоры D d H Масса ØA Sфл Мц n dотв Рекомендуемый фундаментный блок Опоры ОТФ 108-76 мм мм м кг мм мм мм шт мм Тип ОТФ-1,5-108-76 108 76 1,5 20 250х250 10 160 4 20 ФБ-0,108-0,8 ОТФ-2,0-108-76 108 76 2 23 250х250 10 160 4 20 ФБ-0,108-0,8 ОТФ-2,5-108-76 108 76 2,5 27 250х250 10 160 4 20 ФБ-0,108-0,8 ОТФ-3,0-108-76 108 76 3 29 250х250 10 160 4 20 ФБ-0,108-0,8 ОТФ-3,2-108-76 108 76 3,2 30 250х250 10 160 4 20 ФБ-0,108-1,0 ОТФ-3,5-108-76 108 76 3,5 32 250х250 10 160 4 20 ФБ-0,108-1,0 ОТФ-4,0-108-76 108 76 4 35 250х250 10 160 4 20 ФБ-0,108-1,0 ОТФ-4,5-108-76 108 76 4,5 38 250х250 10 160 4 20 ФБ-0,108-1,0 ОТФ-5,0-108-76 108 76 5 41 250х250 10 160 4 20 ФБ-0,108-1,0 ОТФ-5,5-108-76 108 76 5,5 47 250х250 10 160 4 20 ФБ-0,108-1,0 ОТФ-6,0-108-76 108 76 6 50 250х250 10 160 4 20 ФБ-0,108-1,0 ОТФ-108-76 - опора трубчатая фланцевая Н-высота опоры, м D-диаметр нижней опоры, мм d-диаметр верхней опоры, мм ØA-линейный размер фланца опоры, мм Sфл-толщина фланца опоры, мм Mц-межцентровое расстояние крепежных отверстий на фланце, мм n-количество крепежных отверстий, шт dотв-диаметр крепежного отверстия, мм Назначение: Опора трубчатая несиловая фланцевая ОТФ-108-76 предназначена для освещения различных парков, скверов, исторических, культурных территорий и зон отдыха. Данный вид опор предусматривает прокладку к опорам освещения питающего электрокабеля исключительно подземным путем, не допускается применять в линиях с воздушным подводом кабеля. Производство и изготовление: Несиловая опора в силу своей конструкции и технических особенностей отличается относительно легким весом, небольшими габаритами, мобильностью в установке. Монтаж и установка: Для фланцевых трубчатых опор ОТ-108-76 сначала монтируется фундаментный блок (закладная деталь) в заранее подготовленный котлован на глубину от 0,8 до 2 м и бетонируется, далее при помощи фланцевого соединения на болтах крепится опора. Опоры ОТФ-108-76 предназначены для декоративного освещения любых объектов. Светильники на опоры могут устанавливаться напрямую или с помощью кронштейна. Категорически не допускается использование опор данной серии в качестве силовых. Трубчатые опоры типа ОТ-108-76. На данный тип опоры предусмотрена установка осветительного прибора венчающего типа (торшерного светильника). Оборудование размещается непосредственно на верхнюю часть опоры или крепится с помощью декоративного кронштейна. Способ подвода питающего кабеля: Для несиловых трубчатых опор предусмотрена исключительно подземная подводка кабеля. В подземной части опоры либо фундаментного блока для осуществления ввода и вывода кабеля изготавливаются два окна в параллельных плоскостях. В надземной части опоры расположен ревизионный лючок для обслуживания. Антикоррозийное покрытие: Горячее цинкование. Лакокрасочное покрытие. Комбинированное покрытие: горячее цинкование + лакокрасочное покрытие.Тип установки: Фланцевые Форма: Трубчатые Тип: ОТФ-3,2-108-76 Высота опоры: 1.5, 2, 2.5, 3, 3.5, 4, 4.5, 5, 5.5, 6 м По типу ствола опоры: Трубчатая По типу установки опоры: Фланцевая По типу нагрузки опоры: Несиловая Материал: Металл Покрытие: Горячий цинк, Порошковая краска Нижний ∅: 108 мм Верхний ∅: 76 мм Возможность покраски: Да

11 000 руб.
Санкт-Петербург
Опора трубчатая фланцевая ОТФ-108-76 (Тип: ОТФ-3,0-108-76)

Опора трубчатая фланцевая ОТФ-108-76 (Тип: ОТФ-3,0-108-76)

Опора освещения Тип ОТФ-108-76 Характеристики опор ОТФ-108-76 Обозначение опоры D d H Масса ØA Sфл Мц n dотв Рекомендуемый фундаментный блок Опоры ОТФ 108-76 мм мм м кг мм мм мм шт мм Тип ОТФ-1,5-108-76 108 76 1,5 20 250х250 10 160 4 20 ФБ-0,108-0,8 ОТФ-2,0-108-76 108 76 2 23 250х250 10 160 4 20 ФБ-0,108-0,8 ОТФ-2,5-108-76 108 76 2,5 27 250х250 10 160 4 20 ФБ-0,108-0,8 ОТФ-3,0-108-76 108 76 3 29 250х250 10 160 4 20 ФБ-0,108-0,8 ОТФ-3,2-108-76 108 76 3,2 30 250х250 10 160 4 20 ФБ-0,108-1,0 ОТФ-3,5-108-76 108 76 3,5 32 250х250 10 160 4 20 ФБ-0,108-1,0 ОТФ-4,0-108-76 108 76 4 35 250х250 10 160 4 20 ФБ-0,108-1,0 ОТФ-4,5-108-76 108 76 4,5 38 250х250 10 160 4 20 ФБ-0,108-1,0 ОТФ-5,0-108-76 108 76 5 41 250х250 10 160 4 20 ФБ-0,108-1,0 ОТФ-5,5-108-76 108 76 5,5 47 250х250 10 160 4 20 ФБ-0,108-1,0 ОТФ-6,0-108-76 108 76 6 50 250х250 10 160 4 20 ФБ-0,108-1,0 ОТФ-108-76 - опора трубчатая фланцевая Н-высота опоры, м D-диаметр нижней опоры, мм d-диаметр верхней опоры, мм ØA-линейный размер фланца опоры, мм Sфл-толщина фланца опоры, мм Mц-межцентровое расстояние крепежных отверстий на фланце, мм n-количество крепежных отверстий, шт dотв-диаметр крепежного отверстия, мм Назначение: Опора трубчатая несиловая фланцевая ОТФ-108-76 предназначена для освещения различных парков, скверов, исторических, культурных территорий и зон отдыха. Данный вид опор предусматривает прокладку к опорам освещения питающего электрокабеля исключительно подземным путем, не допускается применять в линиях с воздушным подводом кабеля. Производство и изготовление: Несиловая опора в силу своей конструкции и технических особенностей отличается относительно легким весом, небольшими габаритами, мобильностью в установке. Монтаж и установка: Для фланцевых трубчатых опор ОТ-108-76 сначала монтируется фундаментный блок (закладная деталь) в заранее подготовленный котлован на глубину от 0,8 до 2 м и бетонируется, далее при помощи фланцевого соединения на болтах крепится опора. Опоры ОТФ-108-76 предназначены для декоративного освещения любых объектов. Светильники на опоры могут устанавливаться напрямую или с помощью кронштейна. Категорически не допускается использование опор данной серии в качестве силовых. Трубчатые опоры типа ОТ-108-76. На данный тип опоры предусмотрена установка осветительного прибора венчающего типа (торшерного светильника). Оборудование размещается непосредственно на верхнюю часть опоры или крепится с помощью декоративного кронштейна. Способ подвода питающего кабеля: Для несиловых трубчатых опор предусмотрена исключительно подземная подводка кабеля. В подземной части опоры либо фундаментного блока для осуществления ввода и вывода кабеля изготавливаются два окна в параллельных плоскостях. В надземной части опоры расположен ревизионный лючок для обслуживания. Антикоррозийное покрытие: Горячее цинкование. Лакокрасочное покрытие. Комбинированное покрытие: горячее цинкование + лакокрасочное покрытие.Тип установки: Фланцевые Форма: Трубчатые Тип: ОТФ-3,0-108-76 Высота опоры: 1.5, 2, 2.5, 3, 3.5, 4, 4.5, 5, 5.5, 6 м По типу ствола опоры: Трубчатая По типу установки опоры: Фланцевая По типу нагрузки опоры: Несиловая Материал: Металл Покрытие: Горячий цинк, Порошковая краска Нижний ∅: 108 мм Верхний ∅: 76 мм Возможность покраски: Да

10 600 руб.
Санкт-Петербург
Опора трубчатая фланцевая ОТФ-108-76 (Тип: ОТФ-2,5-108-76)

Опора трубчатая фланцевая ОТФ-108-76 (Тип: ОТФ-2,5-108-76)

Опора освещения Тип ОТФ-108-76 Характеристики опор ОТФ-108-76 Обозначение опоры D d H Масса ØA Sфл Мц n dотв Рекомендуемый фундаментный блок Опоры ОТФ 108-76 мм мм м кг мм мм мм шт мм Тип ОТФ-1,5-108-76 108 76 1,5 20 250х250 10 160 4 20 ФБ-0,108-0,8 ОТФ-2,0-108-76 108 76 2 23 250х250 10 160 4 20 ФБ-0,108-0,8 ОТФ-2,5-108-76 108 76 2,5 27 250х250 10 160 4 20 ФБ-0,108-0,8 ОТФ-3,0-108-76 108 76 3 29 250х250 10 160 4 20 ФБ-0,108-0,8 ОТФ-3,2-108-76 108 76 3,2 30 250х250 10 160 4 20 ФБ-0,108-1,0 ОТФ-3,5-108-76 108 76 3,5 32 250х250 10 160 4 20 ФБ-0,108-1,0 ОТФ-4,0-108-76 108 76 4 35 250х250 10 160 4 20 ФБ-0,108-1,0 ОТФ-4,5-108-76 108 76 4,5 38 250х250 10 160 4 20 ФБ-0,108-1,0 ОТФ-5,0-108-76 108 76 5 41 250х250 10 160 4 20 ФБ-0,108-1,0 ОТФ-5,5-108-76 108 76 5,5 47 250х250 10 160 4 20 ФБ-0,108-1,0 ОТФ-6,0-108-76 108 76 6 50 250х250 10 160 4 20 ФБ-0,108-1,0 ОТФ-108-76 - опора трубчатая фланцевая Н-высота опоры, м D-диаметр нижней опоры, мм d-диаметр верхней опоры, мм ØA-линейный размер фланца опоры, мм Sфл-толщина фланца опоры, мм Mц-межцентровое расстояние крепежных отверстий на фланце, мм n-количество крепежных отверстий, шт dотв-диаметр крепежного отверстия, мм Назначение: Опора трубчатая несиловая фланцевая ОТФ-108-76 предназначена для освещения различных парков, скверов, исторических, культурных территорий и зон отдыха. Данный вид опор предусматривает прокладку к опорам освещения питающего электрокабеля исключительно подземным путем, не допускается применять в линиях с воздушным подводом кабеля. Производство и изготовление: Несиловая опора в силу своей конструкции и технических особенностей отличается относительно легким весом, небольшими габаритами, мобильностью в установке. Монтаж и установка: Для фланцевых трубчатых опор ОТ-108-76 сначала монтируется фундаментный блок (закладная деталь) в заранее подготовленный котлован на глубину от 0,8 до 2 м и бетонируется, далее при помощи фланцевого соединения на болтах крепится опора. Опоры ОТФ-108-76 предназначены для декоративного освещения любых объектов. Светильники на опоры могут устанавливаться напрямую или с помощью кронштейна. Категорически не допускается использование опор данной серии в качестве силовых. Трубчатые опоры типа ОТ-108-76. На данный тип опоры предусмотрена установка осветительного прибора венчающего типа (торшерного светильника). Оборудование размещается непосредственно на верхнюю часть опоры или крепится с помощью декоративного кронштейна. Способ подвода питающего кабеля: Для несиловых трубчатых опор предусмотрена исключительно подземная подводка кабеля. В подземной части опоры либо фундаментного блока для осуществления ввода и вывода кабеля изготавливаются два окна в параллельных плоскостях. В надземной части опоры расположен ревизионный лючок для обслуживания. Антикоррозийное покрытие: Горячее цинкование. Лакокрасочное покрытие. Комбинированное покрытие: горячее цинкование + лакокрасочное покрытие.Тип установки: Фланцевые Форма: Трубчатые Тип: ОТФ-2,5-108-76 Высота опоры: 1.5, 2, 2.5, 3, 3.5, 4, 4.5, 5, 5.5, 6 м По типу ствола опоры: Трубчатая По типу установки опоры: Фланцевая По типу нагрузки опоры: Несиловая Материал: Металл Покрытие: Горячий цинк, Порошковая краска Нижний ∅: 108 мм Верхний ∅: 76 мм Возможность покраски: Да

8 026 руб.
Санкт-Петербург
Опора трубчатая фланцевая ОТФ-108-76 (Тип: ОТФ-2,0-108-76)

Опора трубчатая фланцевая ОТФ-108-76 (Тип: ОТФ-2,0-108-76)

Опора освещения Тип ОТФ-108-76 Характеристики опор ОТФ-108-76 Обозначение опоры D d H Масса ØA Sфл Мц n dотв Рекомендуемый фундаментный блок Опоры ОТФ 108-76 мм мм м кг мм мм мм шт мм Тип ОТФ-1,5-108-76 108 76 1,5 20 250х250 10 160 4 20 ФБ-0,108-0,8 ОТФ-2,0-108-76 108 76 2 23 250х250 10 160 4 20 ФБ-0,108-0,8 ОТФ-2,5-108-76 108 76 2,5 27 250х250 10 160 4 20 ФБ-0,108-0,8 ОТФ-3,0-108-76 108 76 3 29 250х250 10 160 4 20 ФБ-0,108-0,8 ОТФ-3,2-108-76 108 76 3,2 30 250х250 10 160 4 20 ФБ-0,108-1,0 ОТФ-3,5-108-76 108 76 3,5 32 250х250 10 160 4 20 ФБ-0,108-1,0 ОТФ-4,0-108-76 108 76 4 35 250х250 10 160 4 20 ФБ-0,108-1,0 ОТФ-4,5-108-76 108 76 4,5 38 250х250 10 160 4 20 ФБ-0,108-1,0 ОТФ-5,0-108-76 108 76 5 41 250х250 10 160 4 20 ФБ-0,108-1,0 ОТФ-5,5-108-76 108 76 5,5 47 250х250 10 160 4 20 ФБ-0,108-1,0 ОТФ-6,0-108-76 108 76 6 50 250х250 10 160 4 20 ФБ-0,108-1,0 ОТФ-108-76 - опора трубчатая фланцевая Н-высота опоры, м D-диаметр нижней опоры, мм d-диаметр верхней опоры, мм ØA-линейный размер фланца опоры, мм Sфл-толщина фланца опоры, мм Mц-межцентровое расстояние крепежных отверстий на фланце, мм n-количество крепежных отверстий, шт dотв-диаметр крепежного отверстия, мм Назначение: Опора трубчатая несиловая фланцевая ОТФ-108-76 предназначена для освещения различных парков, скверов, исторических, культурных территорий и зон отдыха. Данный вид опор предусматривает прокладку к опорам освещения питающего электрокабеля исключительно подземным путем, не допускается применять в линиях с воздушным подводом кабеля. Производство и изготовление: Несиловая опора в силу своей конструкции и технических особенностей отличается относительно легким весом, небольшими габаритами, мобильностью в установке. Монтаж и установка: Для фланцевых трубчатых опор ОТ-108-76 сначала монтируется фундаментный блок (закладная деталь) в заранее подготовленный котлован на глубину от 0,8 до 2 м и бетонируется, далее при помощи фланцевого соединения на болтах крепится опора. Опоры ОТФ-108-76 предназначены для декоративного освещения любых объектов. Светильники на опоры могут устанавливаться напрямую или с помощью кронштейна. Категорически не допускается использование опор данной серии в качестве силовых. Трубчатые опоры типа ОТ-108-76. На данный тип опоры предусмотрена установка осветительного прибора венчающего типа (торшерного светильника). Оборудование размещается непосредственно на верхнюю часть опоры или крепится с помощью декоративного кронштейна. Способ подвода питающего кабеля: Для несиловых трубчатых опор предусмотрена исключительно подземная подводка кабеля. В подземной части опоры либо фундаментного блока для осуществления ввода и вывода кабеля изготавливаются два окна в параллельных плоскостях. В надземной части опоры расположен ревизионный лючок для обслуживания. Антикоррозийное покрытие: Горячее цинкование. Лакокрасочное покрытие. Комбинированное покрытие: горячее цинкование + лакокрасочное покрытие.Тип установки: Фланцевые Форма: Трубчатые Тип: ОТФ-2,0-108-76 Высота опоры: 1.5, 2, 2.5, 3, 3.5, 4, 4.5, 5, 5.5, 6 м По типу ствола опоры: Трубчатая По типу установки опоры: Фланцевая По типу нагрузки опоры: Несиловая Материал: Металл Покрытие: Горячий цинк, Порошковая краска Нижний ∅: 108 мм Верхний ∅: 76 мм Возможность покраски: Да

7 899 руб.
Санкт-Петербург
Опора трубчатая фланцевая ОТФ-108-76 (Тип: ОТФ-1,5-108-76)

Опора трубчатая фланцевая ОТФ-108-76 (Тип: ОТФ-1,5-108-76)

Опора освещения Тип ОТФ-108-76 Характеристики опор ОТФ-108-76 Обозначение опоры D d H Масса ØA Sфл Мц n dотв Рекомендуемый фундаментный блок Опоры ОТФ 108-76 мм мм м кг мм мм мм шт мм Тип ОТФ-1,5-108-76 108 76 1,5 20 250х250 10 160 4 20 ФБ-0,108-0,8 ОТФ-2,0-108-76 108 76 2 23 250х250 10 160 4 20 ФБ-0,108-0,8 ОТФ-2,5-108-76 108 76 2,5 27 250х250 10 160 4 20 ФБ-0,108-0,8 ОТФ-3,0-108-76 108 76 3 29 250х250 10 160 4 20 ФБ-0,108-0,8 ОТФ-3,2-108-76 108 76 3,2 30 250х250 10 160 4 20 ФБ-0,108-1,0 ОТФ-3,5-108-76 108 76 3,5 32 250х250 10 160 4 20 ФБ-0,108-1,0 ОТФ-4,0-108-76 108 76 4 35 250х250 10 160 4 20 ФБ-0,108-1,0 ОТФ-4,5-108-76 108 76 4,5 38 250х250 10 160 4 20 ФБ-0,108-1,0 ОТФ-5,0-108-76 108 76 5 41 250х250 10 160 4 20 ФБ-0,108-1,0 ОТФ-5,5-108-76 108 76 5,5 47 250х250 10 160 4 20 ФБ-0,108-1,0 ОТФ-6,0-108-76 108 76 6 50 250х250 10 160 4 20 ФБ-0,108-1,0 ОТФ-108-76 - опора трубчатая фланцевая Н-высота опоры, м D-диаметр нижней опоры, мм d-диаметр верхней опоры, мм ØA-линейный размер фланца опоры, мм Sфл-толщина фланца опоры, мм Mц-межцентровое расстояние крепежных отверстий на фланце, мм n-количество крепежных отверстий, шт dотв-диаметр крепежного отверстия, мм Назначение: Опора трубчатая несиловая фланцевая ОТФ-108-76 предназначена для освещения различных парков, скверов, исторических, культурных территорий и зон отдыха. Данный вид опор предусматривает прокладку к опорам освещения питающего электрокабеля исключительно подземным путем, не допускается применять в линиях с воздушным подводом кабеля. Производство и изготовление: Несиловая опора в силу своей конструкции и технических особенностей отличается относительно легким весом, небольшими габаритами, мобильностью в установке. Монтаж и установка: Для фланцевых трубчатых опор ОТ-108-76 сначала монтируется фундаментный блок (закладная деталь) в заранее подготовленный котлован на глубину от 0,8 до 2 м и бетонируется, далее при помощи фланцевого соединения на болтах крепится опора. Опоры ОТФ-108-76 предназначены для декоративного освещения любых объектов. Светильники на опоры могут устанавливаться напрямую или с помощью кронштейна. Категорически не допускается использование опор данной серии в качестве силовых. Трубчатые опоры типа ОТ-108-76. На данный тип опоры предусмотрена установка осветительного прибора венчающего типа (торшерного светильника). Оборудование размещается непосредственно на верхнюю часть опоры или крепится с помощью декоративного кронштейна. Способ подвода питающего кабеля: Для несиловых трубчатых опор предусмотрена исключительно подземная подводка кабеля. В подземной части опоры либо фундаментного блока для осуществления ввода и вывода кабеля изготавливаются два окна в параллельных плоскостях. В надземной части опоры расположен ревизионный лючок для обслуживания. Антикоррозийное покрытие: Горячее цинкование. Лакокрасочное покрытие. Комбинированное покрытие: горячее цинкование + лакокрасочное покрытие.Тип установки: Фланцевые Форма: Трубчатые Тип: ОТФ-1,5-108-76 Высота опоры: 1.5, 2, 2.5, 3, 3.5, 4, 4.5, 5, 5.5, 6 м По типу ствола опоры: Трубчатая По типу установки опоры: Фланцевая По типу нагрузки опоры: Несиловая Материал: Металл Покрытие: Горячий цинк, Порошковая краска Нижний ∅: 108 мм Верхний ∅: 76 мм Возможность покраски: Да

7 644 руб.
Санкт-Петербург
Опора трубчатая фланцевая ОТФ-108-57 (Тип: ОТФ-4,0-108-57)

Опора трубчатая фланцевая ОТФ-108-57 (Тип: ОТФ-4,0-108-57)

Опора парковая трубчатая несиловая фланцевая Тип ОТФ-108-57 Характеристики опор ОТФ-108-57 Обозначение опоры D d H Масса ØA Sфл Мц n dотв Размер фланца Рекомендуемый фундаментный блок Тип опоры ОТФ мм мм м кг мм мм мм шт мм мм Тип фундамента Опора ОТФ-1,5-108-57 108 57 1,5 17 250х250 10 160 4 20 фл.250х250х10-Мц160-4х20 ФБ-0,108-0,8 Опора ОТФ-2,0-108-57 108 57 2 20 250х250 10 160 4 20 фл.250х250х10-Мц160-4х20 ФБ-0,108-0,8 Опора ОТФ-2,5-108-57 108 57 2,5 24 250х250 10 160 4 20 фл.250х250х10-Мц160-4х20 ФБ-0,108-0,8 Опора ОТФ-3,0-108-57 108 57 3 26 250х250 10 160 4 20 фл.250х250х10-Мц160-4х20 ФБ-0,108-0,8 Опора ОТФ-3,2-108-57 108 57 3,2 28 250х250 10 160 4 20 фл.250х250х10-Мц160-4х20 ФБ-0,108-1,0 Опора ОТФ-3,5-108-57 108 57 3,5 30 250х250 10 160 4 20 фл.250х250х10-Мц160-4х20 ФБ-0,108-1,0 Опора ОТФ-3,7-108-57 108 57 3,7 31 250х250 10 160 4 20 фл.250х250х10-Мц160-4х20 ФБ-0,108-1,0 Опора ОТФ-4,0-108-57 108 57 4 32 250х250 10 160 4 20 фл.250х250х10-Мц160-4х20 ФБ-0,108-1,0 ОТФ-опора трубчатая фланцевая Н-высота опоры, м D-диаметр нижней опоры, мм d-диаметр верхней опоры, мм ØA-линейный размер фланца опоры, мм Sфл-толщина фланца опоры, мм Mц-межцентровое расстояние крепежных отверстий на фланце, мм n-количество крепежных отверстий, шт dотв-диаметр крепежного отверстия, мм Назначение: Опора трубчатая несиловая фланцевая ОТФ-108-57 предназначена для освещения различных парков, скверов, исторических, культурных территорий и зон отдыха. Данный вид опор предусматривает прокладку к опорам освещения питающего электрокабеля исключительно подземным путем, не допускается применять в линиях с воздушным подводом кабеля. Производство и изготовление: Несиловая опора в силу своей конструкции и технических особенностей отличается относительно легким весом, небольшими габаритами, мобильностью в установке. Монтаж и установка: Для фланцевых трубчатых опор ОТ-108-57 сначала монтируется фундаментный блок (закладная деталь) в заранее подготовленный котлован на глубину от 0,8 до 2 м и бетонируется, далее при помощи фланцевого соединения на болтах крепится опора. Опоры ОТФ-108-57 предназначены для декоративного освещения любых объектов. Светильники на опоры могут устанавливаться напрямую или с помощью кронштейна. Категорически не допускается использование опор данной серии в качестве силовых. Трубчатые опоры типа ОТ-108-57. На данный тип опоры предусмотрена установка осветительного прибора венчающего типа (торшерного светильника). Оборудование размещается непосредственно на верхнюю часть опоры или крепится с помощью декоративного кронштейна. Способ подвода питающего кабеля: Для несиловых трубчатых опор предусмотрена исключительно подземная подводка кабеля. В подземной части опоры либо фундаментного блока для осуществления ввода и вывода кабеля изготавливаются два окна в параллельных плоскостях. В надземной части опоры расположен ревизионный лючок для обслуживания. Антикоррозийное покрытие: Горячее цинкование. Лакокрасочное покрытие. Комбинированное покрытие: горячее цинкование + лакокрасочное покрытие. Дополнительные характеристики: Ширина упаковки 100 мм Высота упаковки 250 мм Объем упаковки, м³ 0.1 Вес с упаковкой 32 кг Возможность покраски ДаТип установки: Фланцевые Форма: Трубчатые Тип: ОТФ-4,0-108-57 Высота опоры: 1.5, 2, 2.5, 3, 3.5, 3.7, 4 м По типу ствола опоры: Трубчатая По типу установки опоры: Фланцевая По типу нагрузки опоры: Несиловая Материал: Металл Покрытие: Горячий цинк, Порошковая краска Нижний ∅: 108 мм Верхний ∅: 57 мм Длина упаковки: 4000 мм

7 140 руб.
Санкт-Петербург
Опора трубчатая фланцевая ОТФ-108-57 (Тип: ОТФ-3,7-108-57)

Опора трубчатая фланцевая ОТФ-108-57 (Тип: ОТФ-3,7-108-57)

Опора парковая трубчатая несиловая фланцевая Тип ОТФ-108-57 Характеристики опор ОТФ-108-57 Обозначение опоры D d H Масса ØA Sфл Мц n dотв Размер фланца Рекомендуемый фундаментный блок Тип опоры ОТФ мм мм м кг мм мм мм шт мм мм Тип фундамента Опора ОТФ-1,5-108-57 108 57 1,5 17 250х250 10 160 4 20 фл.250х250х10-Мц160-4х20 ФБ-0,108-0,8 Опора ОТФ-2,0-108-57 108 57 2 20 250х250 10 160 4 20 фл.250х250х10-Мц160-4х20 ФБ-0,108-0,8 Опора ОТФ-2,5-108-57 108 57 2,5 24 250х250 10 160 4 20 фл.250х250х10-Мц160-4х20 ФБ-0,108-0,8 Опора ОТФ-3,0-108-57 108 57 3 26 250х250 10 160 4 20 фл.250х250х10-Мц160-4х20 ФБ-0,108-0,8 Опора ОТФ-3,2-108-57 108 57 3,2 28 250х250 10 160 4 20 фл.250х250х10-Мц160-4х20 ФБ-0,108-1,0 Опора ОТФ-3,5-108-57 108 57 3,5 30 250х250 10 160 4 20 фл.250х250х10-Мц160-4х20 ФБ-0,108-1,0 Опора ОТФ-3,7-108-57 108 57 3,7 31 250х250 10 160 4 20 фл.250х250х10-Мц160-4х20 ФБ-0,108-1,0 Опора ОТФ-4,0-108-57 108 57 4 32 250х250 10 160 4 20 фл.250х250х10-Мц160-4х20 ФБ-0,108-1,0 ОТФ-опора трубчатая фланцевая Н-высота опоры, м D-диаметр нижней опоры, мм d-диаметр верхней опоры, мм ØA-линейный размер фланца опоры, мм Sфл-толщина фланца опоры, мм Mц-межцентровое расстояние крепежных отверстий на фланце, мм n-количество крепежных отверстий, шт dотв-диаметр крепежного отверстия, мм Назначение: Опора трубчатая несиловая фланцевая ОТФ-108-57 предназначена для освещения различных парков, скверов, исторических, культурных территорий и зон отдыха. Данный вид опор предусматривает прокладку к опорам освещения питающего электрокабеля исключительно подземным путем, не допускается применять в линиях с воздушным подводом кабеля. Производство и изготовление: Несиловая опора в силу своей конструкции и технических особенностей отличается относительно легким весом, небольшими габаритами, мобильностью в установке. Монтаж и установка: Для фланцевых трубчатых опор ОТ-108-57 сначала монтируется фундаментный блок (закладная деталь) в заранее подготовленный котлован на глубину от 0,8 до 2 м и бетонируется, далее при помощи фланцевого соединения на болтах крепится опора. Опоры ОТФ-108-57 предназначены для декоративного освещения любых объектов. Светильники на опоры могут устанавливаться напрямую или с помощью кронштейна. Категорически не допускается использование опор данной серии в качестве силовых. Трубчатые опоры типа ОТ-108-57. На данный тип опоры предусмотрена установка осветительного прибора венчающего типа (торшерного светильника). Оборудование размещается непосредственно на верхнюю часть опоры или крепится с помощью декоративного кронштейна. Способ подвода питающего кабеля: Для несиловых трубчатых опор предусмотрена исключительно подземная подводка кабеля. В подземной части опоры либо фундаментного блока для осуществления ввода и вывода кабеля изготавливаются два окна в параллельных плоскостях. В надземной части опоры расположен ревизионный лючок для обслуживания. Антикоррозийное покрытие: Горячее цинкование. Лакокрасочное покрытие. Комбинированное покрытие: горячее цинкование + лакокрасочное покрытие. Дополнительные характеристики: Ширина упаковки 100 мм Высота упаковки 250 мм Объем упаковки, м³ 0.1 Вес с упаковкой 32 кг Возможность покраски ДаТип установки: Фланцевые Форма: Трубчатые Тип: ОТФ-3,7-108-57 Высота опоры: 1.5, 2, 2.5, 3, 3.5, 3.7, 4 м По типу ствола опоры: Трубчатая По типу установки опоры: Фланцевая По типу нагрузки опоры: Несиловая Материал: Металл Покрытие: Горячий цинк, Порошковая краска Нижний ∅: 108 мм Верхний ∅: 57 мм Длина упаковки: 4000 мм

6 477 руб.
Санкт-Петербург
Опора трубчатая фланцевая ОТФ-108-57 (Тип: ОТФ-3,5-108-57)

Опора трубчатая фланцевая ОТФ-108-57 (Тип: ОТФ-3,5-108-57)

Опора парковая трубчатая несиловая фланцевая Тип ОТФ-108-57 Характеристики опор ОТФ-108-57 Обозначение опоры D d H Масса ØA Sфл Мц n dотв Размер фланца Рекомендуемый фундаментный блок Тип опоры ОТФ мм мм м кг мм мм мм шт мм мм Тип фундамента Опора ОТФ-1,5-108-57 108 57 1,5 17 250х250 10 160 4 20 фл.250х250х10-Мц160-4х20 ФБ-0,108-0,8 Опора ОТФ-2,0-108-57 108 57 2 20 250х250 10 160 4 20 фл.250х250х10-Мц160-4х20 ФБ-0,108-0,8 Опора ОТФ-2,5-108-57 108 57 2,5 24 250х250 10 160 4 20 фл.250х250х10-Мц160-4х20 ФБ-0,108-0,8 Опора ОТФ-3,0-108-57 108 57 3 26 250х250 10 160 4 20 фл.250х250х10-Мц160-4х20 ФБ-0,108-0,8 Опора ОТФ-3,2-108-57 108 57 3,2 28 250х250 10 160 4 20 фл.250х250х10-Мц160-4х20 ФБ-0,108-1,0 Опора ОТФ-3,5-108-57 108 57 3,5 30 250х250 10 160 4 20 фл.250х250х10-Мц160-4х20 ФБ-0,108-1,0 Опора ОТФ-3,7-108-57 108 57 3,7 31 250х250 10 160 4 20 фл.250х250х10-Мц160-4х20 ФБ-0,108-1,0 Опора ОТФ-4,0-108-57 108 57 4 32 250х250 10 160 4 20 фл.250х250х10-Мц160-4х20 ФБ-0,108-1,0 ОТФ-опора трубчатая фланцевая Н-высота опоры, м D-диаметр нижней опоры, мм d-диаметр верхней опоры, мм ØA-линейный размер фланца опоры, мм Sфл-толщина фланца опоры, мм Mц-межцентровое расстояние крепежных отверстий на фланце, мм n-количество крепежных отверстий, шт dотв-диаметр крепежного отверстия, мм Назначение: Опора трубчатая несиловая фланцевая ОТФ-108-57 предназначена для освещения различных парков, скверов, исторических, культурных территорий и зон отдыха. Данный вид опор предусматривает прокладку к опорам освещения питающего электрокабеля исключительно подземным путем, не допускается применять в линиях с воздушным подводом кабеля. Производство и изготовление: Несиловая опора в силу своей конструкции и технических особенностей отличается относительно легким весом, небольшими габаритами, мобильностью в установке. Монтаж и установка: Для фланцевых трубчатых опор ОТ-108-57 сначала монтируется фундаментный блок (закладная деталь) в заранее подготовленный котлован на глубину от 0,8 до 2 м и бетонируется, далее при помощи фланцевого соединения на болтах крепится опора. Опоры ОТФ-108-57 предназначены для декоративного освещения любых объектов. Светильники на опоры могут устанавливаться напрямую или с помощью кронштейна. Категорически не допускается использование опор данной серии в качестве силовых. Трубчатые опоры типа ОТ-108-57. На данный тип опоры предусмотрена установка осветительного прибора венчающего типа (торшерного светильника). Оборудование размещается непосредственно на верхнюю часть опоры или крепится с помощью декоративного кронштейна. Способ подвода питающего кабеля: Для несиловых трубчатых опор предусмотрена исключительно подземная подводка кабеля. В подземной части опоры либо фундаментного блока для осуществления ввода и вывода кабеля изготавливаются два окна в параллельных плоскостях. В надземной части опоры расположен ревизионный лючок для обслуживания. Антикоррозийное покрытие: Горячее цинкование. Лакокрасочное покрытие. Комбинированное покрытие: горячее цинкование + лакокрасочное покрытие. Дополнительные характеристики: Ширина упаковки 100 мм Высота упаковки 250 мм Объем упаковки, м³ 0.1 Вес с упаковкой 32 кг Возможность покраски ДаТип установки: Фланцевые Форма: Трубчатые Тип: ОТФ-3,5-108-57 Высота опоры: 1.5, 2, 2.5, 3, 3.5, 3.7, 4 м По типу ствола опоры: Трубчатая По типу установки опоры: Фланцевая По типу нагрузки опоры: Несиловая Материал: Металл Покрытие: Горячий цинк, Порошковая краска Нижний ∅: 108 мм Верхний ∅: 57 мм Длина упаковки: 4000 мм

6 290 руб.
Санкт-Петербург
Опора трубчатая фланцевая ОТФ-108-57 (Тип: ОТФ-3,2-108-57)

Опора трубчатая фланцевая ОТФ-108-57 (Тип: ОТФ-3,2-108-57)

Опора парковая трубчатая несиловая фланцевая Тип ОТФ-108-57 Характеристики опор ОТФ-108-57 Обозначение опоры D d H Масса ØA Sфл Мц n dотв Размер фланца Рекомендуемый фундаментный блок Тип опоры ОТФ мм мм м кг мм мм мм шт мм мм Тип фундамента Опора ОТФ-1,5-108-57 108 57 1,5 17 250х250 10 160 4 20 фл.250х250х10-Мц160-4х20 ФБ-0,108-0,8 Опора ОТФ-2,0-108-57 108 57 2 20 250х250 10 160 4 20 фл.250х250х10-Мц160-4х20 ФБ-0,108-0,8 Опора ОТФ-2,5-108-57 108 57 2,5 24 250х250 10 160 4 20 фл.250х250х10-Мц160-4х20 ФБ-0,108-0,8 Опора ОТФ-3,0-108-57 108 57 3 26 250х250 10 160 4 20 фл.250х250х10-Мц160-4х20 ФБ-0,108-0,8 Опора ОТФ-3,2-108-57 108 57 3,2 28 250х250 10 160 4 20 фл.250х250х10-Мц160-4х20 ФБ-0,108-1,0 Опора ОТФ-3,5-108-57 108 57 3,5 30 250х250 10 160 4 20 фл.250х250х10-Мц160-4х20 ФБ-0,108-1,0 Опора ОТФ-3,7-108-57 108 57 3,7 31 250х250 10 160 4 20 фл.250х250х10-Мц160-4х20 ФБ-0,108-1,0 Опора ОТФ-4,0-108-57 108 57 4 32 250х250 10 160 4 20 фл.250х250х10-Мц160-4х20 ФБ-0,108-1,0 ОТФ-опора трубчатая фланцевая Н-высота опоры, м D-диаметр нижней опоры, мм d-диаметр верхней опоры, мм ØA-линейный размер фланца опоры, мм Sфл-толщина фланца опоры, мм Mц-межцентровое расстояние крепежных отверстий на фланце, мм n-количество крепежных отверстий, шт dотв-диаметр крепежного отверстия, мм Назначение: Опора трубчатая несиловая фланцевая ОТФ-108-57 предназначена для освещения различных парков, скверов, исторических, культурных территорий и зон отдыха. Данный вид опор предусматривает прокладку к опорам освещения питающего электрокабеля исключительно подземным путем, не допускается применять в линиях с воздушным подводом кабеля. Производство и изготовление: Несиловая опора в силу своей конструкции и технических особенностей отличается относительно легким весом, небольшими габаритами, мобильностью в установке. Монтаж и установка: Для фланцевых трубчатых опор ОТ-108-57 сначала монтируется фундаментный блок (закладная деталь) в заранее подготовленный котлован на глубину от 0,8 до 2 м и бетонируется, далее при помощи фланцевого соединения на болтах крепится опора. Опоры ОТФ-108-57 предназначены для декоративного освещения любых объектов. Светильники на опоры могут устанавливаться напрямую или с помощью кронштейна. Категорически не допускается использование опор данной серии в качестве силовых. Трубчатые опоры типа ОТ-108-57. На данный тип опоры предусмотрена установка осветительного прибора венчающего типа (торшерного светильника). Оборудование размещается непосредственно на верхнюю часть опоры или крепится с помощью декоративного кронштейна. Способ подвода питающего кабеля: Для несиловых трубчатых опор предусмотрена исключительно подземная подводка кабеля. В подземной части опоры либо фундаментного блока для осуществления ввода и вывода кабеля изготавливаются два окна в параллельных плоскостях. В надземной части опоры расположен ревизионный лючок для обслуживания. Антикоррозийное покрытие: Горячее цинкование. Лакокрасочное покрытие. Комбинированное покрытие: горячее цинкование + лакокрасочное покрытие. Дополнительные характеристики: Ширина упаковки 100 мм Высота упаковки 250 мм Объем упаковки, м³ 0.1 Вес с упаковкой 32 кг Возможность покраски ДаТип установки: Фланцевые Форма: Трубчатые Тип: ОТФ-3,2-108-57 Высота опоры: 1.5, 2, 2.5, 3, 3.5, 3.7, 4 м По типу ствола опоры: Трубчатая По типу установки опоры: Фланцевая По типу нагрузки опоры: Несиловая Материал: Металл Покрытие: Горячий цинк, Порошковая краска Нижний ∅: 108 мм Верхний ∅: 57 мм Длина упаковки: 4000 мм

6 035 руб.
Санкт-Петербург
Опора трубчатая фланцевая ОТФ-108-57 (Тип: ОТФ-3,0-108-57)

Опора трубчатая фланцевая ОТФ-108-57 (Тип: ОТФ-3,0-108-57)

Опора парковая трубчатая несиловая фланцевая Тип ОТФ-108-57 Характеристики опор ОТФ-108-57 Обозначение опоры D d H Масса ØA Sфл Мц n dотв Размер фланца Рекомендуемый фундаментный блок Тип опоры ОТФ мм мм м кг мм мм мм шт мм мм Тип фундамента Опора ОТФ-1,5-108-57 108 57 1,5 17 250х250 10 160 4 20 фл.250х250х10-Мц160-4х20 ФБ-0,108-0,8 Опора ОТФ-2,0-108-57 108 57 2 20 250х250 10 160 4 20 фл.250х250х10-Мц160-4х20 ФБ-0,108-0,8 Опора ОТФ-2,5-108-57 108 57 2,5 24 250х250 10 160 4 20 фл.250х250х10-Мц160-4х20 ФБ-0,108-0,8 Опора ОТФ-3,0-108-57 108 57 3 26 250х250 10 160 4 20 фл.250х250х10-Мц160-4х20 ФБ-0,108-0,8 Опора ОТФ-3,2-108-57 108 57 3,2 28 250х250 10 160 4 20 фл.250х250х10-Мц160-4х20 ФБ-0,108-1,0 Опора ОТФ-3,5-108-57 108 57 3,5 30 250х250 10 160 4 20 фл.250х250х10-Мц160-4х20 ФБ-0,108-1,0 Опора ОТФ-3,7-108-57 108 57 3,7 31 250х250 10 160 4 20 фл.250х250х10-Мц160-4х20 ФБ-0,108-1,0 Опора ОТФ-4,0-108-57 108 57 4 32 250х250 10 160 4 20 фл.250х250х10-Мц160-4х20 ФБ-0,108-1,0 ОТФ-опора трубчатая фланцевая Н-высота опоры, м D-диаметр нижней опоры, мм d-диаметр верхней опоры, мм ØA-линейный размер фланца опоры, мм Sфл-толщина фланца опоры, мм Mц-межцентровое расстояние крепежных отверстий на фланце, мм n-количество крепежных отверстий, шт dотв-диаметр крепежного отверстия, мм Назначение: Опора трубчатая несиловая фланцевая ОТФ-108-57 предназначена для освещения различных парков, скверов, исторических, культурных территорий и зон отдыха. Данный вид опор предусматривает прокладку к опорам освещения питающего электрокабеля исключительно подземным путем, не допускается применять в линиях с воздушным подводом кабеля. Производство и изготовление: Несиловая опора в силу своей конструкции и технических особенностей отличается относительно легким весом, небольшими габаритами, мобильностью в установке. Монтаж и установка: Для фланцевых трубчатых опор ОТ-108-57 сначала монтируется фундаментный блок (закладная деталь) в заранее подготовленный котлован на глубину от 0,8 до 2 м и бетонируется, далее при помощи фланцевого соединения на болтах крепится опора. Опоры ОТФ-108-57 предназначены для декоративного освещения любых объектов. Светильники на опоры могут устанавливаться напрямую или с помощью кронштейна. Категорически не допускается использование опор данной серии в качестве силовых. Трубчатые опоры типа ОТ-108-57. На данный тип опоры предусмотрена установка осветительного прибора венчающего типа (торшерного светильника). Оборудование размещается непосредственно на верхнюю часть опоры или крепится с помощью декоративного кронштейна. Способ подвода питающего кабеля: Для несиловых трубчатых опор предусмотрена исключительно подземная подводка кабеля. В подземной части опоры либо фундаментного блока для осуществления ввода и вывода кабеля изготавливаются два окна в параллельных плоскостях. В надземной части опоры расположен ревизионный лючок для обслуживания. Антикоррозийное покрытие: Горячее цинкование. Лакокрасочное покрытие. Комбинированное покрытие: горячее цинкование + лакокрасочное покрытие. Дополнительные характеристики: Ширина упаковки 100 мм Высота упаковки 250 мм Объем упаковки, м³ 0.1 Вес с упаковкой 32 кг Возможность покраски ДаТип установки: Фланцевые Форма: Трубчатые Тип: ОТФ-3,0-108-57 Высота опоры: 1.5, 2, 2.5, 3, 3.5, 3.7, 4 м По типу ствола опоры: Трубчатая По типу установки опоры: Фланцевая По типу нагрузки опоры: Несиловая Материал: Металл Покрытие: Горячий цинк, Порошковая краска Нижний ∅: 108 мм Верхний ∅: 57 мм Длина упаковки: 4000 мм

5 950 руб.
Санкт-Петербург
Опора трубчатая фланцевая ОТФ-108-57 (Тип: ОТФ-2,5-108-57)

Опора трубчатая фланцевая ОТФ-108-57 (Тип: ОТФ-2,5-108-57)

Опора парковая трубчатая несиловая фланцевая Тип ОТФ-108-57 Характеристики опор ОТФ-108-57 Обозначение опоры D d H Масса ØA Sфл Мц n dотв Размер фланца Рекомендуемый фундаментный блок Тип опоры ОТФ мм мм м кг мм мм мм шт мм мм Тип фундамента Опора ОТФ-1,5-108-57 108 57 1,5 17 250х250 10 160 4 20 фл.250х250х10-Мц160-4х20 ФБ-0,108-0,8 Опора ОТФ-2,0-108-57 108 57 2 20 250х250 10 160 4 20 фл.250х250х10-Мц160-4х20 ФБ-0,108-0,8 Опора ОТФ-2,5-108-57 108 57 2,5 24 250х250 10 160 4 20 фл.250х250х10-Мц160-4х20 ФБ-0,108-0,8 Опора ОТФ-3,0-108-57 108 57 3 26 250х250 10 160 4 20 фл.250х250х10-Мц160-4х20 ФБ-0,108-0,8 Опора ОТФ-3,2-108-57 108 57 3,2 28 250х250 10 160 4 20 фл.250х250х10-Мц160-4х20 ФБ-0,108-1,0 Опора ОТФ-3,5-108-57 108 57 3,5 30 250х250 10 160 4 20 фл.250х250х10-Мц160-4х20 ФБ-0,108-1,0 Опора ОТФ-3,7-108-57 108 57 3,7 31 250х250 10 160 4 20 фл.250х250х10-Мц160-4х20 ФБ-0,108-1,0 Опора ОТФ-4,0-108-57 108 57 4 32 250х250 10 160 4 20 фл.250х250х10-Мц160-4х20 ФБ-0,108-1,0 ОТФ-опора трубчатая фланцевая Н-высота опоры, м D-диаметр нижней опоры, мм d-диаметр верхней опоры, мм ØA-линейный размер фланца опоры, мм Sфл-толщина фланца опоры, мм Mц-межцентровое расстояние крепежных отверстий на фланце, мм n-количество крепежных отверстий, шт dотв-диаметр крепежного отверстия, мм Назначение: Опора трубчатая несиловая фланцевая ОТФ-108-57 предназначена для освещения различных парков, скверов, исторических, культурных территорий и зон отдыха. Данный вид опор предусматривает прокладку к опорам освещения питающего электрокабеля исключительно подземным путем, не допускается применять в линиях с воздушным подводом кабеля. Производство и изготовление: Несиловая опора в силу своей конструкции и технических особенностей отличается относительно легким весом, небольшими габаритами, мобильностью в установке. Монтаж и установка: Для фланцевых трубчатых опор ОТ-108-57 сначала монтируется фундаментный блок (закладная деталь) в заранее подготовленный котлован на глубину от 0,8 до 2 м и бетонируется, далее при помощи фланцевого соединения на болтах крепится опора. Опоры ОТФ-108-57 предназначены для декоративного освещения любых объектов. Светильники на опоры могут устанавливаться напрямую или с помощью кронштейна. Категорически не допускается использование опор данной серии в качестве силовых. Трубчатые опоры типа ОТ-108-57. На данный тип опоры предусмотрена установка осветительного прибора венчающего типа (торшерного светильника). Оборудование размещается непосредственно на верхнюю часть опоры или крепится с помощью декоративного кронштейна. Способ подвода питающего кабеля: Для несиловых трубчатых опор предусмотрена исключительно подземная подводка кабеля. В подземной части опоры либо фундаментного блока для осуществления ввода и вывода кабеля изготавливаются два окна в параллельных плоскостях. В надземной части опоры расположен ревизионный лючок для обслуживания. Антикоррозийное покрытие: Горячее цинкование. Лакокрасочное покрытие. Комбинированное покрытие: горячее цинкование + лакокрасочное покрытие. Дополнительные характеристики: Ширина упаковки 100 мм Высота упаковки 250 мм Объем упаковки, м³ 0.1 Вес с упаковкой 32 кг Возможность покраски ДаТип установки: Фланцевые Форма: Трубчатые Тип: ОТФ-2,5-108-57 Высота опоры: 1.5, 2, 2.5, 3, 3.5, 3.7, 4 м По типу ствола опоры: Трубчатая По типу установки опоры: Фланцевая По типу нагрузки опоры: Несиловая Материал: Металл Покрытие: Горячий цинк, Порошковая краска Нижний ∅: 108 мм Верхний ∅: 57 мм Длина упаковки: 4000 мм

5 780 руб.
Санкт-Петербург
Опора трубчатая фланцевая ОТФ-108-57 (Тип: ОТФ-2,0-108-57)

Опора трубчатая фланцевая ОТФ-108-57 (Тип: ОТФ-2,0-108-57)

Опора парковая трубчатая несиловая фланцевая Тип ОТФ-108-57 Характеристики опор ОТФ-108-57 Обозначение опоры D d H Масса ØA Sфл Мц n dотв Размер фланца Рекомендуемый фундаментный блок Тип опоры ОТФ мм мм м кг мм мм мм шт мм мм Тип фундамента Опора ОТФ-1,5-108-57 108 57 1,5 17 250х250 10 160 4 20 фл.250х250х10-Мц160-4х20 ФБ-0,108-0,8 Опора ОТФ-2,0-108-57 108 57 2 20 250х250 10 160 4 20 фл.250х250х10-Мц160-4х20 ФБ-0,108-0,8 Опора ОТФ-2,5-108-57 108 57 2,5 24 250х250 10 160 4 20 фл.250х250х10-Мц160-4х20 ФБ-0,108-0,8 Опора ОТФ-3,0-108-57 108 57 3 26 250х250 10 160 4 20 фл.250х250х10-Мц160-4х20 ФБ-0,108-0,8 Опора ОТФ-3,2-108-57 108 57 3,2 28 250х250 10 160 4 20 фл.250х250х10-Мц160-4х20 ФБ-0,108-1,0 Опора ОТФ-3,5-108-57 108 57 3,5 30 250х250 10 160 4 20 фл.250х250х10-Мц160-4х20 ФБ-0,108-1,0 Опора ОТФ-3,7-108-57 108 57 3,7 31 250х250 10 160 4 20 фл.250х250х10-Мц160-4х20 ФБ-0,108-1,0 Опора ОТФ-4,0-108-57 108 57 4 32 250х250 10 160 4 20 фл.250х250х10-Мц160-4х20 ФБ-0,108-1,0 ОТФ-опора трубчатая фланцевая Н-высота опоры, м D-диаметр нижней опоры, мм d-диаметр верхней опоры, мм ØA-линейный размер фланца опоры, мм Sфл-толщина фланца опоры, мм Mц-межцентровое расстояние крепежных отверстий на фланце, мм n-количество крепежных отверстий, шт dотв-диаметр крепежного отверстия, мм Назначение: Опора трубчатая несиловая фланцевая ОТФ-108-57 предназначена для освещения различных парков, скверов, исторических, культурных территорий и зон отдыха. Данный вид опор предусматривает прокладку к опорам освещения питающего электрокабеля исключительно подземным путем, не допускается применять в линиях с воздушным подводом кабеля. Производство и изготовление: Несиловая опора в силу своей конструкции и технических особенностей отличается относительно легким весом, небольшими габаритами, мобильностью в установке. Монтаж и установка: Для фланцевых трубчатых опор ОТ-108-57 сначала монтируется фундаментный блок (закладная деталь) в заранее подготовленный котлован на глубину от 0,8 до 2 м и бетонируется, далее при помощи фланцевого соединения на болтах крепится опора. Опоры ОТФ-108-57 предназначены для декоративного освещения любых объектов. Светильники на опоры могут устанавливаться напрямую или с помощью кронштейна. Категорически не допускается использование опор данной серии в качестве силовых. Трубчатые опоры типа ОТ-108-57. На данный тип опоры предусмотрена установка осветительного прибора венчающего типа (торшерного светильника). Оборудование размещается непосредственно на верхнюю часть опоры или крепится с помощью декоративного кронштейна. Способ подвода питающего кабеля: Для несиловых трубчатых опор предусмотрена исключительно подземная подводка кабеля. В подземной части опоры либо фундаментного блока для осуществления ввода и вывода кабеля изготавливаются два окна в параллельных плоскостях. В надземной части опоры расположен ревизионный лючок для обслуживания. Антикоррозийное покрытие: Горячее цинкование. Лакокрасочное покрытие. Комбинированное покрытие: горячее цинкование + лакокрасочное покрытие. Дополнительные характеристики: Ширина упаковки 100 мм Высота упаковки 250 мм Объем упаковки, м³ 0.1 Вес с упаковкой 32 кг Возможность покраски ДаТип установки: Фланцевые Форма: Трубчатые Тип: ОТФ-2,0-108-57 Высота опоры: 1.5, 2, 2.5, 3, 3.5, 3.7, 4 м По типу ствола опоры: Трубчатая По типу установки опоры: Фланцевая По типу нагрузки опоры: Несиловая Материал: Металл Покрытие: Горячий цинк, Порошковая краска Нижний ∅: 108 мм Верхний ∅: 57 мм Длина упаковки: 4000 мм

5 695 руб.
Санкт-Петербург
Опора трубчатая фланцевая ОТФ-108-57 (Тип: ОТФ-1,5-108-57)

Опора трубчатая фланцевая ОТФ-108-57 (Тип: ОТФ-1,5-108-57)

Опора парковая трубчатая несиловая фланцевая Тип ОТФ-108-57 Характеристики опор ОТФ-108-57 Обозначение опоры D d H Масса ØA Sфл Мц n dотв Размер фланца Рекомендуемый фундаментный блок Тип опоры ОТФ мм мм м кг мм мм мм шт мм мм Тип фундамента Опора ОТФ-1,5-108-57 108 57 1,5 17 250х250 10 160 4 20 фл.250х250х10-Мц160-4х20 ФБ-0,108-0,8 Опора ОТФ-2,0-108-57 108 57 2 20 250х250 10 160 4 20 фл.250х250х10-Мц160-4х20 ФБ-0,108-0,8 Опора ОТФ-2,5-108-57 108 57 2,5 24 250х250 10 160 4 20 фл.250х250х10-Мц160-4х20 ФБ-0,108-0,8 Опора ОТФ-3,0-108-57 108 57 3 26 250х250 10 160 4 20 фл.250х250х10-Мц160-4х20 ФБ-0,108-0,8 Опора ОТФ-3,2-108-57 108 57 3,2 28 250х250 10 160 4 20 фл.250х250х10-Мц160-4х20 ФБ-0,108-1,0 Опора ОТФ-3,5-108-57 108 57 3,5 30 250х250 10 160 4 20 фл.250х250х10-Мц160-4х20 ФБ-0,108-1,0 Опора ОТФ-3,7-108-57 108 57 3,7 31 250х250 10 160 4 20 фл.250х250х10-Мц160-4х20 ФБ-0,108-1,0 Опора ОТФ-4,0-108-57 108 57 4 32 250х250 10 160 4 20 фл.250х250х10-Мц160-4х20 ФБ-0,108-1,0 ОТФ-опора трубчатая фланцевая Н-высота опоры, м D-диаметр нижней опоры, мм d-диаметр верхней опоры, мм ØA-линейный размер фланца опоры, мм Sфл-толщина фланца опоры, мм Mц-межцентровое расстояние крепежных отверстий на фланце, мм n-количество крепежных отверстий, шт dотв-диаметр крепежного отверстия, мм Назначение: Опора трубчатая несиловая фланцевая ОТФ-108-57 предназначена для освещения различных парков, скверов, исторических, культурных территорий и зон отдыха. Данный вид опор предусматривает прокладку к опорам освещения питающего электрокабеля исключительно подземным путем, не допускается применять в линиях с воздушным подводом кабеля. Производство и изготовление: Несиловая опора в силу своей конструкции и технических особенностей отличается относительно легким весом, небольшими габаритами, мобильностью в установке. Монтаж и установка: Для фланцевых трубчатых опор ОТ-108-57 сначала монтируется фундаментный блок (закладная деталь) в заранее подготовленный котлован на глубину от 0,8 до 2 м и бетонируется, далее при помощи фланцевого соединения на болтах крепится опора. Опоры ОТФ-108-57 предназначены для декоративного освещения любых объектов. Светильники на опоры могут устанавливаться напрямую или с помощью кронштейна. Категорически не допускается использование опор данной серии в качестве силовых. Трубчатые опоры типа ОТ-108-57. На данный тип опоры предусмотрена установка осветительного прибора венчающего типа (торшерного светильника). Оборудование размещается непосредственно на верхнюю часть опоры или крепится с помощью декоративного кронштейна. Способ подвода питающего кабеля: Для несиловых трубчатых опор предусмотрена исключительно подземная подводка кабеля. В подземной части опоры либо фундаментного блока для осуществления ввода и вывода кабеля изготавливаются два окна в параллельных плоскостях. В надземной части опоры расположен ревизионный лючок для обслуживания. Антикоррозийное покрытие: Горячее цинкование. Лакокрасочное покрытие. Комбинированное покрытие: горячее цинкование + лакокрасочное покрытие. Дополнительные характеристики: Ширина упаковки 100 мм Высота упаковки 250 мм Объем упаковки, м³ 0.1 Вес с упаковкой 32 кг Возможность покраски ДаТип установки: Фланцевые Форма: Трубчатые Тип: ОТФ-1,5-108-57 Высота опоры: 1.5, 2, 2.5, 3, 3.5, 3.7, 4 м По типу ствола опоры: Трубчатая По типу установки опоры: Фланцевая По типу нагрузки опоры: Несиловая Материал: Металл Покрытие: Горячий цинк, Порошковая краска Нижний ∅: 108 мм Верхний ∅: 57 мм Длина упаковки: 4000 мм

5 440 руб.
Санкт-Петербург
Опора ОТ-1-/6/7/8/9/10/11/12/-Ф трубчатая фланцевая (Тип: ОТ-1-9-ф)

Опора ОТ-1-/6/7/8/9/10/11/12/-Ф трубчатая фланцевая (Тип: ОТ-1-9-ф)

Опора освещения трубчатая фланцевая Серии ОТ-1-Ф Описание: Опора ОТ-1 высотой 6-12м предназначена для освещения дорог аллей, парков, скверов, придомовых территорий, детских садов, территории школ, торговых центров. Область применения: Освещение магистралей, транспортных развязок, мостов, дворов, парков, площадей, парковок и пр. Конструкция опоры Опора освещения ОТ-1 имеет ревизионный лючок с планкой для установки дополнительного электрооборудования; Подземный подвод питания через окна в закладном элементе фундамента; Современный дизайн, небольшой вес; Привлекательный внешний вид, вписывающийся во многие дизайнерские решения; Обладает повышенной прочностью; Возможность изготовления опор по индивидуальным параметрам в зависимости от нагрузки на опору и климатических условий. Изготовление опор ОТ-1 Опора ОТ-1 изготавливается из трубного проката. Верхний диаметр опор составляет 133 мм, нижний - 159 мм. Размер опорного фланца для опор ОТ-1 высотой 6 и 7 метров 300х300 мм. Размер фланца для опор 8 - 12 метров 400х400 мм. Межцентровые расстояния - 200 или 300 мм. Фланцевые опоры устанавливаются на фундамент, состоящий из закладного элемента и бетона. На опору устанавливаются кронштейны под светильники, прожекторы, камеры видео наблюдения, рекламных щитов, подвеса кабелей СИП и иных конструкций. Опора ОТ-1 характеристики Наименование Вес Высота Верхний диаметр Нижний диаметр Размеры опорного фланца Межцентровое расстояние отверстий ОТ-1 (m, кг) (H, м) (d, мм) (D, мм) (А, м) (B, мм) ОТ-1-6-Ф 99 6 133 159 300x300 200 ОТ-1-7-Ф 112 7 133 159 300x300 200 ОТ-1-8-Ф 136 8 133 159 400x400 300 ОТ-1-9-Ф 150 9 133 159 400x400 300 ОТ-1-10-Ф 163 10 133 159 400x400 300 ОТ-1-11-Ф 177 11 133 159 400x400 300 ОТ-1-12-Ф 190 12 133 159 400x400 300 Расшифровка кода: ОТ-1-Н-Ф Н - высота надземной части м Ф - фланцевый Примечание: Завод оставляет за собой право вносить конструктивные изменения, не влияющие на качество и технические характеристики изделия. Преимущества: Длительный срок службы; Высокая антикоррозийная стойкость покрытия; Удобство в монтаже и обслуживании; Эстетичный внешний вид; Возможность изготовления опор по индивидуальным параметрам. Покрытие: Горячее цинкование, лакокрасочное покрытие.Тип: ОТ-1-9-ф Высота опоры: 6, 7, 8, 9, 10, 11, 12 м По типу ствола опоры: Трубчатая По типу установки опоры: Фланцевая По типу нагрузки опоры: Несиловая Материал: Металл Покрытие: Горячий цинк, Порошковая краска Нижний ∅: 159 мм Верхний ∅: 133 мм

31 777 руб.
Санкт-Петербург
Опора ОТ-1-/6/7/8/9/10/11/12/-Ф трубчатая фланцевая (Тип: ОТ-1-10-ф)

Опора ОТ-1-/6/7/8/9/10/11/12/-Ф трубчатая фланцевая (Тип: ОТ-1-10-ф)

Опора освещения трубчатая фланцевая Серии ОТ-1-Ф Описание: Опора ОТ-1 высотой 6-12м предназначена для освещения дорог аллей, парков, скверов, придомовых территорий, детских садов, территории школ, торговых центров. Область применения: Освещение магистралей, транспортных развязок, мостов, дворов, парков, площадей, парковок и пр. Конструкция опоры Опора освещения ОТ-1 имеет ревизионный лючок с планкой для установки дополнительного электрооборудования; Подземный подвод питания через окна в закладном элементе фундамента; Современный дизайн, небольшой вес; Привлекательный внешний вид, вписывающийся во многие дизайнерские решения; Обладает повышенной прочностью; Возможность изготовления опор по индивидуальным параметрам в зависимости от нагрузки на опору и климатических условий. Изготовление опор ОТ-1 Опора ОТ-1 изготавливается из трубного проката. Верхний диаметр опор составляет 133 мм, нижний - 159 мм. Размер опорного фланца для опор ОТ-1 высотой 6 и 7 метров 300х300 мм. Размер фланца для опор 8 - 12 метров 400х400 мм. Межцентровые расстояния - 200 или 300 мм. Фланцевые опоры устанавливаются на фундамент, состоящий из закладного элемента и бетона. На опору устанавливаются кронштейны под светильники, прожекторы, камеры видео наблюдения, рекламных щитов, подвеса кабелей СИП и иных конструкций. Опора ОТ-1 характеристики Наименование Вес Высота Верхний диаметр Нижний диаметр Размеры опорного фланца Межцентровое расстояние отверстий ОТ-1 (m, кг) (H, м) (d, мм) (D, мм) (А, м) (B, мм) ОТ-1-6-Ф 99 6 133 159 300x300 200 ОТ-1-7-Ф 112 7 133 159 300x300 200 ОТ-1-8-Ф 136 8 133 159 400x400 300 ОТ-1-9-Ф 150 9 133 159 400x400 300 ОТ-1-10-Ф 163 10 133 159 400x400 300 ОТ-1-11-Ф 177 11 133 159 400x400 300 ОТ-1-12-Ф 190 12 133 159 400x400 300 Расшифровка кода: ОТ-1-Н-Ф Н - высота надземной части м Ф - фланцевый Примечание: Завод оставляет за собой право вносить конструктивные изменения, не влияющие на качество и технические характеристики изделия. Преимущества: Длительный срок службы; Высокая антикоррозийная стойкость покрытия; Удобство в монтаже и обслуживании; Эстетичный внешний вид; Возможность изготовления опор по индивидуальным параметрам. Покрытие: Горячее цинкование, лакокрасочное покрытие.Тип: ОТ-1-10-ф Высота опоры: 6, 7, 8, 9, 10, 11, 12 м По типу ствола опоры: Трубчатая По типу установки опоры: Фланцевая По типу нагрузки опоры: Несиловая Материал: Металл Покрытие: Горячий цинк, Порошковая краска Нижний ∅: 159 мм Верхний ∅: 133 мм

34 866 руб.
Санкт-Петербург
Опора ОС(Ф)-/0.4/0.7/1.0/-/8.0/8.5/9.0/10.0/ силовая фланцевая (Тип: ОС(ф)-0,4-8,0)

Опора ОС(Ф)-/0.4/0.7/1.0/-/8.0/8.5/9.0/10.0/ силовая фланцевая (Тип: ОС(ф)-0,4-8,0)

Опоры освещения силовые фланцевые ОС(ф) Опора освещения силовая с воздушной подводкой кабеля ОСф характеристики Обозначение D1 D2 A/B d/шт. H h кг ОС(ф)-0,4-8,0 168 219 420/360 25/8 8000 2000 301 ОС(ф)-0,4-8,5 168 219 420/360 25/8 8500 2000 322 ОС(ф)-0,4-9,0 168 219 420/360 25/8 9000 2000 335 ОС(ф)-0,4-10,0 168 219 420/360 25/8 10000 2000 368 ОС(ф)-0,7-8,0 219 273 420/372 25/12 8000 2000 400 ОС(ф)-0,7-8,5 219 273 420/372 25/12 8500 2000 426 ОС(ф)-0,7-9,0 219 273 420/372 25/12 9000 2000 452 ОС(ф)-0,7-10 219 273 420/372 25/12 10000 2000 549 ОС(ф)-1,0-9,0 219 325 500/420 30/8 9000 2500 577 ОС(ф)-1,3-9,0 273 325 500/420 30/8 9000 2500 620 ОС(ф)-1,5-9,0 273 325 500/420 30/8 9000 2500 642 ОС(ф)-1,8-9,0 325 426 600/552 33/12 9000 2500 876 D1 - верхний диаметр D2- нижний диаметр A/B - размер опорного фланца H - высота d/шт. диаметр отверсий и кол-во Опоры освещения силовые фланцевые ОС(ф) предназначены для освещения улиц и магистралей, парков, скверов, аллей, бульваров, набережных, территории автозаправочных станций и коттеджных поселков. Типы применяемых кронштейнов Декоративные парковые, консольные и прожекторные кронштейны, для опор серии ОС имеют исполнение с обечайкой. Подводка кабеля: воздушная, подземная (под заказ с ревизионным окном, усиленное исполнение). Установка опор освещения ОСФ Для фланцевых силовых опор ОСф предусмотрена установка с использованием фундаментного блока. Фланцевое соединение является идеальным решением при организации освещения автомагистралей, где нередко возникает потребность замены опор, поврежденных при столкновении с автомобилями. В тех случаях, когда прямой монтаж опор невозможен, используются фундаментные консоли. Опоры устанавливаются на фланец закладной детали фундамента. Кронштейн фиксируется в верхней части опоры при помощи болтов. Покрытие Горячее цинкование по ГОСТ 9.307-89, порошковое полимерное или лакокрасочное покрытия в цвета RAL.Тип: Силовые Тип установки: Фланцевые Форма: Трубчатые Тип: ОС(ф)-0,4-8,0 Высота опоры: 8, 9, 10, 11 м По типу ствола опоры: Трубчатая По типу установки опоры: Фланцевая По типу нагрузки опоры: Силовая Материал: Металл Покрытие: Горячий цинк Возможность покраски: Да

41 354 руб.
Санкт-Петербург
Опора НП несиловая трубчатая прямостоечная (Тип: НП-10,0/12,0-02-ц)

Опора НП несиловая трубчатая прямостоечная (Тип: НП-10,0/12,0-02-ц)

Тип опор НП Наименование опоры Масса*, кг Обозначение установочного места кронштейна** H, мм h1, мм h2, мм h3, мм D1, мм D2, мм D3, мм НП-2,0/2,8-02-ц 30,8 Ф2 2000 1000 1280 - 108 76 - НП-3,0/4,0-02-ц 37,8 Ф2 3000 1000 1280 - 108 76 - НП-4,0/5,0-02-ц 43,9 Ф2 4000 1000 1280 - 108 76 - НП-4,0/5,0-02-ц 72,3 Ф2 4000 1000 1280 1340 159 108 76 НП-5,0/6,0-02-ц 81 Ф2 5000 1000 1280 1840 159 108 76 НП-6,0/7,0-02-ц 89,7 Ф2 6000 1000 1280 2340 159 108 76 НП-10,0/12,0-02-ц 292 Ф6, Ф7, Ф16 10000 2000 4000 3000 168 133 108 Область применения: Неразборные опоры данной серии предназначены для декоративного освещения любых объектов площадей, улиц, дворов, скверов и т.д. Светильники на опоры могут устанавливаться напрямую или с помощью кронштейна. Категорически не допускается использование опор данной серии в качестве силовых. Конструкция опор НП: Оборудование представляет собой стальную сварную металлическую конструкцию, металл для которой выбирается в соответствии с климатическими условиями и особенностями эксплуатации. Нанесенное на нее с помощью метода горячего цинкования защитное покрытие обеспечивает сохранность оборудования в течение тридцати лет. Поверхность опоры может дополнительно обрабатываться лакокрасочными изделиями. Осветительные приборы крепятся на стволе оборудования как непосредственно, так и с помощью выносных кронштейнов или оголовников. Фланцевые опоры устанавливаются на железобетонный фундамент. Для монтирования прямостоечных конструкций предварительно подготавливается котлован, который потом заливается бетоном вместе с отцентрованной опорой. Параметры основы зависят от типа грунта, веса конструкции и климатических условий территории. Помимо этого, у опор есть возможность укрепления выносной консолью. Установка опор: Установка опор НП осуществляется в подготовленный котлован. После установки опор по уровню их подземная часть заливается бетоном. Требуемая прочность конструкции обеспечивается при заливке бетоном до уровня, который расположен выше верхнего края окна для ввода кабеля на размер D1. Установка оборудования: На неразборные опоры стандартно устанавливаются торшерные или консольные светильники с посадочным местом для трубы D=60мм и поворотным узлом крепления (базовое исполнение). Также на них могут быть установлены кронштейны (исполнение под заказ). Для данного типа опор используется подземный подвод питающих кабелей, через окна (в нижней части опоры или в закладном элементе). Для разделки кабелей предусмотрены ревизионные лючки с планками установки комплектующих и точка заземления (болт М8-М10). Преимущества: В качестве материала используется высококачественный трубный прокат по ГОСТ 10704-81 ведущих российских производителей. Материал выбирается в зависимости от климатического района эксплуатации по СП 16.13330.2011, с учетом коэффициента запаса прочности; Антикоррозийное покрытие наносят методом горячего цинкования в полном соответствии с ГОСТ 9.307-89, что обеспечивает сохранность изделия в течение 25-30 лет эксплуатации; Опора может быть обработана декоративным лакокрасочным покрытием (необходимо оговаривать при заказе, подробности узнавайте у поставщика продукции) в соответствии с требованиями ГОСТ 9.032Тип: Несиловые Тип установки: Прямостоечные Форма: Трубчатые Тип: НП-10,0/12,0-02-ц Высота опоры: 2, 3, 4, 5, 6, 7, 8, 9, 10 м По типу ствола опоры: Трубчатая По типу установки опоры: Прямостоечная По типу нагрузки опоры: Несиловая Материал: Металл Покрытие: Горячий цинк, Порошковая краска Возможность покраски: Да

31 747 руб.
Санкт-Петербург
Опора НП несиловая трубчатая прямостоечная (Тип: НП-6,0/7,0-02-ц)

Опора НП несиловая трубчатая прямостоечная (Тип: НП-6,0/7,0-02-ц)

Тип опор НП Наименование опоры Масса*, кг Обозначение установочного места кронштейна** H, мм h1, мм h2, мм h3, мм D1, мм D2, мм D3, мм НП-2,0/2,8-02-ц 30,8 Ф2 2000 1000 1280 - 108 76 - НП-3,0/4,0-02-ц 37,8 Ф2 3000 1000 1280 - 108 76 - НП-4,0/5,0-02-ц 43,9 Ф2 4000 1000 1280 - 108 76 - НП-4,0/5,0-02-ц 72,3 Ф2 4000 1000 1280 1340 159 108 76 НП-5,0/6,0-02-ц 81 Ф2 5000 1000 1280 1840 159 108 76 НП-6,0/7,0-02-ц 89,7 Ф2 6000 1000 1280 2340 159 108 76 НП-10,0/12,0-02-ц 292 Ф6, Ф7, Ф16 10000 2000 4000 3000 168 133 108 Область применения: Неразборные опоры данной серии предназначены для декоративного освещения любых объектов площадей, улиц, дворов, скверов и т.д. Светильники на опоры могут устанавливаться напрямую или с помощью кронштейна. Категорически не допускается использование опор данной серии в качестве силовых. Конструкция опор НП: Оборудование представляет собой стальную сварную металлическую конструкцию, металл для которой выбирается в соответствии с климатическими условиями и особенностями эксплуатации. Нанесенное на нее с помощью метода горячего цинкования защитное покрытие обеспечивает сохранность оборудования в течение тридцати лет. Поверхность опоры может дополнительно обрабатываться лакокрасочными изделиями. Осветительные приборы крепятся на стволе оборудования как непосредственно, так и с помощью выносных кронштейнов или оголовников. Фланцевые опоры устанавливаются на железобетонный фундамент. Для монтирования прямостоечных конструкций предварительно подготавливается котлован, который потом заливается бетоном вместе с отцентрованной опорой. Параметры основы зависят от типа грунта, веса конструкции и климатических условий территории. Помимо этого, у опор есть возможность укрепления выносной консолью. Установка опор: Установка опор НП осуществляется в подготовленный котлован. После установки опор по уровню их подземная часть заливается бетоном. Требуемая прочность конструкции обеспечивается при заливке бетоном до уровня, который расположен выше верхнего края окна для ввода кабеля на размер D1. Установка оборудования: На неразборные опоры стандартно устанавливаются торшерные или консольные светильники с посадочным местом для трубы D=60мм и поворотным узлом крепления (базовое исполнение). Также на них могут быть установлены кронштейны (исполнение под заказ). Для данного типа опор используется подземный подвод питающих кабелей, через окна (в нижней части опоры или в закладном элементе). Для разделки кабелей предусмотрены ревизионные лючки с планками установки комплектующих и точка заземления (болт М8-М10). Преимущества: В качестве материала используется высококачественный трубный прокат по ГОСТ 10704-81 ведущих российских производителей. Материал выбирается в зависимости от климатического района эксплуатации по СП 16.13330.2011, с учетом коэффициента запаса прочности; Антикоррозийное покрытие наносят методом горячего цинкования в полном соответствии с ГОСТ 9.307-89, что обеспечивает сохранность изделия в течение 25-30 лет эксплуатации; Опора может быть обработана декоративным лакокрасочным покрытием (необходимо оговаривать при заказе, подробности узнавайте у поставщика продукции) в соответствии с требованиями ГОСТ 9.032Тип: Несиловые Тип установки: Прямостоечные Форма: Трубчатые Тип: НП-6,0/7,0-02-ц Высота опоры: 2, 3, 4, 5, 6, 7, 8, 9, 10 м По типу ствола опоры: Трубчатая По типу установки опоры: Прямостоечная По типу нагрузки опоры: Несиловая Материал: Металл Покрытие: Горячий цинк, Порошковая краска Возможность покраски: Да

18 084 руб.
Санкт-Петербург
Опора НП несиловая трубчатая прямостоечная (Тип: НП-5,0/6,0-02-ц)

Опора НП несиловая трубчатая прямостоечная (Тип: НП-5,0/6,0-02-ц)

Тип опор НП Наименование опоры Масса*, кг Обозначение установочного места кронштейна** H, мм h1, мм h2, мм h3, мм D1, мм D2, мм D3, мм НП-2,0/2,8-02-ц 30,8 Ф2 2000 1000 1280 - 108 76 - НП-3,0/4,0-02-ц 37,8 Ф2 3000 1000 1280 - 108 76 - НП-4,0/5,0-02-ц 43,9 Ф2 4000 1000 1280 - 108 76 - НП-4,0/5,0-02-ц 72,3 Ф2 4000 1000 1280 1340 159 108 76 НП-5,0/6,0-02-ц 81 Ф2 5000 1000 1280 1840 159 108 76 НП-6,0/7,0-02-ц 89,7 Ф2 6000 1000 1280 2340 159 108 76 НП-10,0/12,0-02-ц 292 Ф6, Ф7, Ф16 10000 2000 4000 3000 168 133 108 Область применения: Неразборные опоры данной серии предназначены для декоративного освещения любых объектов площадей, улиц, дворов, скверов и т.д. Светильники на опоры могут устанавливаться напрямую или с помощью кронштейна. Категорически не допускается использование опор данной серии в качестве силовых. Конструкция опор НП: Оборудование представляет собой стальную сварную металлическую конструкцию, металл для которой выбирается в соответствии с климатическими условиями и особенностями эксплуатации. Нанесенное на нее с помощью метода горячего цинкования защитное покрытие обеспечивает сохранность оборудования в течение тридцати лет. Поверхность опоры может дополнительно обрабатываться лакокрасочными изделиями. Осветительные приборы крепятся на стволе оборудования как непосредственно, так и с помощью выносных кронштейнов или оголовников. Фланцевые опоры устанавливаются на железобетонный фундамент. Для монтирования прямостоечных конструкций предварительно подготавливается котлован, который потом заливается бетоном вместе с отцентрованной опорой. Параметры основы зависят от типа грунта, веса конструкции и климатических условий территории. Помимо этого, у опор есть возможность укрепления выносной консолью. Установка опор: Установка опор НП осуществляется в подготовленный котлован. После установки опор по уровню их подземная часть заливается бетоном. Требуемая прочность конструкции обеспечивается при заливке бетоном до уровня, который расположен выше верхнего края окна для ввода кабеля на размер D1. Установка оборудования: На неразборные опоры стандартно устанавливаются торшерные или консольные светильники с посадочным местом для трубы D=60мм и поворотным узлом крепления (базовое исполнение). Также на них могут быть установлены кронштейны (исполнение под заказ). Для данного типа опор используется подземный подвод питающих кабелей, через окна (в нижней части опоры или в закладном элементе). Для разделки кабелей предусмотрены ревизионные лючки с планками установки комплектующих и точка заземления (болт М8-М10). Преимущества: В качестве материала используется высококачественный трубный прокат по ГОСТ 10704-81 ведущих российских производителей. Материал выбирается в зависимости от климатического района эксплуатации по СП 16.13330.2011, с учетом коэффициента запаса прочности; Антикоррозийное покрытие наносят методом горячего цинкования в полном соответствии с ГОСТ 9.307-89, что обеспечивает сохранность изделия в течение 25-30 лет эксплуатации; Опора может быть обработана декоративным лакокрасочным покрытием (необходимо оговаривать при заказе, подробности узнавайте у поставщика продукции) в соответствии с требованиями ГОСТ 9.032Тип: Несиловые Тип установки: Прямостоечные Форма: Трубчатые Тип: НП-5,0/6,0-02-ц Высота опоры: 2, 3, 4, 5, 6, 7, 8, 9, 10 м По типу ствола опоры: Трубчатая По типу установки опоры: Прямостоечная По типу нагрузки опоры: Несиловая Материал: Металл Покрытие: Горячий цинк, Порошковая краска Возможность покраски: Да

14 431 руб.
Санкт-Петербург
Опора НП несиловая трубчатая прямостоечная (Тип: НП-4,0/5,0-02-ц (159*76))

Опора НП несиловая трубчатая прямостоечная (Тип: НП-4,0/5,0-02-ц (159*76))

Тип опор НП Наименование опоры Масса*, кг Обозначение установочного места кронштейна** H, мм h1, мм h2, мм h3, мм D1, мм D2, мм D3, мм НП-2,0/2,8-02-ц 30,8 Ф2 2000 1000 1280 - 108 76 - НП-3,0/4,0-02-ц 37,8 Ф2 3000 1000 1280 - 108 76 - НП-4,0/5,0-02-ц 43,9 Ф2 4000 1000 1280 - 108 76 - НП-4,0/5,0-02-ц 72,3 Ф2 4000 1000 1280 1340 159 108 76 НП-5,0/6,0-02-ц 81 Ф2 5000 1000 1280 1840 159 108 76 НП-6,0/7,0-02-ц 89,7 Ф2 6000 1000 1280 2340 159 108 76 НП-10,0/12,0-02-ц 292 Ф6, Ф7, Ф16 10000 2000 4000 3000 168 133 108 Область применения: Неразборные опоры данной серии предназначены для декоративного освещения любых объектов площадей, улиц, дворов, скверов и т.д. Светильники на опоры могут устанавливаться напрямую или с помощью кронштейна. Категорически не допускается использование опор данной серии в качестве силовых. Конструкция опор НП: Оборудование представляет собой стальную сварную металлическую конструкцию, металл для которой выбирается в соответствии с климатическими условиями и особенностями эксплуатации. Нанесенное на нее с помощью метода горячего цинкования защитное покрытие обеспечивает сохранность оборудования в течение тридцати лет. Поверхность опоры может дополнительно обрабатываться лакокрасочными изделиями. Осветительные приборы крепятся на стволе оборудования как непосредственно, так и с помощью выносных кронштейнов или оголовников. Фланцевые опоры устанавливаются на железобетонный фундамент. Для монтирования прямостоечных конструкций предварительно подготавливается котлован, который потом заливается бетоном вместе с отцентрованной опорой. Параметры основы зависят от типа грунта, веса конструкции и климатических условий территории. Помимо этого, у опор есть возможность укрепления выносной консолью. Установка опор: Установка опор НП осуществляется в подготовленный котлован. После установки опор по уровню их подземная часть заливается бетоном. Требуемая прочность конструкции обеспечивается при заливке бетоном до уровня, который расположен выше верхнего края окна для ввода кабеля на размер D1. Установка оборудования: На неразборные опоры стандартно устанавливаются торшерные или консольные светильники с посадочным местом для трубы D=60мм и поворотным узлом крепления (базовое исполнение). Также на них могут быть установлены кронштейны (исполнение под заказ). Для данного типа опор используется подземный подвод питающих кабелей, через окна (в нижней части опоры или в закладном элементе). Для разделки кабелей предусмотрены ревизионные лючки с планками установки комплектующих и точка заземления (болт М8-М10). Преимущества: В качестве материала используется высококачественный трубный прокат по ГОСТ 10704-81 ведущих российских производителей. Материал выбирается в зависимости от климатического района эксплуатации по СП 16.13330.2011, с учетом коэффициента запаса прочности; Антикоррозийное покрытие наносят методом горячего цинкования в полном соответствии с ГОСТ 9.307-89, что обеспечивает сохранность изделия в течение 25-30 лет эксплуатации; Опора может быть обработана декоративным лакокрасочным покрытием (необходимо оговаривать при заказе, подробности узнавайте у поставщика продукции) в соответствии с требованиями ГОСТ 9.032Тип: Несиловые Тип установки: Прямостоечные Форма: Трубчатые Тип: НП-4,0/5,0-02-ц (159*76) Высота опоры: 2, 3, 4, 5, 6, 7, 8, 9, 10 м По типу ствола опоры: Трубчатая По типу установки опоры: Прямостоечная По типу нагрузки опоры: Несиловая Материал: Металл Покрытие: Горячий цинк, Порошковая краска Возможность покраски: Да

13 248 руб.
Санкт-Петербург
Опора НП несиловая трубчатая прямостоечная (Тип: НП-4,0/5,0-02-ц)

Опора НП несиловая трубчатая прямостоечная (Тип: НП-4,0/5,0-02-ц)

Тип опор НП Наименование опоры Масса*, кг Обозначение установочного места кронштейна** H, мм h1, мм h2, мм h3, мм D1, мм D2, мм D3, мм НП-2,0/2,8-02-ц 30,8 Ф2 2000 1000 1280 - 108 76 - НП-3,0/4,0-02-ц 37,8 Ф2 3000 1000 1280 - 108 76 - НП-4,0/5,0-02-ц 43,9 Ф2 4000 1000 1280 - 108 76 - НП-4,0/5,0-02-ц 72,3 Ф2 4000 1000 1280 1340 159 108 76 НП-5,0/6,0-02-ц 81 Ф2 5000 1000 1280 1840 159 108 76 НП-6,0/7,0-02-ц 89,7 Ф2 6000 1000 1280 2340 159 108 76 НП-10,0/12,0-02-ц 292 Ф6, Ф7, Ф16 10000 2000 4000 3000 168 133 108 Область применения: Неразборные опоры данной серии предназначены для декоративного освещения любых объектов площадей, улиц, дворов, скверов и т.д. Светильники на опоры могут устанавливаться напрямую или с помощью кронштейна. Категорически не допускается использование опор данной серии в качестве силовых. Конструкция опор НП: Оборудование представляет собой стальную сварную металлическую конструкцию, металл для которой выбирается в соответствии с климатическими условиями и особенностями эксплуатации. Нанесенное на нее с помощью метода горячего цинкования защитное покрытие обеспечивает сохранность оборудования в течение тридцати лет. Поверхность опоры может дополнительно обрабатываться лакокрасочными изделиями. Осветительные приборы крепятся на стволе оборудования как непосредственно, так и с помощью выносных кронштейнов или оголовников. Фланцевые опоры устанавливаются на железобетонный фундамент. Для монтирования прямостоечных конструкций предварительно подготавливается котлован, который потом заливается бетоном вместе с отцентрованной опорой. Параметры основы зависят от типа грунта, веса конструкции и климатических условий территории. Помимо этого, у опор есть возможность укрепления выносной консолью. Установка опор: Установка опор НП осуществляется в подготовленный котлован. После установки опор по уровню их подземная часть заливается бетоном. Требуемая прочность конструкции обеспечивается при заливке бетоном до уровня, который расположен выше верхнего края окна для ввода кабеля на размер D1. Установка оборудования: На неразборные опоры стандартно устанавливаются торшерные или консольные светильники с посадочным местом для трубы D=60мм и поворотным узлом крепления (базовое исполнение). Также на них могут быть установлены кронштейны (исполнение под заказ). Для данного типа опор используется подземный подвод питающих кабелей, через окна (в нижней части опоры или в закладном элементе). Для разделки кабелей предусмотрены ревизионные лючки с планками установки комплектующих и точка заземления (болт М8-М10). Преимущества: В качестве материала используется высококачественный трубный прокат по ГОСТ 10704-81 ведущих российских производителей. Материал выбирается в зависимости от климатического района эксплуатации по СП 16.13330.2011, с учетом коэффициента запаса прочности; Антикоррозийное покрытие наносят методом горячего цинкования в полном соответствии с ГОСТ 9.307-89, что обеспечивает сохранность изделия в течение 25-30 лет эксплуатации; Опора может быть обработана декоративным лакокрасочным покрытием (необходимо оговаривать при заказе, подробности узнавайте у поставщика продукции) в соответствии с требованиями ГОСТ 9.032Тип: Несиловые Тип установки: Прямостоечные Форма: Трубчатые Тип: НП-4,0/5,0-02-ц Высота опоры: 2, 3, 4, 5, 6, 7, 8, 9, 10 м По типу ствола опоры: Трубчатая По типу установки опоры: Прямостоечная По типу нагрузки опоры: Несиловая Материал: Металл Покрытие: Горячий цинк, Порошковая краска Возможность покраски: Да

9 601 руб.
Санкт-Петербург
Опора НП несиловая трубчатая прямостоечная (Тип: НП-3,0/4,0-02-ц)

Опора НП несиловая трубчатая прямостоечная (Тип: НП-3,0/4,0-02-ц)

Тип опор НП Наименование опоры Масса*, кг Обозначение установочного места кронштейна** H, мм h1, мм h2, мм h3, мм D1, мм D2, мм D3, мм НП-2,0/2,8-02-ц 30,8 Ф2 2000 1000 1280 - 108 76 - НП-3,0/4,0-02-ц 37,8 Ф2 3000 1000 1280 - 108 76 - НП-4,0/5,0-02-ц 43,9 Ф2 4000 1000 1280 - 108 76 - НП-4,0/5,0-02-ц 72,3 Ф2 4000 1000 1280 1340 159 108 76 НП-5,0/6,0-02-ц 81 Ф2 5000 1000 1280 1840 159 108 76 НП-6,0/7,0-02-ц 89,7 Ф2 6000 1000 1280 2340 159 108 76 НП-10,0/12,0-02-ц 292 Ф6, Ф7, Ф16 10000 2000 4000 3000 168 133 108 Область применения: Неразборные опоры данной серии предназначены для декоративного освещения любых объектов площадей, улиц, дворов, скверов и т.д. Светильники на опоры могут устанавливаться напрямую или с помощью кронштейна. Категорически не допускается использование опор данной серии в качестве силовых. Конструкция опор НП: Оборудование представляет собой стальную сварную металлическую конструкцию, металл для которой выбирается в соответствии с климатическими условиями и особенностями эксплуатации. Нанесенное на нее с помощью метода горячего цинкования защитное покрытие обеспечивает сохранность оборудования в течение тридцати лет. Поверхность опоры может дополнительно обрабатываться лакокрасочными изделиями. Осветительные приборы крепятся на стволе оборудования как непосредственно, так и с помощью выносных кронштейнов или оголовников. Фланцевые опоры устанавливаются на железобетонный фундамент. Для монтирования прямостоечных конструкций предварительно подготавливается котлован, который потом заливается бетоном вместе с отцентрованной опорой. Параметры основы зависят от типа грунта, веса конструкции и климатических условий территории. Помимо этого, у опор есть возможность укрепления выносной консолью. Установка опор: Установка опор НП осуществляется в подготовленный котлован. После установки опор по уровню их подземная часть заливается бетоном. Требуемая прочность конструкции обеспечивается при заливке бетоном до уровня, который расположен выше верхнего края окна для ввода кабеля на размер D1. Установка оборудования: На неразборные опоры стандартно устанавливаются торшерные или консольные светильники с посадочным местом для трубы D=60мм и поворотным узлом крепления (базовое исполнение). Также на них могут быть установлены кронштейны (исполнение под заказ). Для данного типа опор используется подземный подвод питающих кабелей, через окна (в нижней части опоры или в закладном элементе). Для разделки кабелей предусмотрены ревизионные лючки с планками установки комплектующих и точка заземления (болт М8-М10). Преимущества: В качестве материала используется высококачественный трубный прокат по ГОСТ 10704-81 ведущих российских производителей. Материал выбирается в зависимости от климатического района эксплуатации по СП 16.13330.2011, с учетом коэффициента запаса прочности; Антикоррозийное покрытие наносят методом горячего цинкования в полном соответствии с ГОСТ 9.307-89, что обеспечивает сохранность изделия в течение 25-30 лет эксплуатации; Опора может быть обработана декоративным лакокрасочным покрытием (необходимо оговаривать при заказе, подробности узнавайте у поставщика продукции) в соответствии с требованиями ГОСТ 9.032Тип: Несиловые Тип установки: Прямостоечные Форма: Трубчатые Тип: НП-3,0/4,0-02-ц Высота опоры: 2, 3, 4, 5, 6, 7, 8, 9, 10 м По типу ствола опоры: Трубчатая По типу установки опоры: Прямостоечная По типу нагрузки опоры: Несиловая Материал: Металл Покрытие: Горячий цинк, Порошковая краска Возможность покраски: Да

7 307 руб.
Санкт-Петербург
Опора НП несиловая трубчатая прямостоечная (Тип: НП-2,0/2,8-02-ц)

Опора НП несиловая трубчатая прямостоечная (Тип: НП-2,0/2,8-02-ц)

Тип опор НП Наименование опоры Масса*, кг Обозначение установочного места кронштейна** H, мм h1, мм h2, мм h3, мм D1, мм D2, мм D3, мм НП-2,0/2,8-02-ц 30,8 Ф2 2000 1000 1280 - 108 76 - НП-3,0/4,0-02-ц 37,8 Ф2 3000 1000 1280 - 108 76 - НП-4,0/5,0-02-ц 43,9 Ф2 4000 1000 1280 - 108 76 - НП-4,0/5,0-02-ц 72,3 Ф2 4000 1000 1280 1340 159 108 76 НП-5,0/6,0-02-ц 81 Ф2 5000 1000 1280 1840 159 108 76 НП-6,0/7,0-02-ц 89,7 Ф2 6000 1000 1280 2340 159 108 76 НП-10,0/12,0-02-ц 292 Ф6, Ф7, Ф16 10000 2000 4000 3000 168 133 108 Область применения: Неразборные опоры данной серии предназначены для декоративного освещения любых объектов площадей, улиц, дворов, скверов и т.д. Светильники на опоры могут устанавливаться напрямую или с помощью кронштейна. Категорически не допускается использование опор данной серии в качестве силовых. Конструкция опор НП: Оборудование представляет собой стальную сварную металлическую конструкцию, металл для которой выбирается в соответствии с климатическими условиями и особенностями эксплуатации. Нанесенное на нее с помощью метода горячего цинкования защитное покрытие обеспечивает сохранность оборудования в течение тридцати лет. Поверхность опоры может дополнительно обрабатываться лакокрасочными изделиями. Осветительные приборы крепятся на стволе оборудования как непосредственно, так и с помощью выносных кронштейнов или оголовников. Фланцевые опоры устанавливаются на железобетонный фундамент. Для монтирования прямостоечных конструкций предварительно подготавливается котлован, который потом заливается бетоном вместе с отцентрованной опорой. Параметры основы зависят от типа грунта, веса конструкции и климатических условий территории. Помимо этого, у опор есть возможность укрепления выносной консолью. Установка опор: Установка опор НП осуществляется в подготовленный котлован. После установки опор по уровню их подземная часть заливается бетоном. Требуемая прочность конструкции обеспечивается при заливке бетоном до уровня, который расположен выше верхнего края окна для ввода кабеля на размер D1. Установка оборудования: На неразборные опоры стандартно устанавливаются торшерные или консольные светильники с посадочным местом для трубы D=60мм и поворотным узлом крепления (базовое исполнение). Также на них могут быть установлены кронштейны (исполнение под заказ). Для данного типа опор используется подземный подвод питающих кабелей, через окна (в нижней части опоры или в закладном элементе). Для разделки кабелей предусмотрены ревизионные лючки с планками установки комплектующих и точка заземления (болт М8-М10). Преимущества: В качестве материала используется высококачественный трубный прокат по ГОСТ 10704-81 ведущих российских производителей. Материал выбирается в зависимости от климатического района эксплуатации по СП 16.13330.2011, с учетом коэффициента запаса прочности; Антикоррозийное покрытие наносят методом горячего цинкования в полном соответствии с ГОСТ 9.307-89, что обеспечивает сохранность изделия в течение 25-30 лет эксплуатации; Опора может быть обработана декоративным лакокрасочным покрытием (необходимо оговаривать при заказе, подробности узнавайте у поставщика продукции) в соответствии с требованиями ГОСТ 9.032Тип: Несиловые Тип установки: Прямостоечные Форма: Трубчатые Тип: НП-2,0/2,8-02-ц Высота опоры: 2, 3, 4, 5, 6, 7, 8, 9, 10 м По типу ствола опоры: Трубчатая По типу установки опоры: Прямостоечная По типу нагрузки опоры: Несиловая Материал: Металл Покрытие: Горячий цинк, Порошковая краска Возможность покраски: Да

5 480 руб.
Санкт-Петербург
Опора (ОТ-1-П) трубчатая прямостоечная (Тип: ОТ-1-12-2,0)

Опора (ОТ-1-П) трубчатая прямостоечная (Тип: ОТ-1-12-2,0)

Опоры освещения Тип ОТ-1-П 159-133 Наименование Вес (m, кг) Высота (H, м) Верхний диаметр (d, мм) Нижний диаметр (D, мм) Подземная часть (L, мм) ОТ-1-6-L 113 6 133 159 1,5 ОТ-1-7-L 126 7 133 159 1,5 ОТ-1-8-L 148 8 133 159 2 ОТ-1-9-L 162 9 133 159 2 ОТ-1-10-L 175 10 133 159 2 ОТ-1-11-L 189 11 133 159 2 ОТ-1-12-L 202 12 133 159 2 Примечание: ОТ-1-H-L, где Н - высота надземной части, м L - с заглублением (величина 1,5-2,0 м) Область применения: Освещение магистралей, транспортных развязок, мостов, дворов, парков, площадей, парковок и пр. Производство: Опора прямостоечная трубчатая ОТ-1-H-L изготавливается из трубного проката. Поверхность опор имеет антикоррозионное покрытие, выполненное методом горячего цинкования, что обеспечивает их длительную эксплуатацию. С помощью различного типа кронштейнов, зафиксированных на опоре 8-ю винтами, на опоре могут быть установлены консольные или подвесные светильники. Крепеж оцинкован или изготовлен из нержавеющей стали. ОТ, имея высоту надземной части от 6 до 12 метров, имеет два варианта исполнения: фланцевый или вкапываемый, с заглублением до 2,0 метров.Тип: ОТ-1-12-2,0 Высота опоры: 6, 7, 8, 9, 10, 11, 12 м По типу ствола опоры: Трубчатая По типу установки опоры: Прямостоечная По типу нагрузки опоры: Несиловая Материал: Металл Покрытие: Горячий цинк, Порошковая краска Нижний ∅: 159 мм Верхний ∅: 133 мм Возможность покраски: Да

70 736 руб.
Санкт-Петербург
Опора (ОТ-1-П) трубчатая прямостоечная (Тип: ОТ-1-11-2,0)

Опора (ОТ-1-П) трубчатая прямостоечная (Тип: ОТ-1-11-2,0)

Опоры освещения Тип ОТ-1-П 159-133 Наименование Вес (m, кг) Высота (H, м) Верхний диаметр (d, мм) Нижний диаметр (D, мм) Подземная часть (L, мм) ОТ-1-6-L 113 6 133 159 1,5 ОТ-1-7-L 126 7 133 159 1,5 ОТ-1-8-L 148 8 133 159 2 ОТ-1-9-L 162 9 133 159 2 ОТ-1-10-L 175 10 133 159 2 ОТ-1-11-L 189 11 133 159 2 ОТ-1-12-L 202 12 133 159 2 Примечание: ОТ-1-H-L, где Н - высота надземной части, м L - с заглублением (величина 1,5-2,0 м) Область применения: Освещение магистралей, транспортных развязок, мостов, дворов, парков, площадей, парковок и пр. Производство: Опора прямостоечная трубчатая ОТ-1-H-L изготавливается из трубного проката. Поверхность опор имеет антикоррозионное покрытие, выполненное методом горячего цинкования, что обеспечивает их длительную эксплуатацию. С помощью различного типа кронштейнов, зафиксированных на опоре 8-ю винтами, на опоре могут быть установлены консольные или подвесные светильники. Крепеж оцинкован или изготовлен из нержавеющей стали. ОТ, имея высоту надземной части от 6 до 12 метров, имеет два варианта исполнения: фланцевый или вкапываемый, с заглублением до 2,0 метров.Тип: ОТ-1-11-2,0 Высота опоры: 6, 7, 8, 9, 10, 11, 12 м По типу ствола опоры: Трубчатая По типу установки опоры: Прямостоечная По типу нагрузки опоры: Несиловая Материал: Металл Покрытие: Горячий цинк, Порошковая краска Нижний ∅: 159 мм Верхний ∅: 133 мм Возможность покраски: Да

64 684 руб.
Санкт-Петербург
Опора (ОТ-1-П) трубчатая прямостоечная (Тип: ОТ-1-10-2,0)

Опора (ОТ-1-П) трубчатая прямостоечная (Тип: ОТ-1-10-2,0)

Опоры освещения Тип ОТ-1-П 159-133 Наименование Вес (m, кг) Высота (H, м) Верхний диаметр (d, мм) Нижний диаметр (D, мм) Подземная часть (L, мм) ОТ-1-6-L 113 6 133 159 1,5 ОТ-1-7-L 126 7 133 159 1,5 ОТ-1-8-L 148 8 133 159 2 ОТ-1-9-L 162 9 133 159 2 ОТ-1-10-L 175 10 133 159 2 ОТ-1-11-L 189 11 133 159 2 ОТ-1-12-L 202 12 133 159 2 Примечание: ОТ-1-H-L, где Н - высота надземной части, м L - с заглублением (величина 1,5-2,0 м) Область применения: Освещение магистралей, транспортных развязок, мостов, дворов, парков, площадей, парковок и пр. Производство: Опора прямостоечная трубчатая ОТ-1-H-L изготавливается из трубного проката. Поверхность опор имеет антикоррозионное покрытие, выполненное методом горячего цинкования, что обеспечивает их длительную эксплуатацию. С помощью различного типа кронштейнов, зафиксированных на опоре 8-ю винтами, на опоре могут быть установлены консольные или подвесные светильники. Крепеж оцинкован или изготовлен из нержавеющей стали. ОТ, имея высоту надземной части от 6 до 12 метров, имеет два варианта исполнения: фланцевый или вкапываемый, с заглублением до 2,0 метров.Тип: ОТ-1-10-2,0 Высота опоры: 6, 7, 8, 9, 10, 11, 12 м По типу ствола опоры: Трубчатая По типу установки опоры: Прямостоечная По типу нагрузки опоры: Несиловая Материал: Металл Покрытие: Горячий цинк, Порошковая краска Нижний ∅: 159 мм Верхний ∅: 133 мм Возможность покраски: Да

39 030 руб.
Санкт-Петербург
Опора (ОТ-1-П) трубчатая прямостоечная (Тип: ОТ-1-9-2,0)

Опора (ОТ-1-П) трубчатая прямостоечная (Тип: ОТ-1-9-2,0)

Опоры освещения Тип ОТ-1-П 159-133 Наименование Вес (m, кг) Высота (H, м) Верхний диаметр (d, мм) Нижний диаметр (D, мм) Подземная часть (L, мм) ОТ-1-6-L 113 6 133 159 1,5 ОТ-1-7-L 126 7 133 159 1,5 ОТ-1-8-L 148 8 133 159 2 ОТ-1-9-L 162 9 133 159 2 ОТ-1-10-L 175 10 133 159 2 ОТ-1-11-L 189 11 133 159 2 ОТ-1-12-L 202 12 133 159 2 Примечание: ОТ-1-H-L, где Н - высота надземной части, м L - с заглублением (величина 1,5-2,0 м) Область применения: Освещение магистралей, транспортных развязок, мостов, дворов, парков, площадей, парковок и пр. Производство: Опора прямостоечная трубчатая ОТ-1-H-L изготавливается из трубного проката. Поверхность опор имеет антикоррозионное покрытие, выполненное методом горячего цинкования, что обеспечивает их длительную эксплуатацию. С помощью различного типа кронштейнов, зафиксированных на опоре 8-ю винтами, на опоре могут быть установлены консольные или подвесные светильники. Крепеж оцинкован или изготовлен из нержавеющей стали. ОТ, имея высоту надземной части от 6 до 12 метров, имеет два варианта исполнения: фланцевый или вкапываемый, с заглублением до 2,0 метров.Тип: ОТ-1-9-2,0 Высота опоры: 6, 7, 8, 9, 10, 11, 12 м По типу ствола опоры: Трубчатая По типу установки опоры: Прямостоечная По типу нагрузки опоры: Несиловая Материал: Металл Покрытие: Горячий цинк, Порошковая краска Нижний ∅: 159 мм Верхний ∅: 133 мм Возможность покраски: Да

36 471 руб.
Санкт-Петербург
Опора (ОТ-1-П) трубчатая прямостоечная (Тип: ОТ-1-8-2,0)

Опора (ОТ-1-П) трубчатая прямостоечная (Тип: ОТ-1-8-2,0)

Опоры освещения Тип ОТ-1-П 159-133 Наименование Вес (m, кг) Высота (H, м) Верхний диаметр (d, мм) Нижний диаметр (D, мм) Подземная часть (L, мм) ОТ-1-6-L 113 6 133 159 1,5 ОТ-1-7-L 126 7 133 159 1,5 ОТ-1-8-L 148 8 133 159 2 ОТ-1-9-L 162 9 133 159 2 ОТ-1-10-L 175 10 133 159 2 ОТ-1-11-L 189 11 133 159 2 ОТ-1-12-L 202 12 133 159 2 Примечание: ОТ-1-H-L, где Н - высота надземной части, м L - с заглублением (величина 1,5-2,0 м) Область применения: Освещение магистралей, транспортных развязок, мостов, дворов, парков, площадей, парковок и пр. Производство: Опора прямостоечная трубчатая ОТ-1-H-L изготавливается из трубного проката. Поверхность опор имеет антикоррозионное покрытие, выполненное методом горячего цинкования, что обеспечивает их длительную эксплуатацию. С помощью различного типа кронштейнов, зафиксированных на опоре 8-ю винтами, на опоре могут быть установлены консольные или подвесные светильники. Крепеж оцинкован или изготовлен из нержавеющей стали. ОТ, имея высоту надземной части от 6 до 12 метров, имеет два варианта исполнения: фланцевый или вкапываемый, с заглублением до 2,0 метров.Тип: ОТ-1-8-2,0 Высота опоры: 6, 7, 8, 9, 10, 11, 12 м По типу ствола опоры: Трубчатая По типу установки опоры: Прямостоечная По типу нагрузки опоры: Несиловая Материал: Металл Покрытие: Горячий цинк, Порошковая краска Нижний ∅: 159 мм Верхний ∅: 133 мм Возможность покраски: Да

33 718 руб.
Санкт-Петербург
Опора (ОТ-1-П) трубчатая прямостоечная (Тип: ОТ-1-7-1,5)

Опора (ОТ-1-П) трубчатая прямостоечная (Тип: ОТ-1-7-1,5)

Опоры освещения Тип ОТ-1-П 159-133 Наименование Вес (m, кг) Высота (H, м) Верхний диаметр (d, мм) Нижний диаметр (D, мм) Подземная часть (L, мм) ОТ-1-6-L 113 6 133 159 1,5 ОТ-1-7-L 126 7 133 159 1,5 ОТ-1-8-L 148 8 133 159 2 ОТ-1-9-L 162 9 133 159 2 ОТ-1-10-L 175 10 133 159 2 ОТ-1-11-L 189 11 133 159 2 ОТ-1-12-L 202 12 133 159 2 Примечание: ОТ-1-H-L, где Н - высота надземной части, м L - с заглублением (величина 1,5-2,0 м) Область применения: Освещение магистралей, транспортных развязок, мостов, дворов, парков, площадей, парковок и пр. Производство: Опора прямостоечная трубчатая ОТ-1-H-L изготавливается из трубного проката. Поверхность опор имеет антикоррозионное покрытие, выполненное методом горячего цинкования, что обеспечивает их длительную эксплуатацию. С помощью различного типа кронштейнов, зафиксированных на опоре 8-ю винтами, на опоре могут быть установлены консольные или подвесные светильники. Крепеж оцинкован или изготовлен из нержавеющей стали. ОТ, имея высоту надземной части от 6 до 12 метров, имеет два варианта исполнения: фланцевый или вкапываемый, с заглублением до 2,0 метров.Тип: ОТ-1-7-1,5 Высота опоры: 6, 7, 8, 9, 10, 11, 12 м По типу ствола опоры: Трубчатая По типу установки опоры: Прямостоечная По типу нагрузки опоры: Несиловая Материал: Металл Покрытие: Горячий цинк, Порошковая краска Нижний ∅: 159 мм Верхний ∅: 133 мм Возможность покраски: Да

29 330 руб.
Санкт-Петербург
Опора (ОТ-1-П) трубчатая прямостоечная (Тип: ОТ-1-6-1,5)

Опора (ОТ-1-П) трубчатая прямостоечная (Тип: ОТ-1-6-1,5)

Опоры освещения Тип ОТ-1-П 159-133 Наименование Вес (m, кг) Высота (H, м) Верхний диаметр (d, мм) Нижний диаметр (D, мм) Подземная часть (L, мм) ОТ-1-6-L 113 6 133 159 1,5 ОТ-1-7-L 126 7 133 159 1,5 ОТ-1-8-L 148 8 133 159 2 ОТ-1-9-L 162 9 133 159 2 ОТ-1-10-L 175 10 133 159 2 ОТ-1-11-L 189 11 133 159 2 ОТ-1-12-L 202 12 133 159 2 Примечание: ОТ-1-H-L, где Н - высота надземной части, м L - с заглублением (величина 1,5-2,0 м) Область применения: Освещение магистралей, транспортных развязок, мостов, дворов, парков, площадей, парковок и пр. Производство: Опора прямостоечная трубчатая ОТ-1-H-L изготавливается из трубного проката. Поверхность опор имеет антикоррозионное покрытие, выполненное методом горячего цинкования, что обеспечивает их длительную эксплуатацию. С помощью различного типа кронштейнов, зафиксированных на опоре 8-ю винтами, на опоре могут быть установлены консольные или подвесные светильники. Крепеж оцинкован или изготовлен из нержавеющей стали. ОТ, имея высоту надземной части от 6 до 12 метров, имеет два варианта исполнения: фланцевый или вкапываемый, с заглублением до 2,0 метров.Тип: ОТ-1-6-1,5 Высота опоры: 6, 7, 8, 9, 10, 11, 12 м По типу ствола опоры: Трубчатая По типу установки опоры: Прямостоечная По типу нагрузки опоры: Несиловая Материал: Металл Покрытие: Горячий цинк, Порошковая краска Нижний ∅: 159 мм Верхний ∅: 133 мм Возможность покраски: Да

27 635 руб.
Санкт-Петербург
Опора (НФ) несиловая фланцевая трубчатая неразборная (Тип: НФ-30,0-02-ц)

Опора (НФ) несиловая фланцевая трубчатая неразборная (Тип: НФ-30,0-02-ц)

Типы опор НФ Опора освещения несиловая фланцевая трубчатая неразборная НФ Наименование Масса*, кг Размеры, мм H h1 h2 h3 D1 D2 D3 d А Б НФ-2,0-02-ц 23,6 2000 1000 1285 - 108 76 - М20 230 180 НФ-3,0-02-ц 30,1 3000 1000 1285 - 108 76 - М20 230 180 НФ-4,0-02-ц 36,7 4000 1000 1285 - 108 76 - М20 230 180 НФ-4,0-02-ц 56,5 4000 1000 1285 1340 159 108 76 М20 250 180 НФ-5,0-02-ц 65,1 5000 1000 1285 1840 159 108 76 М20 250 180 НФ-6,0-02-ц 73,9 6000 1500 1285 2340 159 108 76 М20 250 180 НФ-7,0-02-ц 80,5 7000 1500 1285 2340 159 108 76 М20 250 180 НФ-8,0-02-ц 87,8 8000 1500 1285 2740 159 108 76 М20 270 200 НФ-9,0-02-ц 98,6 9000 2000 1880 2940 159 108 76 М20 270 200 НФ-10,0-02-ц 110,2 10000 2000 1880 2940 159 108 76 М20 270 200 НФ-12,0-02-ц 312,5 12000 2000 4000 4000 168 133 108 М30 400 300 Применение Опора освещения несиловая НФ - металлическая конструкция, применяемая для освещения площадей, улиц и дорог с низкой и средней интенсивностью движения, дворов, территории микрорайонов, АЗС, парковок, автостоянок, скверов, парков и т.д. Конструкция таких опор позволяет применять их практически на любых площадках. Производство Несиловая фланцевая трубчатая опора НФ - изготавливается из трубчатого проката. Он позволяет получить надежную и долговечную конструкцию. Как и любая стальная конструкция, опора НФ - требует защиты от коррозии. Для ее обеспечения конструкция опор обрабатывается методом горячего цинкования илил окрашиваю порошковой краской в RAL. Установка Монтаж опор НФ - ведется с использованием закладного железобетонного фундамента. Опора имеет специальную фланцевую часть, которая устанавливается в металлический элемент и закрепляется в нем специальными шпильками. В опоре НФ - предусмотрен подземный ввод кабельных систем. Питающий кабель вводится через специальное окно в закладном фундаменте и подводится к верхней части опор. Преимущества Срок службы более 30 лет Соответствие покрытия ГОСТ 9.307-89 Возможность учета при изготовлении индивидуальных требованийТип: Несиловые Тип установки: Фланцевые Форма: Трубчатые Тип: НФ-30,0-02-ц Высота опоры: 2, 3, 4, 5, 6, 7, 8, 9, 10, 11, 12 м По типу ствола опоры: Трубчатая По типу установки опоры: Фланцевая По типу нагрузки опоры: Несиловая Материал: Металл Покрытие: Горячий цинк, Порошковая краска Возможность покраски: Да

336 000 руб.
Санкт-Петербург
Опора (НФ) несиловая фланцевая трубчатая неразборная (Тип: НФ-25,0-02-ц)

Опора (НФ) несиловая фланцевая трубчатая неразборная (Тип: НФ-25,0-02-ц)

Типы опор НФ Опора освещения несиловая фланцевая трубчатая неразборная НФ Наименование Масса*, кг Размеры, мм H h1 h2 h3 D1 D2 D3 d А Б НФ-2,0-02-ц 23,6 2000 1000 1285 - 108 76 - М20 230 180 НФ-3,0-02-ц 30,1 3000 1000 1285 - 108 76 - М20 230 180 НФ-4,0-02-ц 36,7 4000 1000 1285 - 108 76 - М20 230 180 НФ-4,0-02-ц 56,5 4000 1000 1285 1340 159 108 76 М20 250 180 НФ-5,0-02-ц 65,1 5000 1000 1285 1840 159 108 76 М20 250 180 НФ-6,0-02-ц 73,9 6000 1500 1285 2340 159 108 76 М20 250 180 НФ-7,0-02-ц 80,5 7000 1500 1285 2340 159 108 76 М20 250 180 НФ-8,0-02-ц 87,8 8000 1500 1285 2740 159 108 76 М20 270 200 НФ-9,0-02-ц 98,6 9000 2000 1880 2940 159 108 76 М20 270 200 НФ-10,0-02-ц 110,2 10000 2000 1880 2940 159 108 76 М20 270 200 НФ-12,0-02-ц 312,5 12000 2000 4000 4000 168 133 108 М30 400 300 Применение Опора освещения несиловая НФ - металлическая конструкция, применяемая для освещения площадей, улиц и дорог с низкой и средней интенсивностью движения, дворов, территории микрорайонов, АЗС, парковок, автостоянок, скверов, парков и т.д. Конструкция таких опор позволяет применять их практически на любых площадках. Производство Несиловая фланцевая трубчатая опора НФ - изготавливается из трубчатого проката. Он позволяет получить надежную и долговечную конструкцию. Как и любая стальная конструкция, опора НФ - требует защиты от коррозии. Для ее обеспечения конструкция опор обрабатывается методом горячего цинкования илил окрашиваю порошковой краской в RAL. Установка Монтаж опор НФ - ведется с использованием закладного железобетонного фундамента. Опора имеет специальную фланцевую часть, которая устанавливается в металлический элемент и закрепляется в нем специальными шпильками. В опоре НФ - предусмотрен подземный ввод кабельных систем. Питающий кабель вводится через специальное окно в закладном фундаменте и подводится к верхней части опор. Преимущества Срок службы более 30 лет Соответствие покрытия ГОСТ 9.307-89 Возможность учета при изготовлении индивидуальных требованийТип: Несиловые Тип установки: Фланцевые Форма: Трубчатые Тип: НФ-25,0-02-ц Высота опоры: 2, 3, 4, 5, 6, 7, 8, 9, 10, 11, 12 м По типу ствола опоры: Трубчатая По типу установки опоры: Фланцевая По типу нагрузки опоры: Несиловая Материал: Металл Покрытие: Горячий цинк, Порошковая краска Возможность покраски: Да

298 000 руб.
Санкт-Петербург
Фонарь FLOstick кемпинговый Яркий луч (Тип: Фонарь MT-4 FLOstick)

Фонарь FLOstick кемпинговый Яркий луч (Тип: Фонарь MT-4 FLOstick)

Аккумуляторный влагозащищенный светодиодный фонарь MT-1 FLOstick Особенности и применение: Влагозащищенность IP68 Использование в качестве зарядного устройства (power bank) Использование фонаря в чрезвычайных ситуациях Белый свет (100%, 30% и 10%) Красный свет (100%, 20% и мигание) Описание фонаря MT-1 FLOstick Влагозащищенность IP68 (погружение до 2 м) Аккумулятор 3.7 В, 2600 мАч Разъем микро-USB: 5 В, 800 мА Разъем USB: 5 В, 1200 мА Мощность фонаря 1 Ватт Световой поток 100 люмен Индикация заряда/ разряда: Синие светодиоды способны показать уровень заряда аккумулятора, для этого необходимо 6 раз нажать на кнопку. Когда они горят, не мигая, значит – полный заряд. Диод мигнет один раз за цикл: осталось от 25% заряда и менее Два мигания: осталось от 50% до 25% заряда Три мигания: осталось от 75% до 50% заряда Четыре мигания: от 100% до 75% заряда Режимы фонаря: Включение производится торцевой кнопкой. В фонаре реализованы следующие режимы: Вкл. белый свет 10%, белый свет 30%, белый свет 100%, красный свет 20%, красный свет 100%, мигающий красный, выкл. Нажатие и удержание кнопки в течение 2 с и более выключает фонарь. Время работы: белый свет 100% - 8 ч белый свет 30% - 24 ч белый свет 10% - 60 ч красный свет 100% - 15 ч красный свет 20% - 75 ч красный свет, мигание - 31 ч зарядка аккумулятора - 5 ч Комплектация фонаря MT-1 FLOstick Фонарь МТ-1 «FLOstick» USB-кабель для зарядки 2 ремешка для подвешивания Фонарь можно брать с собой в поход, на рыбалку, читать с его помощью, копаться в автомобиле и многое другое… Аккумуляторный влагозащищенный светодиодный фонарь MT-4 FLOstick Описание фонаря MT-4 FLOstick Влагозащищенность IP68 (погружение до 2 метров) Белый свет (100%, 30%,10% и мигание) Мощность фонаря 4.5 Ватта, Li-Ion аккумулятор 3.7 В 10400 мАч Индикация заряда/ разряда Использование в качестве зарядного устройства (power bank) Использование фонаря в чрезвычайных ситуациях В фонаре есть интеллектуальная функция распознавания параметров зарядного устройства, регулирующая ток заряда. Режимы фонаря: Включение производится торцевой кнопкой. В фонаре реализованы 4 режима. Вкл. 10%, 30%, 100%, мигание, выкл. Нажатие и удержание кнопки в течение 2 с и более выключает фонарь. Индикация заряда/ разряда: 1. Когда фонарь заряжается, синие светодиоды мигают, сообщая о том, что идет процесс зарядки. 2. При достижении полного заряда, светодиоды перестают мигать и начинают постоянно гореть синим светом. 3. При низком уровне заряда, первый индикатор начинает мигать. Синий индикаторУровень заряда горит только первый от 0 до 25% первый и второй от 25% до 50% горят три от 50% до 75% горят все четыре от 75% до 100% Время зарядки 8 часов при использовании адаптера 5 В, 2 А. 12 часов при использовании адаптера 5 В, 1 А. Время работы: Режим Световой поток Время работы белый свет 100% 450 люмен ~ 8 ч белый свет 30% 135 люмен ~ 13 ч белый свет 10% 45 люмен ~ 77 ч белый свет, мигание ~ 27 ч Комплектация фонаря MT-4 FLOstick Фонарь МТ-4 «FLOstick» USB-кабель для зарядки 2 ремешка для подвешивания Магнитный держатель Дополнительные характеристики: Вес с упаковкой 0.8 кгПроизводитель: Яркий Луч Тип: Фонарь MT-4 FLOstick Материал корпуса: Металл Время непрерывной работы: 8-31 час Гарантийный срок эксплуатации, месяцев: 24 Источник света: Светодиод (LED) Источник питания: Аккумулятор Длина упаковки: 212 мм Ширина упаковки: 73 мм Высота упаковки: 51 мм Объем упаковки, м³: 0.0008

2 900 руб.
Санкт-Петербург
Опора (НФ) несиловая фланцевая трубчатая неразборная (Тип: НФ-10,0-02-ц)

Опора (НФ) несиловая фланцевая трубчатая неразборная (Тип: НФ-10,0-02-ц)

Типы опор НФ Опора освещения несиловая фланцевая трубчатая неразборная НФ Наименование Масса*, кг Размеры, мм H h1 h2 h3 D1 D2 D3 d А Б НФ-2,0-02-ц 23,6 2000 1000 1285 - 108 76 - М20 230 180 НФ-3,0-02-ц 30,1 3000 1000 1285 - 108 76 - М20 230 180 НФ-4,0-02-ц 36,7 4000 1000 1285 - 108 76 - М20 230 180 НФ-4,0-02-ц 56,5 4000 1000 1285 1340 159 108 76 М20 250 180 НФ-5,0-02-ц 65,1 5000 1000 1285 1840 159 108 76 М20 250 180 НФ-6,0-02-ц 73,9 6000 1500 1285 2340 159 108 76 М20 250 180 НФ-7,0-02-ц 80,5 7000 1500 1285 2340 159 108 76 М20 250 180 НФ-8,0-02-ц 87,8 8000 1500 1285 2740 159 108 76 М20 270 200 НФ-9,0-02-ц 98,6 9000 2000 1880 2940 159 108 76 М20 270 200 НФ-10,0-02-ц 110,2 10000 2000 1880 2940 159 108 76 М20 270 200 НФ-12,0-02-ц 312,5 12000 2000 4000 4000 168 133 108 М30 400 300 Применение Опора освещения несиловая НФ - металлическая конструкция, применяемая для освещения площадей, улиц и дорог с низкой и средней интенсивностью движения, дворов, территории микрорайонов, АЗС, парковок, автостоянок, скверов, парков и т.д. Конструкция таких опор позволяет применять их практически на любых площадках. Производство Несиловая фланцевая трубчатая опора НФ - изготавливается из трубчатого проката. Он позволяет получить надежную и долговечную конструкцию. Как и любая стальная конструкция, опора НФ - требует защиты от коррозии. Для ее обеспечения конструкция опор обрабатывается методом горячего цинкования илил окрашиваю порошковой краской в RAL. Установка Монтаж опор НФ - ведется с использованием закладного железобетонного фундамента. Опора имеет специальную фланцевую часть, которая устанавливается в металлический элемент и закрепляется в нем специальными шпильками. В опоре НФ - предусмотрен подземный ввод кабельных систем. Питающий кабель вводится через специальное окно в закладном фундаменте и подводится к верхней части опор. Преимущества Срок службы более 30 лет Соответствие покрытия ГОСТ 9.307-89 Возможность учета при изготовлении индивидуальных требованийТип: Несиловые Тип установки: Фланцевые Форма: Трубчатые Тип: НФ-10,0-02-ц Высота опоры: 2, 3, 4, 5, 6, 7, 8, 9, 10, 11, 12 м По типу ствола опоры: Трубчатая По типу установки опоры: Фланцевая По типу нагрузки опоры: Несиловая Материал: Металл Покрытие: Горячий цинк, Порошковая краска Возможность покраски: Да

39 600 руб.
Санкт-Петербург
Опора (НФ) несиловая фланцевая трубчатая неразборная (Тип: НФ-9,0-02-ц)

Опора (НФ) несиловая фланцевая трубчатая неразборная (Тип: НФ-9,0-02-ц)

Типы опор НФ Опора освещения несиловая фланцевая трубчатая неразборная НФ Наименование Масса*, кг Размеры, мм H h1 h2 h3 D1 D2 D3 d А Б НФ-2,0-02-ц 23,6 2000 1000 1285 - 108 76 - М20 230 180 НФ-3,0-02-ц 30,1 3000 1000 1285 - 108 76 - М20 230 180 НФ-4,0-02-ц 36,7 4000 1000 1285 - 108 76 - М20 230 180 НФ-4,0-02-ц 56,5 4000 1000 1285 1340 159 108 76 М20 250 180 НФ-5,0-02-ц 65,1 5000 1000 1285 1840 159 108 76 М20 250 180 НФ-6,0-02-ц 73,9 6000 1500 1285 2340 159 108 76 М20 250 180 НФ-7,0-02-ц 80,5 7000 1500 1285 2340 159 108 76 М20 250 180 НФ-8,0-02-ц 87,8 8000 1500 1285 2740 159 108 76 М20 270 200 НФ-9,0-02-ц 98,6 9000 2000 1880 2940 159 108 76 М20 270 200 НФ-10,0-02-ц 110,2 10000 2000 1880 2940 159 108 76 М20 270 200 НФ-12,0-02-ц 312,5 12000 2000 4000 4000 168 133 108 М30 400 300 Применение Опора освещения несиловая НФ - металлическая конструкция, применяемая для освещения площадей, улиц и дорог с низкой и средней интенсивностью движения, дворов, территории микрорайонов, АЗС, парковок, автостоянок, скверов, парков и т.д. Конструкция таких опор позволяет применять их практически на любых площадках. Производство Несиловая фланцевая трубчатая опора НФ - изготавливается из трубчатого проката. Он позволяет получить надежную и долговечную конструкцию. Как и любая стальная конструкция, опора НФ - требует защиты от коррозии. Для ее обеспечения конструкция опор обрабатывается методом горячего цинкования илил окрашиваю порошковой краской в RAL. Установка Монтаж опор НФ - ведется с использованием закладного железобетонного фундамента. Опора имеет специальную фланцевую часть, которая устанавливается в металлический элемент и закрепляется в нем специальными шпильками. В опоре НФ - предусмотрен подземный ввод кабельных систем. Питающий кабель вводится через специальное окно в закладном фундаменте и подводится к верхней части опор. Преимущества Срок службы более 30 лет Соответствие покрытия ГОСТ 9.307-89 Возможность учета при изготовлении индивидуальных требованийТип: Несиловые Тип установки: Фланцевые Форма: Трубчатые Тип: НФ-9,0-02-ц Высота опоры: 2, 3, 4, 5, 6, 7, 8, 9, 10, 11, 12 м По типу ствола опоры: Трубчатая По типу установки опоры: Фланцевая По типу нагрузки опоры: Несиловая Материал: Металл Покрытие: Горячий цинк, Порошковая краска Возможность покраски: Да

23 600 руб.
Санкт-Петербург
Опора (НФ) несиловая фланцевая трубчатая неразборная (Тип: НФ-8,0-02-ц)

Опора (НФ) несиловая фланцевая трубчатая неразборная (Тип: НФ-8,0-02-ц)

Типы опор НФ Опора освещения несиловая фланцевая трубчатая неразборная НФ Наименование Масса*, кг Размеры, мм H h1 h2 h3 D1 D2 D3 d А Б НФ-2,0-02-ц 23,6 2000 1000 1285 - 108 76 - М20 230 180 НФ-3,0-02-ц 30,1 3000 1000 1285 - 108 76 - М20 230 180 НФ-4,0-02-ц 36,7 4000 1000 1285 - 108 76 - М20 230 180 НФ-4,0-02-ц 56,5 4000 1000 1285 1340 159 108 76 М20 250 180 НФ-5,0-02-ц 65,1 5000 1000 1285 1840 159 108 76 М20 250 180 НФ-6,0-02-ц 73,9 6000 1500 1285 2340 159 108 76 М20 250 180 НФ-7,0-02-ц 80,5 7000 1500 1285 2340 159 108 76 М20 250 180 НФ-8,0-02-ц 87,8 8000 1500 1285 2740 159 108 76 М20 270 200 НФ-9,0-02-ц 98,6 9000 2000 1880 2940 159 108 76 М20 270 200 НФ-10,0-02-ц 110,2 10000 2000 1880 2940 159 108 76 М20 270 200 НФ-12,0-02-ц 312,5 12000 2000 4000 4000 168 133 108 М30 400 300 Применение Опора освещения несиловая НФ - металлическая конструкция, применяемая для освещения площадей, улиц и дорог с низкой и средней интенсивностью движения, дворов, территории микрорайонов, АЗС, парковок, автостоянок, скверов, парков и т.д. Конструкция таких опор позволяет применять их практически на любых площадках. Производство Несиловая фланцевая трубчатая опора НФ - изготавливается из трубчатого проката. Он позволяет получить надежную и долговечную конструкцию. Как и любая стальная конструкция, опора НФ - требует защиты от коррозии. Для ее обеспечения конструкция опор обрабатывается методом горячего цинкования илил окрашиваю порошковой краской в RAL. Установка Монтаж опор НФ - ведется с использованием закладного железобетонного фундамента. Опора имеет специальную фланцевую часть, которая устанавливается в металлический элемент и закрепляется в нем специальными шпильками. В опоре НФ - предусмотрен подземный ввод кабельных систем. Питающий кабель вводится через специальное окно в закладном фундаменте и подводится к верхней части опор. Преимущества Срок службы более 30 лет Соответствие покрытия ГОСТ 9.307-89 Возможность учета при изготовлении индивидуальных требованийТип: Несиловые Тип установки: Фланцевые Форма: Трубчатые Тип: НФ-8,0-02-ц Высота опоры: 2, 3, 4, 5, 6, 7, 8, 9, 10, 11, 12 м По типу ствола опоры: Трубчатая По типу установки опоры: Фланцевая По типу нагрузки опоры: Несиловая Материал: Металл Покрытие: Горячий цинк, Порошковая краска Возможность покраски: Да

19 200 руб.
Санкт-Петербург
Опора (НФ) несиловая фланцевая трубчатая неразборная (Тип: НФ-7,0-02-ц)

Опора (НФ) несиловая фланцевая трубчатая неразборная (Тип: НФ-7,0-02-ц)

Типы опор НФ Опора освещения несиловая фланцевая трубчатая неразборная НФ Наименование Масса*, кг Размеры, мм H h1 h2 h3 D1 D2 D3 d А Б НФ-2,0-02-ц 23,6 2000 1000 1285 - 108 76 - М20 230 180 НФ-3,0-02-ц 30,1 3000 1000 1285 - 108 76 - М20 230 180 НФ-4,0-02-ц 36,7 4000 1000 1285 - 108 76 - М20 230 180 НФ-4,0-02-ц 56,5 4000 1000 1285 1340 159 108 76 М20 250 180 НФ-5,0-02-ц 65,1 5000 1000 1285 1840 159 108 76 М20 250 180 НФ-6,0-02-ц 73,9 6000 1500 1285 2340 159 108 76 М20 250 180 НФ-7,0-02-ц 80,5 7000 1500 1285 2340 159 108 76 М20 250 180 НФ-8,0-02-ц 87,8 8000 1500 1285 2740 159 108 76 М20 270 200 НФ-9,0-02-ц 98,6 9000 2000 1880 2940 159 108 76 М20 270 200 НФ-10,0-02-ц 110,2 10000 2000 1880 2940 159 108 76 М20 270 200 НФ-12,0-02-ц 312,5 12000 2000 4000 4000 168 133 108 М30 400 300 Применение Опора освещения несиловая НФ - металлическая конструкция, применяемая для освещения площадей, улиц и дорог с низкой и средней интенсивностью движения, дворов, территории микрорайонов, АЗС, парковок, автостоянок, скверов, парков и т.д. Конструкция таких опор позволяет применять их практически на любых площадках. Производство Несиловая фланцевая трубчатая опора НФ - изготавливается из трубчатого проката. Он позволяет получить надежную и долговечную конструкцию. Как и любая стальная конструкция, опора НФ - требует защиты от коррозии. Для ее обеспечения конструкция опор обрабатывается методом горячего цинкования илил окрашиваю порошковой краской в RAL. Установка Монтаж опор НФ - ведется с использованием закладного железобетонного фундамента. Опора имеет специальную фланцевую часть, которая устанавливается в металлический элемент и закрепляется в нем специальными шпильками. В опоре НФ - предусмотрен подземный ввод кабельных систем. Питающий кабель вводится через специальное окно в закладном фундаменте и подводится к верхней части опор. Преимущества Срок службы более 30 лет Соответствие покрытия ГОСТ 9.307-89 Возможность учета при изготовлении индивидуальных требованийТип: Несиловые Тип установки: Фланцевые Форма: Трубчатые Тип: НФ-7,0-02-ц Высота опоры: 2, 3, 4, 5, 6, 7, 8, 9, 10, 11, 12 м По типу ствола опоры: Трубчатая По типу установки опоры: Фланцевая По типу нагрузки опоры: Несиловая Материал: Металл Покрытие: Горячий цинк, Порошковая краска Возможность покраски: Да

17 600 руб.
Санкт-Петербург
Опора (НФ) несиловая фланцевая трубчатая неразборная (Тип: НФ-6,0-02-ц)

Опора (НФ) несиловая фланцевая трубчатая неразборная (Тип: НФ-6,0-02-ц)

Типы опор НФ Опора освещения несиловая фланцевая трубчатая неразборная НФ Наименование Масса*, кг Размеры, мм H h1 h2 h3 D1 D2 D3 d А Б НФ-2,0-02-ц 23,6 2000 1000 1285 - 108 76 - М20 230 180 НФ-3,0-02-ц 30,1 3000 1000 1285 - 108 76 - М20 230 180 НФ-4,0-02-ц 36,7 4000 1000 1285 - 108 76 - М20 230 180 НФ-4,0-02-ц 56,5 4000 1000 1285 1340 159 108 76 М20 250 180 НФ-5,0-02-ц 65,1 5000 1000 1285 1840 159 108 76 М20 250 180 НФ-6,0-02-ц 73,9 6000 1500 1285 2340 159 108 76 М20 250 180 НФ-7,0-02-ц 80,5 7000 1500 1285 2340 159 108 76 М20 250 180 НФ-8,0-02-ц 87,8 8000 1500 1285 2740 159 108 76 М20 270 200 НФ-9,0-02-ц 98,6 9000 2000 1880 2940 159 108 76 М20 270 200 НФ-10,0-02-ц 110,2 10000 2000 1880 2940 159 108 76 М20 270 200 НФ-12,0-02-ц 312,5 12000 2000 4000 4000 168 133 108 М30 400 300 Применение Опора освещения несиловая НФ - металлическая конструкция, применяемая для освещения площадей, улиц и дорог с низкой и средней интенсивностью движения, дворов, территории микрорайонов, АЗС, парковок, автостоянок, скверов, парков и т.д. Конструкция таких опор позволяет применять их практически на любых площадках. Производство Несиловая фланцевая трубчатая опора НФ - изготавливается из трубчатого проката. Он позволяет получить надежную и долговечную конструкцию. Как и любая стальная конструкция, опора НФ - требует защиты от коррозии. Для ее обеспечения конструкция опор обрабатывается методом горячего цинкования илил окрашиваю порошковой краской в RAL. Установка Монтаж опор НФ - ведется с использованием закладного железобетонного фундамента. Опора имеет специальную фланцевую часть, которая устанавливается в металлический элемент и закрепляется в нем специальными шпильками. В опоре НФ - предусмотрен подземный ввод кабельных систем. Питающий кабель вводится через специальное окно в закладном фундаменте и подводится к верхней части опор. Преимущества Срок службы более 30 лет Соответствие покрытия ГОСТ 9.307-89 Возможность учета при изготовлении индивидуальных требованийТип: Несиловые Тип установки: Фланцевые Форма: Трубчатые Тип: НФ-6,0-02-ц Высота опоры: 2, 3, 4, 5, 6, 7, 8, 9, 10, 11, 12 м По типу ствола опоры: Трубчатая По типу установки опоры: Фланцевая По типу нагрузки опоры: Несиловая Материал: Металл Покрытие: Горячий цинк, Порошковая краска Возможность покраски: Да

16 500 руб.
Санкт-Петербург
Опора (НФ) несиловая фланцевая трубчатая неразборная (Тип: НФ-5,0-02-ц)

Опора (НФ) несиловая фланцевая трубчатая неразборная (Тип: НФ-5,0-02-ц)

Типы опор НФ Опора освещения несиловая фланцевая трубчатая неразборная НФ Наименование Масса*, кг Размеры, мм H h1 h2 h3 D1 D2 D3 d А Б НФ-2,0-02-ц 23,6 2000 1000 1285 - 108 76 - М20 230 180 НФ-3,0-02-ц 30,1 3000 1000 1285 - 108 76 - М20 230 180 НФ-4,0-02-ц 36,7 4000 1000 1285 - 108 76 - М20 230 180 НФ-4,0-02-ц 56,5 4000 1000 1285 1340 159 108 76 М20 250 180 НФ-5,0-02-ц 65,1 5000 1000 1285 1840 159 108 76 М20 250 180 НФ-6,0-02-ц 73,9 6000 1500 1285 2340 159 108 76 М20 250 180 НФ-7,0-02-ц 80,5 7000 1500 1285 2340 159 108 76 М20 250 180 НФ-8,0-02-ц 87,8 8000 1500 1285 2740 159 108 76 М20 270 200 НФ-9,0-02-ц 98,6 9000 2000 1880 2940 159 108 76 М20 270 200 НФ-10,0-02-ц 110,2 10000 2000 1880 2940 159 108 76 М20 270 200 НФ-12,0-02-ц 312,5 12000 2000 4000 4000 168 133 108 М30 400 300 Применение Опора освещения несиловая НФ - металлическая конструкция, применяемая для освещения площадей, улиц и дорог с низкой и средней интенсивностью движения, дворов, территории микрорайонов, АЗС, парковок, автостоянок, скверов, парков и т.д. Конструкция таких опор позволяет применять их практически на любых площадках. Производство Несиловая фланцевая трубчатая опора НФ - изготавливается из трубчатого проката. Он позволяет получить надежную и долговечную конструкцию. Как и любая стальная конструкция, опора НФ - требует защиты от коррозии. Для ее обеспечения конструкция опор обрабатывается методом горячего цинкования илил окрашиваю порошковой краской в RAL. Установка Монтаж опор НФ - ведется с использованием закладного железобетонного фундамента. Опора имеет специальную фланцевую часть, которая устанавливается в металлический элемент и закрепляется в нем специальными шпильками. В опоре НФ - предусмотрен подземный ввод кабельных систем. Питающий кабель вводится через специальное окно в закладном фундаменте и подводится к верхней части опор. Преимущества Срок службы более 30 лет Соответствие покрытия ГОСТ 9.307-89 Возможность учета при изготовлении индивидуальных требованийТип: Несиловые Тип установки: Фланцевые Форма: Трубчатые Тип: НФ-5,0-02-ц Высота опоры: 2, 3, 4, 5, 6, 7, 8, 9, 10, 11, 12 м По типу ствола опоры: Трубчатая По типу установки опоры: Фланцевая По типу нагрузки опоры: Несиловая Материал: Металл Покрытие: Горячий цинк, Порошковая краска Возможность покраски: Да

14 960 руб.
Санкт-Петербург
Опора (НФ) несиловая фланцевая трубчатая неразборная (Тип: НФ-4,0-02-ц (159-76))

Опора (НФ) несиловая фланцевая трубчатая неразборная (Тип: НФ-4,0-02-ц (159-76))

Типы опор НФ Опора освещения несиловая фланцевая трубчатая неразборная НФ Наименование Масса*, кг Размеры, мм H h1 h2 h3 D1 D2 D3 d А Б НФ-2,0-02-ц 23,6 2000 1000 1285 - 108 76 - М20 230 180 НФ-3,0-02-ц 30,1 3000 1000 1285 - 108 76 - М20 230 180 НФ-4,0-02-ц 36,7 4000 1000 1285 - 108 76 - М20 230 180 НФ-4,0-02-ц 56,5 4000 1000 1285 1340 159 108 76 М20 250 180 НФ-5,0-02-ц 65,1 5000 1000 1285 1840 159 108 76 М20 250 180 НФ-6,0-02-ц 73,9 6000 1500 1285 2340 159 108 76 М20 250 180 НФ-7,0-02-ц 80,5 7000 1500 1285 2340 159 108 76 М20 250 180 НФ-8,0-02-ц 87,8 8000 1500 1285 2740 159 108 76 М20 270 200 НФ-9,0-02-ц 98,6 9000 2000 1880 2940 159 108 76 М20 270 200 НФ-10,0-02-ц 110,2 10000 2000 1880 2940 159 108 76 М20 270 200 НФ-12,0-02-ц 312,5 12000 2000 4000 4000 168 133 108 М30 400 300 Применение Опора освещения несиловая НФ - металлическая конструкция, применяемая для освещения площадей, улиц и дорог с низкой и средней интенсивностью движения, дворов, территории микрорайонов, АЗС, парковок, автостоянок, скверов, парков и т.д. Конструкция таких опор позволяет применять их практически на любых площадках. Производство Несиловая фланцевая трубчатая опора НФ - изготавливается из трубчатого проката. Он позволяет получить надежную и долговечную конструкцию. Как и любая стальная конструкция, опора НФ - требует защиты от коррозии. Для ее обеспечения конструкция опор обрабатывается методом горячего цинкования илил окрашиваю порошковой краской в RAL. Установка Монтаж опор НФ - ведется с использованием закладного железобетонного фундамента. Опора имеет специальную фланцевую часть, которая устанавливается в металлический элемент и закрепляется в нем специальными шпильками. В опоре НФ - предусмотрен подземный ввод кабельных систем. Питающий кабель вводится через специальное окно в закладном фундаменте и подводится к верхней части опор. Преимущества Срок службы более 30 лет Соответствие покрытия ГОСТ 9.307-89 Возможность учета при изготовлении индивидуальных требованийТип: Несиловые Тип установки: Фланцевые Форма: Трубчатые Тип: НФ-4,0-02-ц (159-76) Высота опоры: 2, 3, 4, 5, 6, 7, 8, 9, 10, 11, 12 м По типу ствола опоры: Трубчатая По типу установки опоры: Фланцевая По типу нагрузки опоры: Несиловая Материал: Металл Покрытие: Горячий цинк, Порошковая краска Возможность покраски: Да

12 720 руб.
Санкт-Петербург
Опора (НФ) несиловая фланцевая трубчатая неразборная (Тип: НФ-4,0-02-ц)

Опора (НФ) несиловая фланцевая трубчатая неразборная (Тип: НФ-4,0-02-ц)

Типы опор НФ Опора освещения несиловая фланцевая трубчатая неразборная НФ Наименование Масса*, кг Размеры, мм H h1 h2 h3 D1 D2 D3 d А Б НФ-2,0-02-ц 23,6 2000 1000 1285 - 108 76 - М20 230 180 НФ-3,0-02-ц 30,1 3000 1000 1285 - 108 76 - М20 230 180 НФ-4,0-02-ц 36,7 4000 1000 1285 - 108 76 - М20 230 180 НФ-4,0-02-ц 56,5 4000 1000 1285 1340 159 108 76 М20 250 180 НФ-5,0-02-ц 65,1 5000 1000 1285 1840 159 108 76 М20 250 180 НФ-6,0-02-ц 73,9 6000 1500 1285 2340 159 108 76 М20 250 180 НФ-7,0-02-ц 80,5 7000 1500 1285 2340 159 108 76 М20 250 180 НФ-8,0-02-ц 87,8 8000 1500 1285 2740 159 108 76 М20 270 200 НФ-9,0-02-ц 98,6 9000 2000 1880 2940 159 108 76 М20 270 200 НФ-10,0-02-ц 110,2 10000 2000 1880 2940 159 108 76 М20 270 200 НФ-12,0-02-ц 312,5 12000 2000 4000 4000 168 133 108 М30 400 300 Применение Опора освещения несиловая НФ - металлическая конструкция, применяемая для освещения площадей, улиц и дорог с низкой и средней интенсивностью движения, дворов, территории микрорайонов, АЗС, парковок, автостоянок, скверов, парков и т.д. Конструкция таких опор позволяет применять их практически на любых площадках. Производство Несиловая фланцевая трубчатая опора НФ - изготавливается из трубчатого проката. Он позволяет получить надежную и долговечную конструкцию. Как и любая стальная конструкция, опора НФ - требует защиты от коррозии. Для ее обеспечения конструкция опор обрабатывается методом горячего цинкования илил окрашиваю порошковой краской в RAL. Установка Монтаж опор НФ - ведется с использованием закладного железобетонного фундамента. Опора имеет специальную фланцевую часть, которая устанавливается в металлический элемент и закрепляется в нем специальными шпильками. В опоре НФ - предусмотрен подземный ввод кабельных систем. Питающий кабель вводится через специальное окно в закладном фундаменте и подводится к верхней части опор. Преимущества Срок службы более 30 лет Соответствие покрытия ГОСТ 9.307-89 Возможность учета при изготовлении индивидуальных требованийТип: Несиловые Тип установки: Фланцевые Форма: Трубчатые Тип: НФ-4,0-02-ц Высота опоры: 2, 3, 4, 5, 6, 7, 8, 9, 10, 11, 12 м По типу ствола опоры: Трубчатая По типу установки опоры: Фланцевая По типу нагрузки опоры: Несиловая Материал: Металл Покрытие: Горячий цинк, Порошковая краска Возможность покраски: Да

9 600 руб.
Санкт-Петербург
Опора (НФ) несиловая фланцевая трубчатая неразборная (Тип: НФ-3,0-02-ц)

Опора (НФ) несиловая фланцевая трубчатая неразборная (Тип: НФ-3,0-02-ц)

Типы опор НФ Опора освещения несиловая фланцевая трубчатая неразборная НФ Наименование Масса*, кг Размеры, мм H h1 h2 h3 D1 D2 D3 d А Б НФ-2,0-02-ц 23,6 2000 1000 1285 - 108 76 - М20 230 180 НФ-3,0-02-ц 30,1 3000 1000 1285 - 108 76 - М20 230 180 НФ-4,0-02-ц 36,7 4000 1000 1285 - 108 76 - М20 230 180 НФ-4,0-02-ц 56,5 4000 1000 1285 1340 159 108 76 М20 250 180 НФ-5,0-02-ц 65,1 5000 1000 1285 1840 159 108 76 М20 250 180 НФ-6,0-02-ц 73,9 6000 1500 1285 2340 159 108 76 М20 250 180 НФ-7,0-02-ц 80,5 7000 1500 1285 2340 159 108 76 М20 250 180 НФ-8,0-02-ц 87,8 8000 1500 1285 2740 159 108 76 М20 270 200 НФ-9,0-02-ц 98,6 9000 2000 1880 2940 159 108 76 М20 270 200 НФ-10,0-02-ц 110,2 10000 2000 1880 2940 159 108 76 М20 270 200 НФ-12,0-02-ц 312,5 12000 2000 4000 4000 168 133 108 М30 400 300 Применение Опора освещения несиловая НФ - металлическая конструкция, применяемая для освещения площадей, улиц и дорог с низкой и средней интенсивностью движения, дворов, территории микрорайонов, АЗС, парковок, автостоянок, скверов, парков и т.д. Конструкция таких опор позволяет применять их практически на любых площадках. Производство Несиловая фланцевая трубчатая опора НФ - изготавливается из трубчатого проката. Он позволяет получить надежную и долговечную конструкцию. Как и любая стальная конструкция, опора НФ - требует защиты от коррозии. Для ее обеспечения конструкция опор обрабатывается методом горячего цинкования илил окрашиваю порошковой краской в RAL. Установка Монтаж опор НФ - ведется с использованием закладного железобетонного фундамента. Опора имеет специальную фланцевую часть, которая устанавливается в металлический элемент и закрепляется в нем специальными шпильками. В опоре НФ - предусмотрен подземный ввод кабельных систем. Питающий кабель вводится через специальное окно в закладном фундаменте и подводится к верхней части опор. Преимущества Срок службы более 30 лет Соответствие покрытия ГОСТ 9.307-89 Возможность учета при изготовлении индивидуальных требованийТип: Несиловые Тип установки: Фланцевые Форма: Трубчатые Тип: НФ-3,0-02-ц Высота опоры: 2, 3, 4, 5, 6, 7, 8, 9, 10, 11, 12 м По типу ствола опоры: Трубчатая По типу установки опоры: Фланцевая По типу нагрузки опоры: Несиловая Материал: Металл Покрытие: Горячий цинк, Порошковая краска Возможность покраски: Да

8 400 руб.
Санкт-Петербург
Опора (НФ) несиловая фланцевая трубчатая неразборная (Тип: НФ-2,0-02-ц)

Опора (НФ) несиловая фланцевая трубчатая неразборная (Тип: НФ-2,0-02-ц)

Типы опор НФ Опора освещения несиловая фланцевая трубчатая неразборная НФ Наименование Масса*, кг Размеры, мм H h1 h2 h3 D1 D2 D3 d А Б НФ-2,0-02-ц 23,6 2000 1000 1285 - 108 76 - М20 230 180 НФ-3,0-02-ц 30,1 3000 1000 1285 - 108 76 - М20 230 180 НФ-4,0-02-ц 36,7 4000 1000 1285 - 108 76 - М20 230 180 НФ-4,0-02-ц 56,5 4000 1000 1285 1340 159 108 76 М20 250 180 НФ-5,0-02-ц 65,1 5000 1000 1285 1840 159 108 76 М20 250 180 НФ-6,0-02-ц 73,9 6000 1500 1285 2340 159 108 76 М20 250 180 НФ-7,0-02-ц 80,5 7000 1500 1285 2340 159 108 76 М20 250 180 НФ-8,0-02-ц 87,8 8000 1500 1285 2740 159 108 76 М20 270 200 НФ-9,0-02-ц 98,6 9000 2000 1880 2940 159 108 76 М20 270 200 НФ-10,0-02-ц 110,2 10000 2000 1880 2940 159 108 76 М20 270 200 НФ-12,0-02-ц 312,5 12000 2000 4000 4000 168 133 108 М30 400 300 Применение Опора освещения несиловая НФ - металлическая конструкция, применяемая для освещения площадей, улиц и дорог с низкой и средней интенсивностью движения, дворов, территории микрорайонов, АЗС, парковок, автостоянок, скверов, парков и т.д. Конструкция таких опор позволяет применять их практически на любых площадках. Производство Несиловая фланцевая трубчатая опора НФ - изготавливается из трубчатого проката. Он позволяет получить надежную и долговечную конструкцию. Как и любая стальная конструкция, опора НФ - требует защиты от коррозии. Для ее обеспечения конструкция опор обрабатывается методом горячего цинкования илил окрашиваю порошковой краской в RAL. Установка Монтаж опор НФ - ведется с использованием закладного железобетонного фундамента. Опора имеет специальную фланцевую часть, которая устанавливается в металлический элемент и закрепляется в нем специальными шпильками. В опоре НФ - предусмотрен подземный ввод кабельных систем. Питающий кабель вводится через специальное окно в закладном фундаменте и подводится к верхней части опор. Преимущества Срок службы более 30 лет Соответствие покрытия ГОСТ 9.307-89 Возможность учета при изготовлении индивидуальных требованийТип: Несиловые Тип установки: Фланцевые Форма: Трубчатые Тип: НФ-2,0-02-ц Высота опоры: 2, 3, 4, 5, 6, 7, 8, 9, 10, 11, 12 м По типу ствола опоры: Трубчатая По типу установки опоры: Фланцевая По типу нагрузки опоры: Несиловая Материал: Металл Покрытие: Горячий цинк, Порошковая краска Возможность покраски: Да

6 800 руб.
Санкт-Петербург
Фонарь FALCON FH5 Яркий луч

Фонарь FALCON FH5 Яркий луч

Налобный фонарь с регулируемым фокусом FALCON FH5 Описание: Современный светодиод XP-G2 nw Нейтральный свет, приближенный к солнечному (4200К) Изменяемая фокусировка Три основных режима яркости Дополнительный скрытый режим «moonlight» Дополнительный красный свет Питание от двух элементов АА Отключаемая память режимов Габаритные размеры фонаря: 68 x 50 x 55 мм Размеры упаковки: 130 мм x 110 x 65 мм Режимы Три основных режима яркости: сильный – 300 лм, 4 часа работы; средний – 60 лм, 8 часов работы; слабый – 20 лм, 25 часов работы; Скрытый режим moonlight – 2 лм, 80 часов. Красный свет. Управление Для включения основного света нажмите белую кнопку. Фонарь включится в запомненном режиме. Последующая смена режимов осуществляется удержанием белой кнопки. Для старта со слабого режима удерживайте белую кнопку. Для включения в режиме красного света нажмите красную кнопку. Для включения в режиме «moonlight» нажмите и удерживайте красную кнопку. Для смены красного и белого света на включенном фонаре нажмите и удерживайте ответствующую кнопку. Фонарь работает от двух щелочных батареек или Ni-MH аккумуляторов формата АА. Пожалуйста, не смешивайте заряженные и полуразряженные элементы питания, а также батарейки разного типа или от разных производителей – это может привести к повреждению фонаря. Для экономии батарей предусмотрена возможность выключить память режимов, в этом случае фонарь коротким нажатием будет включаться в среднем режиме.Производитель: Яркий Луч Тип: Налобные Материал корпуса: Анодированный алюмин Гарантийный срок эксплуатации, месяцев: 24 Дальность светового луча, метров: 322 Источник света: Светодиод (LED) Источник питания: Батарейка Длина упаковки: 130 мм Ширина упаковки: 88 мм Высота упаковки: 67 мм Объем упаковки, м³: 0.0008 Вес с упаковкой: 0.8 кг

1 350 руб.
Санкт-Петербург
Фонарь F15 FALCON Яркий луч

Фонарь F15 FALCON Яркий луч

Универсальный фонарь с регулируемым фокусом FALCON F15 Изменяемая фокусировка Нейтральный свет, приближенный к солнечному (4200К) Новейший светодиод Cree XP-L HI Качественный фокусируемый свет, без «туннельного» эффекта Дальность до 322 метров по стандарту ANSI Максимальный световой поток 800 люмен Три режима яркости: 100%, 30%, 5% Программируемый порядок режимов Удобная боковая кнопка включения и переключения режимов Работа от Li-Ion аккумулятора 18650 (в комплект не входит) Габаритные размеры фонаря: 142 x 33 мм Размеры упаковки: 190 x 88 x 67 мм Управление и режимы Три режима яркости позволяют подобрать необходимую освещенность и время работы фонаря. Режимы яркости реализованы без низкочастотного ШИМ-мерцания, что облегчает работу в сложных погодных условиях и меньше утомляет глаза. Порядок режимов в фонаре программируется, с возможностью выбрать стартовым любой из режимов. Режимы: сильный – 800 лм (100%), 1.5 часа работы; средний – 240 лм (30%), 7 часов работы; слабый – 40 лм (5%), 44 часа работы. Удобная боковая кнопка дает возможность не только быстро выбрать необходимый режим яркости или изменить настройки фонаря, но и подавать сигналы неполными нажатиями без фиксации. Порядок режимов: В фонаре реализованы три линейки режимов: 1) 100% – 30% – 5% (заводская установка), 2) 30% – 5% – 100%, 3) 5% – 30% – 100%. Для смены линейки включите фонарь, затем нажмите и удерживайте кнопку в течение 7 сек. После этого фонарь мигнет, сигнализируя о смене линейки. Одно мигание – линейка 1, два мигания – линейка 2, три – соответственно, линейка 3. Фонарь F15 FALCON работает на Li-Ion аккумуляторах формата 18650 длиной 65-70 мм, мы рекомендуем использовать качественные защищенные аккумуляторы от проверенных производителей. Использование двух батареек CR123 или аккумуляторов 16340 запрещено! Дополнительные характеристики: Длина упаковки 190 мм Ширина упаковки 88 мм Высота упаковки 67 мм Объем упаковки, м³ 0.0011 Вес с упаковкой 1 кгПроизводитель: Яркий Луч Материал корпуса: Анодированный алюмин Время непрерывной работы: 1,5-44 час Гарантийный срок эксплуатации, месяцев: 24 Дальность светового луча, метров: 322 Источник света: Светодиод (LED) Источник питания: Аккумулятор Длина: 143 мм Ширина: 33 мм Высота: 33 мм Вес: 0.8 кг

2 090 руб.
Санкт-Петербург
Фонарь BALLISTA 3.0 XL-1200 Яркий луч

Фонарь BALLISTA 3.0 XL-1200 Яркий луч

Фонарь BALLISTA 3.0 XL-1200 professional Яркий луч Новая модель фонаря Ballista 3.0 XL-1200, предназначенная для самых требовательных пользователей, и для решения наиболее сложных задач. Новейший светодиод XP-L Hi Intensity нейтрального оттенка Дальность до 1000 метров по стандарту ANSI Максимальный световой поток 1200 люмен Четыре режима: 7%, 60%, «турбо» и «строб», быстрый доступ к максимальному режиму Удобная боковая кнопка переключения режимов яркости Корпус из авиационного алюминия с анодированием III типа Гладкий металлический рефлектор высокого качества Просветленное ударопрочное стекло Литий-ионные аккумуляторы 18650 в комплекте В фонаре XL-1200 используется увеличенный высококачественный рефлектор и новейший безлинзовый светодиод Cree XP-L Hi Intensity, что позволяет сфокусировать свет фонаря в мощный узкий луч. Дальнобойность фонаря составляет 1 километр по стандарту ANSI, то есть около 400-700 метров при решении реальных задач. Нейтральный оттенок светодиода приближен к естественному солнечному свету (4000-4200К), что обеспечивает не только качественную передачу цветов, но также улучшает работу фонаря в условиях тумана, дождя или пыли. Световой поток фонаря составляет 1200 люменов. Для защиты от перегрева и увеличения времени работы через четыре минуты после включения происходит плавное снижение светового потока до стабилизированных 800 люменов. Эффективная работа на высокой мощности обеспечивается высококачественным драйвером и продуманной системой теплоотвода, в том числе использованием медной подложки светодиода, выполненной по технологии «Direct connect». Три режима яркости – 1200, 480 и 55 люменов – позволяют подобрать комфортный уровень света. Слабые режимы реализованы без использования низкочастотного ШИМ-мерцания, что позволяет использовать фонарь при работе с движущимися объектами или в дождь. Для включения фонаря используется торцевая тактическая кнопка прямого клика, для переключения режимов – боковая кнопка, выбранный режим яркости запоминается. При любом запомненном режимы можно активировать фонарь на максимальной яркости, для этого достаточно нажать на торцевую кнопку при зажатой боковой. Также существует скрытый режим стробоскопа, который активизируется путем зажатия боковой управляющей кнопки на включенном фонаре. Работа фонаря осуществляется от двух защищенных аккумуляторов Li-Ion 18650. Предусмотрена возможность работы фонаря в укороченном виде, на двух аккумуляторах 18350 или одном 18650. Установленный в боковой кнопке индикаторный светодиод заблаговременно просигнализирует о необходимости заменить или зарядить батареи. Продуманный корпус из авиационного алюминия со стойким анодированием III типа обеспечивает удобное использование фонаря, стойкость к внешних воздействиям и герметичность при работе на глубинах до двух метров. Фонарь XL-1200 Ballista 3.0 поставляется в традиционной подарочной упаковке с полной комплектацией для полноценного использования. Комплект включает два качественных защищенных аккумулятора Яркий Луч 2600mAh (с ячейками Samsung), зарядное устройство для Li-Ion, чехол для ношения на поясе, запасную накладку на кнопку и уплотнительные резинки. Дополнительные характеристики: Ширина упаковки 106 мм Высота упаковки 80 мм Объем упаковки, м³ 0.0024 Вес с упаковкой 1 кгПроизводитель: Яркий Луч Материал корпуса: Анодированный алюмин Гарантийный срок эксплуатации, месяцев: 24 Дальность светового луча, метров: 1000 Источник света: Светодиод (LED) Источник питания: Аккумулятор, 2 х Li-ion 18650 (22 Длина: 250 мм Ширина: 57 мм Высота: 57 мм Вес: 0.8 кг Длина упаковки: 280 мм

5 990 руб.
Санкт-Петербург
Фонарь T-6 HUNTER v.2 Яркий Луч

Фонарь T-6 HUNTER v.2 Яркий Луч

Тактический подствольный фонарь t-6 hunter v.2 Описание: Яркий светодиод CREE XP-G2 R5 400 люмен Компактные размеры Можно использовать аккумулятор 18650 Элементы питания CR123 в комплекте (2 шт.) Регулируемое крепление для ружей и винтовок Влагозащищенность Ударопрочность при отдаче Использование фонаря: Режим постоянного света: закрутите крышку фонаря по часовой стрелке до включения. Тактический режим: открутите крышку фонаря против часовой стрелке примерно на 90° до выключения. Нажмите торцевую резиновую кнопку для включения и отпустите для выключения. Выносная кнопка мгновенного действия: при установке фонаря на оружие используйте двухстороннюю клейкую ленту (в комплекте) для фиксации включателя выносной кнопки на ложе или цевье. После фиксации кнопку можно использовать. Нажатие пальцами на кнопку включает фонарь, разжимание - выключает его. Установка фонаря: В комплекте поставляется крепление для установки на винтовке или ружье калибром от 22 до 12 (от 5.6 до 18.5 мм). Малая часть крепления подходит к диаметрам стволов от ½ дюйма до ¾ дюйма. Большая по размеру часть крепления - к стволам диаметром от ¾ до 1 дюйма. Большая часть крепления также подходит для установки на оптические прицелы и патронную обойму. 1. Убедитесь, что данное крепление подходит для Вашего ружья, карабина или винтовки. 2. При помощи шестигранника раскрутите шурупы для возможности надеть крепление на надлежащую часть оружия. 3. Установите фонарь в другую часть крепления, прижмите обе части и плотно затяните болты.Производитель: Яркий Луч Материал корпуса: Металл Срок службы: 5 лет Гарантийный срок эксплуатации, месяцев: 24 Источник света: Светодиод (LED) Источник питания: Аккумулятор Длина упаковки: 190 мм Ширина упаковки: 150 мм Высота упаковки: 80 мм Объем упаковки, м³: 0.0023 Вес с упаковкой: 1.5 кг

3 320 руб.
Санкт-Петербург
Фонарь G15 GRYPHON Яркий Луч

Фонарь G15 GRYPHON Яркий Луч

Фонарик светодиодный G15 GRYPHON Описание: Мощный компактный фонарь с магнитом профессионального уровня, сочетающий миниатюрные размеры с высокой яркостью и продуманным светом. В новую версию G15 добавлена возможностью переставить клипсу на хвостовую часть фонаря, идущее в комплекте зарядное устройство заменено на более совершенное. Качественный свет для ближних и средних дистанций; Современный светодиод Cree XM-L2; Нейтральный свет, приближенный к солнечному; Эффективная TIR-оптика, обеспечивающая широкий и при этом дальнобойный луч; Дальность до 150 метров по стандарту ANSI; Максимальный световой поток 700 люмен; Четыре режима яркости: 700, 400, 80 и 20 люменов; Память режимов; Удобная боковая кнопка включения и переключения режимов; Клипса для ношения на поясе или на кармане; Мощный магнит в хвостовой части; В комплекте качественный Li-Ion аккумулятор 18650 и USB-зарядное устройство с индикацией состояния аккумулятора. Современный светодиод Cree XM-L2 обеспечивает фонарю высокую мощность и эффективность работы. Нейтральный оттенок светодиода, приближенный к естественному солнечному свету (4000-4200К), дает качественное и насыщенное изображение. Эффективная TIR-оптика обеспечивает широкий и при этом дальнобойный луч, удобный как на близких, так и на средних дистанциях. Световой поток фонаря достигает 700 ANSI-люменов. Для защиты от перегрева и увеличения времени работы через 4 минуты происходит снижение светового потока до стабилизированных 400 люменов. Четыре режима яркости — Турбо, 100%, 25%, 5% — позволяют выбрать наиболее комфортную освещенность и время работы фонаря. Режимы яркости реализованы без низкочастотного ШИМ-мерцания, что облегчает работу в сложных погодных условиях и меньше утомляет глаза. Выбранный режим запоминается. Включение фонаря и переключение режимов осуществляется удобной боковой кнопкой. Встроенный в кнопку индикатор разряда своевременно сообщит о необходимости заменить аккумулятор. Фонарь работает от Li-Ion аккумулятора 18650, идущего в комплекте. Продолжительность работы фонаря при использовании полностью заряженного аккумулятора в режиме 100% составит 3.5 часа. Мощный магнит в хвостовой части позволяет надежно закрепить фонарь на металлической поверхности. Для защиты от случайно включения реализована возможность заблокировать фонарь отворотом хвостовой части. Качественный корпус из авиационного алюминия с анодированием II типа защитит фонарь от ударов и повреждений. Водозащищенность фонаря IPX-7, что позволяет ему выдерживать падения в воду Стальная переставляемая клипса позволяет надежно закрепить фонарь на одежде или снаряжении. По просьбам пользователей, в новой версии фонаря предусмотрена возможность переставить клипсу на хвостовую часть, для удобного ношения фонаря на кармане. Новое зарядное устройство, работающее от USB-адаптера, позволяет выбрать необходимый ток заряда аккумулятора, а также снабжено индикатором напряжения. В комплект входит: качественный защищенный аккумулятор 2600mAh, зарядное устройство, USB-кабель, темляк, сменные уплотнительные кольца. Дополнительные характеристики: Объем упаковки, м³ 0.0002 Вес с упаковкой 0.5 кгПроизводитель: Яркий Луч Тип лампы: Светодиодные Материал корпуса: Металл Время непрерывной работы: 3,5-15 час Срок службы: 5 лет Гарантийный срок эксплуатации, месяцев: 24 Дальность светового луча, метров: 322 Источник света: Светодиод (LED) Источник питания: Аккумулятор Длина упаковки: 150 мм Ширина упаковки: 150 мм Высота упаковки: 10 мм

3 390 руб.
Санкт-Петербург
Фонарь Falcon F20 Яркий Луч

Фонарь Falcon F20 Яркий Луч

Фонарь Яркий Луч Falcon F20 Описание: Универсальный фонарь Falcon F20 с изменяемой фокусировкой, способный эффективно решать широкий спектр задач как на ближней, так и на дальней дистанции. Качественный фокусируемый свет, без «туннельного» эффекта; Новейший светодиод Cree XP-L HI; Нейтральный свет, приближенный к солнечному; Дальность до 322 метров по стандарту ANSI; Максимальный световой поток 800 люмен; Три режима яркости: 100%, 30%, 5%; Программируемый порядок режимов; Удобная боковая кнопка включения и переключения режимов; Встроенное зарядное устройство; В комплекте Li-Ion аккумулятор 18650 увеличенной емкости; Система регулировки фокуса на основе подвижной TIR-оптики в сочетании со светодиодом Cree XP-L HI позволяет получить как широкий ближний, так и узкий дальний свет. Без характерного для линзовых фонарей «туннельного эффекта» и дополнительных оптических потерь при фокусировке. Новейший светодиод Cree XP-L HI обеспечивает не только высокую мощность, но и повышенную дальнобойность в сфокусированном состоянии, 322 метра по стандарту ANSI. Нейтральный оттенок светодиода, приближенный к естественному солнечному свету (4000-4200К), дает качественное и насыщенное изображение. Световой поток фонаря достигает 800 ANSI-люменов. Для защиты от перегрева и увеличения времени работы через 6 минут происходит снижение светового потока до стабилизированных 500 люменов. Для обеспечения работы на высокой мощности светодиод установлен на медную звезду с прямым отводом тепла. Три режима яркости позволяют подобрать необходимую освещенность и время работы фонаря. Режимы яркости реализованы без низкочастотного ШИМ-мерцания, что облегчает работу в сложных погодных условиях и меньше утомляет глаза. Порядок режимов в фонаре программируется, с возможностью выбрать стартовым любой из режимов. Удобная боковая кнопка дает возможность не только быстро выбрать необходимый режим яркости или изменить настройки фонаря, но и подавать сигналы неполными нажатиями без фиксации. Встроенное зарядное устройство работает через стандартный порт Micro USB, и надежно защищено от попадания грязи во время использования фонаря. Качественный корпус из авиационного алюминия с анодированием II типа защитит фонарь от ударов и повреждений. Изменяемая фокусировка не позволяет получить полную герметичность фонаря, однако он надежно защищен от дождя и водяных брызг (IPX-4). Новая компактная упаковка позволит удобно хранить фонарь и аксессуары от него. В комплект входит качественный защищенный аккумулятор повышенной емкости на базе Sanyo NCR18650GA (3500mAh), чехол, зарядный кабель, USB-адаптер и другие аксессуары. Дополнительные характеристики: Объем упаковки, м³ 0.0002 Вес с упаковкой 0.5 кгПроизводитель: Яркий Луч Материал корпуса: Металл Время непрерывной работы: 1,5-44 час Срок службы: 5 лет Гарантийный срок эксплуатации, месяцев: 24 Дальность светового луча, метров: 322 Источник света: Светодиод (LED) Источник питания: Аккумулятор Длина упаковки: 150 мм Ширина упаковки: 150 мм Высота упаковки: 10 мм

3 490 руб.
Санкт-Петербург
Фонрь PANDA 2R Яркий Луч

Фонрь PANDA 2R Яркий Луч

Фонарь налобный аккумуляторный PANDA 2R Описание: Компактный налобный фонарь на аккумуляторе 18650 с двумя яркими светодиодами и встроенным зарядным устройством. Два современных светодиода XP-G3 nw Нейтральный свет, приближенный к солнечному (4200К) Питание от Li-Ion аккумулятора формата 18650 (входит в комплект) Четыре основных стабилизированных режима яркости: 3, 35, 120 и 450 лм Дополнительный турбо-режим 800 лм Дополнительный красный маяк TIR-оптика Отключаемая память режимов Встроенное зарядное устройство с портом micro-USB Качественный Li-Ion аккумулятор 2600 мАч в комплекте Режимы: Четыре стабилизированных режима яркости: «moonlight» – 3 люмена 450 часов работы; слабый – 35 люмена 45 часов работы; средний – 120 люмена 11 часов работы; сильный – 450 люмена 3 часа работы; Дополнительный pежим «турбо», 800 лм (без фиксации) 1 час работы Встроенное зарядное устройство работает через порт micro-USB, от сетевого адаптера или порта компьютера. Рекомендуется использовать USB-адаптер с током не менее 1А. Для доступа к зарядному устройству открутите крышку с обозначением USB-контакта. В процессе заряда аккумулятора горит красный индикаторный диод, при завершении заряда – зеленый. Управление: Основные режимы Для включения фонаря нажмите белую кнопку. Повторные быстрые нажатия в течение двух секунд после включения позволят изменить режим. Выбранный режим запоминается (при включенной функции памяти). На включенном фонаре смена режимов производится удержанием белой кнопки. Короткое нажатие на белую кнопку выключает фонарь. Для быстрого доступа к режиму «moonlight» на выключенном фонаре нажмите и удерживайте белую кнопку. Турбо-режим Для активации турбо-режима на включенном фонаре нажмите и удерживайте красную кнопку. Фонарь будет работать в турбо-режиме до прекращения удержания, после чего вернется в прежний режим яркости. Запуск турбо-режима из выключенного состояния не возможен во избежание случайного ослепления. Красный маяк Для активации функции маяка на выключенном фонаре нажмите красную кнопку. Красный светодиод на передней панели будет плавно менять яркость, упрощая поиск фонаря в темноте. Для выключения маяка нажмите красную кнопку или включите фонарь на любом режиме яркости. Проверка состояния батареи Для проверки состояния батареи на выключенном фонаре дважды быстро нажмите на красную кнопку. Степень заряда аккумулятора будет показана миганием красного индикаторного светодиода (от 1 до 5 миганий). Включение и выключение памяти режимов: Предусмотрена возможность выключить или включить память режимов. Для этого на выключенном фонаре нажмите и удерживайте красную кнопку в течение 10 секунд. При включении памяти красный индикаторный диод мигнет трижды, при выключении – один раз. При выключенной памяти фонарь стартует в слабом режиме, включение двойным кликом позволит сразу активировать средний режим, тройным кликом – сильный режим. Мы рекомендуем выключать память режимов в условиях экономии элементов питания, во избежание чрезмерного использования фонаря на высоких режимах яркости. Выбор элементов питания: Фонарь PANDA 2R предназначен для работы на Li-Ion аккумуляторе 18650, разрешенный диапазон питания 3.0 – 4.2 B, допустимая длина аккумуляторов 65 – 70 мм. Использование батареек CR123A запрещено. Защита от случайного включения: Для защиты от случайного включения (например, при переноске фонаря в сумке или рюкзаке) отверните крышку батарейного отсека на 1/4 оборота. Дополнительные характеристики: Вес с упаковкой 0.5 кгПроизводитель: Яркий Луч Тип: Налобные Материал корпуса: Пластик Время непрерывной работы: 1-450 час Срок службы: 5 лет Гарантийный срок эксплуатации, месяцев: 24 Источник света: Светодиод (LED) Источник питания: Аккумулятор Длина упаковки: 150 мм Ширина упаковки: 150 мм Высота упаковки: 10 мм Объем упаковки, м³: 0.0002

2 390 руб.
Санкт-Петербург
Фонрь CL-350A КЭМП Яркий Луч

Фонрь CL-350A КЭМП Яркий Луч

Аккумуляторный кемпинговый фонарь CL-350A «КЭМП» Описание: - 4 белых и 1 красный суперярких SMD светодиода; - световой поток 350 Люмен; - литий-ионный аккумулятор 3.7 В, 4000 мАч (более 500 циклов); - USB - разъем для зарядки аккумулятора. Время зарядки 4 часа; - индикатор разряда аккумулятора в кнопке; - съемный плафон для освещения горизонтальных поверхностей; - материал корпуса: прорезиненный ABS-пластик. Пять режимов работы. 1 режим: 20% белый свет, 4 белых SMD светодиода, световой поток 70 люмен, время работы – до 30 ч от полностью заряженного аккумулятора. 2 режим: 50% белый свет, световой поток 175 люмен, время работы – до 12 ч от полностью заряженного аккумулятора. 3 режим: 100% белый свет, световой поток 350 люмен, время работы – до 6 ч от полностью заряженного аккумулятора. 4 режим: 100% красный свет, 1 красный SMD светодиод, время работы – до 19 ч от полностью заряженного аккумулятора. 5 режим: мигающий красный свет S.O.S., время работы – до 36 ч от от полностью заряженного аккумулятора. ВАЖНО! Для перехода между линейками режимов «белый свет – красный» необходимо нажать и удерживать кнопку в течение 3 сек, далее для переключения режимов нажмите на кнопку с интервалом менее 2 сек. Литий-ионный аккумулятор 3.7 В 4000 мАч (более 500 циклов). Время заряда от USB-разъема (1 А) составит 4 часа. Корпус фонаря CL-350A выполнен из прорезиненного ABS-пластика. Влагозащищенность IPX4. Два карабина позволят подвесить фонарь как за головную часть (классический кемпинг), так и за нижнюю (без плафона в качестве лампы). Складывающийся крючок может понадобиться для подвешивания фонаря, например, на ветке дерева. В кнопке расположен индикатор разряда аккумулятора, когда зеленый цвет сменится на красный необходимо поставить фонарь на зарядку. Рядом с USB-разъемом расположен индикатор заряда: красный цвет – идет процесс зарядки аккумулятора, синий – полностью заряжен. Дополнительные характеристики: Вес с упаковкой 1.5 кгПроизводитель: Яркий Луч Материал корпуса: Пластик Время непрерывной работы: 6-30 час Срок службы: 5 лет Гарантийный срок эксплуатации, месяцев: 24 Источник света: Светодиод (LED) Источник питания: Аккумулятор Длина упаковки: 300 мм Ширина упаковки: 200 мм Высота упаковки: 150 мм Объем упаковки, м³: 0.0090

1 840 руб.
Санкт-Петербург
Фонарь V-002R Яркий Луч (Тип: Фонарик V-002R)

Фонарь V-002R Яркий Луч (Тип: Фонарик V-002R)

Светодиодный фонарь-браслет модель V-002R Описание: Фонарь V-002R Яркий Луч имеет: - 2 ярких красных светодиода - 2 режима: постоянное свечение и мигание - светоотражающий элемент на липучке - легко отстегивается и быстро снимается - влагозащищенный корпус - можно носить на руке/ ноге/ велошлеме - идеально подходит для бега, пеших- и велопрогулок Замена батареек. Воспользуйтесь монетой и поверните крышку до ее открытия. Установите 2 батарейки CR2032 плюсом вверх и закройте крышку. Все, фонарь готов к использованию. Светодиодный фонарь-браслет модель V-002W Фонарь V-002W Яркий Луч имеет: - 2 ярких белых светодиода - 2 режима: постоянное свечение и мигание - светоотражающий элемент на липучке - легко отстегивается и быстро снимается - влагозащищенный корпус - можно носить на руке/ ноге/ велошлеме - идеально подходит для бега, пеших- и велопрогулок Замена батареек. Воспользуйтесь монетой и поверните крышку до ее открытия. Установите 2 батарейки CR2032 плюсом вверх и закройте крышку. Все, фонарь готов к использованию.Производитель: Яркий Луч Тип: Фонарик V-002R Срок службы: 6 лет Гарантийный срок эксплуатации, месяцев: 24 Источник света: Светодиод (LED) Источник питания: Батарейка Длина упаковки: 100 мм Ширина упаковки: 50 мм Высота упаковки: 50 мм Объем упаковки, м³: 0.0003 Вес с упаковкой: 0.2 кг

240 руб.
Санкт-Петербург
Фонарь T9 v.2 Яркий Луч

Фонарь T9 v.2 Яркий Луч

Аккумуляторный фонарь T9 v.2 Яркий Луч Современный светодиод XP-G2 Максимальный световой поток 350 люмен Дополнительный боковой свет Li-Ion аккумулятор SAMSUNG 18650 2600 мАч (в комплекте) Три режима работы: 100%, 35% и 5% Встроенное USB-зарядное устройство Описание: - источник света: светодиод XP-G2 350 люмен; - литий-ионный аккумулятор 18650 3.7 В 2600 мАч; - материал корпуса: алюминиевый сплав. Аккумуляторный светодиодный фонарь «Яркий Луч» T9 v.2. Фонарь снабжен мощным светодиодом XP-G2 350 лм. При длине 14 см легко помещается в карман, чтобы стать незаменимым помощником в темное время суток. Обратите внимание, в комплектацию данного фонаря входит литиевый аккумулятор SAMSUNG 18650, встроена индикация процесса зарядки (горит красный диод). При достижению полного заряда красный диод гаснет. В крышку встроен мощный магнит для закрепления фонаря на металлических поверхностях. Дополнительный боковой яркий светодиод Соb – для заливного света. Для включения бокового света на выключенном фонаре нажмите и удерживайте кнопку. Диммирование бокового света происходит нажатием и удержанием кнопки при включенном боковом свете. Для смены режимов на включенном фонаре нажмите и удерживайте кнопку. Режимы будут меняться циклично: 100% => 35% => 5%. Перед первым использованием фонаря необходимо полностью зарядить аккумулятор. Дополнительные характеристики: Высота упаковки 50 мм Объем упаковки, м³ 0.0023 Вес с упаковкой 0.3 кгПроизводитель: Яркий Луч Время непрерывной работы: 1.5-20 час Гарантийный срок эксплуатации, месяцев: 12 Источник света: Светодиод (LED) Источник питания: Аккумулятор Длина: 140 мм Ширина: 32 мм Высота: 32 мм Вес: 0.3 кг Длина упаковки: 190 мм Ширина упаковки: 243 мм

1 720 руб.
Санкт-Петербург
Фонарь T7 SWORD v.2 Яркий Луч

Фонарь T7 SWORD v.2 Яркий Луч

Аккумуляторный фонарь T7 «SWORD» v.2 Описание: Современный светодиод XP-G2 Максимальный световой поток 350 люмен Li-Ion аккумулятор SAMSUNG 18650 2600 мАч (в комплекте) Три режима работы: 100%, 35% и 5% Встроенное USB-зарядное устройство Аккумуляторный светодиодный фонарь «Яркий Луч» T7 «SWORD» v.2. Фонарь снабжен мощным светодиодом XP-G2 350 лм. При длине 14 см легко помещается в карман, чтобы стать незаменимым помощником в темное время суток. Обратите внимание, в комплектацию данного фонаря входит литиевый аккумулятор SAMSUNG 18650, встроена индикация процесса зарядки (горит красный диод). При достижению полного заряда красный диод гаснет. Основные характеристики фонаря: - источник света: светодиод XP-G2 350 люмен; - литий-ионный аккумулятор 18650 3.7 В 2600 мАч; - материал корпуса: алюминиевый сплав. Перед первым использованием фонаря необходимо полностью зарядить аккумулятор. Для смены режимов на включенном фонаре нажмите и удерживайте кнопку. Режимы будут меняться циклично: 100% => 35% => 5%. Дополнительные характеристики: Ширина упаковки 243 мм Высота упаковки 50 мм Объем упаковки, м³ 0.0023 Вес с упаковкой 0.3 кгПроизводитель: Яркий Луч Время непрерывной работы: 1.5-20 час Гарантийный срок эксплуатации, месяцев: 12 Дальность светового луча, метров: 110 Источник света: Светодиод (LED) Источник питания: Аккумулятор Длина: 140 мм Ширина: 30 мм Высота: 30 мм Вес: 0.3 кг Длина упаковки: 190 мм

1 610 руб.
Санкт-Петербург
Фонарь T65 Escort Яркий Луч

Фонарь T65 Escort Яркий Луч

Аккумуляторный светодиодный фонарь T65 Escort Яркий Луч Особенности: Нейтральный светодиод XM-L2 650 лм 5000К Стабилизация яркости Встроенное зарядное устройство micro-USB Li-Ion аккумулятор 18650 (2600 мАч) в комплекте Режимы: 5%, 30%, 100% Память режимов Влагозащищенность IPХ6 Характеристики фонаря: Дальность свечения – 110 метров. Время работы – примерно 1.5 часа в максимальном режиме. В среднем около 4 часов, в слабом около 25 часов. Фонарь работает на Li-Ion аккумуляторе формата 18650, разрешенный диапазон питания 3.0 – 4.2В. Рекомендуется использовать качественные защищенные аккумуляторы от проверенных производителей. Использование двух батареек CR123A или аккумуляторов RCR123 запрещено! Управление: Для включения фонаря нажмите на кнопку до щелчка. Для смены режима на включенном фонаре слегка нажмите кнопку. Также возможно переключение режимов быстрым включением-выключением фонаря. Выбранный режим яркости запоминается. Для увеличения времени работы или при сильном нагреве головной части переведите фонарь в средний или слабый режимы яркости. Яркость фонаря стабилизирована. Заметное уменьшение яркости в сильном режиме свидетельствует о приближении аккумулятора к разряду, рекомендуется зарядить его. Индикация разряда аккумулятора осуществляется миганием основного диода. Для предотвращения случайного нажатия отверните заднюю крышку фонаря на 1/4 оборота. Для заряда аккумулятора подключите USB-шнур, и нажмите кнопку включения фонаря. Зарядка аккумулятора: Для заряда аккумулятора подключите USB-шнур, и нажмите кнопку включения фонаря. В случае некорректной работы фонаря: поменяйте или зарядите аккумулятор; проверьте, что головная часть и кнопка фонаря закручены до упора; проверьте чистоту резьбы фонаря и платы драйвера, аккуратно очистите их загрязнения; проверьте, что прижимные кольца платы драйвера и кнопки затянуты до упора. Комплектация: Фонарик T65 Escort Яркий Луч Li-Ion аккумулятор 18650 Темляк Запасные уплотнительные кольца. Запасная заглушка USB-порта Дополнительные характеристики: Ширина упаковки 70 мм Высота упаковки 50 мм Объем упаковки, м³ 0.0004 Вес с упаковкой 0.3 кгПроизводитель: Яркий Луч Тип лампы: Светодиодные Время непрерывной работы: 1.5-20 час Гарантийный срок эксплуатации, месяцев: 12 Дальность светового луча, метров: 110 Источник света: Светодиод (LED) Источник питания: Аккумулятор Длина: 110 мм Ширина: 34 мм Высота: 34 мм Вес: 0.3 кг Длина упаковки: 120 мм

2 230 руб.
Санкт-Петербург
Фонарь T4 FOCUS v.2 Яркий Луч

Фонарь T4 FOCUS v.2 Яркий Луч

Светодиодный фонарик T4 FOCUS v.2 Яркий Луч Описание: Простой и надежный карманный фонарь T4 FOCUS с широким диапазоном регулирования фокуса. Регулируемая фокусировка Нейтральный свет, приближенный к солнечному 3700К Максимальный световой поток 300 люмен Питание от батареек ААА (3 шт.), в комплект не входят Три режима яркости: 100%, 35%, 5% Нейтральный оттенок светодиода, приближенный к естественному солнечному свету, дает качественное и насыщенное изображение. Световой поток фонаря достигает 300 ANSI-люмен. Фонарь стартует в максимальном режиме яркости, для увеличения времени работы можно перейти в средний или слабый режимы нажатием и удержанием кнопки. Режимы меняются циклически по кругу. Фонарь работает на трех батарейках формата ААА (в комплект не входят). Габаритные размеры фонаря: 110х34 мм. Дополнительные характеристики: Объем упаковки, м³ 0.0004 Вес с упаковкой 0.3 кгПроизводитель: Яркий Луч Тип лампы: Светодиодные Гарантийный срок эксплуатации, месяцев: 12 Источник света: Светодиод (LED) Источник питания: Батарейка Длина: 110 мм Ширина: 34 мм Высота: 34 мм Вес: 0.3 кг Длина упаковки: 120 мм Ширина упаковки: 70 мм Высота упаковки: 50 мм

740 руб.
Санкт-Петербург
Фонарь T35 Escort Яркий Луч

Фонарь T35 Escort Яркий Луч

Аккумуляторный светодиодный фонарь T35 Escort Яркий Луч Фонарик T35 Escort имеет: Нейтральный светодиод XP-G2 5000K Дальность – 110 м. Стабилизация яркости. Время работы – примерно 2.5 часа на максимальном режиме. На среднем около 7 часов, на слабом около 45 часов. Режимы: 100%, 30%, 5%, без памяти. Световой поток: 450 люменов. Описание: Аккумулятор и зарядное устройство в комплект не входят. Фонарь работает на Li-Ion аккумуляторе формата 18650, разрешенный диапазон питания 3.0-4.4 В. Рекомендуется использовать качественные защищенные аккумуляторы от проверенных производителей. Использование двух батареек CR123A или аккумуляторов RCR123 запрещено. Управление: Для включения фонаря нажмите на кнопку до щелчка. Фонарь стартует на сильном режиме яркости. Для смены режима на включенном фонаре слегка нажмите кнопку. Также возможно переключения режимов быстрым включением-выключением фонаря. Для увеличения времени работы или при сильном нагреве головной части переведите фонарь в средний или слабый режимы яркости. Яркость фонаря стабилизирована. Заметное уменьшение яркости в сильном режиме свидетельствует о приближении аккумулятора к разряду, рекомендуется зарядить его. Для предотвращения случайного нажатия отверните заднюю крышку фонаря на ¼ оборота. В случае некорректной работы фонаря: - поменяйте аккумулятор на заряженный и заведомо работоспособный; - проверьте, что голова и кнопка фонаря закручены до упора; - проверьте чистоту резьбы фонаря и платы драйвера, аккуратно очистите их загрязнения; - проверьте, что прижимные кольца платы драйвера и кнопки затянуты до упора.Производитель: Яркий Луч Тип лампы: Светодиодные Материал корпуса: Алюминий Время непрерывной работы: 2,5-45 час Гарантийный срок эксплуатации, месяцев: 24 Источник света: Светодиод (LED) Источник питания: Аккумулятор Длина упаковки: 100 мм Ширина упаковки: 100 мм Высота упаковки: 50 мм Объем упаковки, м³: 0.0005 Вес с упаковкой: 0.3 кг

1 420 руб.
Санкт-Петербург
Фонарь T2 Яркий Луч

Фонарь T2 Яркий Луч

Компактный светодиодный фонарь T2 Питание от батарейки или Ni-MH аккумулятора формата LR6 (АА) Светодиод CREE XP-G2 Нейтральный белый свет 4000 К Линза, формирующая широкий луч, удобный на близких и средних дистанциях Световой поток 130 лм Один режим работы Минимальные размеры и вес для своего формата Для включения необходимо довернуть головную часть до упора и, соответственно, отвернуть – для выключения. Элемент питания 1хAА (R6) в комплект не входит. Габаритные размеры фонаря: 82х19 мм. Компактный светодиодный ФОНАРЬ «Яркий Луч» Т2. Яркий светодиод CREE XP-G2 130 лм 4000К. Работает от одной батарейки АА (в комплект не входит). Устанавливать строго плюсом к головной части фонаря. Для включения необходимо довернуть головную часть до упора и, соответственно, отвернуть – для выключения.Производитель: Яркий Луч Тип лампы: Светодиодные Гарантийный срок эксплуатации, месяцев: 24 Источник света: Светодиод (LED) Источник питания: Батарейка Длина упаковки: 100 мм Ширина упаковки: 100 мм Высота упаковки: 50 мм Объем упаковки, м³: 0.0005 Вес с упаковкой: 0.3 кг

299 руб.
Санкт-Петербург
Фонарь S-300A МЕГАВАТТ Яркий Луч

Фонарь S-300A МЕГАВАТТ Яркий Луч

Аккумуляторный светодиодный ФОНАРЬ «Яркий Луч» S-300A «МЕГАВАТТ». Описание: Светодиод CREE XM-L мощностью 10 Ватт 300 лм обеспечивает направленный свет дальностью до 418 метров; 3 режима работы CREE XM-L светодиода: 100%, 25% и «мигающий»; -100% (5 ч работы) -25% (20 ч работы) -мигающий Два ярких СОВ светодиода суммарной мощностью 10 Ватт (450 лм) на боковой поверхности фонаря для заливного света. 2 режима работы: -100% (4.5 ч работы), -25% (18 ч работы). Возможность USB-подзарядки телефонов, планшетов и пр. от аккумулятора фонаря; Штатное зарядное устройство с индикатором заряда; Удобная эргономичная ручка; Продолжительная работа на кислотно-свинцовом аккумуляторе 4 В 7000 мАч; (5 часов в режиме 100%); Материал корпуса: ABS-пластик и алюминий На задней поверхности фонаря расположен разъем для подключения зарядного устройства и USB-порт, позволяющий использовать фонарь в качестве внешнего аккумулятора (повербанка). От встроенного аккумулятора фонаря емкостью 7000 мАч можно заряжать телефоны, планшеты и другие устройства с возможностью подзарядки через USB-порт. Зарядное устройство от сети 220в входит в комплект. Во время зарядки фонаря светодиод на зарядном устройстве загорится красным цветом. При полностью заряженном аккумуляторе цвет поменяется на зеленый. Время зарядки аккумулятора составляет 13 — 15 ч. Комплектация: фонарь,зарядное устройство, ремень для переноски фонаря на плече. Дополнительные характеристики: Вес с упаковкой 1.5 кгПроизводитель: Яркий Луч Материал корпуса: Алюминий, Пластик Время непрерывной работы: 5-20 час Гарантийный срок эксплуатации, месяцев: 24 Источник света: Светодиод (LED) Источник питания: Аккумулятор Максимальное время подзарядки аккумулятора: 15 час Длина упаковки: 230 мм Ширина упаковки: 100 мм Высота упаковки: 150 мм Объем упаковки, м³: 0.0035

2 040 руб.
Санкт-Петербург
Фонарь налобный LH-190A COBRA Яркий Луч

Фонарь налобный LH-190A COBRA Яркий Луч

Аккумуляторный налобный фонарь LH-190A «COBRA» Мощный налобный фонарь с широким нейтральным светом, длительным временем работы и встроенной USB-зарядкой. Современный светодиод, выполненный по технологии COB. Нейтральный свет, приближенный к солнечному. Максимальный световой поток 190 люменов. Стабилизация яркости. Три режима яркости — 190, 60 и 10 люмен. Четыре часа непрерывной работы в сильном режиме. До 55 часов работы в слабом режиме. Функция плавной регулировка яркости. Питание от Li-Ion аккумулятора 18650 (входит в комплект). Встроенное зарядной устройство от порта micro-USB. Описание: Простой и надежный налобный фонарь LH-190A «COBRA» с широким заливным светом, оптимальный для работы руками на небольшой дистанции.Ровный заливной свет и нейтральный оттенок современного светодиода, выполненного по технологии COB, обеспечивают комфортное выполнение рабочих задач. Основной рабочий режим фонаря — 190 люменов — стабилизирован и обеспечивает постоянный свет в течение 4 часов. Использование среднего или слабого режима позволяет увеличить время работы до 55 часов. Фонарь работает от Li-Ion аккумулятора 18650, с возможностью заряжать его прямо в корпусе через порт micro-USB. При необходимости длительной автономной работы можно использовать сменные аккумуляторы 18650. Управление: Для включения нажмите на кнопку. Фонарь включается в сильном режиме яркости. Для смены режимов повторно нажмите на кнопку в течение 5 секунд после включения. Для доступа к функции плавной регулировки нажмите и удерживайте кнопку. Для выключения фонаря нажмите на кнопку. Комплект: Фонарь; Li-Ion аккумулятор 18650 2200mAh; Кабель micro-USB. Гарантия 2 года.Производитель: Яркий Луч Тип: Налобные Материал корпуса: Пластик Время непрерывной работы: 4-55 час Гарантийный срок эксплуатации, месяцев: 24 Источник света: Светодиод (LED) Источник питания: Аккумулятор Длина упаковки: 100 мм Ширина упаковки: 100 мм Высота упаковки: 10 мм Объем упаковки, м³: 0.0001 Вес с упаковкой: 0.3 кг

1 190 руб.
Санкт-Петербург
Фонарь LH-150A Шахтер Яркий Луч

Фонарь LH-150A Шахтер Яркий Луч

Налобный аккумуляторный фонарь lh-150а «шахтер» сверхяркий светодиод 2 вт 2 режима работы: 100% и 30% кислотно-свинцовый аккумулятор 4 в 3500 мАч (более 500 циклов) крепкий ударопрочный корпус из abs-пластика индикация заряда на аккумуляторном блоке Описание: В данном фонаре в качестве источника света используется светодиод мощностью 2 Вт. Два режима работы. 100%, время работы при полностью заряженном аккумуляторе – 15 ч. 30%, время работы – 30 ч. Кислотно-свинцовый аккумулятор 4 В 3500 мАч (более 500 циклов) с клипсой для ношения на поясе. Время зарядки составляет 12 ч. Входное напряжение 110 – 220 В, 50 Гц. Возможность регулировки положений головной части относительно относительно крепления. Корпус выполнен из ABS-пластика. Дополнительные характеристики: Вес с упаковкой 1.5 кгПроизводитель: Яркий Луч Материал корпуса: Пластик Время непрерывной работы: 15 час Гарантийный срок эксплуатации, месяцев: 12 Источник света: Светодиод (LED) Источник питания: Аккумулятор Максимальное время подзарядки аккумулятора: 12 час Длина упаковки: 150 мм Ширина упаковки: 110 мм Высота упаковки: 50 мм Объем упаковки, м³: 0.0008

699 руб.
Санкт-Петербург
Фонарь налобный LH-140 ENOT Яркий Луч

Фонарь налобный LH-140 ENOT Яркий Луч

Налобный фонарь LH-140 «ENOT» Описание: Современный светодиод XP-G2 Нейтральный свет, приближенный к солнечному Максимальный световой поток 140 люмен Питание от одной батарейки АА (R6) (входит в комплект) Два режима работы: 30% и 100% Встроенный магнит в крышке батарейного отсека Резиновый ремешок и держатель входят в комплект Габаритные размеры фонаря: 89 мм x 25 мм Размеры упаковки: 134 мм x 208 мм Новый налобный фонарь «Яркий Луч» LH-140 «ENOT». Мощный светодиод CREE XP-G2 обеспечит световым потоком в 140 люмен. Фонарь спроектирован таким образом, что его можно использовать в качестве EDC, т.е. фонарь «на каждый день». В комплект входит резиновый ремешок и держатель. Фонарь работает от одной батарейки типоразмера АА (R6). Корпус анодирован. В крышку батарейного отсека встроен магнит для закрепления фонаря на металлической поверхности. Габаритные размеры фонаря: 25 х 89 мм. Два режима работы: 30% и 100%, время работы в режиме 100% составит 1.5 часа. Большая кнопка включения позволит переключать режимы фонаря даже в перчатках. Дополнительные характеристики: Ширина упаковки 100 мм Высота упаковки 10 мм Объем упаковки, м³ 0.0001 Вес с упаковкой 0.3 кгПроизводитель: Яркий Луч Тип: Налобные Материал корпуса: Пластик Время непрерывной работы: 1.5 час Гарантийный срок эксплуатации, месяцев: 12 Источник света: Светодиод (LED) Источник питания: Батарейка Длина: 89 мм Ширина: 25 мм Высота: 25 мм Вес: 0.1 кг Длина упаковки: 100 мм

790 руб.
Санкт-Петербург
Фонарь налобный LH-105A МЕХАНИК Яркий Луч

Фонарь налобный LH-105A МЕХАНИК Яркий Луч

Налобный аккумуляторный фонарь Яркий Луч LH-105A механик сверхяркий центральный светодиод 0.5 вт 10 светодиодов повышенной яркости 2 режима работы: аккумулятор 1500 мАч (более 500 циклов) крепкий ударопрочный корпус из abs-пластика индикатор сети Описание: Фонарь LH-105A Яркий Луч В данном фонаре в качестве источника света используется центральный светодиод мощностью 0.5 Вт и 10 светодиодов повышенной яркости, расположенные по кругу. Два режима работы. 1) Центральный светодиод 0.5 Вт, время работы при полностью заряженном аккумуляторе – 18 ч. 2) светодиод 0.5 Вт + 10 светодиодов повышенной яркости, время работы – 7 ч. Кислотно-свинцовый аккумулятор 1500 мАч (более 500 циклов), время зарядки составляет 12 ч. Входное напряжение 110 – 220 В, 50 Гц. Возможность регулировки положений головной части относительно аккумуляторного блока. Корпус выполнен из ABS-пластика. Внимание!!! не включайте фонарь во время зарядки аккумуляторов, это может привести к выходу из строя зарядного устройства или фонаря! Дополнительные характеристики: Вес с упаковкой 0.9 кгПроизводитель: Яркий Луч Тип: Налобные Материал корпуса: Пластик Время непрерывной работы: 7-18 час Срок службы: 5 лет Гарантийный срок эксплуатации, месяцев: 12 Источник света: Светодиод (LED) Источник питания: Аккумулятор Длина упаковки: 150 мм Ширина упаковки: 150 мм Высота упаковки: 10 мм Объем упаковки, м³: 0.0002

470 руб.
Санкт-Петербург
Фонарь налобный LH-030 DROID Яркий Луч (Цвет: Фонарь LH-030 DROID Чёрный)

Фонарь налобный LH-030 DROID Яркий Луч (Цвет: Фонарь LH-030 DROID Чёрный)

Светодиодный налобный фонарь Яркий Луч LH-030 DROID 3 ярких светодиода 30 люмен; 3 режима работы 100% – 20% – sos; съемная головная часть; регулируемый угол наклона; функция памяти; специальный ключ для открывания батарейного отсека; 3 цветовых решения. Описание: Три ярких светодиода обеспечат световым потоком в 30 люмен. Время работы в максимальном режиме составит 9 часов. Три режима работы: 100%, 20%, SOS. Режим «SOS» включается длительным нажатием на кнопку. Функция памяти: фонарь «запоминает» последний выбранный режим (кроме «SOS»). Легкая замена элементов питания 2 х ААА (в комплект не входят) при помощи специального ключа «Battery Pack Key» (находится на ремешке). Компактный размер, легкий вес, крепкий корпус – отличный налобный фонарь! Дополнительные характеристики: Объем упаковки, м³ 0.0002 Вес с упаковкой 0.9 кгПроизводитель: Яркий Луч Тип: Налобные Цвет: Фонарь LH-030 DROID Чёрный Материал корпуса: Пластик Время непрерывной работы: 9 час Срок службы: 5 лет Гарантийный срок эксплуатации, месяцев: 12 Источник света: Светодиод (LED) Источник питания: Батарейка Длина упаковки: 150 мм Ширина упаковки: 150 мм Высота упаковки: 10 мм

350 руб.
Санкт-Петербург
Фонарь налобный LH-030 DROID Яркий Луч (Цвет: Фонарь LH-030 DROID Зеленый)

Фонарь налобный LH-030 DROID Яркий Луч (Цвет: Фонарь LH-030 DROID Зеленый)

Светодиодный налобный фонарь Яркий Луч LH-030 DROID 3 ярких светодиода 30 люмен; 3 режима работы 100% – 20% – sos; съемная головная часть; регулируемый угол наклона; функция памяти; специальный ключ для открывания батарейного отсека; 3 цветовых решения. Описание: Три ярких светодиода обеспечат световым потоком в 30 люмен. Время работы в максимальном режиме составит 9 часов. Три режима работы: 100%, 20%, SOS. Режим «SOS» включается длительным нажатием на кнопку. Функция памяти: фонарь «запоминает» последний выбранный режим (кроме «SOS»). Легкая замена элементов питания 2 х ААА (в комплект не входят) при помощи специального ключа «Battery Pack Key» (находится на ремешке). Компактный размер, легкий вес, крепкий корпус – отличный налобный фонарь! Дополнительные характеристики: Объем упаковки, м³ 0.0002 Вес с упаковкой 0.9 кгПроизводитель: Яркий Луч Тип: Налобные Цвет: Фонарь LH-030 DROID Зеленый Материал корпуса: Пластик Время непрерывной работы: 9 час Срок службы: 5 лет Гарантийный срок эксплуатации, месяцев: 12 Источник света: Светодиод (LED) Источник питания: Батарейка Длина упаковки: 150 мм Ширина упаковки: 150 мм Высота упаковки: 10 мм

350 руб.
Санкт-Петербург
Фонарь налобный LH-030 DROID Яркий Луч (Цвет: Фонарь LH-030 DROID Оранжевый)

Фонарь налобный LH-030 DROID Яркий Луч (Цвет: Фонарь LH-030 DROID Оранжевый)

Светодиодный налобный фонарь Яркий Луч LH-030 DROID 3 ярких светодиода 30 люмен; 3 режима работы 100% – 20% – sos; съемная головная часть; регулируемый угол наклона; функция памяти; специальный ключ для открывания батарейного отсека; 3 цветовых решения. Описание: Три ярких светодиода обеспечат световым потоком в 30 люмен. Время работы в максимальном режиме составит 9 часов. Три режима работы: 100%, 20%, SOS. Режим «SOS» включается длительным нажатием на кнопку. Функция памяти: фонарь «запоминает» последний выбранный режим (кроме «SOS»). Легкая замена элементов питания 2 х ААА (в комплект не входят) при помощи специального ключа «Battery Pack Key» (находится на ремешке). Компактный размер, легкий вес, крепкий корпус – отличный налобный фонарь! Дополнительные характеристики: Объем упаковки, м³ 0.0002 Вес с упаковкой 0.9 кгПроизводитель: Яркий Луч Тип: Налобные Цвет: Фонарь LH-030 DROID Оранжевый Материал корпуса: Пластик Время непрерывной работы: 9 час Срок службы: 5 лет Гарантийный срок эксплуатации, месяцев: 12 Источник света: Светодиод (LED) Источник питания: Батарейка Длина упаковки: 150 мм Ширина упаковки: 150 мм Высота упаковки: 10 мм

350 руб.
Санкт-Петербург
Фонарь LA-20 Яркий Луч

Фонарь LA-20 Яркий Луч

Аккумуляторный светодиодный фонарь Яркий Луч LA-20 мощный светодиод 2 вт 3000 k (направленный свет до 30 метров); кислотно-свинцовый аккумулятор 4 в, 1000 мач; встроенная вилка для зарядки от сети 220 в; два режима работы: «HIGH» и «LOW»; индикатор сети в ручке фонаря; корпус из abs-пластика с резиновым напылением. Описание: Фонарь Яркий Луч LA-20 имеет Яркий светодиод 2 Ватта 3000К. Встроенный кислотно-свинцовый 4 В 1000 мАч. Встроенная вилка для зарядки от сети 220 В. Индикация подключения фонаря к сети, красный светодиод в ручке. Время зарядки аккумулятора составляет 13 – 15 ч. Два режима работы: «High» и «Low». Корпус выполнен из ABS-пластика. Время работы фонаря примерно 6 часов в режиме «High» и 14 часов в режиме «Low» при полностью заряженном аккумуляторе. Гарантийный срок 2 года, срок службы 5 лет. Дополнительные характеристики: Высота упаковки 10 мм Объем упаковки, м³ 0.0002 Вес с упаковкой 1.5 кгПроизводитель: Яркий Луч Тип лампы: Светодиодные Материал корпуса: Пластик Срок службы: 5 лет Гарантийный срок эксплуатации, месяцев: 24 Источник света: Светодиод (LED) Среднее время безотказной работы источника света: 50000 час Источник питания: Аккумулятор Номинальное напряжение: 4 В Максимальное время подзарядки аккумулятора: 13 час Длина упаковки: 150 мм Ширина упаковки: 150 мм

520 руб.
Санкт-Петербург
Фонарь LA-108 Яркий Луч

Фонарь LA-108 Яркий Луч

Аккумуляторный светодиодный фонарь LA-108 Мощный светодиод 1 Вт обеспечивает направленный свет дальностью до 30 метров; 8 ярких светодиодов на ручке фонаря для местного освещения; Кислотно-свинцовый аккумулятор 4 В, 900 мАч; Встроенная вилка для заряда аккумулятора от сети 220 В; Индикатор сети, расположенный на ручке фонаря. Описание: Аккумуляторный многофункциональный светодиодный фонарь «Яркий Луч» LA-108 Два режима работы. Прожектор 1 Вт светодиод обеспечит направленным светом дальнего действия. Кемпинг 8 светодиодов – рассеянный свет для местного освещения. Встроенный кислотно-свинцовый аккумулятор 4 В, 900 мАч. Время зарядки составляет от 4 до 6 часов. Гарантийный срок 2 года, срок службы 5 лет. Дополнительные характеристики: Объем упаковки, м³ 0.0002 Вес с упаковкой 1.5 кгПроизводитель: Яркий Луч Тип лампы: Светодиодные Материал корпуса: Пластик Гарантийный срок эксплуатации, месяцев: 24 Источник света: Светодиод (LED) Среднее время безотказной работы источника света: 50000 час Источник питания: Аккумулятор Номинальное напряжение: 4 В Максимальное время подзарядки аккумулятора: 5 час Длина упаковки: 150 мм Ширина упаковки: 150 мм Высота упаковки: 10 мм

410 руб.
Санкт-Петербург
Фонарь LA-10 Яркий Луч

Фонарь LA-10 Яркий Луч

Аккумуляторный светодиодный фонарь LA-10 Яркий Луч мощный светодиод 1 вт 3000 k (направленный свет до 30 метров); кислотно-свинцовый аккумулятор 4 в, 800 мАч; встроенная вилка для зарядки от сети 220 в; индикатор сети в ручке фонаря; корпус из abs-пластика с резиновым напылением. Описание: Яркий светодиод 1 Ватт 3000К. Аккумулятор: встроенный кислотно-свинцовый 4 В 800 мАч. Встроенная вилка для зарядки от сети 220 В. Индикация подключения фонаря к сети: красный светодиод в ручке. Время зарядки аккумулятора составляет 13 – 15 ч. Корпус выполнен из ABS-пластика. Время работы фонаря примерно 5.5 часов при полностью заряженном аккумуляторе. Гарантийный срок 2 года, срок службы 5 лет. Дополнительные характеристики: Объем упаковки, м³ 0.0002 Вес с упаковкой 1.5 кгПроизводитель: Яркий Луч Тип лампы: Светодиодные Материал корпуса: Пластик Гарантийный срок эксплуатации, месяцев: 24 Источник света: Светодиод (LED) Среднее время безотказной работы источника света: 50000 час Источник питания: Аккумулятор Номинальное напряжение: 4 В Максимальное время подзарядки аккумулятора: 13 час Длина упаковки: 150 мм Ширина упаковки: 150 мм Высота упаковки: 10 мм

320 руб.
Санкт-Петербург
Фонарь кемпинговый CL-360A Яркий Луч

Фонарь кемпинговый CL-360A Яркий Луч

CL-360A «Походная люстра 6» Описание: 12 белых и 3 красных SMD светодиодов обеспечивают мягкий рассеянный свет для местного освещения; 5 режимов работы: 100%, 30% и 6% белый свет, 100% красный и сигнал S.O.S.; Два литий-ионных аккумулятора 18650 3.7 В и общей емкостью 5200 мАч; USB-разъемы для зарядки аккумуляторов фонаря. Фонарь можно использовать как зарядное устройство, т.е. заряжать телефоны, смартфоны и пр.; Карабин для удобного подвешивания фонаря; Индикатор зарядки аккумуляторов в кнопке; Регулируемые положения относительно держателя; Аккумуляторный кемпинговый светодиодный фонарь «ЯРКИЙ ЛУЧ» CL-360A «Походная люстра 6». Пять режимов работы. 1 режим: 100% белый свет, световой поток 360 люмен, время работы – до 12 ч *. 2 режим: 30% белый свет, световой поток 120 люмен, время работы – до 36 ч *. 3 режим: 6% белый свет, световой поток 20 люмен, время работы – до 240 ч *. 4 режим: 100% красный свет, световой поток 12 люмен, время работы – до 60 ч *. 5 режим: мигающий красный свет S.O.S., время работы – до 90 ч *. * от полностью заряженных аккумуляторов ВАЖНО! Для включения красного света на выключенном фонаре необходимо нажать и удерживать кнопку в течение 2-3 сек, далее для переключения на режим S.O.S. нажмите на кнопку с интервалом менее 2 сек. Два литий-ионных аккумулятора 3.7 В 2600 мАч, входят в комплект. Время заряда от микро-USB разъема составит 7-8 часов. Корпус фонаря выполнен из крепкого ABS-пластика. Влагозащищенность IPX4. Карабин (в комплекте) позволит подвесить фонарь для удобства применения. В кнопке расположен индикатор зарядки аккумуляторов, в процессе заряда кнопка мигает красным, постоянно горит – аккумуляторы полностью заряжены. Фонарь можно использовать как зарядное устройство, т.е. заряжать телефоны, смартфоны и пр. В этом случае индикатор в кнопке будет гореть синим. Гарантийный срок 2 года, срок службы 5 лет. Дата изготовления указана в аккумуляторном отсеке фонаря. Дополнительные характеристики: Объем упаковки, м³ 0.0002 Вес с упаковкой 1.5 кгПроизводитель: Яркий Луч Материал корпуса: Пластик Время непрерывной работы: 12-90 час Гарантийный срок эксплуатации, месяцев: 24 Источник света: Светодиод (LED) Среднее время безотказной работы источника света: 50000 час Источник питания: Аккумулятор Номинальное напряжение: 3.7 В Длина упаковки: 150 мм Ширина упаковки: 150 мм Высота упаковки: 10 мм

1 650 руб.
Санкт-Петербург
Фонарь кемпинговый CL-120

Фонарь кемпинговый CL-120

Фонарь кемпинговый Яркий Луч CL-120 3 суперярких светодиода световой поток 120 люмен; 5 режимов работы: 100%, 60%, 20%, мигающий и режим s.o.s.; система магнитов для закрепления на металлической поверхности; крючок-подвес для удобного подвешивания; компактный размер. Фонарь CL-120 работает на батарейках АAА (R03), 3 шт. (входят в комплект). Фонарь незаменим для тех людей, кто любит проводить длительное время на даче, в походе, на рыбалке. Крючок-подвес и и магниты позволят разместить фонарь практически на любой поверхности для Вашего комфортного отдыха. - сточник света 3 суперярких светодиода (SMD), срок службы 50 000 часов; - система магнитов; - крючок-подвес для удобного подвешивания фонаря; - компактный размер. Пять режимов работы фонаря: 100%, 120 лм, время работы 8 ч; 60%, 72 лм, время работы 15 ч; 20%, 24 лм, время работы 40 ч; мигающий, время работы 20 ч; режим S.O.S, время работы 20 ч. Дополнительные характеристики: Объем упаковки, м³ 0.0002 Вес с упаковкой 1.5 кгПроизводитель: Яркий Луч Световой поток: 120 Люмен Материал корпуса: Пластик Время непрерывной работы: 8-20 час Гарантийный срок эксплуатации, месяцев: 24 Источник света: Светодиод (LED) Среднее время безотказной работы источника света: 50000 час Источник питания: Батарейка, АА Длина упаковки: 150 мм Ширина упаковки: 150 мм Высота упаковки: 10 мм

520 руб.
Санкт-Петербург
Фонарь кемпинговый CL-095

Фонарь кемпинговый CL-095

Портативный светодиодный фонарь cl-095 «походная люстра 4» Работает на батарейках АА (R6), 3 шт. (в комплект не входят). Фонарь просто незаменим для тех людей, кто длительное время любит проводить на даче, в походе, на рыбалке. Карабин, подвес и магниты позволят разместить фонарь практически на любой поверхности для вашего ком-фортного отдыха. Светодиодный кемпинговый фонарь cl-095 15 супер ярких светодиодов световой поток 95 люмен; 3 режима работы: 100%, 50% и мигающий; карабин, подвес и магниты для комфортного отдыха; регулируемый угол наклона; компактный размер. Характеристики фонаря cl-095: – источник света 15 ярких светодиодов, срок службы 50 000 часов; – материал корпуса пластик; – два магнита для закрепления на металлической поверхности; – карабин и подвес для удобного подвешивания фонаря; – регулируемый угол наклона в подвешенном состоянии. Три режима работы фонаря: – 100%, время работы 8 ч (на алкалиновых элементах питания); – 50%, время работы 15 ч (на алкалиновых элементах питания); – мигающий, время работы 20 ч (на алкалиновых элементах питания). Дополнительные характеристики: Объем упаковки, м³ 0.0002 Вес с упаковкой 1.5 кг Водозащищенность IPX6Производитель: Яркий Луч Тип лампы: Светодиодные Световой поток: 95 Люмен Материал корпуса: Пластик Время непрерывной работы: 8-20 час Гарантийный срок эксплуатации, месяцев: 24 Источник света: Светодиод (LED) Среднее время безотказной работы источника света: 50000 час Источник питания: Батарейка, АА Длина упаковки: 150 мм Ширина упаковки: 150 мм Высота упаковки: 10 мм

267 руб.
Санкт-Петербург
Фонарь автомобильный оптимус

Фонарь автомобильный оптимус

Многофункциональный автомобильный светодиодный фонарь оптимус мощный светодиод 0.5 вт в головной части; 36 ярких светодиодов на боковой грани; 3 сильных магнита для металлической поверхности; складывающийся крючок для подвешивания; регулировка положений относительно опоры; режимы работы: «прожектор», «кемпинг». Два режима работы: Режим прожектор: 0.5 вт светодиод обеспечит направленным светом дальнего действия, время работы – до 20 часов. Режим кемпинг: 36 светодиодов – рассеянный свет для местного освещения, время работы – до 8 часов. Возможность регулировки положений (6 вариантов) относительно опоры фонаря. Система сильных магнитов позволит закрепить его на металлической поверхности под любым углом для удобства работы. На задней грани фонаря находится складывающийся крючок для подвешивания. Мощный светодиод 0.5 Вт в головной части фонаря для направленного света 36 ярких светодиодов на боковой грани для местного освещения 3 сильных магнита для удобного размещения фонаря на металлической поверности под любым углом Складывающийся крючок для подвешивания Регулировка положений фонаря относительно опоры на горизонтальной поверхности Крепкий ударопрочный пластиковый корпус с резиновым напылением Элементы питания: 3 х АА (R6), в комплект не входят.Производитель: Яркий Луч Тип лампы: Светодиодные Время непрерывной работы: 8-20 час Гарантийный срок эксплуатации, месяцев: 24 Источник света: Светодиод (LED) Источник питания: Аккумулятор Длина упаковки: 200 мм Ширина упаковки: 70 мм Высота упаковки: 50 мм Объем упаковки, м³: 0.0007 Вес с упаковкой: 1.5 кг Водозащищенность: IPX6

650 руб.
Санкт-Петербург
Фонарь ALBATROS A12

Фонарь ALBATROS A12

Фонарь яркий луч YLP Albatros A12 Компактный универсальный фонарь, работающий от Li-Ion аккумулятора 18650 или трёх батареек ААА (в комплект не входят). Нейтральный свет близкий к солнечному; Современный светодиод Cree XP-G2 nw; Эффективная TIR-оптика; Узкий центральный луч, оптимальный на средних и дальних дистанциях; Дальность 170 метров по стандарту ANSI; Максимальный световой поток 360 люмен; Три режима яркости: 100%, 30%, 5%; Подключаемая опция памяти режимов; Работа от Li-Ion аккумулятора 18650 или 3*ААА (в комплект не входят). Режимы и элементы питания При использовании аккумулятора 18650 световой поток при запуске фонаря составляет 130%, через 2 минуты уменьшается до стабилизированного 100%. При использовании батареек ААА турбо-режим 130% и стабилизация яркости не будут работать в полном объеме. Режимы работы на Аккумуляторе 18650: сильный – 280 лм (100%), 3 ч работы; средний – 85 лм (30%), 10 ч работы; слабый – 15 лм (5%), 45 ч работы. Батарейках 3*ААА: сильный – 280 лм (100%), 1 ч работы; средний – 85 лм (30%), 3.5 ч работы; слабый – 15 лм (5%), 20 ч работы. При установке аккумулятора 18650 используйте идущий в комплекте уплотнитель для 18650. При использовании батареек вставьте их в прилагаемую кассету, соблюдая полярность, затем установите кассету в фонарь. Пожалуйста, используйте качественные щелочные батарейки или Ni-MH аккумуляторы формата ААА. Не смешивайте в кассете элементы питания ААА от разных производителей или с разной степенью заряда, это может привести к протечке фонаря. Не рекомендуется использовать солевые батарейки ААА. При использовании Li-Ion аккумуляторов 18650 пользуйтесь качественными защищёнными аккумуляторами от проверенных производителей. Использование двух батареек CR123 запрещено. Включение и управление фонаря: Для включения на сильном режиме нажмите на кнопку. Для переключения на средний и слабый режим повторно выключите и включите фонарь. Также возможен выбор нужного режима из выключенного состояния, лёгким полунажатием, с последующей фиксацией выбранного режима щелчком кнопки. Настройка памяти режимов Для включения или выключения функции памяти режимов десять раз быстро выключите и включите фонарь. При изменении настроек фонарь мигнёт один раз (память режимов включена) или три раза (память режимов выключена). При включённой функции памяти фонарь стартует с последнего использованного режима, при выключенной – с сильного режима. Современный светодиод XP-G2nw Нейтральный свет, близкий к солнечному (4200К) Эффективная TIR-оптика Узкий центральный луч, оптимальный на средних и дальних дистанциях Световой поток до 360 лм Дальность до 170 метров по стандарту ANSI Три режима яркости: 100, 30 и 5% Время работы до 45 часов Возможность включения или выключения памяти режимов Возможность использования элементов 18650 или трех батареек ААА Съемная клипса Водозащищенность: IPX6 Размеры: 130*26 мм Вес: 74 грамма (без кассеты и элементов питания) Дополнительные характеристики: Высота упаковки 40 мм Объем упаковки, м³ 0.0002 Вес с упаковкой 0.09 кг Водозащищенность IPX6Производитель: Яркий Луч Время непрерывной работы: 3-45 час Гарантийный срок эксплуатации, месяцев: 12 Источник света: Светодиод (LED) Источник питания: Аккумулятор Длина: 130 мм Ширина: 26 мм Высота: 26 мм Вес: 0.074 кг Длина упаковки: 200 мм Ширина упаковки: 30 мм

1 290 руб.
Санкт-Петербург
Светодиодный профессиональный аккумуляторный фонарь ФАП-5

Светодиодный профессиональный аккумуляторный фонарь ФАП-5

Фонарь тактический ФАП-5 используется в качестве индивидуального осветительного прибора в промышленности или в быту, имеет ударопрочный корпус, мощный ровный световой луч с широкой фоновой боковой засветкой. ФАП 5 - мощный светодиодный аккумуляторный фонарь. Надёжность и безопасность эксплуатации ФАП-5, невысокая стоимость, простота технического обслуживания, транспортирования и хранения делают этот фонарь незаменимым в сложных условиях, характерных для работы спасателей, служб МЧС, ГИБДД, УВД, пограничных войск, а также энергетиков, охранных структур, работников железной дороги и других служб. Особенности конструкции. Внутри ударопрочного металлического корпуса, размещены: литиевый аккумулятор 3,7В емкостью 2500мА/ч (формата 18650), электронная схема и оптический блок. Фонарь ФАП 5 обладает повышенной механической прочностью. Его корпус выполнен из авиационного алюминиевого сплава, герметичен, пыленепроницаем, выдерживает кратковременное погружение в воду. Для зарядки аккумулятора в комплекте имеется два зарядных устройства: от сети 220В и от автомобильного "прикуривателя". Благодаря модульной конструкции фонаря при необходимости возможна замена корпуса, отражателя или ккумулятора без использования каких-либо инструментов. Управление режимами работы осуществляется с помощью кнопки расположенной на торце фонарика: однократное нажатие - включение/выключение, легкое однократное нажатие - переключение между опциями света. Фонарик имеет 5 опции света: "максимальный"; "основной"; "экономный"; "сигнальный свет" (мигающий); "режим SOS". При разряде аккумулятора фонарик выдает серию прерывистых. Дополнительные характеристики: Высота 28 мм Вес 0.1 кг Длина упаковки 190 мм Ширина упаковки 180 мм Высота упаковки 65 мм Объем упаковки, м³ 0.0022 Вес с упаковкой 0.3 кгПроизводитель: Транском Тип лампы: Светодиодные Материал корпуса: Металл Время непрерывной работы: 3-5 час Степень защиты, IP: 65 Гарантийный срок эксплуатации, месяцев: 12 Дальность светового луча, метров: 300 Источник света: Светодиод (LED) Среднее время безотказной работы источника света: 50000 час Источник питания: Аккумулятор Длина: 145 мм Ширина: 28 мм

2 250 руб.
Санкт-Петербург
Фонарик тактический ФСК-1

Фонарик тактический ФСК-1

Фонарик тактический ФСК-1 применяется для охоты, рыбалки, альпинизма, на природе, в быту, для автомобилистов и используется как индивидуальное осветительное устройство. Особенности конструкции. Светодиодный фонарик имеет разборную конструкцию (крышка аккумулятора, аккумуляторная секция, секция со светодиодом, защитное стекло светодиода) и защищен от прямых попаданий осадков уплотнительными кольцами между отсеками. Фонарик выполнен в виде небольшого цилиндра диаметром 28 мм, со световой головкой диаметром 47 мм. Длина фонарика составляет 196 мм. Внутри корпуса фонарика находятся электронная плата управления и световой модуль Cree с фокусирующей линзой, защищенный прочным стеклом, а также аккумулятор. Особенности конструкции. В качестве источника питания используется литий-ионный (li-ion) аккумулятор напряжением 3,7 Вольт, формата 18650. Аккумулятор расположен в фонаре контактом "+" внутрь. Электронная плата позволяет защитить светодиод, если полюса аккумулятора будут перепутаны, в этом случае светодиод гореть не будет, пока аккумулятор расположен не правильно. Управление режимами работы осуществляется с помощью кнопки расположенной на торце фонарика: однократное нажатие - включение/выключение, легкое однократное нажатие - переключение между опциями света. Фонарик обеспечивает 3 опции света: "максимальный" - до 2 часов работы; "экономичный" - до 3 часов работы; "сигнальный" - мигающий свет Для зарядки аккумулятора необходимо выкрутить аккумуляторную секцию, подсоединить штекер зарядного устройства и нажать кнопку включения фонаря, при этом на зарядном устройстве должен загореться красный светодиод. По мере заряда аккумулятора, светодиод будет менять свой цвет от красного к зеленому. Когда светодиод будет гореть зеленым цветом, зарядное устройство можно отключить - аккумулятор полностью заряжен. Технические характеристики Наименование Значение Дальность светового луча (при освещённости 1 люкс), метров 300 Время непрерывной работы, час 3-5 Степень защиты от внешних воздействий, не ниже, IP 65 Класс защиты от поражения человека электрическим током III Температура окружающей среды, °С от -20 до +40 Относительная влажность при температуре 25°С, не более, % 98 Гарантийный срок эксплуатации, месяцев 12 Источник света Светодиод Мощность, ватт 4,5 Среднее время безотказной работы источника света, час 50000 Номинальное напряжение питания аккумуляторной батареи, вольт 3,7 Емкость аккумуляторной батареи, ампер/час 4 Максимальное время подзарядки аккумулятора, час 4 Средний ресурс аккумуляторной батареи (число циклов заряд/разряд) 500 Диаметр рефлектора, мм 38 Габаритные размеры (длина, ширина, высота), мм 196×47×47 Вес, не более, кг 0,25 Дополнительные характеристики: Высота 47 мм Вес 0.2 кг Длина упаковки 175 мм Ширина упаковки 95 мм Высота упаковки 65 мм Объем упаковки, м³ 0.0011 Вес с упаковкой 0.3 кгПроизводитель: ООО "АРС Групп" Тип: Тактические Материал корпуса: Металл Время непрерывной работы: 3-5 час Степень защиты, IP: 65 Гарантийный срок эксплуатации, месяцев: 12 Дальность светового луча, метров: 300 Источник света: Светодиод (LED) Среднее время безотказной работы источника света: 50000 час Источник питания: Аккумулятор Длина: 196 мм Ширина: 47 мм

2 200 руб.
Санкт-Петербург
Фонарь сигнально-осветительный Экотон-10

Фонарь сигнально-осветительный Экотон-10

Фонарь Экотон 10 предназначен для подачи световых сигналов и местного освещения на предприятиях РЖД (для проводников вагонов, дежурных по станции, составителей поездов и т.д.), бойцов военизированной охраны, работников ГИБДД, аэропортов, малых речных судов и для любых бытовых целей. Фонарь переносится с помощью специальной ручки и ремешка, закрепленного на кисти руки. Особенности конструкции. Фонарь выполнен из ударопрочного пластика, имеет защитную окраску и брызгозащищенное исполнение. В качестве источника света используются мощные лампы на светоизлучающих диодах белого, красного, зеленого свечения или белого, красного, оранжевого свечения - по спецификации заказа. Включение ламп происходит выборочно с помощью одной кнопки (белый свет) и двухпозиционного тумблера со средним положением. Среднее положение тумблера - "выключено", две другие позиции тумблера - "включено" (красный или зеленый свет). Положение тумблера подсвечено индикаторными светодиодами соответствующего цвета. Источником питания фонаря служит герметичный литий-ионный аккумулятор, расположенный в корпусе фонаря. Подзарядка аккумулятора осуществляется от внешнего сетевого зарядного адаптера, безопасное напряжение от которого подается через разъем на зарядное устройство, расположенное внутри корпуса фонаря. Разряд аккумулятора индицируется предупредительной световой сигнализацией пульсирующим светом любой включенной лампы. Комплект поставки: фонарь с ремешком, зарядное устройство АЗУ-4.2, инструкция по эксплуатации, коробка упаковочная. Дополнительные характеристики: Высота 174 мм Вес 0.3 кг Длина упаковки 150 мм Ширина упаковки 165 мм Высота упаковки 95 мм Объем упаковки, м³ 0.0024 Вес с упаковкой 0.4 кгПроизводитель: Экотон Материал корпуса: Металл, пластик Время непрерывной работы: 15 час Степень защиты, IP: 54 Гарантийный срок эксплуатации, месяцев: 24 Угол светового луча, 2q 0.5, град.: 8 Источник света: Светодиод (LED) Среднее время безотказной работы источника света: 50000 час Источник питания: Аккумулятор Длина: 132 мм Ширина: 87 мм

8 030 руб.
Санкт-Петербург
Фонарь железнодорожника светодиодный ФЖС

Фонарь железнодорожника светодиодный ФЖС

Фонарь ФЖС предназначен для применения в качестве переносного светильника местного освещения на железнодорожном транспорте и метрополитене при температуре окружающего воздуха от -30˚С до +45˚С и относительной влажности воздуха до 98% (при плюс 25˚С). Отличительной особенностью фонаря железнодорожника светодиодного ФЖС от ранее выпускаемых фонарей является увеличение светового потока и освещенности, уменьшение габаритных размеров и массы, увеличение времени непрерывной работы фонаря без подзарядки аккумулятора, применение малогабаритных герметичных кислотно-гелиевых аккумуляторов, увеличение прочности корпуса, удобство конструкции. С помощью кнопки включения (без фиксации) выполняются три функции: включение; регулировка силы света; выключение. Фонарь состоит из корпуса, крышки, светильника, который крепится на ручке фонаря с помощью скобы и гайки - барашка. Ослабляя гайки - барашки, можно плавно регулировать наклон светильника. При необходимости можно снять светильник с корпуса. Светильник с помощью двужильного кабеля соединяется с батареей. На фонаре имеется кнопка включения (без фиксации), с помощью которой осуществляется выбор режима свечения. В прочном пластмассовом корпусе блока питания установлено два аккумулятора. Светильник соединяется с блоком питания кабелем длиной 0,5 м, что позволяет использовать светильник, снятый с ручки, для освещения труднодоступных мест. Подзарядка аккумуляторного блока производится от сетевого зарядного адаптера. Фонарь выдерживает падение с высоты 2 метров, защищен от ультрафиолетового излучения и проникновения вовнутрь воды. Переносится фонарь на плечевом ремне. Дополнительные характеристики: Высота 240 мм Вес 1.6 кг Длина упаковки 280 мм Ширина упаковки 190 мм Высота упаковки 95 мм Объем упаковки, м³ 0.0051 Вес с упаковкой 1.7 кгПроизводитель: Экотон Тип лампы: Светодиодные Материал корпуса: Металл, пластик Время непрерывной работы: 10-35 час Степень защиты, IP: 54 Гарантийный срок эксплуатации, месяцев: 24 Угол светового луча, 2q 0.5, град.: 8 Источник света: Светодиод (LED) Среднее время безотказной работы источника света: 50000 час Источник питания: Аккумулятор Длина: 190 мм Ширина: 59 мм

5 610 руб.
Санкт-Петербург
Фонарь раскладушка LA-1W Яркий Луч

Фонарь раскладушка LA-1W Яркий Луч

Фонарь яркий луч la-1w раскладушка Описание: Фонарь la-1w имеет 3 режима работы: «прожектор» - 3Вт светодиод (4,5 часа работы); «кемпинг 1» - 24 светодиода (до 8 часов работы); «кемпинг 2» - 40 светодиодов (до 5 часов работы). Мощный светодиод 3Вт обеспечивает направленный свет дальностью до 70 метров. 40 сверхярких светодиодов включаются в соотношении 24+16 и дают рассеянный свет для местного освещения. При закрывании крышки светодиоды автоматически выключаются. Функция аварийного освещения - при отключении напряжения сети фонарь включится автоматически. Встроенная защита от перезаряда и полного разряда аккумулятора. аккумулятор Li-Ion 2 x 18650 3.7В, источник света – 3W светодиод. Дополнительные характеристики: Ширина упаковки 100 мм Высота упаковки 110 мм Объем упаковки, м³ 0.0022 Вес с упаковкой 0.55 кгПроизводитель: Яркий Луч Материал корпуса: Пластик Время непрерывной работы: 8 час Гарантийный срок эксплуатации, месяцев: 24 Источник света: Светодиод (LED) Источник питания: Аккумулятор Длина: 180 мм Ширина: 100 мм Высота: 100 мм Вес: 0.4 кг Длина упаковки: 200 мм

990 руб.
Санкт-Петербург
Фонарь LA-07 Яркий Луч

Фонарь LA-07 Яркий Луч

Фонарь Яркий луч LA-07 Описание: Светодиодный фонарь Яркий луч LA-07 является классическим ручным прожектором. Он применяется, когда необходимо дополнительное освещение, а также как самостоятельный осветительный прибор. Прибор работает долгое время и имеет эргономичный дизайн. В модели Яркий луч LA-07 установлены 7 мощных светодиодов. Они обеспечивают яркое освещение на большом расстоянии. Световой луч достигает 50м в кромешной темноте. Рассеивающая линза освещает пространство в радиусе примерно 3 метров. Ручной фонарь Яркий луч LA-07 отличается невысокой ценой. Благодаря влагозащитному корпусу, он не боится сырости, поэтому не стоит опасаться, что он вдруг отключится в критической ситуации. Без подзарядки аккумулятор работает примерно 15 часов. Определить, сколько осталось заряда поможет специальный индикатор. Подзаряжается оборудование от сети с помощью встроенной вилки. Дополнительные характеристики: Вес 0.26 кг Длина упаковки 220 мм Ширина упаковки 130 мм Высота упаковки 90 мм Объем упаковки, м³ 0.0026 Вес с упаковкой 0.3 кгПроизводитель: Яркий Луч Тип: Ручные Тип лампы: Светодиодные Световой поток: 80 Люмен Материал корпуса: Пластик Время непрерывной работы: 15 час Гарантийный срок эксплуатации, месяцев: 24 Дальность светового луча, метров: 50 Источник света: Светодиод (LED) Источник питания: Аккумулятор Длина: 152 мм Ширина: 80 мм Высота: 80 мм

260 руб.
Санкт-Петербург
Фонарик светодиодный карманный Экотон 17 (Комплектность: Автомобильное зарядное устройство)

Фонарик светодиодный карманный Экотон 17 (Комплектность: Автомобильное зарядное устройство)

Фонарик Экотон 17 предназначен для работы в качестве индивидуального осветительного прибора. Экотон 17 выполнен в виде небольшого цилиндра диаметром 30 мм, со световой головкой диаметром 45 мм. Длина фонарика 160 мм. Фонарик имеет не разборную конструкцию и защищен от прямого попадания осадков. Внутри корпуса фонарика находятся литий-ионный аккумулятор, электронная плата управления и световой модуль Cree с фокусирующей линзой, защищенный прочным термостойким кварцевым стеклом. На корпусе фонарика расположена кнопка включения, закрытая защитным колпачком из пластиката. На торцевой части фонарика находится зарядное гнездо. Заряд аккумулятора осуществляется с помощью автоматического зарядного устройства. При разряде аккумулятора фонарик выдает серию прерывистых световых сигналов, предупреждающих об "истощении" аккумулятора, с последующим автоматическим отключением света Фонарик Экотон 17 обеспечивает 4 опции света: "максимальный" - до 5 часов работы; "оптимальный" - до 12 часов работы; "экономичный" - до 40 часов работы; "сигнальный" - мигающий свет. Переход с одного режима света на другой выполняется одной кнопкой - кнопкой включения фонарика. Фонарик изготавливается в исполнении для значения температуры от -20°С до +45°С. При использовании фонарик закрепляется на кисти руки с помощью шнурка с фиксатором. Переносится фонарик в кармане одежды или в сумочке. Дополнительные характеристики: Угол светового луча, 2q 0.5, град. 10 Источник света Светодиод (LED) Среднее время безотказной работы источника света 50000 час Источник питания Аккумулятор Номинальное напряжение 3.7 В Средний ресурс аккумуляторной батареи (число циклов заряд/разряд) 1000 Максимальное время подзарядки аккумулятора 4 час Длина 160 мм Ширина 45 мм Высота 45 мм Вес 0.15 кг Длина упаковки 175 мм Ширина упаковки 95 мм Высота упаковки 65 мм Объем упаковки, м³ 0.0011 Вес с упаковкой 0.27 кг Спектр излучения Белый Класс защиты от поражения человека электрическим током III Освещенность на расстоянии 1м "максимального" света, не менее 1500 люкс Освещенность на расстоянии 1м "оптимального" света, не менее 900 люкс Освещенность на расстоянии 1м "экономичного" света, не менее 60 люксПроизводитель: Экотон Тип: Карманные Тип лампы: Светодиодные Комплектность: Автомобильное зарядное устройство Материал корпуса: Пластик Время непрерывной работы: 5, 12, 40 час Минимальная рабочая температура: -20 °С Максимальная рабочая температура: 45 °С Срок службы: 5 лет Диаметр рефлектора: 30 мм Степень защиты, IP: 54 Гарантийный срок эксплуатации, месяцев: 12 Дальность светового луча, метров: 50

3 740 руб.
Санкт-Петербург
Фонарик светодиодный карманный Экотон 17 (Комплектность: Сетевое зарядное устройство)

Фонарик светодиодный карманный Экотон 17 (Комплектность: Сетевое зарядное устройство)

Фонарик Экотон 17 предназначен для работы в качестве индивидуального осветительного прибора. Экотон 17 выполнен в виде небольшого цилиндра диаметром 30 мм, со световой головкой диаметром 45 мм. Длина фонарика 160 мм. Фонарик имеет не разборную конструкцию и защищен от прямого попадания осадков. Внутри корпуса фонарика находятся литий-ионный аккумулятор, электронная плата управления и световой модуль Cree с фокусирующей линзой, защищенный прочным термостойким кварцевым стеклом. На корпусе фонарика расположена кнопка включения, закрытая защитным колпачком из пластиката. На торцевой части фонарика находится зарядное гнездо. Заряд аккумулятора осуществляется с помощью автоматического зарядного устройства. При разряде аккумулятора фонарик выдает серию прерывистых световых сигналов, предупреждающих об "истощении" аккумулятора, с последующим автоматическим отключением света Фонарик Экотон 17 обеспечивает 4 опции света: "максимальный" - до 5 часов работы; "оптимальный" - до 12 часов работы; "экономичный" - до 40 часов работы; "сигнальный" - мигающий свет. Переход с одного режима света на другой выполняется одной кнопкой - кнопкой включения фонарика. Фонарик изготавливается в исполнении для значения температуры от -20°С до +45°С. При использовании фонарик закрепляется на кисти руки с помощью шнурка с фиксатором. Переносится фонарик в кармане одежды или в сумочке. Дополнительные характеристики: Угол светового луча, 2q 0.5, град. 10 Источник света Светодиод (LED) Среднее время безотказной работы источника света 50000 час Источник питания Аккумулятор Номинальное напряжение 3.7 В Средний ресурс аккумуляторной батареи (число циклов заряд/разряд) 1000 Максимальное время подзарядки аккумулятора 4 час Длина 160 мм Ширина 45 мм Высота 45 мм Вес 0.15 кг Длина упаковки 175 мм Ширина упаковки 95 мм Высота упаковки 65 мм Объем упаковки, м³ 0.0011 Вес с упаковкой 0.27 кг Спектр излучения Белый Класс защиты от поражения человека электрическим током III Освещенность на расстоянии 1м "максимального" света, не менее 1500 люкс Освещенность на расстоянии 1м "оптимального" света, не менее 900 люкс Освещенность на расстоянии 1м "экономичного" света, не менее 60 люксПроизводитель: Экотон Тип: Карманные Тип лампы: Светодиодные Комплектность: Сетевое зарядное устройство Материал корпуса: Пластик Время непрерывной работы: 5, 12, 40 час Минимальная рабочая температура: -20 °С Максимальная рабочая температура: 45 °С Срок службы: 5 лет Диаметр рефлектора: 30 мм Степень защиты, IP: 54 Гарантийный срок эксплуатации, месяцев: 12 Дальность светового луча, метров: 50

3 740 руб.
Санкт-Петербург
Светодиодный подводный фонарь Экотон 8

Светодиодный подводный фонарь Экотон 8

Фонарь экотон 8 предназначен для использования в качестве индивидуального осветительного прибора в подразделениях ВМФ и спецподразделениях (милиция, таможня, спасатели), а также для любителей подводного плавания и охоты. Маркировка взрывозащиты по МЭК 60079-0-98 -1ExmsIIТ6. Особенности конструкции. Фонарь имеет герметичную не разборную оболочку, а корпус выполнен из ударопрочного материала. Источником света является светодиод. Источник питания - герметичная литий-ионная батарея. Включение фонаря осуществляется поворотным кольцом со встроенным магнитом и герконом. Светильник работает при температуре от -20°С до +40°С. Фонарь крепится на кисть руки с помощью регулируемого по длине ремешка. Подзарядка аккумуляторной батареи производится с помощью зарядного адаптера от сети 220 В, 50 Гц. Дополнительные характеристики: Средний ресурс аккумуляторной батареи (число циклов заряд/разряд) 1000 Максимальное время подзарядки аккумулятора 7 час Длина 216 мм Ширина 75 мм Высота 75 мм Вес 0.38 кг Длина упаковки 190 мм Ширина упаковки 100 мм Высота упаковки 165 мм Объем упаковки, м³ 0.0031 Вес с упаковкой 0.5 кг Осевая сила света светильника, кандел 14000Производитель: Экотон Тип лампы: Светодиодные Материал корпуса: Пластик Время непрерывной работы: 4 час Гарантийный срок эксплуатации, месяцев: 24 Угол светового луча, 2q 0.5, град.: 8 Глубина погружения, не менее, метров: 100 Источник света: Светодиод (LED) Среднее время безотказной работы источника света: 50000 час Источник питания: Аккумулятор Номинальное напряжение: 4 В Емкость аккумулятора, ампер/час: 4.5

6 710 руб.
Санкт-Петербург
Фара ручная взрывозащищенная светодиодная Экотон-5 ФР-ВС М

Фара ручная взрывозащищенная светодиодная Экотон-5 ФР-ВС М

Фара Экотон-5 предназначена для использования в качестве индивидуального переносного осветительного прибора в службах безопасности и спасения, в подразделениях МВД, МЧС, в строительном комплексе, в жилищно-коммунальном хозяйстве, в городских коллекторах, на нефтеперерабатывающих производствах, в газовом хозяйстве, на транспорте, на автозаправочных станциях, в службах автосервиса, во взрывоопасных зонах, где по условиям эксплуатации возможно образование взрывоопасных смесей газов и паров с воздухом. Фара имеет уровень взрывозащиты «повышенная надежность против взрыва». Маркировка взрывозащиты: 2ЕхemIIT5Х. Фара имеет герметичную неразборную брызгозащищенную конструкцию и состоит из световой головки, кассеты питания и оригинальной ручки для переноски. Источником света является сверхяркая светодиодная лампа белого света излучения. Источником питания служит литий-ионная аккумуляторная батарея, которая вместе с элементами защиты и электронной платой управления располагается непосредственно в крышке кассеты питания. Подзарядка аккумуляторной батареи осуществляется от специального индивидуального сетевого зарядного адаптера. Переносится фара с помощью регулируемого по длине шнурка на кисти руки или на поясном ремне. Дополнительные характеристики: Номинальное напряжение 3.7 В Средний ресурс аккумуляторной батареи (число циклов заряд/разряд) 1000 Максимальное время подзарядки аккумулятора 10 час Длина 125 мм Ширина 85 мм Высота 140 мм Вес 0.4 кг Длина упаковки 150 мм Ширина упаковки 165 мм Высота упаковки 95 мм Объем упаковки, м³ 0.0024 Вес с упаковкой 0.5 кгПроизводитель: Экотон Тип: Ручные Тип лампы: Светодиодные Материал корпуса: Металл, пластик Время непрерывной работы: 11 час Срок службы: 5 лет Степень защиты, IP: 54 Гарантийный срок эксплуатации, месяцев: 24 Угол светового луча, 2q 0.5, град.: 5 Маркировка взрывозащиты: 2ExemllT5X Источник света: Светодиод (LED) Среднее время безотказной работы источника света: 50000 час Источник питания: Аккумулятор

8 140 руб.
Санкт-Петербург
Взрывозащищенный фонарь фара Экотон 3 ФР ВС

Взрывозащищенный фонарь фара Экотон 3 ФР ВС

Фонарь ФР-ВС Экотон 3 является компактным переносным индивидуальным осветительным прибором, предназначенным для использования во взрывоопасных зонах помещений и наружных установок согласно ГОСТ Р 51330.13-99. Область применения фары ФР ВС - взрывоопасные зоны, где по условиям эксплуатации возможно образование взрывоопасных смесей газов и паров с воздухом, относящихся к категории взрывоопасности IIA, IIB, IIC и группам взрывоопасности Т1, Т2, Т3, Т4, Т5, Т6, а также в зонах классов B-II, B-IIa, где по условиям эксплуатации возможно образование взрывоопасных смесей пыли и волокон с воздухом. Тип ФР ВС Экотон 3 имеет взрывозащищенное исполнение с уровнем "особовзрывобезопасный" с видами взрывозащиты "взрывонепроницаемая оболочка" (d) по ГОСТ Р 51330.1-99 (МЭК 60079-1-98), "герметизация компаундом" (m) по ГОСТ Р 51330.17-99 (МЭК 60079-18-92). Маркировка взрывозащиты по ГОСТ Р 51330.0-99 (МЭК 60079-0-98) следующая: 0ЕxdmIICT6X. Фара имеет герметичную не разборную водонепроницаемую оболочку и выдерживает работу в тропических условиях. Климатическое исполнение и категория размещения фары Экотон 3 соответствует группам УХЛ1 и Т1 по ГОСТ 15150. Номинальное значение климатических факторов - по ГОСТ 15150 и ГОСТ 15543.1, за исключением нижнего значения рабочей температуры окружающего воздуха для исполнения УХЛ1, которое должно быть не ниже -20˚С. Дополнительные характеристики: Номинальное напряжение 3.7 В Емкость аккумулятора, ампер/час 6.6 Средний ресурс аккумуляторной батареи (число циклов заряд/разряд) 1000 Максимальное время подзарядки аккумулятора 10 час Длина 170 мм Ширина 120 мм Высота 210 мм Вес 1.4 кг Длина упаковки 330 мм Ширина упаковки 200 мм Высота упаковки 140 мм Объем упаковки, м³ 0.0092 Вес с упаковкой 1.5 кгПроизводитель: Экотон Материал корпуса: Металл Время непрерывной работы: 14 час Срок службы: 5 лет Степень защиты, IP: 67 Гарантийный срок эксплуатации, месяцев: 24 Угол светового луча, 2q 0.5, град.: 5 Маркировка взрывозащиты: 0ExsllCT6X Источник света: Светодиод (LED) Среднее время безотказной работы источника света: 50000 час Источник питания: Аккумулятор

10 890 руб.
Санкт-Петербург
Фонарь BALLISTA 2.5 XL-900

Фонарь BALLISTA 2.5 XL-900

Фонарь BALLISTA 2.5 XL-900 Описание: Мощный светодиод CREE XM-L2 Максимальный световой поток 900 люмен Два режима: 100%, 30% Литий-ионные аккумуляторы 18650 Твердоанодированный корпус из авиационного алюминия не подвержен коррозии Металлический зеркальный отражатель Дополнительные характеристики: Высота упаковки 80 мм Объем упаковки, м³ 0.0024 Вес с упаковкой 1 кгПроизводитель: Яркий Луч Материал корпуса: Анодированный алюмин Гарантийный срок эксплуатации, месяцев: 24 Источник света: Светодиод (LED) Источник питания: Аккумулятор, 2 х Li-ion 18650 (22 Длина: 250 мм Ширина: 57 мм Высота: 57 мм Вес: 0.8 кг Длина упаковки: 280 мм Ширина упаковки: 106 мм

4 490 руб.
Санкт-Петербург
Фонарь UV-5 DETECTOR ультрафиолетовый Яркий Луч

Фонарь UV-5 DETECTOR ультрафиолетовый Яркий Луч

Фонарь яркий луч светодиодный ультрафиолетовый модель uv-5 detector. Описание: 5 светодиодов Nichia (NSPU510CS) с длиной волны 375 нм необходим при проверке денежных купюр разного достоинства поможет выявить бытовые загрязнения полезен автомобилистам для обнаружения масляных пятен и протечки антифриза Работает от одной батарейки АА (R6) Максимальное время работы составит 25 часов.Производитель: Яркий Луч Материал корпуса: Металл Время непрерывной работы: 25 час Гарантийный срок эксплуатации, месяцев: 24 Источник света: Светодиод (LED) Источник питания: Аккумулятор Длина упаковки: 190 мм Ширина упаковки: 150 мм Высота упаковки: 80 мм Объем упаковки, м³: 0.0023 Вес с упаковкой: 1.5 кг

1 520 руб.
Санкт-Петербург
Фонарь налобный LH-270 Яркий Луч

Фонарь налобный LH-270 Яркий Луч

Аккумуляторный светодиодный фонарь Яркий Луч LH-270 Описание: Максимальный световой поток 270 люмен. Дальнобойность 60 м. Мощный светодиод CREE ® XP-G3 nw и фокусирующая линза обеспечивают мощный концентрированный световой луч. Нейтральный свет, близкий к солнечному. Фокусирующая TIR-оптика. Прочный, герметичный и влагозащищенный корпус, водозащищенность-ip65 допустимо погружение до 1 м., алюминиевое кольцо вокруг линзы. Алюминиевое кольцо вокруг линзы предотвращает повреждения, фонарь выдерживает падение с высоты 4 м. Два режима работы:25% и 100%. Максимальное время работы в режиме 25% — 6 часов. Элементы питания: 3хААА (в комплект не входят). 2 года гарантии. Дополнительные характеристики: Вес с упаковкой 0.3 кгПроизводитель: Яркий Луч Тип: Налобные Материал корпуса: Пластик Время непрерывной работы: 6 час Гарантийный срок эксплуатации, месяцев: 24 Источник света: Светодиод (LED) Источник питания: Батарейка Максимальное время подзарядки аккумулятора: 6 час Длина упаковки: 100 мм Ширина упаковки: 100 мм Высота упаковки: 10 мм Объем упаковки, м³: 0.0001

770 руб.
Санкт-Петербург
Фонарь налобный LH-180 COB Яркий Луч

Фонарь налобный LH-180 COB Яркий Луч

Налобный светодиодный фонарь LH-180 «Cob» Описание: Новый мощный светодиод «cob» обеспечит световым потоком в 180 люмен и «мягким» заливным нейтральным светом. Большая кнопка включения позволит переключать режимы фонаря даже в перчатках. Фонарь LH-180 COB Яркий Луч имеет два режима работы: 30% – 100%. Легкая замена элементов питания. Фонарь работает на 3 батарейках ААА (в комплект не входят). Время работы в режиме 100% – 4 часа. Крепкий корпус из ABS-пластика выдерживает падение с высоты 1 метр. Компактный размер, легкий вес, крепкий корпус – отличный налобный фонарь!Производитель: Яркий Луч Тип: Налобные Материал корпуса: Пластик Гарантийный срок эксплуатации, месяцев: 12 Источник света: Светодиод (LED) Источник питания: Батарейка Длина упаковки: 100 мм Ширина упаковки: 100 мм Высота упаковки: 10 мм Объем упаковки, м³: 0.0001 Вес с упаковкой: 0.3 кг

299 руб.
Санкт-Петербург
Фонарь налобный LH-180 ACCU Яркий Луч

Фонарь налобный LH-180 ACCU Яркий Луч

Светодиодный налобный фонарь LH-180 ACCU мощный светодиод cob 180 люмен; встроенный li-po аккумулятор 1200 мАч; 2 режима работы: 100% и 30%; прочный корпус из abs-пластика; большая кнопка включения. Описание: Мощный светодиод «cob» обеспечит световым потоком в 180 люмен и «мягким» заливным нейтральным светом. Встроенный Li-Po аккумулятор 1200 мАч. USB-кабель входит в комплект. Большая кнопка включения позволит переключать режимы фонаря даже в перчатках. Два режима работы: 30% – 100%. Крепкий корпус из ABS-пластика выдерживает падение с высоты 1 метр. Компактный размер, лёгкий вес, крепкий корпус – отличный налобный фонарь! ВНИМАНИЕ ! Избегайте глубокого разряда аккумулятора!Производитель: Яркий Луч Тип: Налобные Материал корпуса: Пластик Гарантийный срок эксплуатации, месяцев: 12 Источник света: Светодиод (LED) Источник питания: Аккумулятор Длина упаковки: 100 мм Ширина упаковки: 100 мм Высота упаковки: 10 мм Объем упаковки, м³: 0.0001 Вес с упаковкой: 0.3 кг

620 руб.
Санкт-Петербург
Фонарь налобный LH-170 Яркий Луч

Фонарь налобный LH-170 Яркий Луч

Налобный фонарь LH-140 «ENOT» Описание: Мощный светодиод osram luw 170 люмен 2 режима работы: 100% 50% Максимальное время работы в режиме 50% – 6 часов. Прочный, герметичный и влагозащищенный корпус (погружение на 1 метр) Алюминиевое кольцо вокруг линзыПроизводитель: Яркий Луч Тип: Налобные Материал корпуса: Пластик Время непрерывной работы: 6 час Гарантийный срок эксплуатации, месяцев: 12 Источник света: Светодиод (LED) Источник питания: Батарейка Длина упаковки: 100 мм Ширина упаковки: 100 мм Высота упаковки: 10 мм Объем упаковки, м³: 0.0001 Вес с упаковкой: 0.3 кг

630 руб.
Санкт-Петербург
Фонарик головной светодиодный Экотон-7

Фонарик головной светодиодный Экотон-7

Фонарик Экотон-7 предназначен для работы в качестве индивидуального осветительного прибора для диггеров, спелеологов, туристов, горноспасателей и в быту, то есть везде, где нужны свободные руки, минимальные габариты и удобство в эксплуатации. Имеет маркировку по защите от внешних воздействий пыле - брызгозащищенный (IP 54). Светильник состоит из усеченного параболического корпуса, блока питания и мягкого наголовного крепления. Корпус светильника изготовлен из ударопрочного материала. В корпусе установлены: миниатюрный светодиод с линзой и защитным светопропускающим стеклом из поликарбоната (макролона). Для отвода тепла служит алюминиевый радиатор. Светильник закреплен на эластичном ремешке с помощью специальной планки, установленной на радиаторе. На ремешке с помощью заклепок установлен блок питания. Источником питания служит литий-ионный аккумулятор. Включение фонаря осуществляется поворотным кольцом со встроенным магнитом и герконом. Для удобства использования эластичный ремешок имеет пряжку разъемную. Подзарядка аккумуляторной батареи производится с помощью зарядных адаптеров от сети 220 В, 50 Гц или от прикуривателя автомобиля 12 В. Комплект поставки: светильник, адаптер зарядный сетевой, паспорт, коробка упаковочная. По отдельному заказу: адаптер зарядный автомобильный 12 В. Дополнительные характеристики: Ширина упаковки 95 мм Высота упаковки 65 мм Объем упаковки, м³ 0.0011 Вес с упаковкой 0.3 кгПроизводитель: Экотон Тип лампы: Светодиодные Материал корпуса: Металл, пластик Время непрерывной работы: 5 час Степень защиты, IP: 54 Гарантийный срок эксплуатации, месяцев: 12 Угол светового луча, 2q 0.5, град.: 10 Источник света: Светодиод (LED) Среднее время безотказной работы источника света: 50000 час Источник питания: Аккумулятор Вес: 0.2 кг Длина упаковки: 175 мм

4 800 руб.
Санкт-Петербург
Фонарик досмотровой светодиодный Экотон 11 ФД-1

Фонарик досмотровой светодиодный Экотон 11 ФД-1

Фонарик Экотон-11 ФД-1 предназначен для использования в качестве носимого индивидуального беспроводного осветительного прибора при досмотре документов и грузов в службах пограничного и таможенного контроля, а также везде, где для работы нужны свободные руки. Особенности конструкции. Корпус фонарика выполнен в виде небольшой коробочки из ударопрочного пластика. Внутри корпуса фонарика размещены: литий-ионный аккумулятор, электронная плата управления и мощная светодиодная лампа белого света. На лицевой стороне фонарика имеется окуляр для светодиодной лампы, гнездо для подзарядки аккумулятора, закрытое металлической резьбовой заглушкой. Включение и выключение фонарика производится клавишей, расположенной на боковой стенке фонарика. Фонарик крепится на кармане или на лацкане пиджака с помощью клипсы. Фонарик работает при температуре воздуха от -20°С до +45°С и относительной влажности воздуха 98% (при +25°С). Дополнительные характеристики: Высота 60 мм Вес 0.15 кг Длина упаковки 170 мм Ширина упаковки 95 мм Высота упаковки 70 мм Объем упаковки, м³ 0.0011 Вес с упаковкой 0.2 кгПроизводитель: Экотон Тип лампы: Светодиодные Материал корпуса: Пластик Время непрерывной работы: 5.5 час Степень защиты, IP: 54 Гарантийный срок эксплуатации, месяцев: 24 Угол светового луча, 2q 0.5, град.: 75 Источник света: Светодиод (LED) Среднее время безотказной работы источника света: 50000 час Источник питания: Аккумулятор Длина: 75 мм Ширина: 35 мм

4 180 руб.
Санкт-Петербург
Фонарь налобный LH-15A Яркий луч

Фонарь налобный LH-15A Яркий луч

Фонарь Яркий луч LH-15A Аккумуляторный налобный фонарь ЯРКИЙ ЛУЧ LH-15A, незаменимый помощник в дороге или на отдыхе. Благодаря креплению из резины на голову позволяет освободить руки для работы. Светит в двух режимах: 5 светодиодов (8 часов); 15 светодиодов (2.5 часа). Корпус изготовлен из АБС- пластика.Производитель: Яркий Луч Тип: Налобные Материал корпуса: Пластик Время непрерывной работы: 8 час Гарантийный срок эксплуатации, месяцев: 24 Источник света: Светодиод (LED) Источник питания: Аккумулятор Длина упаковки: 110 мм Ширина упаковки: 80 мм Высота упаковки: 90 мм Объем упаковки, м³: 0.0008 Вес с упаковкой: 0.27 кг

499 руб.
Санкт-Петербург
Фонарь налобный LH-100A Компакт 3W Яркий Луч

Фонарь налобный LH-100A Компакт 3W Яркий Луч

Фонарь Яркий Луч LH-100A "Компакт" налобный 3W LED Описание: Два режима работы: 100%, время работы 3 часа 45%, время работы 7 часов В данном фонаре в качестве источника света используется светодиод мощностью 3 Вт. Сбалансированная оптическая система формирует узкий луч для освещения дальних объектов и дает достаточно мощную боковую засветку. Корпус выполнен из ABS-пластика и имеет резиновое покрытие. Встроенный литий-ионный (Li-Ion) аккумулятор 3.6 В 1500 мАч, сетевое зарядное устройство. Время зарядки аккумулятора 3 ч. Для включения фонаря нажмите на резиновую кнопку, расположенную на корпусе. При этом фонарь включится врежиме 45%. Следующее нажатие переведет фонарь в режим 100%. Следующее нажатие выключает фонарь. Соедините адаптер для напряжения 220 В (входит в комплект) с сетью и с гнездом фонаря. Светодиод на зарядном устройстве загорится красным цветом, показывая, что идет процесс зарядки. При полностью заряженных аккумуляторах цвет поменяется на зеленый. Не включайте фонарь во время зарядки аккумуляторов, это может привести к выходу из строя зарядного устройства или фонаря!Производитель: Яркий Луч Тип: Налобные Световой поток: 70 Люмен Материал корпуса: Пластик Гарантийный срок эксплуатации, месяцев: 24 Источник света: Светодиод (LED) Источник питания: Аккумулятор Длина упаковки: 100 мм Ширина упаковки: 100 мм Высота упаковки: 10 мм Объем упаковки, м³: 0.0001 Вес с упаковкой: 0.3 кг

650 руб.
Санкт-Петербург
Фонарик аккумуляторный светодиодный Экотон-19 наголовный

Фонарик аккумуляторный светодиодный Экотон-19 наголовный

Экотон-19 налобный аккумуляторный светодиодный фонарь предназначен для индивидуального применения во всех случаях, когда для работы необходимо иметь свободные руки. Область применения фонарика: промышленное, дорожное и гражданское строительство; железнодорожный, автомобильный, водный и воздушный транспорт; жилищно-коммунальное хозяйство, хобби (автолюбители, спелеологи, туристы и т.д.). Особенности конструкции. Фонарик состоит из наголовного светильника и носимого на поясе аккумулятора, соединенных между собой двухпроводным шнуром питания. Корпус светильника выполнен в виде усеченного конуса со сферической поверхностью и изготовлен из ударопрочного пластика. В нем размещены светодиодная лампа XLampТМ с оптикой и электронный модуль управления. Для защиты источника света от внешних воздействий в корпус вставлено оптически прозрачное стекло с уплотнительной прокладкой. Наголовный светильник надевается на головной убор или непосредственно на голову с помощью регулируемых по длине ремней.Аккумулятор размещается в подсумке из водоотталкивающей ткани и переносится на поясном ремне. В подсумке установлены предохранитель и разъем для подключения головного светильника и зарядного адаптера. Подзарядка осуществляется сетевым зарядным адаптером. На задней крышке корпуса светильника установлена кнопка включения (без фиксации), с помощью которой осуществляется выбор режима свечения фонарика. Через отверстие в крышке выводится шнур питания с разъемом на конце. Для переноски светильника с аккумуляторной батареей предусмотрена сумочка. Сумочку можно носить на плече с помощью ремешка, а также на поясном ремне, пристегнув плечевой ремешок карабином к сумке для фиксации ее на поясе. Электронный модуль управления обеспечивает работу фонарика в режиме "рабочего" света, режиме "дальнего" света, предупредительную сигнализацию об исчерпании емкости аккумулятора, защиту аккумулятора от глубокого разряда.Производитель: Экотон Тип лампы: Светодиодные Материал корпуса: Металл Время непрерывной работы: 10-14 час Источник света: Светодиод (LED) Источник питания: Аккумулятор Длина упаковки: 190 мм Ширина упаковки: 100 мм Высота упаковки: 165 мм Объем упаковки, м³: 0.0031

4 700 руб.
Санкт-Петербург
Фонарик аккумуляторный светодиодный ЭКОТОН-18 (Комплектность: С каской)

Фонарик аккумуляторный светодиодный ЭКОТОН-18 (Комплектность: С каской)

Фонарик аккумуляторный светодиодный - Экотон 18 предназначен для: Индивидуального применения при освещении участков работ в темное время суток или в замкнутых локальных пространствах (тоннели, пещеры и т.д.); Фонарик применяться в профессиональной сфере или в быту во всех случаях, когда необходимо иметь для работы свободные руки; Область применения фонарика - промышленные и строительные организации, железнодорожный, автомобильный, водный и воздушный транспорт, жилищно-коммунальное хозяйство, хобби (спелеологи, туристы и т.д.). Особенности конструкции. Фонарик изготавливается в исполнении для значения температуры от -30˚С до +45˚С и повышенной влажности 98% при температуре 25˚С. Фонарик Экотон-18 состоит из головного светильника, установленного на касочном креплении в специальной скобе с углом поворота относительно горизонтальной оси 90˚, и аккумулятора в подсумке, носимого на поясном ремне. Корпус головного светильника изготавливается в виде усеченного конуса со сферической поверхностью, изготовлен из ударопрочной пластмассы. В нем размещены светодиодная лампа XLampТМ с оптикой и плата управления. Плата обеспечивает работу фонарика в режиме "рабочего" света и режиме "дальнего" света, предупредительную сигнализацию, защиту аккумулятора от глубокого разряда. Для защиты источника света от внешних воздействий в корпус вставлено оптически прозрачное стекло с уплотнительной прокладкой. На задней крышке, являющейся одновременно радиатором, установлена кнопка включения (без фиксации), с помощью которой осуществляется включение-выключение, выбор режима свечения фонарика. Через отверстие в крышке выводится шнур питания с разъемом на конце. Аккумулятор размещается в подсумке из водоотталкивающей ткани. В нижней части подсумка расположена кассета, в которой установлены предохранитель и разъем для подключения головного светильника и зарядного адаптера. Подзарядка осуществляется специальным адаптером ЗАСА-14. Электронный модуль управления обеспечивает работу фонарика в режиме "рабочего" света, режиме "дальнего" света, предупредительную сигнализацию об исчерпании емкости аккумулятора, защиту аккумулятора от глубокого разряда. Дополнительные характеристики: Ширина упаковки 100 мм Высота упаковки 165 мм Объем упаковки, м³ 0.0031 Вес с упаковкой 0.63 кгПроизводитель: Экотон Тип лампы: Светодиодные Комплектность: С каской Материал корпуса: Металл Время непрерывной работы: 12-16 час Источник света: Светодиод (LED) Среднее время безотказной работы источника света: 50000 час Источник питания: Аккумулятор Средний ресурс аккумуляторной батареи (число циклов заряд/разряд): 600 Максимальное время подзарядки аккумулятора: 3 час Вес: 0.63 кг Длина упаковки: 190 мм

5 170 руб.
Санкт-Петербург
Фонарик аккумуляторный светодиодный ЭКОТОН-18 (Комплектность: Без каски)

Фонарик аккумуляторный светодиодный ЭКОТОН-18 (Комплектность: Без каски)

Фонарик аккумуляторный светодиодный - Экотон 18 предназначен для: Индивидуального применения при освещении участков работ в темное время суток или в замкнутых локальных пространствах (тоннели, пещеры и т.д.); Фонарик применяться в профессиональной сфере или в быту во всех случаях, когда необходимо иметь для работы свободные руки; Область применения фонарика - промышленные и строительные организации, железнодорожный, автомобильный, водный и воздушный транспорт, жилищно-коммунальное хозяйство, хобби (спелеологи, туристы и т.д.). Особенности конструкции. Фонарик изготавливается в исполнении для значения температуры от -30˚С до +45˚С и повышенной влажности 98% при температуре 25˚С. Фонарик Экотон-18 состоит из головного светильника, установленного на касочном креплении в специальной скобе с углом поворота относительно горизонтальной оси 90˚, и аккумулятора в подсумке, носимого на поясном ремне. Корпус головного светильника изготавливается в виде усеченного конуса со сферической поверхностью, изготовлен из ударопрочной пластмассы. В нем размещены светодиодная лампа XLampТМ с оптикой и плата управления. Плата обеспечивает работу фонарика в режиме "рабочего" света и режиме "дальнего" света, предупредительную сигнализацию, защиту аккумулятора от глубокого разряда. Для защиты источника света от внешних воздействий в корпус вставлено оптически прозрачное стекло с уплотнительной прокладкой. На задней крышке, являющейся одновременно радиатором, установлена кнопка включения (без фиксации), с помощью которой осуществляется включение-выключение, выбор режима свечения фонарика. Через отверстие в крышке выводится шнур питания с разъемом на конце. Аккумулятор размещается в подсумке из водоотталкивающей ткани. В нижней части подсумка расположена кассета, в которой установлены предохранитель и разъем для подключения головного светильника и зарядного адаптера. Подзарядка осуществляется специальным адаптером ЗАСА-14. Электронный модуль управления обеспечивает работу фонарика в режиме "рабочего" света, режиме "дальнего" света, предупредительную сигнализацию об исчерпании емкости аккумулятора, защиту аккумулятора от глубокого разряда. Дополнительные характеристики: Ширина упаковки 100 мм Высота упаковки 165 мм Объем упаковки, м³ 0.0031 Вес с упаковкой 0.63 кгПроизводитель: Экотон Тип лампы: Светодиодные Комплектность: Без каски Материал корпуса: Металл Время непрерывной работы: 12-16 час Источник света: Светодиод (LED) Среднее время безотказной работы источника света: 50000 час Источник питания: Аккумулятор Средний ресурс аккумуляторной батареи (число циклов заряд/разряд): 600 Максимальное время подзарядки аккумулятора: 3 час Вес: 0.63 кг Длина упаковки: 190 мм

4 180 руб.
Санкт-Петербург
Профессиональный переносной светодиодный фонарь фара ЭКОТОН-2 (без з/у)

Профессиональный переносной светодиодный фонарь фара ЭКОТОН-2 (без з/у)

Профессиональный переносной светодиодный фонарь-фара Экоон-2 (МОДЕРНИЗИРОВАННЫЙ)является светотехническим устройством, в котором вместо традиционных ламп накаливания применены светоизлучающие диоды белого света излучения. Фонарь предназначен для длительной непрерывной работы при низких температурах окружающего воздуха (до -45°С). Отличительными особенностями фонаря является низкое потребление электроэнергии, исключительно высокое время безотказной работы светильника (не менее 50000 часов) и широкий спектр излучения (почти 90% солнечного спектра). Особенности конструкции. Фонарь-фара состоит из ручной поворотной фары и носимого аккумуляторного блока питания. В прочном пластмассовом корпусе блока питания установлено два параллельно включенных герметизированных кислотно-гелиевых аккумулятора. Сверху блока питания закреплена ручка-скоба. Ручная фара соединяется с блоком питания спиральным шнуром длиной в растянутом состоянии 2,5 метра. Кнопка включения фонаря (без фиксации) установлена на корпусе ручки фары и закрыта резиновым колпачком для защиты от попадания вовнутрь воды. С помощью кнопки включения (без фиксации) выполняются четыре функции: включение; регулировка силы света; переход в сигнальный (мигающий) режим; выключение. В фонаре предусмотрена электронная защита аккумуляторного блока от короткого замыкания и переполюсовки, а также защита от глубокого разряда. Подзарядка аккумуляторного блока производится от сетевого зарядного адаптера. Фонарь выдерживает падение с высоты 2 метров, защищен от ультрафиолетового излучения и проникновения вовнутрь воды. Переносится фонарь-фара на плечевом ремне. Дополнительные характеристики: Средний ресурс аккумуляторной батареи (число циклов заряд/разряд) 600 Максимальное время подзарядки аккумулятора 10 час Вес 2.5 кг Длина упаковки 330 мм Ширина упаковки 140 мм Высота упаковки 200 мм Объем упаковки, м³ 0.0092Производитель: Экотон Тип лампы: Светодиодные Материал корпуса: Пластик Время непрерывной работы: 10-36 час Срок службы: 5 лет Дальность светового луча, метров: 50 Угол светового луча, 2q 0.5, град.: 8 Источник света: Светодиод (LED) Среднее время безотказной работы источника света: 50000 час Источник питания: Аккумулятор Номинальное напряжение: 6 В Емкость аккумулятора, ампер/час: 9

5 100 руб.
Санкт-Петербург
Профессиональный переносной светодиодный фонарь ЭКОТОН-1 (без з/у)

Профессиональный переносной светодиодный фонарь ЭКОТОН-1 (без з/у)

Фонарь аккумуляторный светодиодный профессиональный Экотон-1 является светотехническим устройством, в котором вместо традиционных ламп накаливания применены светоизлучающие диоды белого света излучения. Экотон 1 предназначен для работы на суше и на море при температуре окружающего воздуха от -40°С до +45°С и относительной влажности до 98% (при +25°С). Отличительными особенностями фонаря Экотона-1 является низкое потребление электроэнергии, исключительно высокое время безотказной работы светильника (не менее 50 тыс. часов) и широкий спектр излучения (почти 90% солнечного спектра). Источником питания фонаря служит герметизированный кислотно-гелиевый аккумулятор. Конструктивно фонарь состоит из поворотной фары и цилиндрического корпуса, которые соединены между собой. Фара поворачивается на 120° относительно горизонтальной оси корпуса. Сверху цилиндрического корпуса фонаря расположена ручка-скоба, на которой установлена кнопка включения (без фиксации), закрытая резиновым колпачком. С помощью кнопки включения (без фиксации) выполняются четыре функции: включение; регулировка силы света; переход в сигнальный (мигающий) режим; выключение. В фонаре предусмотрена электронная защита аккумулятора от короткого замыкания и переполюсовки, а также защита от глубокого разряда. Подзарядка аккумулятора производится от сетевого зарядного адаптера. Корпус и фара выполнены из прочного пластика и выдерживают удары при падении с высоты 2 метров. Экотон-1 защищен от ультрафиолетового излучения и проникновения вовнутрь воды. Для переноски фонаря в комплекте имеется наплечный ремень. Дополнительные характеристики: Максимальное время подзарядки аккумулятора 12 час Вес 1.65 кг Длина упаковки 330 мм Ширина упаковки 140 мм Высота упаковки 200 мм Объем упаковки, м³ 0.0092Производитель: Экотон Тип лампы: Светодиодные Материал корпуса: Пластик Время непрерывной работы: 11-70 час Срок службы: 5 лет Угол светового луча, 2q 0.5, град.: 8 Источник света: Светодиод (LED) Среднее время безотказной работы источника света: 50000 час Источник питания: Аккумулятор Номинальное напряжение: 6 В Емкость аккумулятора, ампер/час: 4.5 Средний ресурс аккумуляторной батареи (число циклов заряд/разряд): 600

4 620 руб.
Санкт-Петербург
Фонарь поисково спасательный ФПС-4/6 (без з/у)

Фонарь поисково спасательный ФПС-4/6 (без з/у)

Фонарь светодиодный поисково-спасательный ФПС-4/6 предназначен для работы на суше и на море при температуре окружающего воздуха от -40˚С до +45˚С Фонарь используется: при проведении поисково-спасательных работ противопожарными службами МЧС и горноспасателями; на открытых выработках и горно-обогатительных комбинатах; таможенными службами для внутреннего пользования и досмотра грузов на ж/д, водном, воздушном транспорте; службами пограничного контроля при проверке документов и досмотра грузов; службами охраны торговых, промышленных и административных зданий. ФПС 4/6 состоит из оригинального корпуса с ручкой, на который накручивается рельефное кольцо с установленным в нём светодиодным модулем. Источником света является светодиодная лампа тепло-белого света излучения. Для формирования луча используется отражатель алюминиевый полированный. В корпусе фонаря установлен герметичный не обслуживаемый кислотно-гелиевый аккумулятор. Кнопка выключателя установлена на корпусе фонаря и закрыта колпачком из пластиката для защиты от попадания воды. Внутри корпуса фонаря установлена электронная плата управления. Для подзарядки аккумулятора служит автоматическое зарядное устройство. Для переноски фонаря служит наплечный ремень регулируемой длины. Фонарь изготовлен из прочного пластика и выдерживает падение на твердую поверхность с высоты двух метров. Фонарь защищен от прямого попадания воды, а стекло фары не критично к ультрафиолетовому излучению. Дополнительные характеристики: Средний ресурс аккумуляторной батареи (число циклов заряд/разряд) 600 Максимальное время подзарядки аккумулятора 12 час Вес 1.2 кг Длина упаковки 235 мм Ширина упаковки 135 мм Высота упаковки 140 мм Объем упаковки, м³ 0.0044Производитель: Экотон Тип: Поисковые Материал корпуса: Пластик Время непрерывной работы: 9-90 час Степень защиты, IP: 64 Гарантийный срок эксплуатации, месяцев: 18 Угол светового луча, 2q 0.5, град.: 8 Источник света: Светодиод (LED) Среднее время безотказной работы источника света: 50000 час Источник питания: Аккумулятор Номинальное напряжение: 6 В Емкость аккумулятора, ампер/час: 4.5

3 850 руб.
Санкт-Петербург
Фонарь поисково спасательный светодиодный ФПС-4/6 ПМС (без з/у)

Фонарь поисково спасательный светодиодный ФПС-4/6 ПМС (без з/у)

Фонарь аккумуляторный светодиодный ФПС-4/6 ПМС предназначен для работы на суше и на море при температуре окружающего воздуха от -40°С до +45°С. ФПС-4/6 ПМС состоит из оригинального корпуса с ручкой, на который накручивается рельефное кольцо с установленным в нём светодиодным модулем. В корпусе фонаря установлен герметичный не обслуживаемый кислотно-гелиевый аккумулятор. Кнопка выключателя установлена на корпусе фонаря и закрыта колпачком из пластиката для защиты от попадания воды. Внутри корпуса фонаря установлена электронная плата управления, которая обеспечивает: автоматический контроль разряда аккумулятора, выдачу предупредительной сигнализации мигающим светом при разряде аккумулятора до порога допустимого уровня, защитное отключение фонаря при разряде аккумулятора до минимально допустимого напряжения, защиту аккумулятора от переполюсовки, изменение силы света и потребления тока от аккумулятора, сигнальный (мигающий) свет. Для подзарядки аккумулятора служит автоматическое зарядное устройство. Для переноски фонаря служит наплечный ремень регулируемой длины. Фонарь изготовлен из прочного пластика и выдерживает падение на твердую поверхность с высоты двух метров. Фонарь защищен от прямого попадания воды, а стекло фары не критично к ультрафиолетовому излучению. Дополнительные характеристики: Средний ресурс аккумуляторной батареи (число циклов заряд/разряд) 600 Максимальное время подзарядки аккумулятора 8 час Вес 1.2 кг Длина упаковки 235 мм Ширина упаковки 135 мм Высота упаковки 140 мм Объем упаковки, м³ 0.0044Производитель: Экотон Тип: Поисковые Тип лампы: Светодиодные Материал корпуса: Пластик Время непрерывной работы: 9-90 час Гарантийный срок эксплуатации, месяцев: 24 Дальность светового луча, метров: 50 Угол светового луча, 2q 0.5, град.: 8 Источник света: Светодиод (LED) Среднее время безотказной работы источника света: 50000 час Источник питания: Аккумулятор Номинальное напряжение: 6 В Емкость аккумулятора, ампер/час: 4.5

3 520 руб.
Санкт-Петербург
Фонарь для активного отдыха ЭКОТОН-8-01

Фонарь для активного отдыха ЭКОТОН-8-01

Фонарь для активного отдыха ЭКОТОН-8-01 предназначен для работы в качестве индивидуального осветительного прибора. Фонарь Экотон 8-01 является модификацией фонаря "Экотон 8П" и отличается от него емкостью АКБ и освещенностью. Область применения фонаря: для охотников, рыболовов, туристов, спелеологов и т.п. Выдерживает потоки воды и полное затопление на глубину до 5 м. Фонарь имеет герметичную неразборную оболочку, выполненную из ударопрочного материала. Источником света является светодиодная лампа тепло-белого света излучения. Для формирования луча используется отражатель алюминиевый, полированный, металлизированный алюминием в вакууме. Источник питания - герметичная литий-ионная батарея АКБ. Включение фонаря осуществляется поворотным кольцом со встроенным магнитом и герконом. Фонарь может крепиться на кисть руки с помощью регулируемого по длине шнурка. Подзарядка аккумуляторной батареи производится с помощью зарядных адаптеров от сети 220 Вольт. Дополнительные характеристики: Максимальное время подзарядки аккумулятора 7 час Вес 0.36 кг Длина упаковки 190 мм Ширина упаковки 100 мм Высота упаковки 165 мм Объем упаковки, м³ 0.0031Производитель: Экотон Материал корпуса: Пластик Время непрерывной работы: 10 час Гарантийный срок эксплуатации, месяцев: 24 Угол светового луча, 2q 0.5, град.: 8 Источник света: Светодиод (LED) Среднее время безотказной работы источника света: 50000 час Источник питания: Аккумулятор Номинальное напряжение: 3.7 В Емкость аккумулятора, ампер/час: 4.5 Средний ресурс аккумуляторной батареи (число циклов заряд/разряд): 1000

5 100 руб.
Санкт-Петербург
Фонарь фара ФР-6 (без з/у)

Фонарь фара ФР-6 (без з/у)

Фонарь-фара ФР-6 предназначена для работы на суше и на море при температуре окружающего воздуха от -30°С до +45°С и относительной влажности воздуха до 98% (при +25°С). Отличительной особенностью фары ФР-6 от ранее выпускаемых фонарей является использование новой платы с микропроцессорным управлением, что позволяет применить более надежную кнопку без фиксации, исключить механический потенциометр, выполнить автоматический контроль разряда аккумуляторного блока и защиту от короткого замыкания и переполюсовки. С помощью кнопки включения (без фиксации) выполняются четыре функции: включение; регулировка силы света; переход в сигнальный (мигающий) режим; выключение. Особенности конструкции. Конструктивно фонарь состоит из подвижной фары с анатомической ручкой и носимого блока питания. В прочном пластмассовом корпусе блока питания установлены два параллельно соединенных герметизированных кислотно-свинцовых аккумулятора. Сверху блока питания закреплена ручка-скоба. Фара соединяется с блоком спиральным шнуром питания длиной в растянутом состоянии 2,5 м. Кнопка включения фонаря находится на корпусе ручки фары и закрыта резиновым колпачком. Подзарядка аккумуляторного блока производится от сетевого зарядного адаптера. Фонарь выдерживает падение с высоты 2 метров, защищен от ультрафиолетового излучения и проникновения вовнутрь воды. Переносится фонарь-фара на плечевом ремне. Дополнительные характеристики: Средний ресурс аккумуляторной батареи (число циклов заряд/разряд) 600 Максимальное время подзарядки аккумулятора 24 час Вес 2.25 кг Длина упаковки 330 мм Ширина упаковки 140 мм Высота упаковки 200 мм Объем упаковки, м³ 0.0092 Вес с упаковкой 2.81 кгПроизводитель: Экотон Материал корпуса: Пластик Время непрерывной работы: 8-18 час Диаметр рефлектора: 110 мм Гарантийный срок эксплуатации, месяцев: 18 Угол светового луча, 2q 0.5, град.: 5 Источник света: Галогеновая лампа Среднее время безотказной работы источника света: 100 час Источник питания: Аккумулятор Номинальное напряжение: 6 В Емкость аккумулятора, ампер/час: 9

5 060 руб.
Санкт-Петербург
Фонарь аккумуляторный переносной ФОС3-861 (без з/у)

Фонарь аккумуляторный переносной ФОС3-861 (без з/у)

ФОНАРЬ ФОС3-861 предназначен для работы на суше и на море при температуре окружающего воздуха от -40°С до +45°С и относительной атмосферной влажности воздуха до 98% (при -25°С). Фонарь применяется в пожарной охране, на железнодорожном транспорте и метрополитенах, при осмотре грузов на пограничных и таможенных контрольно-пропускных пунктах, при проведении поисковых и аварийно-спасательных мероприятий в районах боевых действий или катастроф, при решении оперативных задач служб безопасности, в службах городского хозяйства, а также хобби - у рыбаков, охотников, туристов, спелеологов и т.д. Фонарь состоит из подвижной фары с галогенной лампой и носимого блока питания. В прочном пластмассовом корпусе блока питания установлено два параллельно соединенных герметизированных кислотно-гелевых аккумулятора. Поворотная фара крепится непосредственно к блоку питания с помощью горизонтальной неподвижной скобы. Сверху блока питания закреплена ручка-скоба. Кнопка включения фонаря (без фиксации) находится на корпусе блока питания и закрыта резиновым колпачком. В фонаре предусмотрена регулировка силы света. Аккумуляторная батарея имеет электронную защиту от глубокого разряда, защиту от короткого замыкания и переполюсовки. Подзарядка аккумуляторной батареи производится от сетевого зарядного адаптера. Фонарь выдерживает падение с высоты 2 метров, защищен от ультрафиолетового излучения и проникновения вовнутрь воды. Переносится фонарь на плечевом ремне.Производитель: Экотон Материал корпуса: Пластик Источник света: Галогеновая лампа Источник питания: Аккумулятор Номинальное напряжение: 6 В Емкость аккумулятора, ампер/час: 9 Средний ресурс аккумуляторной батареи (число циклов заряд/разряд): 600 Длина упаковки: 330 мм Ширина упаковки: 140 мм Высота упаковки: 200 мм Объем упаковки, м³: 0.0092

5 500 руб.
Санкт-Петербург
Фонарь аккумуляторный профессиональный ФОС3-5/6 (без з/у)

Фонарь аккумуляторный профессиональный ФОС3-5/6 (без з/у)

ПРОФЕССИОНАЛЬНЫЙ ПЕРЕНОСНОЙ ГАЛОГЕННЫЙ ФОНАРЬ ФОС3-5/6 предназначен для работы на суше и на море при температуре окружающего воздуха от -40°С до +45°С и относительной влажности до 98% (при +25°С). Отличительной особенностью фонаря ФОС3-5/6 от ранее выпускаемых фонарей является использование новой платы с микропроцессорным управлением, что позволяет применить более надежную кнопку без фиксации, исключить механический потенциометр, реализовать плавное включение лампы, выполнить защиту аккумуляторной батареи от короткого замыкания и переполюсовки. С помощью кнопки включения (без фиксации) выполняются четыре функции: включение; регулировка силы света; переход в сигнальный (мигающий) режим; выключение. Плавное включение фонаря увеличивает срок службы лампы в 8 раз, а кнопка без фиксации гарантирует до 100000 срабатываний, вместо 2000 кнопки с фиксацией. Включение, выключение, переход в сигнальный режим, регулировка силы света (яркости) производится посредством кнопки включения в следующем порядке: одинарное нажатие на кнопку - включение или выключение фонаря; продолжительное нажатие на кнопку (2-3 секунды) включает сигнальный режим; переход в сигнальный (мигающий) режим; продолжительное нажатие на кнопку и удержание ее при включенном фонаре - переход в режим экономичного свечения (ступенчато изменяется сила света). ФОС3-5/6 состоит из поворотной фары, соединенной с цилиндрическим корпусом. Фара поворачивается относительно горизонтальной оси на угол 120 градусов. Внутри цилиндрического корпуса встроена микропроцессорная электронная плата, которая в случае разряда аккумуляторной батареи включает предупредительную сигнализацию 10-ти кратным миганием лампы с минутным интервалом и последующим защитным отключением фонаря. Корпус и фара фонаря выполнены из прочного пластика и выдерживают удары при падении с высоты 2 метра. Дополнительные характеристики: Номинальное напряжение 6 В Емкость аккумулятора, ампер/час 4.5 Средний ресурс аккумуляторной батареи (число циклов заряд/разряд) 600 Максимальное время подзарядки аккумулятора 12 час Длина 320 мм Ширина 126 мм Высота 175 мм Вес 1.6 кг Длина упаковки 330 мм Ширина упаковки 140 мм Высота упаковки 200 мм Объем упаковки, м³ 0.0092Производитель: Экотон Материал корпуса: Пластик Время непрерывной работы: 4, 7, 9 час Срок службы: 5 лет Диаметр рефлектора: 110 мм Степень защиты, IP: 54 Гарантийный срок эксплуатации, месяцев: 12 Угол светового луча, 2q 0.5, град.: 4 Источник света: Галогеновая лампа Среднее время безотказной работы источника света: 80 час Источник питания: Аккумулятор

4 100 руб.
Санкт-Петербург
Аккумуляторный фонарь поисково спасательный ФПС-4/6 ПМ (без з/у)

Аккумуляторный фонарь поисково спасательный ФПС-4/6 ПМ (без з/у)

ФОНАРЬ ПОИСКОВО-СПАСАТЕЛЬНЫЙ ФПС 4/6 ПМ (модернизированный) с галогенной лампой накаливания и необслуживаемым аккумулятором предназначен для работы на суше и на море, в том числе в условиях морского тумана, при температуре окружающего воздуха от -40°С до +45°С. Особенности конструкции. ФПС-4/6 ПМ состоит из оригинального корпуса с ручкой, на который накручивается рельефное кольцо с установленным в нем параболическим рефлектором. На горловине рефлектора установлена колодка с внутренней резьбой, в которую вкручивается металлическая втулка. Она служит для регулировки фокуса лампы и также имеет внутреннюю резьбу, в которую в свою очередь вкручивается патрон с лампой. В корпусе фонаря установлен герметичный кислотно-гелевый аккумулятор. Кнопка выключателя установлена на корпусе фонаря и закрыта колпачком из пластиката для защиты от попадания воды. Внутри корпуса фонаря установлена электронная плата управления, которая обеспечивает: автоматический контроль разряда аккумулятора; выдачу предупредительной сигнализации мигающим светом при разряде аккумулятора до порога допустимого уровня; защитное отключение фонаря при разряде аккумулятора до минимально допустимого напряжения; изменение силы света и потребления тока от аккумулятора. Для подзарядки аккумулятора служит автоматическое зарядное устройство. Для переноски фонаря ФПС 4/6 ПМ служит наплечный ремень регулируемой длины. Аккумуляторный фонарь изготовлен из прочного пластика и выдерживает падение на твердую поверхность с высоты двух метров. Фонарь защищен от прямого попадания воды, а стекло фары некритично к ультрафиолетовому излучению. Дополнительные характеристики: Емкость аккумулятора, ампер/час 4.5 Средний ресурс аккумуляторной батареи (число циклов заряд/разряд) 600 Максимальное время подзарядки аккумулятора 8 час Вес 1.3 кг Длина упаковки 235 мм Ширина упаковки 135 мм Высота упаковки 140 мм Объем упаковки, м³ 0.0044Производитель: Экотон Тип: Поисковые Материал корпуса: Пластик Время непрерывной работы: 5-12 час Степень защиты, IP: 54 Гарантийный срок эксплуатации, месяцев: 12 Дальность светового луча, метров: 300 Угол светового луча, 2q 0.5, град.: 4 Источник света: Галогеновая лампа Среднее время безотказной работы источника света: 100 час Источник питания: Аккумулятор Номинальное напряжение: 6 В

3 520 руб.
Санкт-Петербург
Фонарь подводный CALYPSO LD-130 Яркий Луч

Фонарь подводный CALYPSO LD-130 Яркий Луч

Светодиодный подводный фонарь Яркий Луч CALYPSO LD-130 Описание: Установленный светодиод: CREE XP-E 130 люмен. Влагозащита IP68. Возможность погружения на глубину до 10 метров. Элементы питания 4хАА (R6), к комплект не входят. Корпус выполнен из ABS-пластика Дополнительные характеристики: Высота упаковки 10 мм Объем упаковки, м³ 0.0002 Вес с упаковкой 1.5 кгПроизводитель: Яркий Луч Материал корпуса: Пластик Срок службы: 5 лет Гарантийный срок эксплуатации, месяцев: 24 Глубина погружения, не менее, метров: 10 Источник света: Светодиод (LED) Среднее время безотказной работы источника света: 50000 час Источник питания: Батарейка Максимальное время подзарядки аккумулятора: 13 час Длина упаковки: 150 мм Ширина упаковки: 150 мм

810 руб.
Санкт-Петербург
Фонарь X1 Limited Edition Яркий луч (Тип: Фонарь-брелок X2 Limited Edition Чёрный)

Фонарь X1 Limited Edition Яркий луч (Тип: Фонарь-брелок X2 Limited Edition Чёрный)

Светодиодный фонарь-брелок X1 Limited Edition Сверхяркий светодиод xp-g2 130 лм Коллиматорная линза Два режима работы: 100%, 30% и 5% Компактный размер Алюминиевый корпус Элемент питания 1хaa (r03), в комплекте Размеры фонаря: длина 76 мм, диаметр 16 мм Светодиод CREE XP-G2. Световой поток 130 лм. Три режима работы: 100%, 30% и 5% (необходимо повторно отвернуть и довернуть головную часть фонаря до включения). Элемент питания 1хAA (R03), в комплекте. Не подлежит обязательной сертификации. Гарантийный срок 2 года. Срок службы 2 года. Фонарь Яркий луч Х2 Limited Edition Светодиод CREE XP-G2. Световой поток 120 лм. Дата изготовления: 11.2016. Элемент питания 1хAAА (R03), в комплекте. Один режим работы. Поставляется в двух цветах: черном и красном.Производитель: Яркий Луч Тип: Фонарь-брелок X2 Limited Edition Чёрный Материал корпуса: Металл Гарантийный срок эксплуатации, месяцев: 24 Источник света: Светодиод (LED) Источник питания: Батарейка Длина упаковки: 100 мм Ширина упаковки: 100 мм Высота упаковки: 30 мм Объем упаковки, м³: 0.0003 Вес с упаковкой: 0.3 кг

640 руб.
Санкт-Петербург
Велофара V450.2 Яркий Луч

Велофара V450.2 Яркий Луч

Велофара V450.2 Яркий Луч Описание: Мощный светодиод CREE XP-G2 R5 450 люмен 4 режима работы: 100%, 60%, 20% и строб Новое крепление на руль. По просьбам наших пользователей мы серьезно доработали крепление. Сейчас фара даже при встряске уверенно сохраняет выставленное положение на руле. Влагозащищенность корпуса IPX-6 Элементы питания: 4 x AA (R6). Рекомендовано использовать Ni-MH аккумуляторы. Особенности Светодиод CREE XP-G2 R5, максимальный световой поток 450 люмен. Оптическая система (прямоугольная прожекторная линза) предусматривает оптимальную яркость и светоотдачу, формирует мощный широкий луч и осуществляет освещение всей дороги для большей видимости. Широкий угол свечения (160 градусов) и освещение всей дороги для большей видимости гарантирует комфорт и безопасность велосипедиста. 4 режима работы: 20% – 60% – 100%. Строб. Противослепящая конструкция. Освещение дороги происходит без причинения каких-либо неудобств пешеходам и встречным водителям. Гибкий резиновый ремешок. Система крепления, которая не требует дополнительных инструментов для установки и позволяет Вам быстро и легко прикрепить фонарь практически к любому рулю. Конструктивная особенность фонаря, позволяющая поворачивать головную часть на 360 градусов. Влагозащищенность IPX-6. Ударопрочность. Падение с высоты 1 метра. Элементы питания: 4 батарейки типоразмера АА (R6), входят в комплект. Светодиодный индикатор разряда батареек. По мере разряда элементов питания зеленое свечение кнопки поменяется на красное. Установка батареек и начало работы Открутите винт батарейного отсека против часовой стрелки до полного освобождения прижимной крышки. Установите элементы питания (батарейки), соблюдая полярность (полярность указана внутри отсека). Установите крышку обратно и плотно закрутите винт. Фонарь готов к использованию. Режимы работы: 20% – 60% – 100%. Для включения /выключения фонаря необходимо нажать и удерживать кнопку в течение 1 сек. Для переключения режимов 20% – 60% – 100% легко нажимайте на кнопку (клик). Режим «строб». Для включения фонаря в этом режиме необходимо нажать и удерживать кнопку в течение 3-4 сек. Дальнейшее легкое нажатие (клик) переведет фонарь в режим 20%. К сведению Рекомендовано использовать Ni-MH аккумуляторы для работы фонаря. Не светить фонарем напрямую в глаза, в противном случае мощный свет может нанести тяжелую травму. Не выкручивайте и не разбирайте светодиод. Рекомендации по уходу Чтобы Ваш фонарь находился в рабочем состоянии, следуйте следующим инструкциям. В случае попадания фонаря в морскую воду или щелочную жидкость необходимо промыть его чистой водой и высушить теплым воздухом. Если фонарь с трудом поворачивается относительно кольца, рекомендуется нанести на эту площадку силиконовую смазку. Для более продолжительной работы батареек или аккумуляторов (в случае, когда фонарь не используется), вынимайте и храните их в сухом и прохладном месте. Дополнительные характеристики: Ширина упаковки 150 мм Высота упаковки 80 мм Объем упаковки, м³ 0.0023 Вес с упаковкой 1.5 кгПроизводитель: Яркий Луч Материал корпуса: Металл Время непрерывной работы: 1,5-15 час Гарантийный срок эксплуатации, месяцев: 24 Источник света: Светодиод (LED) Источник питания: Аккумулятор Длина: 100 мм Ширина: 35 мм Высота: 34 мм Вес: 116 кг Длина упаковки: 190 мм

2 270 руб.
Санкт-Петербург
Велофонарь V-100 Яркий Луч

Велофонарь V-100 Яркий Луч

Велофонарь яркий луч V-100 Яркий 3 вт светодиод 3 режима работы: 100%, 30%, «строб» Ударопрочный корпус Влагозащищенная конструкция Описание: Фонарь яркий луч v-100 спроектирован и рекомендован для велосипедистов, в комплекте поставляется крепление на руль. Незаменим для любителей ночных велопрогулок. Три режима работы: «100%» (100 лм), 30% (30 лм) и «строб». Оптическая система фонаря (коллиматорная линза) позволит комфортно перемещаться на средней скорости в полной темноте, своевременно обозначая ямы и неровности дорог, а режим «строб» поможет обезопасить езду в светлое время суток. Элементы питания: 4 х ААА (R03), в комплект не входят, обеспечат светом в пути продолжительное время (в режиме «100%» не менее 2 часов). Влагозащищенный корпус убережет фонарь в дождливую погоду. Конструктивная особенность: поворот фонаря относительно крепления на 360°.Производитель: Яркий Луч Гарантийный срок эксплуатации, месяцев: 24 Источник света: Светодиод (LED) Источник питания: Батарейка Длина упаковки: 100 мм Ширина упаковки: 50 мм Высота упаковки: 50 мм Объем упаковки, м³: 0.0003 Вес с упаковкой: 0.2 кг

590 руб.
Санкт-Петербург
Кепка-фонарь яркий луч (Цвет: Кепка-фонарь ЯРКИЙ ЛУЧ черная)

Кепка-фонарь яркий луч (Цвет: Кепка-фонарь ЯРКИЙ ЛУЧ черная)

Кепка-фонарь яркий луч Кепка протестирована и одобрена участниками самого экстремального трофи-рейда "Ладога". Продолжительность непрерывной работы на одном комплекте батареек составляет 20 часов. Для включения кепки необходимо перевести выключатель на блоке питания в положение ON. Блок питания находится под подкладкой внутри кепки. Включение/выключение фонаря производится выключателем вшитым в нижнюю часть козырька кепки. ВНИМАНИЕ! При транспортировке кепки в рюкзаке, рекомендуем переводить переключатель на блоке питания в положение "OFF", для предотвращения самопроизвольного включения кепки от давления других предметов и преждевременной разрядки батарей. Кепка не одноразовая! Она укомплектована двумя дисковыми литиевыми батарейками 2032, которые легко заменить при помощи часовой отвертки. Литиевые батарейки более долговечны и энергоемки, чем алколин. Технические характеристики цвет камуфляж элементы питания – 2х2032 (в комплекте). источник света – 4 ярких светодиода. Упаковка: индивидуальная упаковка. Технические характеристики цвет чёрный: элементы питания – 2х2032 (в комплекте). источник света – 2 ярких светодиода. Упаковка: индивидуальная упаковка.Производитель: Яркий Луч Цвет: Кепка-фонарь ЯРКИЙ ЛУЧ черная Гарантийный срок эксплуатации, месяцев: 12 Источник света: Светодиод (LED) Источник питания: 2×2032 Длина упаковки: 130 мм Ширина упаковки: 70 мм Высота упаковки: 40 мм Объем упаковки, м³: 0.0004 Вес с упаковкой: 0.7 кг

440 руб.
Санкт-Петербург
Светильник головной влагозащищенный Экотон 4-03 СГСВ-1

Светильник головной влагозащищенный Экотон 4-03 СГСВ-1

Фонарик - Экотон 4-03 СГСВ-1 предназначен для использования в качестве индивидуального переносного беспроводного осветительного прибора в промышленности, строительстве, на транспорте, в подразделениях МВД, МЧС, ГТК, ЖКХ, везде, где для работы необходимы свободные руки. Особенности конструкции. Корпус светильника выполнен в виде небольшой коробочки из ударопрочного пластика. Внутри корпуса светильника размещены литий-ионный аккумулятор, электронная плата управления и мощная светодиодная лампа белого света с оптической системой. На лицевой стороне светильника имеется окуляр для светодиодной лампы и гнездо для подзарядки аккумулятора. Включение и выключение светильника производится клавишей, расположенной на боковой стенке светильника. Разряд аккумулятора индицируется предупредительной световой сигнализацией пульсирующим светом лампы. Подзарядка аккумулятора осуществляется от индивидуального сетевого зарядного адаптера. Светильник имеет набор аксессуаров, позволяющих устанавливать крепление под головной убор или под каску. Светильник работает при температуре воздуха от -20°С до +45°С и относительной влажности воздуха 100% (при +25˚С). Дополнительные характеристики: Высота 55 мм Вес 0.15 кг Длина упаковки 170 мм Ширина упаковки 95 мм Высота упаковки 70 мм Объем упаковки, м³ 0.0011 Вес с упаковкой 0.2 кгПроизводитель: Экотон Материал корпуса: Пластик Время непрерывной работы: 6 час Степень защиты, IP: 54 Гарантийный срок эксплуатации, месяцев: 24 Угол светового луча, 2q 0.5, град.: 10 Источник света: Светодиод (LED) Среднее время безотказной работы источника света: 50000 час Источник питания: Аккумулятор Длина: 90 мм Ширина: 62 мм

5 200 руб.
Санкт-Петербург
Светильник головной взрывозащищенный Экотон-6 СГСВ-6

Светильник головной взрывозащищенный Экотон-6 СГСВ-6

Светильник СГСВ-6 Экотон-6 предназначен для использования в качестве носимого индивидуального осветительного прибора в подземных выработках шахт опасных по газу и пыли, а также на предприятиях нефтегазовой отрасли, подземных коллекторах городских коммуникаций, взрывоопасных производствах, на автозаправочных станциях и других объектах. Маркировка взрывозащиты по МЭК 60072-0-98 - РВЕxdmiaIХ/1ExdmiaIICT5Х. Светильник Экотон-6 состоит из кассеты питания, головного светильника, пятипроводного шнура питания и зарядного адаптера. Кассета питания выполнена из ударопрочного пластика и представляет собой плоскую коробку размерами 110х90х35 мм с ребрами жесткости. Внутри корпуса кассеты питания размещается аккумуляторная батарея, электронный модуль управления и плата искрозащиты. На верхней крышке кассеты питания расположены ввод шнура питания и гнездо для подключения зарядного адаптера, закрытое резьбовой заглушкой. Головной светильник состоит из корпуса, основания и крышки-радиатора. Основание изготовлено из пластика и служит для ввода шнура питания, установки скобы с зажимом для крепления светильника на каску и кнопки управления. Внутри корпуса головного светильника расположен мощный светодиодный модуль. Включение Экотон 6 осуществляется с помощью кнопки управления без фиксации, закрытой защитным колпачком. Заряд аккумуляторной батареи осуществляется от индивидуального зарядного адаптера или специальной зарядной станции. Конструкция светильника герметичная не разборная. Дополнительные характеристики: Источник питания Аккумулятор Номинальное напряжение 3.7 В Средний ресурс аккумуляторной батареи (число циклов заряд/разряд) 1000 Максимальное время подзарядки аккумулятора 11 час Вес 0.57 кг Длина упаковки 150 мм Ширина упаковки 165 мм Высота упаковки 95 мм Объем упаковки, м³ 0.0024 Вес с упаковкой 0.6 кгПроизводитель: Экотон Материал корпуса: Металл, пластик Время непрерывной работы: 17 час Срок службы: 5 лет Степень защиты, IP: 67 Гарантийный срок эксплуатации, месяцев: 24 Угол светового луча, 2q 0.5, град.: 8 Маркировка взрывозащиты: РВЕxdmiaIХ/1ExdmiaIICT5Х Источник света: Светодиод (LED) Среднее время безотказной работы источника света: 50000 час Мощность источника света: 1.2 Вт

8 700 руб.
Санкт-Петербург
Фонарь аккумуляторный профессиональный ФАП-10

Фонарь аккумуляторный профессиональный ФАП-10

Светодиодный фонарь аккумуляторный профессиональный ФАП-10 специально разработан для вооружённых сил, полиции, пожарных, МЧС, используется в качестве индивидуального осветительного прибора, имеет ударопрочный, влагозащищённый корпус и механизм фокусировки луча. Отличительные особенности данного фонаря: водонепроницаемый, ударопрочный корпус; надёжность и безопасность эксплуатации; невысокая стоимость; простота технического обслуживания. Этот фонарь незаменим в сложных условиях, характерных для работы спасателей, служб МЧС, ГИБДД, УВД, пограничных войск, а также энергетиков, охранных структур, работников железной дороги и других служб. Корпус фонаря выполнен из прочного алюминиевого сплава с титановым покрытием. Внутри установлена электронная схема и оптический блок с механизмом регулировки луча, поставляется с литий-ионным аккумулятором (формат 18650). Благодаря модульной конструкции фонаря при необходимости возможна замена корпуса, отражателя или аккумулятора без использования каких-либо инструментов. Фонарь ФАП обладает повышенной механической прочностью. Его корпус выполнен из авиационного алюминиевого сплава, герметичен, пыленепроницаем, выдерживает кратковременное погружение в воду. Время непрерывной работы без подзарядки в основном режиме до 6 часов. Управление фонарем с помощью кнопки включения (без фиксации): Кратковременно нажмите на кнопку включения- фонарь горит основным светом; Для выбора другой опции свечения повторно нажмите на кнопку и выберите нужный вам свет (также для выбора другой опции работы достаточно слегка нажать на кнопку). Опции переключаются циклически – яркий свет, основной свет, экономный свет, сигнальный свет (мигающий), SOS и выключение. Дополнительные характеристики: Высота 36 мм Вес 0.168 кгПроизводитель: Транском Материал корпуса: Металл Время непрерывной работы: 4-8 час Гарантийный срок эксплуатации, месяцев: 12 Источник света: Светодиод (LED) Мощность источника света: 10 Вт Источник питания: Аккумулятор Емкость аккумулятора, ампер/час: 2.5 Средний ресурс аккумуляторной батареи (число циклов заряд/разряд): 500 Длина: 137 мм Ширина: 36 мм

2 200 руб.
Санкт-Петербург
Фонарь optimus accu pocket Яркий Луч

Фонарь optimus accu pocket Яркий Луч

Фонарь optimus accu pocket Мощный Cob светодиод 3 Вт 100 люмен Белый свет. Два режима работы: 100 и 50 лм Дополнительный красный свет. Три режима работы: 100%, мигающий и S.O.S. Магнит для размещения фонаря на металлической поверности Складывающийся крючок для подвешивания Многофункциональный светодиодный фонарь «яркий луч» optimus accu pocket. Яркий светодиод Cob мощностью 3 Вт, световой поток 100 лм. Два режима работы белого света: 100% и 50%. Дополнительный красный свет, для его включения необходимо нажать и удерживать кнопку включения в течение 2 сек. Три режима красного света: 100% (19 лм), мигащий и S.O.S. Переключение режимов осуществляется простым нажатием на кнопку. Встроенный магнит позволит закрепить фонарь на металлической поверхности. Складывающийся крючок для подвешивания. Встроенный литиевый аккумулятор: 3.6 В 800 мАч, более 500 циклов заряда/ разряда. Встроенный индикатор заряда. Гарантийный срок 2 года, срок службы 5 лет. Дополнительные характеристики: Вес с упаковкой 0.5 кг Водозащищенность IPX6Производитель: Яркий Луч Гарантийный срок эксплуатации, месяцев: 12 Источник света: Светодиод (LED) Источник питания: Аккумулятор Длина: 118 мм Ширина: 50 мм Высота: 25 мм Длина упаковки: 200 мм Ширина упаковки: 70 мм Высота упаковки: 50 мм Объем упаковки, м³: 0.0007

650 руб.
Санкт-Петербург
Фонарь YL SCORPION Яркий луч

Фонарь YL SCORPION Яркий луч

Компактный аккумуляторный светодиодный фонарь YL SCORPION Особенности и применение сверхкомпактный размер встроенный Li-PO аккумулятор 400 mAh зарядное устройство micro-USB cъемная клипса нейтральный светодиод с улучшенной цветопередачей Nichia 219C 80CRI дополнительные красный и ультрафиолетовый диоды продуманное управление влагозащищенность IPX6 индикация заряда/ разряда Режимы фонаря Короткое нажатие включает фонарь в среднем режиме, повторное кратковременное нажатие активирует максимальный режим. Удержание во включенном состоянии циклично меняет средний и максимальный режимы. Для доступа к скрытым режимам (слабый белый, красный, ультрафиолетовый) на выключенном фонаре нажмите и удерживайте кнопку. При продолжении удержания происходит смена вспромогательных режимов по кругу. Выбранный вспомогательный режим запоминается. Индикация в кнопке Индикация состояния батареи: на включенном фонаре красный индикатор в кнопке сигнализирует о разряде аккумулятора. Двухцветный индикатор в кнопке информирует о процессе заряда батареи: красный – заряжается, зеленый – заряжено.Производитель: Яркий Луч Тип лампы: Светодиодные Время непрерывной работы: 1-20 час Гарантийный срок эксплуатации, месяцев: 24 Источник света: Светодиод (LED) Источник питания: Батарейка Длина упаковки: 100 мм Ширина упаковки: 100 мм Высота упаковки: 30 мм Объем упаковки, м³: 0.0003 Вес с упаковкой: 0.3 кг

1 710 руб.
Санкт-Петербург
Фонарь X1 Limited Edition Яркий луч (Тип: Фонарь-брелок X2 Limited Edition Красный)

Фонарь X1 Limited Edition Яркий луч (Тип: Фонарь-брелок X2 Limited Edition Красный)

Светодиодный фонарь-брелок X1 Limited Edition Сверхяркий светодиод xp-g2 130 лм Коллиматорная линза Два режима работы: 100%, 30% и 5% Компактный размер Алюминиевый корпус Элемент питания 1хaa (r03), в комплекте Размеры фонаря: длина 76 мм, диаметр 16 мм Светодиод CREE XP-G2. Световой поток 130 лм. Три режима работы: 100%, 30% и 5% (необходимо повторно отвернуть и довернуть головную часть фонаря до включения). Элемент питания 1хAA (R03), в комплекте. Не подлежит обязательной сертификации. Гарантийный срок 2 года. Срок службы 2 года. Фонарь Яркий луч Х2 Limited Edition Светодиод CREE XP-G2. Световой поток 120 лм. Дата изготовления: 11.2016. Элемент питания 1хAAА (R03), в комплекте. Один режим работы. Поставляется в двух цветах: черном и красном.Производитель: Яркий Луч Тип: Фонарь-брелок X2 Limited Edition Красный Материал корпуса: Металл Гарантийный срок эксплуатации, месяцев: 24 Источник света: Светодиод (LED) Источник питания: Батарейка Длина упаковки: 100 мм Ширина упаковки: 100 мм Высота упаковки: 30 мм Объем упаковки, м³: 0.0003 Вес с упаковкой: 0.3 кг

640 руб.
Санкт-Петербург
Фонарь X1 Limited Edition Яркий луч (Тип: Фонарь-брелок X1 Limited Edition)

Фонарь X1 Limited Edition Яркий луч (Тип: Фонарь-брелок X1 Limited Edition)

Светодиодный фонарь-брелок X1 Limited Edition Сверхяркий светодиод xp-g2 130 лм Коллиматорная линза Два режима работы: 100%, 30% и 5% Компактный размер Алюминиевый корпус Элемент питания 1хaa (r03), в комплекте Размеры фонаря: длина 76 мм, диаметр 16 мм Светодиод CREE XP-G2. Световой поток 130 лм. Три режима работы: 100%, 30% и 5% (необходимо повторно отвернуть и довернуть головную часть фонаря до включения). Элемент питания 1хAA (R03), в комплекте. Не подлежит обязательной сертификации. Гарантийный срок 2 года. Срок службы 2 года. Фонарь Яркий луч Х2 Limited Edition Светодиод CREE XP-G2. Световой поток 120 лм. Дата изготовления: 11.2016. Элемент питания 1хAAА (R03), в комплекте. Один режим работы. Поставляется в двух цветах: черном и красном.Производитель: Яркий Луч Тип: Фонарь-брелок X1 Limited Edition Материал корпуса: Металл Гарантийный срок эксплуатации, месяцев: 24 Источник света: Светодиод (LED) Источник питания: Батарейка Длина упаковки: 100 мм Ширина упаковки: 100 мм Высота упаковки: 30 мм Объем упаковки, м³: 0.0003 Вес с упаковкой: 0.3 кг

540 руб.
Санкт-Петербург
Фонарь фотографа MT-7 FLOstick Яркий луч

Фонарь фотографа MT-7 FLOstick Яркий луч

LED фонарь фотографа MT-7 FLOstick Описание фонарика MT-7 FLOstick 6 уровней яркости, две цветовые температуры. Пульт дистанционного управления, дальность действия более 7 метров. Встроенный литиевый аккумулятор, более 500 циклов заряд/разряд. Возможность крепления на штатив. Предназначен для использования при фото и видеосъемке. Удобный чехол для хранения и переноски фонаря. Входит в комплект Светодиодный фонарь x1 Кабель USB x1 Пульт ДУ x1 Чехол x1 Руководство x1 Управление Выключатель: Короткое/длинное нажатие включает фонарь Двойное нажатие для выбора цветовой температуры Долгое нажатие (при горении) выключает фонарь Короткое или длинное нажатие включают фонарь в последнем использованном режиме (память режима). Двойное быстрое нажатие при включенном свете позволяет выбрать цветовую температуру 3000К или 5700К. При включенном свете: долгое нажатие выключает фонарь, короткое нажатие переводит фонарь в режим дистанционного управления. При включенном режиме кнопками Яркость + и - можно выбрать один из 6 уровней яркости. При включенном режиме регулировке цветовой температуры кнопками Яркость + и - можно регулировать цветовую температуру в диапазоне 3000К - 5700К. Во время зарядки мигает индикатор. По мере заряда батареи интенсивность мигания меняется. При полностью заряженном аккумуляторе индикатор будет гореть постоянно. При выключении фонаря индикатор заряда показывает уровень заряда батареи. Количество миганий индикатора соответствует разному уровню заряда: 4-е раза - более 75%; 3-и раза - 50-75%; 2-а раза - 25-50%, 1-н раз - менее 5%, требуется немедленная зарядка аккумулятора. При выключении фонаря на длительное время, его необходимо выключать долгим нажатием. При выключении коротким нажатием аккумулятор будет разряжаться. Не включайте фонарь во время зарядки, это может привести к выходу фонаря из строя. Когда фонарь не используется разряд аккумулятора составляет 1% в день. При длительном хранении требуется заряжать аккумулятор каждые 3 месяца. Использование ПДУ on/off - включение выключения фонаря (ПДУ будет работать если фонарь не выключен длительным удержанием. super bright - включение максимального уровня яркости в данной цветовой темперетуре Дальность действия ПДУ до 7 метров. Перед началом использования удалите изолирующую пленку с батарейки.Производитель: Яркий Луч Материал корпуса: Металл Гарантийный срок эксплуатации, месяцев: 24 Источник света: Светодиод (LED) Источник питания: Аккумулятор Длина упаковки: 570 мм Ширина упаковки: 50 мм Высота упаковки: 50 мм Объем упаковки, м³: 0.0014 Вес с упаковкой: 0.8 кг

3 790 руб.
Санкт-Петербург
Фонарь GLO-TOOB Яркий Луч (Цвет: GLO-TOOB белый)

Фонарь GLO-TOOB Яркий Луч (Цвет: GLO-TOOB белый)

Фонарик светодиодный G15 GRYPHON Описание: Водонепроницаемость до 60 метров 3 режима работы: 100%, 25%, мигающий Три цветовых решения: белый зеленый красный Работает на распростаненном элементе питания 1хААА Легко отстегивается от подвеса Время работы 4 – 15 часов Пожизненная гарантия Фонарик GLO-TOOB - это широко известный по всему миру многофункциональный фонарь-маяк. Благодаря своей универсальности, противоударной и водонепроницаемой конструкции, а также большой надежности и автономности, он нашел большое количество применений. Это: и кемпинговый фонарь в палатку, и внутренний свет для рюкзака, и аварийный источник света в путешествии, в доме, в автомобиле. Благодаря тому, что свет сверхяркого светодиода виден с любого направления – это отличное средство для обозначения людей и животных, маркировки предметов и местности, а также подачи сигналов в любое время суток и при любой погоде. Фонарь-маяк GLO-TOOB задумывался как замена ХИСам (химическим источникам света), т.к. они имеют множество недостатков. ХИСы дороги в использовании, т.к. они – одноразовые, и после активации их невозможно выключить. Ненадежны – могут не сработать или вытечь, повредив одежду и снаряжение, и поэтому требуют бережной транспортировки и использования, малоэффективны – интенсивности их света часто недостаточно и, ко всему прочему, опасны для окрующей среды. GLO-TOOB от «Яркого Луча» лишен всех этих недостатков. Эти маяки широко используют военные разных стран, в том числе России, сотрудники силовых структур, спасатели, пожарные, шахтеры, строители, моряки, альпинисты, спелеологи, парашютисты, дайверы, охотники, врачи, путешественники и т.д. Даже если Вы – любитель страйкбола, велосипедист, рыбак, любитель утренних и вечерних пробежек, или просто владелец собаки, Вы оцените этот надежный и эффективный источник света по достоинству! Корпус выполнен из толстого ударопрочного пластика, сломать его практически невозможно. Конструкция допускает долгосрочное погружение в пресную и в морскую воду на глубину до 60 метров! Прочное кольцо из нержавеюшей стали обеспечивает надежное крепление к одежде, снаряжению, оборудованию. В качестве источника энергии используется элемент питания распостраненного формата ААА (R03) (в комплекте). Вес 34 г Направленность света 360° Срок службы СИД 100000 ч Размеры 75 мм х 19 мм Диапазон рабочих температур от -15°С до +55°С Корпус цилиндрический Источник света свехяркий светодиод Время работы от 4 до 15 часов Ударопрочность средние ударные нагрузки Дополнительные характеристики: Высота 19 мм Вес 0.034 кг Длина упаковки 150 мм Ширина упаковки 150 мм Высота упаковки 10 мм Объем упаковки, м³ 0.0002 Вес с упаковкой 0.5 кгПроизводитель: Яркий Луч Цвет: GLO-TOOB белый Материал корпуса: Пластик Время непрерывной работы: 4-15 час Срок службы: 5 лет Гарантийный срок эксплуатации, месяцев: 24 Глубина погружения, не менее, метров: 60 Источник света: Светодиод (LED) Источник питания: Батарейка Длина: 75 мм Ширина: 19 мм

950 руб.
Санкт-Петербург
Велофонарь V-052 Яркий Луч

Велофонарь V-052 Яркий Луч

Велофонарь с лазерными указателями V-052. Описание: 5 красных светодиодов в трех режимах работы: – постоянный свет, – мигающий, – проблесковый 2 боковых лазерных указателя в двух режимах работы: – постоянное свечение, – мигающие полосы Возможность сочетать режимы светодиодов и лазерных указателей. Удобная конструкция крепления: легко снять или установить фонарь. Влагозащищенный корпус: для езды в непогоду. Элементы питания: 2 батарейки ААА (R03), не в комплекте. Лазерные боковые указатели Фонарь проецирует на дорогу две параллельные полосы для обозначения габаритов вашего велосипеда. Это способствует повышению вашей безопасности на проезжей части. ВНИМАНИЕ! Не забывайте вынимать элементы питания в случае, когда вы долго не используете фонарь. Во избежание травм не направляйте в глаза лазерные указатели! Для яркого свечения диодов и боковых указателей своевременно заменяйте «подсевшие» батарейки.Производитель: Яркий Луч Гарантийный срок эксплуатации, месяцев: 24 Источник света: Светодиод (LED) Источник питания: Батарейка Длина упаковки: 100 мм Ширина упаковки: 50 мм Высота упаковки: 50 мм Объем упаковки, м³: 0.0003 Вес с упаковкой: 0.2 кг

690 руб.
Санкт-Петербург
Кепка-фонарь яркий луч (Цвет: Кепка-фонарь ЯРКИЙ ЛУЧ камуфляж)

Кепка-фонарь яркий луч (Цвет: Кепка-фонарь ЯРКИЙ ЛУЧ камуфляж)

Кепка-фонарь яркий луч Кепка протестирована и одобрена участниками самого экстремального трофи-рейда "Ладога". Продолжительность непрерывной работы на одном комплекте батареек составляет 20 часов. Для включения кепки необходимо перевести выключатель на блоке питания в положение ON. Блок питания находится под подкладкой внутри кепки. Включение/выключение фонаря производится выключателем вшитым в нижнюю часть козырька кепки. ВНИМАНИЕ! При транспортировке кепки в рюкзаке, рекомендуем переводить переключатель на блоке питания в положение "OFF", для предотвращения самопроизвольного включения кепки от давления других предметов и преждевременной разрядки батарей. Кепка не одноразовая! Она укомплектована двумя дисковыми литиевыми батарейками 2032, которые легко заменить при помощи часовой отвертки. Литиевые батарейки более долговечны и энергоемки, чем алколин. Технические характеристики цвет камуфляж элементы питания – 2х2032 (в комплекте). источник света – 4 ярких светодиода. Упаковка: индивидуальная упаковка. Технические характеристики цвет чёрный: элементы питания – 2х2032 (в комплекте). источник света – 2 ярких светодиода. Упаковка: индивидуальная упаковка.Производитель: Яркий Луч Цвет: Кепка-фонарь ЯРКИЙ ЛУЧ камуфляж Гарантийный срок эксплуатации, месяцев: 12 Источник света: Светодиод (LED) Источник питания: 2×2032 Длина упаковки: 130 мм Ширина упаковки: 70 мм Высота упаковки: 40 мм Объем упаковки, м³: 0.0004 Вес с упаковкой: 0.7 кг

520 руб.
Санкт-Петербург
Прожектор ручной портативный осветительно сигнальный ПР-12

Прожектор ручной портативный осветительно сигнальный ПР-12

Фонарь прожектор ПР-12 предназначен для индивидуального освещения местности или объектов при оперативных работах, выполняемых службами вооруженных сил, пожарной охраны, предприятий железнодорожного транспорта, авиации, таможни, безопасности, а также на судах морского и речного флота. Может использоваться в бытовой области - на даче, в турпоходе, автомобилистами, охотниками, рыбаками и т.д. Источником света является низковольтная галогенная лампа мощностью 35 ватт. Конструктивно прожектор выполнен в виде фары с ручкой и носимого в сумке герметизированного кислотно-гелиевого аккумулятора. На защитное стекло фары надеваются накладные цветные светофильтры красного или желтого света. Фара соединяется с аккумулятором с помощью специального шнура. Внутри ручки фары находится электронный контроллер, обеспечивающий управление режимами работы, контроль источника электропитания и защиту аккумулятора от глубокого разряда. Прожектор имеет 3 режима работы по опциям света: непрерывное свечение с максимальной яркостью (100%); оптимальное свечение (75%); прерывистое свечение с максимальной яркостью (мигающий режим); Прерывистый свет используется для световой сигнализации в комплекте с цветными светофильтрами. Управление режимами работы прожектора осуществляется с помощью одной кнопки без фиксации - кнопки включения, расположенной на корпусе ручки, под фарой. Прожектор может работать напрямую от прикуривателя автомобиля, а при ремонте автомобиля - от клемм автомобильного аккумулятора. Подзарядка носимого аккумулятора производится от сетевого зарядного адаптера, входящего в комплект поставки. Прожектор устойчив к воздействию ударных нагрузок, атмосферных осадков, потоков воды, повышенной температуры (IP 54). Диапазон рабочих температур от -30°С до +45°С. Дополнительные характеристики: Максимальное время подзарядки аккумулятора 8 час Вес 3.3 кг Длина упаковки 250 мм Ширина упаковки 200 мм Высота упаковки 150 мм Объем упаковки, м³ 0.0075Производитель: Экотон Материал корпуса: Пластик Время непрерывной работы: 2-6 час Диаметр рефлектора: 120 мм Степень защиты, IP: 54 Угол светового луча, 2q 0.5, град.: 4 Источник света: Галогеновая лампа Среднее время безотказной работы источника света: 3000 час Номинальное напряжение: 12 В Емкость аккумулятора, ампер/час: 7.2 Средний ресурс аккумуляторной батареи (число циклов заряд/разряд): 600

6 160 руб.
Санкт-Петербург
Фонарь FLOstick кемпинговый Яркий луч (Тип: Фонарь MT-1 FLOstick)

Фонарь FLOstick кемпинговый Яркий луч (Тип: Фонарь MT-1 FLOstick)

Аккумуляторный влагозащищенный светодиодный фонарь MT-1 FLOstick Особенности и применение: Влагозащищенность IP68 Использование в качестве зарядного устройства (power bank) Использование фонаря в чрезвычайных ситуациях Белый свет (100%, 30% и 10%) Красный свет (100%, 20% и мигание) Описание фонаря MT-1 FLOstick Влагозащищенность IP68 (погружение до 2 м) Аккумулятор 3.7 В, 2600 мАч Разъем микро-USB: 5 В, 800 мА Разъем USB: 5 В, 1200 мА Мощность фонаря 1 Ватт Световой поток 100 люмен Индикация заряда/ разряда: Синие светодиоды способны показать уровень заряда аккумулятора, для этого необходимо 6 раз нажать на кнопку. Когда они горят, не мигая, значит – полный заряд. Диод мигнет один раз за цикл: осталось от 25% заряда и менее Два мигания: осталось от 50% до 25% заряда Три мигания: осталось от 75% до 50% заряда Четыре мигания: от 100% до 75% заряда Режимы фонаря: Включение производится торцевой кнопкой. В фонаре реализованы следующие режимы: Вкл. белый свет 10%, белый свет 30%, белый свет 100%, красный свет 20%, красный свет 100%, мигающий красный, выкл. Нажатие и удержание кнопки в течение 2 с и более выключает фонарь. Время работы: белый свет 100% - 8 ч белый свет 30% - 24 ч белый свет 10% - 60 ч красный свет 100% - 15 ч красный свет 20% - 75 ч красный свет, мигание - 31 ч зарядка аккумулятора - 5 ч Комплектация фонаря MT-1 FLOstick Фонарь МТ-1 «FLOstick» USB-кабель для зарядки 2 ремешка для подвешивания Фонарь можно брать с собой в поход, на рыбалку, читать с его помощью, копаться в автомобиле и многое другое… Аккумуляторный влагозащищенный светодиодный фонарь MT-4 FLOstick Описание фонаря MT-4 FLOstick Влагозащищенность IP68 (погружение до 2 метров) Белый свет (100%, 30%,10% и мигание) Мощность фонаря 4.5 Ватта, Li-Ion аккумулятор 3.7 В 10400 мАч Индикация заряда/ разряда Использование в качестве зарядного устройства (power bank) Использование фонаря в чрезвычайных ситуациях В фонаре есть интеллектуальная функция распознавания параметров зарядного устройства, регулирующая ток заряда. Режимы фонаря: Включение производится торцевой кнопкой. В фонаре реализованы 4 режима. Вкл. 10%, 30%, 100%, мигание, выкл. Нажатие и удержание кнопки в течение 2 с и более выключает фонарь. Индикация заряда/ разряда: 1. Когда фонарь заряжается, синие светодиоды мигают, сообщая о том, что идет процесс зарядки. 2. При достижении полного заряда, светодиоды перестают мигать и начинают постоянно гореть синим светом. 3. При низком уровне заряда, первый индикатор начинает мигать. Синий индикаторУровень заряда горит только первый от 0 до 25% первый и второй от 25% до 50% горят три от 50% до 75% горят все четыре от 75% до 100% Время зарядки 8 часов при использовании адаптера 5 В, 2 А. 12 часов при использовании адаптера 5 В, 1 А. Время работы: Режим Световой поток Время работы белый свет 100% 450 люмен ~ 8 ч белый свет 30% 135 люмен ~ 13 ч белый свет 10% 45 люмен ~ 77 ч белый свет, мигание ~ 27 ч Комплектация фонаря MT-4 FLOstick Фонарь МТ-4 «FLOstick» USB-кабель для зарядки 2 ремешка для подвешивания Магнитный держатель Дополнительные характеристики: Вес с упаковкой 0.8 кгПроизводитель: Яркий Луч Тип: Фонарь MT-1 FLOstick Материал корпуса: Металл Время непрерывной работы: 8-31 час Гарантийный срок эксплуатации, месяцев: 24 Источник света: Светодиод (LED) Источник питания: Аккумулятор Длина упаковки: 212 мм Ширина упаковки: 73 мм Высота упаковки: 51 мм Объем упаковки, м³: 0.0008

1 450 руб.
Санкт-Петербург
Фонарь ESCORT T95 Яркий луч

Фонарь ESCORT T95 Яркий луч

Фонарик YLP ESCORT T95 Компактный сверхмощный фонарь с триплом нейтральных светодиодов XP-G2, световой поток до 1150 лм. Описание: Световой поток 1150 лм Трипл нейтральных светодиодов XP-G2 Нейтральный свет, приближенный к солнечному (4200К) Качественная TIR-оптика Carclo и просветленное стекло Три режима яркости: 100–50%, 15%, 3% Дальность — 125 метров Стабилизация яркости, улучшенная эффективность электроники Индикация разряда батареи Съемная клипса для ношения Медная звезда с прямым отводом тепла Работает от Li-Ion аккумулятора 18650 (в комплект не входит) Компактный светодиодный фонарь YLP Escort T95 обеспечивает широкий мощный луч качественного нейтрального света, оптимальный на ближних и средних дистанциях. Благодаря сочетанию компактности, высокой мощности и качественного света фонарь может использоваться для широкого спектра задач — от повседневного ношения до спортивных, туристических или велосипедных маршрутов, а также в других сферах работы и активного отдыха. Режимы: 100–50%, 15%, 3%, без памяти. Для защиты от перегрева через 30 секунд работы в максимальном режиме фонарь плавно снижает яркость до стабилизированных 50%. Время работы: сильный режим — 2.2 ч, с редний режим — 8 часов, слабый режим — 40 часов. О приближении к разряду аккумулятора фонарь информирует короткими двойными вспышками каждые 30 секунд — это гарантирует, что пользователь не останется внезапно без света. В фонаре Escort T95 используется усовершенствованный драйвер, обеспечивающий более высокую эффективность работы в среднем и слабом режимах, при отсутствии какого-либо видимого мерцания. Для защиты от случайного включения реализована возможность заблокировать фонарь отворотом хвостовой части. Качественный корпус из анодированного алюминия защитит фонарь от ударов и повреждений. Влагозащищенность фонаря IPX-6, что обеспечивает надежную защиту от дождя, а также от кратковременного падения в воду. Фонарь работает на Li-Ion аккумуляторе формата 18650 длиной 65–70 мм, разрешенный диапазон питания 3.0–4.2В. Использование двух батареек CR123A или аккумуляторов RCR123 запрещено. Рекомендуется использовать качественные защищенные аккумуляторы 18650 от проверенных производителей. Дополнительные характеристики: Длина упаковки 212 мм Ширина упаковки 73 мм Высота упаковки 51 мм Объем упаковки, м³ 0.0008 Вес с упаковкой 0.8 кгПроизводитель: Яркий Луч Материал корпуса: Металл Время непрерывной работы: 2,2-40 час Гарантийный срок эксплуатации, месяцев: 24 Дальность светового луча, метров: 102 Источник света: Светодиод (LED) Источник питания: Аккумулятор Длина: 117 мм Ширина: 25 мм Высота: 25 мм Вес: 0.3 кг

2 190 руб.
Санкт-Петербург
Фонарь ESCORT T95 CRI Яркий луч

Фонарь ESCORT T95 CRI Яркий луч

Фонарик YLP ESCORT T95CRI Компактный фонарь с триплом светодиодов Nichia 219C 93CRI, сочетающий высокую мощность и качественную цветопередачу. Описание: Световой поток 800 лм Трипл нейтральных светодиодов Nichia 219C 93CRI 4000K Качественная TIR-оптика Carclo и просветленное стекло Три режима яркости: 100–50%, 15%, 3% Дальность — 102 метра Стабилизация яркости, улучшенная эффективность электроники Индикация разряда батареи Съемная клипса для ношения Медная звезда с прямым отводом тепла Работает от Li-Ion аккумулятора 18650 (в комплект не входит) Компактный светодиодный фонарь YLP Escort T95CRI обеспечивает широкий мощный луч нейтрального света, оптимальный на ближних и средних дистанциях. Светодиоды Nichia 219C 93CRI позволяют добиться максимально качественной цветопередачи, что дает возможность рекомендовать этот свет фотографам. Также T95CRI можно порекомендовать как универсальный фонарь для работы и активного отдыха тем пользователям, которым важно наиболее корректное и естественное отображение освещаемых объектов. Режимы: 100–50%, 15%, 3%, без памяти. Для защиты от перегрева через 30 секунд работы в максимальном режиме фонарь плавно снижает яркость до стабилизированных 50%. Время работы: сильный режим — 2.2 ч, средний режим — 8 часов, слабый режим — 40 часов. О приближении к разряду аккумулятора фонарь информирует короткими двойными вспышками каждые 30 секунд — это гарантирует, что пользователь не останется внезапно без света. В фонаре используется усовершенствованный драйвер, обеспечивающий более высокую эффективность работы в среднем и слабом режимах, при отсутствии какого-либо видимого мерцания. Для защиты от случайного включения реализована возможность заблокировать фонарь отворотом хвостовой части. Качественный корпус из анодированного алюминия защитит фонарь от ударов и повреждений. Влагозащищенность фонаря IPX-6, что обеспечивает надежную защиту от дождя, а также от кратковременного падения в воду. Фонарь работает на Li-Ion аккумуляторе формата 18650 длиной 65–70 мм, разрешенный диапазон питания 3.0–4.2В. Использование двух батареек CR123A или аккумуляторов RCR123 запрещено. Рекомендуется использовать качественные защищенные аккумуляторы 18650 от проверенных производителей. Дополнительные характеристики: Длина упаковки 212 мм Ширина упаковки 73 мм Высота упаковки 51 мм Объем упаковки, м³ 0.0008 Вес с упаковкой 0.8 кгПроизводитель: Яркий Луч Материал корпуса: Металл Время непрерывной работы: 2,2-40 час Гарантийный срок эксплуатации, месяцев: 24 Дальность светового луча, метров: 102 Источник света: Светодиод (LED) Источник питания: Аккумулятор Длина: 117 мм Ширина: 25 мм Высота: 25 мм Вес: 0.3 кг

1 990 руб.
Санкт-Петербург
Фонарь ESCORT T35 CRI Яркий луч

Фонарь ESCORT T35 CRI Яркий луч

Фонарик ESCORT T35 CRI Яркий луч Описание: Профессиональная версия карманного фонаря T35, с диодом высокой цветопередачи, нейтральным светом и улучшенной эффективностью электроники. Новейший светодиод с повышенной цветопередачей Nichia 219 °C 93CRI Нейтральный свет, приближенный к солнечному, 4000K Дальнобойность до 105 метров по стандарту ANSI Максимальный световой поток 400 люмен Медная звезда с прямым отводом тепла Питание от аккумулятора 18650 (в комплект не входит) Три режима яркости: 100%, 30%, 5% Время работы до 50 часов Качественная стабилизация яркости Индикация разряда батареи Световой поток фонаря достигает 400 стабилизированных ANSI-люменов. Новейший нейтральный светодиод повышенной цветопередачи Nichia 219 °C 93CRI обеспечивает фонарю максимально естественную передачу цветов и оттенков. Цветовая температура составляет 4000К, на границе нейтрального и теплого света. Фонарь работает на Li-Ion аккумуляторе формата 18650 (в комплект не входит), разрешенный диапазон питания 3.0–4.2В. Рекомендуется использовать качественные защищенные аккумуляторы от проверенных производителей. Использование двух батареек CR123A или аккумуляторов RCR123 запрещено. В фонаре используется усовершенствованный драйвер, обеспечивающий более высокую эффективность работы в среднем и слабом режимах, при отсутствии какого-либо видимого мерцания. Продолжительность работы фонаря в максимальном режиме яркости составит 1.5–2.5 часа, в зависимости от емкости используемого аккумулятора. Время работы в среднем режиме около 8 часов, в слабом режиме — до 50 часов. При разряде батареи фонарь включает индикацию миганием основного диода. В этом случае рекомендуется перейти на слабый режим яркости и при первой возможности зарядить или заменить аккумулятор. Для защиты от случайного включения реализована возможность заблокировать фонарь отворотом хвостовой части. Качественный корпус из анодированного алюминия защитит фонарь от ударов и повреждений. Водозащищенность фонаря IPX-6, что обеспечивает надежную защиту от дождя, а также от кратковременного падения в воду. Управление: Для включения фонаря нажмите на кнопку до щелчка. Фонарь стартует на сильном режиме яркости. Для смены режима на включенном фонаре слегка нажмите кнопку. Также возможно переключение режимов быстрым включением-выключением фонаря. Для увеличения времени работы или при сильном нагреве головной части переведите фонарь в средний или слабый режим яркости. Для предотвращения случайного нажатия отверните заднюю крышку фонаря на ¼ оборота. В случае некорректной работы фонаря: поменяйте аккумулятор на заряженный и заведомо работоспособный; проверьте, что голова и кнопка фонаря правильно собраны и закручены до упора; проверьте чистоту резьбы фонаря и платы драйвера, аккуратно очистите их от загрязнений; проверьте, что прижимные кольца платы драйвера и кнопки затянуты до упора. Программирование порядка режимов Для опытных пользователей предусмотрена возможность изменить порядок режимов замыканием контактных площадок («звезд») на драйвере. Замыкание первой звезды активирует порядок режимов Средний-Слабый-Сильный, замыкание третьей звезды — Слабый-Средний-Сильный. Комплектация: Фонарь; темляк; запасные уплотнительные кольца. Аккумулятор и зарядное устройство не входят в комплект. Мы рекомендуем использовать качественные зарядные устройства и защищенные аккумуляторы 18650 от проверенных производителей. Использование двух батареек CR123A или аккумуляторов RCR123 запрещено Дополнительные характеристики: Длина упаковки 212 мм Ширина упаковки 73 мм Высота упаковки 51 мм Объем упаковки, м³ 0.0008 Вес с упаковкой 0.8 кгПроизводитель: Яркий Луч Материал корпуса: Металл Время непрерывной работы: 2-50 час Гарантийный срок эксплуатации, месяцев: 24 Дальность светового луча, метров: 105 Источник света: Светодиод (LED) Источник питания: Аккумулятор Длина: 117 мм Ширина: 25 мм Высота: 25 мм Вес: 0.3 кг

1 490 руб.
Санкт-Петербург
Фонарь GLO-TOOB Яркий Луч (Цвет: GLO-TOOB зелёный)

Фонарь GLO-TOOB Яркий Луч (Цвет: GLO-TOOB зелёный)

Фонарик светодиодный G15 GRYPHON Описание: Водонепроницаемость до 60 метров 3 режима работы: 100%, 25%, мигающий Три цветовых решения: белый зеленый красный Работает на распростаненном элементе питания 1хААА Легко отстегивается от подвеса Время работы 4 – 15 часов Пожизненная гарантия Фонарик GLO-TOOB - это широко известный по всему миру многофункциональный фонарь-маяк. Благодаря своей универсальности, противоударной и водонепроницаемой конструкции, а также большой надежности и автономности, он нашел большое количество применений. Это: и кемпинговый фонарь в палатку, и внутренний свет для рюкзака, и аварийный источник света в путешествии, в доме, в автомобиле. Благодаря тому, что свет сверхяркого светодиода виден с любого направления – это отличное средство для обозначения людей и животных, маркировки предметов и местности, а также подачи сигналов в любое время суток и при любой погоде. Фонарь-маяк GLO-TOOB задумывался как замена ХИСам (химическим источникам света), т.к. они имеют множество недостатков. ХИСы дороги в использовании, т.к. они – одноразовые, и после активации их невозможно выключить. Ненадежны – могут не сработать или вытечь, повредив одежду и снаряжение, и поэтому требуют бережной транспортировки и использования, малоэффективны – интенсивности их света часто недостаточно и, ко всему прочему, опасны для окрующей среды. GLO-TOOB от «Яркого Луча» лишен всех этих недостатков. Эти маяки широко используют военные разных стран, в том числе России, сотрудники силовых структур, спасатели, пожарные, шахтеры, строители, моряки, альпинисты, спелеологи, парашютисты, дайверы, охотники, врачи, путешественники и т.д. Даже если Вы – любитель страйкбола, велосипедист, рыбак, любитель утренних и вечерних пробежек, или просто владелец собаки, Вы оцените этот надежный и эффективный источник света по достоинству! Корпус выполнен из толстого ударопрочного пластика, сломать его практически невозможно. Конструкция допускает долгосрочное погружение в пресную и в морскую воду на глубину до 60 метров! Прочное кольцо из нержавеюшей стали обеспечивает надежное крепление к одежде, снаряжению, оборудованию. В качестве источника энергии используется элемент питания распостраненного формата ААА (R03) (в комплекте). Вес 34 г Направленность света 360° Срок службы СИД 100000 ч Размеры 75 мм х 19 мм Диапазон рабочих температур от -15°С до +55°С Корпус цилиндрический Источник света свехяркий светодиод Время работы от 4 до 15 часов Ударопрочность средние ударные нагрузки Дополнительные характеристики: Высота 19 мм Вес 0.034 кг Длина упаковки 150 мм Ширина упаковки 150 мм Высота упаковки 10 мм Объем упаковки, м³ 0.0002 Вес с упаковкой 0.5 кгПроизводитель: Яркий Луч Цвет: GLO-TOOB зелёный Материал корпуса: Пластик Время непрерывной работы: 4-15 час Срок службы: 5 лет Гарантийный срок эксплуатации, месяцев: 24 Глубина погружения, не менее, метров: 60 Источник света: Светодиод (LED) Источник питания: Батарейка Длина: 75 мм Ширина: 19 мм

950 руб.
Санкт-Петербург
Фонарь GLO-TOOB Яркий Луч (Цвет: GLO-TOOB красный)

Фонарь GLO-TOOB Яркий Луч (Цвет: GLO-TOOB красный)

Фонарик светодиодный G15 GRYPHON Описание: Водонепроницаемость до 60 метров 3 режима работы: 100%, 25%, мигающий Три цветовых решения: белый зеленый красный Работает на распростаненном элементе питания 1хААА Легко отстегивается от подвеса Время работы 4 – 15 часов Пожизненная гарантия Фонарик GLO-TOOB - это широко известный по всему миру многофункциональный фонарь-маяк. Благодаря своей универсальности, противоударной и водонепроницаемой конструкции, а также большой надежности и автономности, он нашел большое количество применений. Это: и кемпинговый фонарь в палатку, и внутренний свет для рюкзака, и аварийный источник света в путешествии, в доме, в автомобиле. Благодаря тому, что свет сверхяркого светодиода виден с любого направления – это отличное средство для обозначения людей и животных, маркировки предметов и местности, а также подачи сигналов в любое время суток и при любой погоде. Фонарь-маяк GLO-TOOB задумывался как замена ХИСам (химическим источникам света), т.к. они имеют множество недостатков. ХИСы дороги в использовании, т.к. они – одноразовые, и после активации их невозможно выключить. Ненадежны – могут не сработать или вытечь, повредив одежду и снаряжение, и поэтому требуют бережной транспортировки и использования, малоэффективны – интенсивности их света часто недостаточно и, ко всему прочему, опасны для окрующей среды. GLO-TOOB от «Яркого Луча» лишен всех этих недостатков. Эти маяки широко используют военные разных стран, в том числе России, сотрудники силовых структур, спасатели, пожарные, шахтеры, строители, моряки, альпинисты, спелеологи, парашютисты, дайверы, охотники, врачи, путешественники и т.д. Даже если Вы – любитель страйкбола, велосипедист, рыбак, любитель утренних и вечерних пробежек, или просто владелец собаки, Вы оцените этот надежный и эффективный источник света по достоинству! Корпус выполнен из толстого ударопрочного пластика, сломать его практически невозможно. Конструкция допускает долгосрочное погружение в пресную и в морскую воду на глубину до 60 метров! Прочное кольцо из нержавеюшей стали обеспечивает надежное крепление к одежде, снаряжению, оборудованию. В качестве источника энергии используется элемент питания распостраненного формата ААА (R03) (в комплекте). Вес 34 г Направленность света 360° Срок службы СИД 100000 ч Размеры 75 мм х 19 мм Диапазон рабочих температур от -15°С до +55°С Корпус цилиндрический Источник света свехяркий светодиод Время работы от 4 до 15 часов Ударопрочность средние ударные нагрузки Дополнительные характеристики: Высота 19 мм Вес 0.034 кг Длина упаковки 150 мм Ширина упаковки 150 мм Высота упаковки 10 мм Объем упаковки, м³ 0.0002 Вес с упаковкой 0.5 кгПроизводитель: Яркий Луч Цвет: GLO-TOOB красный Материал корпуса: Пластик Время непрерывной работы: 4-15 час Срок службы: 5 лет Гарантийный срок эксплуатации, месяцев: 24 Глубина погружения, не менее, метров: 60 Источник света: Светодиод (LED) Источник питания: Батарейка Длина: 75 мм Ширина: 19 мм

950 руб.
Санкт-Петербург
Автомобильное зарядное устройство - АЗУ-7.2П

Автомобильное зарядное устройство - АЗУ-7.2П

Автомобильное зарядное устройство - АЗУ-7.2П импульсное, малогабаритное. Используется для заряда аккумуляторов в фонарях (светильниках): ФАСК М - фонарь криптоновый аккумуляторный; ФАСК МГ - фонарь аккумуляторный галогенный; ФОС3 5/6 - фонарь аккумуляторный профессиональный; ФОС3 861 - фонарь аккумуляторный переносной; ФПС 4/6 ПМ - аккумуляторный фонарь поисково-спасательный; ФПС 4/6 ПМС - фонарь аккумуляторный светодиодный; ФПС 4/6 - фонарь светодиодный поисково-спасательный; ФР 6 - фонарь-фара; Экотон 1 - фонарь аккумуляторный светодиодный профессиональный; Экотон 2 - профессиональный переносной светодиодный фонарь; и прочих изделий, укомплектованных свинцовыми герметизированными, а так же литий-ионными аккумуляторными батареями напряжением 6 Вольт и емкостью 1-10 Ампер/час. Зарядные устройства выполнены в корпусе из ударопрочного пластика. Устройство нельзя использовать в помещениях, характеризующихся повышенной влажностью, токопроводящей пылью, а также пожароопасными и взрывоопасными условиями. Устройство обеспечивает режим заряда аккумуляторной батареи падающим током. Начальная величина зарядного тока 0,5 Ампер ±10%. Дополнительные характеристики: Тип индикатора заряда Светодиод Минимальная рабочая температура -10 °С Максимальная рабочая температура 40 °С Гарантийный срок эксплуатации, месяцев 12 Длина 125 мм Ширина 35 мм Высота 35 мм Длина упаковки 130 мм Ширина упаковки 40 мм Высота упаковки 40 мм Объем упаковки, м³ 0.0002 Вес с упаковкой 0.1 кгПроизводитель: Транском Тип зарядного устройства: Импульсный Тип аккумулятора: Свинцово-кислотный (SLA) Напряжение питания: 12-24 В Напряжение заряда: 7.2 В Максимальный ток заряда: 0.65 А Потребляемая мощность: 5 Вт Количество заряжаемых аккумуляторов: 1 шт Наличие вольтметра: Нет Наличие амперметра: Нет Индикатор заряда аккумуляторов: Да

750 руб.
Санкт-Петербург