продажа торгового центра

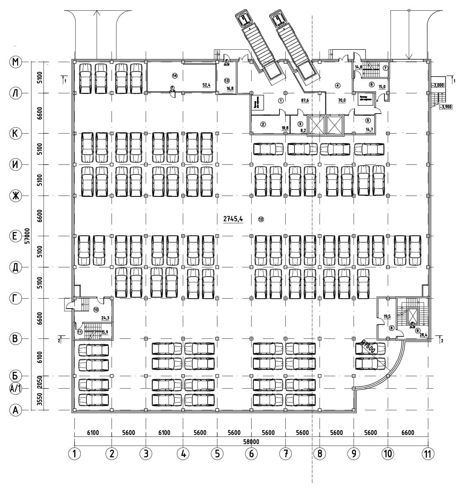
Предлагается к продаже новый многофункциональный торговый центр, расположенный в г. Новороссийск, мкр. Южный, пр. Дзержинского, 231.
🏙️ Район с высокой плотностью населения один из самых высоким покупательским трафиком. Инфраструктура развитая жилая застройка, хорошая транспортная доступность и отсутствие крупных торговых конкурентов в непосредственной близости.
📐 Площади:
Общая проектная площадь: 14 000 м²
Полезная коммерческая площадь: 12 500 м²
Земельный участок: 50 соток (в собственности)
🏢 Архитектура и функционал: 2 надземных этажа — коммерческо-торговое назначение (готовы под ТЦ, офисы, фуд-корт, развлечения).
2 подземных этажа — паркинг на 300+ машиномест.
⚡ Коммуникации (полностью подведены):
✔ Электроснабжение: 500 кВт (собственная ТП).
✔ Централизованное отопление от городских теплосетей (подведены).
✔ Центральное водоснабжение и канализация (подведены и подключены).
✔ Лифтовое оборудование: приобретены и готовы к монтажу современные пассажирские и грузовые лифты, эскалаторы.
🌿 Благоустройство: ведутся работы по озеленению и обустройству прилегающей территории — создание комфортной городской среды.
📅 Сдача в эксплуатацию: II квартал 2026 года.
💼 Поддержка арендаторов: готовы передать контакты проверенной управляющей компании из г. Ростов-на-Дону, специализирующейся на привлечении и удержании якорных и розничных арендаторов.
💰 Стоимость: 650 млн ₽.

🎯 идеально подходит для:
1. Стратегического инвестора, ищущего стабильный cash-flow от коммерческой недвижимости.
2. Ритейлеров крупной розничной сети для размещения флагманского объекта.
3. Инвестиционного фонда или девелоперов, ищущих объект с прогнозируемым доходом.
10.03.2026

Другие объявления автора: Сергей АН Современный город

Продажа мельничного комплекса

Продажа мельничного комплекса

Продаётся действующий мельничный комплекс в г. Абинске Ключевое преимущество: Готовый зерноперерабатывающий бизнес «под ключ» с современными мощностями хранения и возможностью расширения под переработку риса. Характеристики комплекса: • Год постройки складов: 2014. • Земельный участок: 2 Га, право собственности. • Документы: Право собственности на всё имущество (включая земельный участок) подтверждено 5 свидетельствами Росреестра по Краснодарскому краю. Мощности и инфраструктура: • Хранение зерна (напольное): 30 000 тонн единовременно. • 2 ангара, общая площадь 9 000 м², высота потолков 8 м. Действующая мельница в настоящее время работает: • Производительность по зерну — 100 тонн в сутки. • Склад готовой продукции: 3 000 тонн. Оборудование (Турция/ Швейцария): • Электронные грузовые автомобильные весы (грузоподъемность 100 тонн). Коммуникации: • Электричество — своя трансформаторная подстанция (ТП) на территории. • Вода — центральная. • Газ — не подведён. • Подъездные пути — асфальт. Перспективы развития (бонус для инвестора): Абинский район и близлежащие районы являются рисоводческими. На базе комплекса можно восстановить цех по обработке риса-сырца. Продавец может оказать содействие в поиске и покупке оборудования для переработки риса. Локация: г. Абинск, находится в 70 км от порта Новороссийск и в 70 км от г. Краснодар. Менеджер по продаже Сергей Александрович

110 000 000 р.
Краснодарский край
Ищем стратегического инвестора в завод по производству базальтового непрерывного волокна (БНВ)

Ищем стратегического инвестора в завод по производству базальтового непрерывного волокна (БНВ)

🔥 Ищем стратегического инвестора в завод по производству базальтового непрерывного волокна (БНВ)* 📍 Локация: РФ, Ростовская область (ЮФО) 💰 Инвестиции: 5 млрд ₽ ⏱ Окупаемость: 5,8 лет (консервативный сценарий) 📈 IRR: 22–28% Почему это один из самых интересных промышленных проектов сейчас 📌 Рынок растёт взрывными темпами; глобальный спрос на базальтовое волокно вырастет в 3,5 раза к 2030 году (данные Grand View Research). В РФ — полный дефицит качественного БНВ, огромная зависимость от импорта (Китай, Турция). 📌 Стратегическое импортозамещение; продукция нужна авиации, оборонке, нефтегазу, дорожному строительству и ЖКХ. Госзаказ + сертификация для оборонной промышленности уже проработаны. 📌 Своя патентованная технология; снижение расхода платинородиевых фильер на 60% → себестоимость на 30–40% ниже мировых аналогов. Это даёт огромное конкурентное преимущество. 📌 Модульный запуск без рисков; первая линия — 1500 тонн в год уже через 24 месяца. Кредитные каникулы на 2 года под 5–9% годовых. Продукция и рынки (все позиции с платёжеспособным спросом) БНВ (ровинг, фибра) — композиты, оборонка: • Теплоизоляция — строительство, ЖКХ • Армирующие сетки — дорожное строительство • Композитные трубы — нефтегаз, водоканалы • Баллоны высокого давления — авиация, транспорт Суммарный потенциал рынка РФ только по этим позициям — более 1 млрд $ в год. *Что получает инвестор:* ✅ Долю в высокотехнологичном производстве с IRR 22–28% ✅ Участие в импортозамещении стратегически важных материалов ✅ Право на лицензирование технологии в других юрисдикциях (Сербия, Кыргызстан — готовые площадки) ✅ Возможность последующего IPO или продажи профильному игроку (СИБУР, Росатом) Контакты для переговоров Сергей Александрович 📧 MIAG-modem@yandex.ru 📞 +7 928 662-6699

5 р.
Ростов-на-Дону
Продажа золота

Продажа золота

💰 ПРЕДЛОЖЕНИЕ: Золотые слитки Dore Bars — регулярные поставки Уважаемые партнеры и покупатели!* Предлагаем к сотрудничеству 🤝 надежного поставщика золота в слитках Dore Bars с африканского континента. Прямые контракты, прозрачные условия, полный пакет документов. 🔑 Ключевые параметры предложения: 🪙 Товар: Золотые слитки Dore Bars весом от 1 до 12.5 кг ✨ Чистота: от 22 карат (~92% и выше) 📦 Объем поставок: от 30 кг в месяц с возможностью увеличения 💵 Цена: со скидкой до 9% от официального котировочного индекса LBMA Gold Price AM/PM. 🌍 Происхождение: Африканский континент (предоставляется полный пакет легальных сопроводительных документов) 🚚 Условия поставки: ✅ FCA – склад/завод Продавца ✅ CIF AWSP – по согласованию с покупателем 💳 Способы оплаты (безопасные инструменты): 🔹 Аккредитив (LC), 🔹 Банковская гарантия (BG), 🔹 Standby LC (SBLC). 📋 Для начала сотрудничества: 1️⃣ Направьте LOI (Письмо о намерениях) от Покупателя или инициируйте официальную процедуру с условиями и требованиями со стороны Покупателя. 2️⃣ Заполненную анкету CIS/KYC (корпоративная карта компании) 🔐 Мы гарантируем: полную прозрачность, юридическую чистоту сделок и надежное долгосрочное партнерство без обхода посредников. 📞 Контакты для обсуждения деталей Сергей Александрович. 📱 +7 928 662-66-99 ⚡ Важно: Предложение актуально для серьезных покупателей и юридических лиц. Работаем строго по официальным процедурам и международным стандартам. 🔁 поделитесь этим предложением с партнерами, которым это может быть интересно!

92 000 р.
Краснодарский край
Продажа квартиры

Продажа квартиры

Продаётся 4-комнатная квартира общей площадью 125 кв. м, расположенная на 6 этаже 6-этажного дома. Большая кухня-гостиная 17 кв. м, зал 31 кв. м, хозяйская спальня 19 кв. м, детская спальня 15 кв. м и игровая комната 17 кв. м. В квартире 3 санузла (по одному со спальни и детской, и один раздельный гостевой). Вся мебель (встроенные шкафы в каждой спальне) и бытовая техника остаются в квартире. Видовые характеристики: море и горы. Высокоскоростной интернет и цифровое телевидение, камера видеонаблюдения на лестничную площадку. Развитая инфраструктура: школа, садик, магазины, объекты общественного питания, остановка общественного транспорта. До моря 30 минут пешком. В настоящее время квартира находится в ипотеке под ставку 11,75% годовых. Возможно переоформление ипотеки, остаток по ипотеке 2 млн ₽.

13 000 000 р.
Геленджик
Продажа портового терминала Советская Гавань

Продажа портового терминала Советская Гавань

Коммерческое предложение по продаже терминального комплекса в морском порту «Советская Гавань" - порт, расположенный в заливе западного побережья Татарского пролива Японского моря. Морской порт Советская Гавань специализируется на перегрузке навалочных, генеральных, лесных и нефтеналивных грузов. Также в порту развита перевалка морепродуктов для нужд рыбоперерабатывающих комплексов, производящих продукцию на внутренний рынок России. Территорию возможно использовать под бизнес связанного с экспедированием и обработкой грузов: экспорт-импорта зерновых (зерна, масленичных культур), экспорт-импорта различных навальных грузов. В состав имущественный комплекса входит: • земельный участок общей площадью 12 Га, расположенный на первой береговой линии. • причальной стенкой для судов, длина причальной стенки 237 метров. • погрузочные краны 3 шт, КПМ-32/16, КПМ-20/10 и кран козловой КК-12.5. • подъездные автомобильные пути (асфальтированный), до Ж/Д ветки 8 км. • Лицензия 1, 3, 4, 5, 6, 8, 9 классов опасности. Готовы к взаимному сотрудничеству, для получения более подробной информации, встречи осмотра объекта, запрос по документам, со стороны Покупателя нужно официальное письмо о заинтересованности с подписание «Соглашением о конфидициальности». Стоимость данного актива 120 млн. долларов. Также можем предложить другие варианты портовых терминалов в портах Находка, Владивосток, Керчь.

10 000 000 000 р.
Хабаровск
Продажа кредитного учреждения

Продажа кредитного учреждения

.Предлагается к продаже кредитное учреждение действующий банк. • Организационно-правовая форма ООО. • Лицензия: Базовая. • Продается 100% долей. • Рейтинг банка входит в топ 300 банков. • Локация: г. Москва и ЦФО РФ. • Уставной капитал: от 80 до 600 млн рублей. По каждому банку разные активы, депозиты и кредитный портфель. Мы можем Вам предложить на рассмотрение три варианта на продажу, стоимость банков от 750 млн рублей до 1.3 млрд рублей. ❖ Продажа будет проходить в соответствии с действующим законодательством РФ и требованиями ЦБ РФ. Продажа банка только/исключительно посредством прямой купли-продажи за собственные средства покупателя! ❖ Процедура покупки банков осуществляется за собственные средства покупателя при соблюдении следующих условий: а) чистая прибыль после уплаты всех налогов; б) прозрачная/читаемая история происхождения денежных средств; в) отсутствие требований/предписаний со стороны ФНС РФ; г) средства не подпадают под ФЗ №115 от 07.08.2001. • Процедура работы/сотрудничества со стороны покупателя: техническое задание на фирменном бланке юридического лица с подписью и печатью генерального директора. После проверки заключается агентский договор с покупателем (%). Обращаем Ваше внимание, что предложения по вливанию денежных средств от фондов, инвесторов и систему Telex - НЕ ПРЕДЛАГАТЬ! Если у Вас возникли вопросы относительно вышеупомянутого предложения, пожалуйста, свяжитесь со мной по телефону. С уважением, Сергей Александрович.

1 000 000 000 р.
Москва
Просторный дом с участком в тихом пригороде Краснодара

Просторный дом с участком в тихом пригороде Краснодара

Продаётся просторный кирпичный дом в тихом и обжитом пригороде Краснодара. Удобное расположение, большая площадь и полноценный участок делают этот объект практичным вариантом для семьи. Дом 1977 года постройки, общей площадью 177,1 м². Планировка продумана: на первом этаже кухня 25,1 м², три комнаты 17,4 м², 10,1 м² и 16,2 м², санузел 3,4 м² и прихожая 5 м². На втором этаже ещё три комнаты 17,8 м², 10,1 м² и 9,5 м². Есть мансардный уровень. Кухня большая и светлая, с окнами на юго-восток. Остаётся кухонный гарнитур и мебель. В доме частично выполнен ремонт: установлены металлопластиковые окна, заменены двери, в комнатах обои, на полу дерево и плитка в функциональных зонах. Дом жилой, можно заехать и постепенно обновлять под себя. Коммуникации: центральный газ, отопление, газовая колонка, своя скважина, септик, электричество 15 кВт. Интернет от основных провайдеров. Есть гараж в доме. Участок 12,8 сотки, ухоженный, с садом и огородом. Растут плодовые деревья и ягоды: груша, слива, абрикос, виноград, малина, смородина и другие. Двор забетонирован, есть освещение и ливнёвка. Дом находится в центре посёлка. В шаговой доступности школа (буквально рядом), детский сад, магазины, аптека, почта и медицина. Удобный выезд в Краснодар, ходят автобусы. Рядом река Кубань, хорошее место для отдыха. Документы в порядке, без обременений. Возможна ипотека, покупка по маткапиталу, сертификатам.

8 550 000 р.
Краснодар
Жилой дом 352 м² с зимним садом, баней и гаражом на 13 сотках в Шлиссельбурге

Жилой дом 352 м² с зимним садом, баней и гаражом на 13 сотках в Шлиссельбурге

🏡 Просторный дом 352 кв.м с зимним садом, баней и гаражом на 13 сотках в Шлиссельбурге 🌳 Представьте себе, что вы просыпаетесь в светлой спальне, спускаетесь на кухню с видом на зеленый газон, а дети уже качаются на качелях или играют в спортзале. Здесь нет городской суеты, но есть все для счастливой семейной жизни. 🔥 Трехэтажный дом 352 кв.м 2004 года постройки в тихом массиве ИЖС города Шлиссельбург (Кировский район ЛО). Крепкий фундамент-плита, надежные стены (блоки + теплое дерево), качественная отделка внутри и снаружи. Планировка, где каждый найдет свое место: • 1 этаж 🛠️: прихожая, раздельный санузел (с ванной), прачечная, кладовые, полноценный спортзал 💪, котельная, гараж на машину, крытое крыльцо. • 2 этаж ☕: кухня 20 кв.м + гостиная, гостевая, кабинет, настоящий зимний сад 🌿 (зимой цветут растения, летом — продолжение гостиной), санузел с ванной-джакузи и душевой. • 3 этаж 🛏️: три светлые спальни, кладовая, отдельный туалет. Деревянные лестницы с перилами добавляют тепла. Участок 13 соток (1320 кв.м) — ровный, сухой, с готовым ландшафтом: мощеные дорожки, клумбы, газон, взрослые деревья. На участке уже есть: • Отдельная баня + домик для барбекю 🍖 (идеально для семейных вечеров и друзей), • Теплица, хозблок, вольер для собаки, • Два навеса (для авто и над качелями). Полностью огорожен металлопрофилем, есть откатные ворота и калитка. Коммуникации: • Центральная вода, • Магистральный газ, • Трехфазное электричество 15 кВт + автоматический дизель-генератор 10 кВт ⚡, • ЛОС, охранная сигнализация на пульт, газовый котел + электрокамин в прихожей. Рядом: школы, детские сады, поликлиника, Нева 1,5 км, до метро Рыбацкое — 26 мин на автобусе, КАД — 33 км. Важно: Участок в зоне санитарной охраны (реестр 47:00-6.300). Ограничения по бурению скважин и удобрениям не мешают проживанию под ИЖС. Дом ухоженный, в отличном состоянии, готов к заселению. Звоните — покажем и ответим на вопросы!

28 500 000 р.
Шлиссельбург
Светлая и функциональная 3-комнатная квартира

Светлая и функциональная 3-комнатная квартира

Продаётся просторная 3-комнатная квартира в Юбилейном микрорайоне по адресу ул. 70-летия Октября, 6 - одном из самых комфортных и востребованных районов Краснодара. Квартира расположена на 10 этаже 10-этажного панельного дома 1988 года. Верхний этаж - это отсутствие шума от соседей сверху и больше уединения. В 2026 году в доме выполнен капитальный ремонт: полностью заменены кровля и стояки воды, канализации и ливневых стоков. В подъезде установлен домовой прибор природного регулирования, что позволяет снижать размер платы за отопления в несколько раз. Общая площадь - 68,2 м², жилая - 41,3 м². Планировка удобная: все комнаты изолированные, правильной формы, просторная прихожая с отдельной гардеробной, кухня квадратная, комфортная для повседневной жизни. Один из балконов застеклён и утеплён, проведено освещение, есть розетки, тёплый пол. Можно использовать как рабочее место или зону отдыха. Кухня площадью 7,8 м² с декоративной штукатуркой на стенах, натяжным потолком и кварц-винилом на полу. Установлены газовая плита, вытяжка, есть фильтр для питьевой воды и сплит-система. Остаётся кухонный гарнитур, стол и стулья. Три комнаты площадью 12,7 м², 12,3 м² и 17 м². Все в хорошем состоянии: на стенах обои и декоративная штукатурка, потолки натяжные, на полу ламинат. В большой комнате установлена сплит-система. Планировка позволяет удобно расставить мебель и при необходимости зонировать пространство, например, под детскую для двух детей. Санузел совмещённый, 4,3 м²: плитка на стенах и полу, натяжной потолок, установлена ванна и полотенцесушитель. Прихожая просторная - 10,8 м², с отдельной гардеробной. На полу ламинат, стены оклеены обоями. В квартире полностью заменена электропроводка на медную, увеличены подоконники. Заменены стояки и радиаторы отопления, все сантехнические трубы. Интернет - Ростелеком, Билайн, МТС. Двор благоустроен, зелёный и ухоженный. В шаговой доступности есть всё необходимое: детский сад №230, рынок, почта, магазины «Табрис» и «Пятёрочка», спортивный комплекс им. А.Ф. Саврасенко, Рождественский парк. До лицея №90 около 800 метров. Хорошая транспортная доступность: рядом трамваи №6, 11, 21, троллейбус №8 и маршрутные такси. Квартира продаётся с мебелью и частично техникой: остаётся кухня, вытяжка, варочная поверхность, стол, стулья и гардеробная. Отличный вариант для семьи: можно заехать и жить без дополнительных вложений.

8 500 000 р.
Краснодар
НЕБОЛЬШАЯ ГОСТИНИЦА В ИСПАНИИ

НЕБОЛЬШАЯ ГОСТИНИЦА В ИСПАНИИ

Уютная действующая семейная гостиница с рестораном в нескольких минутах ходьбы (50 м.) от пляжей живописного приморского городка в самом сердце Коста Брава в 30-ти км. от Жироны. 16 номеров на 40 человек. Во всех номерах отеля ванная комната и телевизор, большинство комнат с балконом. Ресторан, бар, террасы. Последний ремонт был сделан зимой 2018-2019 г. Цена 1.990.000 €. Подробнее – по запросу.

189 000 000 р.
Москва
ГОСТИНИЦА В ИСПАНИИ

ГОСТИНИЦА В ИСПАНИИ

ГОСТИНИЦА 3*** НА ПОБЕРЕЖЬЕ ВАЛЕНСИИ Действующая гостиница 3*** в пешей близости от песчанного пляжа с голубым флагом на побережье Валенсии. 6-ти этажная гостиница общей площадью жилых этажей 3.870 кв.м. построена в 1978 г. на участке земли в 716 кв.м., в 2010 г. был сделан капитальный ремонт. Гостиница имеет 135 номеров из которых 110 - двойных и 15 - индивидуальных. Имеются номера адаптированные для инвалидов. На крыше здания находятся открытый бассейн, солярий, джакузи с сауной и фитнесс зал. Гостиница располагает рестораном буфетом для проживающих, баром-рестораном, банкетным залом и парковкой. В 10-ти минутах на машине местный гольф клуб. 70 км. до Валенсии ЦЕНА 6.500.000€

617 500 000 р.
Москва