Втулки пальцы ковшевой трапеции CAT 320D2L

Производство Турция и Корея.
Сальник 235-7679 - 2 - 600 руб. шт.
O-Кольцо 367-8467 - 4 - 900 руб. шт.
Сальник 166-1494 - 10 - 600 руб. шт.
Втулка 244-4360 - 2 - 3800 руб. шт.
Палец рукоять- тяга трапеции 254-3052 - 1 - 12600 руб. шт.
Втулка 229-1096 - 2 - 3500 руб. шт.
Палец ковш - рукоять 087-5805 - 2 - 9850 руб. шт.
Втулка 240-2913 - 2 - 3500 руб. шт.
Втулка 240-2912 - 2 - 3500 руб. шт.
Кольцо проставочное 166-1486 - 2 - 410 руб. шт.
Палец трапеция - г/ц ковша 254-3053 - 1 - 9350 руб. шт.
Втулка 241-7382 - 1 - 4100 руб. шт.
03.05.2025

Другие объявления автора: Андрей

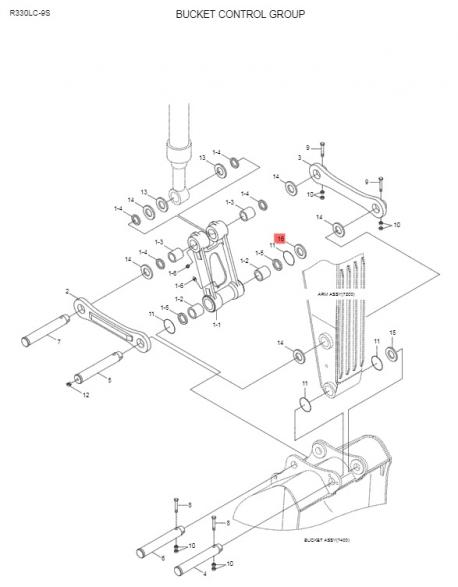
Втулки пальцы ковшевой трапеции HYUNDAI R330LC-9S рукоять 3,   2 м

Втулки пальцы ковшевой трапеции HYUNDAI R330LC-9S рукоять 3, 2 м

Производство Турция и Корея. Палец ковш-рукоять 61NA-40052 - 17 000 руб. шт. Палец ковш трапеция 61NA-40072 - 16 000 руб. шт. Палец трапеция-гидроцилиндр 61NA-40081 - 12 500 руб. шт. Палец рукоять- тяга трапеции 61NA-40081 - 12 500 руб. шт. Втулка трапеция низ 61QH-83430 - 2 шт. - 5400 руб. шт. Втулка трапеция верх 61Q6-05040 - 2 шт. - 5000 руб. шт. Сальник трапеция низ Y020-100111 - 2 шт. - 470 руб. шт. Сальник трапеция верх Y020-090111 - 4 шт. - 450 руб. шт. О-кольцо ковшевое 61Q6-06540 - 4 шт. - 800 руб. шт. Шайба проставочная трапеция верх S993-090170 ( 2 мм) аналог сталь - 2 шт. - 410 руб. шт. Шайба проставочная трапеция верх S991-090170 ( 1 мм) аналог сталь.- 6 шт. - 410 руб. шт. Шайба проставочная трапеция низ S391-100165A ( 1 мм) аналог сталь - 1 шт. - 450 руб. шт. Втулка рукоять-ковш 61QH-89160 - 2 шт. - 5800 руб. шт. Втулка рукоять - тяга трапеции - 61Q6-04070 - 2 шт. - 3600 руб. шт. Сальник рукоять-ковш Y020-100111 - 2 шт. - 470 руб. шт. Сальник рукоять- тяга трапеции Y020-090111- 2 шт. - 450 руб. шт. Крышка втулки рукояти 61Q9-21301 - 2 шт. - 10 000 руб. шт.

128 210 руб.
Втулки и пальцы экскаватора погрузчика CAT 432F

Втулки и пальцы экскаватора погрузчика CAT 432F

В наличии пальцы и втулки экскаватора погрузчика CAT 432F Втулка свинг пост- стрела 331-1521 - 2 шт. - 2 500 руб. шт. Пелец стрела -свинг пост 386-3778 - 1 шт. - 7800 руб. шт. Палец свинг пост- г/ц поворота 310-0851 - 2 шт. - 4100 руб. шт. Втулка проишины г/ц поворота стрелы 274-4274 -2 шт. - 2200 руб. шт. Втулка корпуса г/ц поворота стрелы 9T-2883 - 4 шт. - 1650 руб. шт. Втулка в раму для поворотногоцилиндра 9R-4110 - 4 шт. - 1800 руб. шт. Палец свинг пост верх 316-6952 - 1 шт. - 6100 руб. шт. Палец свинг пост низ 316-6951 - 1 шт. - 6800 руб. шт. Втулка в сдвижную раму верх-свинг пост 331-1522 - 1 шт. - 2100 руб. шт. Втулка в сдвижную раму низ-свинг пост 331-1521 - 1 шт. 2500 руб. шт. Втулка свинг пост - г/ц поворота 213-6702 - 4 шт. - 1800 руб. шт. Втулка рукоять -ковш 9R-0162 - 2 шт. - 2300 руб. шт. Втулка рукоять- трапеция 9R-3092 - 2 шт. - 1750 руб. шт. Палец рукоять-трапеция 320-9164 -1 шт. - 3850 руб. шт. Палец рукоять- ковш 154-5280 - 1 шт. - 4300 руб. шт.

2 500 руб.
Втулки пальцы ковшевой трапеции Volvo EC300DL рукоять 3,      05 м HD

Втулки пальцы ковшевой трапеции Volvo EC300DL рукоять 3, 05 м HD

Производство Турция и Корея Втулка ковш-рукоять 14550165 - 2 - 4300 руб. шт. Втулка трапеция-рукоять 14550166 - 2 - 3000 руб. шт. Сальник ковш-рукоять 14560207 - 2 - 700 руб. шт. Сальник трапеция-рукоять 14560206 - 2 - 700 руб. шт. Палец трапеция- рукоять 14541660 - 1 - 12500 руб. шт. Палец трапеция - гидроцилиндр 14541660 - 1 - 12500 руб. шт. Втулка трапеции 14880984 - 4 - 3700 руб. шт. Сальник трапеции 14560206 - 6 - 450 руб. шт. Палец ковш-рукоять 14550901 / 14650979- 1 - 15800 руб. шт. Палец ковш-трапеция 14511730 - 1 - 13000 руб. шт.

88 700 руб.

Втулки пальцы ковшевой трапеции Volvo EC 290BLC рукоять 3, 05 м HD

Втулки пальцы ковшевой трапеции Volvo EC 290BLC рукоять 3,05 м HD Втулка ковш-рукоять 14550165 - 2 - 4300 руб. шт. Втулка рукоять-трапеция 14550166 - 2 - 3000 руб. шт. Сальник ковш-рукоять 14560207 - 2 - 700 руб. шт. Сальник трапеция-рукоять 14560206 - 2 - 450 руб. шт. Палец трапеция- рукоять 14511754 - 1 - 12500 руб. шт. Палец трапеция - гидроцилиндр 14541660 - 1 - 12500 руб. шт. Втулка трапеции 14880984 - 4 - 3700 руб. шт. Сальник трапеции 14560206 - 6 - 450 руб. шт. Палец ковш-рукоять 14550901 - 1 - 15800 руб. шт. Палец ковш-трапеция 14511730 - 1 - 13000 руб. шт.

12 500 руб.
Фильра для CASE 695ST

Фильра для CASE 695ST

Продам фильтра для экскаватора погрузчика CASE695ST. Фильтра компании Donaldson оригинал. Очень хорошее качество. Фильтр масляный 84559022 - 1850 руб. шт. Фильтр топливный водосепаратор 84559022 - 3000 руб. шт. Фильтр топливный 84412164 - 2000 руб. шт. Фильтр воздушный 87631623+87631625- 6500 руб.шт. Фильтр КПП ( коробки передач) 254686A2 - 7500 руб.шт. Фильтр гидравлический сливной 84255607 - 8500 руб. шт.

1 850 руб.
Поворотная рама (Swing post)     15645739

Поворотная рама (Swing post) 15645739

Продам поворотную раму для экскавтора-погрузчика Volvo BL (Swing post) 15645739. Аналог произведено в Европе.

150 000 руб.
Балочный МТЗ - любит работать

Балочный МТЗ - любит работать

erid: 2SDnjeZXr2W Реклама. ООО "Доминант", ИНН: 772З4З2460, ОГРН 116774618З956 https://dominantt.ru/kolesnye/?erid=2SDnjeZXr2W Надёжная «рабочая лошадка»! Помощник для фермера, коммунальщиков, строителей. Основные характеристики: • Мощность двигателя — 81 л.с. (Д-243/Д-245) • Полный привод 4×4 с блокировкой дифференциала • Грузоподъёмность задней навески — 3200 кг • Топливный бак — 130 литров • 18 передач вперёд / 4 назад • Дорожный просвет — 465 мм • Комфортная кабина с отопителем (возможна комплектация с кондиционером) Почему выбирают именно МТЗ балочный: • Неприхотливый и надёжный дизель • Огромный выбор навесного оборудования (плуг, косилка, погрузчик, щётка, фреза, прицепы и многое другое) • Экономная эксплуатация и доступные запчасти по всей России • Отлично работает по грязи, снегу и на пересечённой местности Трактор новый, в наличии, с ПСМ. Обращайтесь — поможем подобрать комплектацию под ваши задачи!

Москва
Экскаватор-погрузчик SHANMON 388H

Экскаватор-погрузчик SHANMON 388H

Новый Экскаватор погрузчик SHANMON 388, ВLACK EDITION, самая новая 7 версия! Год выпуска: 2025 Со всеми обновлениями: двигатель YC4A110Z-T23 81 Квт / 110 л.с., мосты CARRARO (ИТАЛИЯ), крабовый ход, габаритная экскаваторная стрела типа JCB с усиленными г/цилиндрами, педаль управления телескопической стрелой, вертикально расположенные шланги на экскаваторной стреле, дополнительный радиатор охлаждения, аксиально-поршневой насос увеличенной производительности Hengli 160 л/мин, чувствительный распределитель EATON, электронно – управляемая КПП POWER SHIFT, паллетные вилы, ГИДРОМОЛОТ В ПОДАРОК! - Грузоподъемность: 2500 кг - Масса: 10 800 кг - Двигатель: Yuchai YC4A105Z-T20 – 110 л.с. Преимущества нашей техники: * Безопасная и комфортная кабина (ROPS-FOPS) * Передний и задний быстросъемный механизм * Челюстной ковш 4в1 объемом 1,2 м3 * Телескопическая стрела * Передняя и задняя гидролиния Тип управления: джойстик Тип КПП: автоматическая Размер шин: 19.5L-24 Емкость ковша: 1.2 м3 Габариты (ДхШхВ): 6530х2500х3960 мм Глубина копания: 5070 мм Кресло оператора: регулируется Модель оснащена кондиционером. Экскаватор погрузчик SHANMON 388 аналогична по классу с Kaiman 4RX, STI 3CX, BULL 3SX, Leist Gross LG780, Leist Gross LG788, Builder BL30-25, Shanmon 388 H, Shanmon SAM 388H, Redstar T28/28, Laigong LGB88H, Runmax SE460, Bizon 888, Zauberg EF 4Y, Zauberg EF 4C

7 098 000 р.
Казань
Танк-контейнер газовый

Танк-контейнер газовый

Танк-контейнер T 50. Год выпуска: НОВЫЙ Объём колбы – 22 500 литров. Рабочее давление: 34,0 бара. Температура экспл.: -40 +65°. ______________________________________________________ Отлично подойдет для перевозки и хранения газов. Высокое рабочее давление дает возможность работы с широким спектром продуктов. Осмотр танк контейнера заказчиком осуществляется по договоренности в удобное время. Бесплатная доставка по СПБ!!! Возможен самовывоз с контейнерного терминала, либо доставка по России и странам СНГ. ______________________________________________________ Каждый продаваемый нами ТК, полностью обслужен. Все узлы и агрегаты находятся в рабочем состоянии. Поставляется заказчику тщательно замытым, обработанным паром и полностью готовым к загрузке. Компания Итака-Транс - эксперт в перевозке наливных грузов различных видов и классов опасности, осуществляет транспортировку жидкостей преимущественно в танк-контейнерах. Так же компания занимается продажей всех видов и модификаций танк-контейнеров. Продукцию можно приобрести из наличия, либо под заказ.

Москва
Танк-контейнер 24 000 литров БУ (отличное состояние)

Танк-контейнер 24 000 литров БУ (отличное состояние)

В наличии Танк-контейнер LBGU2423138. Год выпуска: 2010 г. Объём колбы - 23 980 литра. Материал колбы: нерж. 316L. Рабочее давление: 4,0 бара. Температура экспл.: -40 +130°. Собственная масса контейнера (тара) - 3660 кг. Технически допустимая полная масса - 36000 кг. Контейнер имеет минеральную прослойку, термоизоляцию и пароподогрев. ______________________________________________________ Отлично подойдет для перевозки и хранения опасных и безопасных наливных грузов. Осмотр танк контейнера заказчиком осуществляется по договоренности в удобное время. Бесплатная доставка по СПБ!!! Возможен самовывоз с контейнерного терминала, либо доставка по России и странам СНГ. ______________________________________________________ Каждый продаваемый нами ТК, полностью обслужен. Все узлы и агрегаты находятся в рабочем состоянии. Поставляется заказчику тщательно замытым, обработанным паром и полностью готовым к загрузке. Компания Итака-Транс - эксперт в перевозке наливных грузов различных видов и классов опасности, осуществляет транспортировку жидкостей преимущественно в танк-контейнерах. Так же компания занимается продажей всех видов и модификаций танк-контейнеров. Продукцию можно приобрести из наличия, либо под заказ.

Ямало-Ненецкий АО
Танк-контейнер новый

Танк-контейнер новый

В наличии: Танк-контейнер LBGU261792-0: Тип: T11 Год выпуска: 2024 г. Объём колбы - 25940 литра. Материал колбы: нерж. 316L. Рабочее давление: 4 бара. Температура экспл.: -40 +130°. Технически допустимая полная масса - 36000 кг. Контейнер оборудован минеральной прослойкой, термоизоляцией и пароподогревом. ___________________________________________________ Отлично подойдет для перевозки и хранения опасных и неопасных наливных грузов. Осмотр танк контейнера заказчиком осуществляется по договоренности в удобное время. Бесплатная доставка по СПБ!!! Возможен самовывоз с контейнерного терминала, либо доставка по России и странам СНГ. ___________________________________________________ Каждый продаваемый нами ТК, полностью обслужен. Все узлы и агрегаты находятся в рабочем состоянии. Поставляется заказчику тщательно замытым, обработанным паром и полностью готовым к загрузке. Компания Итака-Транс - эксперт в перевозке наливных грузов различных видов и классов опасности, осуществляет транспортировку жидкостей преимущественно в танк-контейнерах. Так же компания занимается продажей всех видов и модификаций танк-контейнеров. Продукцию можно приобрести из наличия, либо под заказ.

Челябинская область