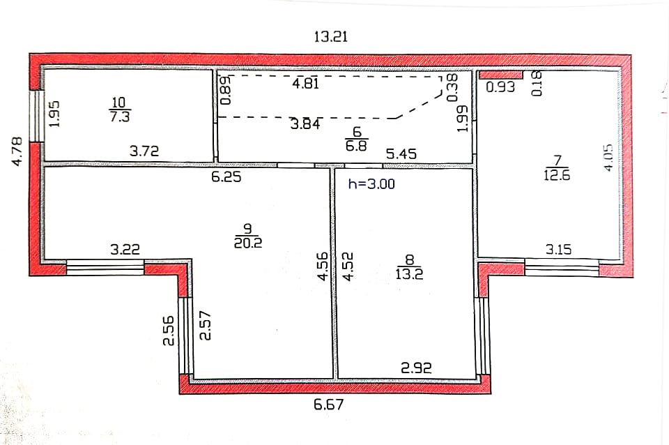
В продаже уютный и тёплый двухэтажный дом

Предлагается к продаже капитальный двухэтажный жилой дом 2015 года постройки, с обновлённым ремонтом (2021 г.). Общая площадь - 112 м², жилая - 46 м². Участок - 2 сотки. - Кирпичные стены толщиной 35 см - Ленточный фундамент - Высота потолков 2,9 м - Утепление стен и кровли - Дом тёплый, с хорошей шумоизоляцией. Первый этаж: Кухня-гостиная 34,2 м², санузел 5,2 м² (душевая). По всему этажу - система тёплого пола. Второй этаж: Три изолированные спальни (20,2 / 13,2 / 12,6 м²), санузел 7,3 м² (ванна). Инженерные системы: - Центральное газоснабжение - Электричество - 10 кВт - Скважина - 35 м - Септик - 8 м³ - Биметаллические радиаторы - Интернет. Участок: Фасад 21 м, кирпичный забор. Двор полностью забетонирован, организовано освещение. Парковочное место. Плодовые насаждения. Инфраструктура: В шаговой доступности магазины, аптеки, поликлиника №8, детские и спортивные площадки. До детского сада - 300 м, до школы - 1,8 км. Хорошая транспортная доступность, удобный выезд из города. Объект полностью готов к проживанию, дополнительных вложений не требует. Подходит для семьи, ценящей тишину и комфорт при близости городской инфраструктуры.
13.03.2026

Другие объявления автора: Арина

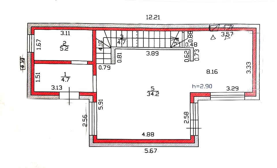
Просторный дом с четырьмя комнатами в развитом районе Краснодара

Просторный дом с четырьмя комнатами в развитом районе Краснодара

Продаётся одноэтажный дом по адресу: ул. 3-й Архангельский проезд, 15. Отличный вариант для семьи, которая ищет готовое жильё без дополнительных вложений в одном из удобных и развитых районов города. Общая площадь дома - 106 м², жилая - 66,8 м². Внутри всё продумано для комфортной жизни: 4 изолированные комнаты, просторная кухня и большая прихожая. Дом тёплый зимой и остаётся прохладным летом за счёт качественного конструктива. Дом построен в 2015 году из газоблока, фасад облицован дагестанским камнем. Толщина стен 38 см с воздушной прослойкой. Фундамент ленточный, крыша утеплена минеральной ватой. Кухня площадью 15,1 м², правильной формы. Установлен кухонный гарнитур и техника, всё остаётся. Плита газовая, дополнительно сделан тёплый пол. В доме 4 комнаты: - 18,4 м² - 19 м² - 14,4 м² - 15 м² Все комнаты изолированные, удобной формы, полностью меблированы. Санузел 4,1 м² с ванной, отделан плиткой. Отдельное преимущество - большая прихожая 19,9 м², где легко организовать систему хранения. Состояние дома хорошее: на стенах обои, на полу ламинат, в кухне и санузле плитка, потолки натяжные. Можно заехать и жить сразу. Коммуникации: газ, электричество 15 кВт, собственная скважина 32 м, септик 8 м³. Участок 3 сотки, ухоженный. Двор вымощен брусчаткой, есть мангальная зона. Растут плодовые деревья и ягоды: абрикос, яблоня, груша, виноград, инжир, клубника, малина, а также декоративные розы. Район развитый и удобный для жизни. В шаговой доступности школы, детские сады, магазины «Пятёрочка» и «Магнит», аптеки, поликлиника №8. До школы около 2 км. Хорошая транспортная доступность: маршруты 29, 32 и 38. Рядом ТРЦ «Красная Площадь», «Баскет Холл» и «Центр самбо». Дом полностью готов к проживанию.

11 200 000 р.
Краснодар
Дом с просторной кухней-гостиной в п. Южный

Дом с просторной кухней-гостиной в п. Южный

Продаётся современный одноэтажный дом в п. Южный, мкр. Олимпийский. Удобное расположение рядом с Краснодаром, до города около 20 км. Площадь дома 140 м². Просторная кухня 50,15 м². Три изолированные комнаты: 17,2 м², 18,1 м² и 12,5 м². Санузел 6,6 м². Дом с предчистовой отделкой, готов к финальному ремонту под ваш вкус. Конструктив: Фундамент монолитный, свайно-ростверковый. Стены газоблок 300 мм, перегородки 150 мм. Облицовочный кирпич. Армирование по СНиП, усиленный армопояс. Пол монолитная плита 18 см. Кровля металлочерепица, обработка от влаги и вредителей. Коммуникации: Электричество 3 фазы, 10 кВт. Разводка электричества выполнена. Центральная канализация по улице. Септик 6 м³. Газ по меже, подключение планируется в 2027 году. Участок 10 соток, фасад 22 м. Много места под двор, парковку и зону отдыха. Посёлок активно развивается. Есть школа, детсад, медцентр, магазины, спортплощадки. Рядом ТРЦ Красная площадь. Отличный вариант для жизни рядом с городом.

9 600 000 р.
Краснодар
Перспективный участок с широкими возможностями

Перспективный участок с широкими возможностями

Продаётся многофункциональный участок в п. Берёзовый, с/т Витаминовец, ул. Полевая, 20. Площадь - 5 соток. Размеры участка 34 × 15 метров, фасад - 34 метра. Благодаря широкой фасадной линии участок отлично подходит как для строительства жилого дома, так и для коммерческого помещения — магазина, офиса, студии или другого объекта с хорошей визуальной доступностью с центральной улицы. Расположен на центральной улице, жителями уже собраны средства на её асфальтирование. Район престижный, тихий и спокойный, активно развивается. Коммуникации: газ проходит по меже, электричество подключено - 5 кВт. Межевание проведено. На участке есть двухэтажный дом площадью 42,8 кв.м. Возможна реконструкция или снос под строительство нового дома. Отличный вариант для тех, кто хочет построить дом мечты или реализовать коммерческий проект. Инфраструктура в шаговой доступности — всего 300 метров до детских и спортивных площадок, сетевых продуктовых магазинов, аптеки, пунктов выдачи маркетплейсов и остановки общественного транспорта (маршрутки №58 и 183а). Ходит школьный автобус. Участок с широкими возможностями и выгодным расположением - подойдёт как для жизни, так и для инвестиций.

4 300 000 р.
Краснодар
Современный двухэтажный дом

Современный двухэтажный дом

Продаётся тёплый и комфортный 2-этажный дом общей площадью 110,8 м² на участке 3 сотки в современном коттеджном посёлке «Вилланова», Краснодар. Дом построен из кирпича в 2018 году, ремонт выполнен в 2020-м. Планировка продуманная, комнаты светлые и правильной формы. Первый этаж: - кухня-гостиная 25,2 м² с выходом на задний двор, остаётся гарнитур и вся техника (духовой шкаф, варочная поверхность, вытяжка, холодильник); - комната 13,2 м²; - санузел 6,4 м² с ванной и душевой; - тёплый пол по всему этажу; - прихожая с встроенным шкафом-гардеробом; - кладовая под лестницей. Второй этаж: - три комнаты: 19,4 м², 12,4 м² и 12,4 м² (одна — с выходом на балкон); - санузел с ванной и тёплым полом; - гардеробная комната; - выход на чердак (можно сделать дополнительную большую комнату). Коммуникации - газовое отопление; - центральное водоснабжение; - электричество 5 кВт; - септик 12 м³; - оптоволоконный интернет Ростелеком; - кондиционеры в каждой комнате. Участок - 3 сотки: - брусчатка во дворе, - газон и декоративная сакура, - парковка на 4 автомобиля, - территорию можно доработать: баня, зона отдыха или бассейн.

18 000 000 р.
Краснодар
Дом, где уют встречает молодость

Дом, где уют встречает молодость

Продаётся тёплый дом с мансардой общей площадью 80 м² на участке 2 сотки по адресу: п. Берёзовый, ул. Атамана Рудзевича, 8/1, Краснодар. Дом построен в 2022 году, современный ремонт выполнен в 2024-м. Стены из отсевблока толщиной 39 см, утеплены пеноплексом (10 см), крыша утеплена минеральной ватой. Благодаря этому дом сохраняет комфортную температуру в любое время года. На первом этаже расположены: - кухня 18,1 м² с натяжным потолком, точечными светильниками, гарнитуром, электрической плитой и сплит-системой, - две спальни — 12,8 м² (с обоями, натяжным потолком и сплит-системой) и 9,8 м², - совмещённый санузел 4,1 м² с ванной, плиткой и кварцвиниловым полом, - прихожая 1,8 м² с местом под гардероб. На мансардном этаже (32,5 м²) можно обустроить две дополнительные комнаты и санузел. Лестница - деревянная. Все коммуникации подключены: - газовое отопление, - скважина 32 м, - септик 8 м³, - электричество 10 кВт, - оптоволоконный интернет (Ростелеком), - видеонаблюдение и освещение по периметру. Участок ухожен, фасад 20 м, установлены откатные ворота, есть место для парковки, плодовые деревья и зона отдыха. Инфраструктура развита: в 150 м - детская и спортивная площадки, рядом сетевые магазины, аптека, пекарня, пункты выдачи маркетплейсов. Ходит школьный автобус, поблизости поликлиника №8, общественный транспорт №183а и 58. Проведено межевание, есть технический паспорт. Все документы готовы к сделке. Дом отлично подойдёт для молодой семьи с детьми: тёплый, функциональный, в экологически чистом районе, с возможностью обустройства второго уровня под себя. В подарок - кухонный гарнитур и сплит-системы.

8 550 000 р.
Краснодарский край
Двухкомнатная квартира с ремонтом. Рядом ТЦ «Красная Площадь.

Двухкомнатная квартира с ремонтом. Рядом ТЦ «Красная Площадь.

Двухкомнатная квартира рядом с ТЦ «Красная площадь»! Сделан ремонт. Остается кухонная мебель, техника и места хранения. Планировка для семьи с детьми: предусмотрены просторные жилые комнаты, застекленный балкон. Из окон прекрасные виды. Буквально в 3-5 минутах от дома расположена школа и детский сад, ТЦ «Красная площадь» на таком же расстоянии. Остановка общественного транспорта поблизости, оттуда регулярно ходят маршрутные такси в любой район Краснодара

6 500 000 р.
Краснодар
Просторный дом с участком в тихом пригороде Краснодара

Просторный дом с участком в тихом пригороде Краснодара

Продаётся просторный кирпичный дом в тихом и обжитом пригороде Краснодара. Удобное расположение, большая площадь и полноценный участок делают этот объект практичным вариантом для семьи. Дом 1977 года постройки, общей площадью 177,1 м². Планировка продумана: на первом этаже кухня 25,1 м², три комнаты 17,4 м², 10,1 м² и 16,2 м², санузел 3,4 м² и прихожая 5 м². На втором этаже ещё три комнаты 17,8 м², 10,1 м² и 9,5 м². Есть мансардный уровень. Кухня большая и светлая, с окнами на юго-восток. Остаётся кухонный гарнитур и мебель. В доме частично выполнен ремонт: установлены металлопластиковые окна, заменены двери, в комнатах обои, на полу дерево и плитка в функциональных зонах. Дом жилой, можно заехать и постепенно обновлять под себя. Коммуникации: центральный газ, отопление, газовая колонка, своя скважина, септик, электричество 15 кВт. Интернет от основных провайдеров. Есть гараж в доме. Участок 12,8 сотки, ухоженный, с садом и огородом. Растут плодовые деревья и ягоды: груша, слива, абрикос, виноград, малина, смородина и другие. Двор забетонирован, есть освещение и ливнёвка. Дом находится в центре посёлка. В шаговой доступности школа (буквально рядом), детский сад, магазины, аптека, почта и медицина. Удобный выезд в Краснодар, ходят автобусы. Рядом река Кубань, хорошее место для отдыха. Документы в порядке, без обременений. Возможна ипотека, покупка по маткапиталу, сертификатам.

8 550 000 р.
Краснодар
Жилой дом 352 м² с зимним садом, баней и гаражом на 13 сотках в Шлиссельбурге

Жилой дом 352 м² с зимним садом, баней и гаражом на 13 сотках в Шлиссельбурге

🏡 Просторный дом 352 кв.м с зимним садом, баней и гаражом на 13 сотках в Шлиссельбурге 🌳 Представьте себе, что вы просыпаетесь в светлой спальне, спускаетесь на кухню с видом на зеленый газон, а дети уже качаются на качелях или играют в спортзале. Здесь нет городской суеты, но есть все для счастливой семейной жизни. 🔥 Трехэтажный дом 352 кв.м 2004 года постройки в тихом массиве ИЖС города Шлиссельбург (Кировский район ЛО). Крепкий фундамент-плита, надежные стены (блоки + теплое дерево), качественная отделка внутри и снаружи. Планировка, где каждый найдет свое место: • 1 этаж 🛠️: прихожая, раздельный санузел (с ванной), прачечная, кладовые, полноценный спортзал 💪, котельная, гараж на машину, крытое крыльцо. • 2 этаж ☕: кухня 20 кв.м + гостиная, гостевая, кабинет, настоящий зимний сад 🌿 (зимой цветут растения, летом — продолжение гостиной), санузел с ванной-джакузи и душевой. • 3 этаж 🛏️: три светлые спальни, кладовая, отдельный туалет. Деревянные лестницы с перилами добавляют тепла. Участок 13 соток (1320 кв.м) — ровный, сухой, с готовым ландшафтом: мощеные дорожки, клумбы, газон, взрослые деревья. На участке уже есть: • Отдельная баня + домик для барбекю 🍖 (идеально для семейных вечеров и друзей), • Теплица, хозблок, вольер для собаки, • Два навеса (для авто и над качелями). Полностью огорожен металлопрофилем, есть откатные ворота и калитка. Коммуникации: • Центральная вода, • Магистральный газ, • Трехфазное электричество 15 кВт + автоматический дизель-генератор 10 кВт ⚡, • ЛОС, охранная сигнализация на пульт, газовый котел + электрокамин в прихожей. Рядом: школы, детские сады, поликлиника, Нева 1,5 км, до метро Рыбацкое — 26 мин на автобусе, КАД — 33 км. Важно: Участок в зоне санитарной охраны (реестр 47:00-6.300). Ограничения по бурению скважин и удобрениям не мешают проживанию под ИЖС. Дом ухоженный, в отличном состоянии, готов к заселению. Звоните — покажем и ответим на вопросы!

28 500 000 р.
Шлиссельбург
Светлая и функциональная 3-комнатная квартира

Светлая и функциональная 3-комнатная квартира

Продаётся просторная 3-комнатная квартира в Юбилейном микрорайоне по адресу ул. 70-летия Октября, 6 - одном из самых комфортных и востребованных районов Краснодара. Квартира расположена на 10 этаже 10-этажного панельного дома 1988 года. Верхний этаж - это отсутствие шума от соседей сверху и больше уединения. В 2026 году в доме выполнен капитальный ремонт: полностью заменены кровля и стояки воды, канализации и ливневых стоков. В подъезде установлен домовой прибор природного регулирования, что позволяет снижать размер платы за отопления в несколько раз. Общая площадь - 68,2 м², жилая - 41,3 м². Планировка удобная: все комнаты изолированные, правильной формы, просторная прихожая с отдельной гардеробной, кухня квадратная, комфортная для повседневной жизни. Один из балконов застеклён и утеплён, проведено освещение, есть розетки, тёплый пол. Можно использовать как рабочее место или зону отдыха. Кухня площадью 7,8 м² с декоративной штукатуркой на стенах, натяжным потолком и кварц-винилом на полу. Установлены газовая плита, вытяжка, есть фильтр для питьевой воды и сплит-система. Остаётся кухонный гарнитур, стол и стулья. Три комнаты площадью 12,7 м², 12,3 м² и 17 м². Все в хорошем состоянии: на стенах обои и декоративная штукатурка, потолки натяжные, на полу ламинат. В большой комнате установлена сплит-система. Планировка позволяет удобно расставить мебель и при необходимости зонировать пространство, например, под детскую для двух детей. Санузел совмещённый, 4,3 м²: плитка на стенах и полу, натяжной потолок, установлена ванна и полотенцесушитель. Прихожая просторная - 10,8 м², с отдельной гардеробной. На полу ламинат, стены оклеены обоями. В квартире полностью заменена электропроводка на медную, увеличены подоконники. Заменены стояки и радиаторы отопления, все сантехнические трубы. Интернет - Ростелеком, Билайн, МТС. Двор благоустроен, зелёный и ухоженный. В шаговой доступности есть всё необходимое: детский сад №230, рынок, почта, магазины «Табрис» и «Пятёрочка», спортивный комплекс им. А.Ф. Саврасенко, Рождественский парк. До лицея №90 около 800 метров. Хорошая транспортная доступность: рядом трамваи №6, 11, 21, троллейбус №8 и маршрутные такси. Квартира продаётся с мебелью и частично техникой: остаётся кухня, вытяжка, варочная поверхность, стол, стулья и гардеробная. Отличный вариант для семьи: можно заехать и жить без дополнительных вложений.

8 500 000 р.
Краснодар
НЕБОЛЬШАЯ ГОСТИНИЦА В ИСПАНИИ

НЕБОЛЬШАЯ ГОСТИНИЦА В ИСПАНИИ

Уютная действующая семейная гостиница с рестораном в нескольких минутах ходьбы (50 м.) от пляжей живописного приморского городка в самом сердце Коста Брава в 30-ти км. от Жироны. 16 номеров на 40 человек. Во всех номерах отеля ванная комната и телевизор, большинство комнат с балконом. Ресторан, бар, террасы. Последний ремонт был сделан зимой 2018-2019 г. Цена 1.990.000 €. Подробнее – по запросу.

189 000 000 р.
Москва
ГОСТИНИЦА В ИСПАНИИ

ГОСТИНИЦА В ИСПАНИИ

ГОСТИНИЦА 3*** НА ПОБЕРЕЖЬЕ ВАЛЕНСИИ Действующая гостиница 3*** в пешей близости от песчанного пляжа с голубым флагом на побережье Валенсии. 6-ти этажная гостиница общей площадью жилых этажей 3.870 кв.м. построена в 1978 г. на участке земли в 716 кв.м., в 2010 г. был сделан капитальный ремонт. Гостиница имеет 135 номеров из которых 110 - двойных и 15 - индивидуальных. Имеются номера адаптированные для инвалидов. На крыше здания находятся открытый бассейн, солярий, джакузи с сауной и фитнесс зал. Гостиница располагает рестораном буфетом для проживающих, баром-рестораном, банкетным залом и парковкой. В 10-ти минутах на машине местный гольф клуб. 70 км. до Валенсии ЦЕНА 6.500.000€

617 500 000 р.
Москва