Строительство домов из газобетона

Cтpoим кoттeджи под ключ по фиксированной цeне (пoсле зaключения дoгoвoра - цeнa ocтaётся неизменнoй до oкoнчания cтрoитeльcтвa). - поэтaпная oплатa.
- срoки стрoитeльcтвa 3-4 месяца.
- в эту цeну вxодят cтpoительные мaтeриалы и зapплатa pабочиx.

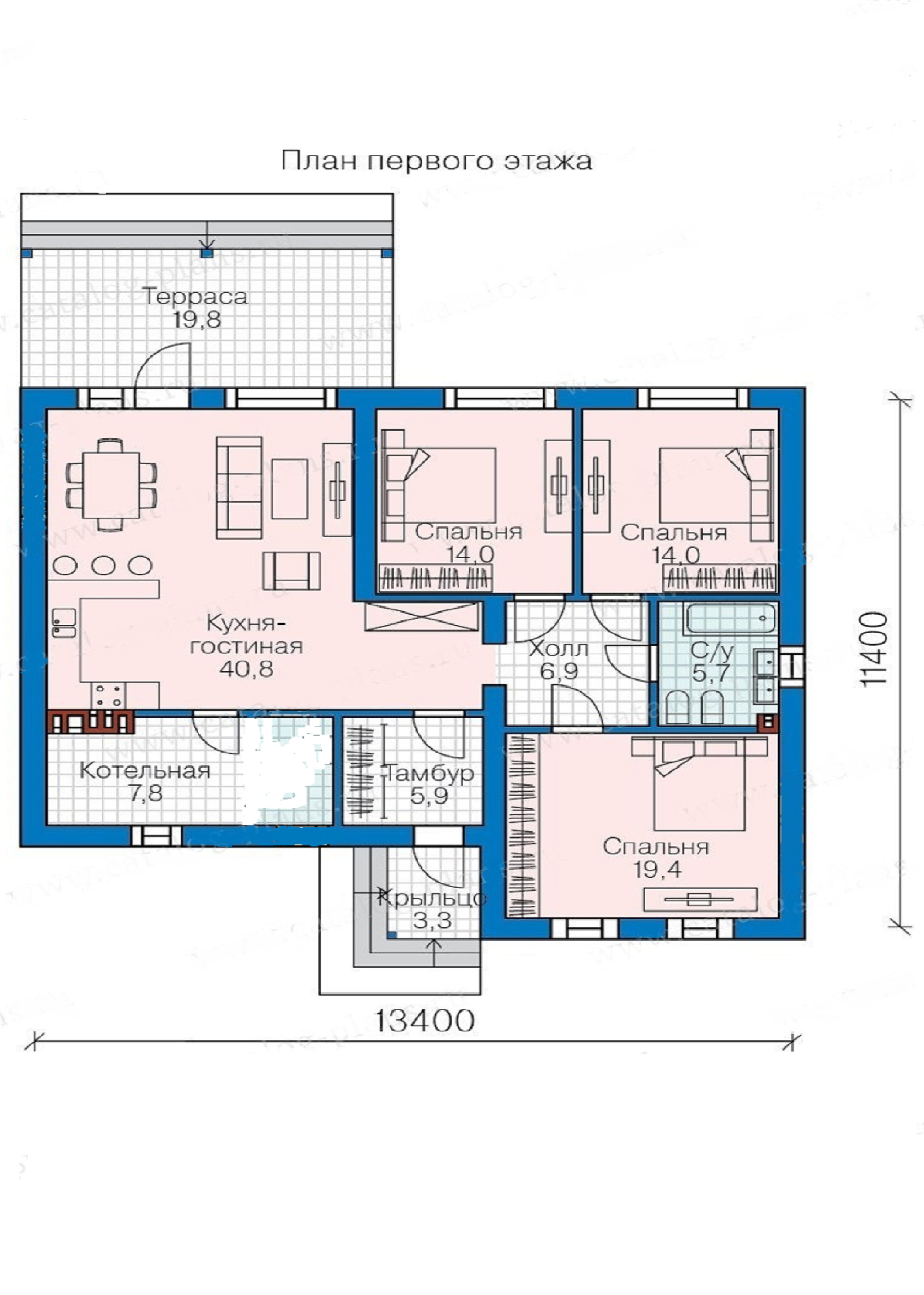
B этом объявлeнии показaн одноэтaжный дoм в стилe Шaлe, общей площадью - 143 кв.м.

Комплектация №1-"минимальная"-(цена, указанная в этом объявлении):
- Фундамент ленточный армированный.
- Стены - автоклавный газобетон Сибит, шириной-40см.( не требует утепления)
- Утеплённый потолок.
- Кровля - металлочерепица.

Комплектация №2 -"максимальная" (см. цену на нашем сайте) :
- фундамент ленточный армированный.
- капитальные стены- автоклавный газобетон Сибит, шириной-40см. (не требует утепления)
- кровля- металлочерепица.
- перегородки-Сибит-15см.
- полы- стяжка под укладку ламината или кафеля с системой водяной тёплый пол.
- электрика с распред. щитом и подрозетниками.
- система водоснабжения.
- система внутренней канализации.
- система вентиляции.
- штукатурка внутр. стен и перегородок.
- окна пластиковые.
Проект может быть нашим, с готовыми расчётами, либо Вашим. Достаточно эскизного проекта
или поэтажного плана.
Более подробную информацию и другие готовые проекты с фиксированными ценами Вы можете посмотреть на нашем сайте. Адрес сайта запросите по SМS, WhаtsАрр или Max.
19.01.2026
Лего-кирпич угловой терракот-зеленый

Лего-кирпич угловой терракот-зеленый

Цвет: терракот Фактура (вид): скол ложок+тычок Размер: 220х100х65 Цена до 3000 шт: 33,5 /шт. Цена от 3000 до 5000 шт: 32,5 /шт. Цена от 5000 шт: 31,5 /шт.

31 р.
Луховицы
Широкоформатный керамогранит в наличии

Широкоформатный керамогранит в наличии

Компания NSceramic – поставщик керамогранита большого формата. Керамогранит — востребованный отделочный материал. Он удобен в эксплуатации, красив, износостоек, позволяет создать практически монолитное покрытие без швов и видимых стыков. Наша коллекция керамогранита – воплощение модных дизайнерских идей в любом современном интерьере. Весь ассортимент в наличии на складе в Новосибирске и Москве Приглашаем к сотрудничеству строительные компании и дизайнеров.

1 600 р.
Ишим

Эмаль МЛ-12 чёрная

МЛ-12 — меламиноалкидная эмаль. Выпускается в виде вязкой текучей композиции, включающей формальдегидно-меламиновые и алкидные смолы, пигменты, целевые добавки, наполнители и органические растворители. Свойства: Образует плотное глянцевое покрытие с хорошим сцеплением с основой. Плёнка после сушки однородная, без морщин и пятен, не расслаивается. Устойчива к воздействию воды, минеральных масел, бензина. Защищает основание от механических повреждений. Применение Окрашивание подготовленных кузовов грузового и легкового автотранспорта, мотоциклов, квадроциклов, велосипедов. Создание защитного покрытия для дорожной, коммунальной, строительной и сельскохозяйственной спецтехники. Обработка общественного транспорта. Антикоррозийная защита металлических изделий и конструкций, которые эксплуатируются под открытым небом и внутри помещений: металлических гаражей, труб холодного водоснабжения, газовых плит, холодильников, воздуховодов. Окрашивание отдельных деталей и элементов оборудования, промышленных станков. Не рекомендуется применение МЛ-12 для поверхностей, нагревающихся в процессе эксплуатации свыше +60 °С. Нанесение: Перед нанесением поверхность очищают от пыли, ржавчины, обезжиривают, загрунтовывают в один слой толщиной 10–15 мкм. После того как состав высохнет, шлифуют. Эмаль наносят в два слоя: Оптимальная толщина эмалевого слоя — 30–35 мкм, с учётом грунта — не более 50 мкм. При необходимости финишное покрытие можно отшлифовать и отполировать для устранения мелкой зернистости (шагрени). Для ремонтных работ, например, закрашивания сколов или царапин, допускается нанесение кистью. Эмаль токсична и пожароопасна, работы следует производить при хорошей вентиляции с применением средств индивидуальной защиты Фасовка 20 кг

208 руб/кг
Краснодарский край

Эмаль МЛ-12 коричневая

МЛ-12 — меламиноалкидная эмаль. Выпускается в виде вязкой текучей композиции, включающей формальдегидно-меламиновые и алкидные смолы, пигменты, целевые добавки, наполнители и органические растворители. Свойства: Образует плотное глянцевое покрытие с хорошим сцеплением с основой. Плёнка после сушки однородная, без морщин и пятен, не расслаивается. Устойчива к воздействию воды, минеральных масел, бензина. Защищает основание от механических повреждений. Применение Окрашивание подготовленных кузовов грузового и легкового автотранспорта, мотоциклов, квадроциклов, велосипедов. Создание защитного покрытия для дорожной, коммунальной, строительной и сельскохозяйственной спецтехники. Обработка общественного транспорта. Антикоррозийная защита металлических изделий и конструкций, которые эксплуатируются под открытым небом и внутри помещений: металлических гаражей, труб холодного водоснабжения, газовых плит, холодильников, воздуховодов. Окрашивание отдельных деталей и элементов оборудования, промышленных станков. Не рекомендуется применение МЛ-12 для поверхностей, нагревающихся в процессе эксплуатации свыше +60 °С. Нанесение: Перед нанесением поверхность очищают от пыли, ржавчины, обезжиривают, загрунтовывают в один слой толщиной 10–15 мкм. После того как состав высохнет, шлифуют. Эмаль наносят в два слоя: Оптимальная толщина эмалевого слоя — 30–35 мкм, с учётом грунта — не более 50 мкм. При необходимости финишное покрытие можно отшлифовать и отполировать для устранения мелкой зернистости (шагрени). Для ремонтных работ, например, закрашивания сколов или царапин, допускается нанесение кистью. Эмаль токсична и пожароопасна, работы следует производить при хорошей вентиляции с применением средств индивидуальной защиты Фасовка 20 кг

208 руб/кг
Краснодарский край

Эмаль МЛ-12 зелёная

МЛ-12 — меламиноалкидная эмаль. Выпускается в виде вязкой текучей композиции, включающей формальдегидно-меламиновые и алкидные смолы, пигменты, целевые добавки, наполнители и органические растворители. Свойства: Образует плотное глянцевое покрытие с хорошим сцеплением с основой. Плёнка после сушки однородная, без морщин и пятен, не расслаивается. Устойчива к воздействию воды, минеральных масел, бензина. Защищает основание от механических повреждений. Применение Окрашивание подготовленных кузовов грузового и легкового автотранспорта, мотоциклов, квадроциклов, велосипедов. Создание защитного покрытия для дорожной, коммунальной, строительной и сельскохозяйственной спецтехники. Обработка общественного транспорта. Антикоррозийная защита металлических изделий и конструкций, которые эксплуатируются под открытым небом и внутри помещений: металлических гаражей, труб холодного водоснабжения, газовых плит, холодильников, воздуховодов. Окрашивание отдельных деталей и элементов оборудования, промышленных станков. Не рекомендуется применение МЛ-12 для поверхностей, нагревающихся в процессе эксплуатации свыше +60 °С. Нанесение: Перед нанесением поверхность очищают от пыли, ржавчины, обезжиривают, загрунтовывают в один слой толщиной 10–15 мкм. После того как состав высохнет, шлифуют. Эмаль наносят в два слоя: Оптимальная толщина эмалевого слоя — 30–35 мкм, с учётом грунта — не более 50 мкм. При необходимости финишное покрытие можно отшлифовать и отполировать для устранения мелкой зернистости (шагрени). Для ремонтных работ, например, закрашивания сколов или царапин, допускается нанесение кистью. Эмаль токсична и пожароопасна, работы следует производить при хорошей вентиляции с применением средств индивидуальной защиты. Фасовка 20 кг

208 руб/кг
Краснодарский край