Строительные услуги в Владивостке

Всего объявлений: 251

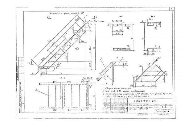
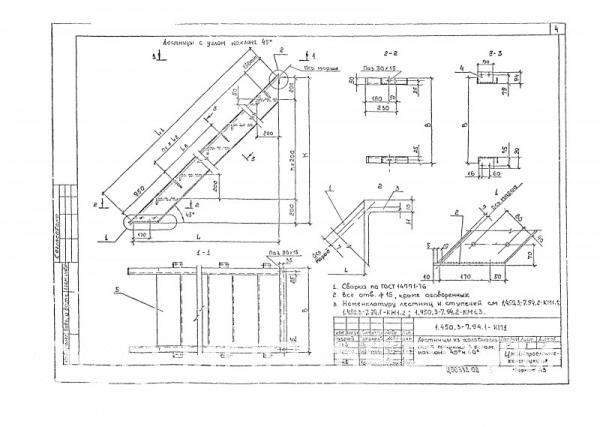
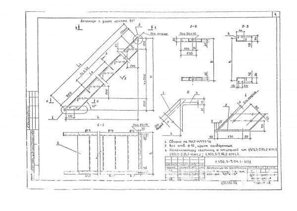
Лестница ЛХВ 60-42,7 Серия 1.450.3-7.94

Лестница ЛХВ 60-42,7 Серия 1.450.3-7.94

ООО ИПП ФЕРРУМ производит промышленные лестницы ЛХВ, ЛХФ, ЛХР, ЛГФ, ЛГВ, ЛГР (Серия 1.450.3-7.94) угол наклона 60 градусов и 45 градусов, выполненные из горячекатаных профилей. Предназначаются для эксплуатации внутри и снаружи различных не отапливаемых и отапливаемых построек промышленных предприятий, а также инженерных сооружений, которые сооружаются, а также эксплуатируются в районах: со значительной ветровой и снеговой нагрузками в соответствии с СНиП2.01.07-95; с уровнем сейсмичности до 9 баллов и несейсмических; с различными взрывобезопасными категориями производств; расчетными температурами наружного воздуха от -65 градусов Цельсия и выше; с неагрессивным, а также слабым уровнем агрессивного воздействия сред при нормальных температурно-влажностных режимах в соответствии с СНиП 11-3-79.. Промышленные лестницы ЛХВ, ЛХФ, ЛХР, ЛГВ, ЛГР, ЛГФ могут быть установлены внутри зданий, в том числе для устройства посадочных площадок, на электрические мостовые краны. Они могут быть использованы в качестве пожарных, эвакуационных и наружных. Все лестницы обладают антикоррозионной защитой. Расшифровка в таблицах: Л – лестница; Х - холодногнутый профиль; Г – горячекатаный профиль. Ф/В/Р - тип настила ступеней: Р - ребра из полосовой стали; Ф - стальной лист с ромбическим рифлением; В - просечно вытяжной лист. 24.7 - длина*ширина в дм.По требованию Заказчика лестницы (ЛХВ, ЛХФ, ЛХР, ЛГВ, ЛГР, ЛГФ) могут быть окрашены грунтом ГФ-021 с нанесением эмали ПФ-133 / ПФ-115, а также имеем возможность нанесения порошкового покрытия по ГОСТ 9.410-88, горячего цинка по ГОСТ 9.307-89, холодного цинка. Изготовление стальных Лестниц (ЛХВ, ЛХФ, ЛХР, ЛГВ, ЛГР, ЛГФ) осуществляем из следующих сталей: Ст3кп по ГОСТ 380 (С235 по ГОСТ 27772), Ст3пс по ГОСТ 380 (С245 по ГОСТ 27772) или Ст3сп5 по ГОСТ 380 (С255 по ГОСТ 27772). Кроме того можем предложить к изготовлению Стальные лестницы из нержавеющей стали 12Х18Н10Т и т.д., которые в свою очередь не нуждаются в дополнительном покрытии если это не предусмотрено проектной документацией.B (ширина): 700 H (высота): 4200 L (длина): 2423 L1 (длина косоура): 4850 L2: 1150 n: 12 n1: 3 Размер Швеллера: 16 Масса, кг: 112

11 200 руб.
Владивосток
Лестница ЛХВ 60-24,7 Серия 1.450.3-7.94

Лестница ЛХВ 60-24,7 Серия 1.450.3-7.94

ООО ИПП ФЕРРУМ производит промышленные лестницы ЛХВ, ЛХФ, ЛХР, ЛГФ, ЛГВ, ЛГР (Серия 1.450.3-7.94) угол наклона 60 градусов и 45 градусов, выполненные из горячекатаных профилей. Предназначаются для эксплуатации внутри и снаружи различных не отапливаемых и отапливаемых построек промышленных предприятий, а также инженерных сооружений, которые сооружаются, а также эксплуатируются в районах: со значительной ветровой и снеговой нагрузками в соответствии с СНиП2.01.07-95; с уровнем сейсмичности до 9 баллов и несейсмических; с различными взрывобезопасными категориями производств; расчетными температурами наружного воздуха от -65 градусов Цельсия и выше; с неагрессивным, а также слабым уровнем агрессивного воздействия сред при нормальных температурно-влажностных режимах в соответствии с СНиП 11-3-79.. Промышленные лестницы ЛХВ, ЛХФ, ЛХР, ЛГВ, ЛГР, ЛГФ могут быть установлены внутри зданий, в том числе для устройства посадочных площадок, на электрические мостовые краны. Они могут быть использованы в качестве пожарных, эвакуационных и наружных. Все лестницы обладают антикоррозионной защитой. Расшифровка в таблицах: Л – лестница; Х - холодногнутый профиль; Г – горячекатаный профиль. Ф/В/Р - тип настила ступеней: Р - ребра из полосовой стали; Ф - стальной лист с ромбическим рифлением; В - просечно вытяжной лист. 24.7 - длина*ширина в дм.По требованию Заказчика лестницы (ЛХВ, ЛХФ, ЛХР, ЛГВ, ЛГР, ЛГФ) могут быть окрашены грунтом ГФ-021 с нанесением эмали ПФ-133 / ПФ-115, а также имеем возможность нанесения порошкового покрытия по ГОСТ 9.410-88, горячего цинка по ГОСТ 9.307-89, холодного цинка. Изготовление стальных Лестниц (ЛХВ, ЛХФ, ЛХР, ЛГВ, ЛГР, ЛГФ) осуществляем из следующих сталей: Ст3кп по ГОСТ 380 (С235 по ГОСТ 27772), Ст3пс по ГОСТ 380 (С245 по ГОСТ 27772) или Ст3сп5 по ГОСТ 380 (С255 по ГОСТ 27772). Кроме того можем предложить к изготовлению Стальные лестницы из нержавеющей стали 12Х18Н10Т и т.д., которые в свою очередь не нуждаются в дополнительном покрытии если это не предусмотрено проектной документацией.B (ширина): 700 H (высота): 2400 L (длина): 1385 L1 (длина косоура): 2771 L2: 1420 n: 6 n1: - Размер Швеллера: 16 Масса, кг: 64

6 400 руб.
Владивосток
Лестница ЛХВ 60-18,7 Серия 1.450.3-7.94

Лестница ЛХВ 60-18,7 Серия 1.450.3-7.94

ООО ИПП ФЕРРУМ производит промышленные лестницы ЛХВ, ЛХФ, ЛХР, ЛГФ, ЛГВ, ЛГР (Серия 1.450.3-7.94) угол наклона 60 градусов и 45 градусов, выполненные из горячекатаных профилей. Предназначаются для эксплуатации внутри и снаружи различных не отапливаемых и отапливаемых построек промышленных предприятий, а также инженерных сооружений, которые сооружаются, а также эксплуатируются в районах: со значительной ветровой и снеговой нагрузками в соответствии с СНиП2.01.07-95; с уровнем сейсмичности до 9 баллов и несейсмических; с различными взрывобезопасными категориями производств; расчетными температурами наружного воздуха от -65 градусов Цельсия и выше; с неагрессивным, а также слабым уровнем агрессивного воздействия сред при нормальных температурно-влажностных режимах в соответствии с СНиП 11-3-79.. Промышленные лестницы ЛХВ, ЛХФ, ЛХР, ЛГВ, ЛГР, ЛГФ могут быть установлены внутри зданий, в том числе для устройства посадочных площадок, на электрические мостовые краны. Они могут быть использованы в качестве пожарных, эвакуационных и наружных. Все лестницы обладают антикоррозионной защитой. Расшифровка в таблицах: Л – лестница; Х - холодногнутый профиль; Г – горячекатаный профиль. Ф/В/Р - тип настила ступеней: Р - ребра из полосовой стали; Ф - стальной лист с ромбическим рифлением; В - просечно вытяжной лист. 24.7 - длина*ширина в дм.По требованию Заказчика лестницы (ЛХВ, ЛХФ, ЛХР, ЛГВ, ЛГР, ЛГФ) могут быть окрашены грунтом ГФ-021 с нанесением эмали ПФ-133 / ПФ-115, а также имеем возможность нанесения порошкового покрытия по ГОСТ 9.410-88, горячего цинка по ГОСТ 9.307-89, холодного цинка. Изготовление стальных Лестниц (ЛХВ, ЛХФ, ЛХР, ЛГВ, ЛГР, ЛГФ) осуществляем из следующих сталей: Ст3кп по ГОСТ 380 (С235 по ГОСТ 27772), Ст3пс по ГОСТ 380 (С245 по ГОСТ 27772) или Ст3сп5 по ГОСТ 380 (С255 по ГОСТ 27772). Кроме того можем предложить к изготовлению Стальные лестницы из нержавеющей стали 12Х18Н10Т и т.д., которые в свою очередь не нуждаются в дополнительном покрытии если это не предусмотрено проектной документацией.B (ширина): 700 H (высота): 1800 L (длина): 1039 L1 (длина косоура): 2078 L2: 720 n: 4 n1: - Размер Швеллера: 16 Масса, кг: 49

4 900 руб.
Владивосток
Лестница ЛХФ 60-42,7 Серия 1.450.3-7.94

Лестница ЛХФ 60-42,7 Серия 1.450.3-7.94

ООО ИПП ФЕРРУМ производит промышленные лестницы ЛХВ, ЛХФ, ЛХР, ЛГФ, ЛГВ, ЛГР (Серия 1.450.3-7.94) угол наклона 60 градусов и 45 градусов, выполненные из горячекатаных профилей. Предназначаются для эксплуатации внутри и снаружи различных не отапливаемых и отапливаемых построек промышленных предприятий, а также инженерных сооружений, которые сооружаются, а также эксплуатируются в районах: со значительной ветровой и снеговой нагрузками в соответствии с СНиП2.01.07-95; с уровнем сейсмичности до 9 баллов и несейсмических; с различными взрывобезопасными категориями производств; расчетными температурами наружного воздуха от -65 градусов Цельсия и выше; с неагрессивным, а также слабым уровнем агрессивного воздействия сред при нормальных температурно-влажностных режимах в соответствии с СНиП 11-3-79.. Промышленные лестницы ЛХВ, ЛХФ, ЛХР, ЛГВ, ЛГР, ЛГФ могут быть установлены внутри зданий, в том числе для устройства посадочных площадок, на электрические мостовые краны. Они могут быть использованы в качестве пожарных, эвакуационных и наружных. Все лестницы обладают антикоррозионной защитой. Расшифровка в таблицах: Л – лестница; Х - холодногнутый профиль; Г – горячекатаный профиль. Ф/В/Р - тип настила ступеней: Р - ребра из полосовой стали; Ф - стальной лист с ромбическим рифлением; В - просечно вытяжной лист. 24.7 - длина*ширина в дм.По требованию Заказчика лестницы (ЛХВ, ЛХФ, ЛХР, ЛГВ, ЛГР, ЛГФ) могут быть окрашены грунтом ГФ-021 с нанесением эмали ПФ-133 / ПФ-115, а также имеем возможность нанесения порошкового покрытия по ГОСТ 9.410-88, горячего цинка по ГОСТ 9.307-89, холодного цинка. Изготовление стальных Лестниц (ЛХВ, ЛХФ, ЛХР, ЛГВ, ЛГР, ЛГФ) осуществляем из следующих сталей: Ст3кп по ГОСТ 380 (С235 по ГОСТ 27772), Ст3пс по ГОСТ 380 (С245 по ГОСТ 27772) или Ст3сп5 по ГОСТ 380 (С255 по ГОСТ 27772). Кроме того можем предложить к изготовлению Стальные лестницы из нержавеющей стали 12Х18Н10Т и т.д., которые в свою очередь не нуждаются в дополнительном покрытии если это не предусмотрено проектной документацией.B (ширина): 700 H (высота): 4200 L (длина): 2423 L1 (длина косоура): 4850 L2: 1150 n: 12 n1: 3 Размер Швеллера: 16 Масса, кг: 136

13 600 руб.
Владивосток
Лестница ЛХФ 60-36,7 Серия 1.450.3-7.94

Лестница ЛХФ 60-36,7 Серия 1.450.3-7.94

ООО ИПП ФЕРРУМ производит промышленные лестницы ЛХВ, ЛХФ, ЛХР, ЛГФ, ЛГВ, ЛГР (Серия 1.450.3-7.94) угол наклона 60 градусов и 45 градусов, выполненные из горячекатаных профилей. Предназначаются для эксплуатации внутри и снаружи различных не отапливаемых и отапливаемых построек промышленных предприятий, а также инженерных сооружений, которые сооружаются, а также эксплуатируются в районах: со значительной ветровой и снеговой нагрузками в соответствии с СНиП2.01.07-95; с уровнем сейсмичности до 9 баллов и несейсмических; с различными взрывобезопасными категориями производств; расчетными температурами наружного воздуха от -65 градусов Цельсия и выше; с неагрессивным, а также слабым уровнем агрессивного воздействия сред при нормальных температурно-влажностных режимах в соответствии с СНиП 11-3-79.. Промышленные лестницы ЛХВ, ЛХФ, ЛХР, ЛГВ, ЛГР, ЛГФ могут быть установлены внутри зданий, в том числе для устройства посадочных площадок, на электрические мостовые краны. Они могут быть использованы в качестве пожарных, эвакуационных и наружных. Все лестницы обладают антикоррозионной защитой. Расшифровка в таблицах: Л – лестница; Х - холодногнутый профиль; Г – горячекатаный профиль. Ф/В/Р - тип настила ступеней: Р - ребра из полосовой стали; Ф - стальной лист с ромбическим рифлением; В - просечно вытяжной лист. 24.7 - длина*ширина в дм.По требованию Заказчика лестницы (ЛХВ, ЛХФ, ЛХР, ЛГВ, ЛГР, ЛГФ) могут быть окрашены грунтом ГФ-021 с нанесением эмали ПФ-133 / ПФ-115, а также имеем возможность нанесения порошкового покрытия по ГОСТ 9.410-88, горячего цинка по ГОСТ 9.307-89, холодного цинка. Изготовление стальных Лестниц (ЛХВ, ЛХФ, ЛХР, ЛГВ, ЛГР, ЛГФ) осуществляем из следующих сталей: Ст3кп по ГОСТ 380 (С235 по ГОСТ 27772), Ст3пс по ГОСТ 380 (С245 по ГОСТ 27772) или Ст3сп5 по ГОСТ 380 (С255 по ГОСТ 27772). Кроме того можем предложить к изготовлению Стальные лестницы из нержавеющей стали 12Х18Н10Т и т.д., которые в свою очередь не нуждаются в дополнительном покрытии если это не предусмотрено проектной документацией.B (ширина): 700 H (высота): 3600 L (длина): 2077 L1 (длина косоура): 4157 L2: 1400 n: 10 n1: 2 Размер Швеллера: 16 Масса, кг: 117

11 700 руб.
Владивосток
Лестница ЛХФ 60-24,7 Серия 1.450.3-7.94

Лестница ЛХФ 60-24,7 Серия 1.450.3-7.94

ООО ИПП ФЕРРУМ производит промышленные лестницы ЛХВ, ЛХФ, ЛХР, ЛГФ, ЛГВ, ЛГР (Серия 1.450.3-7.94) угол наклона 60 градусов и 45 градусов, выполненные из горячекатаных профилей. Предназначаются для эксплуатации внутри и снаружи различных не отапливаемых и отапливаемых построек промышленных предприятий, а также инженерных сооружений, которые сооружаются, а также эксплуатируются в районах: со значительной ветровой и снеговой нагрузками в соответствии с СНиП2.01.07-95; с уровнем сейсмичности до 9 баллов и несейсмических; с различными взрывобезопасными категориями производств; расчетными температурами наружного воздуха от -65 градусов Цельсия и выше; с неагрессивным, а также слабым уровнем агрессивного воздействия сред при нормальных температурно-влажностных режимах в соответствии с СНиП 11-3-79.. Промышленные лестницы ЛХВ, ЛХФ, ЛХР, ЛГВ, ЛГР, ЛГФ могут быть установлены внутри зданий, в том числе для устройства посадочных площадок, на электрические мостовые краны. Они могут быть использованы в качестве пожарных, эвакуационных и наружных. Все лестницы обладают антикоррозионной защитой. Расшифровка в таблицах: Л – лестница; Х - холодногнутый профиль; Г – горячекатаный профиль. Ф/В/Р - тип настила ступеней: Р - ребра из полосовой стали; Ф - стальной лист с ромбическим рифлением; В - просечно вытяжной лист. 24.7 - длина*ширина в дм.По требованию Заказчика лестницы (ЛХВ, ЛХФ, ЛХР, ЛГВ, ЛГР, ЛГФ) могут быть окрашены грунтом ГФ-021 с нанесением эмали ПФ-133 / ПФ-115, а также имеем возможность нанесения порошкового покрытия по ГОСТ 9.410-88, горячего цинка по ГОСТ 9.307-89, холодного цинка. Изготовление стальных Лестниц (ЛХВ, ЛХФ, ЛХР, ЛГВ, ЛГР, ЛГФ) осуществляем из следующих сталей: Ст3кп по ГОСТ 380 (С235 по ГОСТ 27772), Ст3пс по ГОСТ 380 (С245 по ГОСТ 27772) или Ст3сп5 по ГОСТ 380 (С255 по ГОСТ 27772). Кроме того можем предложить к изготовлению Стальные лестницы из нержавеющей стали 12Х18Н10Т и т.д., которые в свою очередь не нуждаются в дополнительном покрытии если это не предусмотрено проектной документацией.B (ширина): 700 H (высота): 2400 L (длина): 1385 L1 (длина косоура): 2771 L2: 1420 n: 6 n1: - Размер Швеллера: 16 Масса, кг: 78

7 800 руб.
Владивосток
Лестница ЛХР 45-42,9 Серия 1.450.3-7.94

Лестница ЛХР 45-42,9 Серия 1.450.3-7.94

ООО ИПП ФЕРРУМ производит промышленные лестницы ЛХВ, ЛХФ, ЛХР, ЛГФ, ЛГВ, ЛГР (Серия 1.450.3-7.94) угол наклона 60 градусов и 45 градусов, выполненные из горячекатаных профилей. Предназначаются для эксплуатации внутри и снаружи различных не отапливаемых и отапливаемых построек промышленных предприятий, а также инженерных сооружений, которые сооружаются, а также эксплуатируются в районах: со значительной ветровой и снеговой нагрузками в соответствии с СНиП2.01.07-95; с уровнем сейсмичности до 9 баллов и несейсмических; с различными взрывобезопасными категориями производств; расчетными температурами наружного воздуха от -65 градусов Цельсия и выше; с неагрессивным, а также слабым уровнем агрессивного воздействия сред при нормальных температурно-влажностных режимах в соответствии с СНиП 11-3-79.. Промышленные лестницы ЛХВ, ЛХФ, ЛХР, ЛГВ, ЛГР, ЛГФ могут быть установлены внутри зданий, в том числе для устройства посадочных площадок, на электрические мостовые краны. Они могут быть использованы в качестве пожарных, эвакуационных и наружных. Все лестницы обладают антикоррозионной защитой. Расшифровка в таблицах: Л – лестница; Х - холодногнутый профиль; Г – горячекатаный профиль. Ф/В/Р - тип настила ступеней: Р - ребра из полосовой стали; Ф - стальной лист с ромбическим рифлением; В - просечно вытяжной лист. 24.7 - длина*ширина в дм.По требованию Заказчика лестницы (ЛХВ, ЛХФ, ЛХР, ЛГВ, ЛГР, ЛГФ) могут быть окрашены грунтом ГФ-021 с нанесением эмали ПФ-133 / ПФ-115, а также имеем возможность нанесения порошкового покрытия по ГОСТ 9.410-88, горячего цинка по ГОСТ 9.307-89, холодного цинка. Изготовление стальных Лестниц (ЛХВ, ЛХФ, ЛХР, ЛГВ, ЛГР, ЛГФ) осуществляем из следующих сталей: Ст3кп по ГОСТ 380 (С235 по ГОСТ 27772), Ст3пс по ГОСТ 380 (С245 по ГОСТ 27772) или Ст3сп5 по ГОСТ 380 (С255 по ГОСТ 27772). Кроме того можем предложить к изготовлению Стальные лестницы из нержавеющей стали 12Х18Н10Т и т.д., которые в свою очередь не нуждаются в дополнительном покрытии если это не предусмотрено проектной документацией.B (ширина): 900 H (высота): 4200 L (длина): 4200 L1 (длина косоура): 5941 L2: 1500 n: 19 n1: 3 Размер Швеллера: 16 Масса, кг: 230

23 000 руб.
Владивосток
Лестница ЛХР 45-42,7 Серия 1.450.3-7.94

Лестница ЛХР 45-42,7 Серия 1.450.3-7.94

ООО ИПП ФЕРРУМ производит промышленные лестницы ЛХВ, ЛХФ, ЛХР, ЛГФ, ЛГВ, ЛГР (Серия 1.450.3-7.94) угол наклона 60 градусов и 45 градусов, выполненные из горячекатаных профилей. Предназначаются для эксплуатации внутри и снаружи различных не отапливаемых и отапливаемых построек промышленных предприятий, а также инженерных сооружений, которые сооружаются, а также эксплуатируются в районах: со значительной ветровой и снеговой нагрузками в соответствии с СНиП2.01.07-95; с уровнем сейсмичности до 9 баллов и несейсмических; с различными взрывобезопасными категориями производств; расчетными температурами наружного воздуха от -65 градусов Цельсия и выше; с неагрессивным, а также слабым уровнем агрессивного воздействия сред при нормальных температурно-влажностных режимах в соответствии с СНиП 11-3-79.. Промышленные лестницы ЛХВ, ЛХФ, ЛХР, ЛГВ, ЛГР, ЛГФ могут быть установлены внутри зданий, в том числе для устройства посадочных площадок, на электрические мостовые краны. Они могут быть использованы в качестве пожарных, эвакуационных и наружных. Все лестницы обладают антикоррозионной защитой. Расшифровка в таблицах: Л – лестница; Х - холодногнутый профиль; Г – горячекатаный профиль. Ф/В/Р - тип настила ступеней: Р - ребра из полосовой стали; Ф - стальной лист с ромбическим рифлением; В - просечно вытяжной лист. 24.7 - длина*ширина в дм.По требованию Заказчика лестницы (ЛХВ, ЛХФ, ЛХР, ЛГВ, ЛГР, ЛГФ) могут быть окрашены грунтом ГФ-021 с нанесением эмали ПФ-133 / ПФ-115, а также имеем возможность нанесения порошкового покрытия по ГОСТ 9.410-88, горячего цинка по ГОСТ 9.307-89, холодного цинка. Изготовление стальных Лестниц (ЛХВ, ЛХФ, ЛХР, ЛГВ, ЛГР, ЛГФ) осуществляем из следующих сталей: Ст3кп по ГОСТ 380 (С235 по ГОСТ 27772), Ст3пс по ГОСТ 380 (С245 по ГОСТ 27772) или Ст3сп5 по ГОСТ 380 (С255 по ГОСТ 27772). Кроме того можем предложить к изготовлению Стальные лестницы из нержавеющей стали 12Х18Н10Т и т.д., которые в свою очередь не нуждаются в дополнительном покрытии если это не предусмотрено проектной документацией.B (ширина): 700 H (высота): 4200 L (длина): 4200 L1 (длина косоура): 5941 L2: 1500 n: 19 n1: 3 Размер Швеллера: 16 Масса, кг: 198

19 800 руб.
Владивосток
Лестница ЛХР 45-36,9 Серия 1.450.3-7.94

Лестница ЛХР 45-36,9 Серия 1.450.3-7.94

ООО ИПП ФЕРРУМ производит промышленные лестницы ЛХВ, ЛХФ, ЛХР, ЛГФ, ЛГВ, ЛГР (Серия 1.450.3-7.94) угол наклона 60 градусов и 45 градусов, выполненные из горячекатаных профилей. Предназначаются для эксплуатации внутри и снаружи различных не отапливаемых и отапливаемых построек промышленных предприятий, а также инженерных сооружений, которые сооружаются, а также эксплуатируются в районах: со значительной ветровой и снеговой нагрузками в соответствии с СНиП2.01.07-95; с уровнем сейсмичности до 9 баллов и несейсмических; с различными взрывобезопасными категориями производств; расчетными температурами наружного воздуха от -65 градусов Цельсия и выше; с неагрессивным, а также слабым уровнем агрессивного воздействия сред при нормальных температурно-влажностных режимах в соответствии с СНиП 11-3-79.. Промышленные лестницы ЛХВ, ЛХФ, ЛХР, ЛГВ, ЛГР, ЛГФ могут быть установлены внутри зданий, в том числе для устройства посадочных площадок, на электрические мостовые краны. Они могут быть использованы в качестве пожарных, эвакуационных и наружных. Все лестницы обладают антикоррозионной защитой. Расшифровка в таблицах: Л – лестница; Х - холодногнутый профиль; Г – горячекатаный профиль. Ф/В/Р - тип настила ступеней: Р - ребра из полосовой стали; Ф - стальной лист с ромбическим рифлением; В - просечно вытяжной лист. 24.7 - длина*ширина в дм.По требованию Заказчика лестницы (ЛХВ, ЛХФ, ЛХР, ЛГВ, ЛГР, ЛГФ) могут быть окрашены грунтом ГФ-021 с нанесением эмали ПФ-133 / ПФ-115, а также имеем возможность нанесения порошкового покрытия по ГОСТ 9.410-88, горячего цинка по ГОСТ 9.307-89, холодного цинка. Изготовление стальных Лестниц (ЛХВ, ЛХФ, ЛХР, ЛГВ, ЛГР, ЛГФ) осуществляем из следующих сталей: Ст3кп по ГОСТ 380 (С235 по ГОСТ 27772), Ст3пс по ГОСТ 380 (С245 по ГОСТ 27772) или Ст3сп5 по ГОСТ 380 (С255 по ГОСТ 27772). Кроме того можем предложить к изготовлению Стальные лестницы из нержавеющей стали 12Х18Н10Т и т.д., которые в свою очередь не нуждаются в дополнительном покрытии если это не предусмотрено проектной документацией.B (ширина): 900 H (высота): 3600 L (длина): 3600 L1 (длина косоура): 5092 L2: 1300 n: 16 n1: 3 Размер Швеллера: 16 Масса, кг: 197

19 700 руб.
Владивосток
Лестница ЛХР 45-36,7 Серия 1.450.3-7.94

Лестница ЛХР 45-36,7 Серия 1.450.3-7.94

ООО ИПП ФЕРРУМ производит промышленные лестницы ЛХВ, ЛХФ, ЛХР, ЛГФ, ЛГВ, ЛГР (Серия 1.450.3-7.94) угол наклона 60 градусов и 45 градусов, выполненные из горячекатаных профилей. Предназначаются для эксплуатации внутри и снаружи различных не отапливаемых и отапливаемых построек промышленных предприятий, а также инженерных сооружений, которые сооружаются, а также эксплуатируются в районах: со значительной ветровой и снеговой нагрузками в соответствии с СНиП2.01.07-95; с уровнем сейсмичности до 9 баллов и несейсмических; с различными взрывобезопасными категориями производств; расчетными температурами наружного воздуха от -65 градусов Цельсия и выше; с неагрессивным, а также слабым уровнем агрессивного воздействия сред при нормальных температурно-влажностных режимах в соответствии с СНиП 11-3-79.. Промышленные лестницы ЛХВ, ЛХФ, ЛХР, ЛГВ, ЛГР, ЛГФ могут быть установлены внутри зданий, в том числе для устройства посадочных площадок, на электрические мостовые краны. Они могут быть использованы в качестве пожарных, эвакуационных и наружных. Все лестницы обладают антикоррозионной защитой. Расшифровка в таблицах: Л – лестница; Х - холодногнутый профиль; Г – горячекатаный профиль. Ф/В/Р - тип настила ступеней: Р - ребра из полосовой стали; Ф - стальной лист с ромбическим рифлением; В - просечно вытяжной лист. 24.7 - длина*ширина в дм.По требованию Заказчика лестницы (ЛХВ, ЛХФ, ЛХР, ЛГВ, ЛГР, ЛГФ) могут быть окрашены грунтом ГФ-021 с нанесением эмали ПФ-133 / ПФ-115, а также имеем возможность нанесения порошкового покрытия по ГОСТ 9.410-88, горячего цинка по ГОСТ 9.307-89, холодного цинка. Изготовление стальных Лестниц (ЛХВ, ЛХФ, ЛХР, ЛГВ, ЛГР, ЛГФ) осуществляем из следующих сталей: Ст3кп по ГОСТ 380 (С235 по ГОСТ 27772), Ст3пс по ГОСТ 380 (С245 по ГОСТ 27772) или Ст3сп5 по ГОСТ 380 (С255 по ГОСТ 27772). Кроме того можем предложить к изготовлению Стальные лестницы из нержавеющей стали 12Х18Н10Т и т.д., которые в свою очередь не нуждаются в дополнительном покрытии если это не предусмотрено проектной документацией.B (ширина): 700 H (высота): 3600 L (длина): 3600 L1 (длина косоура): 5092 L2: 1300 n: 16 n1: 3 Размер Швеллера: 16 Масса, кг: 169

16 900 руб.
Владивосток
Лестница ЛХФ 60-18,7 Серия 1.450.3-7.94

Лестница ЛХФ 60-18,7 Серия 1.450.3-7.94

ООО ИПП ФЕРРУМ производит промышленные лестницы ЛХВ, ЛХФ, ЛХР, ЛГФ, ЛГВ, ЛГР (Серия 1.450.3-7.94) угол наклона 60 градусов и 45 градусов, выполненные из горячекатаных профилей. Предназначаются для эксплуатации внутри и снаружи различных не отапливаемых и отапливаемых построек промышленных предприятий, а также инженерных сооружений, которые сооружаются, а также эксплуатируются в районах: со значительной ветровой и снеговой нагрузками в соответствии с СНиП2.01.07-95; с уровнем сейсмичности до 9 баллов и несейсмических; с различными взрывобезопасными категориями производств; расчетными температурами наружного воздуха от -65 градусов Цельсия и выше; с неагрессивным, а также слабым уровнем агрессивного воздействия сред при нормальных температурно-влажностных режимах в соответствии с СНиП 11-3-79.. Промышленные лестницы ЛХВ, ЛХФ, ЛХР, ЛГВ, ЛГР, ЛГФ могут быть установлены внутри зданий, в том числе для устройства посадочных площадок, на электрические мостовые краны. Они могут быть использованы в качестве пожарных, эвакуационных и наружных. Все лестницы обладают антикоррозионной защитой. Расшифровка в таблицах: Л – лестница; Х - холодногнутый профиль; Г – горячекатаный профиль. Ф/В/Р - тип настила ступеней: Р - ребра из полосовой стали; Ф - стальной лист с ромбическим рифлением; В - просечно вытяжной лист. 24.7 - длина*ширина в дм.По требованию Заказчика лестницы (ЛХВ, ЛХФ, ЛХР, ЛГВ, ЛГР, ЛГФ) могут быть окрашены грунтом ГФ-021 с нанесением эмали ПФ-133 / ПФ-115, а также имеем возможность нанесения порошкового покрытия по ГОСТ 9.410-88, горячего цинка по ГОСТ 9.307-89, холодного цинка. Изготовление стальных Лестниц (ЛХВ, ЛХФ, ЛХР, ЛГВ, ЛГР, ЛГФ) осуществляем из следующих сталей: Ст3кп по ГОСТ 380 (С235 по ГОСТ 27772), Ст3пс по ГОСТ 380 (С245 по ГОСТ 27772) или Ст3сп5 по ГОСТ 380 (С255 по ГОСТ 27772). Кроме того можем предложить к изготовлению Стальные лестницы из нержавеющей стали 12Х18Н10Т и т.д., которые в свою очередь не нуждаются в дополнительном покрытии если это не предусмотрено проектной документацией.B (ширина): 700 H (высота): 1800 L (длина): 1039 L1 (длина косоура): 2078 L2: 720 n: 4 n1: - Размер Швеллера: 16 Масса, кг: 58

5 800 руб.
Владивосток
Лестница ЛХФ 60-6,7 Серия 1.450.3-7.94

Лестница ЛХФ 60-6,7 Серия 1.450.3-7.94

ООО ИПП ФЕРРУМ производит промышленные лестницы ЛХВ, ЛХФ, ЛХР, ЛГФ, ЛГВ, ЛГР (Серия 1.450.3-7.94) угол наклона 60 градусов и 45 градусов, выполненные из горячекатаных профилей. Предназначаются для эксплуатации внутри и снаружи различных не отапливаемых и отапливаемых построек промышленных предприятий, а также инженерных сооружений, которые сооружаются, а также эксплуатируются в районах: со значительной ветровой и снеговой нагрузками в соответствии с СНиП2.01.07-95; с уровнем сейсмичности до 9 баллов и несейсмических; с различными взрывобезопасными категориями производств; расчетными температурами наружного воздуха от -65 градусов Цельсия и выше; с неагрессивным, а также слабым уровнем агрессивного воздействия сред при нормальных температурно-влажностных режимах в соответствии с СНиП 11-3-79.. Промышленные лестницы ЛХВ, ЛХФ, ЛХР, ЛГВ, ЛГР, ЛГФ могут быть установлены внутри зданий, в том числе для устройства посадочных площадок, на электрические мостовые краны. Они могут быть использованы в качестве пожарных, эвакуационных и наружных. Все лестницы обладают антикоррозионной защитой. Расшифровка в таблицах: Л – лестница; Х - холодногнутый профиль; Г – горячекатаный профиль. Ф/В/Р - тип настила ступеней: Р - ребра из полосовой стали; Ф - стальной лист с ромбическим рифлением; В - просечно вытяжной лист. 24.7 - длина*ширина в дм.По требованию Заказчика лестницы (ЛХВ, ЛХФ, ЛХР, ЛГВ, ЛГР, ЛГФ) могут быть окрашены грунтом ГФ-021 с нанесением эмали ПФ-133 / ПФ-115, а также имеем возможность нанесения порошкового покрытия по ГОСТ 9.410-88, горячего цинка по ГОСТ 9.307-89, холодного цинка. Изготовление стальных Лестниц (ЛХВ, ЛХФ, ЛХР, ЛГВ, ЛГР, ЛГФ) осуществляем из следующих сталей: Ст3кп по ГОСТ 380 (С235 по ГОСТ 27772), Ст3пс по ГОСТ 380 (С245 по ГОСТ 27772) или Ст3сп5 по ГОСТ 380 (С255 по ГОСТ 27772). Кроме того можем предложить к изготовлению Стальные лестницы из нержавеющей стали 12Х18Н10Т и т.д., которые в свою очередь не нуждаются в дополнительном покрытии если это не предусмотрено проектной документацией.B (ширина): 700 H (высота): 600 L (длина): 346 L1 (длина косоура): 693 L2: - n: - n1: - Размер Швеллера: 16 Масса, кг: 19

1 900 руб.
Владивосток
Лестница ЛГР 60-42,7 Серия 1.450.3-7.94

Лестница ЛГР 60-42,7 Серия 1.450.3-7.94

ООО ИПП ФЕРРУМ производит промышленные лестницы ЛХВ, ЛХФ, ЛХР, ЛГФ, ЛГВ, ЛГР (Серия 1.450.3-7.94) угол наклона 60 градусов и 45 градусов, выполненные из горячекатаных профилей. Предназначаются для эксплуатации внутри и снаружи различных не отапливаемых и отапливаемых построек промышленных предприятий, а также инженерных сооружений, которые сооружаются, а также эксплуатируются в районах: со значительной ветровой и снеговой нагрузками в соответствии с СНиП2.01.07-95; с уровнем сейсмичности до 9 баллов и несейсмических; с различными взрывобезопасными категориями производств; расчетными температурами наружного воздуха от -65 градусов Цельсия и выше; с неагрессивным, а также слабым уровнем агрессивного воздействия сред при нормальных температурно-влажностных режимах в соответствии с СНиП 11-3-79.. Промышленные лестницы ЛХВ, ЛХФ, ЛХР, ЛГВ, ЛГР, ЛГФ могут быть установлены внутри зданий, в том числе для устройства посадочных площадок, на электрические мостовые краны. Они могут быть использованы в качестве пожарных, эвакуационных и наружных. Все лестницы обладают антикоррозионной защитой. Расшифровка в таблицах: Л – лестница; Х - холодногнутый профиль; Г – горячекатаный профиль. Ф/В/Р - тип настила ступеней: Р - ребра из полосовой стали; Ф - стальной лист с ромбическим рифлением; В - просечно вытяжной лист. 24.7 - длина*ширина в дм.По требованию Заказчика лестницы (ЛХВ, ЛХФ, ЛХР, ЛГВ, ЛГР, ЛГФ) могут быть окрашены грунтом ГФ-021 с нанесением эмали ПФ-133 / ПФ-115, а также имеем возможность нанесения порошкового покрытия по ГОСТ 9.410-88, горячего цинка по ГОСТ 9.307-89, холодного цинка. Изготовление стальных Лестниц (ЛХВ, ЛХФ, ЛХР, ЛГВ, ЛГР, ЛГФ) осуществляем из следующих сталей: Ст3кп по ГОСТ 380 (С235 по ГОСТ 27772), Ст3пс по ГОСТ 380 (С245 по ГОСТ 27772) или Ст3сп5 по ГОСТ 380 (С255 по ГОСТ 27772). Кроме того можем предложить к изготовлению Стальные лестницы из нержавеющей стали 12Х18Н10Т и т.д., которые в свою очередь не нуждаются в дополнительном покрытии если это не предусмотрено проектной документацией.B (ширина): 728 H (высота): 4200 L (длина): 2423 L1 (длина косоура): 4850 L2: 1150 n: 12 n1: 3 Размер Швеллера: 16 Масса, кг: 208

20 800 руб.
Владивосток
Лестница ЛГР 60-24,7 Серия 1.450.3-7.94

Лестница ЛГР 60-24,7 Серия 1.450.3-7.94

ООО ИПП ФЕРРУМ производит промышленные лестницы ЛХВ, ЛХФ, ЛХР, ЛГФ, ЛГВ, ЛГР (Серия 1.450.3-7.94) угол наклона 60 градусов и 45 градусов, выполненные из горячекатаных профилей. Предназначаются для эксплуатации внутри и снаружи различных не отапливаемых и отапливаемых построек промышленных предприятий, а также инженерных сооружений, которые сооружаются, а также эксплуатируются в районах: со значительной ветровой и снеговой нагрузками в соответствии с СНиП2.01.07-95; с уровнем сейсмичности до 9 баллов и несейсмических; с различными взрывобезопасными категориями производств; расчетными температурами наружного воздуха от -65 градусов Цельсия и выше; с неагрессивным, а также слабым уровнем агрессивного воздействия сред при нормальных температурно-влажностных режимах в соответствии с СНиП 11-3-79.. Промышленные лестницы ЛХВ, ЛХФ, ЛХР, ЛГВ, ЛГР, ЛГФ могут быть установлены внутри зданий, в том числе для устройства посадочных площадок, на электрические мостовые краны. Они могут быть использованы в качестве пожарных, эвакуационных и наружных. Все лестницы обладают антикоррозионной защитой. Расшифровка в таблицах: Л – лестница; Х - холодногнутый профиль; Г – горячекатаный профиль. Ф/В/Р - тип настила ступеней: Р - ребра из полосовой стали; Ф - стальной лист с ромбическим рифлением; В - просечно вытяжной лист. 24.7 - длина*ширина в дм.По требованию Заказчика лестницы (ЛХВ, ЛХФ, ЛХР, ЛГВ, ЛГР, ЛГФ) могут быть окрашены грунтом ГФ-021 с нанесением эмали ПФ-133 / ПФ-115, а также имеем возможность нанесения порошкового покрытия по ГОСТ 9.410-88, горячего цинка по ГОСТ 9.307-89, холодного цинка. Изготовление стальных Лестниц (ЛХВ, ЛХФ, ЛХР, ЛГВ, ЛГР, ЛГФ) осуществляем из следующих сталей: Ст3кп по ГОСТ 380 (С235 по ГОСТ 27772), Ст3пс по ГОСТ 380 (С245 по ГОСТ 27772) или Ст3сп5 по ГОСТ 380 (С255 по ГОСТ 27772). Кроме того можем предложить к изготовлению Стальные лестницы из нержавеющей стали 12Х18Н10Т и т.д., которые в свою очередь не нуждаются в дополнительном покрытии если это не предусмотрено проектной документацией.B (ширина): 728 H (высота): 2400 L (длина): 1385 L1 (длина косоура): 2771 L2: 1420 n: 6 n1: - Размер Швеллера: 16 Масса, кг: 118

11 800 руб.
Владивосток
Лестница ЛГР 60-18,7 Серия 1.450.3-7.94

Лестница ЛГР 60-18,7 Серия 1.450.3-7.94

ООО ИПП ФЕРРУМ производит промышленные лестницы ЛХВ, ЛХФ, ЛХР, ЛГФ, ЛГВ, ЛГР (Серия 1.450.3-7.94) угол наклона 60 градусов и 45 градусов, выполненные из горячекатаных профилей. Предназначаются для эксплуатации внутри и снаружи различных не отапливаемых и отапливаемых построек промышленных предприятий, а также инженерных сооружений, которые сооружаются, а также эксплуатируются в районах: со значительной ветровой и снеговой нагрузками в соответствии с СНиП2.01.07-95; с уровнем сейсмичности до 9 баллов и несейсмических; с различными взрывобезопасными категориями производств; расчетными температурами наружного воздуха от -65 градусов Цельсия и выше; с неагрессивным, а также слабым уровнем агрессивного воздействия сред при нормальных температурно-влажностных режимах в соответствии с СНиП 11-3-79.. Промышленные лестницы ЛХВ, ЛХФ, ЛХР, ЛГВ, ЛГР, ЛГФ могут быть установлены внутри зданий, в том числе для устройства посадочных площадок, на электрические мостовые краны. Они могут быть использованы в качестве пожарных, эвакуационных и наружных. Все лестницы обладают антикоррозионной защитой. Расшифровка в таблицах: Л – лестница; Х - холодногнутый профиль; Г – горячекатаный профиль. Ф/В/Р - тип настила ступеней: Р - ребра из полосовой стали; Ф - стальной лист с ромбическим рифлением; В - просечно вытяжной лист. 24.7 - длина*ширина в дм.По требованию Заказчика лестницы (ЛХВ, ЛХФ, ЛХР, ЛГВ, ЛГР, ЛГФ) могут быть окрашены грунтом ГФ-021 с нанесением эмали ПФ-133 / ПФ-115, а также имеем возможность нанесения порошкового покрытия по ГОСТ 9.410-88, горячего цинка по ГОСТ 9.307-89, холодного цинка. Изготовление стальных Лестниц (ЛХВ, ЛХФ, ЛХР, ЛГВ, ЛГР, ЛГФ) осуществляем из следующих сталей: Ст3кп по ГОСТ 380 (С235 по ГОСТ 27772), Ст3пс по ГОСТ 380 (С245 по ГОСТ 27772) или Ст3сп5 по ГОСТ 380 (С255 по ГОСТ 27772). Кроме того можем предложить к изготовлению Стальные лестницы из нержавеющей стали 12Х18Н10Т и т.д., которые в свою очередь не нуждаются в дополнительном покрытии если это не предусмотрено проектной документацией.B (ширина): 728 H (высота): 1800 L (длина): 1039 L1 (длина косоура): 2078 L2: 720 n: 4 n1: - Размер Швеллера: 16 Масса, кг: 89

8 900 руб.
Владивосток
Лестница ЛГР 60-6,7 Серия 1.450.3-7.94

Лестница ЛГР 60-6,7 Серия 1.450.3-7.94

ООО ИПП ФЕРРУМ производит промышленные лестницы ЛХВ, ЛХФ, ЛХР, ЛГФ, ЛГВ, ЛГР (Серия 1.450.3-7.94) угол наклона 60 градусов и 45 градусов, выполненные из горячекатаных профилей. Предназначаются для эксплуатации внутри и снаружи различных не отапливаемых и отапливаемых построек промышленных предприятий, а также инженерных сооружений, которые сооружаются, а также эксплуатируются в районах: со значительной ветровой и снеговой нагрузками в соответствии с СНиП2.01.07-95; с уровнем сейсмичности до 9 баллов и несейсмических; с различными взрывобезопасными категориями производств; расчетными температурами наружного воздуха от -65 градусов Цельсия и выше; с неагрессивным, а также слабым уровнем агрессивного воздействия сред при нормальных температурно-влажностных режимах в соответствии с СНиП 11-3-79.. Промышленные лестницы ЛХВ, ЛХФ, ЛХР, ЛГВ, ЛГР, ЛГФ могут быть установлены внутри зданий, в том числе для устройства посадочных площадок, на электрические мостовые краны. Они могут быть использованы в качестве пожарных, эвакуационных и наружных. Все лестницы обладают антикоррозионной защитой. Расшифровка в таблицах: Л – лестница; Х - холодногнутый профиль; Г – горячекатаный профиль. Ф/В/Р - тип настила ступеней: Р - ребра из полосовой стали; Ф - стальной лист с ромбическим рифлением; В - просечно вытяжной лист. 24.7 - длина*ширина в дм.По требованию Заказчика лестницы (ЛХВ, ЛХФ, ЛХР, ЛГВ, ЛГР, ЛГФ) могут быть окрашены грунтом ГФ-021 с нанесением эмали ПФ-133 / ПФ-115, а также имеем возможность нанесения порошкового покрытия по ГОСТ 9.410-88, горячего цинка по ГОСТ 9.307-89, холодного цинка. Изготовление стальных Лестниц (ЛХВ, ЛХФ, ЛХР, ЛГВ, ЛГР, ЛГФ) осуществляем из следующих сталей: Ст3кп по ГОСТ 380 (С235 по ГОСТ 27772), Ст3пс по ГОСТ 380 (С245 по ГОСТ 27772) или Ст3сп5 по ГОСТ 380 (С255 по ГОСТ 27772). Кроме того можем предложить к изготовлению Стальные лестницы из нержавеющей стали 12Х18Н10Т и т.д., которые в свою очередь не нуждаются в дополнительном покрытии если это не предусмотрено проектной документацией.B (ширина): 728 H (высота): 600 L (длина): 346 L1 (длина косоура): 693 L2: - n: - n1: - Размер Швеллера: 16 Масса, кг: 29

2 900 руб.
Владивосток
Лестница ЛГВ 60-36,7 Серия 1.450.3-7.94

Лестница ЛГВ 60-36,7 Серия 1.450.3-7.94

ООО ИПП ФЕРРУМ производит промышленные лестницы ЛХВ, ЛХФ, ЛХР, ЛГФ, ЛГВ, ЛГР (Серия 1.450.3-7.94) угол наклона 60 градусов и 45 градусов, выполненные из горячекатаных профилей. Предназначаются для эксплуатации внутри и снаружи различных не отапливаемых и отапливаемых построек промышленных предприятий, а также инженерных сооружений, которые сооружаются, а также эксплуатируются в районах: со значительной ветровой и снеговой нагрузками в соответствии с СНиП2.01.07-95; с уровнем сейсмичности до 9 баллов и несейсмических; с различными взрывобезопасными категориями производств; расчетными температурами наружного воздуха от -65 градусов Цельсия и выше; с неагрессивным, а также слабым уровнем агрессивного воздействия сред при нормальных температурно-влажностных режимах в соответствии с СНиП 11-3-79.. Промышленные лестницы ЛХВ, ЛХФ, ЛХР, ЛГВ, ЛГР, ЛГФ могут быть установлены внутри зданий, в том числе для устройства посадочных площадок, на электрические мостовые краны. Они могут быть использованы в качестве пожарных, эвакуационных и наружных. Все лестницы обладают антикоррозионной защитой. Расшифровка в таблицах: Л – лестница; Х - холодногнутый профиль; Г – горячекатаный профиль. Ф/В/Р - тип настила ступеней: Р - ребра из полосовой стали; Ф - стальной лист с ромбическим рифлением; В - просечно вытяжной лист. 24.7 - длина*ширина в дм.По требованию Заказчика лестницы (ЛХВ, ЛХФ, ЛХР, ЛГВ, ЛГР, ЛГФ) могут быть окрашены грунтом ГФ-021 с нанесением эмали ПФ-133 / ПФ-115, а также имеем возможность нанесения порошкового покрытия по ГОСТ 9.410-88, горячего цинка по ГОСТ 9.307-89, холодного цинка. Изготовление стальных Лестниц (ЛХВ, ЛХФ, ЛХР, ЛГВ, ЛГР, ЛГФ) осуществляем из следующих сталей: Ст3кп по ГОСТ 380 (С235 по ГОСТ 27772), Ст3пс по ГОСТ 380 (С245 по ГОСТ 27772) или Ст3сп5 по ГОСТ 380 (С255 по ГОСТ 27772). Кроме того можем предложить к изготовлению Стальные лестницы из нержавеющей стали 12Х18Н10Т и т.д., которые в свою очередь не нуждаются в дополнительном покрытии если это не предусмотрено проектной документацией.B (ширина): 728 H (высота): 3600 L (длина): 2077 L1 (длина косоура): 4157 L2: 1400 n: 10 n1: 2 Размер Швеллера: 16 Масса, кг: 151

15 100 руб.
Владивосток
Лестница ЛГВ 60-24,7 Серия 1.450.3-7.94

Лестница ЛГВ 60-24,7 Серия 1.450.3-7.94

ООО ИПП ФЕРРУМ производит промышленные лестницы ЛХВ, ЛХФ, ЛХР, ЛГФ, ЛГВ, ЛГР (Серия 1.450.3-7.94) угол наклона 60 градусов и 45 градусов, выполненные из горячекатаных профилей. Предназначаются для эксплуатации внутри и снаружи различных не отапливаемых и отапливаемых построек промышленных предприятий, а также инженерных сооружений, которые сооружаются, а также эксплуатируются в районах: со значительной ветровой и снеговой нагрузками в соответствии с СНиП2.01.07-95; с уровнем сейсмичности до 9 баллов и несейсмических; с различными взрывобезопасными категориями производств; расчетными температурами наружного воздуха от -65 градусов Цельсия и выше; с неагрессивным, а также слабым уровнем агрессивного воздействия сред при нормальных температурно-влажностных режимах в соответствии с СНиП 11-3-79.. Промышленные лестницы ЛХВ, ЛХФ, ЛХР, ЛГВ, ЛГР, ЛГФ могут быть установлены внутри зданий, в том числе для устройства посадочных площадок, на электрические мостовые краны. Они могут быть использованы в качестве пожарных, эвакуационных и наружных. Все лестницы обладают антикоррозионной защитой. Расшифровка в таблицах: Л – лестница; Х - холодногнутый профиль; Г – горячекатаный профиль. Ф/В/Р - тип настила ступеней: Р - ребра из полосовой стали; Ф - стальной лист с ромбическим рифлением; В - просечно вытяжной лист. 24.7 - длина*ширина в дм.По требованию Заказчика лестницы (ЛХВ, ЛХФ, ЛХР, ЛГВ, ЛГР, ЛГФ) могут быть окрашены грунтом ГФ-021 с нанесением эмали ПФ-133 / ПФ-115, а также имеем возможность нанесения порошкового покрытия по ГОСТ 9.410-88, горячего цинка по ГОСТ 9.307-89, холодного цинка. Изготовление стальных Лестниц (ЛХВ, ЛХФ, ЛХР, ЛГВ, ЛГР, ЛГФ) осуществляем из следующих сталей: Ст3кп по ГОСТ 380 (С235 по ГОСТ 27772), Ст3пс по ГОСТ 380 (С245 по ГОСТ 27772) или Ст3сп5 по ГОСТ 380 (С255 по ГОСТ 27772). Кроме того можем предложить к изготовлению Стальные лестницы из нержавеющей стали 12Х18Н10Т и т.д., которые в свою очередь не нуждаются в дополнительном покрытии если это не предусмотрено проектной документацией.B (ширина): 728 H (высота): 2400 L (длина): 1385 L1 (длина косоура): 2771 L2: 1420 n: 6 n1: - Размер Швеллера: 16 Масса, кг: 101

10 100 руб.
Владивосток
Лестница ЛГВ 60-18,7 Серия 1.450.3-7.94

Лестница ЛГВ 60-18,7 Серия 1.450.3-7.94

ООО ИПП ФЕРРУМ производит промышленные лестницы ЛХВ, ЛХФ, ЛХР, ЛГФ, ЛГВ, ЛГР (Серия 1.450.3-7.94) угол наклона 60 градусов и 45 градусов, выполненные из горячекатаных профилей. Предназначаются для эксплуатации внутри и снаружи различных не отапливаемых и отапливаемых построек промышленных предприятий, а также инженерных сооружений, которые сооружаются, а также эксплуатируются в районах: со значительной ветровой и снеговой нагрузками в соответствии с СНиП2.01.07-95; с уровнем сейсмичности до 9 баллов и несейсмических; с различными взрывобезопасными категориями производств; расчетными температурами наружного воздуха от -65 градусов Цельсия и выше; с неагрессивным, а также слабым уровнем агрессивного воздействия сред при нормальных температурно-влажностных режимах в соответствии с СНиП 11-3-79.. Промышленные лестницы ЛХВ, ЛХФ, ЛХР, ЛГВ, ЛГР, ЛГФ могут быть установлены внутри зданий, в том числе для устройства посадочных площадок, на электрические мостовые краны. Они могут быть использованы в качестве пожарных, эвакуационных и наружных. Все лестницы обладают антикоррозионной защитой. Расшифровка в таблицах: Л – лестница; Х - холодногнутый профиль; Г – горячекатаный профиль. Ф/В/Р - тип настила ступеней: Р - ребра из полосовой стали; Ф - стальной лист с ромбическим рифлением; В - просечно вытяжной лист. 24.7 - длина*ширина в дм.По требованию Заказчика лестницы (ЛХВ, ЛХФ, ЛХР, ЛГВ, ЛГР, ЛГФ) могут быть окрашены грунтом ГФ-021 с нанесением эмали ПФ-133 / ПФ-115, а также имеем возможность нанесения порошкового покрытия по ГОСТ 9.410-88, горячего цинка по ГОСТ 9.307-89, холодного цинка. Изготовление стальных Лестниц (ЛХВ, ЛХФ, ЛХР, ЛГВ, ЛГР, ЛГФ) осуществляем из следующих сталей: Ст3кп по ГОСТ 380 (С235 по ГОСТ 27772), Ст3пс по ГОСТ 380 (С245 по ГОСТ 27772) или Ст3сп5 по ГОСТ 380 (С255 по ГОСТ 27772). Кроме того можем предложить к изготовлению Стальные лестницы из нержавеющей стали 12Х18Н10Т и т.д., которые в свою очередь не нуждаются в дополнительном покрытии если это не предусмотрено проектной документацией.B (ширина): 728 H (высота): 1800 L (длина): 1039 L1 (длина косоура): 2078 L2: 720 n: 4 n1: - Размер Швеллера: 16 Масса, кг: 77

7 700 руб.
Владивосток
Лестница ЛГВ 60-6,7 Серия 1.450.3-7.94

Лестница ЛГВ 60-6,7 Серия 1.450.3-7.94

ООО ИПП ФЕРРУМ производит промышленные лестницы ЛХВ, ЛХФ, ЛХР, ЛГФ, ЛГВ, ЛГР (Серия 1.450.3-7.94) угол наклона 60 градусов и 45 градусов, выполненные из горячекатаных профилей. Предназначаются для эксплуатации внутри и снаружи различных не отапливаемых и отапливаемых построек промышленных предприятий, а также инженерных сооружений, которые сооружаются, а также эксплуатируются в районах: со значительной ветровой и снеговой нагрузками в соответствии с СНиП2.01.07-95; с уровнем сейсмичности до 9 баллов и несейсмических; с различными взрывобезопасными категориями производств; расчетными температурами наружного воздуха от -65 градусов Цельсия и выше; с неагрессивным, а также слабым уровнем агрессивного воздействия сред при нормальных температурно-влажностных режимах в соответствии с СНиП 11-3-79.. Промышленные лестницы ЛХВ, ЛХФ, ЛХР, ЛГВ, ЛГР, ЛГФ могут быть установлены внутри зданий, в том числе для устройства посадочных площадок, на электрические мостовые краны. Они могут быть использованы в качестве пожарных, эвакуационных и наружных. Все лестницы обладают антикоррозионной защитой. Расшифровка в таблицах: Л – лестница; Х - холодногнутый профиль; Г – горячекатаный профиль. Ф/В/Р - тип настила ступеней: Р - ребра из полосовой стали; Ф - стальной лист с ромбическим рифлением; В - просечно вытяжной лист. 24.7 - длина*ширина в дм.По требованию Заказчика лестницы (ЛХВ, ЛХФ, ЛХР, ЛГВ, ЛГР, ЛГФ) могут быть окрашены грунтом ГФ-021 с нанесением эмали ПФ-133 / ПФ-115, а также имеем возможность нанесения порошкового покрытия по ГОСТ 9.410-88, горячего цинка по ГОСТ 9.307-89, холодного цинка. Изготовление стальных Лестниц (ЛХВ, ЛХФ, ЛХР, ЛГВ, ЛГР, ЛГФ) осуществляем из следующих сталей: Ст3кп по ГОСТ 380 (С235 по ГОСТ 27772), Ст3пс по ГОСТ 380 (С245 по ГОСТ 27772) или Ст3сп5 по ГОСТ 380 (С255 по ГОСТ 27772). Кроме того можем предложить к изготовлению Стальные лестницы из нержавеющей стали 12Х18Н10Т и т.д., которые в свою очередь не нуждаются в дополнительном покрытии если это не предусмотрено проектной документацией.B (ширина): 728 H (высота): 600 L (длина): 346 L1 (длина косоура): 693 L2: - n: - n1: - Размер Швеллера: 16 Масса, кг: 26

2 600 руб.
Владивосток